Скачать Типовой проект 409-23-56.87 Альбом 14. Силовое электрооборудование. Задание заводам ГЭМДата актуализации: 01.01.2021
|
| Обозначение: | Типовой проект 409-23-56.87 |
| Обозначение англ: | 409-23-56.87 |
| Статус: | не определен законодательством |
| Название рус.: | Альбом 14. Силовое электрооборудование. Задание заводам ГЭМ |
| Дата добавления в базу: | 01.09.2013 |
| Дата актуализации: | 01.01.2021 |
| Дата введения: | 04.12.1985 |
| Дата окончания срока действия: | 30.06.2003 |
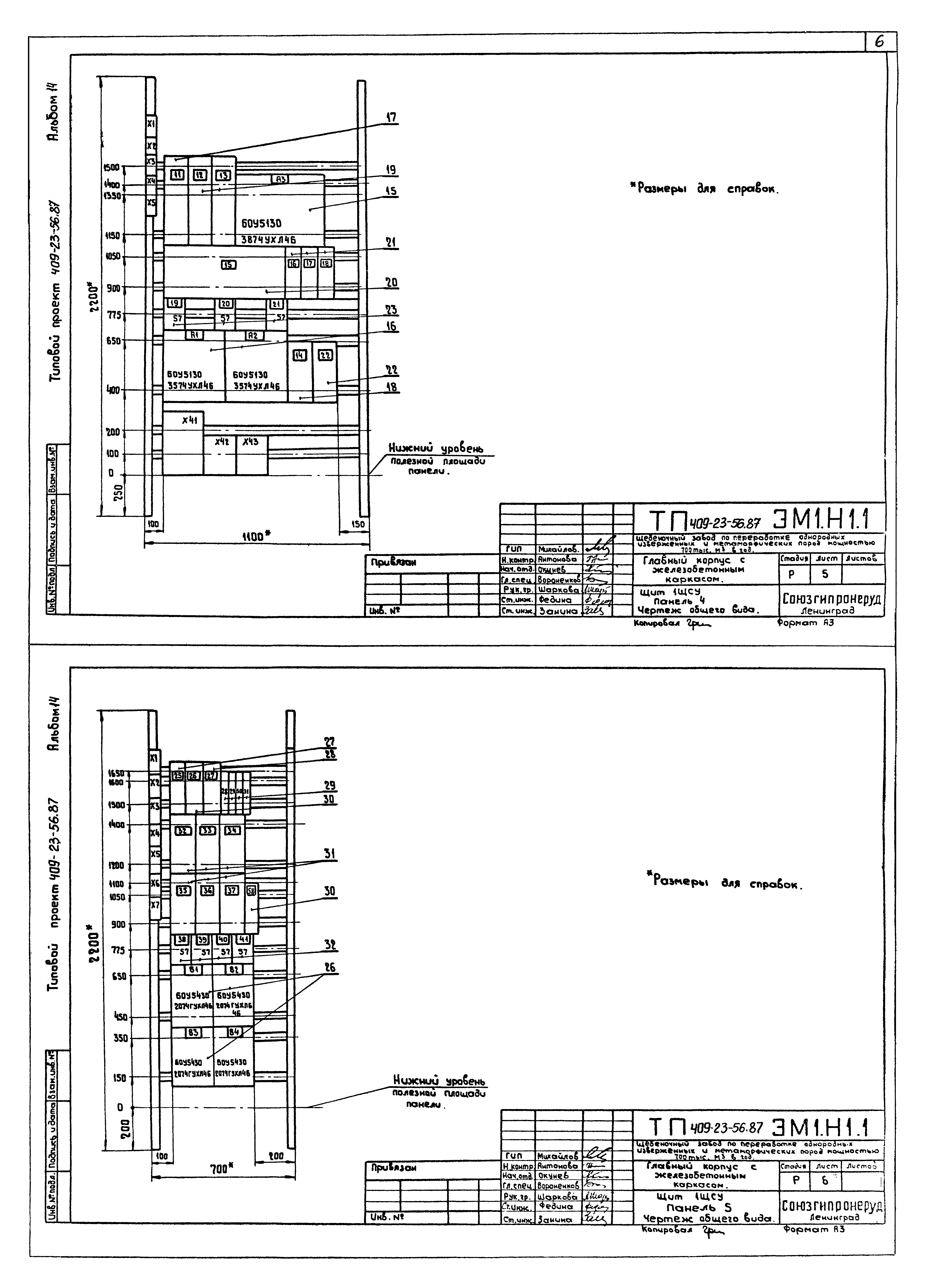
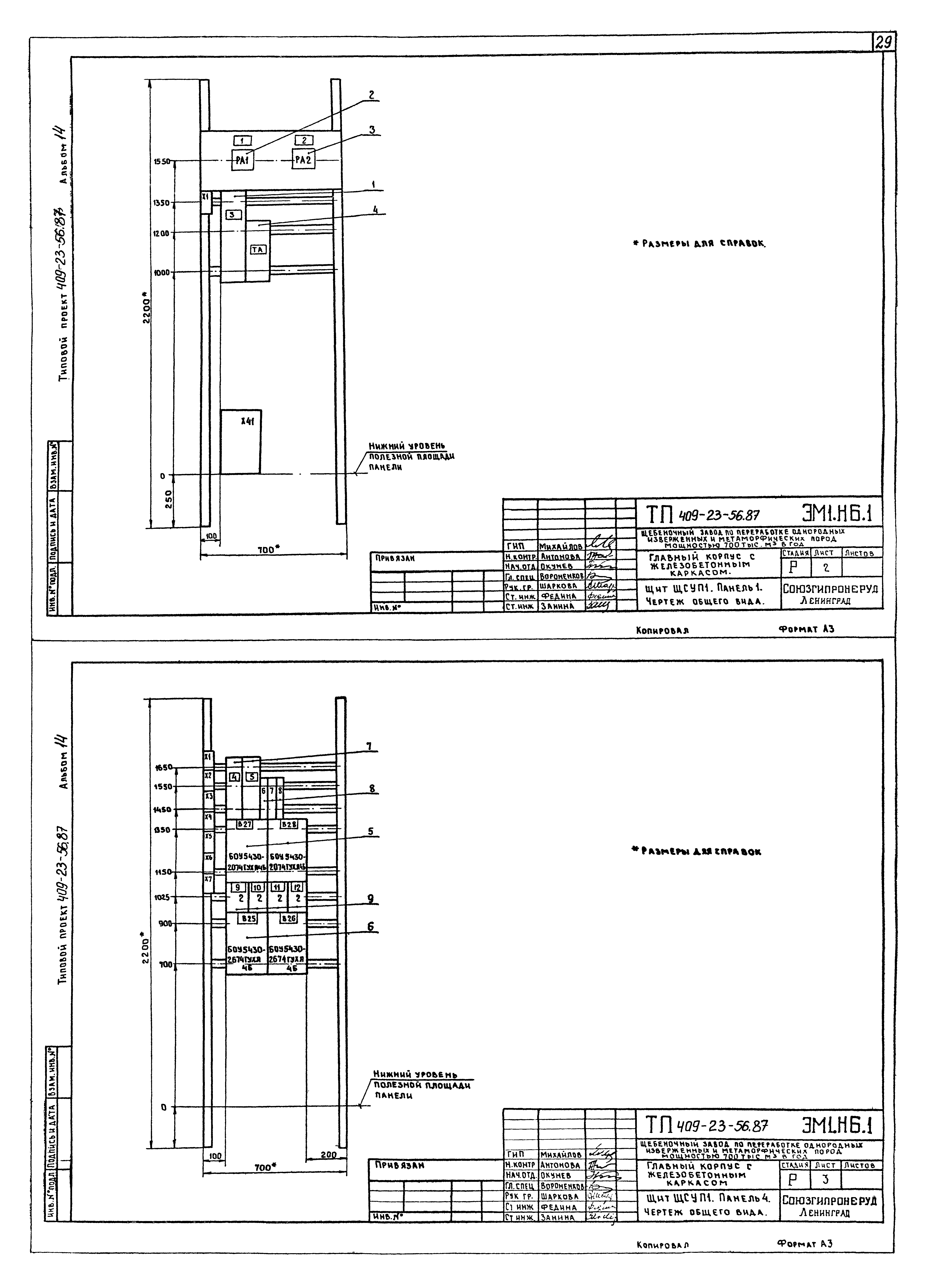
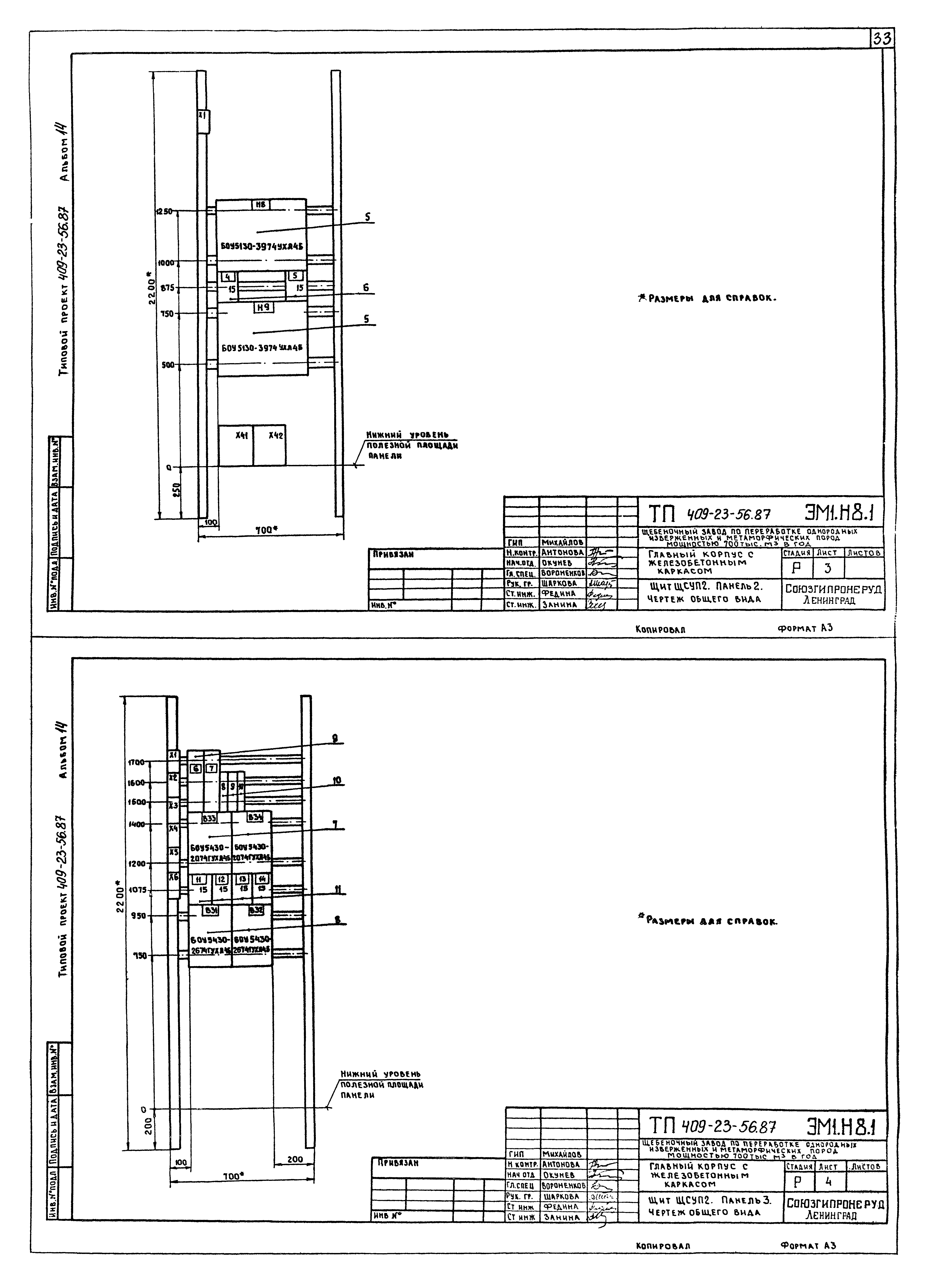
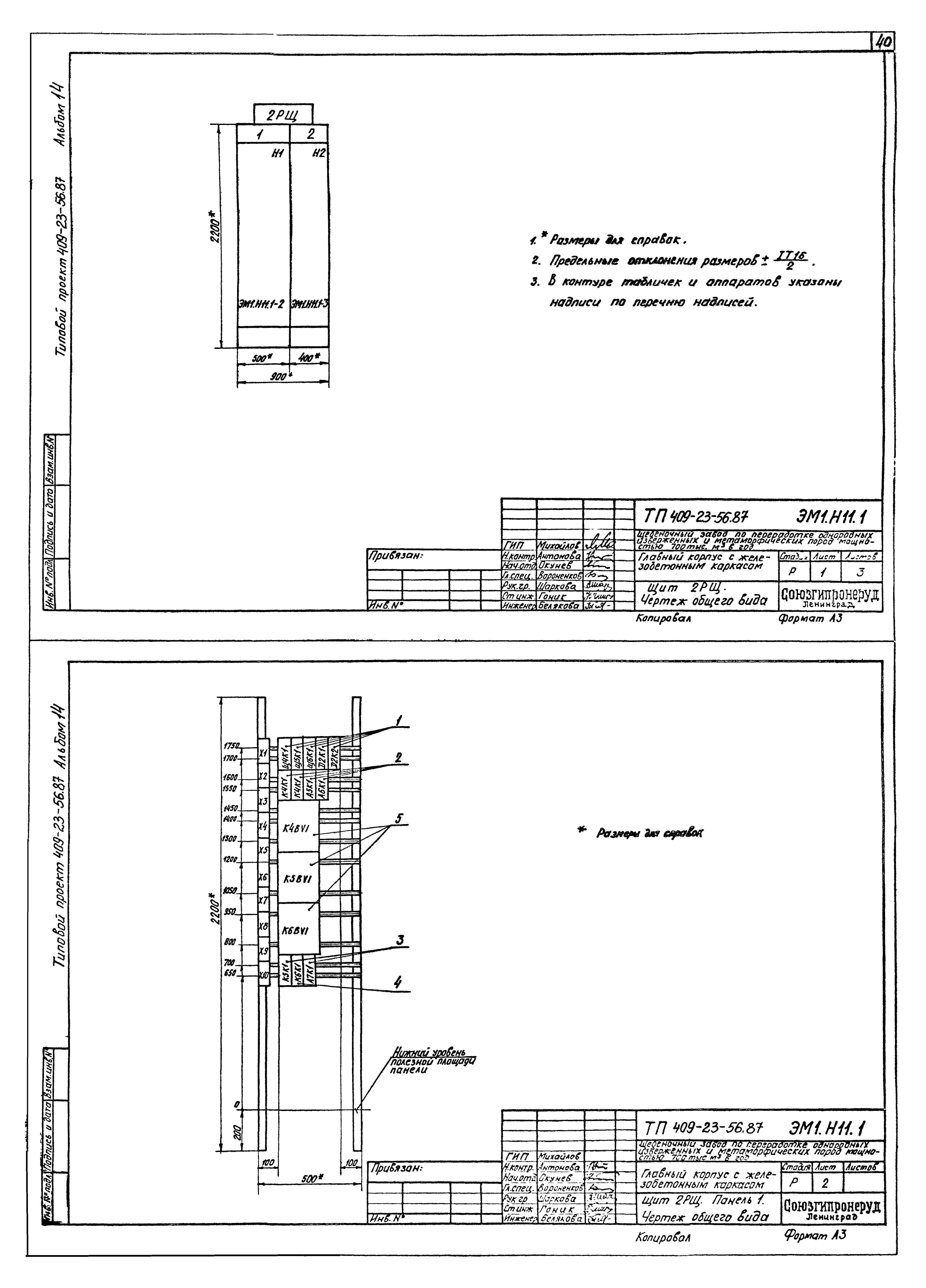
| Оглавление: | Содержание альбома Перечень комплектных устройств Щит 1ЩСУ. Чертеж общего вида Щит 1ЩСУ. Технические данные аппаратов Щит 1ЩСУ. Перечень надписей Щит 2ЩСУ. Чертеж общего вида Щит 2ЩСУ. Технические данные аппаратов Щит 2ЩСУ. Перечень надписей Щит 2ЩСУ. Панель 5 (6). Чертеж общего вида Щит 2ЩСУ. Панель 5 (6). Технические данные аппаратов Щит 2ЩСУ. Панель 5 (6). Перечень надписей Щит 3ЩСУ (4ЩСУ). Чертеж общего вида Щит 3ЩСУ (4ЩСУ). Технические данные аппаратов Щит 3ЩСУ (4ЩСУ). Перечень надписей Щит 5ЩСУ. Чертеж общего вида Щит 5ЩСУ. Технические данные аппаратов Щит 5ЩСУ. Перечень надписей Щит ЩСУП1. Чертеж общего вида Щит ЩСУП1. Технические данные аппаратов Щит ЩСУП1. Перечень надписей Щит ЩСУП1. Панель 2 (3). Чертеж общего вида Щит ЩСУП1. Панель 2 (3). Технические данные аппаратов Щит ЩСУП1. Панель 2 (3). Перечень надписей Щит ЩСУП2. Чертеж общего вида Щит ЩСУП2. Технические данные аппаратов Щит ЩСУП2. Перечень надписей Щит ЩСУП3. Чертеж общего вида Щит ЩСУП3. Технические данные аппаратов Щит ЩСУП3. Перечень надписей Щит 1РЩ. Чертеж общего вида Щит 1РЩ. Технические данные аппаратов Щит 1РЩ. Перечень надписей Щит 2РЩ. Чертеж общего вида Щит 2РЩ. Технические данные аппаратов Щит 2РЩ. Перечень надписей Щит 3РЩ (4РЩ). Чертеж общего вида Щит 3РЩ (4РЩ). Технические данные аппаратов Щит 3РЩ (4РЩ). Перечень надписей Щит РЩП. Чертеж общего вида Щит РЩП. Технические данные аппаратов Щит РЩП. Перечень надписей Щит 1РЩД. Чертеж общего вида Щит 1РЩД. Технические данные аппаратов Щит 1РЩД. Перечень надписей Щит 3РЩД. Чертеж общего вида Щит 3РЩД. Технические данные аппаратов Щит 3РЩД. Перечень надписей Щит РЩД. Чертеж общего вида Щит РЩД. Технические данные аппаратов Щит РЩД. Перечень надписей Щит ЩД. Чертеж общего вида Щит ЩД. Технические данные аппаратов Щит ЩД. Перечень надписей Щит ЩОП. Чертеж общего вида Щит ЩОП. Технические данные аппаратов Щит ЩОП. Перечень надписей Пульт НПД1. Технические данные аппаратов Пульт НПД1. Чертеж общего вида Пульт НПД1. Перечень надписей Пульт НПД2. Чертеж общего вида Пульт НПД2. Технические данные аппаратов Пульт НПД2. Перечень надписей Пульт НПДП. Чертеж общего вида Пульт НПДП. Технические данные аппаратов Пульт НПДП. Перечень надписей Шкаф 4ПШДУ. Чертеж общего вида Шкаф 4ПШДУ. Технические данные аппаратов Шкаф 4ПШДУ. Перечень надписей Шкаф 9ПШДУ. Чертеж общего вида Шкаф 9ПШДУ. Технические данные аппаратов Шкаф 9ПШДУ. Перечень надписей Пост 2ППМ. Чертеж общего вида Пост 2ППМ. Технические данные аппаратов Пост 2ППМ. Перечень надписей Шкаф А1ШУ (А2ШУ, А5ШУ - А7ШУ, А9ШУ). Чертеж общего вида Шкаф А1ШУ (А2ШУ, А5ШУ - А7ШУ, А9ШУ). Технические данные аппаратов Шкаф А1ШУ (А2ШУ, А5ШУ - А7ШУ, А9ШУ). Перечень надписей Шкаф А3ШУ (А8ШУ, А10ШУ, 1А4ШУ, 2А4ШУ). Чертеж общего вида Шкаф А3ШУ (А8ШУ, А10ШУ, 1А4ШУ, 2А4ШУ). Технические данные аппаратов Шкаф А3ШУ (А8ШУ, А10ШУ, 1А4ШУ, 2А4ШУ). Перечень надписей Шкаф 1ШМИ (2ШМИ, 3ШМИ). Чертеж общего вида Шкаф 1ШМИ (2ШМИ, 3ШМИ). Технические данные аппаратов Шкаф 1ШМИ (2ШМИ, 3ШМИ). Перечень надписей Пост П1ПМ. Чертеж общего вида Пост П1ПМ. Технические данные аппаратов Пост П1ПМ. Перечень надписей Пост 1НПМ. Чертеж общего вида Пост 1НПМ. Технические данные аппаратов Пост 1НПМ. Перечень надписей Пост 1КЛ1ПМ (2КЛ1ПМ). Чертеж общего вида Пост 1КЛ1ПМ (2КЛ1ПМ). Технические данные аппаратов Пост 1КЛ1ПМ (2КЛ1ПМ). Перечень надписей Пост 1Н1ПМ (2Н1ПМ, 3Н1ПМ). Технические данные аппаратов Пост 1Н1ПМ (2Н1ПМ, 3Н1ПМ). Чертеж общего вида Пост 1Н1ПМ (2Н1ПМ, 3Н1ПМ). Перечень надписей Пост 4Н1ПМ. Чертеж общего вида Пост 4Н1ПМ. Технические данные аппаратов Пост 4Н1ПМ. Перечень надписей |
| Разработан: | Союзгипронеруд |
| Утверждён: | 19.07.1982 Минстройматериалов СССР (USSR Minstroymaterialov 28-154/81) |





















































































