Скачать Типовой проект 503-3-27.90 Альбом 3. Архитектурные решения. Конструкции железобетонные. Конструкции металлическиеДата актуализации: 01.01.2021
|
| Обозначение: | Типовой проект 503-3-27.90 |
| Обозначение англ: | 503-3-27.90 |
| Статус: | не определен законодательством |
| Название рус.: | Альбом 3. Архитектурные решения. Конструкции железобетонные. Конструкции металлические |
| Дата добавления в базу: | 01.09.2013 |
| Дата актуализации: | 01.01.2021 |
| Дата введения: | 22.10.1990 |
| Дата окончания срока действия: | 30.06.2003 |
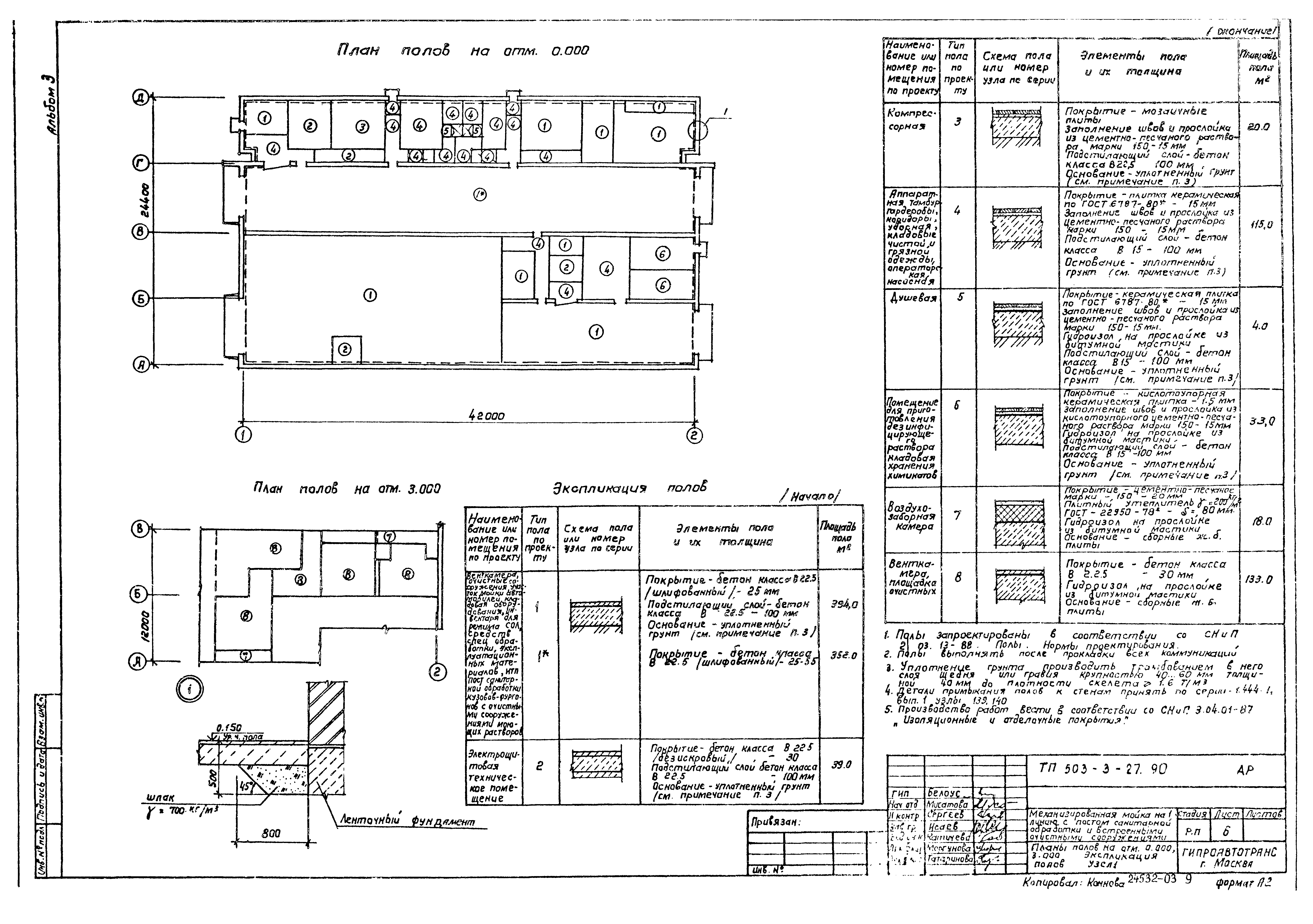
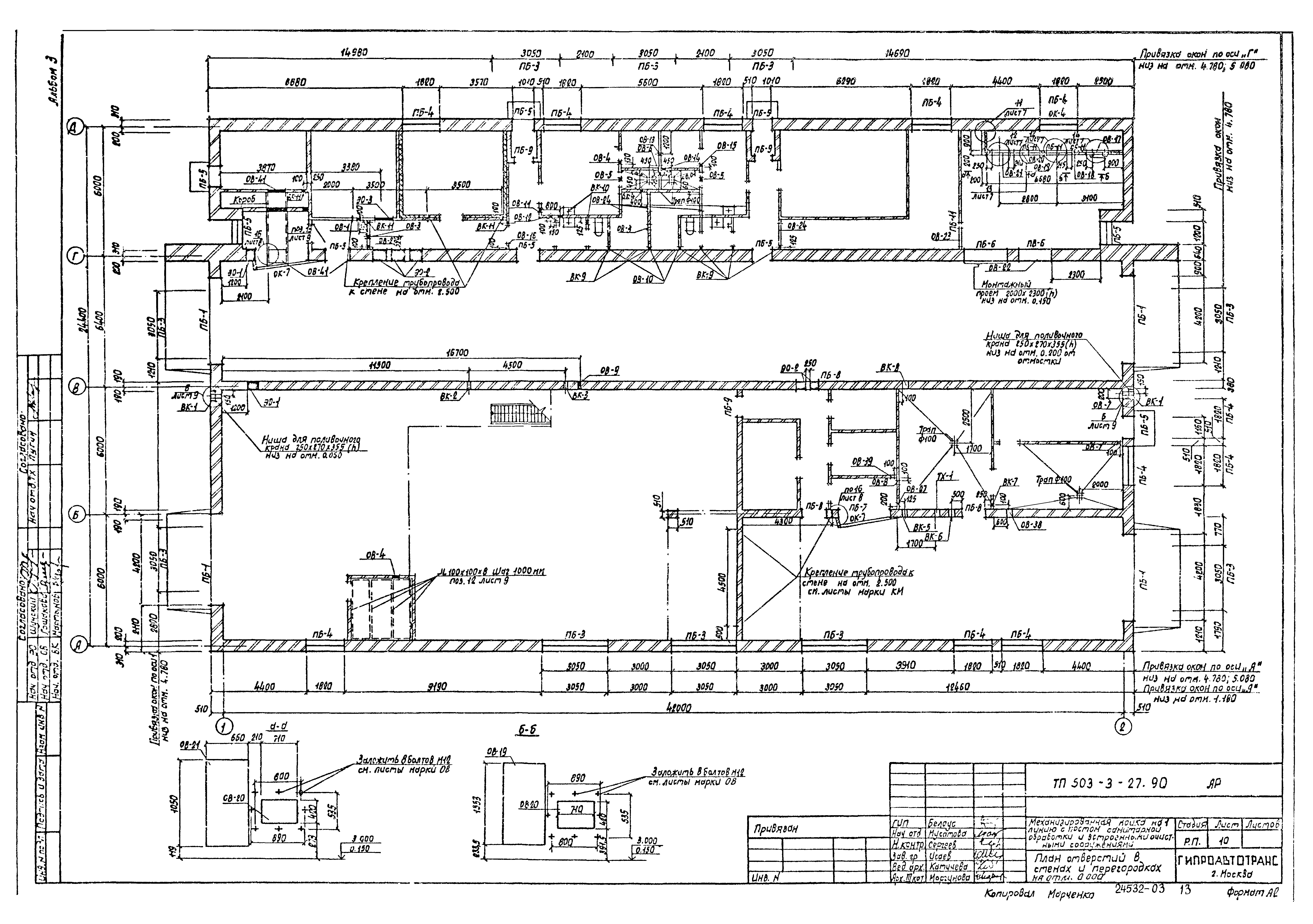
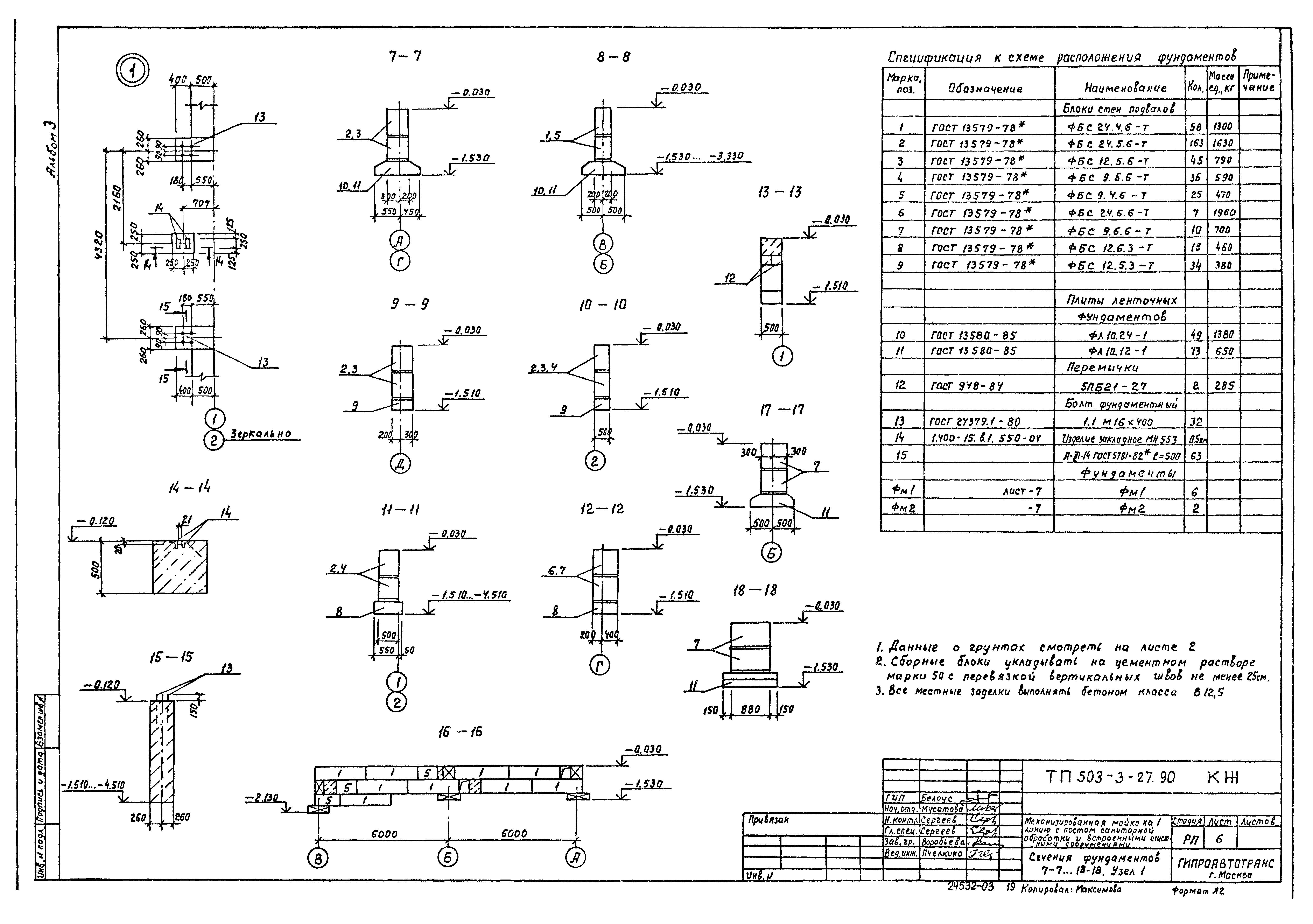
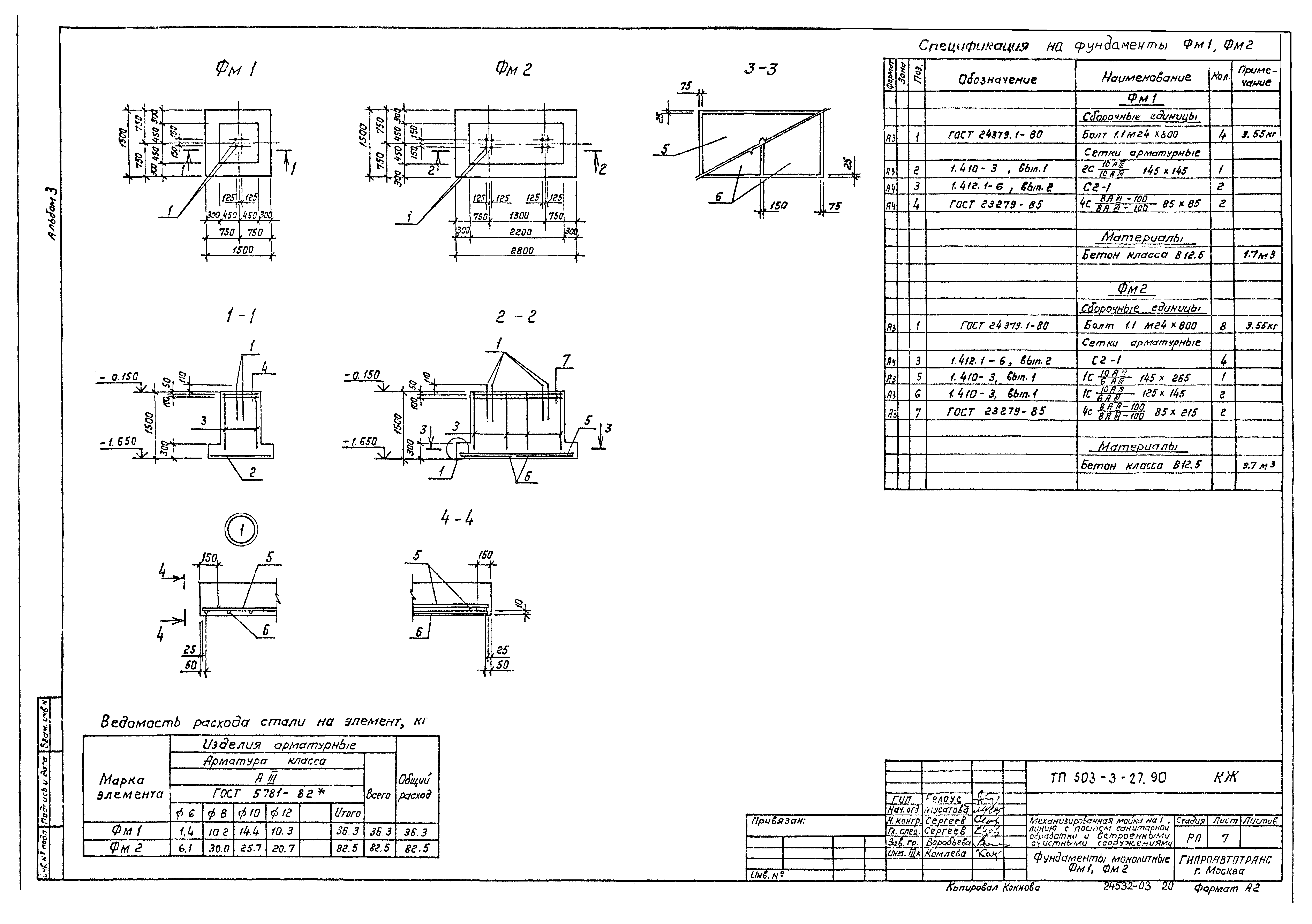
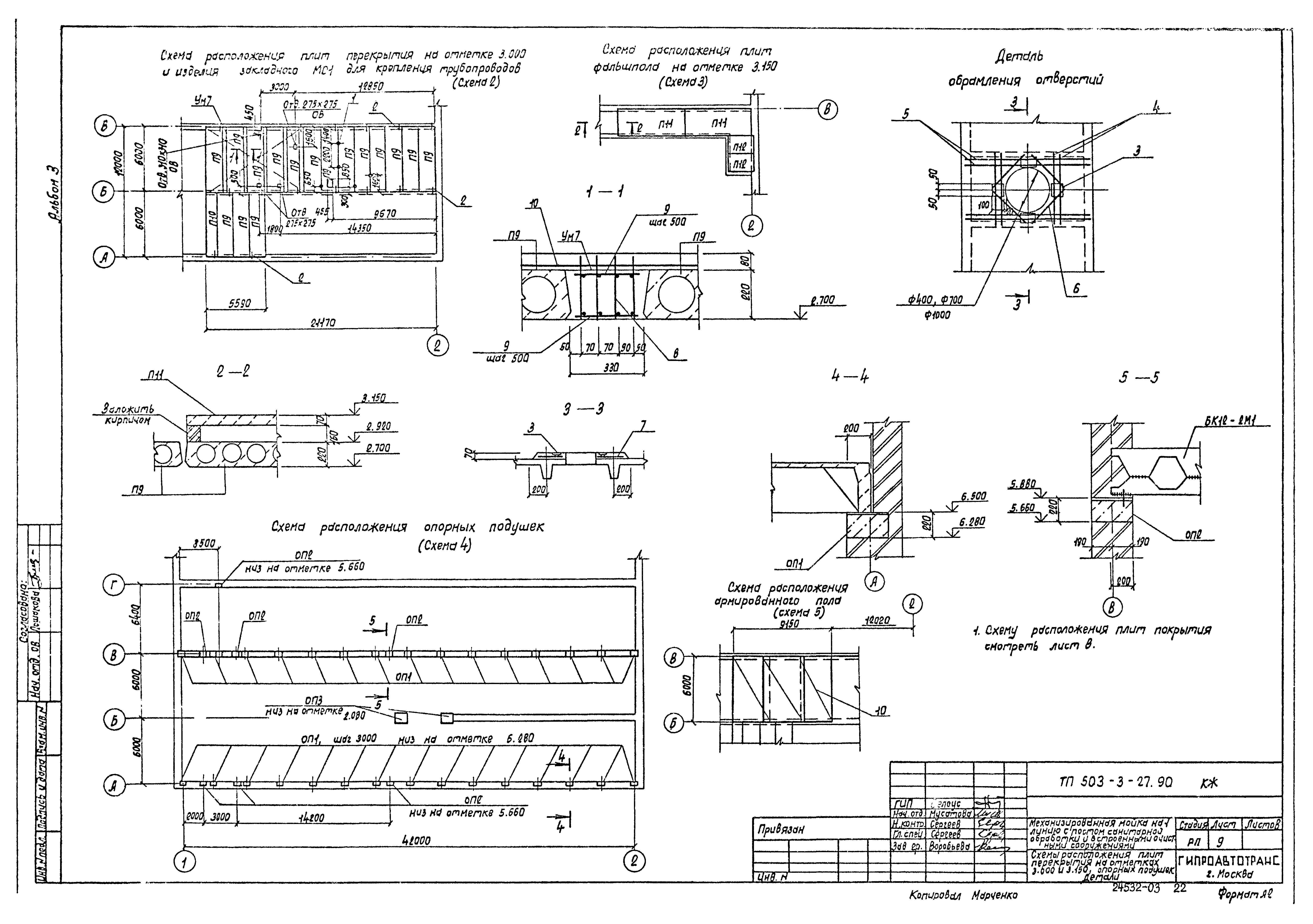
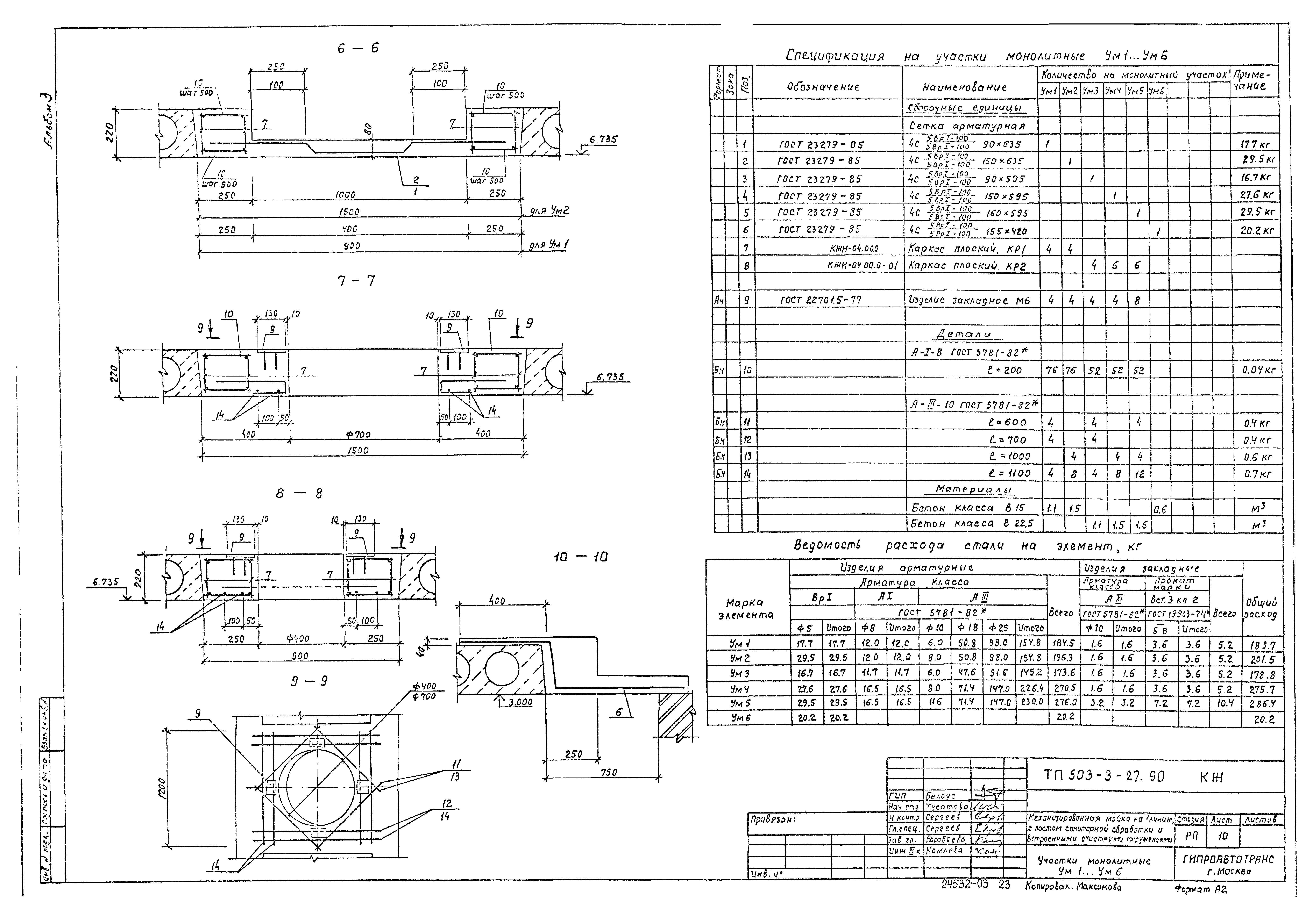
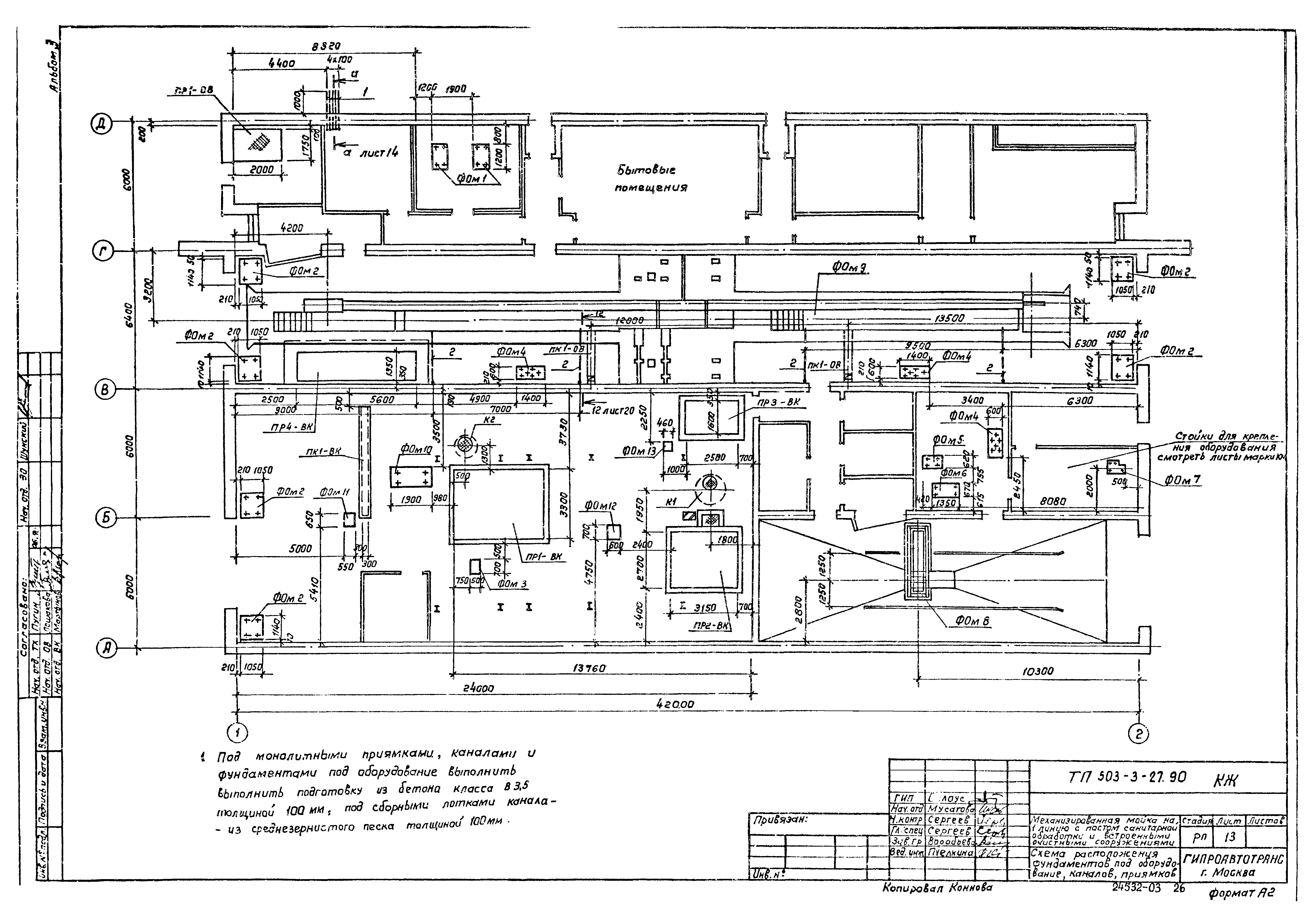
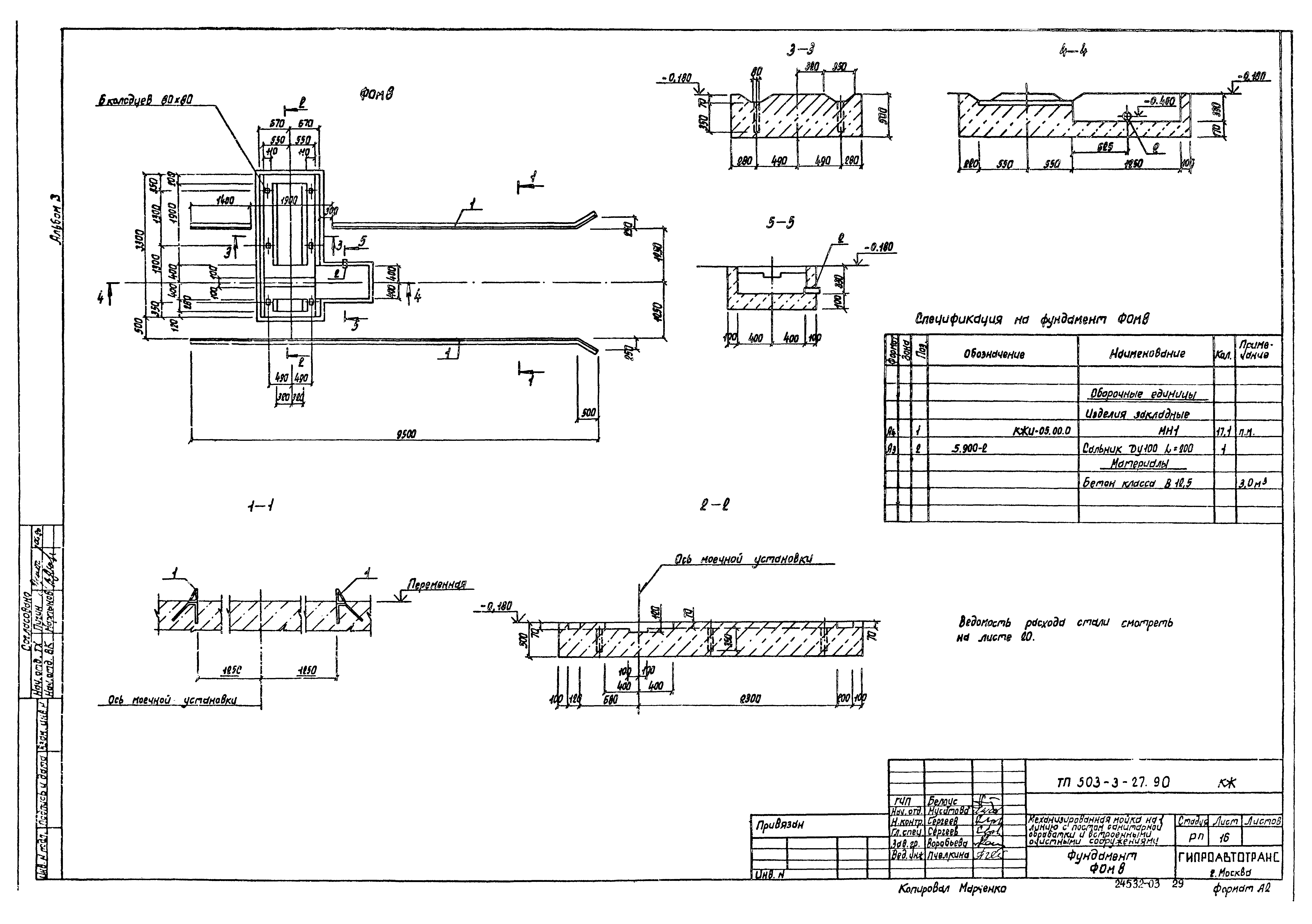
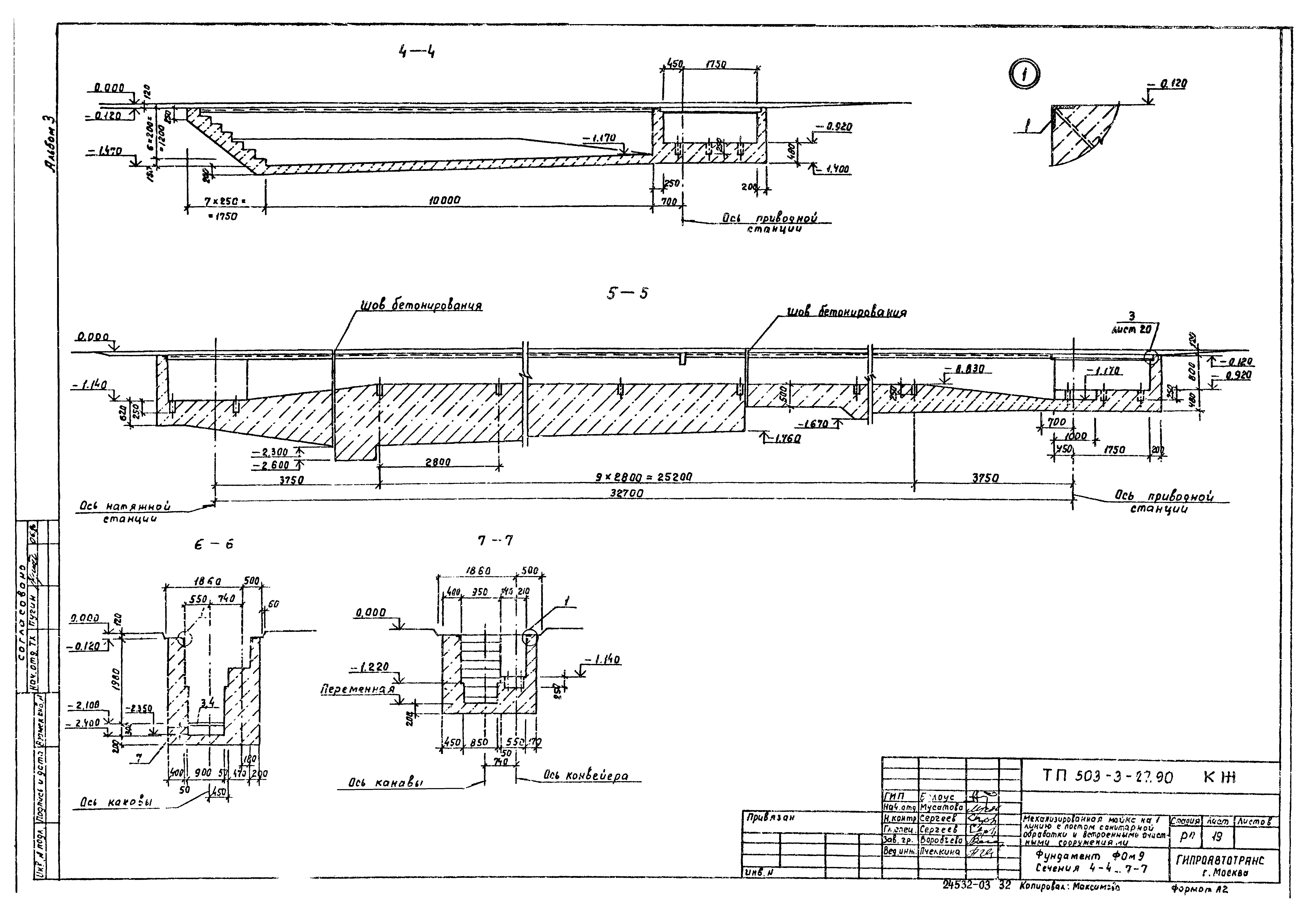
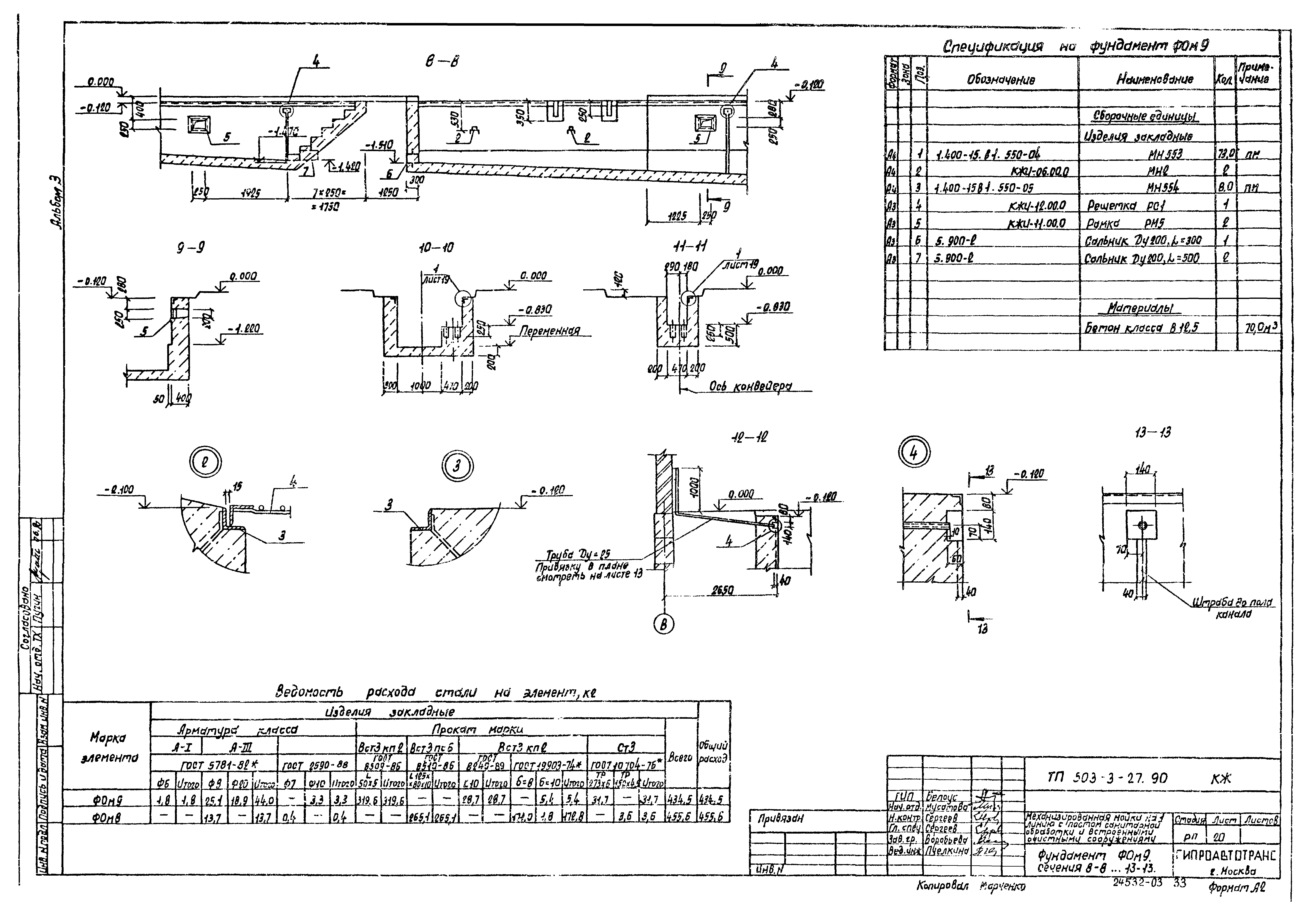
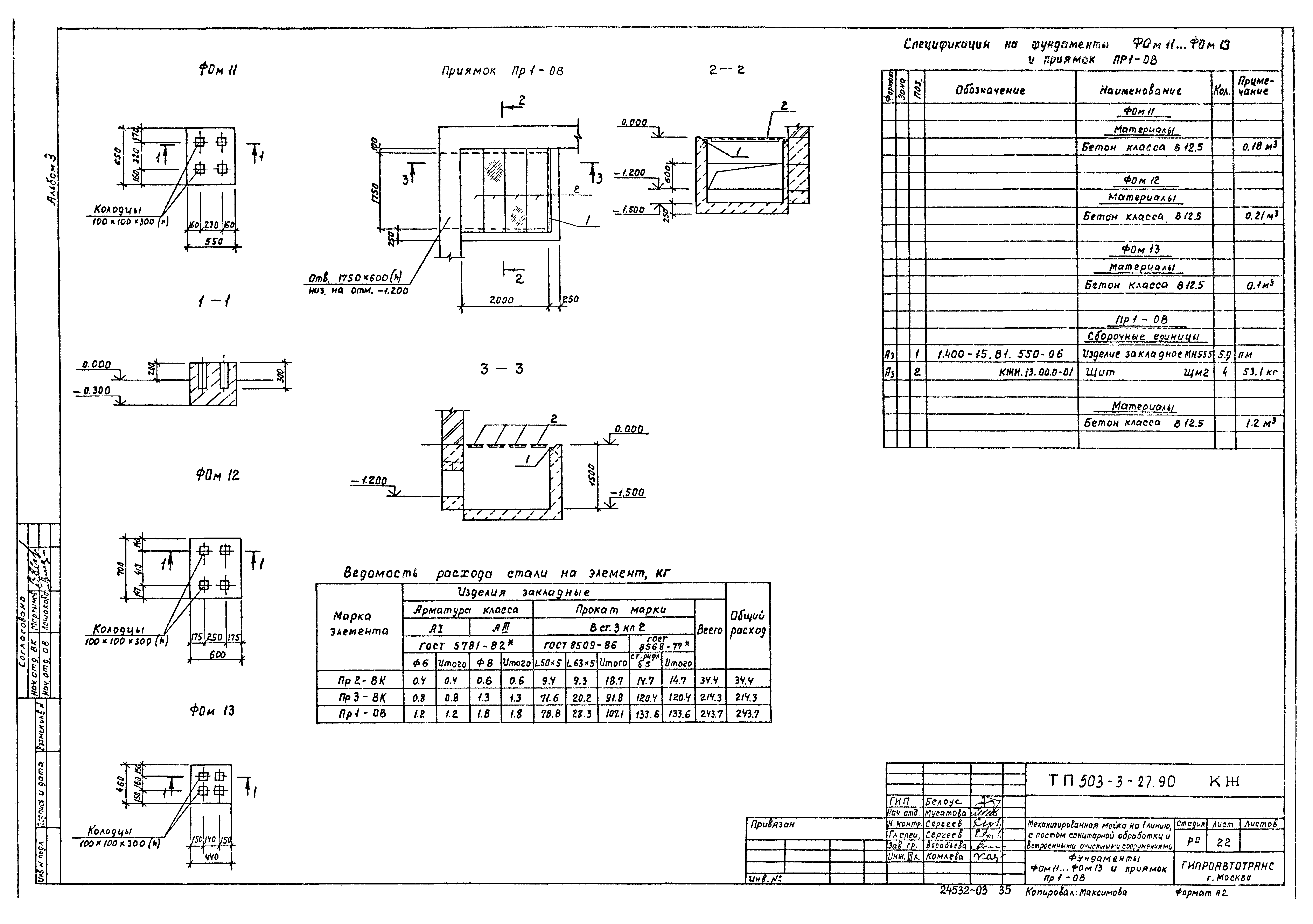
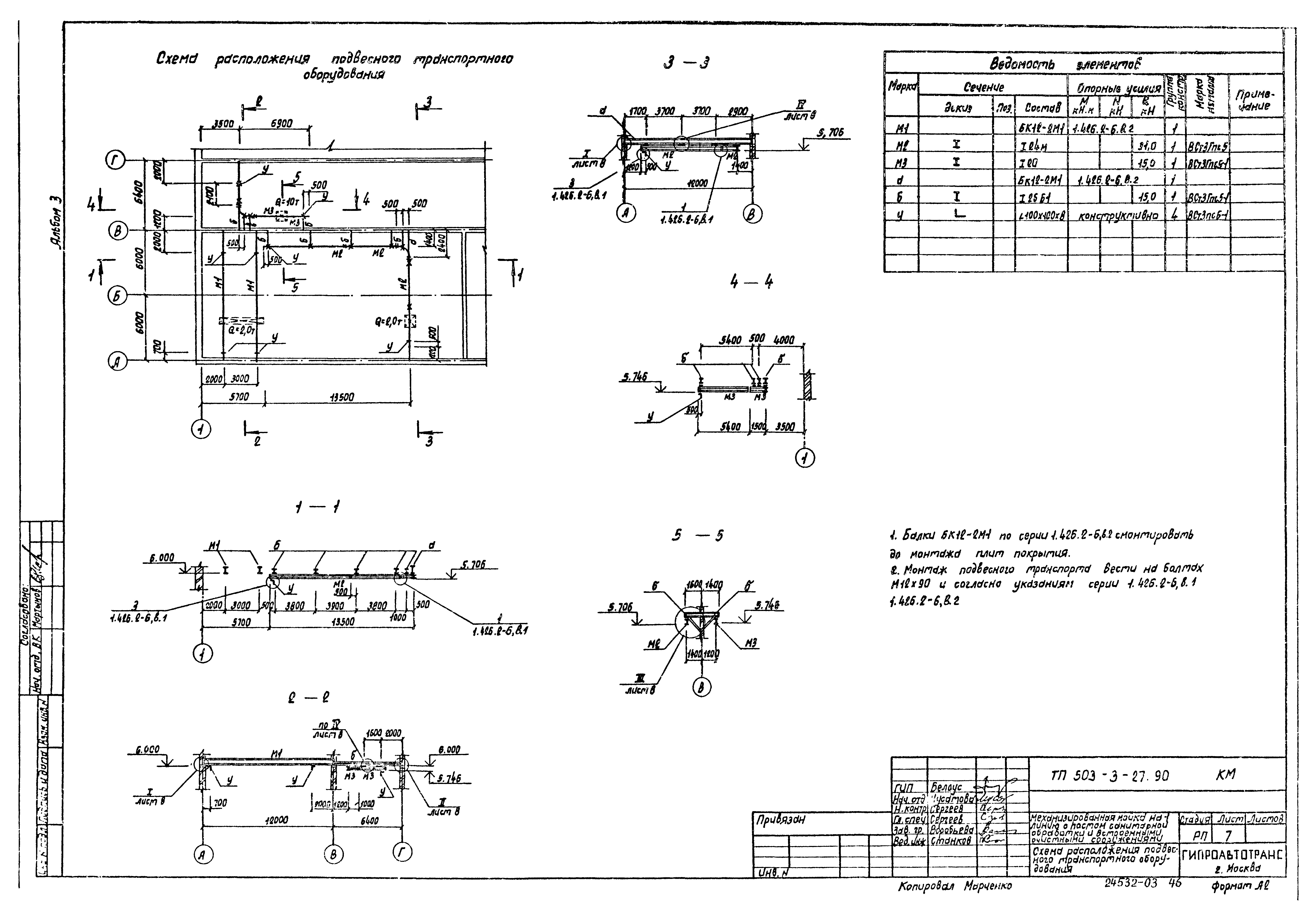
| Оглавление: | Содержание альбома Архитектурные решения Общие данные План на отм. 0.000 План на отм. 3.000. План кровли Фасады 1 - 2; 2 - 1; А - Д; Д - А. Разрез 1-1. Схемы заполнения оконных проемов Планы полов на отм. 0.000; 3.000. Экспликация полов. Узел 1 Узлы 8…15. Спецификации Узлы 2…5, 16, 17. Крепление рамы в кирпичной стене. Схема установки анкеров Узлы 6, 7, А. Решетка для вытирания ног ИМ1. Изделие металлическое ИМ2. Спецификация План отверстий в стенах и перегородках на отм. 0.000 Конструкции железобетонные Общие данные Схема расположения фундаментов Развертки фундаментов по осям Б, В, Г, Д Развертки фундаментов по осям 1, Д и сечения 1-1…6-6 Сечения фундаментов 7-7…17-17. Узел 1 Фундаменты монолитные Фм1, Фм2 Схема расположения плит покрытия Схемы расположения плит перекрытия на отм. 3.000; 3.150, опорных подушек. Детали Участки монолитные Ум1…Ум6 Схема расположения фундаментов под оборудование Спецификация к схемам расположения плит покрытия, перекрытия на отм. 3.000; 3.150, опорных подушек Ум7 Схема расположения фундаментов под оборудование, каналов, приямков Фундаменты ФОм1…ФОм3, сечение а-а Фундаменты ФОм4…ФОм7 Фундамент ФОм8 Фундамент ФОм9, фрагмент 1, 2 Фундамент ФОм9, фрагмент 3 Фундамент ФОм9, сечения Приямки ПР1-ВК, ПРЕ-ВК. Фундамент ФОм10 Фундаменты ФОм11…ФОм13 и приямок ПР1-ОВ Подпольные каналы ПК1-ВК, ПК1-ОВ Приямок ПР3-ВК, колодцы К1 и К2 ПР1-ВК. План на отм. - 0.120; 1-1, 2-2 Схема расположения плит перекрытия ПР1-ВК. Схема расположения верхних и нижних сеток днища, 1-1, узел 1 Конструкции металлические Общие данные Схемы расположения стоек и балок площадки на отм. 3.000, покрытия площадки на отм. 3.000 и элементов лестницы, балки перекрытия на отм. 2.700 Узлы I - VI. Разрезы Схема расположения подвесного транспортного оборудования Узлы I - IV Схемы расположения конструкций и опор под технологическое оборудование площадки на отм. 2.500 Схемы расположения площадок и ограждений в приямке ПР1-ВК на отм. - 2.000, опор под трубопроводы в ИТП и элементов лестниц |
| Разработан: | Гипроавтотранс |
| Утверждён: | 22.10.1990 Минавтотранс РСФСР (Russian Federation Minavtotrans 7) |
| Издан: | ЦИТП Госстроя СССР (CITP, Gosstroy (USSR) 1990 г. ) |















































