Скачать Типовой проект 902-1-173.91 Альбом 5. Подземная часть. Конструкции железобетонные. Конструкции металлические. ИзделияДата актуализации: 01.01.2021
|
| Обозначение: | Типовой проект 902-1-173.91 |
| Обозначение англ: | 902-1-173.91 |
| Статус: | не определен законодательством |
| Название рус.: | Альбом 5. Подземная часть. Конструкции железобетонные. Конструкции металлические. Изделия |
| Дата добавления в базу: | 01.09.2013 |
| Дата актуализации: | 01.01.2021 |
| Дата введения: | 15.05.1991 |
| Дата окончания срока действия: | 30.06.2003 |
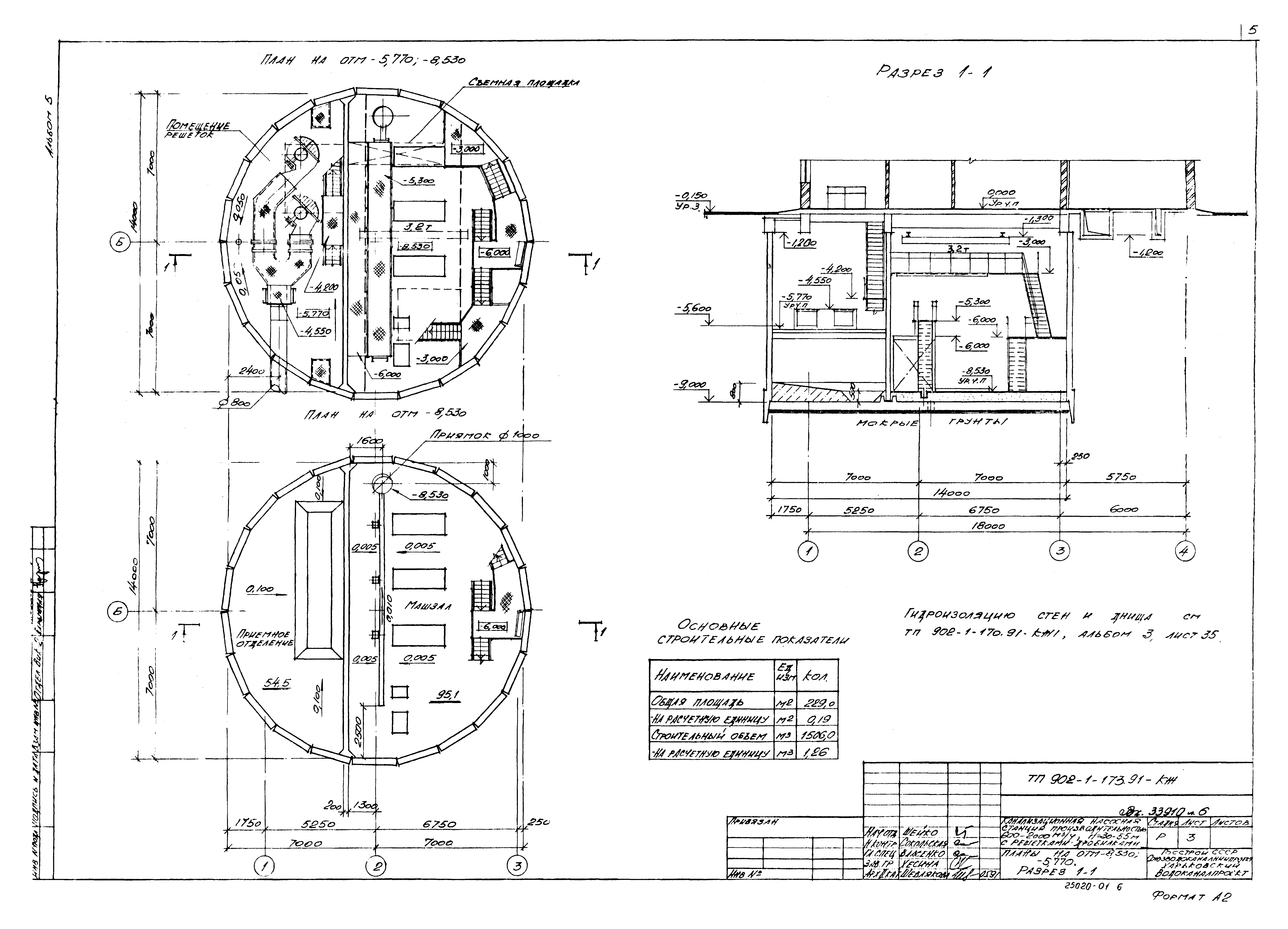
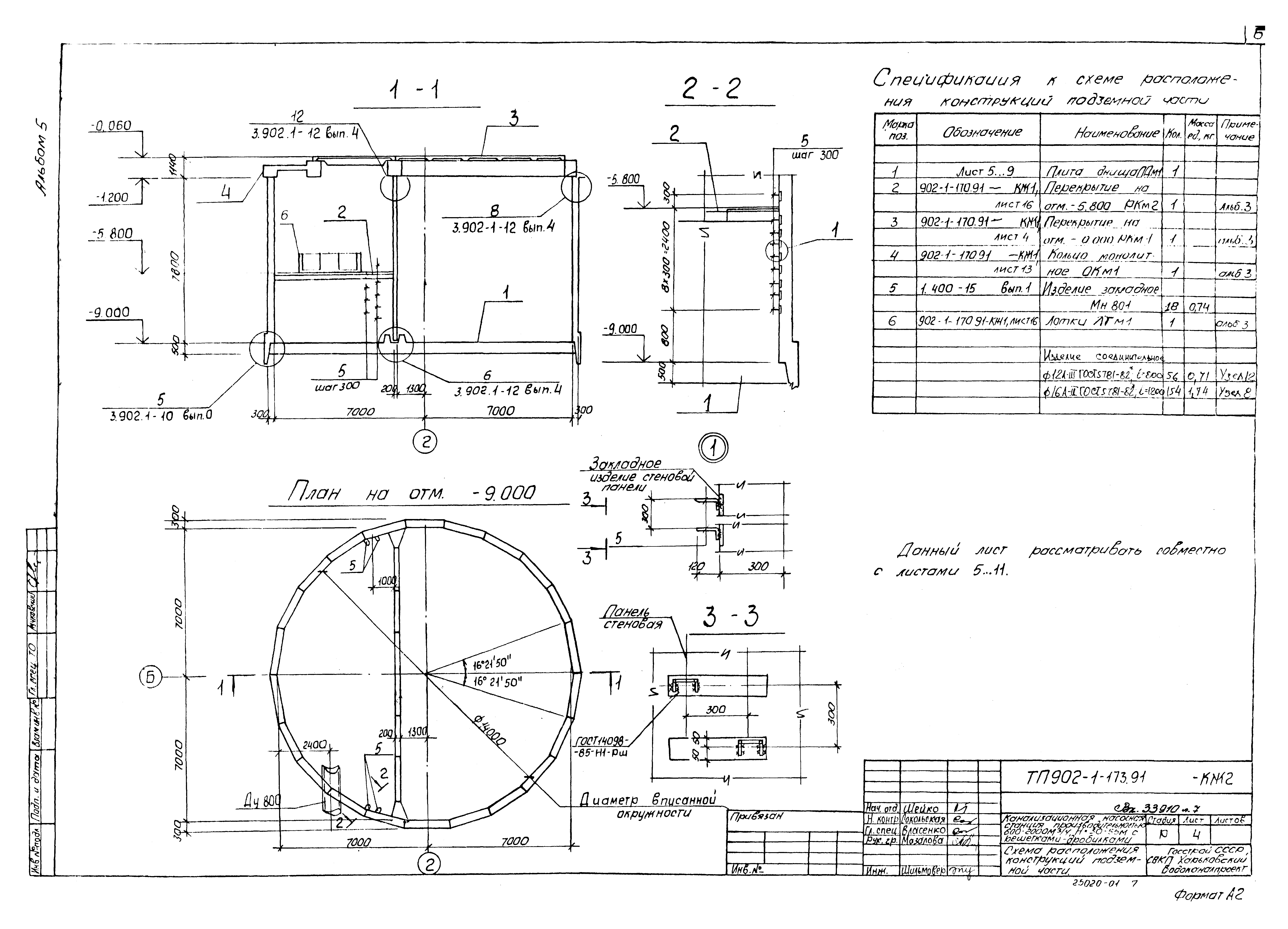
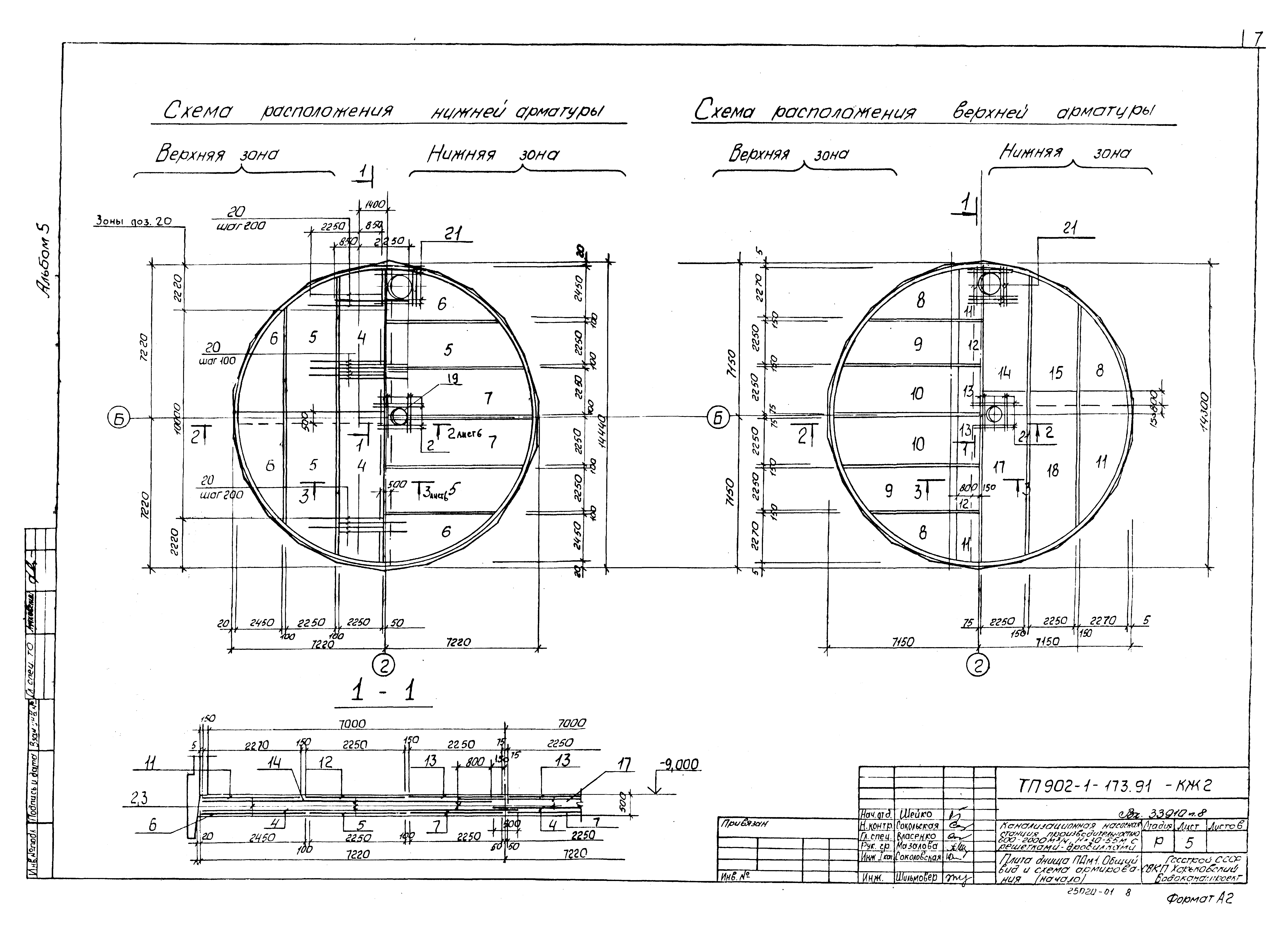
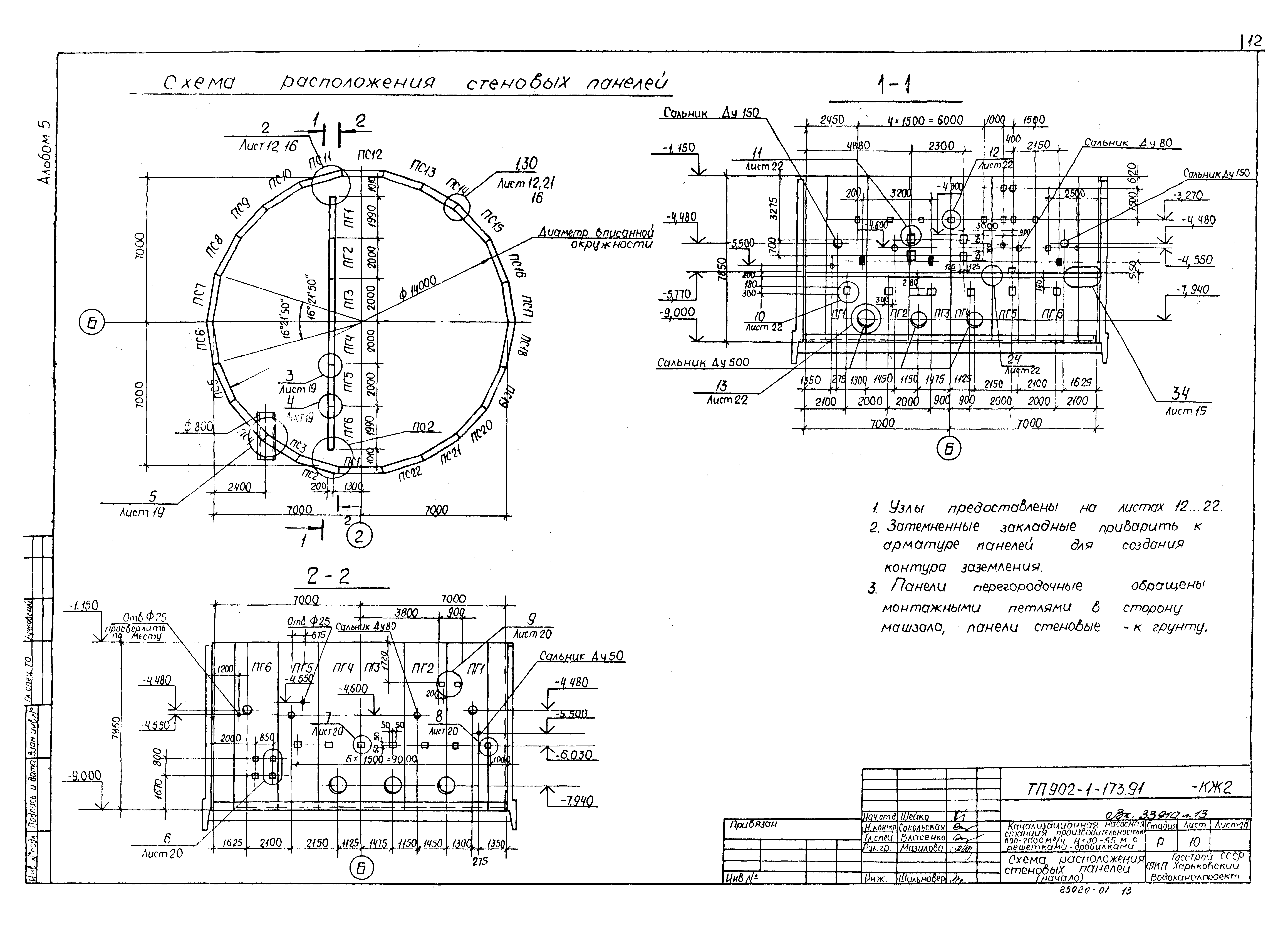
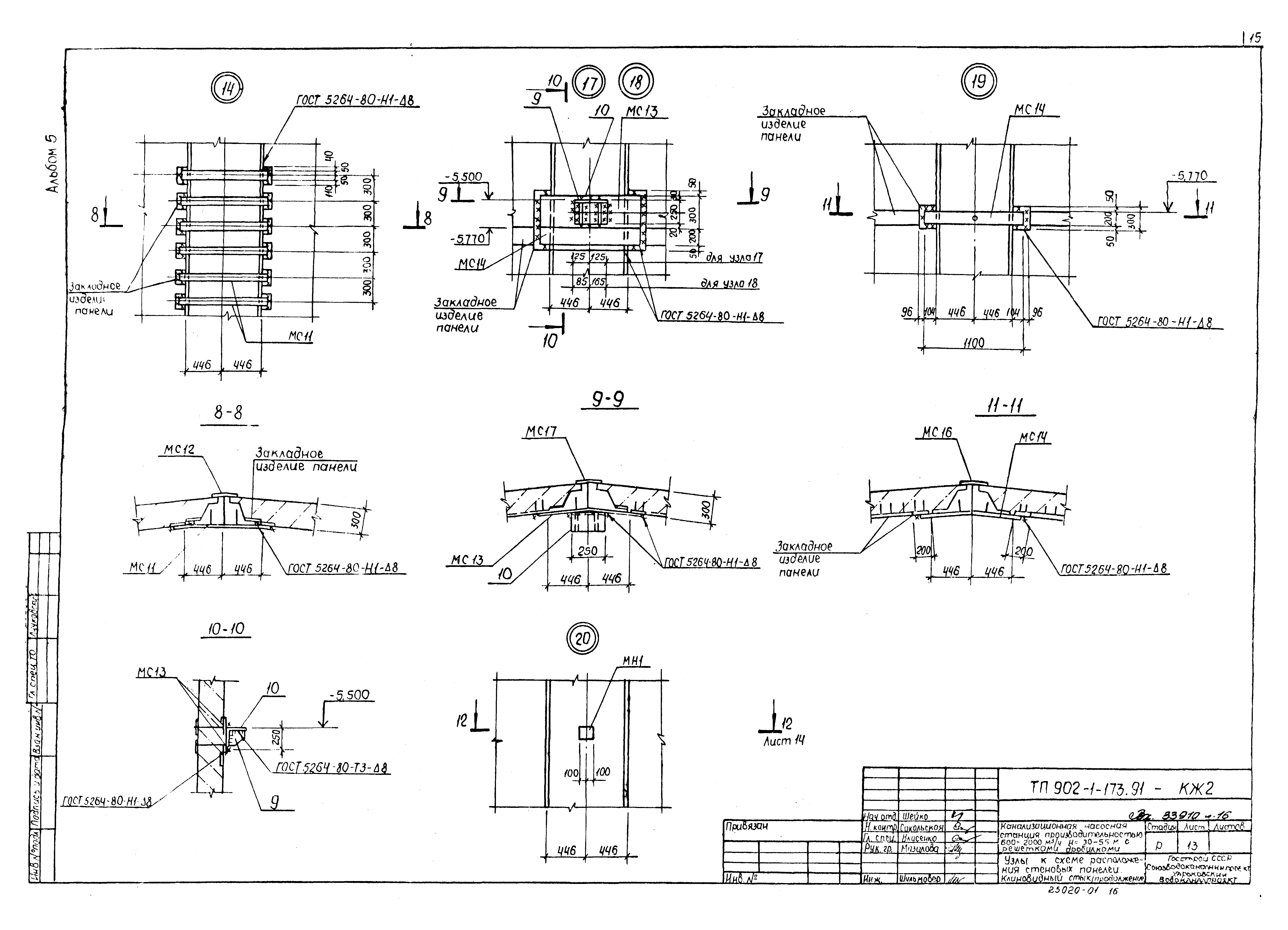
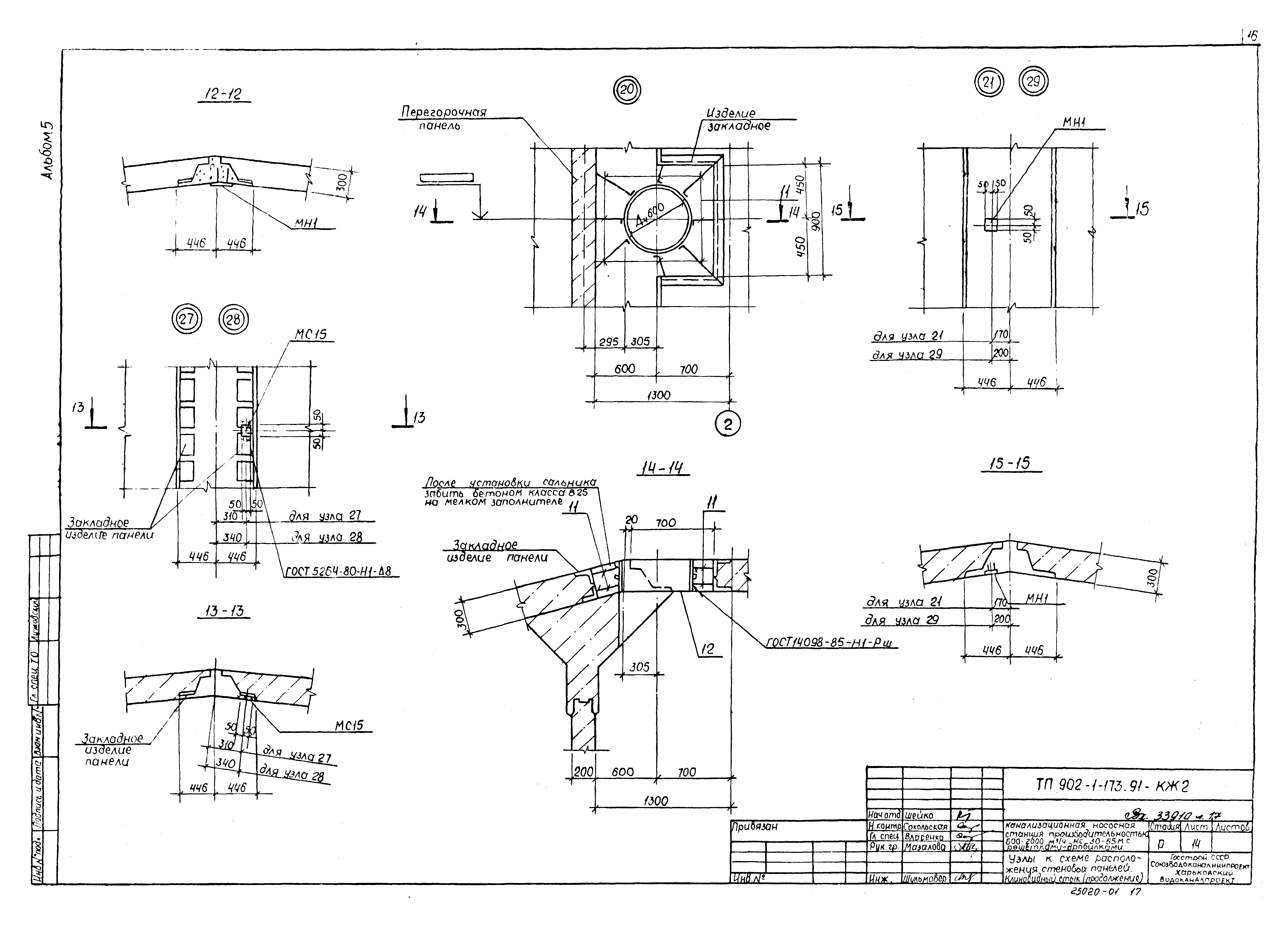
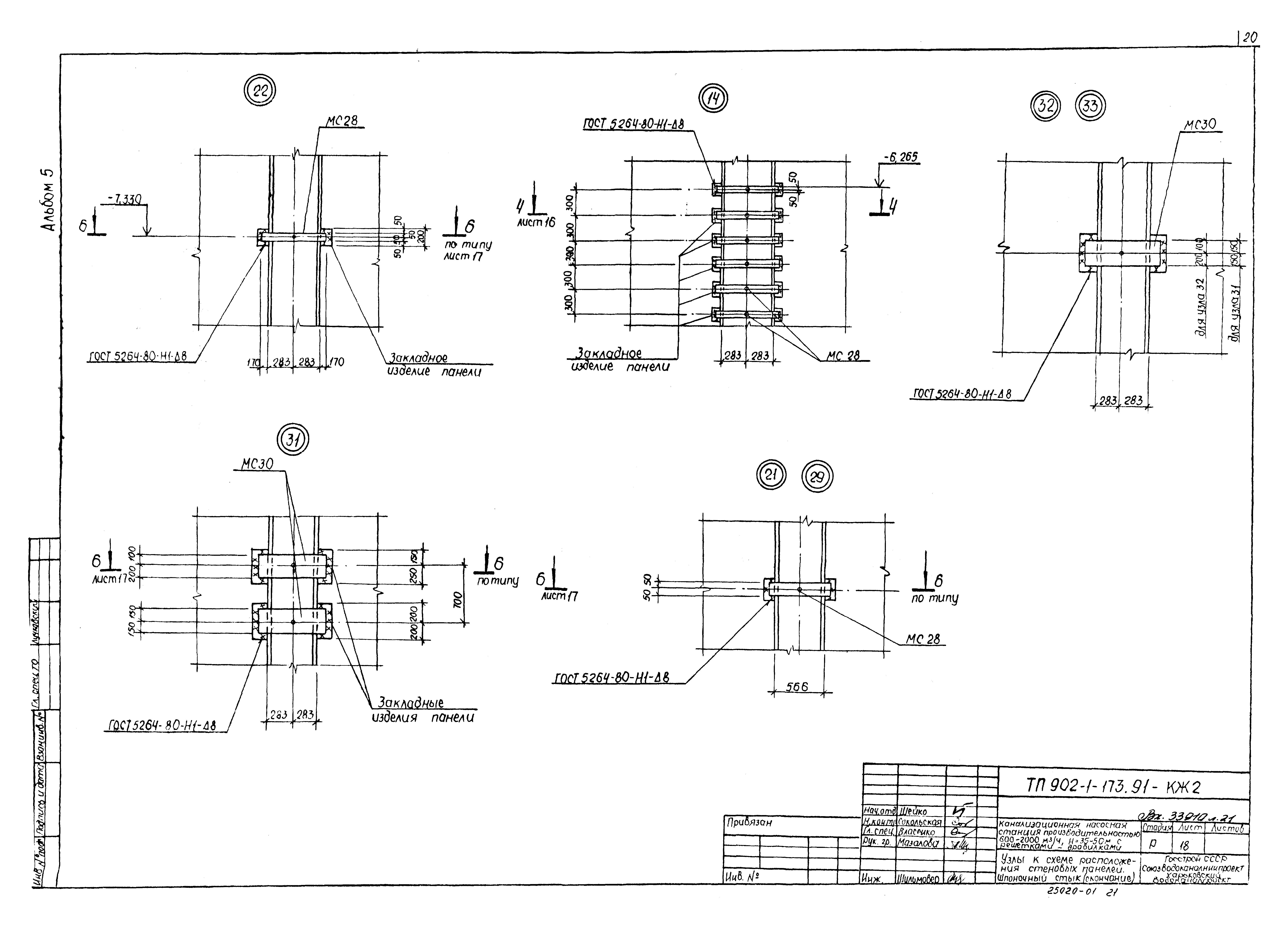
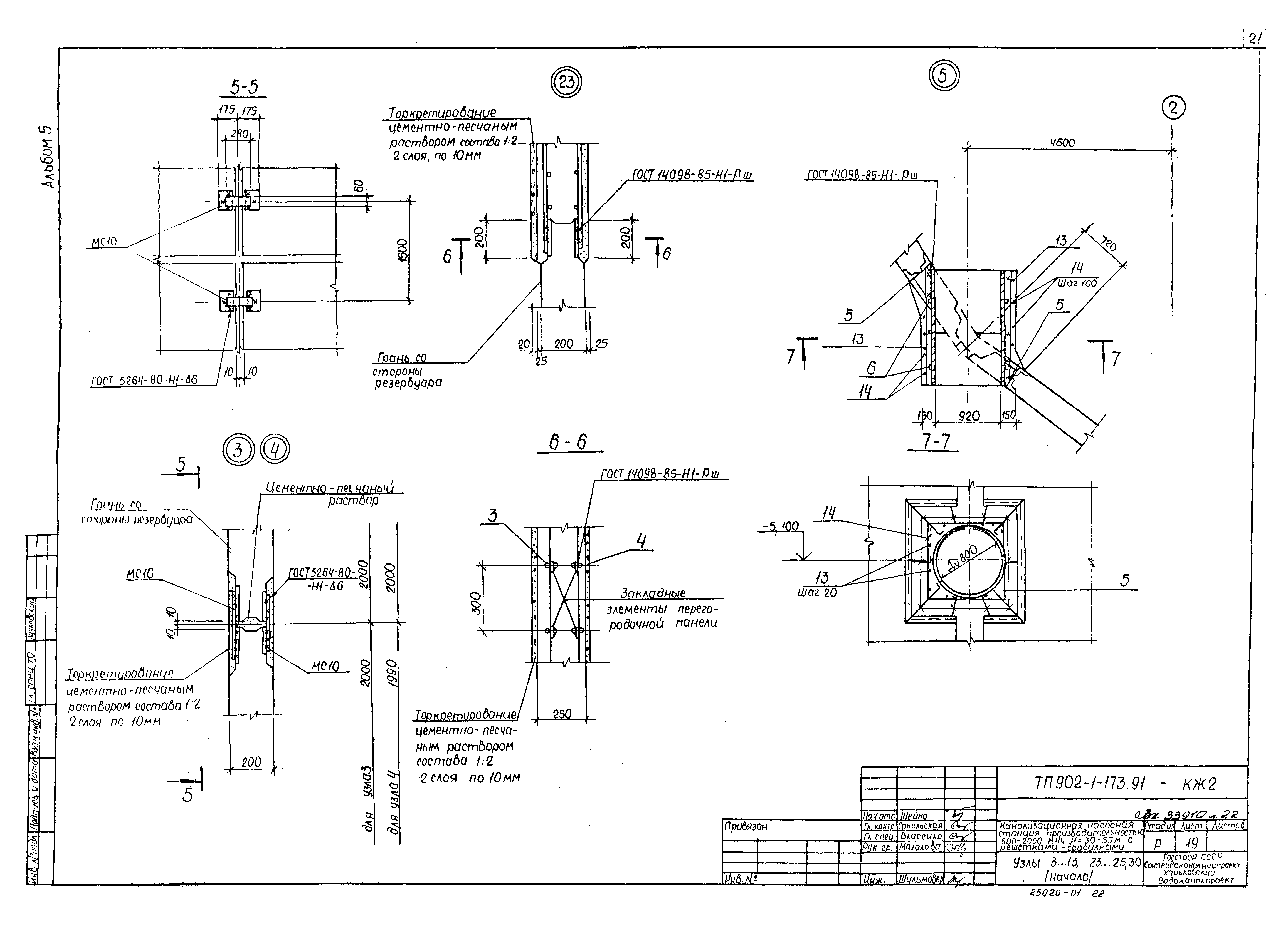
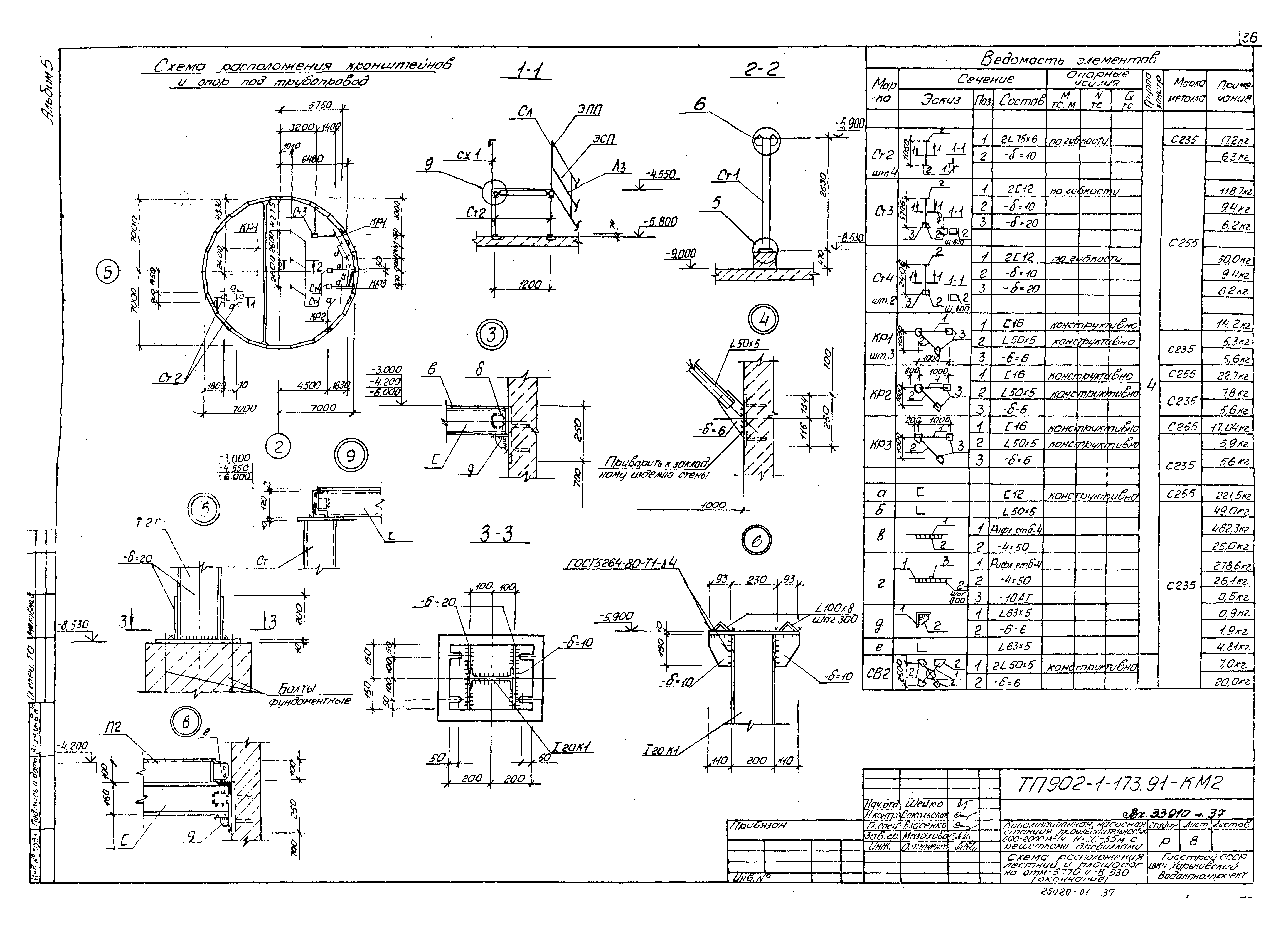
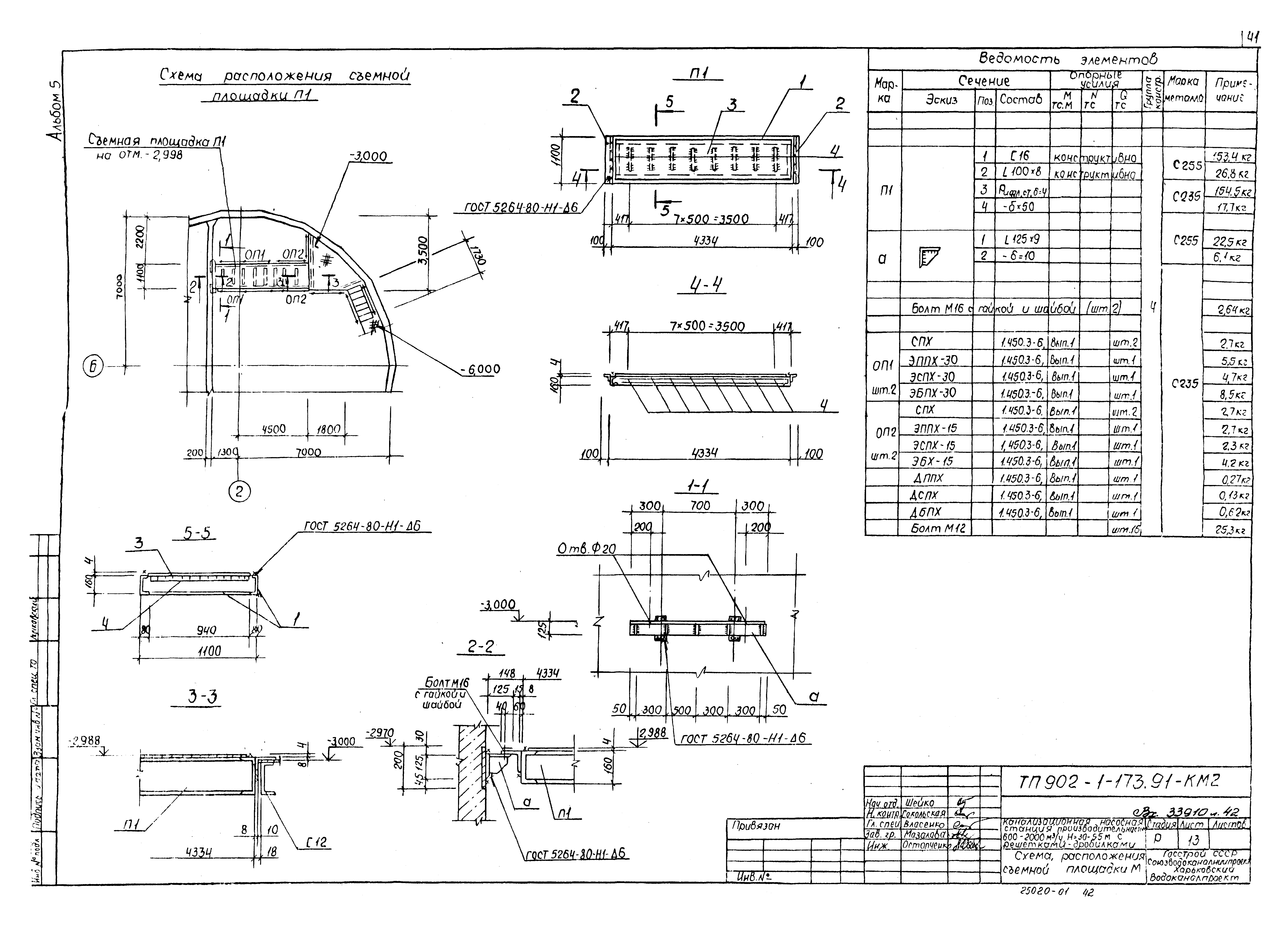
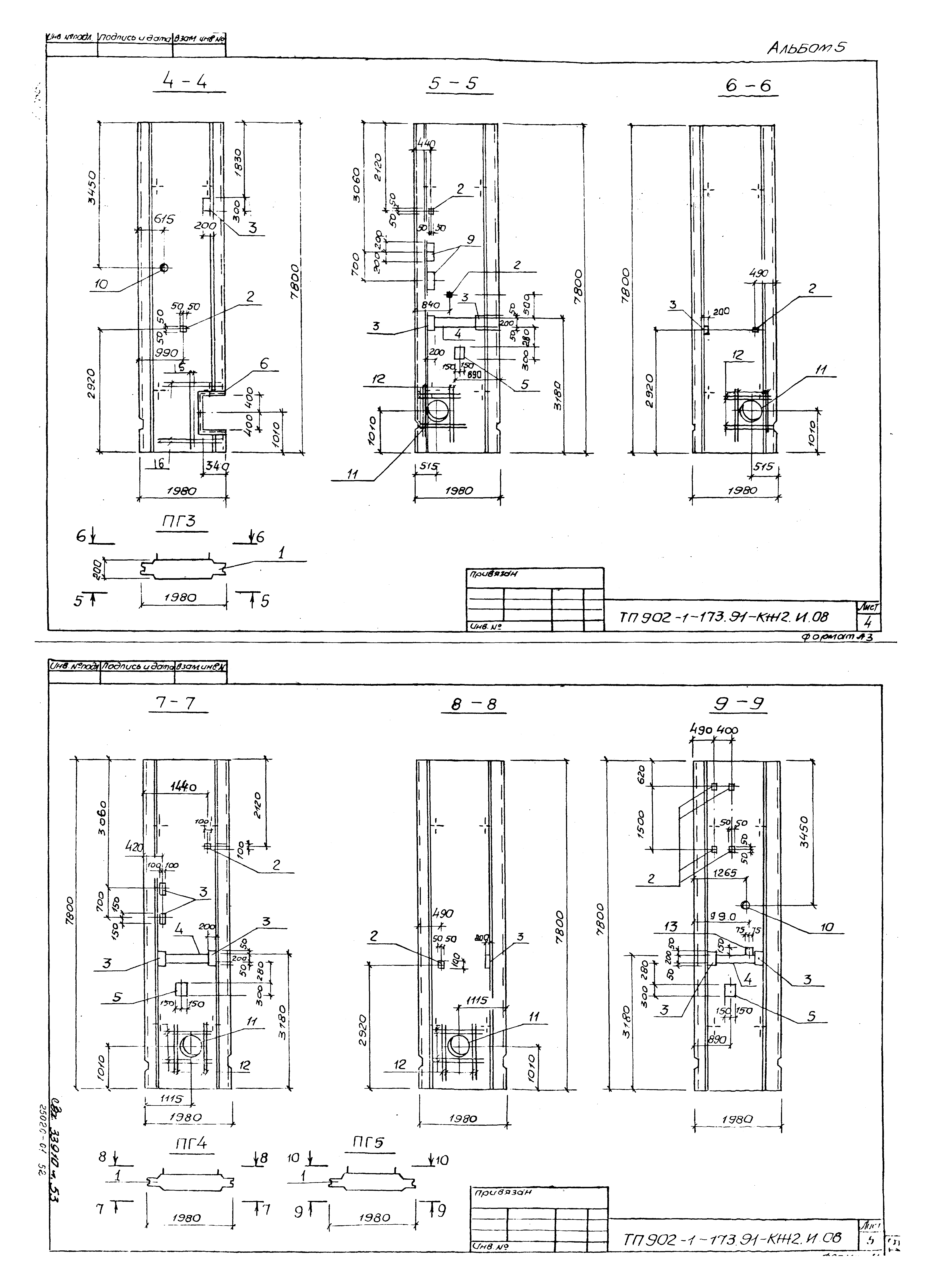
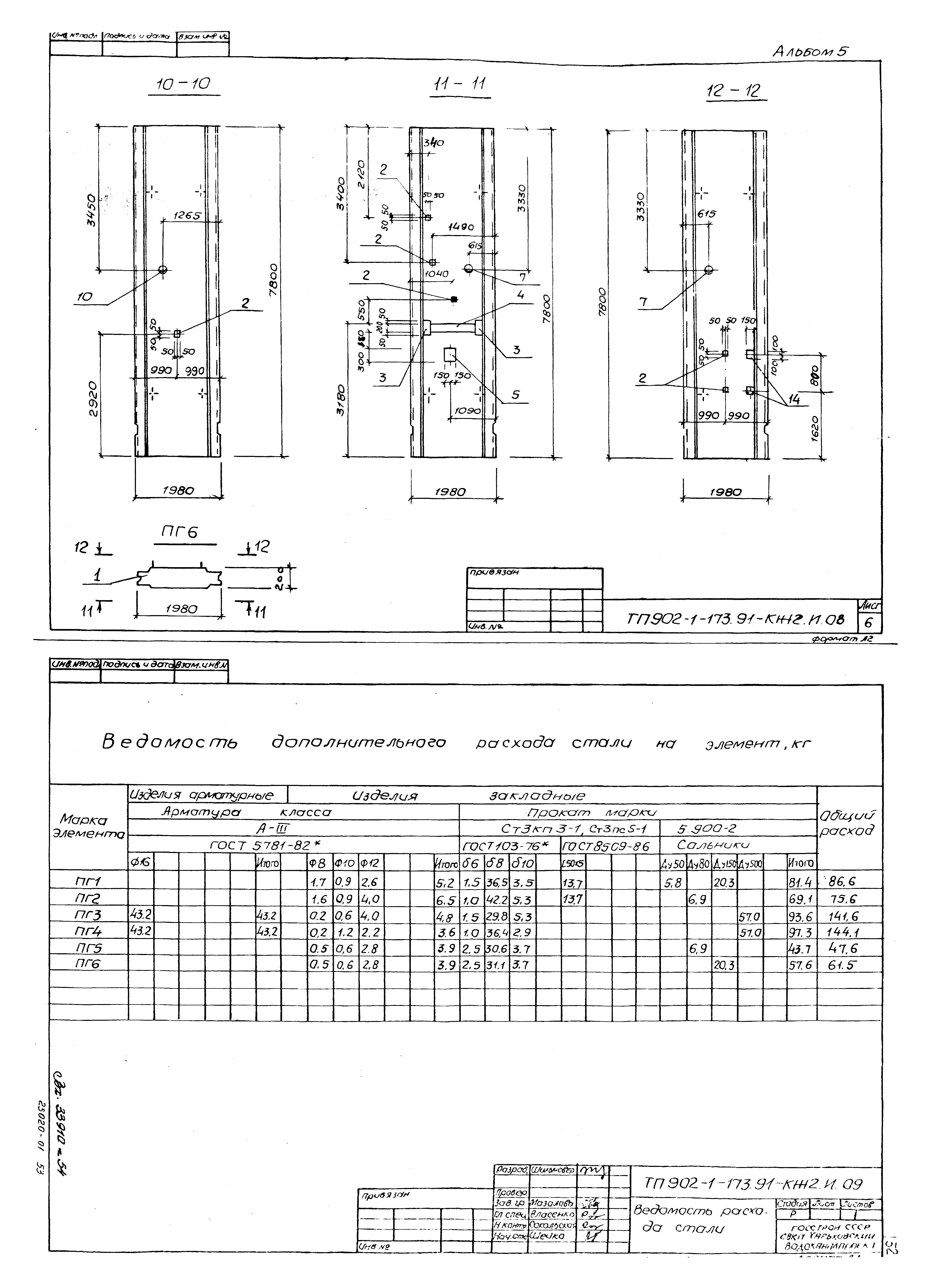
| Оглавление: | Содержание Чертежи основного комплекта марки КЖ2 Общие данные Планы на отм. - 8.530; - 5.770. Разрез 1-1 Схема расположения конструкций подземной части Плита днища ПДм1. Общий вид и схема армирования Схема расположения стеновых панелей Узлы к схеме расположения стеновых панелей. Клиновидный стык Узлы к схеме расположения стеновых панелей. Шпоночный стык Узлы 3…13; 23…25; 30 Спецификация к схеме расположения стеновых панелей. Клиновидный стык Спецификация к схеме расположения стеновых панелей. Шпоночный стык Схема расположения опорных блоков и форшахты Схема армирования форшахты ФШм1 Чертежи основного комплекта марки КМ2 Общие данные Схема расположения лестниц и площадок на отм. - 5.770 и - 8.530 Схема расположения площадок на отм. - 6.000 и - 5.300 Схема расположения съемной площадки П1 Чертежи основного комплекта марки КЖ2.И Содержание выпуска Технические требования Панель стеновая ПС1…ПС2 Ведомость расхода стали (шпоночный стык) Ведомость расхода стали (клиновидный стык) Панель перегородочная ПГ78-1Ш.А, ПГ78-2Ш.А Перегородочная панель ПГ1…ПГ6 Ведомость расхода стали Блок опорный БО1 Ведомость расхода стали Сетка С1, С2 Изделие соединительное МС31 Каркас плоский КР1 Каркас плоский КР2 Каркас плоский КР3 Сетка С3 Сетка С4 Сетка С5 Сетка С6 Изделие соединительное МС1 (МС1…МС9; МС19; МС21; МС23…МС26) Изделие соединительное МС11 (МС11…МС14; МС16; МС17) Изделие соединительное МС18 (МС18; МС20; МС22; МС28…МС30) |
| Разработан: | Харьковский Водоканалпроект |
| Утверждён: | 15.05.1991 СоюзводоканалНИИпроект (SoyuzvodokanalNIIproject 9) |
| Издан: | ГП ЦПП (1995 г. ) |


























































