Скачать Типовой проект 903-9-17сп.86 Альбом IV. Передвижная стремянка (из ТП 903-9-12сп.86)Дата актуализации: 01.01.2021
|
| Обозначение: | Типовой проект 903-9-17сп.86 |
| Обозначение англ: | 903-9-17сп.86 |
| Статус: | не определен законодательством |
| Название рус.: | Альбом IV. Передвижная стремянка (из ТП 903-9-12сп.86) |
| Дата добавления в базу: | 01.09.2013 |
| Дата актуализации: | 01.01.2021 |
| Дата введения: | 18.06.1985 |
| Дата окончания срока действия: | 30.06.2003 |
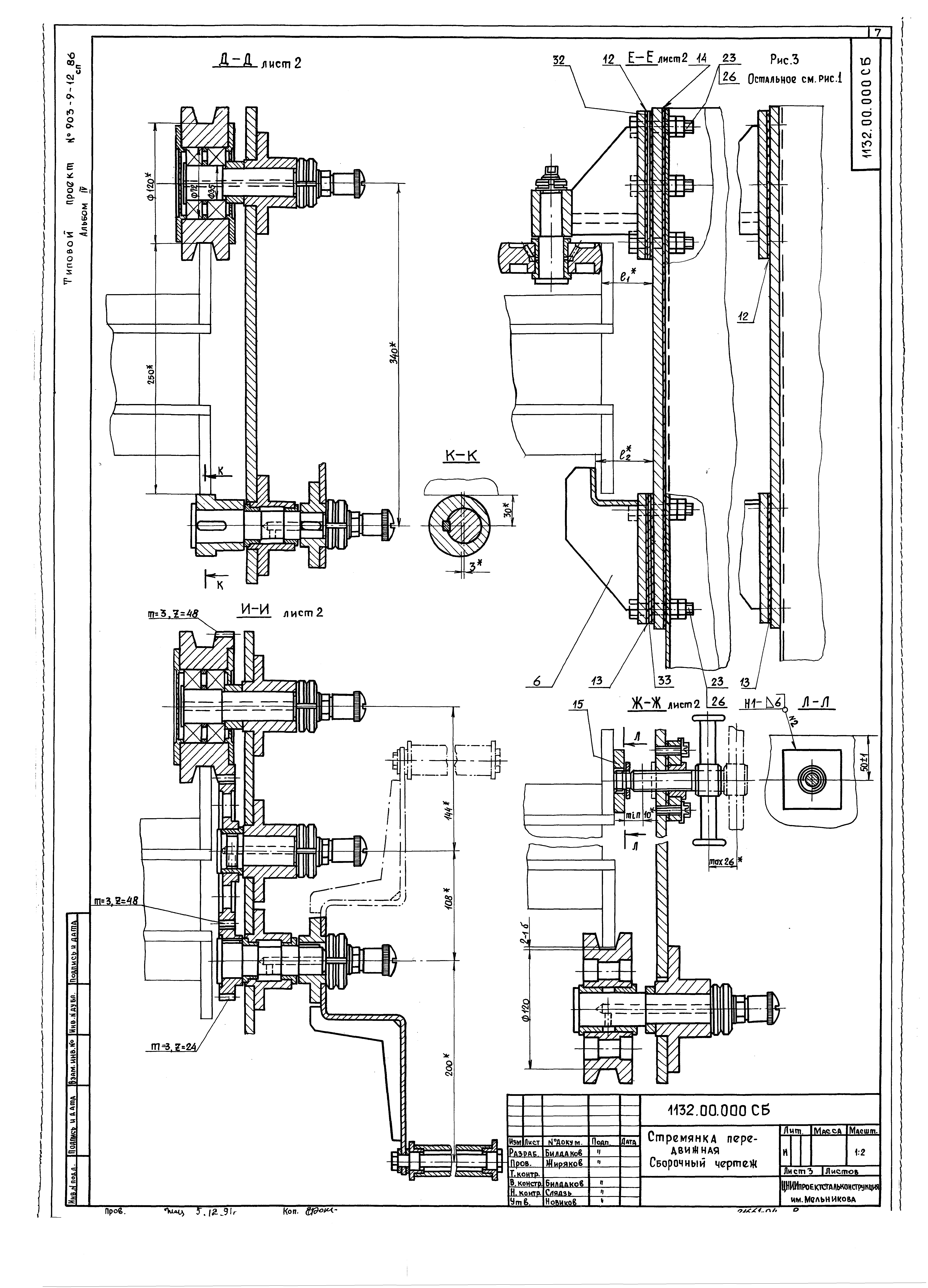
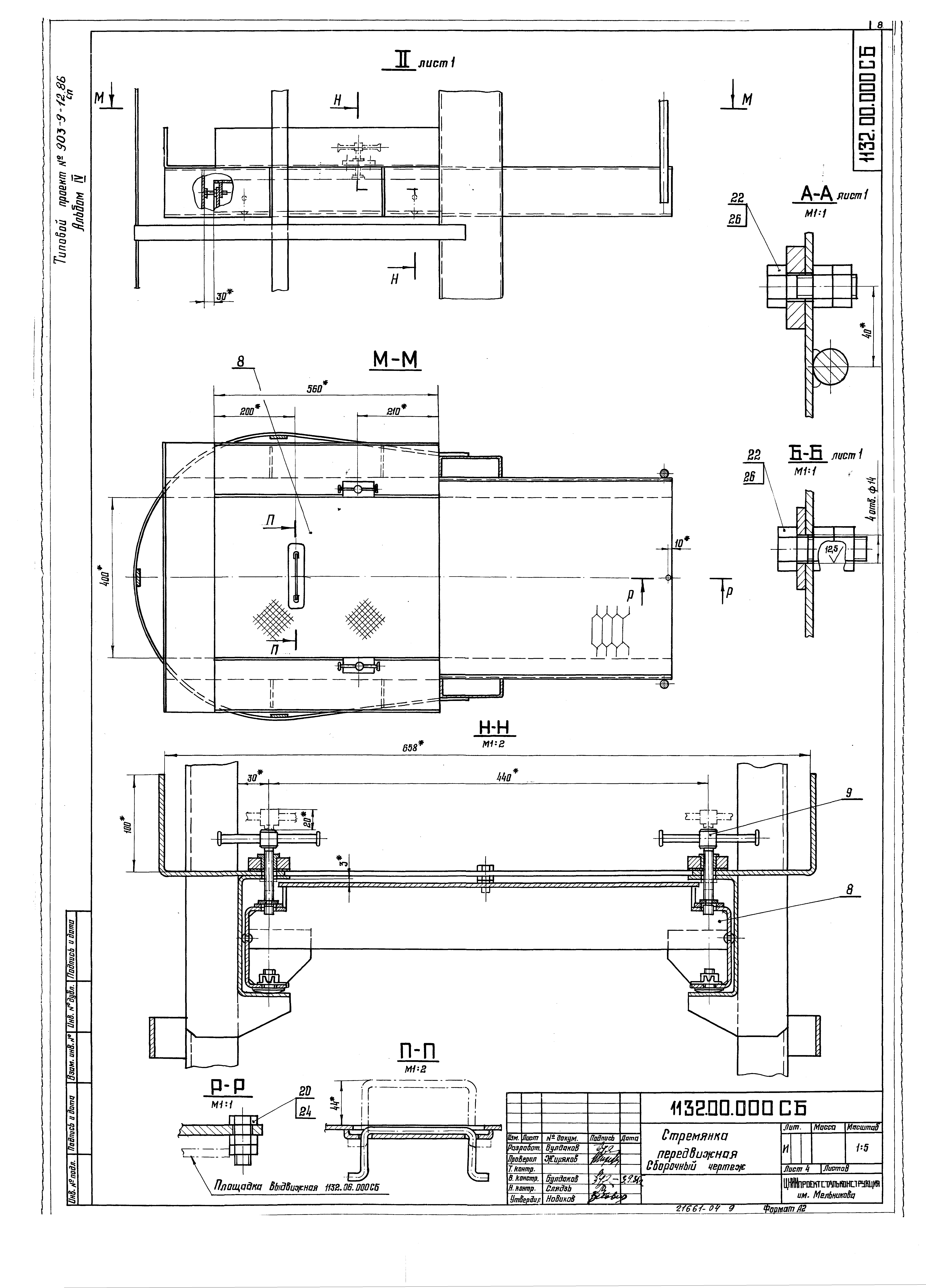
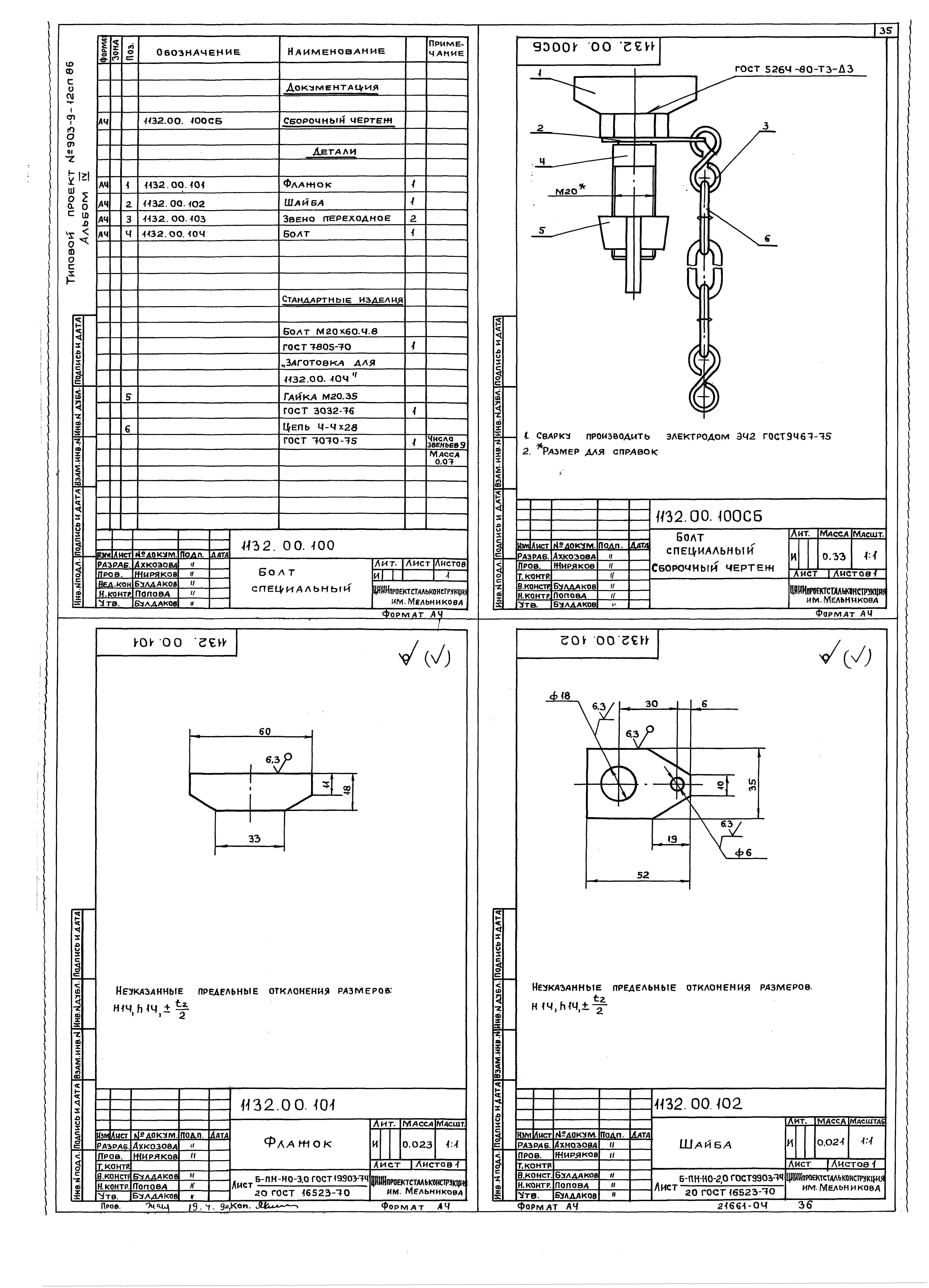
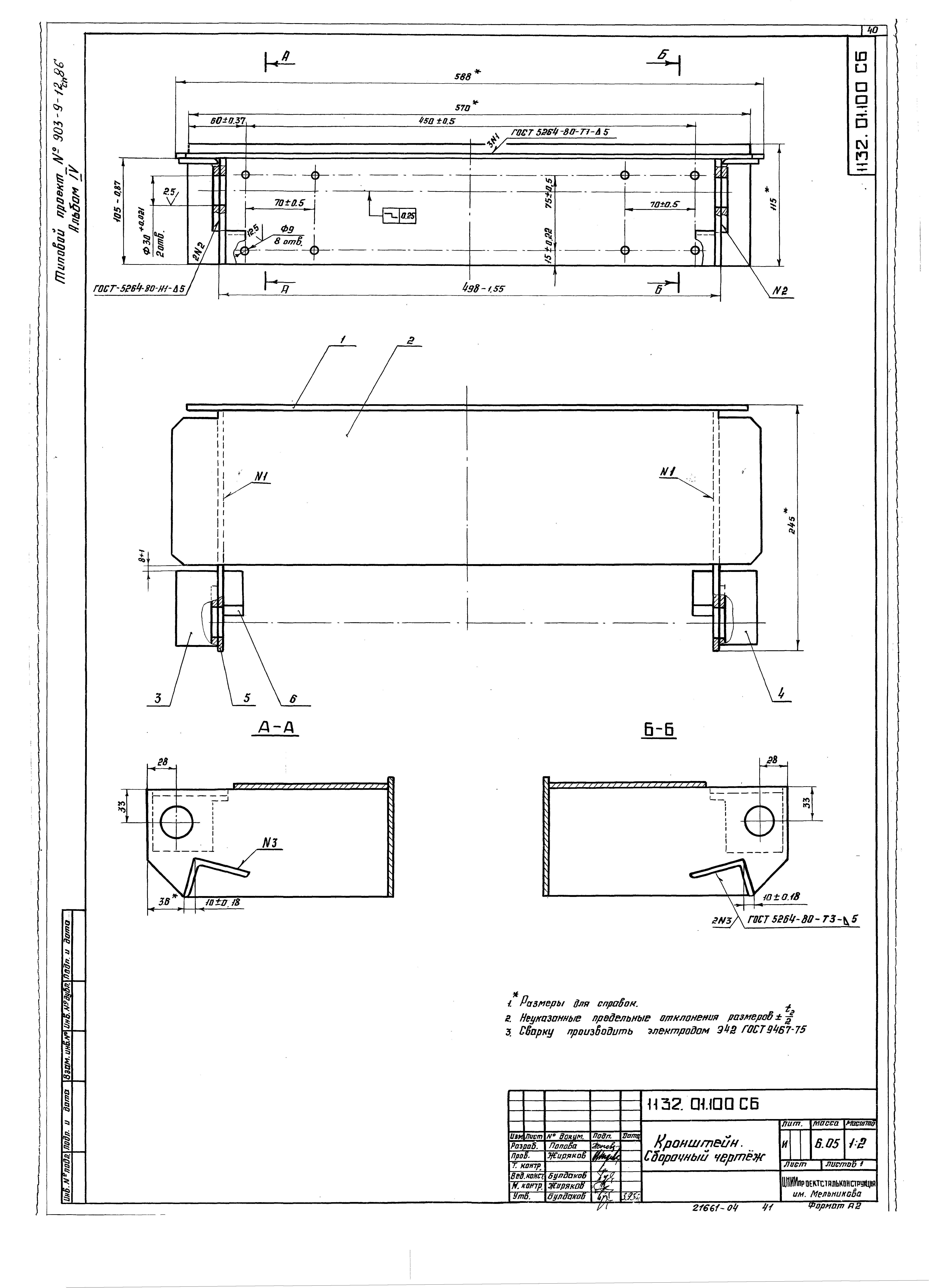
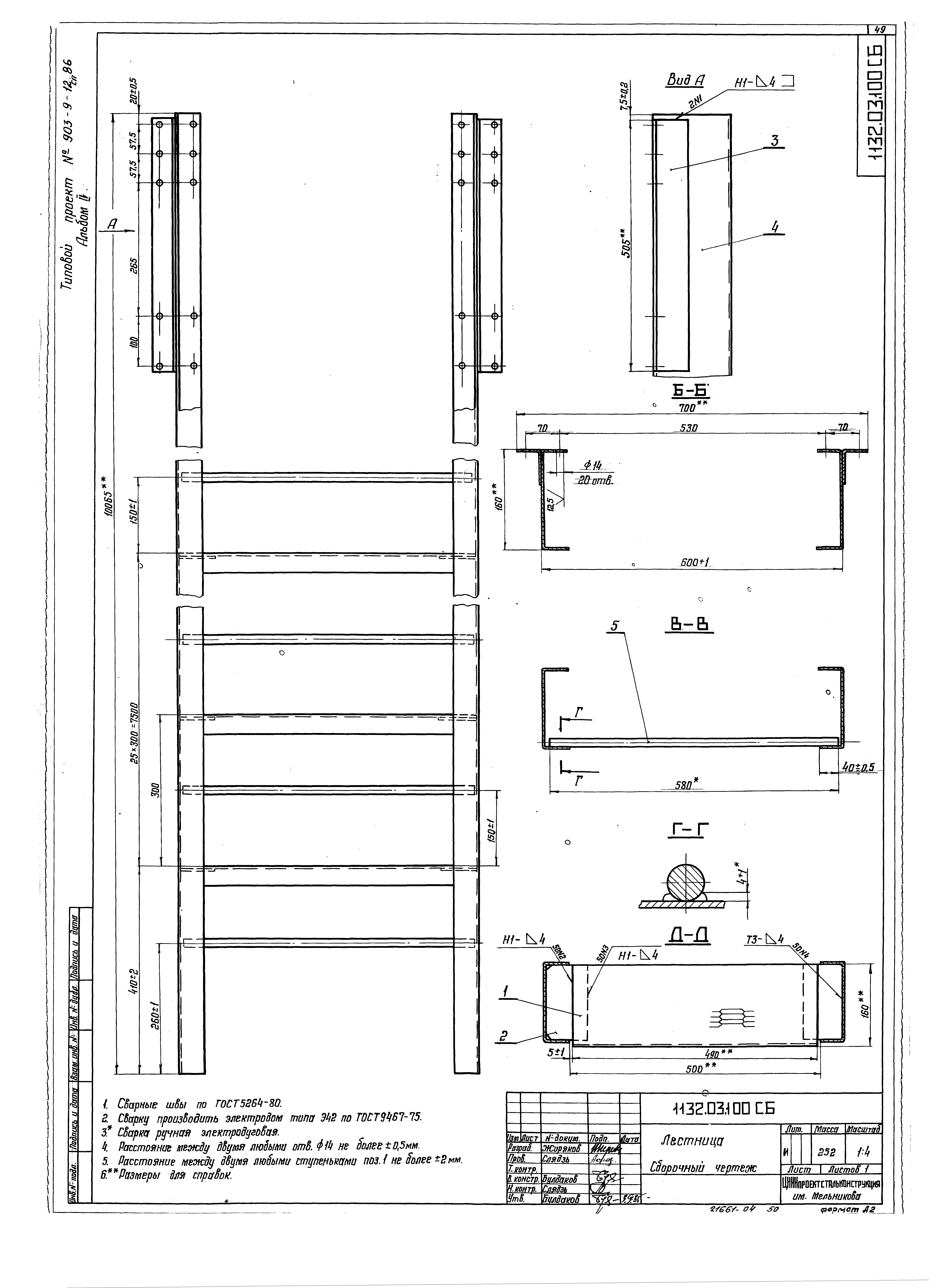
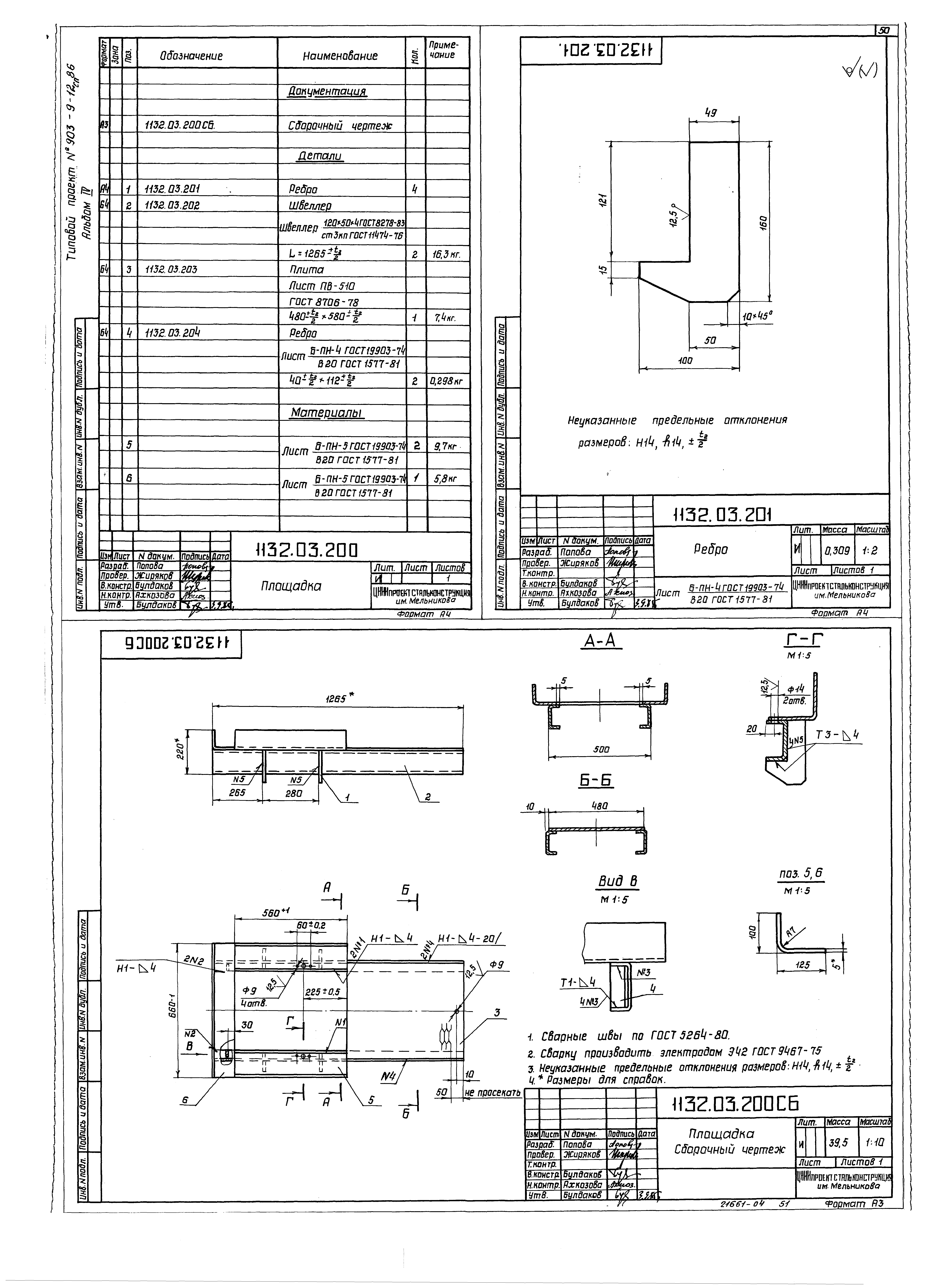
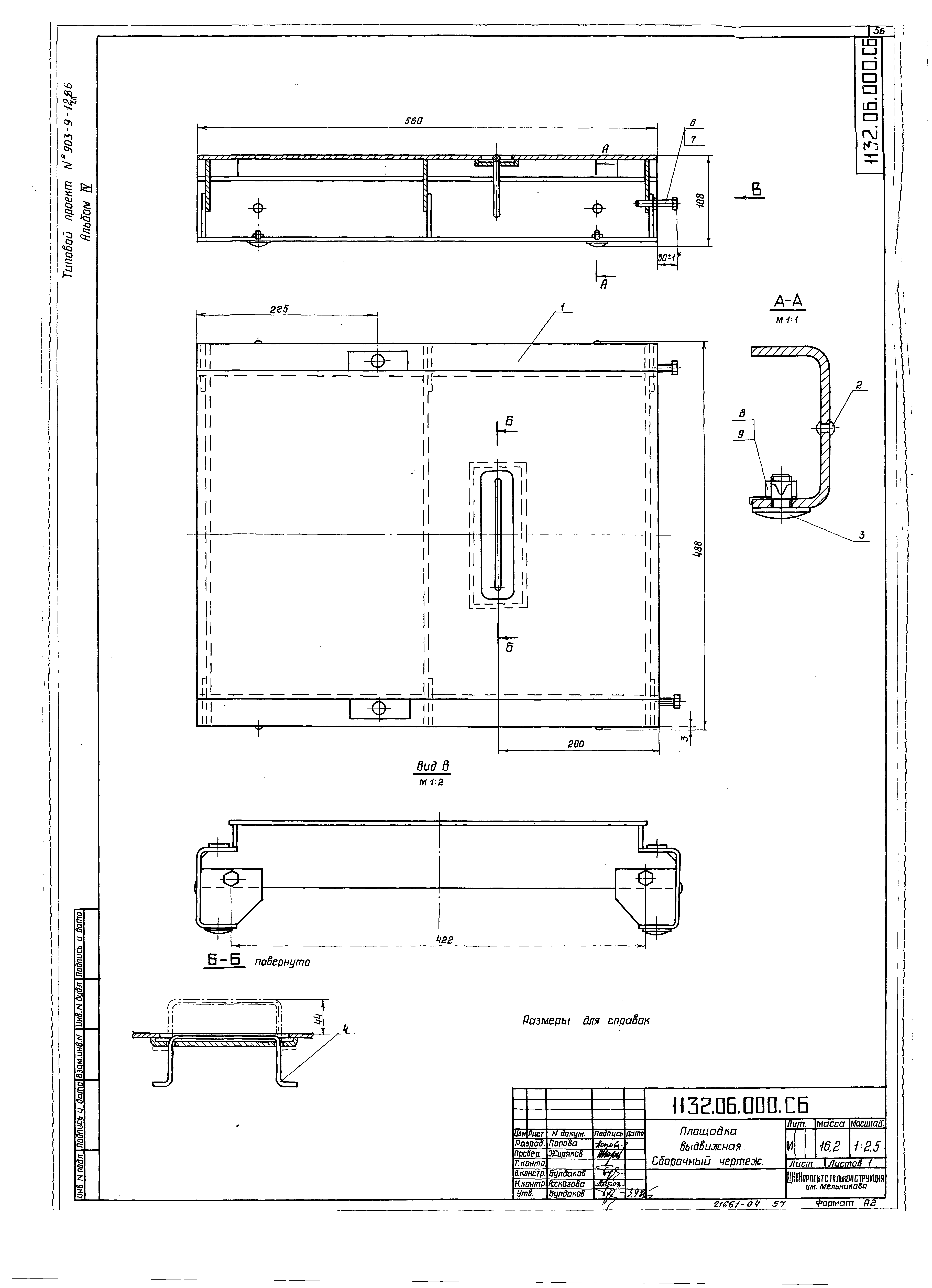
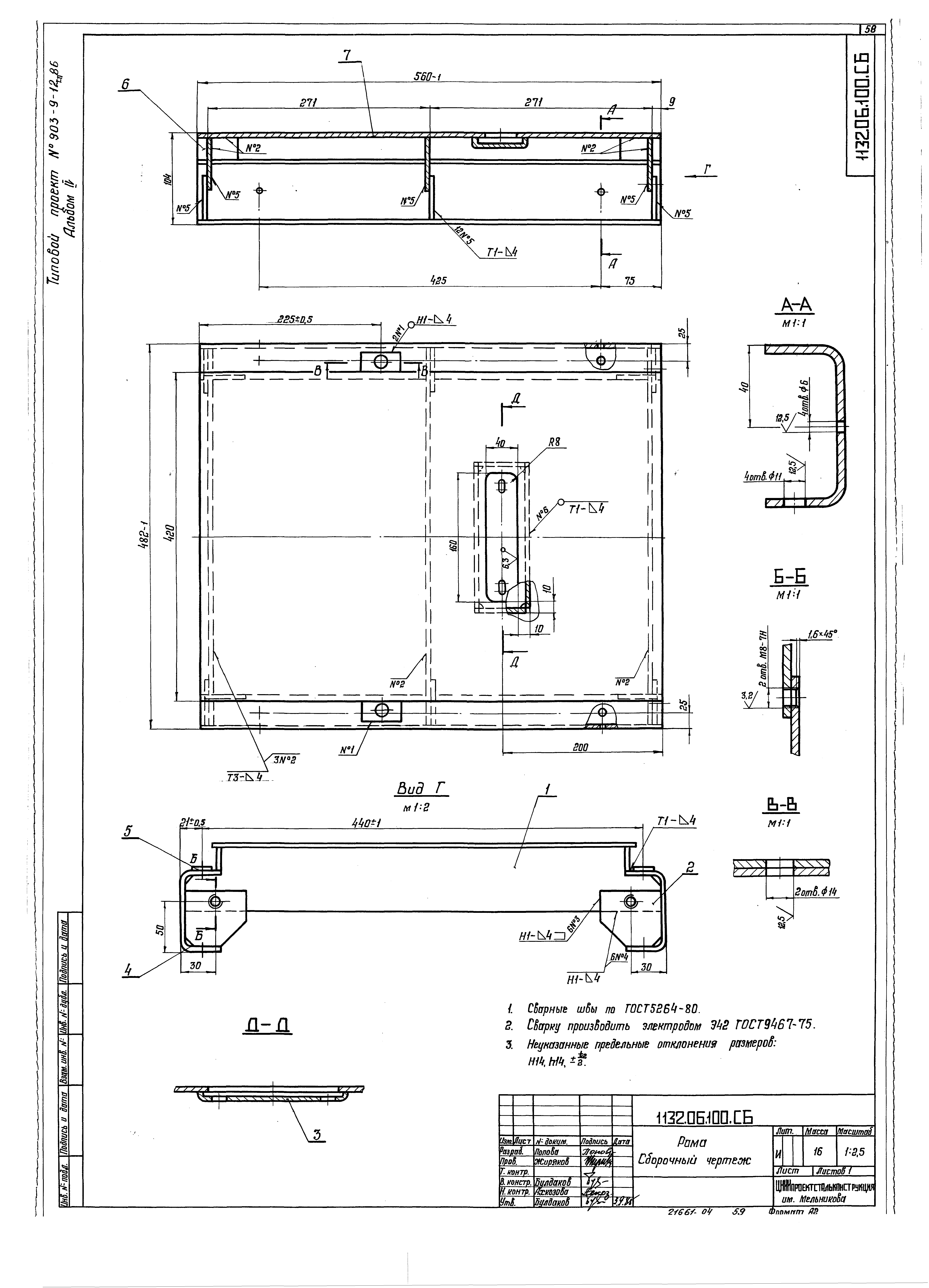
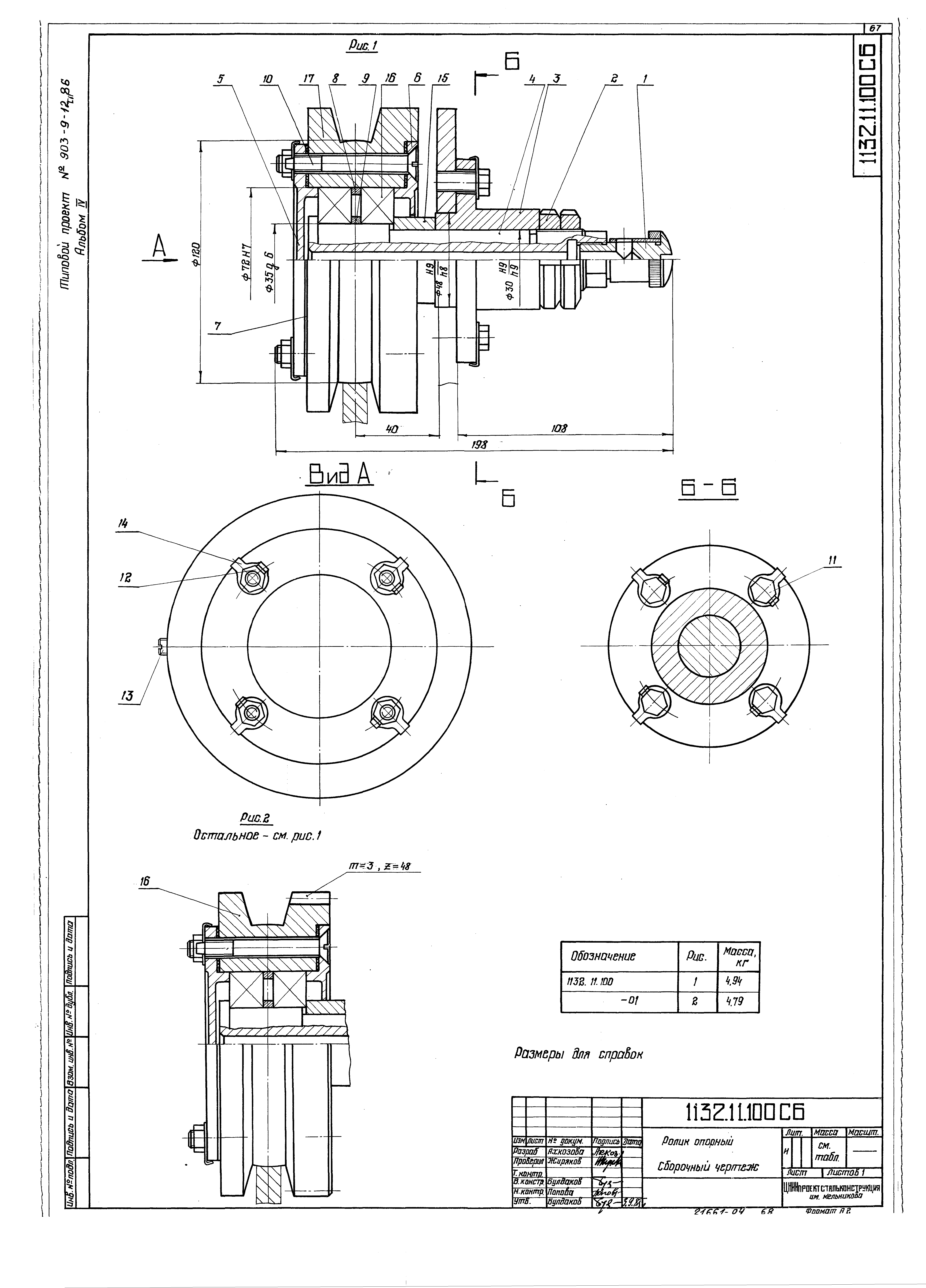
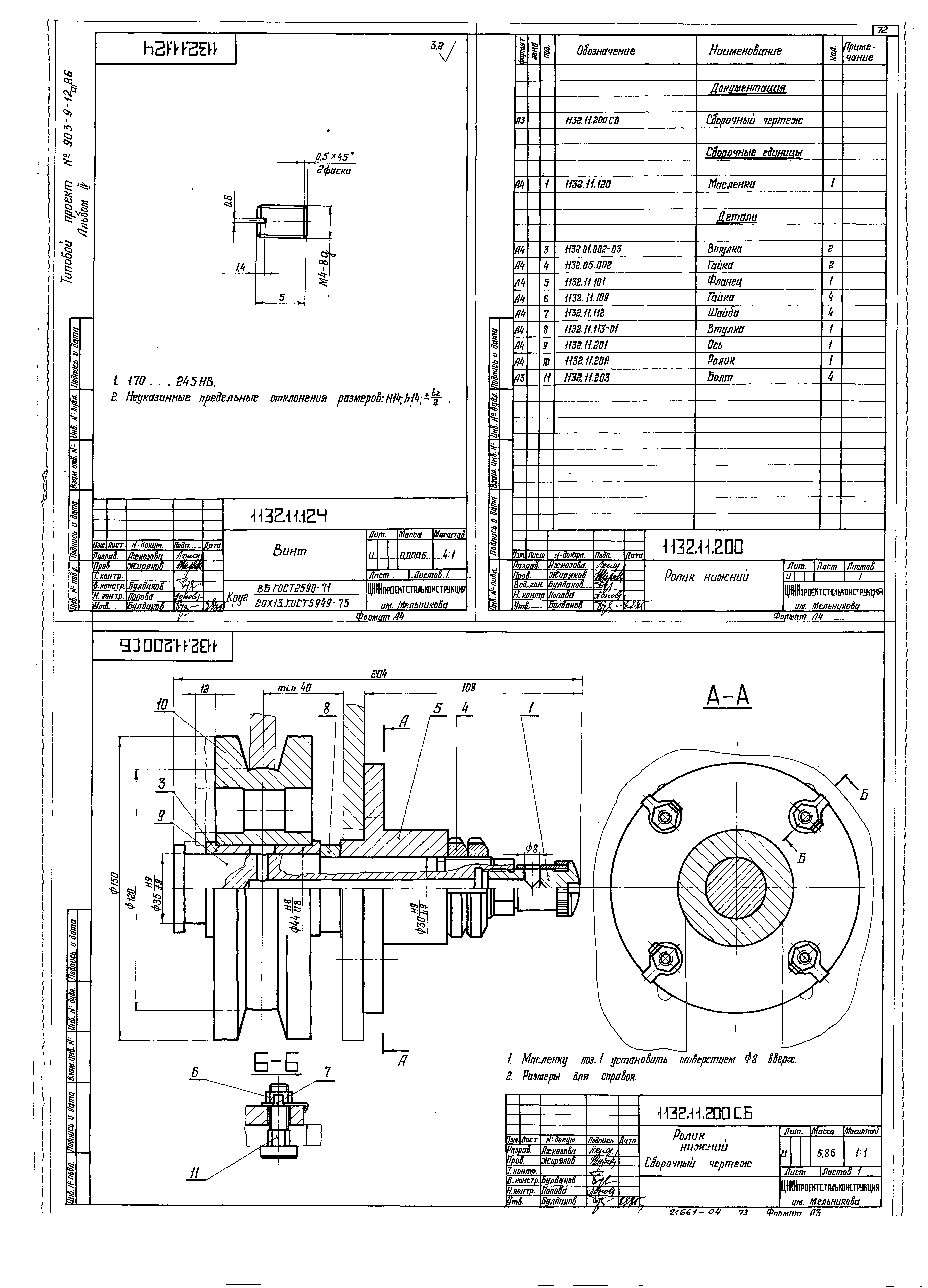
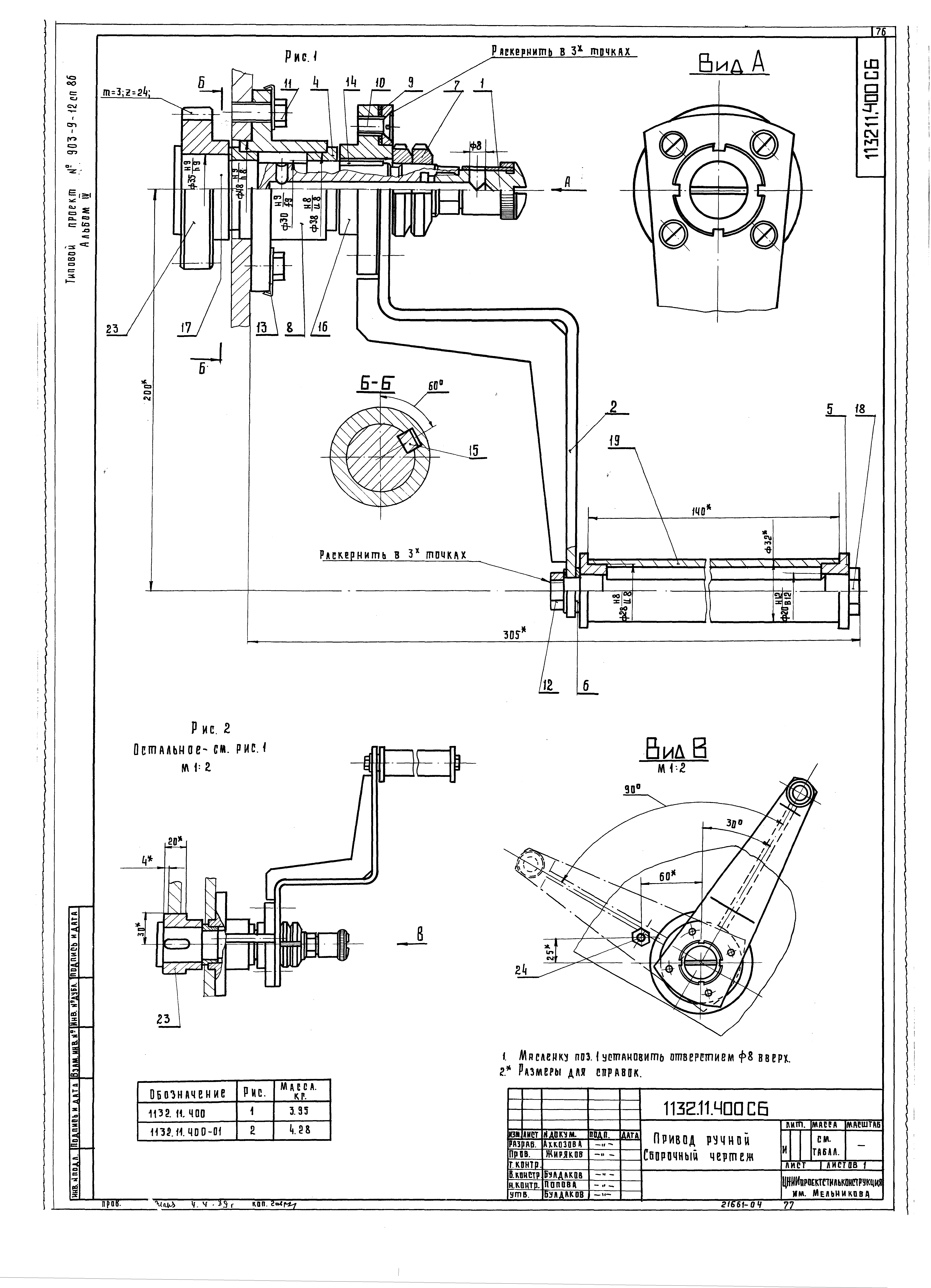
| Оглавление: | Титульный лист Содержание 1132.00.000 Стремянка передвижная 1132.00.000 СБ Стремянка передвижная. Сборочный чертеж 1132.00.000 ВС Ведомость спецификаций 1132.00.000 ВП Ведомость покупных изделий 1132.00.000 ТУ Технические условия 1132.00.000 ПС Паспорт 1132.00.001 Прокладка 1132.00.002 Прокладка 1132.00.003 Прокладка 1132.00.004 Бобышка 1132.00.005 Болт специальный 1132.00.006 Прокладка 1132.00.009 Прокладка 1132.00.011 Подкос 1132.00.100 Болт специальный 1132.00.100 СБ Болт специальный. Сборочный чертеж 1132.00.101 Флажок 1132.00.102 Шайба 1132.00.103 Звено переходное 1132.00.104 Болт 1132.00.200 Кронштейн 1132.00.201 Ребро 1132.01.000 Лестница откидная 1132.01.000 СБ Лестница откидная. Сборочный чертеж 1132.01.001 Ось 1132.01.002 Втулка 1132.01.003 Серьга 1132.01.004 Палец 1132.01.005 Шайба 1132.01.100 Кронштейн 1132.01.100 СБ Кронштейн. Сборочный чертеж 1132.01.102 Площадка 1132.01.103 Уголок 1132.01.104 Ребро 1132.01.200 Лестница 1132.01.200 СБ Лестница. Сборочный чертеж 1132.01.201 Стойка 1132.01.204 Поручень 1132.01.205 Накладка 1132.01.206 Кронштейн 1132.01.300 Зацеп 1132.01.301 Ручка 1132.01.302 Крюк 1132.02.000 Ограждение 1132.02.000 СБ Ограждение. Сборочный чертеж 1132.02.001 Хомут 1132.02.002 Хомут 1132.03.000 Стремянка 1132.03.000 СБ Стремянка. Сборочный чертеж 1132.03.001 Хомут 1132.03.002 Хомут 1132.03.003 Скоба 1132.03.100 Лестница 1132.03.100 СБ Лестница. Сборочный чертеж 1132.03.101 Ступенька 1132.03.102 Подкладка 1132.03.103 Уголок 1132.03.200 Площадка 1132.03.200 СБ Площадка. Сборочный чертеж 1132.03.201 Ребро 1132.04.000 Ограничитель 1132.04.000 СБ Ограничитель. Сборочный чертеж 1132.04.001 Ребро 1132.04.002 Уголок 1132.05.000 Ролик горизонтальный 1132.05.000 СБ Ролик горизонтальный. Сборочный чертеж 1132.05.001 Ролик 1132.05.002 Гайка 1132.05.003 Шайба 1132.05.004 Ось 1132.05.100 Кронштейн 1132.05.100 СБ Кронштейн. Сборочный чертеж 1132.05.101 Ребро 1132.05.103 Ребро 1132.06.000 Площадка выдвижная 1132.06.000 СБ Площадка выдвижная. Сборочный чертеж 1132.06.001 Заклепка 1132.06.002 Болт сферический 1132.06.003 Рукоятка 1132.06.100 Рама 1132.06.100 СБ Рама. Сборочный чертеж 1132.06.101 Ребро 1132.06.102 Косынка 1132.06.103 Планка 1132.07.000 Фиксатор 1132.07.000 СБ Фиксатор. Сборочный чертеж 1132.07.001 Кольцо 1132.07.002 Рукоятка 1132.07.003 Винт 1132.07.004 Плита 1132.07.005 Шайба 1132.07.006 Прокладка 1132.08.000 Ролик горизонтальный 1132.08.000 СБ Ролик горизонтальный. Сборочный чертеж 1132.08.001 Прокладка 1132.08.002 Ось 1132.08.100 Кронштейн 1132.08.100 СБ Кронштейн. Сборочный чертеж 1132.08.101 Щека 1132.11.000 Каретка 1132.11.000 СБ Каретка. Сборочный чертеж 1132.11.001 Плита 1132.11.100 Ролик опорный 1132.11.100 СБ Ролик опорный. Сборочный чертеж 1132.11.101 Фланец 1132.11.102 Ось 1132.11.103 Крышка 1132.11.104 Крышка 1132.11.105 Прокладка 1132.11.106 Кольцо 1132.11.107 Винт 1132.11.108 Болт 1132.11.109 Гайка 1132.11.111 Пробка 1132.11.112 Шайба 1132.11.113 Втулка 1132.11.114 Ролик 1132.11.120 Масленка 1132.11.121 Корпус 1132.11.122 Втулка 1132.11.123 Втулка 1132.11.124 Винт 1132.11.200 Ролик нижний 1132.11.200 СБ Ролик нижний. Сборочный чертеж 1132.11.201 Ось 1132.11.202 Ролик 1132.11.203 Болт 1132.11.300 Шестерня паразитная 1132.11.300 СБ Шестерня паразитная . Сборочный чертеж 1132.11.301 Шестерня 1132.11.400 Привод ручной 1132.11.400 СБ Привод ручной. Сборочный чертеж 1132.11.401 Шпонка 1132.11.402 Фланец 1132.11.403 Ось 1132.11.404 Ось 1132.11.405 Труба 1132.11.406 Шестерня ведущая 1132.11.407 Эксцентрик 1132.11.408 Штырь 1132.11.420 Рычаг 1132.11.421 Ребро 1132.11.422 Планка 1132.11.500 Фиксатор 1132.11.500 СБ Фиксатор. Сборочный чертеж 1132.12.000 Кронштейн 1132.12.000 СБ Кронштейн. Сборочный чертеж 1132.12.001 Упор 1132.12.004 Ребро 1132.12.005 Ребро 1132.12.006 Косынка 1132.12.008 Раскос |
| Разработан: | ЦНИИпроектстальконструкция |
| Утверждён: | 18.06.1985 Минэнерго СССР (USSR Minenergo 58) |



















































































