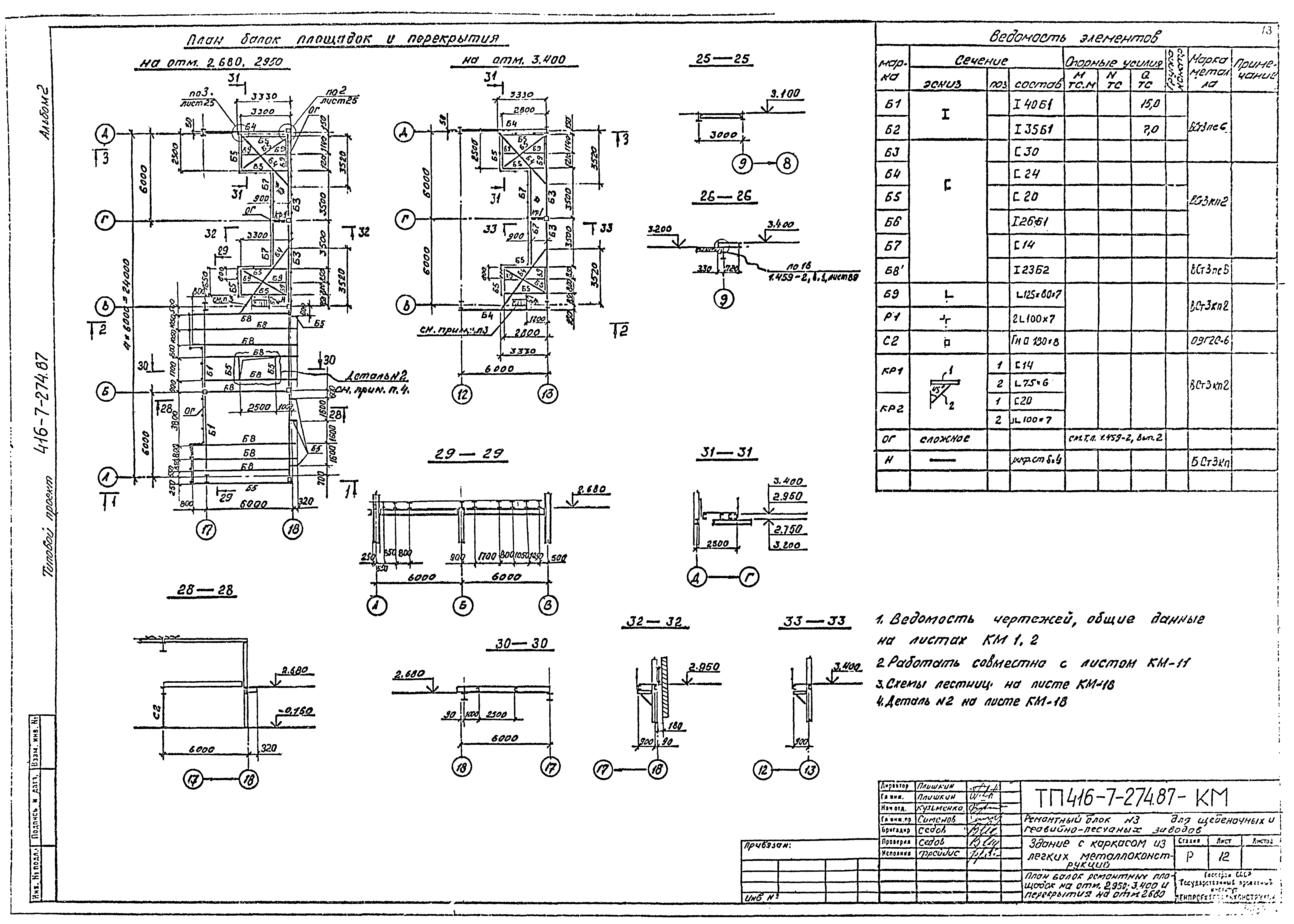
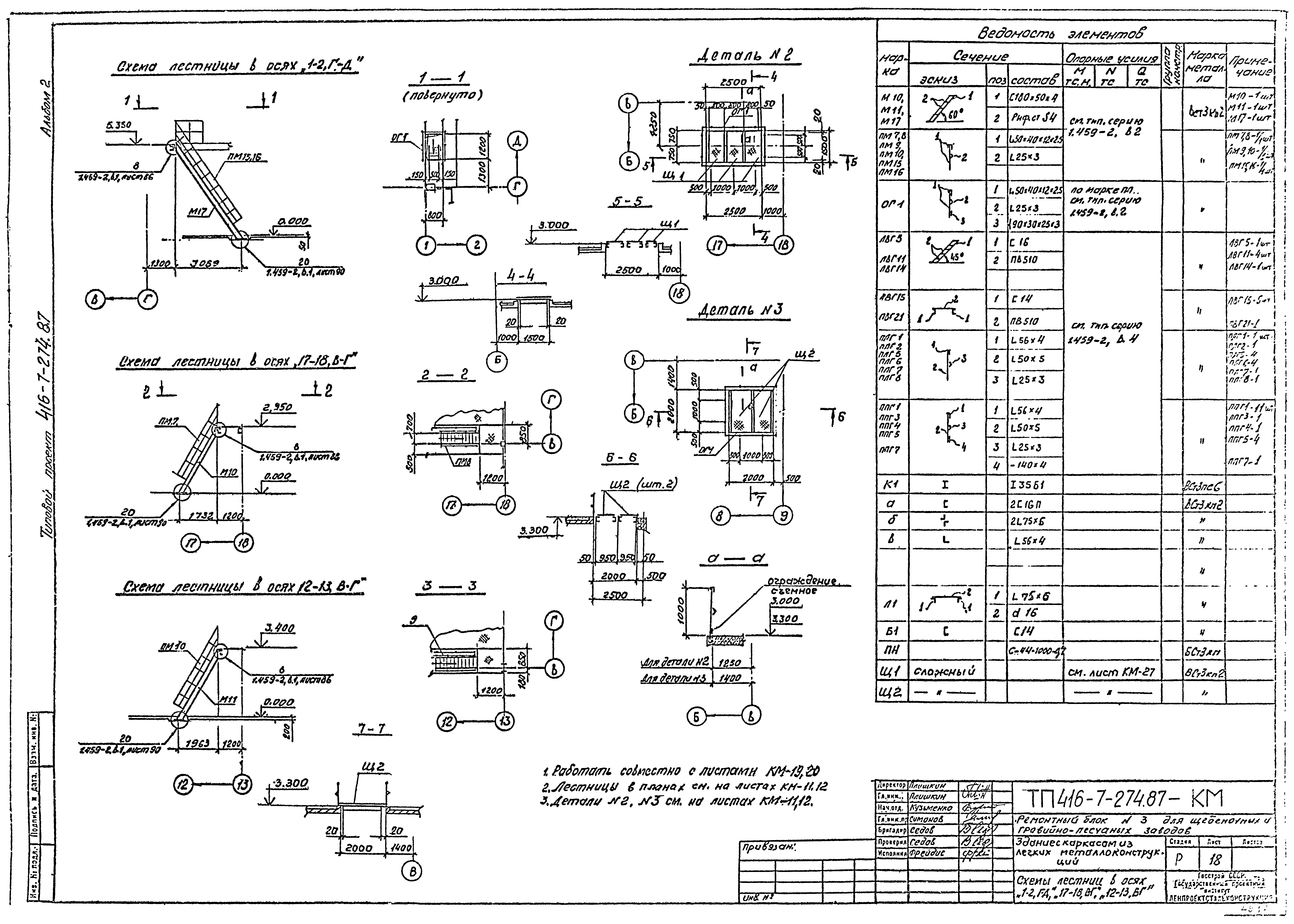
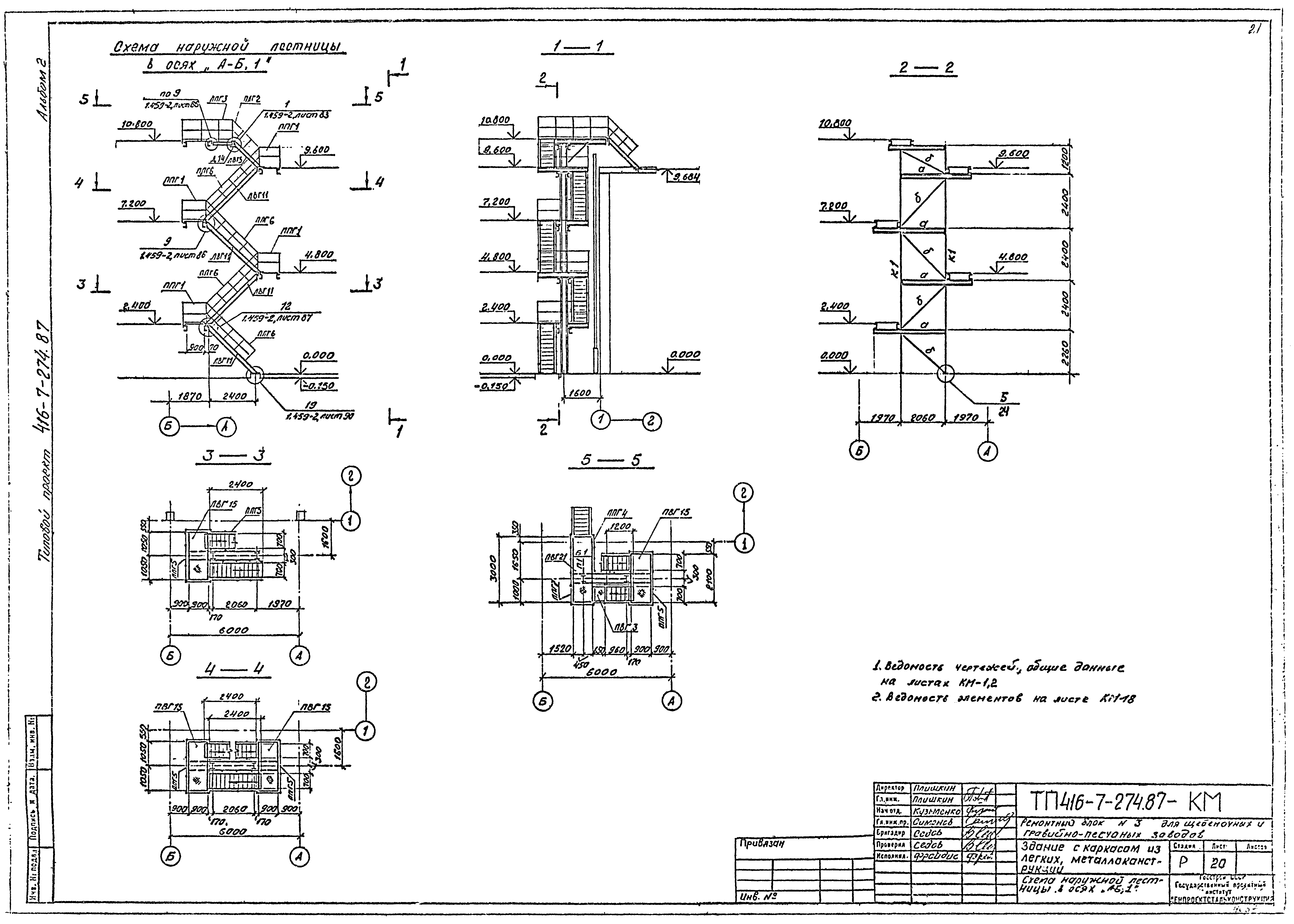
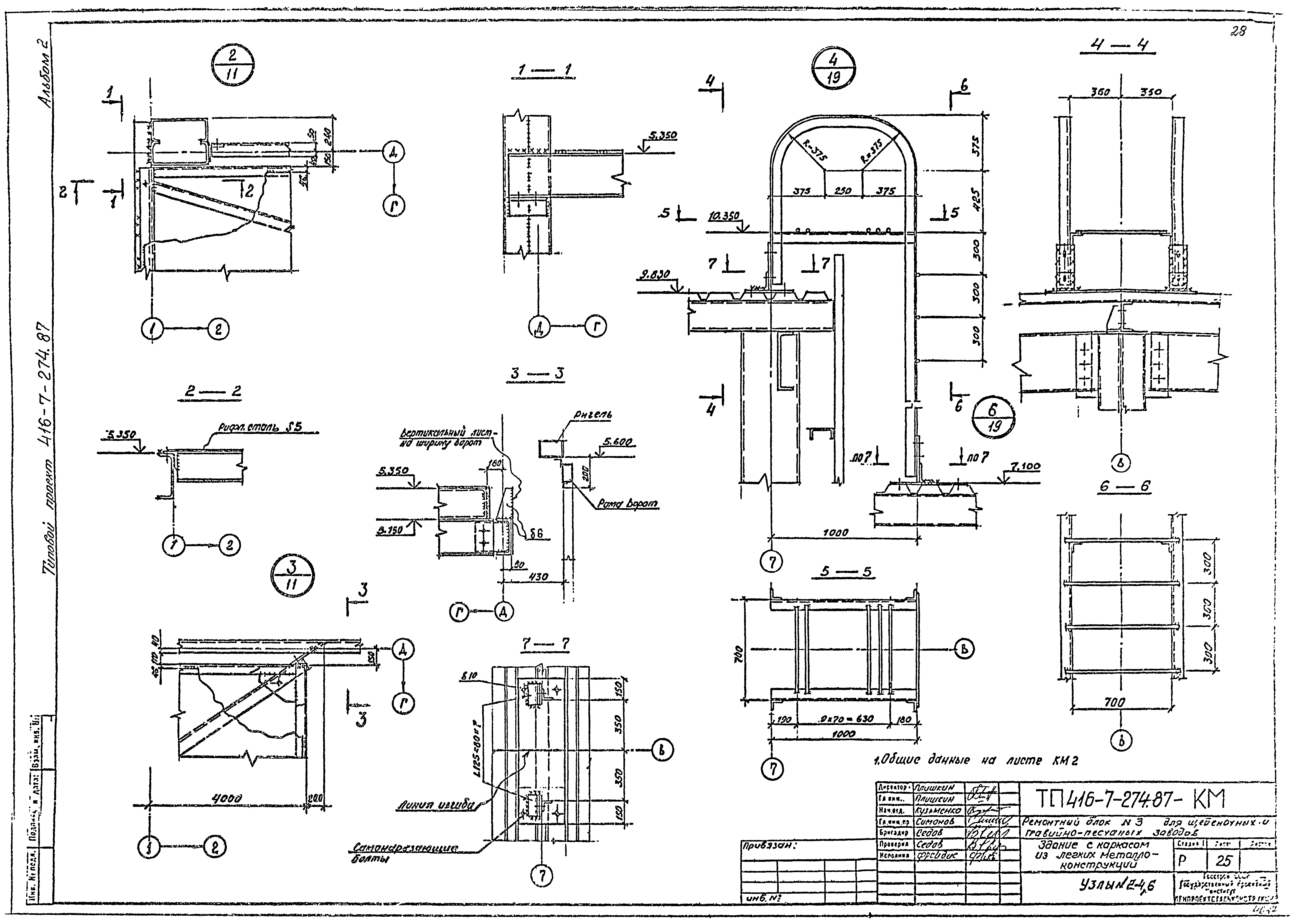
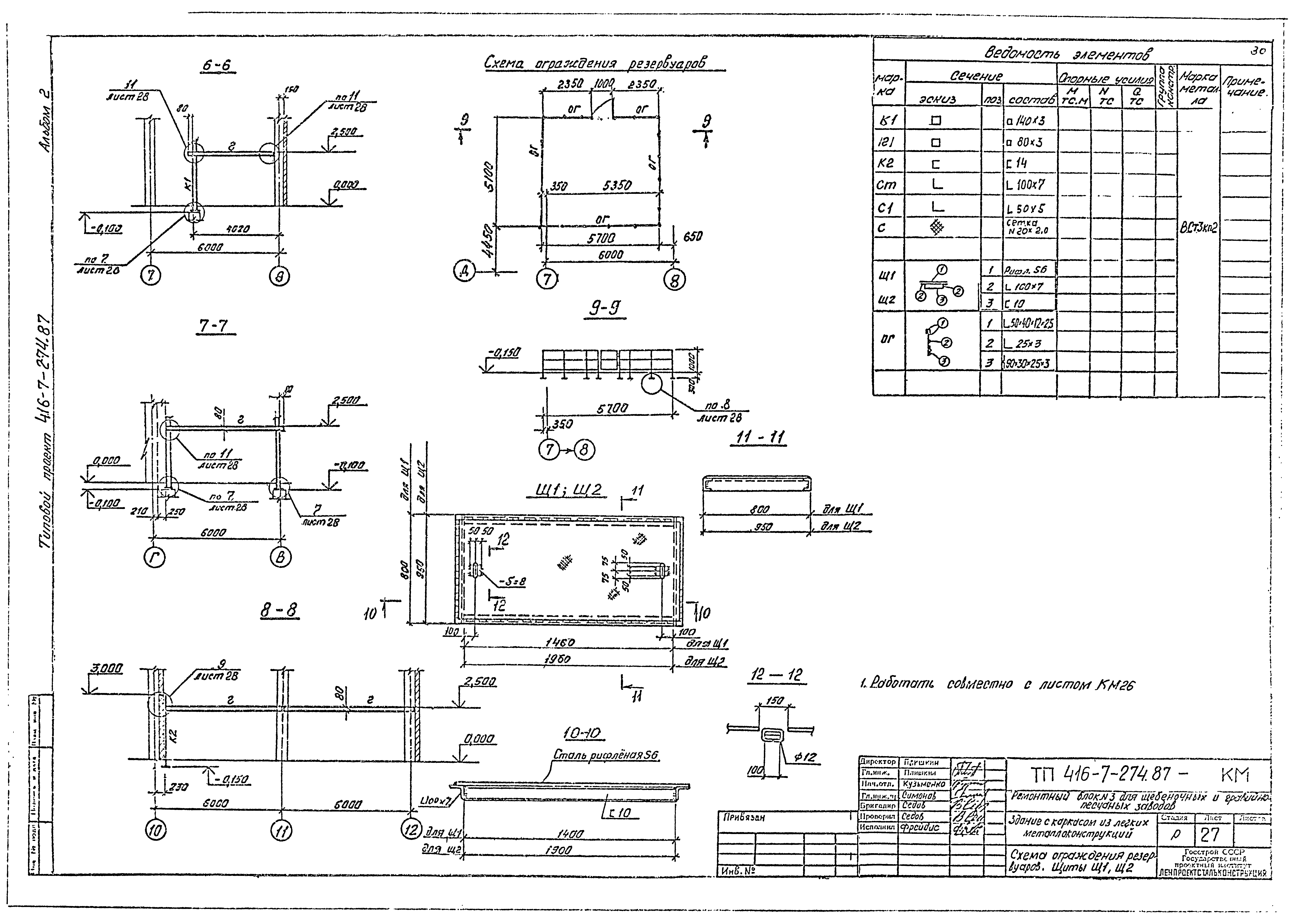
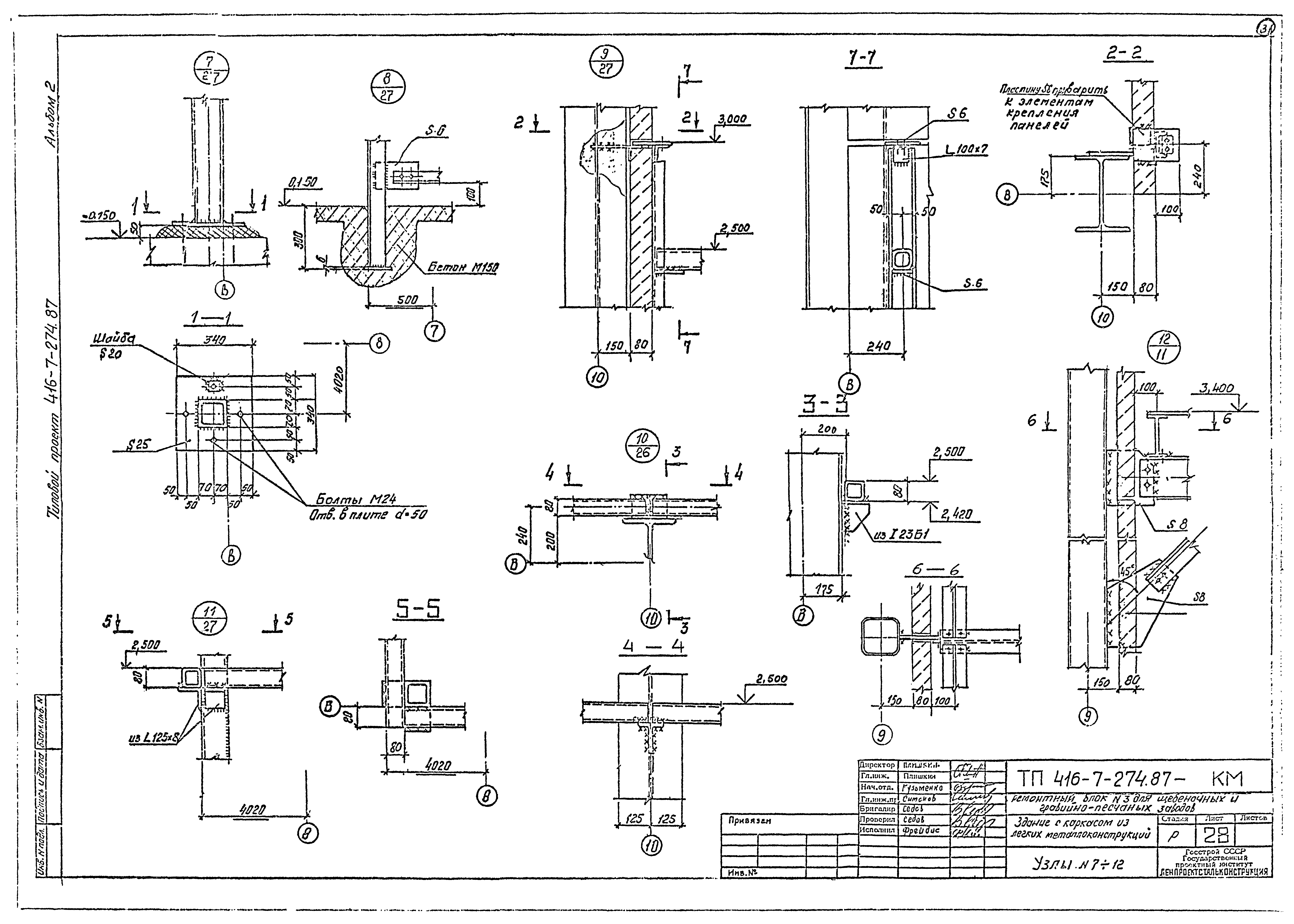
Скачать Типовой проект 416-7-274.87 Альбом 2. Конструкции металлическиеДата актуализации: 01.01.2021
|
| Обозначение: | Типовой проект 416-7-274.87 |
| Обозначение англ: | 416-7-274.87 |
| Статус: | не определен законодательством |
| Название рус.: | Альбом 2. Конструкции металлические |
| Дата добавления в базу: | 05.05.2017 |
| Дата актуализации: | 01.01.2021 |
| Дата введения: | 04.12.1985 |
| Дата окончания срока действия: | 30.06.2003 |
| Разработан: | Союзгипронеруд |
| Утверждён: | 03.12.1981 Министерство промышленности строительных материалов СССР (USSR Ministry of the Building Materials Industry 28-166/81) |
| Заменяет собой: |
|































