Скачать Типовой проект 903-1-158 Альбом VI. Котлоагрегат (топливо - каменные угли)Дата актуализации: 01.01.2021
|
| Обозначение: | Типовой проект 903-1-158 |
| Обозначение англ: | 903-1-158 |
| Статус: | заменен |
| Название рус.: | Альбом VI. Котлоагрегат (топливо - каменные угли) |
| Дата добавления в базу: | 01.09.2013 |
| Дата актуализации: | 01.01.2021 |
| Дата введения: | 15.04.1979 |
| Дата окончания срока действия: | 01.12.1987 |
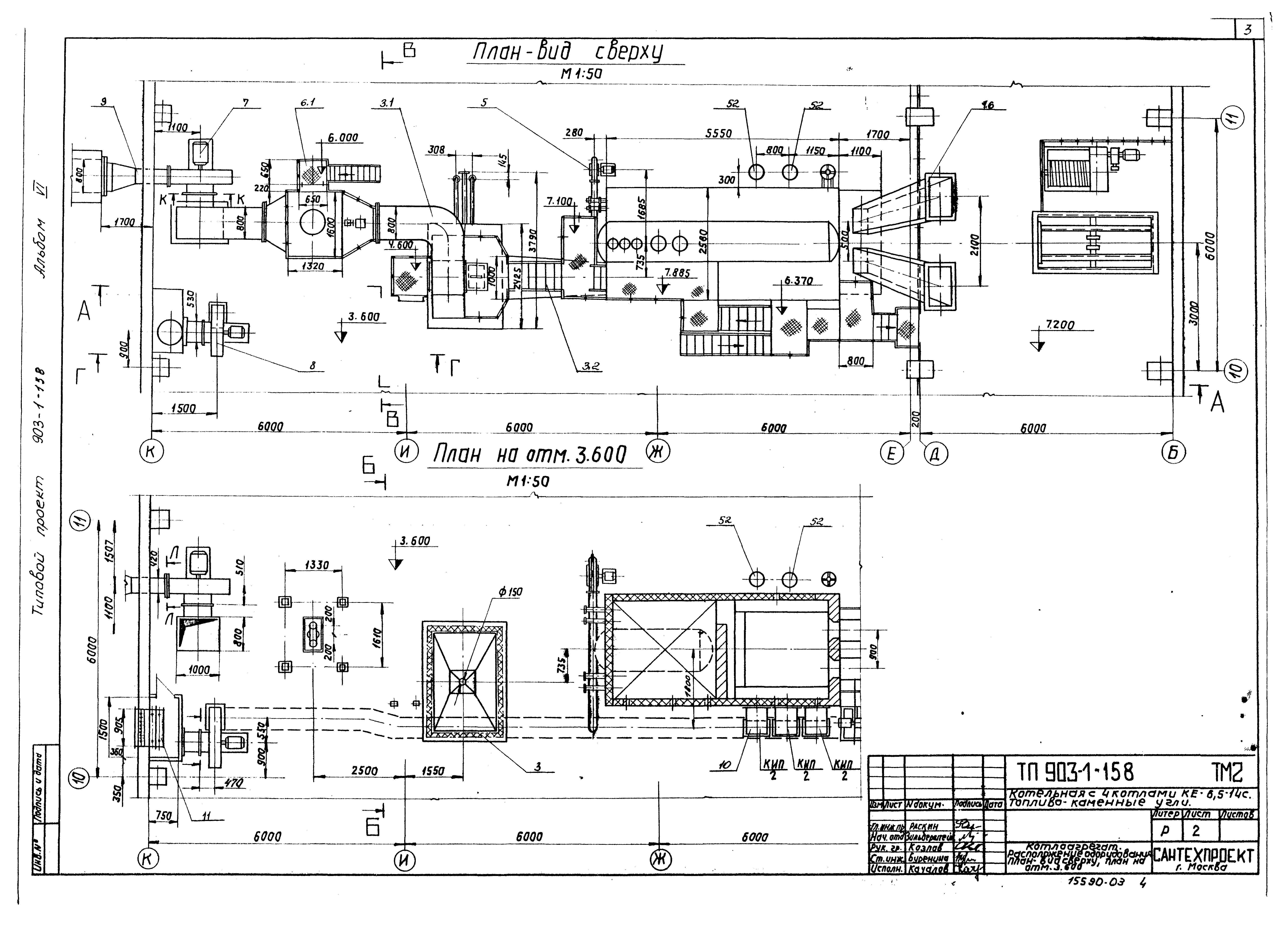
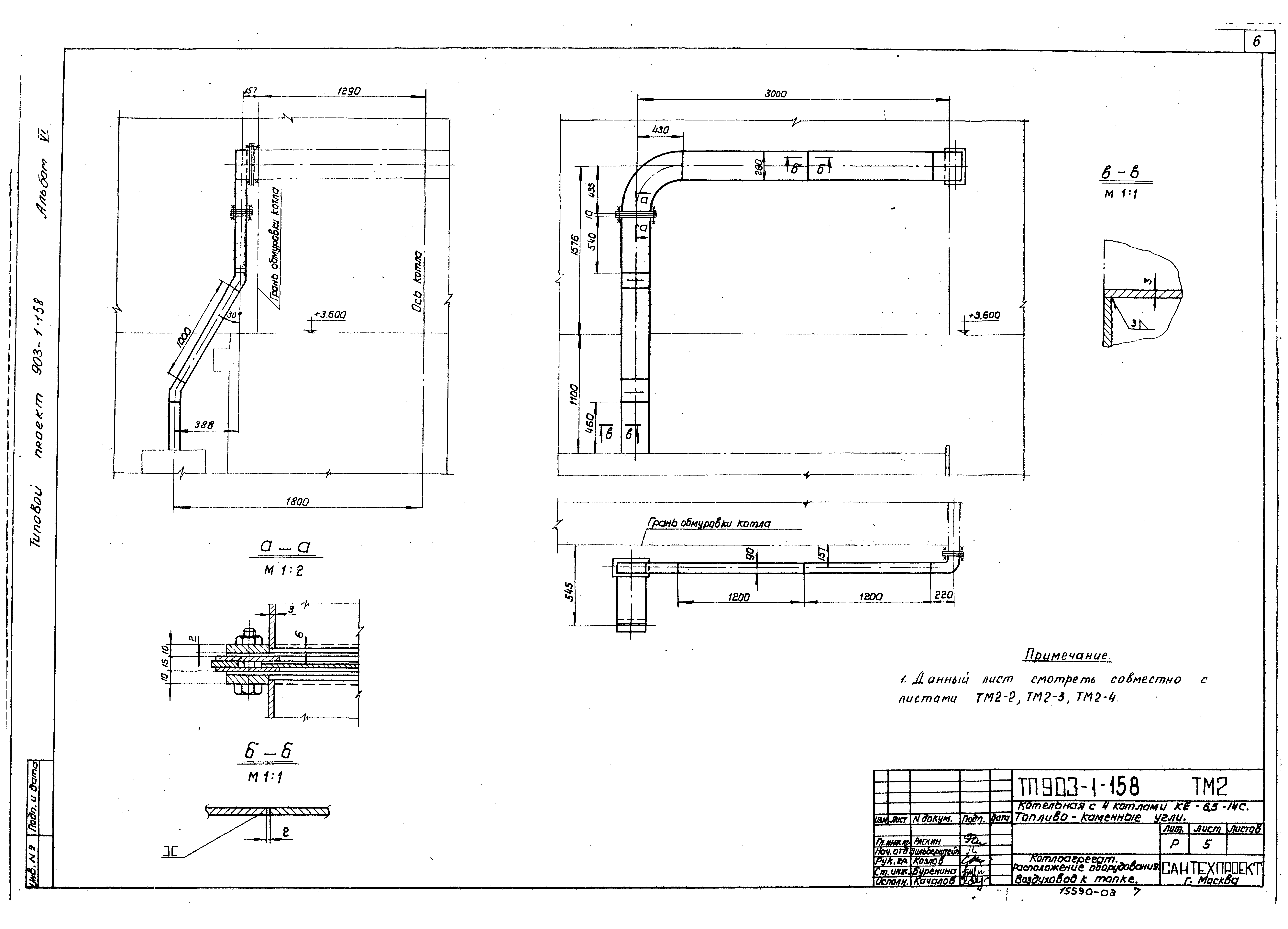
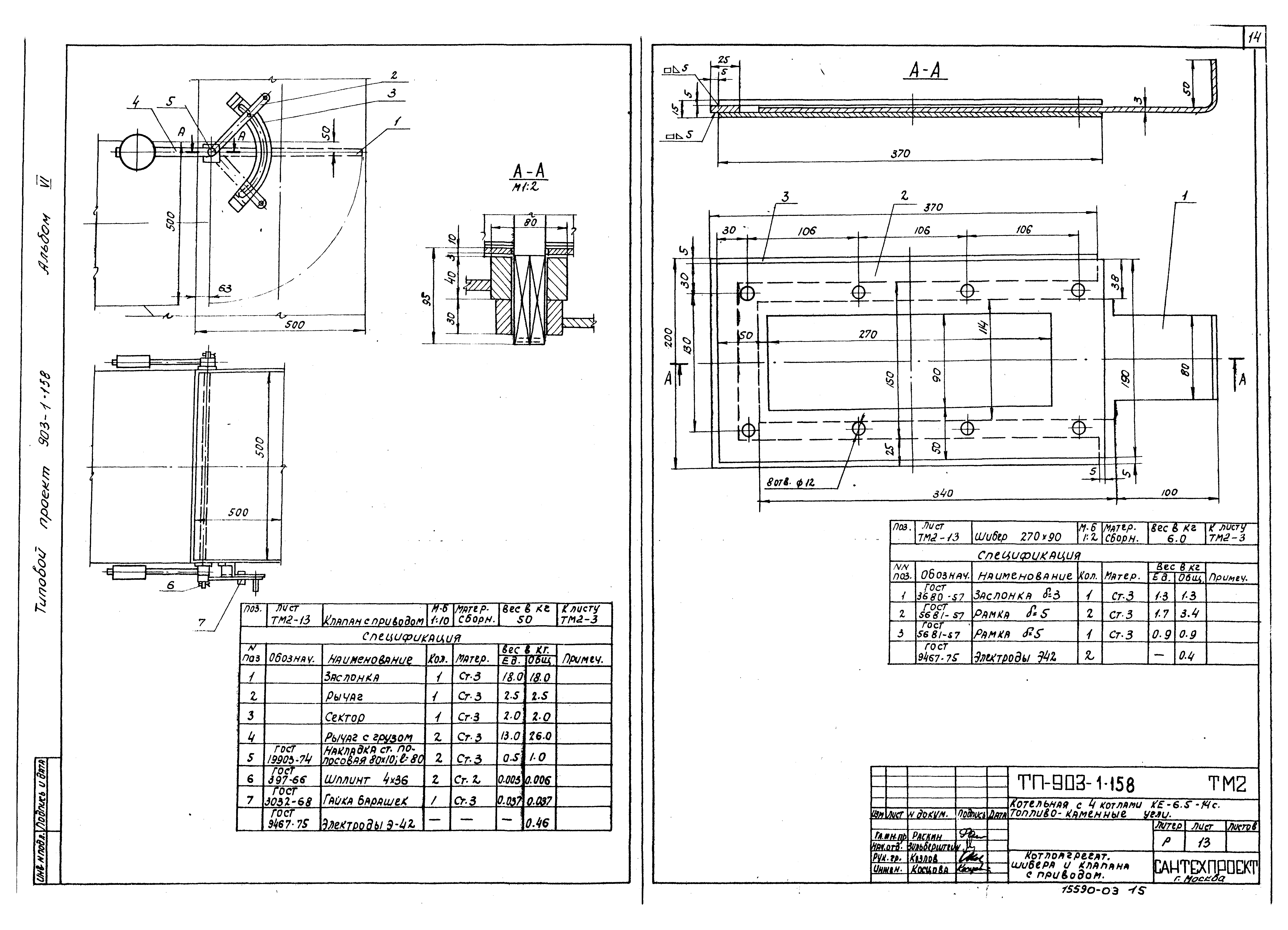
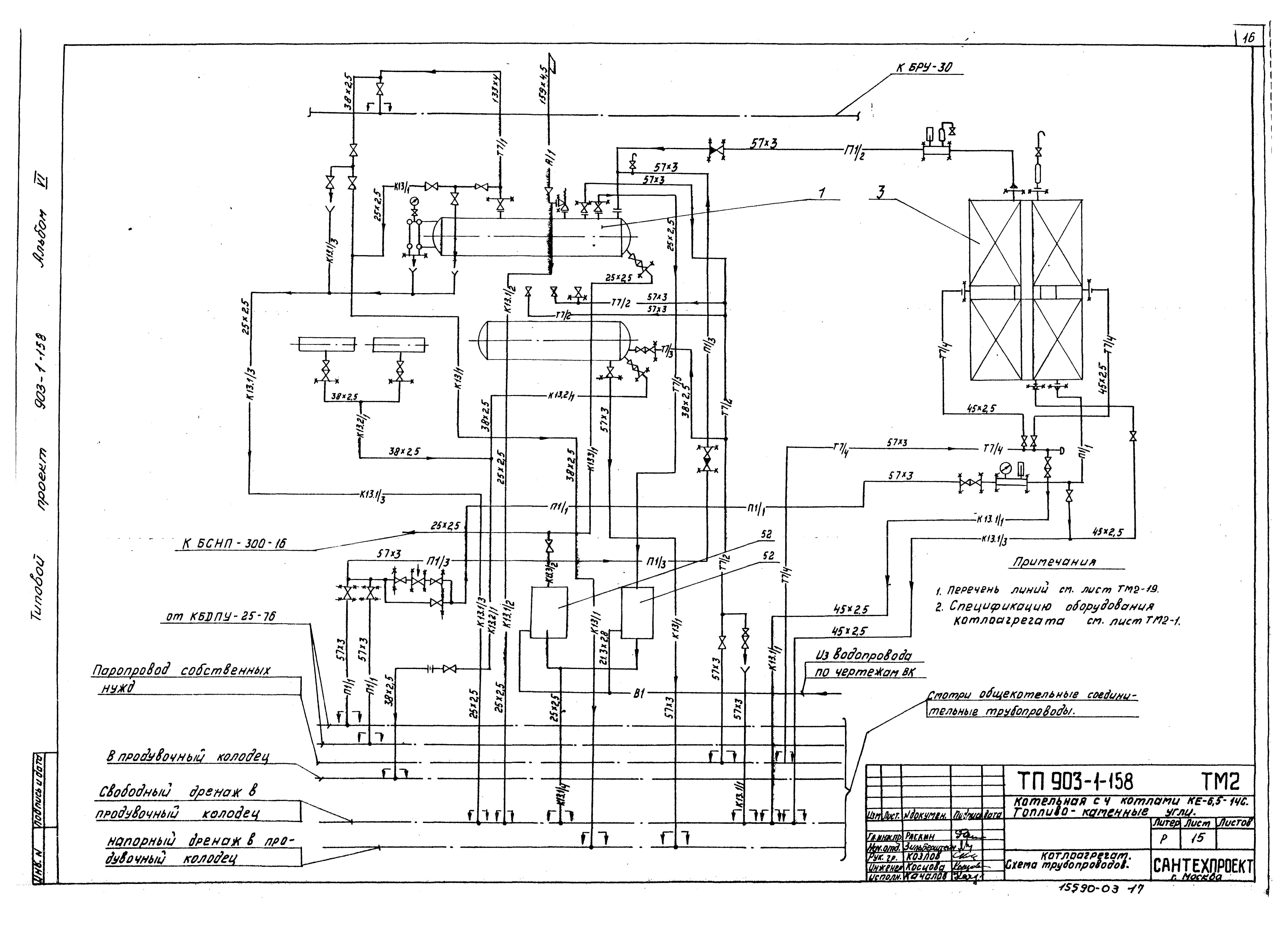
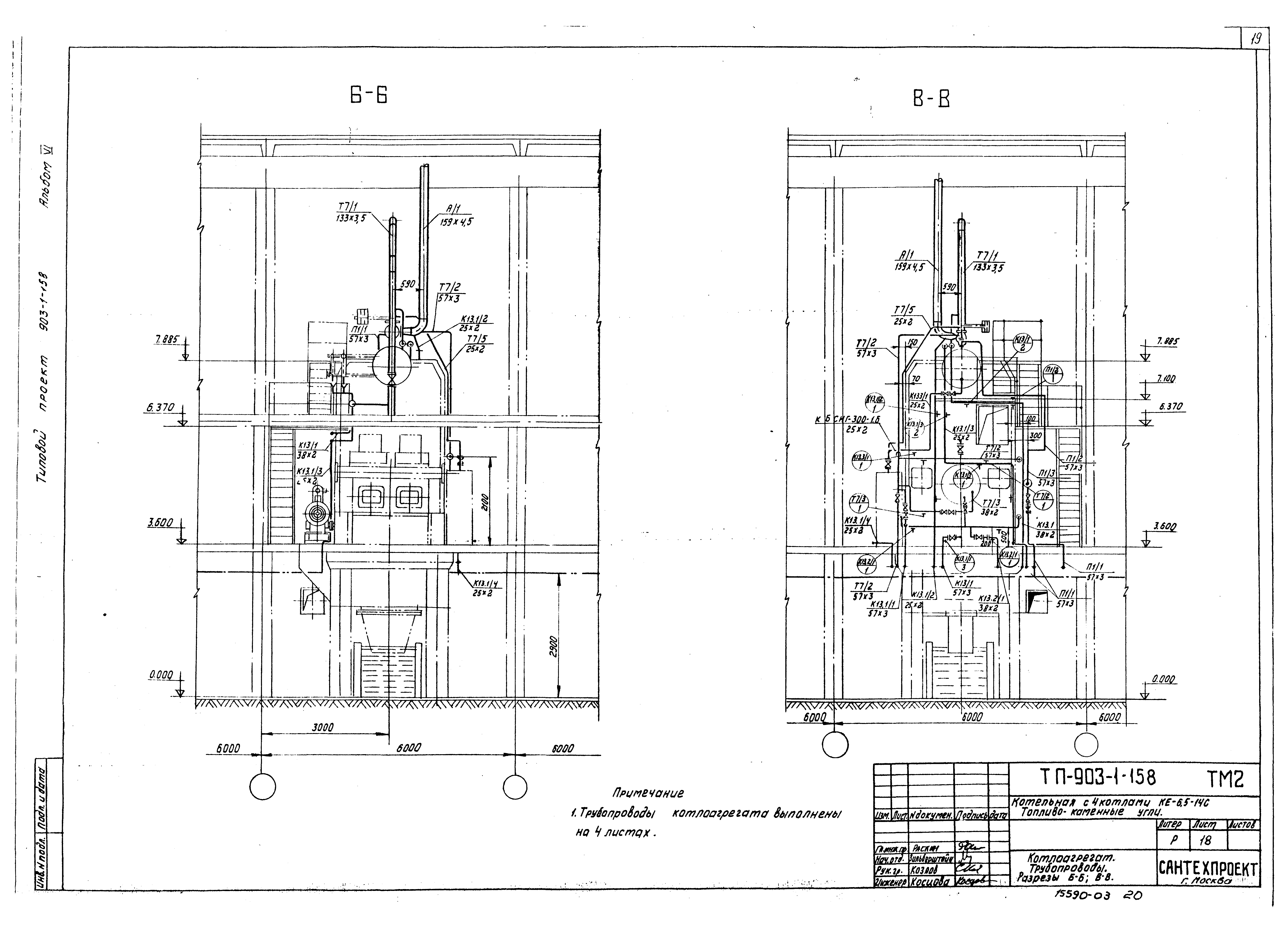
| Оглавление: | Котлоагрегат. Общие данные Расположение оборудования. План - вид сверху. План на отм. 3.600 Расположение оборудования. Разрез А-А Расположение оборудования. Разрезы Б-Б, В-В, Г-Г Расположение оборудования. Воздуховод к топке Расположение оборудования. Узлы и сечения Короб экономайзера ЭП2-236 Шлакоспуск, золоспуск. Общий вид Люк 500х600. Общий вид Желоб для угля. Короб для чистки дутьевых зон Обмуровка фронтовой стенки котла, предтопка и шлакового бункера Тепловая изоляция барабанов котла Шибера и клапана с приводом Привод к шиберу батарейного циклона БЦ2-4х(3+2) Схема трубопроводов Трубопроводы. План - вид сверху. Разрез Д-Д. Спецификация опор и креплений Трубопроводы. Разрезы А-А, Г-Г Трубопроводы. Разрезы Б-Б, В-В Трубопроводы. Разрез Е-Е. Перечень линий. Перечень КИП Трубопроводы. Спецификация на трубопроводы и арматуру Техномонтажная ведомость на изоляцию трубопроводов и оборудования Трубопроводы. Сводная спецификация на трубопроводы и арматуру |
| Разработан: | ГПИ Сантехпроект Госстроя СССР Минтяжмаш СССР Союзпроммеханизация |
| Утверждён: | 23.03.1979 ГПИ Сантехпроект (46) |
| Заменяет собой: |
|
| Чем заменён: |

























