Скачать Типовой проект 903-1-158 Альбом IX. Склад реагентов (все части) (из ТП 903-1-153)Дата актуализации: 01.01.2021
|
| Обозначение: | Типовой проект 903-1-158 |
| Обозначение англ: | 903-1-158 |
| Статус: | заменен |
| Название рус.: | Альбом IX. Склад реагентов (все части) (из ТП 903-1-153) |
| Дата добавления в базу: | 01.10.2014 |
| Дата актуализации: | 01.01.2021 |
| Дата введения: | 15.04.1979 |
| Дата окончания срока действия: | 01.12.1987 |
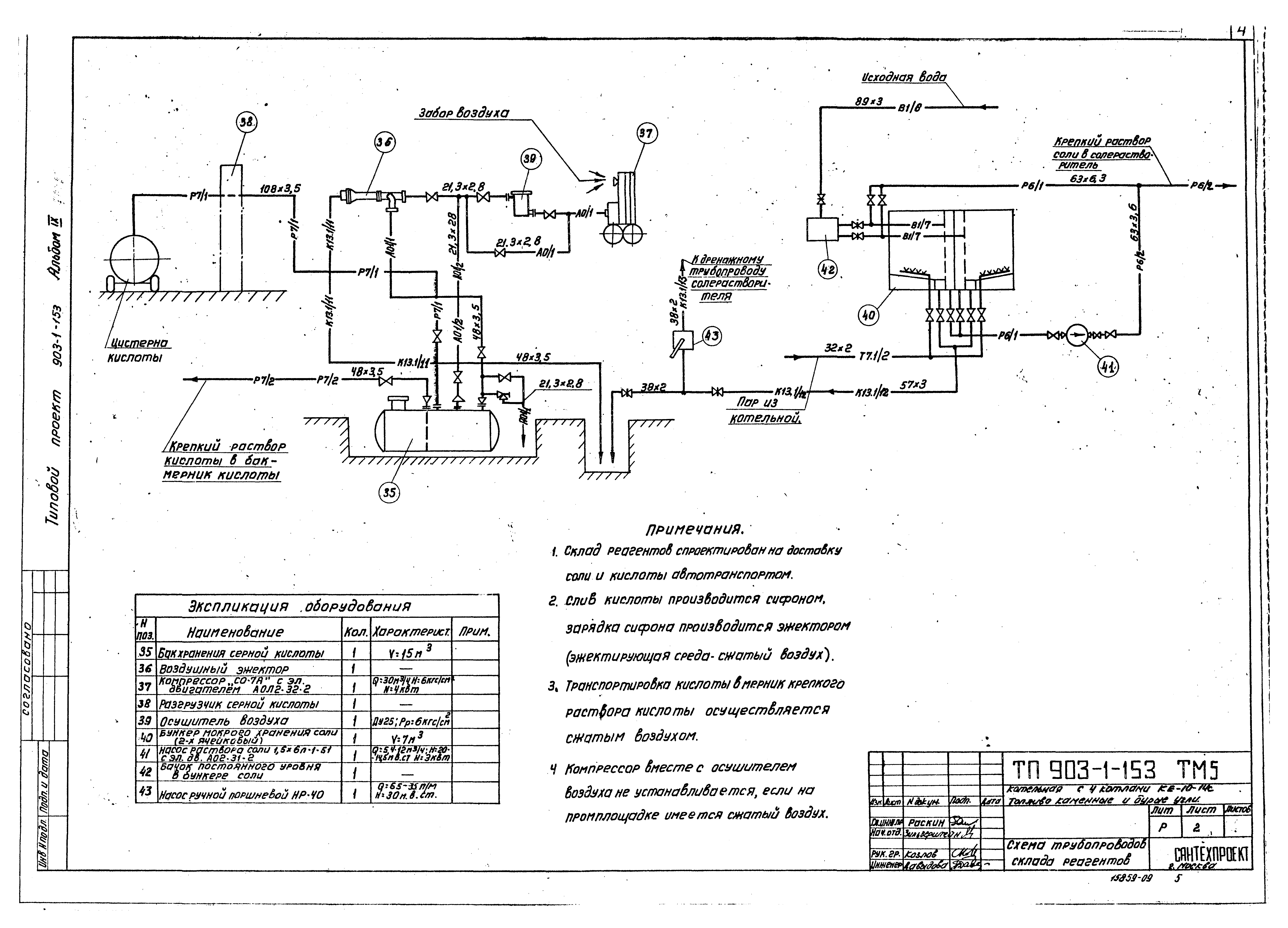
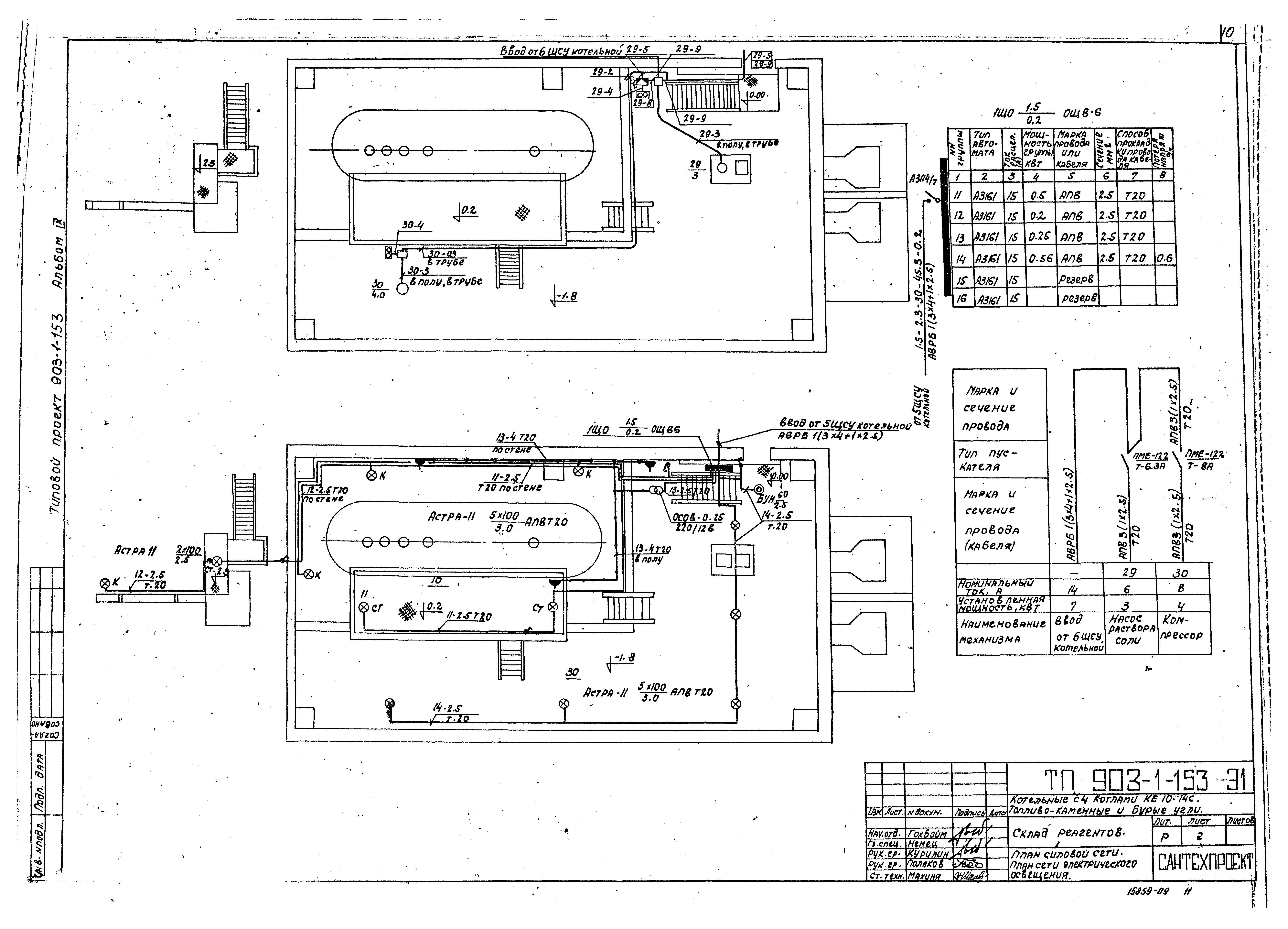
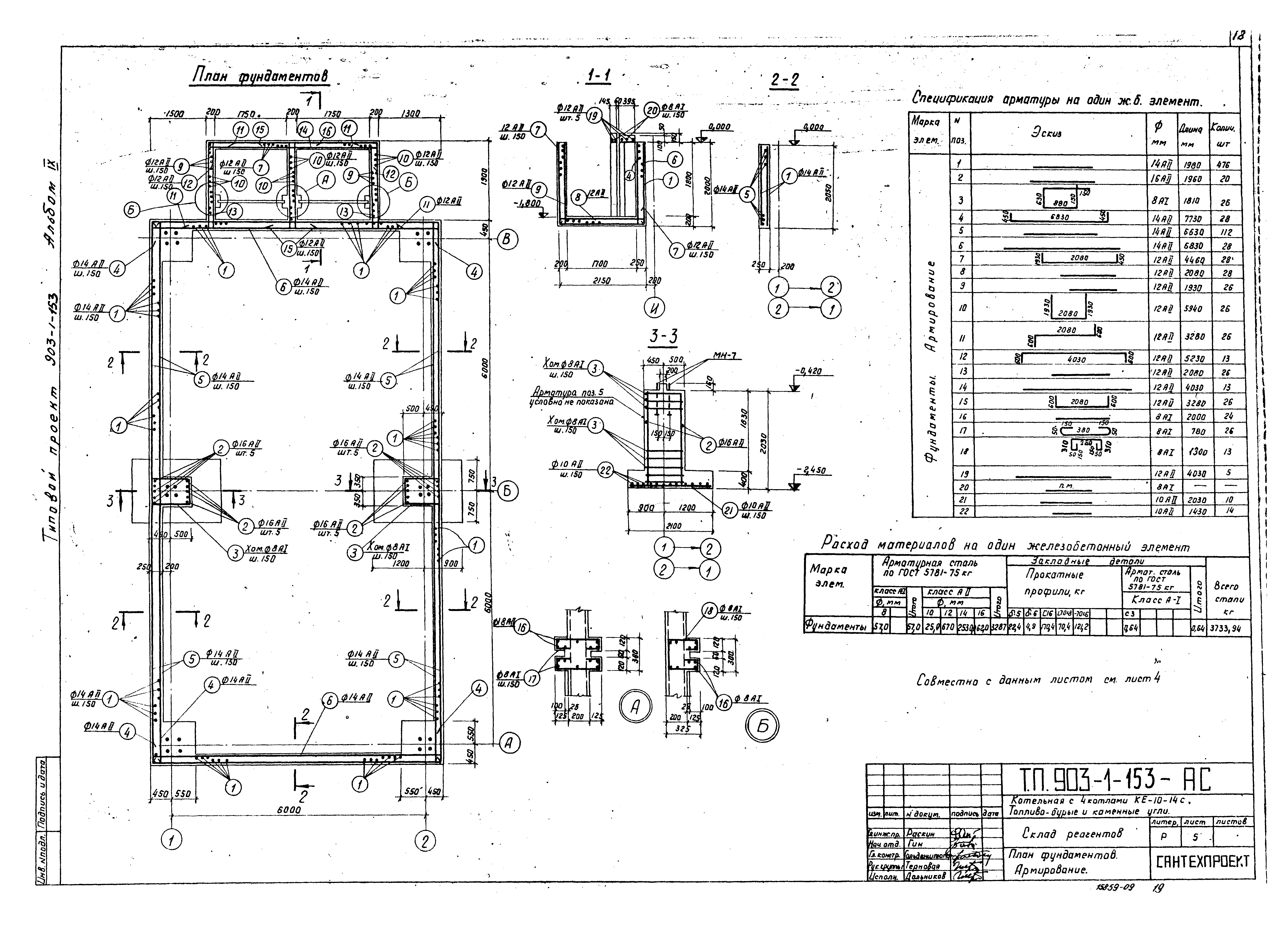
| Оглавление: | Тепломеханическая часть Общие данные Схема трубопроводов склада реагентов Трубопроводы склада реагентов Трубопроводы склада реагентов. Спецификация. Техномонтажная ведомость на изоляцию трубопроводов Трубопроводы склада реагентов. Спецификация Электротехническая часть Общие данные План силовой сети. План сети электрического освещения Насос раствора соли. Схемы принципиальные управления и подключения Ведомость электрооборудования, кабельных изделий и материалов, поставляемых заказчиком Уточненная ведомость изделий и материалов, поставляемых генподрядчиком и электромонтажной организацией Архитектурно-строительная часть Общие данные План на отм. - 1.800. Фасады. План полов и кровли План фундаментов. Опалубка План фундаментов. Армирование Монтажные схемы элементов каркаса Монтажные схемы стальных лестниц Канал от склада реагентов к котельной Изделие закладное МН-1, МН-2, МН-3. Колонная К-2 Изделие закладное МН-4, МН-5, МН-6, МН-7 Изделие соединительное МС-1, МС-2 Колонна К1, колонна К3 Отопление и вентиляция План на отм. 0.000. Схема отопления |
| Разработан: | ГПИ Сантехпроект Госстроя СССР Минтяжмаш СССР Союзпроммеханизация |
| Утверждён: | 23.03.1979 ГПИ Сантехпроект (46) |
| Заменяет собой: |
|
| Чем заменён: |


























