Скачать Типовой проект 903-1-158 Альбом X. Силовое электрооборудование и электроосвещение котельнойДата актуализации: 01.01.2021
|
| Обозначение: | Типовой проект 903-1-158 |
| Обозначение англ: | 903-1-158 |
| Статус: | заменен |
| Название рус.: | Альбом X. Силовое электрооборудование и электроосвещение котельной |
| Дата добавления в базу: | 01.09.2013 |
| Дата актуализации: | 01.01.2021 |
| Дата введения: | 15.04.1979 |
| Дата окончания срока действия: | 01.12.1987 |
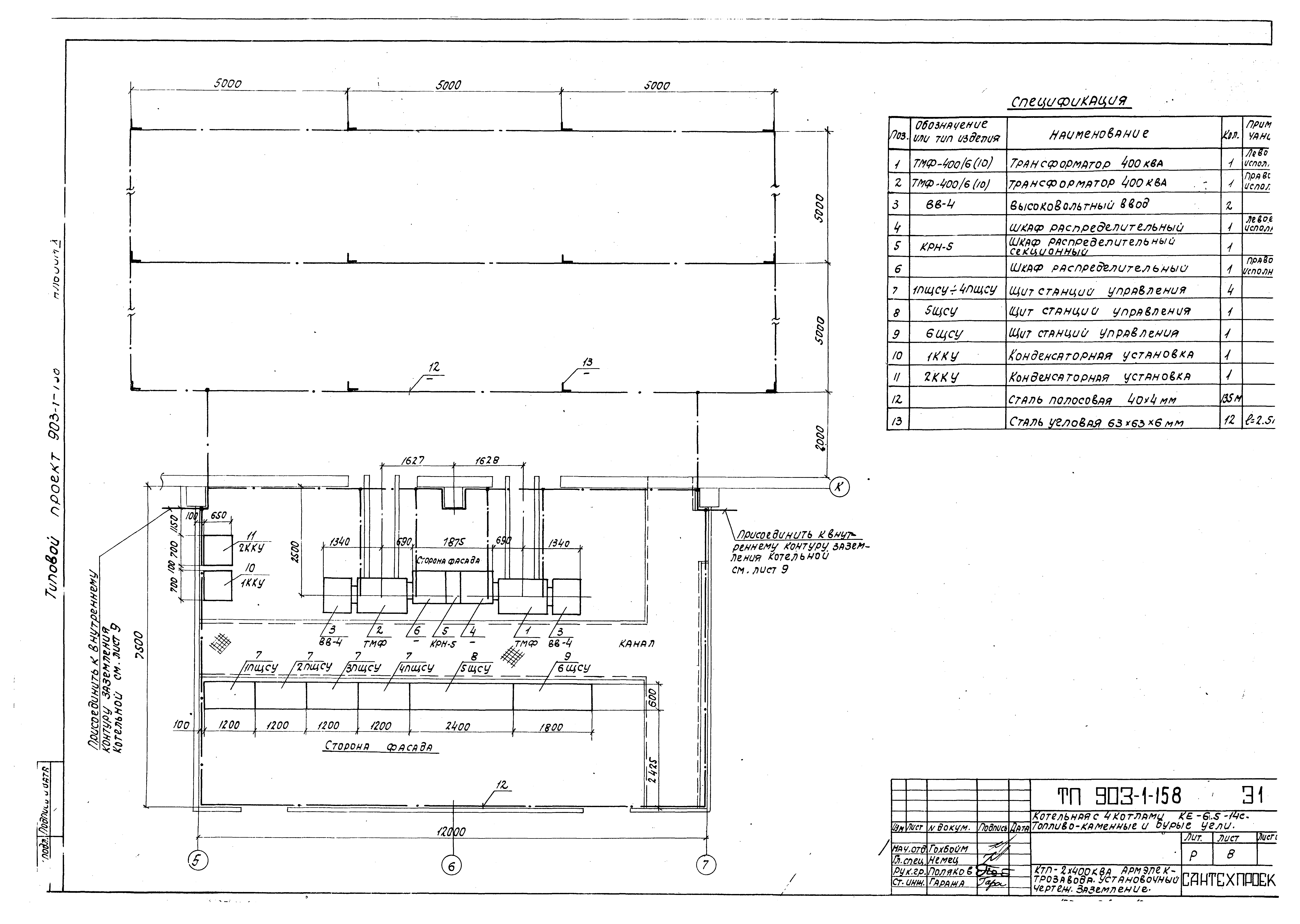
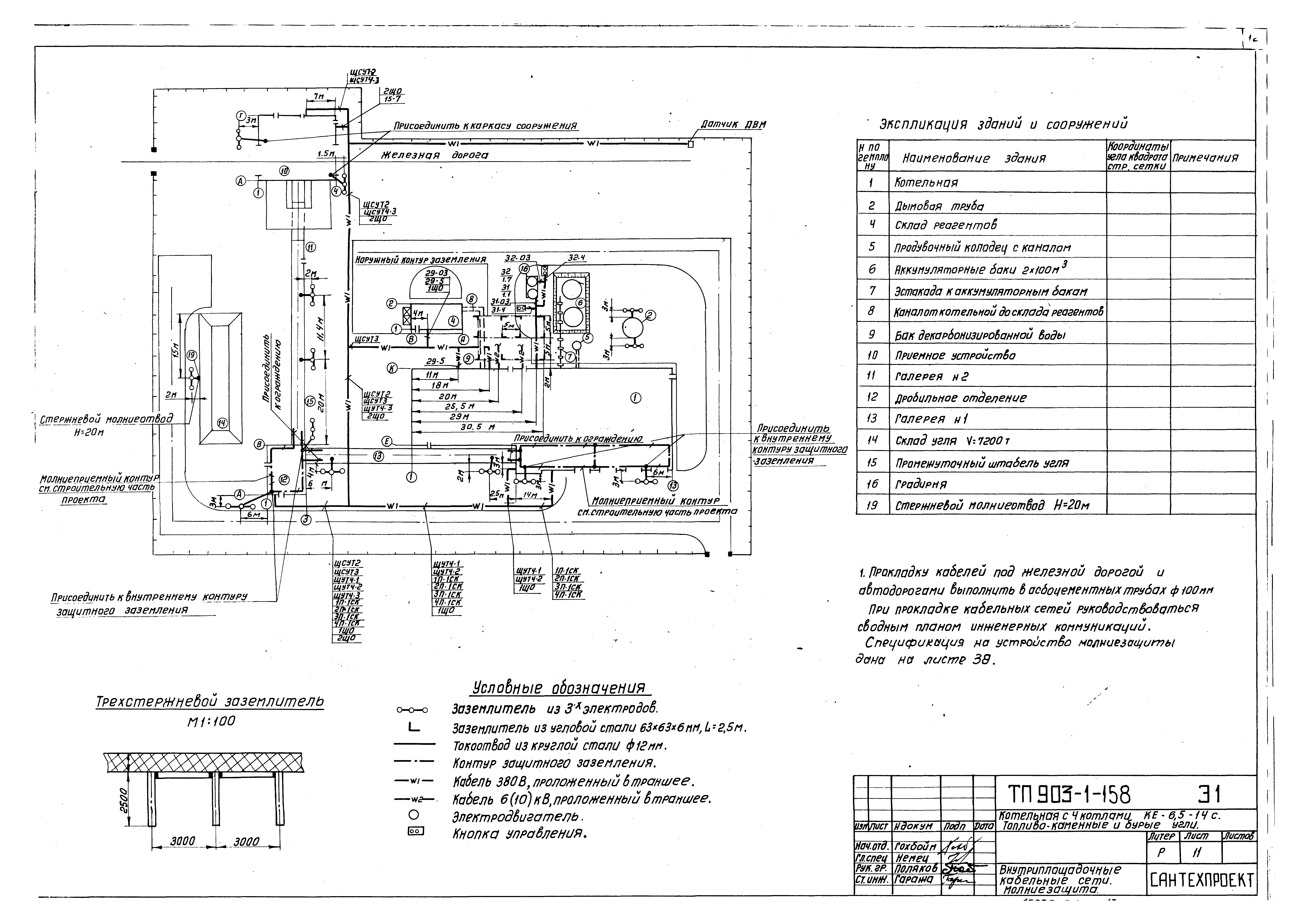
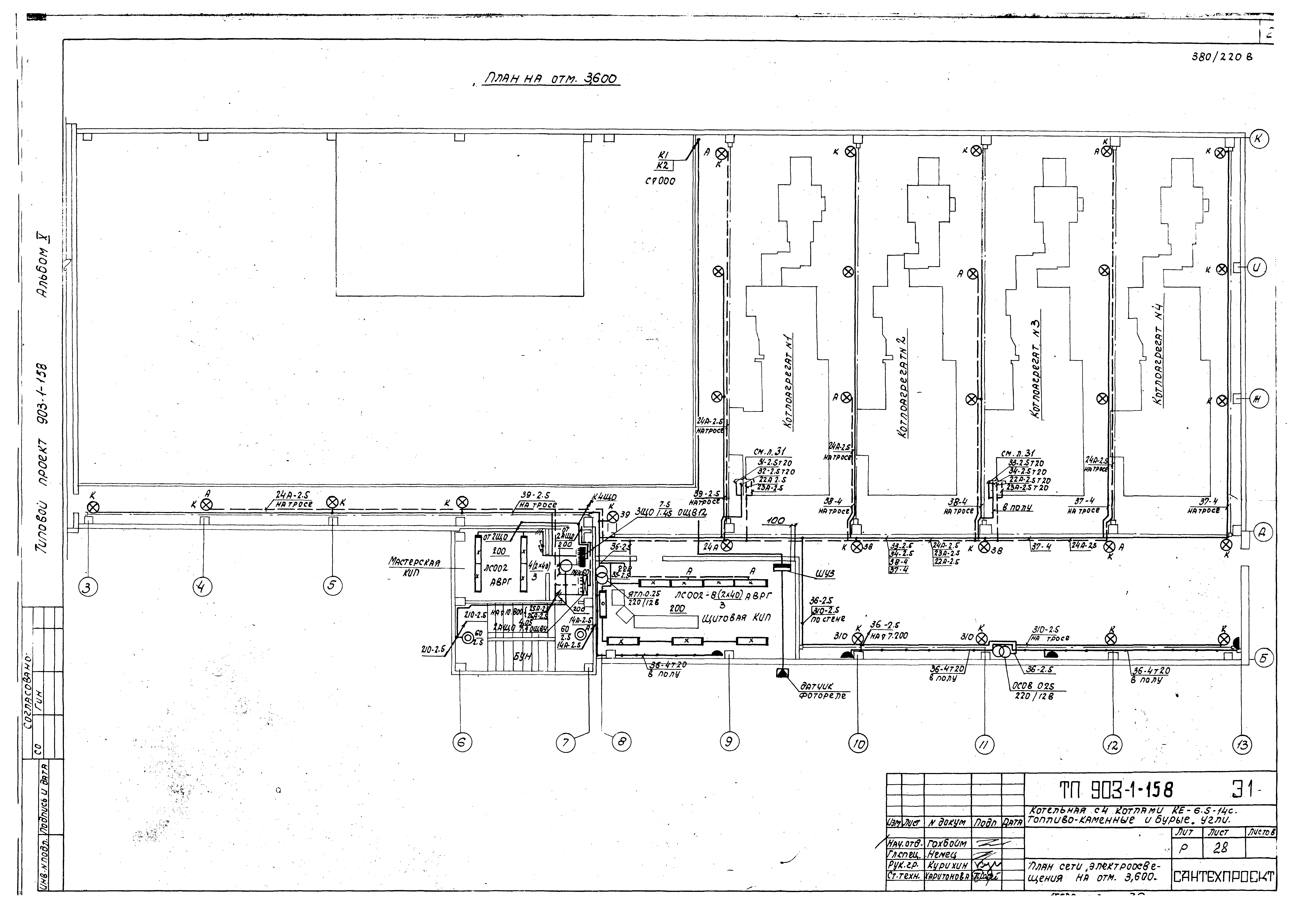
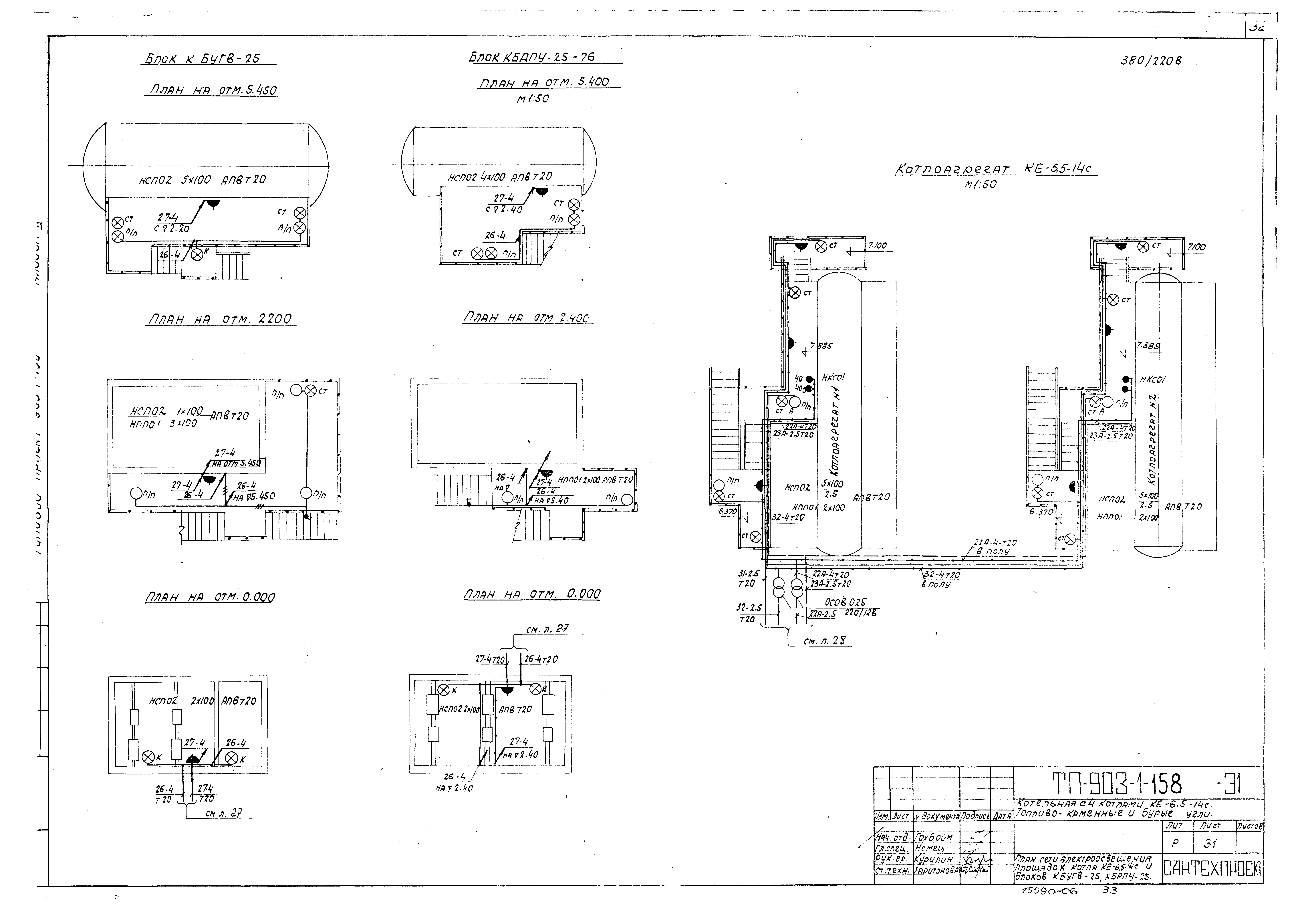
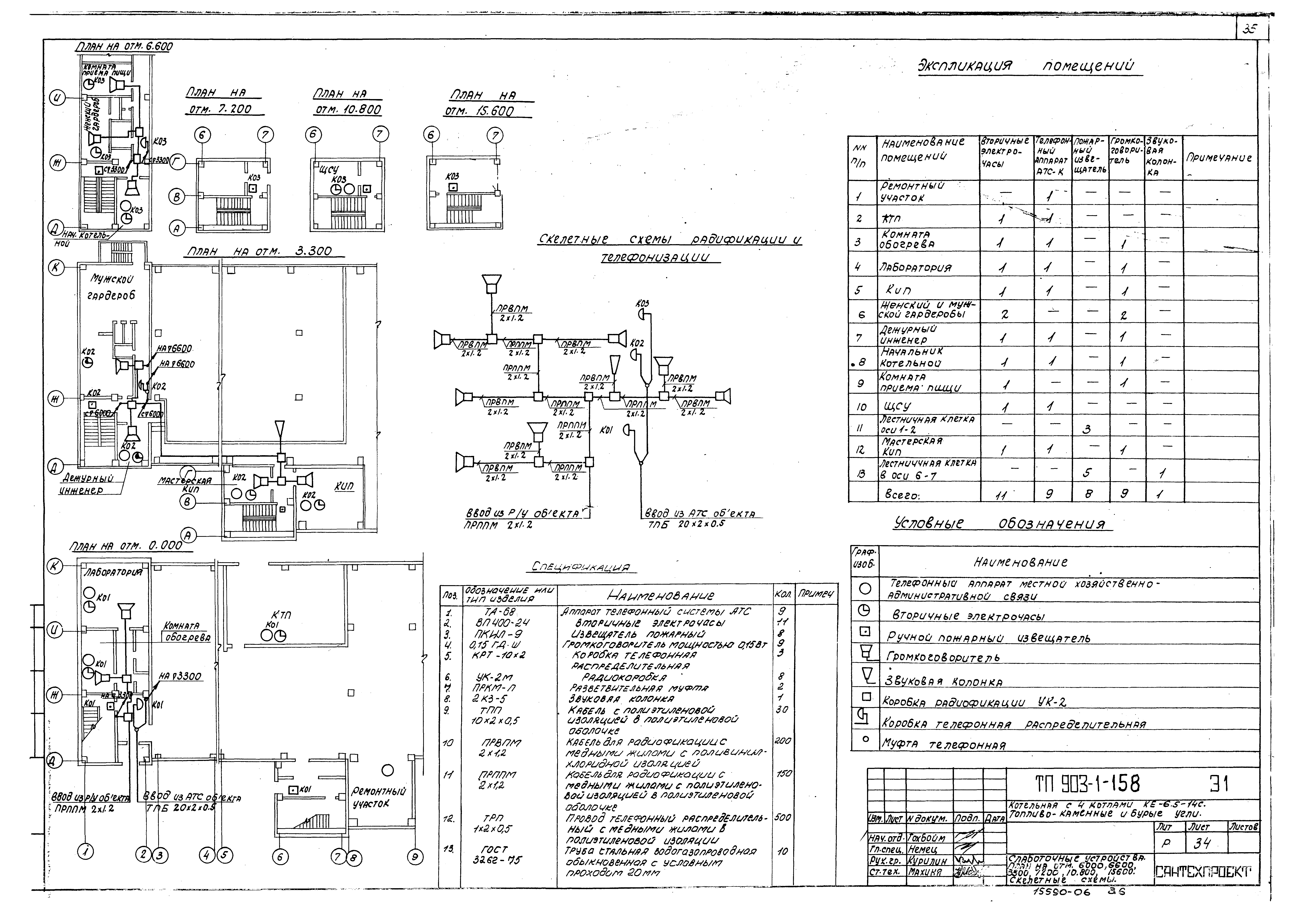
| Оглавление: | Общие данные Пояснительная записка Принципиальная однолинейная схема питающей сети КТП2х400 кВА Армэлектрозавода. Опросный лист для заказа Щит станций управления 1ПЩСУ (2ПЩСУ - 4ПЩСУ). Схема принципиальная однолинейная Щит станций управления 5ЩСУ. Схема принципиальная однолинейная Щит станций управления 6ЩСУ. Схема принципиальная однолинейная КТП2х400 кВА Армэлектрозавода. Установочный чертеж. Заземление План силовой сети на отм. 0.000 План силовой сети на отм. 0.000; 3.300; 3.600; 7.200 Внутриплощадочные кабельные сети. Молниезащита Кабельный журнал План раскладки труб План сети электроосвещения на отм. 0.000 в осях 3 - 13 План сети электроосвещения на отм. 3.600 План сети электроосвещения на отм. 0.000; 3.300; 6.600 в осях 1 - 2 План сети электроосвещения на отм. 7.200; 15.600 План сети электроосвещения площадок котла КЕ-6,5-14С и блоков КБУГВ-50, КБРПУ-50 План сети электроосвещения на отм. 10.800 и 11.400. Расчетная схема План сети наружного электроосвещения Слаботочные устройства. План на отм. 0.000; 6.600; 3.300; 7.200; 10.800; 15.600. Скелетные схемы Ведомость электрооборудования кабельных изделий и материалов, поставляемых заказчиком Уточненная ведомость изделий и материалов, поставляемых Генподрядчиком и электромонтажной организацией |
| Разработан: | ГПИ Сантехпроект Госстроя СССР Минтяжмаш СССР Союзпроммеханизация |
| Утверждён: | 23.03.1979 ГПИ Сантехпроект (46) |
| Заменяет собой: |
|
| Чем заменён: |








































