Скачать Типовой проект 903-1-158 Альбом XIII. Силовое электрооборудование и электроосвещение топливоподачи (из ТП 903-1-153)Дата актуализации: 01.01.2021
|
| Обозначение: | Типовой проект 903-1-158 |
| Обозначение англ: | 903-1-158 |
| Статус: | заменен |
| Название рус.: | Альбом XIII. Силовое электрооборудование и электроосвещение топливоподачи (из ТП 903-1-153) |
| Дата добавления в базу: | 01.09.2013 |
| Дата актуализации: | 01.01.2021 |
| Дата введения: | 15.04.1979 |
| Дата окончания срока действия: | 01.12.1987 |
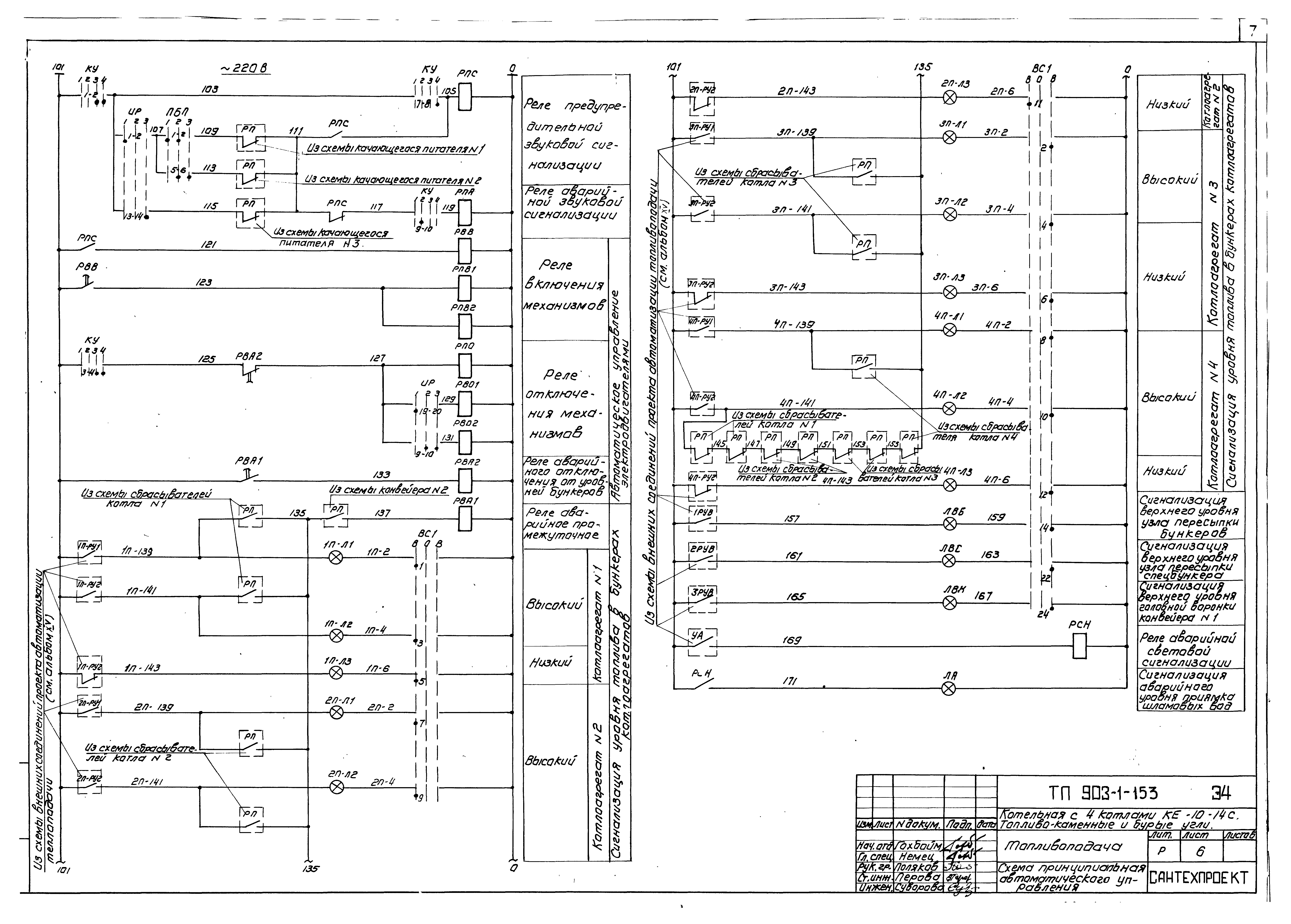
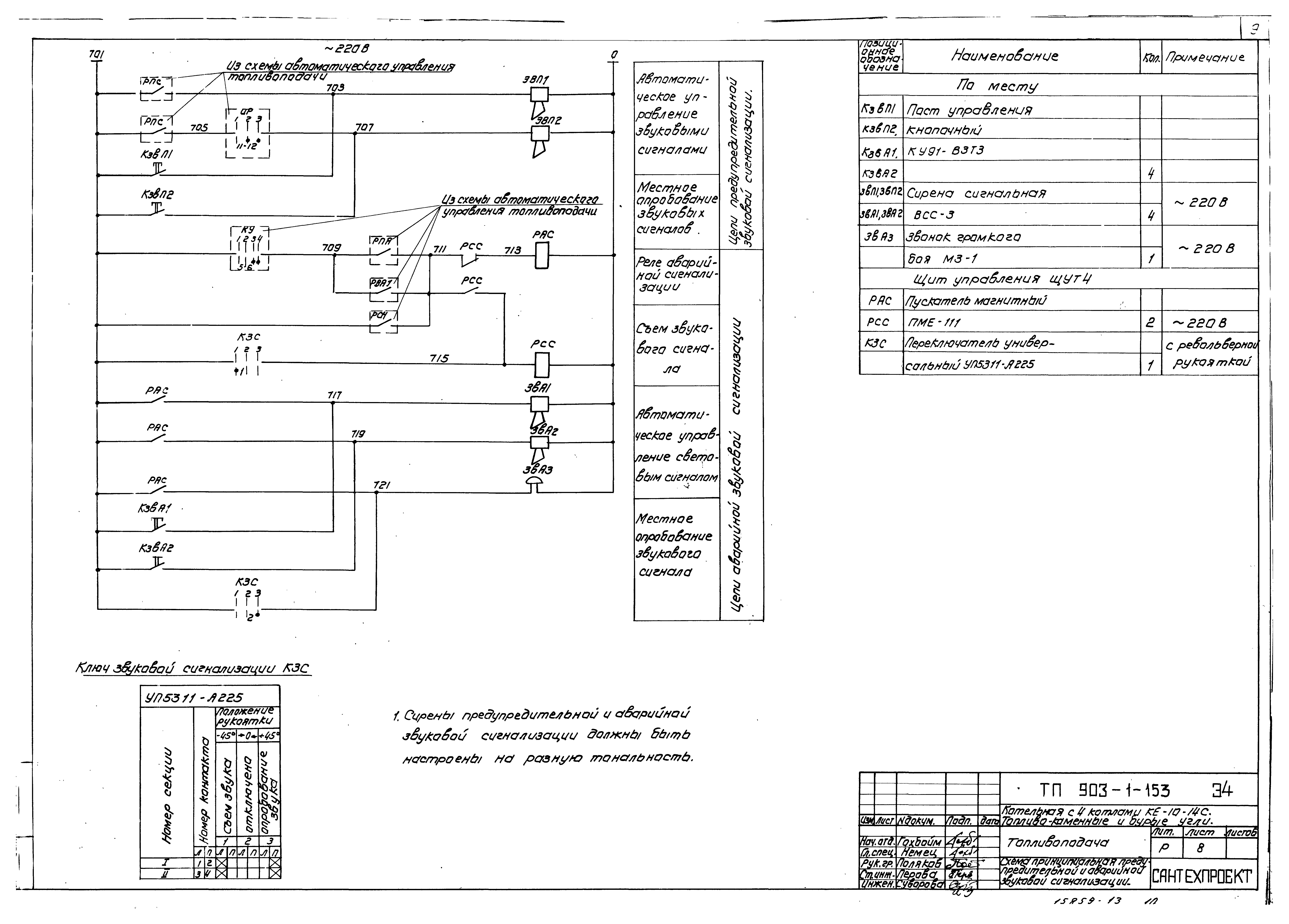
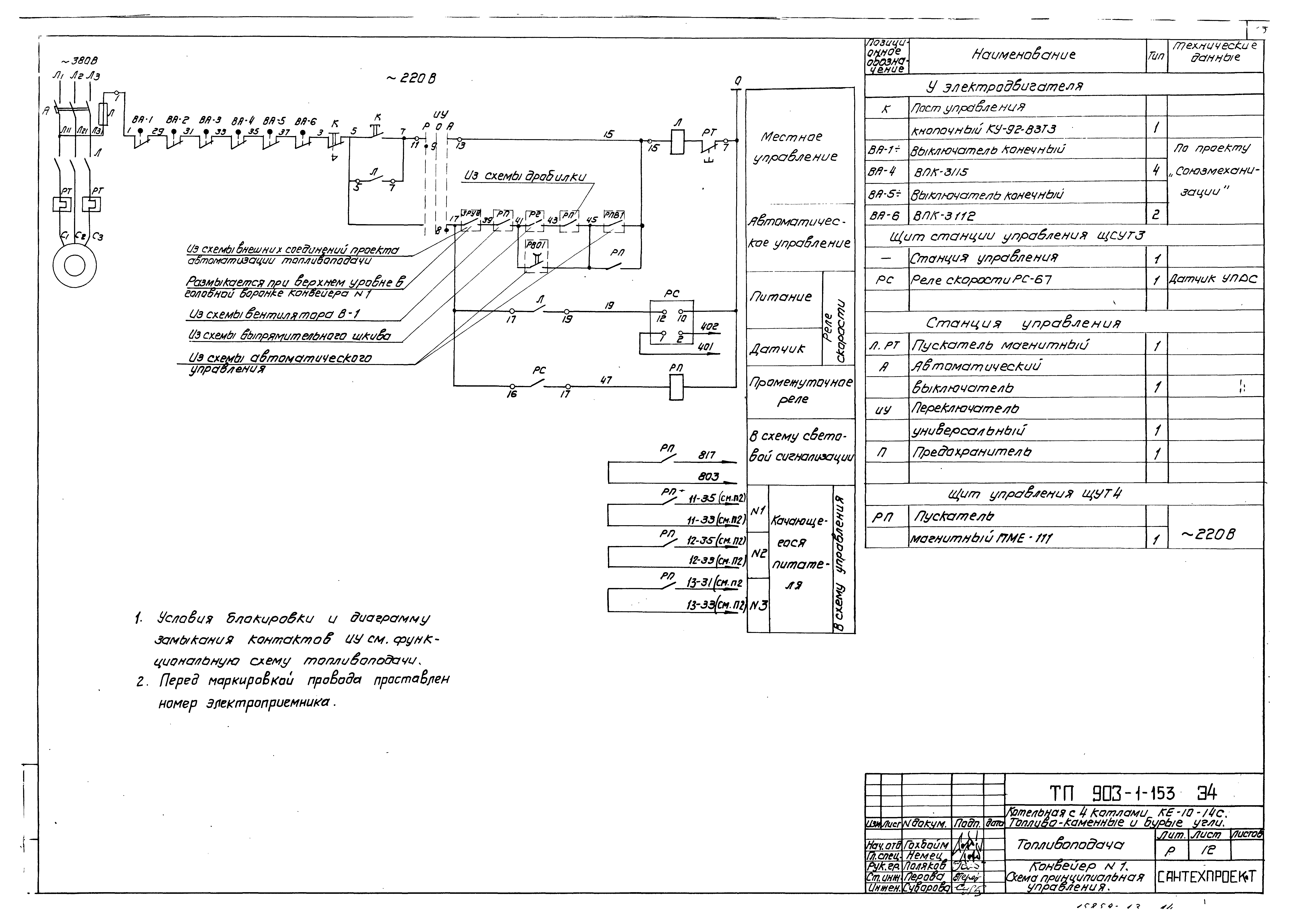
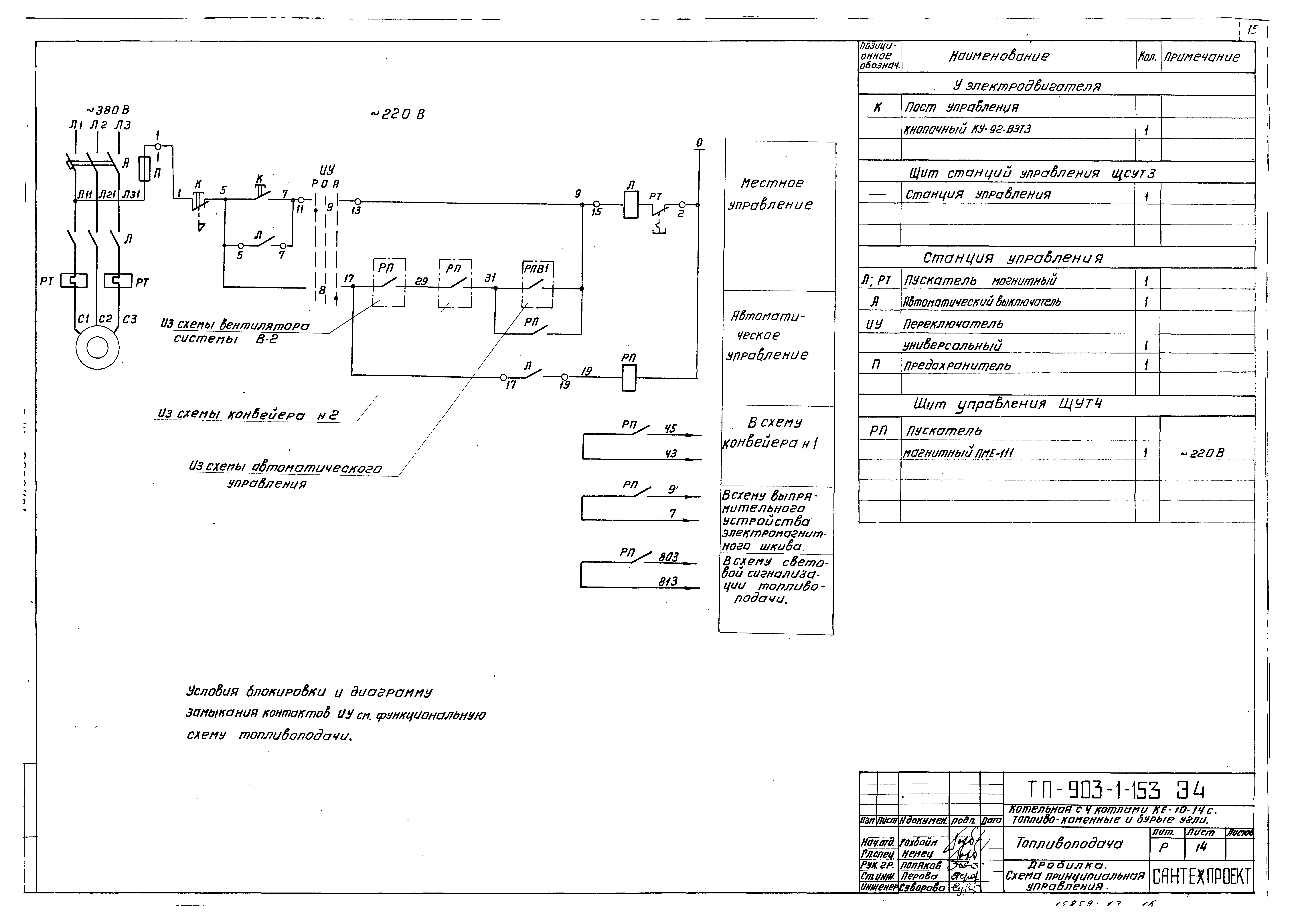
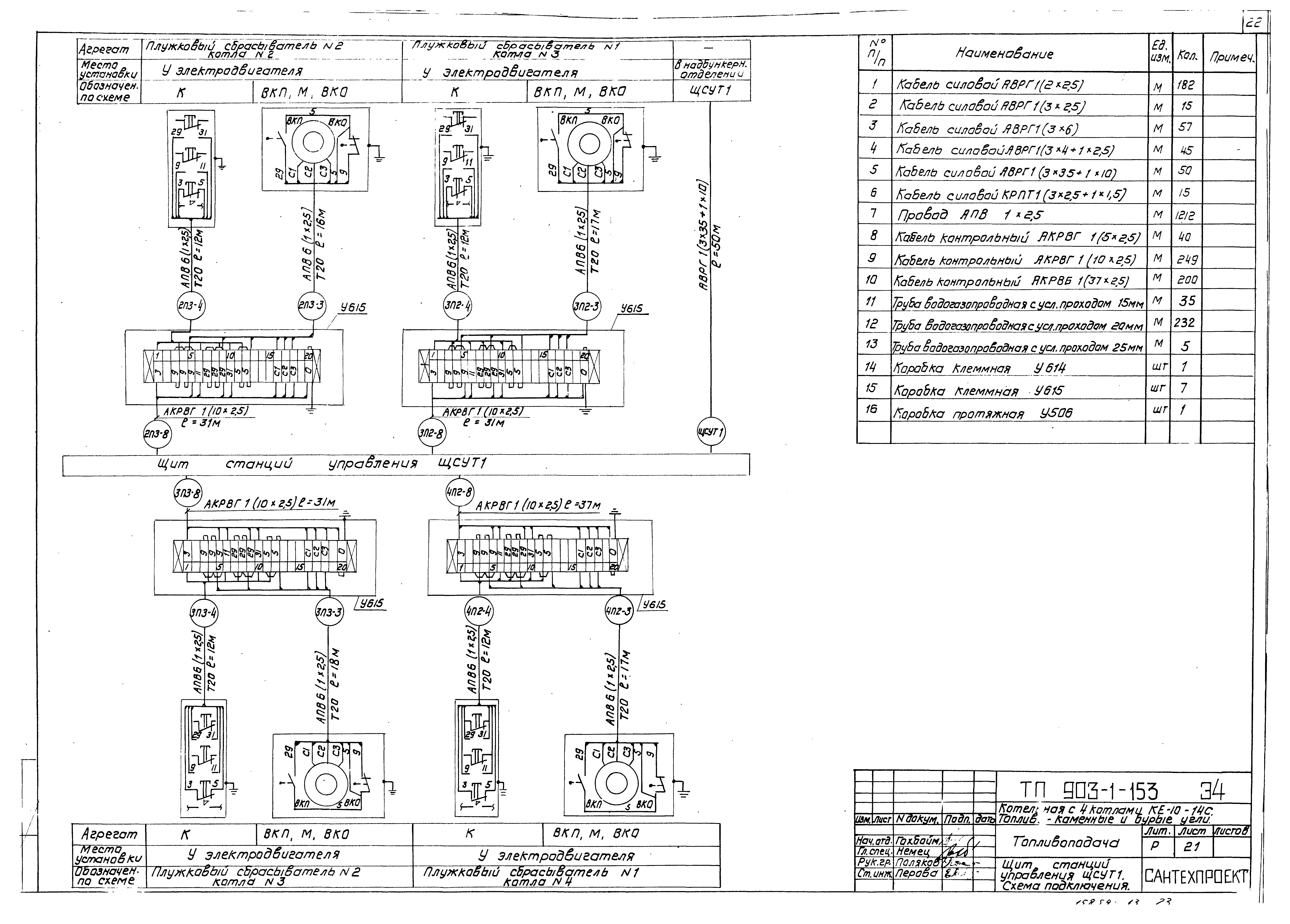
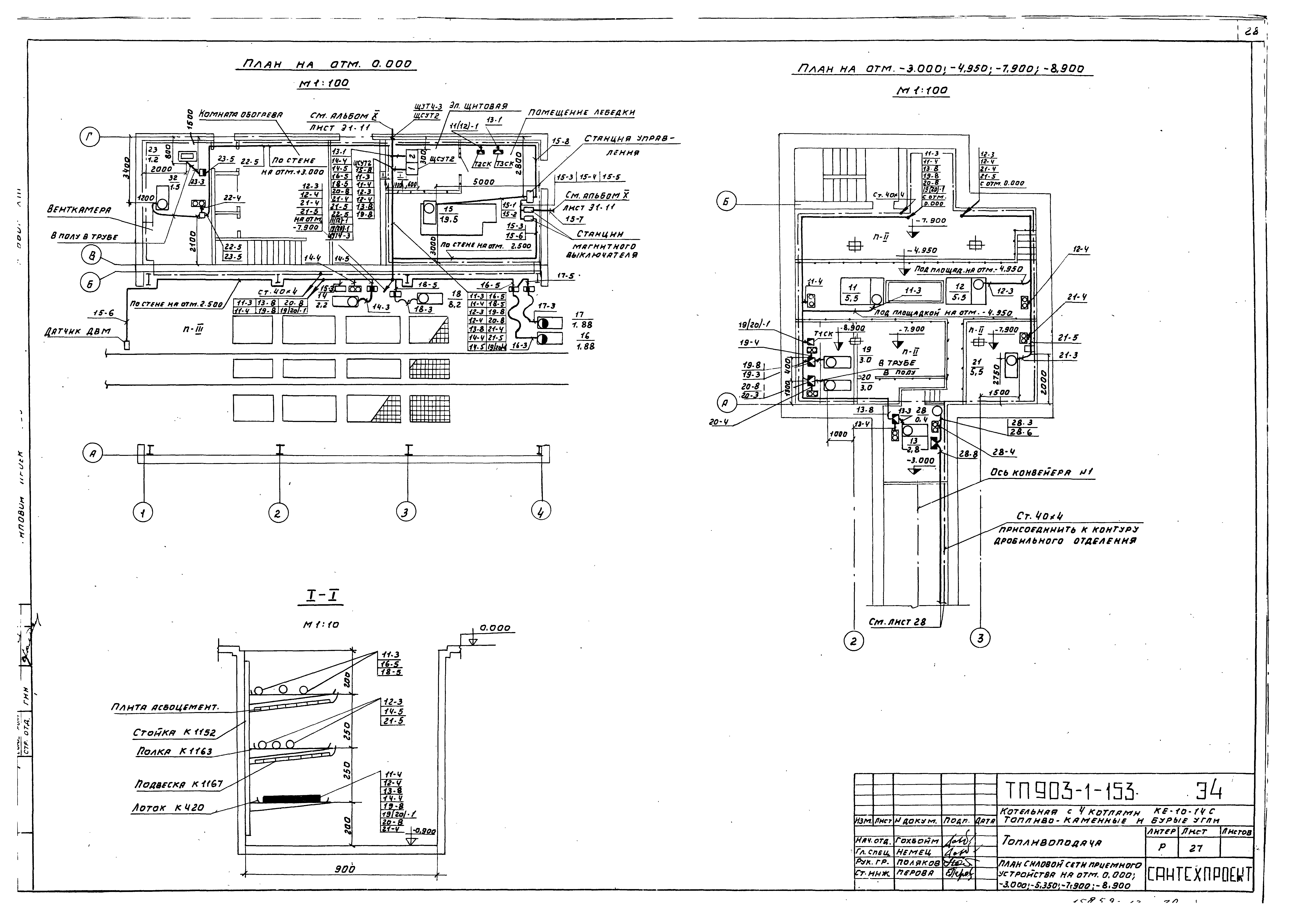
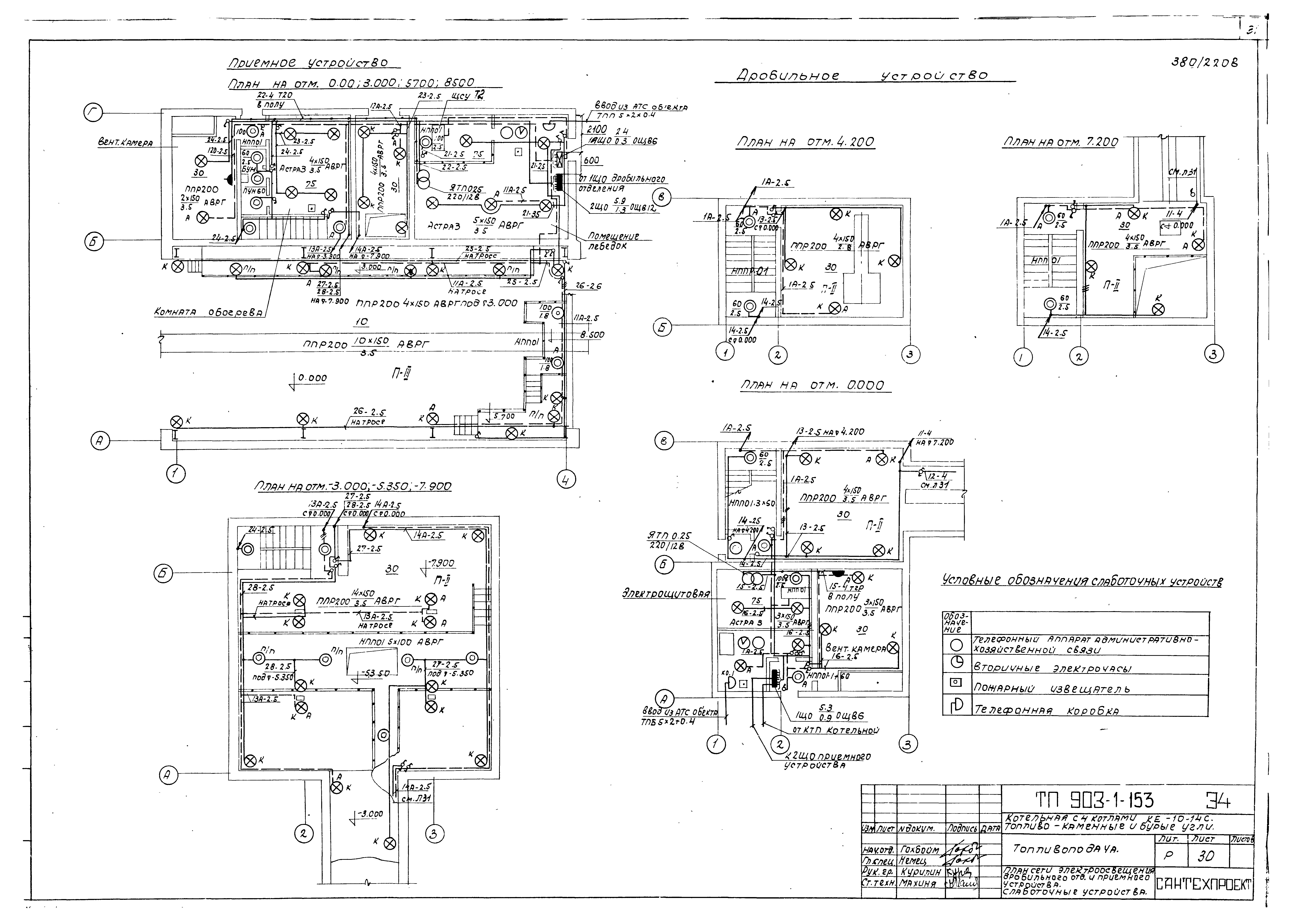
| Оглавление: | Общие данные Пояснительная записка Щиты станций управления ЩСУТ1, ЩСУТ2. Схемы принципиальные однолинейные Щит станций управления ЩСУТ3. Схема принципиальная однолинейная Схема функциональная Схема принципиальная автоматического управления Схема принципиальная предупредительной и аварийной звуковой сигнализации Схема принципиальная световой сигнализации Питатель качающийся №1 (№2). Схема принципиальная управления Питатель качающийся №3. Схема принципиальная управления Конвейер №1. Схема принципиальная управления Выпрямительное устройство для питания электромагнитного шкива. Схема принципиальная управления Дробилка. Схема принципиальная управления Конвейер №2. Схема принципиальная управления Плужковый сбрасыватель. Схема принципиальная управления Дренчерная завеса. Схемы принципиальная управления и подключения Вентилятор вытяжной В-1. Схема принципиальная управления Насос перекачки шламовых вод №1 (№2). Схема принципиальная управления Щит станций управления ЩСУТ1. Схема подключения Щит станций управления ЩСУТ2. Схема подключения Щит станций управления ЩСУТ3. Схема подключения Щит управления ЩУТ4. Схема подключения План силовой сети приемного устройства на отм. 0.000; - 3.000; - 5.350; - 7.900; - 8.900 План силовой сети дробильного отделения на отм. 0.000; 4.200; 7.200 План силовой сети надбункерного отделения на отм. 15.600 План сети электроосвещения дробильного отделения и приемного устройства. Слаботочные устройства План сети электроосвещения галереи №1, №2. Расчетная схема Ведомость электрооборудования, кабельных изделий и материалов, поставляемых заказчиком Уточненная ведомость изделий и материалов, поставляемых Генподрядчиком и электромонтажной организацией |
| Разработан: | ГПИ Сантехпроект Госстроя СССР Минтяжмаш СССР Союзпроммеханизация |
| Утверждён: | 23.03.1979 ГПИ Сантехпроект (46) |
| Заменяет собой: |
|
| Чем заменён: |



































