Скачать Типовой проект 501-0-47 Альбом I. Общестроительные чертежи тоннелей шириной 3,0; 4,0; 6,0; 2х3,0 и 2х4,0 мДата актуализации: 01.01.2021
|
| Обозначение: | Типовой проект 501-0-47 |
| Обозначение англ: | 501-0-47 |
| Статус: | справочные материалы, мп, тпр |
| Название рус.: | Альбом I. Общестроительные чертежи тоннелей шириной 3,0; 4,0; 6,0; 2х3,0 и 2х4,0 м |
| Дата добавления в базу: | 01.09.2013 |
| Дата актуализации: | 01.01.2021 |
| Дата окончания срока действия: | 01.06.1974 |
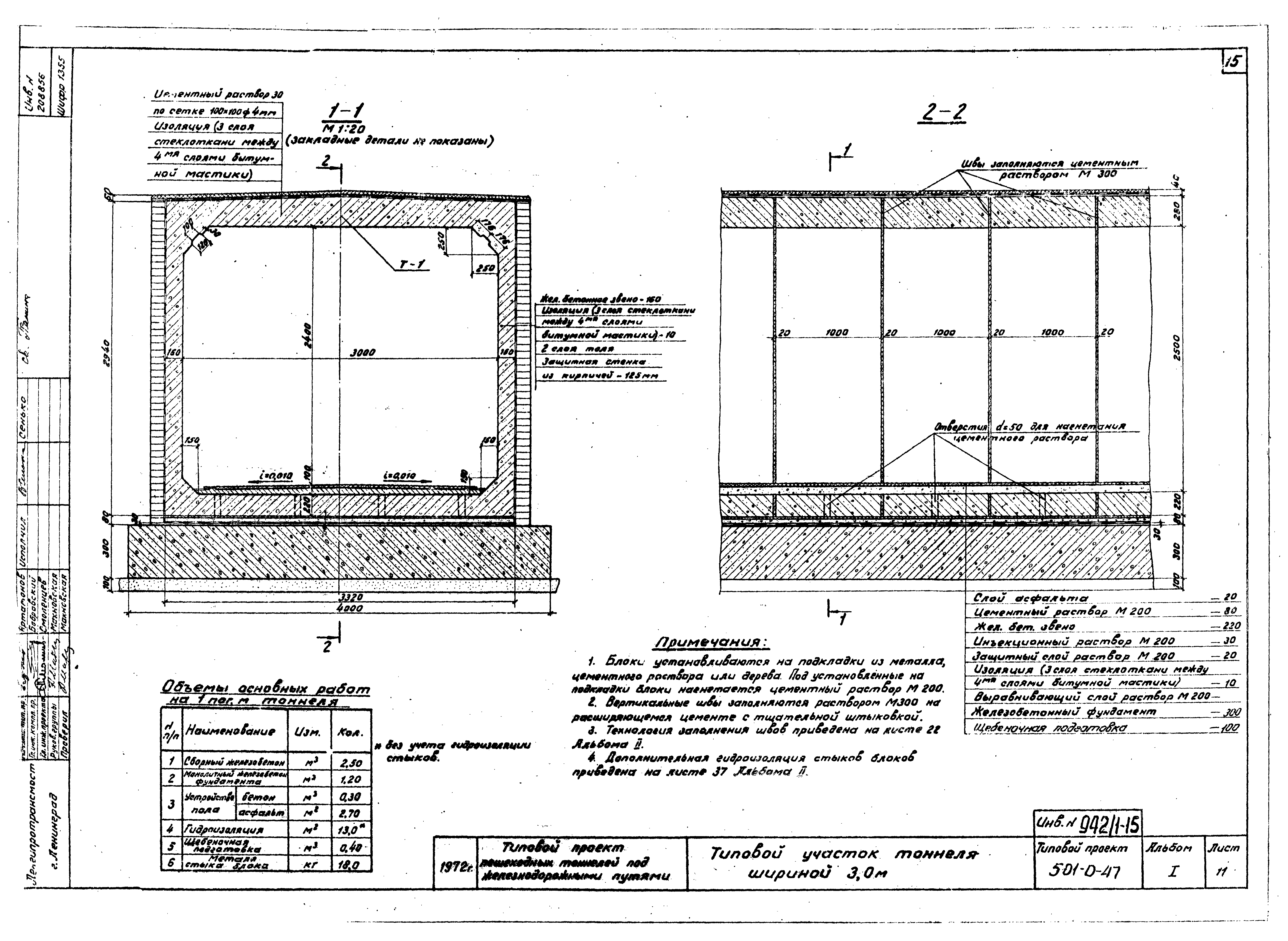
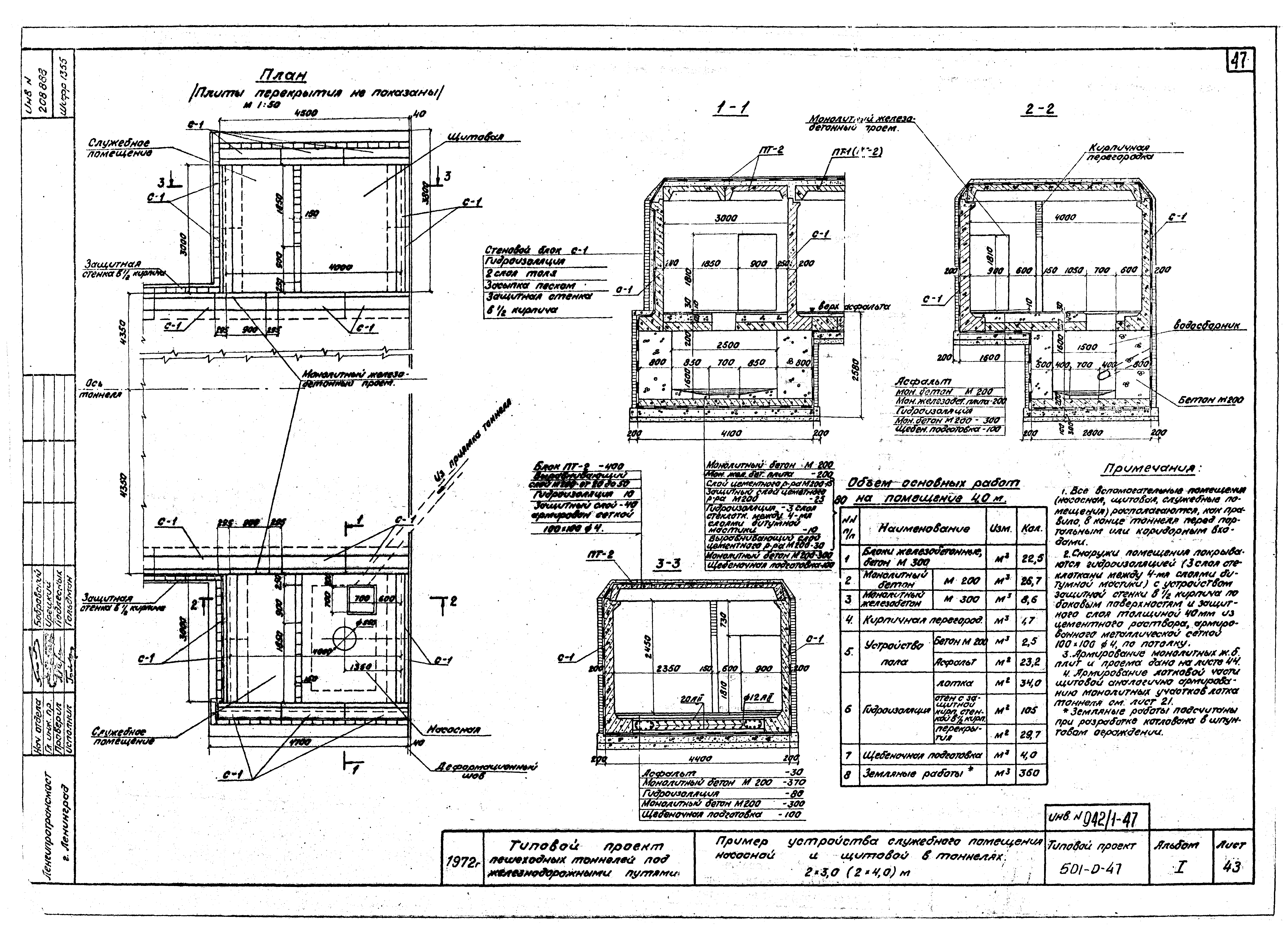
| Оглавление: | Пояснительная записка Типы и номенклатура блоков Общий вид тоннеля шириной 3,0 (4,0; 6,0 м). Пример компоновки Общий вид тоннеля шириной 2х3,0; 2х4,0. Пример компоновки Типовой участок тоннеля шириной 3,0 м Типовой участок тоннеля шириной 4,0 м Типовой участок тоннеля шириной 6,0 м Типовой участок тоннеля шириной 3,0; 4,0; 6,0 м с усиленной изоляцией Типовой участок тоннеля шириной 2х3,0 м Типовой участок тоннеля шириной 2х4,0 м Типовой участок тоннеля шириной 2х3,0 м с усиленной изоляцией Типовой участок тоннеля шириной 2х4,0 м с усиленной изоляцией Схема раскладки блоков тоннеля шириной 2х3,0 м Схема раскладки блоков тоннеля шириной 2х4,0 м Армирование монолитных участков лотка тоннеля шириной 2х3,0 (2х4,0 м) Стыки сопряжений элементов тоннеля Основные схемы сопряжений входов с тоннелями Сопряжение концевых входов шириной 2,0 м с тоннелями 3,0 и 4,0 м. Схема 1 Сопряжение концевого входа шириной 3,0 м с тоннелями 3,0 и 4,0 м. Схема 2 Сопряжение концевых входов шириной 3,0 м с тоннелями 6,0 м. Схема 3 Сопряжение концевого входа шириной 4,0 м с тоннелями 4,0 м. Схема 4 Сопряжение промежуточных входов шириной 2,0 м с тоннелями 4,0 м. Схема 5 Сопряжение промежуточных входов шириной 3,0 м с тоннелями 4,0 м. Схема 6 Сопряжение промежуточного входа шириной 4,0 м с тоннелями 6,0 м. Схема 7 Сопряжение входов с тоннелями. Армирование монолитных участков стен Сопряжение концевого входа 2х3,0 м с тоннелем 2х3,0 м. Схема 9 Сопряжение концевого входа 2х4,0 м с тоннелем 2х4,0 м. Схема 10 Сопряжение промежуточного входа 2х3,0 м с тоннелем 2х3,0 м. Схема 11 Сопряжение промежуточного входа 2х4,0 м с тоннелем 2х4,0 м. Схема 12 Сопряжение промежуточного входа 3,0 м с тоннелем 2х3,0 м. Схема 13 Сопряжение промежуточного входа 4,0 м с тоннелем 2х4,0 м. Схема 14 Узлы сопряжений элементов тоннеля 2х3,0 (2х4,0) м Примеры сопряжений входов с платформами Пример устройства служебного помещения насосной и щитовой в тоннелях 3,0; 4,0 и 6,0 м Пример устройства служебного помещения насосной и щитовой в тоннелях 2х3,0 м (2х4,0 м) Армирование монолитных участков насосной и щитовой в тоннелях 2х3,0 м (2х4,0 м) Армирование фундаментов типовых участков тоннелей шириной 3,0; 4,0 и 6,0 м Армирование фундаментов типовых участков тоннелей шириной 3,0; 4,0 и 6,0 м. Спецификация Армирование фундаментов типовых участков тоннелей шириной 2х3,0 и 2х4,0 м Армирование фундаментов типовых участков тоннелей шириной 2х3,0 и 2х4,0 м. Спецификация Схема монтажа продольной части тоннеля шириной 3,0; 4,0 и 6,0 м Схема монтажа продольной части тоннеля шириной 2х3,0 и 2х4,0 м Схема монтажа концевых и промежуточных входов тоннелей шириной 3,0 и 4,0 м Схема монтажа промежуточных входов тоннелей шириной 2х3,0 и 2х4,0 м. График закрытия пути Расчетный лист панелей шириной 3,0; 4,0 и 6,0; 2х3,0 и 2х4,0 м Расчетный лист. Подбор сечений элементов тоннелей шириной 3,0; 4,0 и 6,0 м Расчетный лист. Подбор сечений элементов тоннелей шириной 2х3,0 и 2х4,0 м Расчетный лист. Подбор сечений фундаментов |
| Разработан: | Ленгипротрансмост |
| Утверждён: | 28.01.1974 МПС (Ministry of Railroads П-2538) |




























































