Скачать Типовой проект 501-0-47 Альбом II. Входы для тоннелей шириной 3,0; 4,0; 6,0; 2х3,0 и 2х4,0 м. Детали тоннелей и входовДата актуализации: 01.01.2021
|
| Обозначение: | Типовой проект 501-0-47 |
| Обозначение англ: | 501-0-47 |
| Статус: | справочные материалы, мп, тпр |
| Название рус.: | Альбом II. Входы для тоннелей шириной 3,0; 4,0; 6,0; 2х3,0 и 2х4,0 м. Детали тоннелей и входов |
| Дата добавления в базу: | 01.09.2013 |
| Дата актуализации: | 01.01.2021 |
| Дата окончания срока действия: | 01.06.1974 |
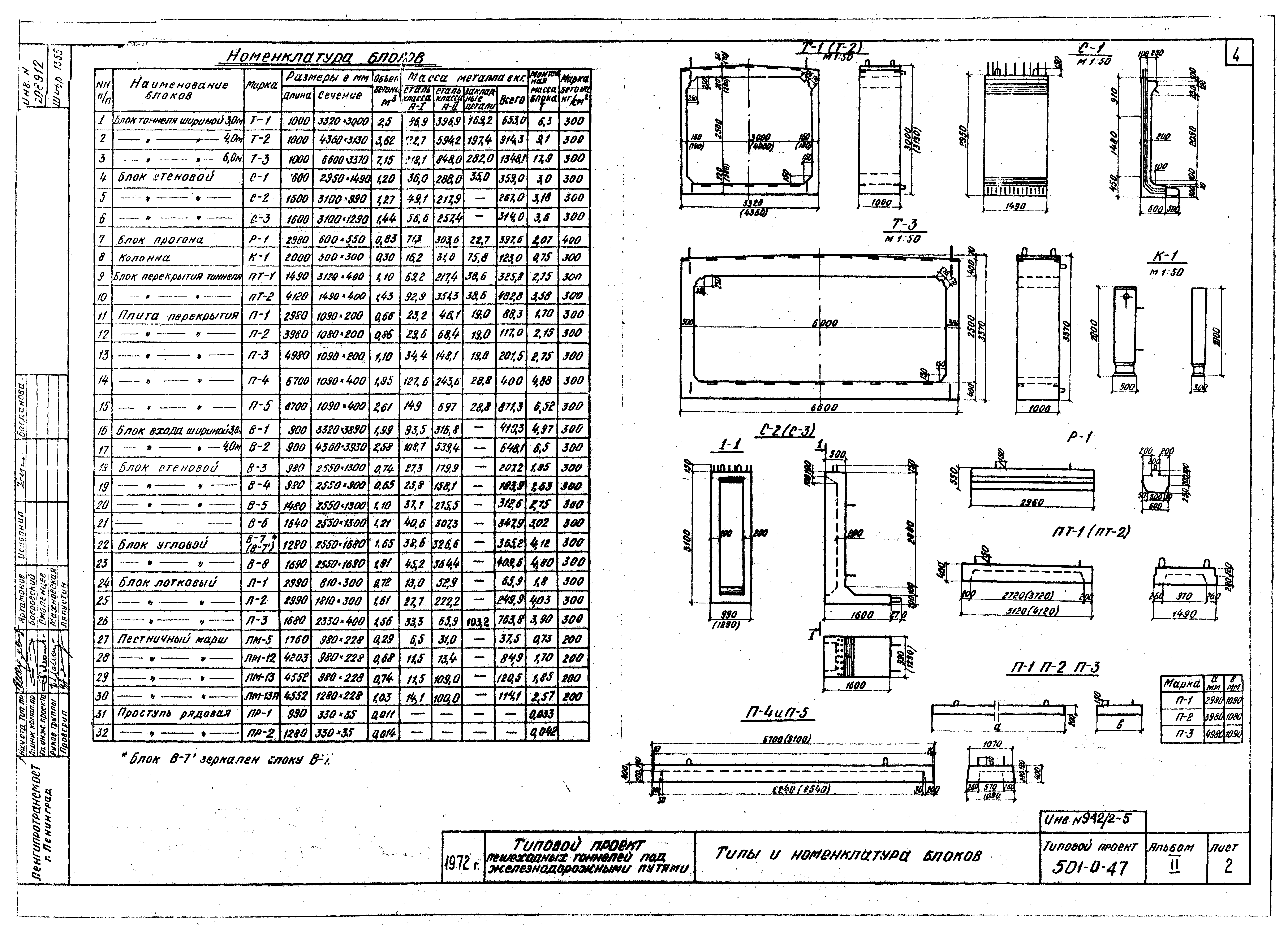
| Оглавление: | Пояснительная записка Типы и номенклатура блоков Вход шириной 2,0 м с низкой платформы Вход шириной 2,0 м с высокой платформы Вход шириной 3,0 м с низкой платформы Вход шириной 3,0 м с высокой платформы Вход шириной 4,0 м с низкой платформы Вход шириной 4,0 м с высокой платформы Вход шириной 2,0 м с низкой платформы. Армирование монолитных участков стен Вход шириной 2,0 м с низкой и высокой платформ. Монолитный участок входа Вход шириной 2,0 м с высокой платформы. Армирование монолитных участков стен Входы шириной 3,0 м и 4,0 м с низкой и высокой платформ. Армирование монолитных участков стен Входы шириной 2,0 м; 3,0 м; 4,0 м. Армирование монолитных участков лотков Портальный вход шириной 3,0 м; 4,0 м; 6,0 м Портальный вход для тоннеля шириной 2х3,0 м Портальный вход для тоннеля шириной 2х4,0 м Портальные входы шириной 2х3,0 м и 2х4,0 м. Армирование монолитных участков Коридорный вход шириной 3,0 м; 4,0 м; 6,0 м Коридорный вход для тоннеля шириной 2х3,0 м Коридорный вход для тоннеля шириной 2х4,0 м Коридорные входы. Армирование монолитных участков стен и кордона Армирование монолитных участков стен коридорных входов. Узлы опирания лестниц Приямок шириной 0,5 м Приямок шириной 1,0 м Армирование колодцев Решетка 500х500 Деформационные швы. Пример Деформационный шов при усиленной изоляции Пример раскладки оклеечной гидроизоляции тоннеля и входов Пример раскладки гидроизоляции на входах Изоляция стыков блоков Усиленная гидроизоляция тоннеля и входов. Детали Пример конструкции изоляции приямка шириной 0,5 м Пример конструкции усиленной изоляции приямка шириной 0,5 м Пример облицовки стен тоннеля Пример облицовки входа и колонн Перильное ограждение открытых входов Перильное ограждение открытых входов. Армирование стенок Вход шириной 3,0 м. Армирование парапета Пандусы для детских колясок. Общий вид Пандусы для детских колясок. Детали Поручень лестницы. Общий вид и детали Монолитные участки лестниц. Укладка проступей Входы шириной 2,0; 3,0 и 4,0 м с высокой и низкой платформ. Закладные детали |
| Разработан: | Ленгипротрансмост |
| Утверждён: | 28.01.1974 МПС (Ministry of Railroads П-2538) |




















































