Скачать Типовой проект 501-0-47 Альбом III. Блоки заводского изготовления для тоннелей шириной 3,0; 4,0; 6,0; 2х3,0; 2х4,0 мДата актуализации: 01.01.2021
|
| Обозначение: | Типовой проект 501-0-47 |
| Обозначение англ: | 501-0-47 |
| Статус: | справочные материалы, мп, тпр |
| Название рус.: | Альбом III. Блоки заводского изготовления для тоннелей шириной 3,0; 4,0; 6,0; 2х3,0; 2х4,0 м |
| Дата добавления в базу: | 01.09.2013 |
| Дата актуализации: | 01.01.2021 |
| Дата окончания срока действия: | 01.06.1974 |
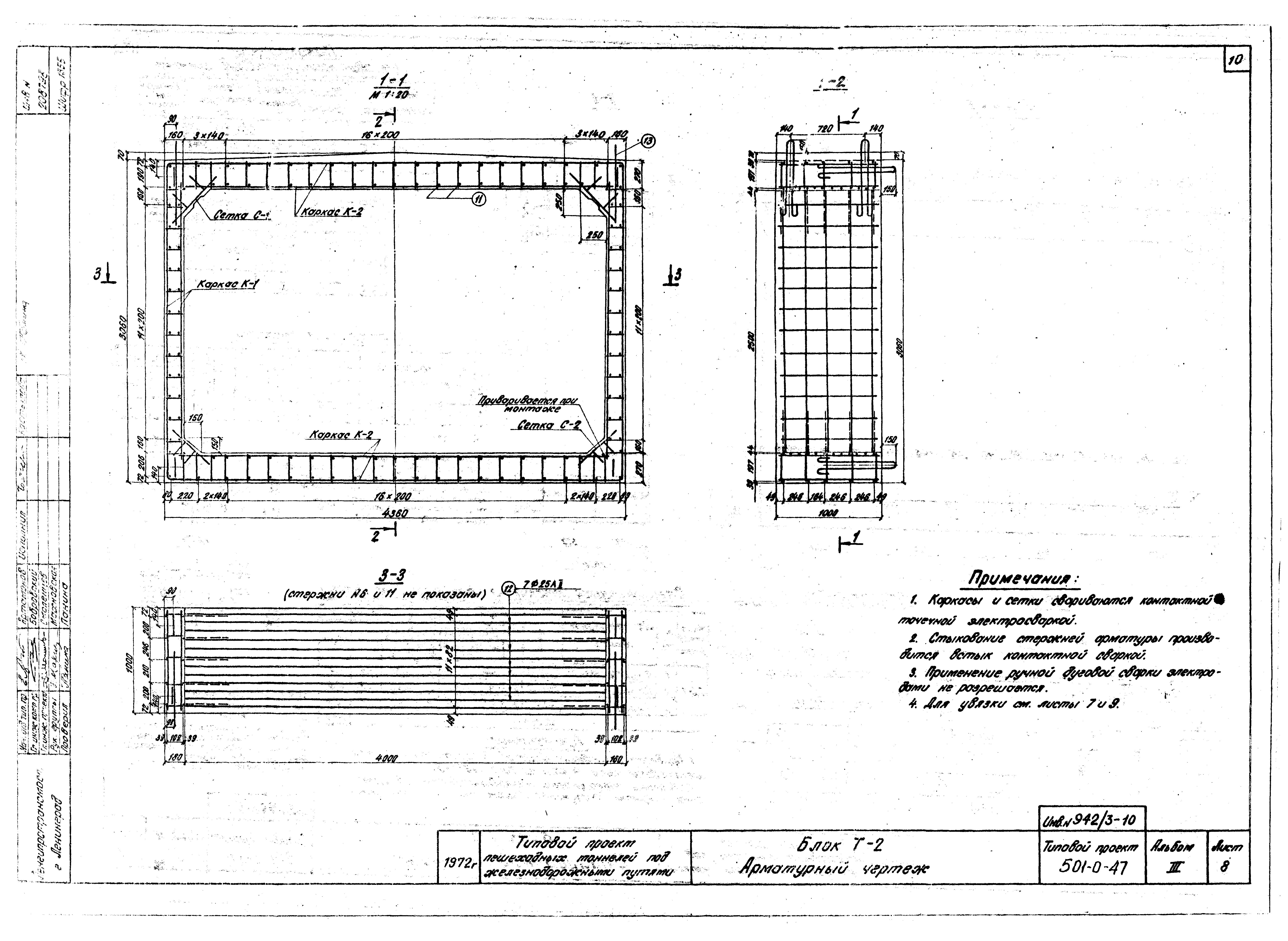
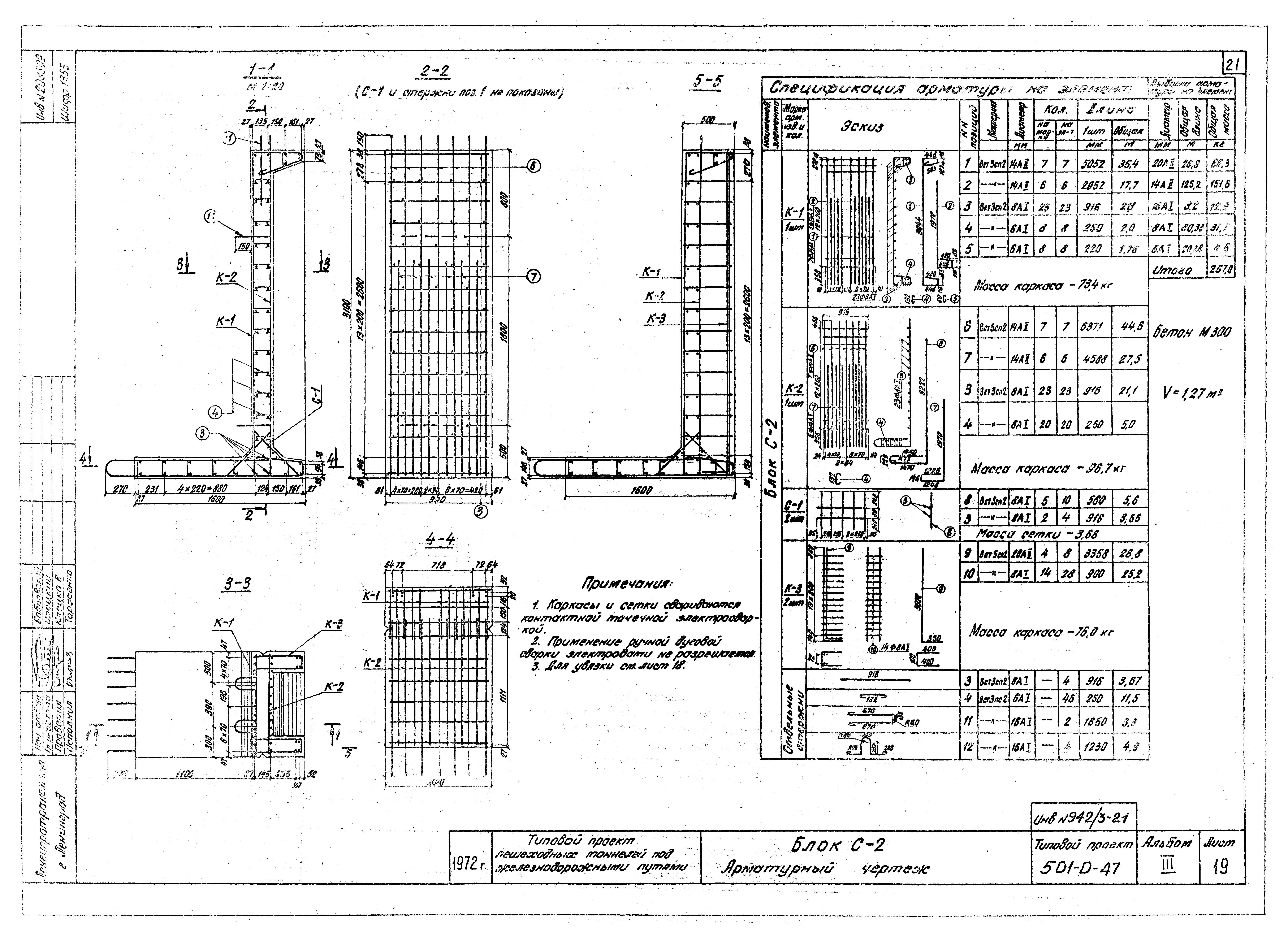
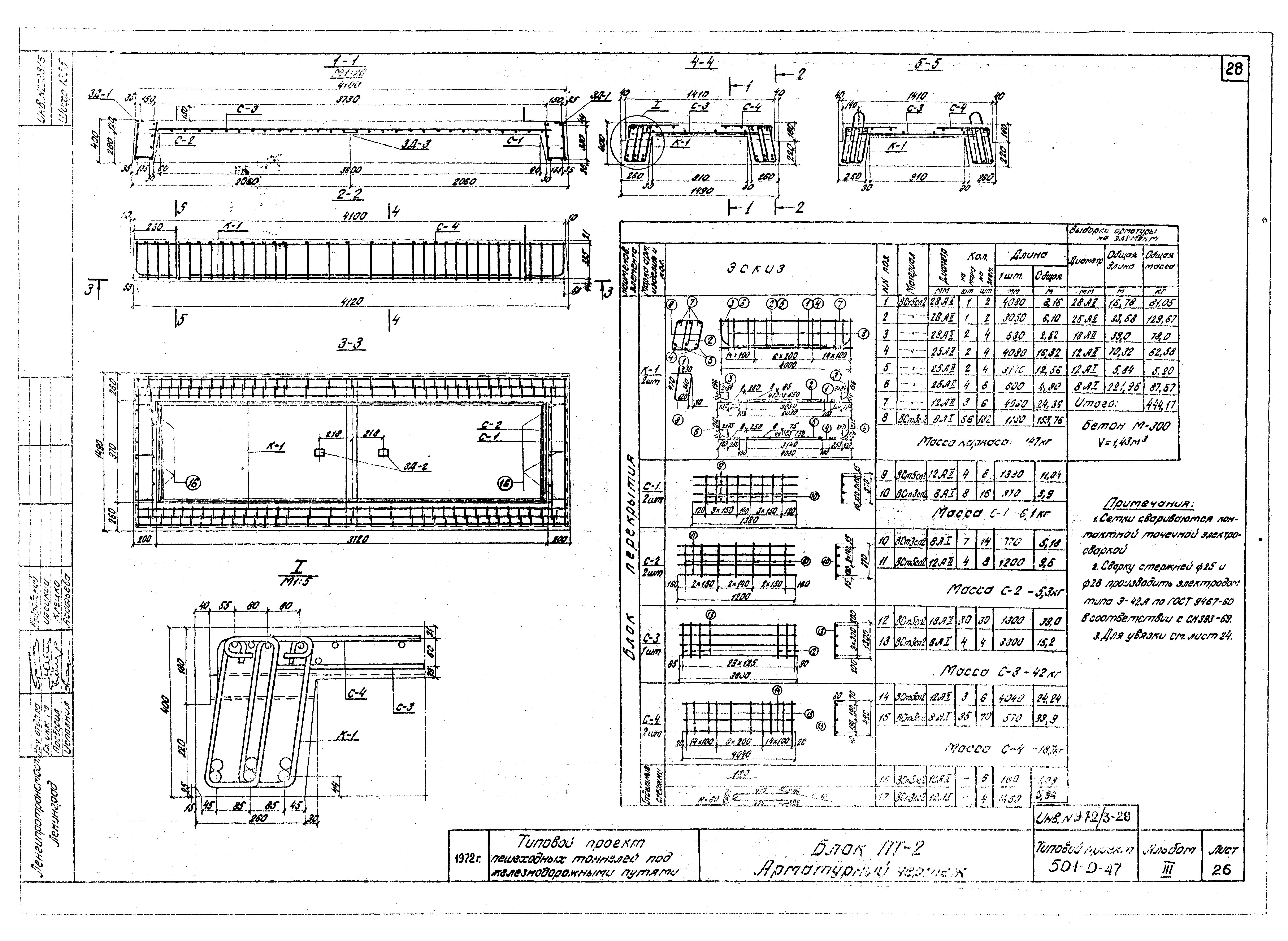
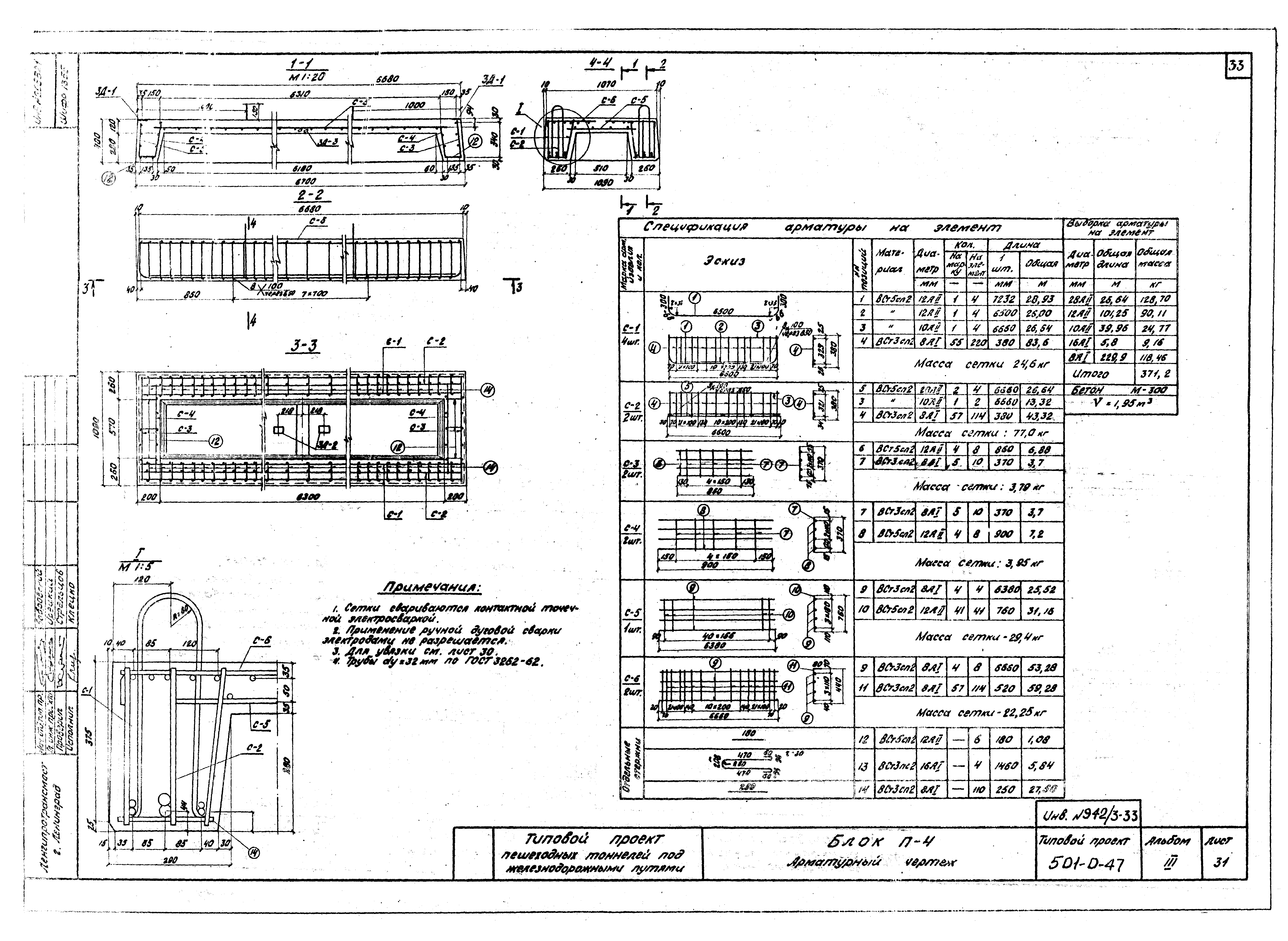
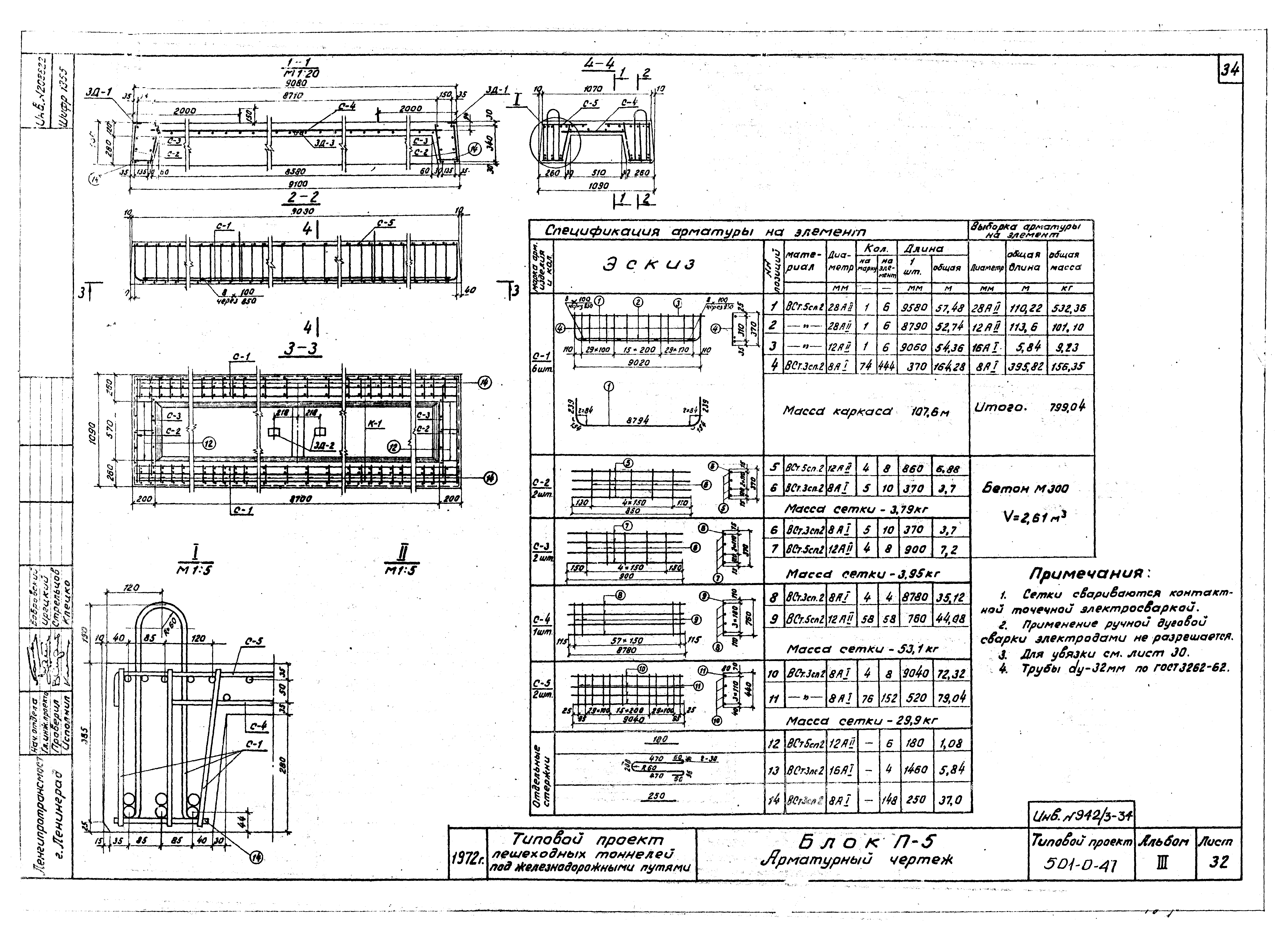
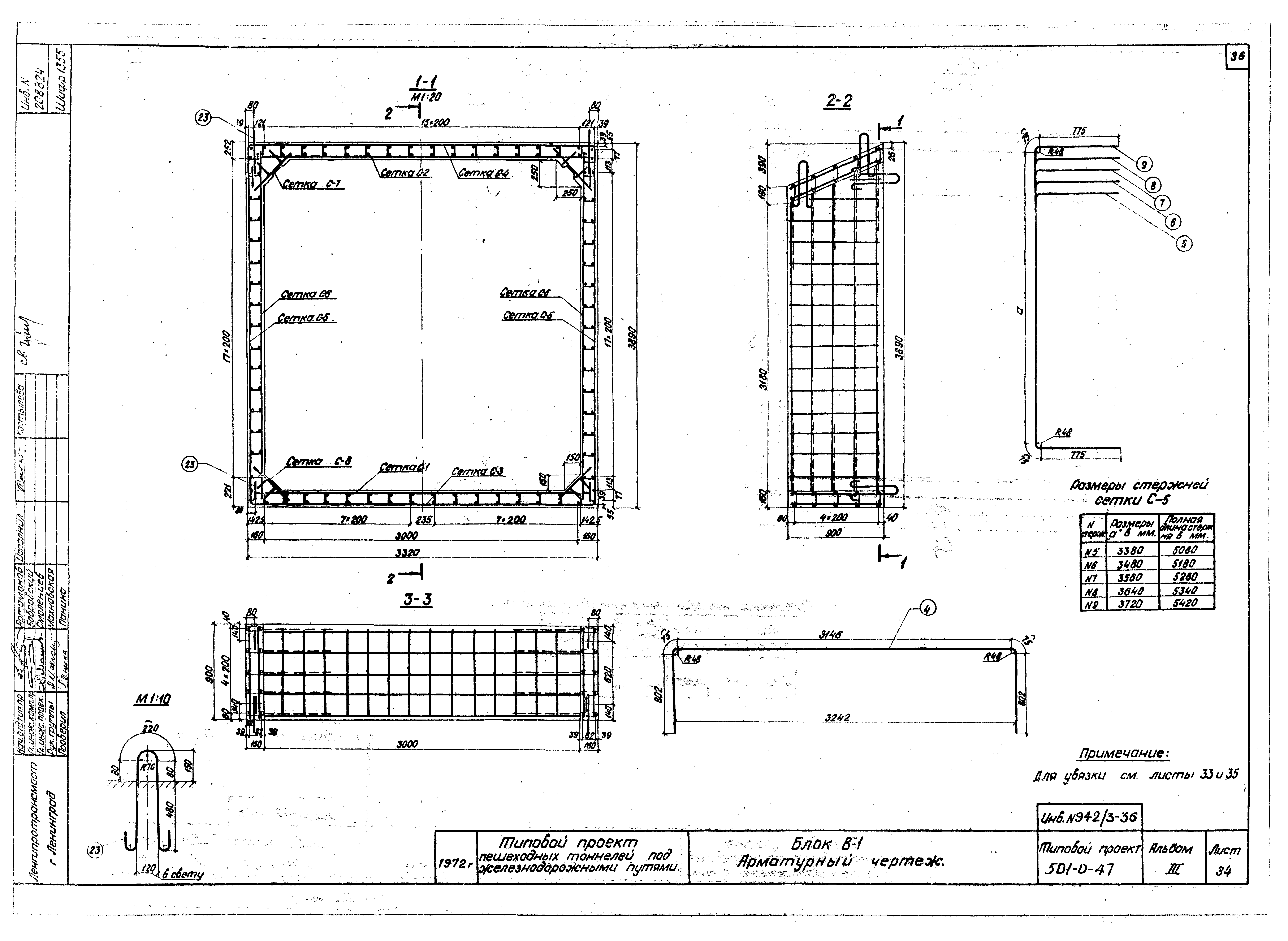
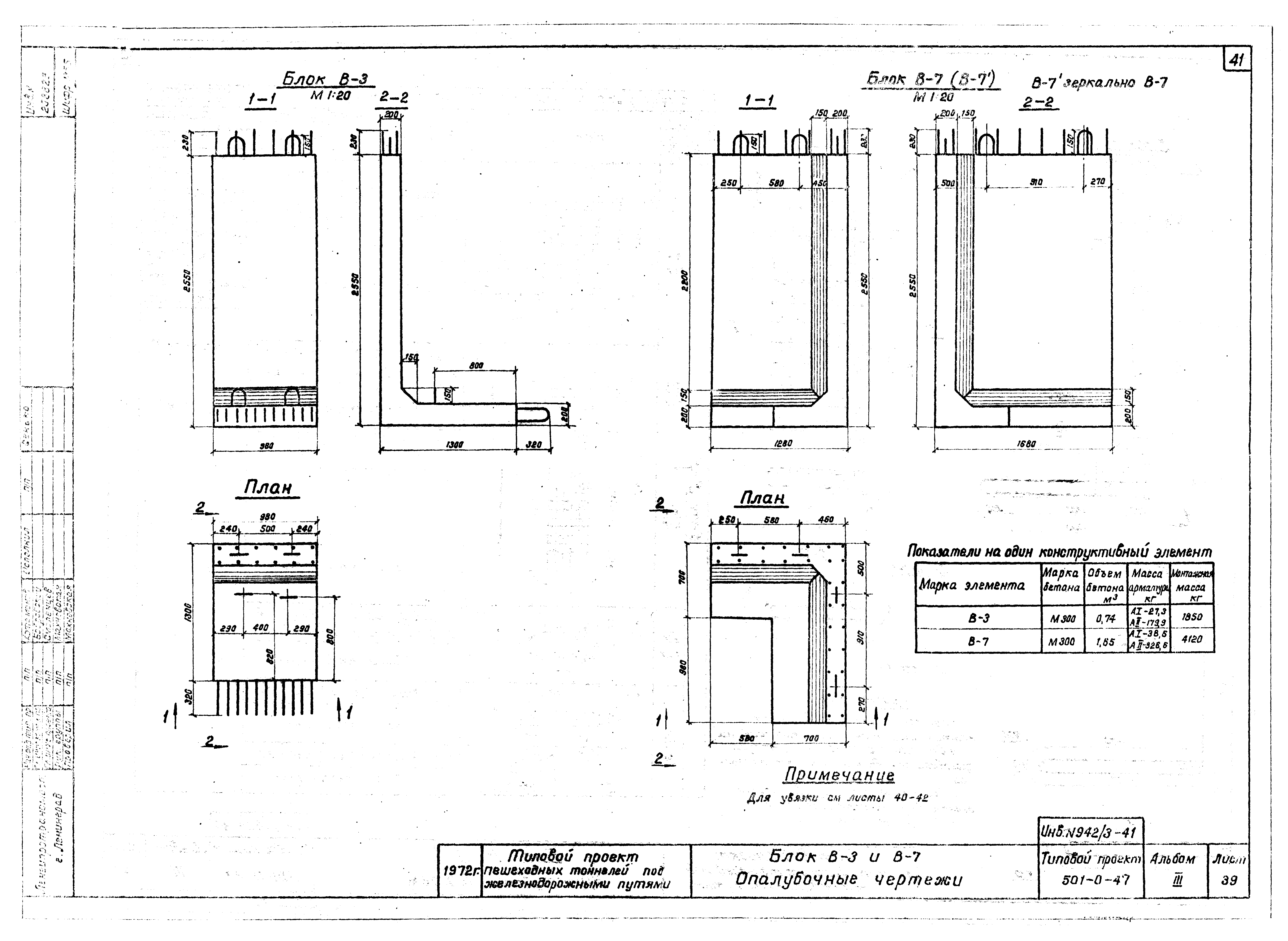
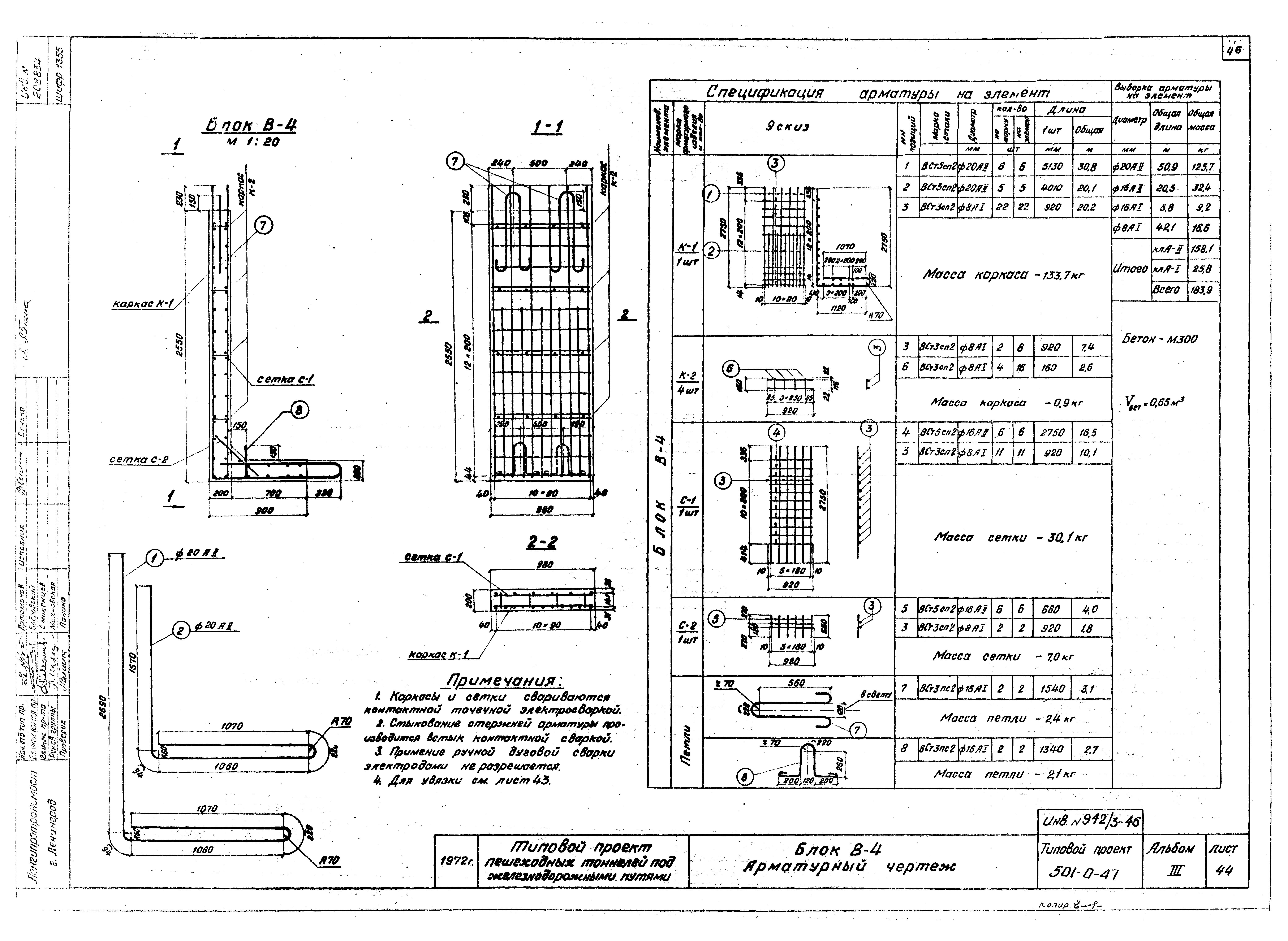
| Оглавление: | Пояснительная записка Типы и номенклатура блоков Блок Т-1. Опалубочный чертеж Блок Т-1. Арматурный чертеж Блок Т-1. Арматурный чертеж. Спецификация Блок Т-2. Опалубочный чертеж Блок Т-2. Арматурный чертеж Блок Т-2. Арматурный чертеж. Спецификация Блок Т-3. Опалубочный чертеж Блок Т-3. Арматурный чертеж Блок Т-3. Арматурный чертеж. Спецификация Блоки С-1, Л-1, Л-2, Л-3. Опалубочные чертежи Блок С-1. Арматурный чертеж Блок Л-1. Арматурный чертеж Блок Л-2. Арматурный чертеж Блок Л-3. Арматурный чертеж Блоки С-2, С-3. Опалубочные чертежи Блок С-2. Арматурный чертеж Блок С-3. Арматурный чертеж Блоки Р-1, К-1. Опалубочные чертежи Блок Р-1. Арматурный чертеж Блок К-1. Арматурный чертеж Блоки ПТ-1, ПТ-2. Опалубочные чертежи Блок ПТ-1. Арматурный чертеж Блок ПТ-2. Арматурный чертеж Блок П-1 Блок П-2 Блок П-3 Блоки П-4, П-5. Опалубочные чертежи Блок П-4. Арматурный чертеж Блок П-5. Арматурный чертеж Блок В-1. Опалубочный чертеж Блок В-1. Арматурный чертеж Блок В-1. Арматурный чертеж. Спецификация Блок В-2. Опалубочный чертеж Блок В-2. Арматурный чертеж Блок В-2. Арматурный чертеж. Спецификация Блоки В-3, В-7. Опалубочные чертежи Блок В-3. Арматурный чертеж Блок В-7. Арматурный чертеж Блок В-7. Арматурный чертеж. Спецификация Блоки В-4, В-6. Опалубочные чертежи Блок В-4. Арматурный чертеж Блок В-6. Арматурный чертеж Блоки В-5, ПР-1, ПР-2. Опалубочные чертежи Блок В-5. Арматурный чертеж Блок В-8. Опалубочный и арматурный чертеж Блок В-8. Арматурный чертеж. Спецификация Блоки ЛМ-5, ЛМ-12 Блоки ЛМ-13, ЛМ-13А |
| Разработан: | Ленгипротрансмост |
| Утверждён: | 28.01.1974 МПС (Ministry of Railroads П-2538) |





















































