Скачать Типовой проект 501-0-47 Альбом IV. Конструкции обогрева открытых входовДата актуализации: 01.01.2021
|
| Обозначение: | Типовой проект 501-0-47 |
| Обозначение англ: | 501-0-47 |
| Статус: | справочные материалы, мп, тпр |
| Название рус.: | Альбом IV. Конструкции обогрева открытых входов |
| Дата добавления в базу: | 01.09.2013 |
| Дата актуализации: | 01.01.2021 |
| Дата окончания срока действия: | 01.06.1974 |
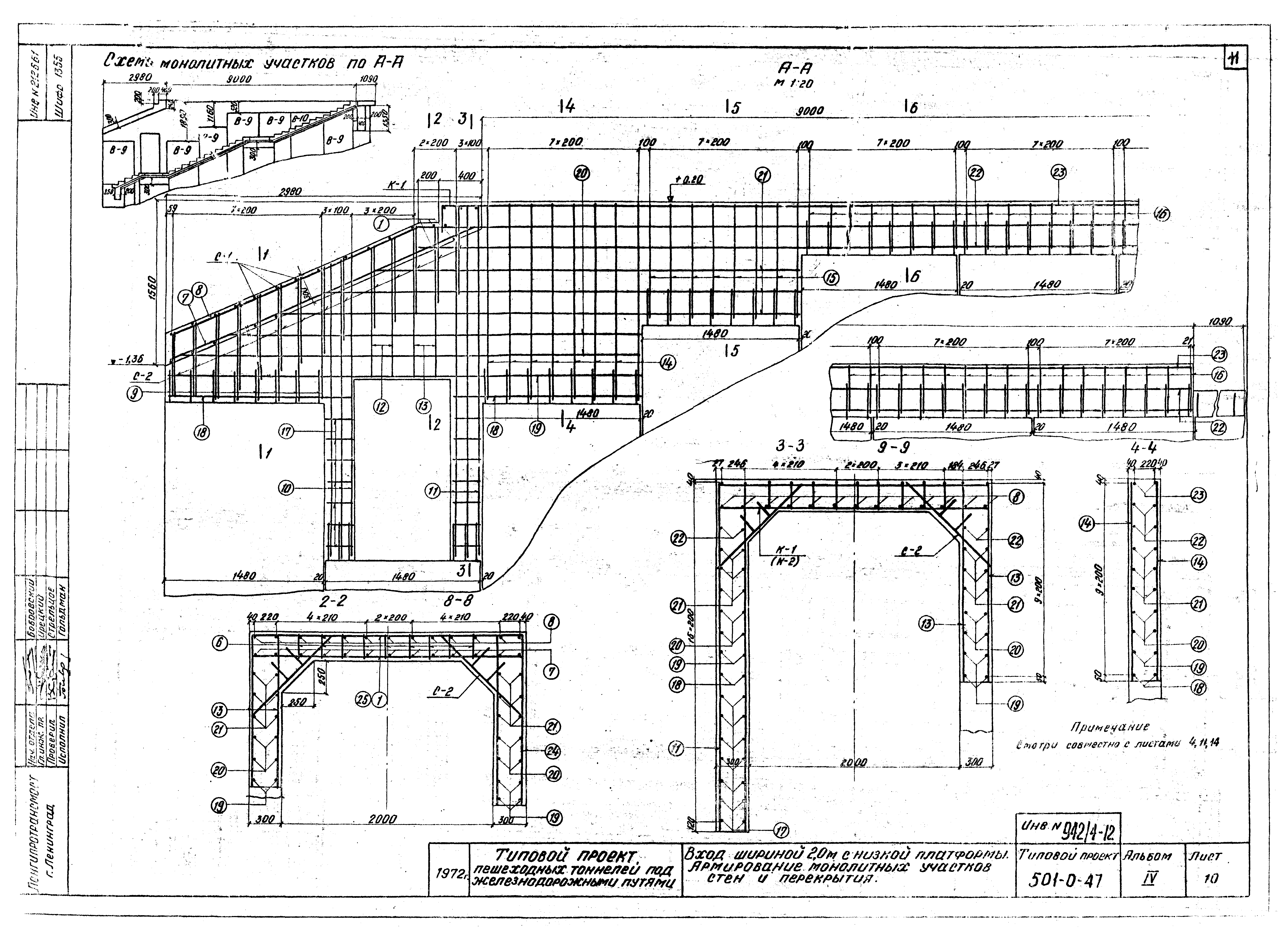
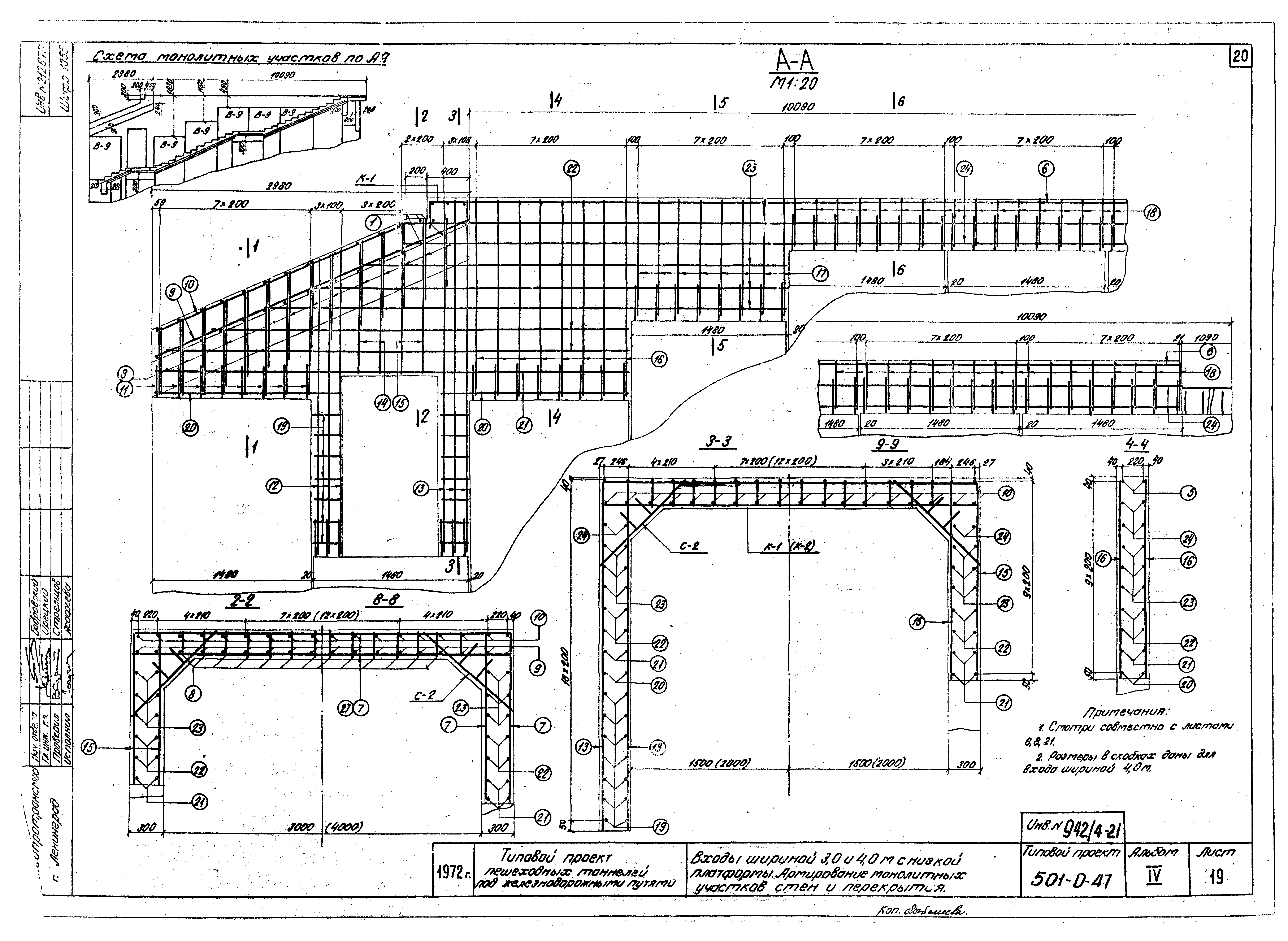
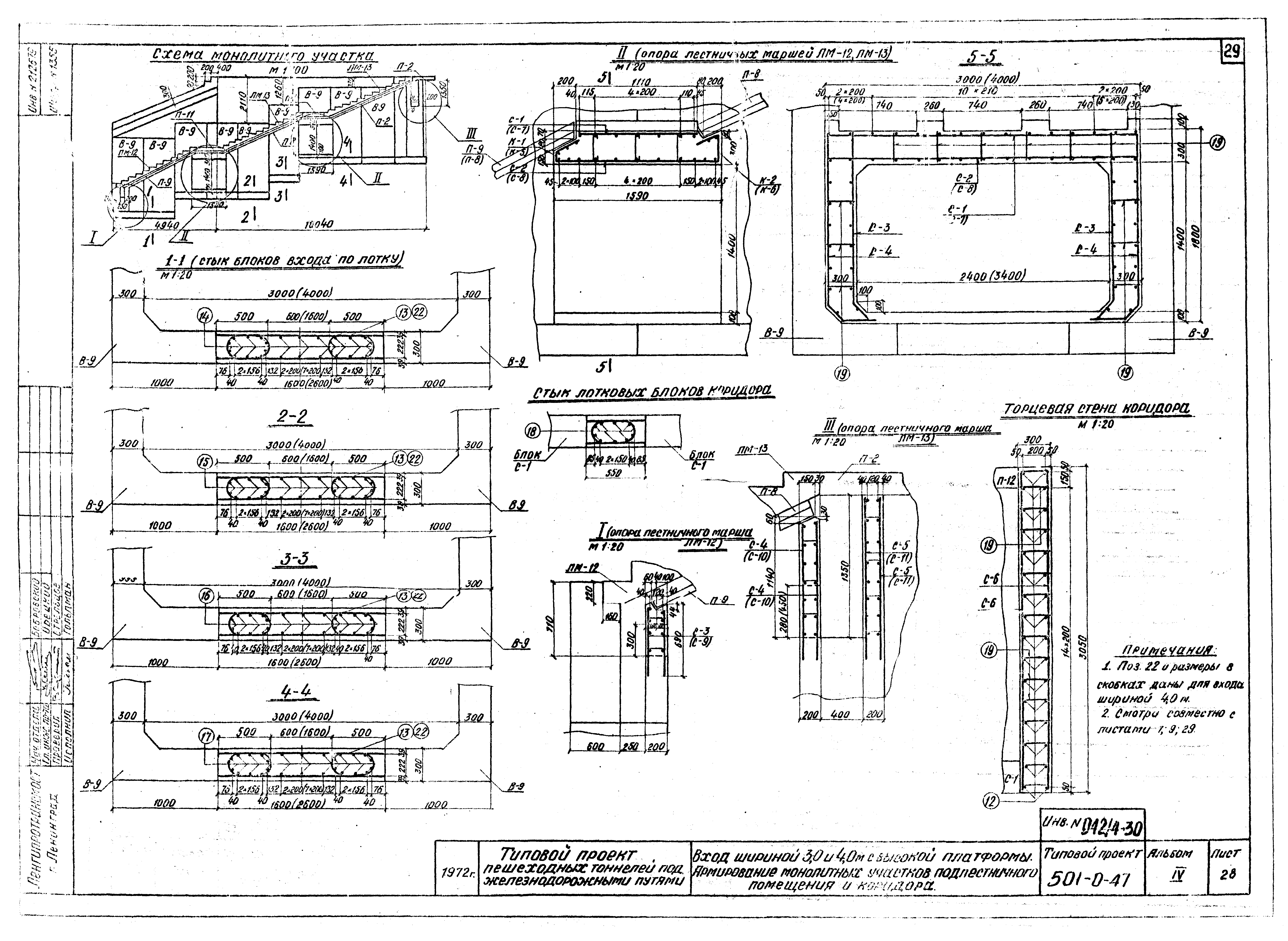
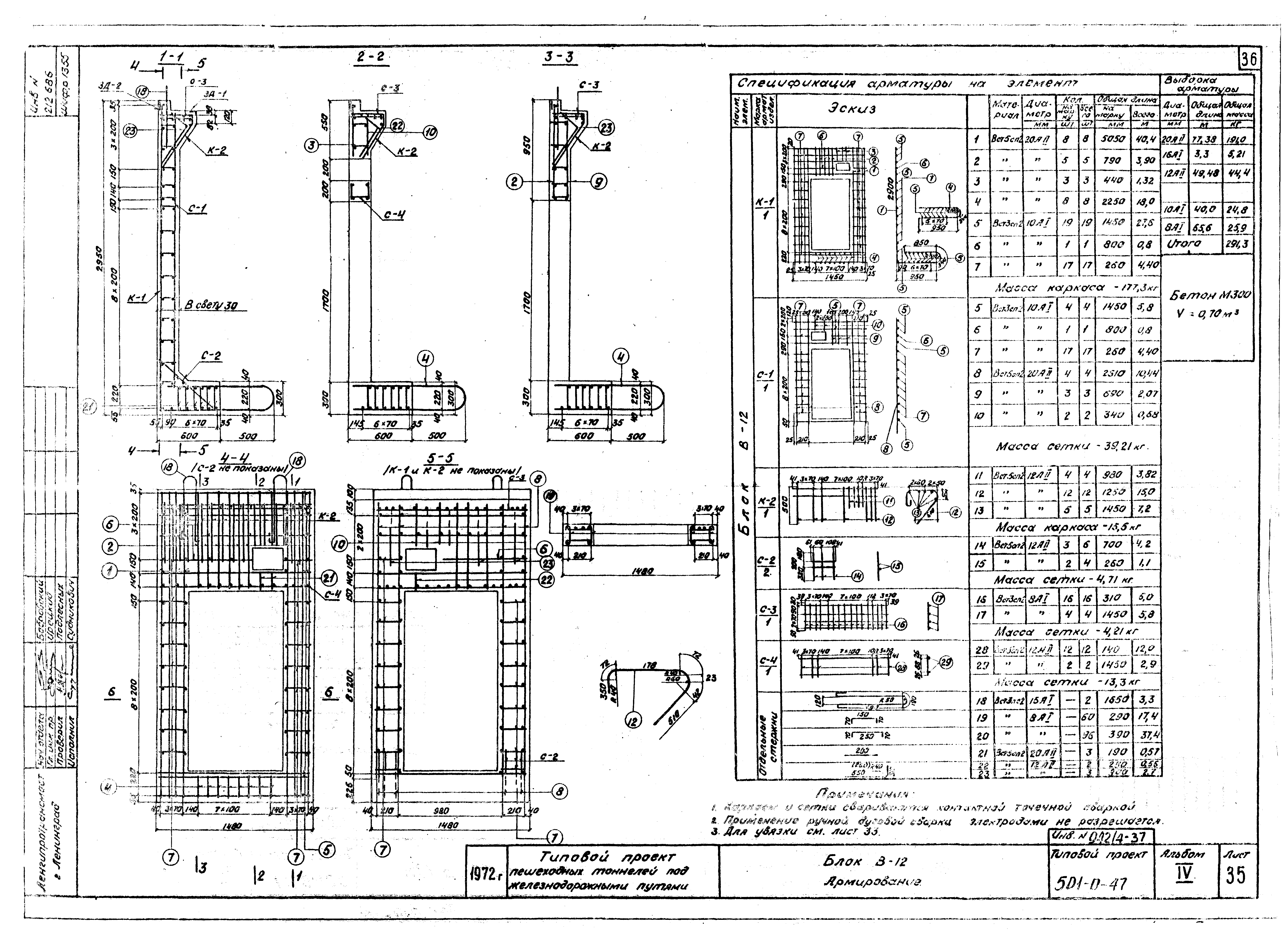
| Оглавление: | Содержание Пояснительная записка Типы и номенклатура блоков Вход шириной 2,0 м с низкой платформы Вход шириной 2,0 м с высокой платформы Вход шириной 3,0 м с низкой платформы Вход шириной 3,0 м с высокой платформы Вход шириной 4,0 м с низкой платформы Вход шириной 4,0 м с высокой платформы Вход шириной 2,0 м с низкой платформы. Армирование монолитных участков стен и перекрытия Вход шириной 2,0 м с высокой платформы. Армирование монолитных участков стен и перекрытия Вход шириной 2,0 м с низкой и высокой платформы. Армирование монолитных участков стен и перекрытия. Спецификация Вход шириной 2,0 м с низкой платформы. Армирование монолитных участков подлестничных помещений и коридора Вход шириной 2,0 м с низкой платформы. Армирование монолитных участков подлестничных помещений и коридора. Спецификация Вход шириной 2,0 м с высокой платформы. Армирование монолитных участков подлестничных помещений и коридора Вход шириной 2,0 м с высокой платформы. Армирование монолитных участков подлестничных помещений и коридора. Спецификация Входы шириной 3,0 м и 4,0 м с низкой платформы. Армирование монолитных участков стен и перекрытия Входы шириной 3,0 м и 4,0 м с низкой платформы. Армирование монолитных участков стен и перекрытия. Спецификация Входы шириной 3,0 м и 4,0 м с низкой платформы. Армирование монолитных участков подлестничного помещения и коридора Вход шириной 3,0 м с низкой платформы. Армирование монолитных участков подлестничного помещения и коридора. Спецификация Вход шириной 4,0 м с низкой платформы. Армирование монолитных участков подлестничного помещения и коридора. Спецификация Входы шириной 3,0 м и 4,0 м с высокой платформы. Армирование монолитных участков стен и перекрытия Входы шириной 3,0 м и 4,0 м с высокой платформы. Армирование монолитных участков стен и перекрытия. Спецификация Входы шириной 3,0 м и 4,0 м с высокой платформы. Армирование монолитных участков подлестничного помещения и коридора Входы шириной 3,0 м и 4,0 м с высокой платформы. Армирование монолитных участков подлестничного помещения и коридора. Спецификация Блоки В-9, В-11 Блок В-9. Армирование Блок В-11. Армирование Блоки В-10, В-12 Блок В-10. Армирование Блок В-12. Армирование Блоки В-13Т, В-13Н Блоки В-13Т, В-13Н. Армирование Блоки В-14Т, В-14Н Блоки В-14Т, В-14Н. Армирование Блоки П-8, П-9, П-10 Блоки П-8, П-9, П-10. Армирование Блок П-11. Опалубочно-арматурный чертеж Блок П-12. Опалубочно-арматурный чертеж Блок Т-4. Опалубочно-арматурный чертеж Блок Т-4. Опалубочно-арматурный чертеж. Спецификация Расположения оборудования для обогрева входа шириной 2,0 м с низкой платформы Расположения оборудования для обогрева входа шириной 2,0 м с высокой платформы Расположения оборудования для обогрева входа шириной 3,0 м с низкой платформы Расположения оборудования для обогрева входа шириной 3,0 м с высокой платформы Расположения оборудования для обогрева входа шириной 4,0 м с низкой платформы Расположения оборудования для обогрева входа шириной 4,0 м с высокой платформы Спецификация оборудования обогрева входов шириной 2,0; 3,0; 4,0 м Основания под вентиляторы Амортизаторы НМД-190 и НМД-191 Амортизаторы НМД-190 и НМД-191. Детали Подставка под калорифер. Фиксатор НМД-191 Опалубочно-арматурный чертеж плиты НФ403 Опалубочно-арматурный чертеж плиты НФ406а |
| Разработан: | Ленгипротрансмост |
| Утверждён: | 28.01.1974 МПС (Ministry of Railroads П-2538) |




























































