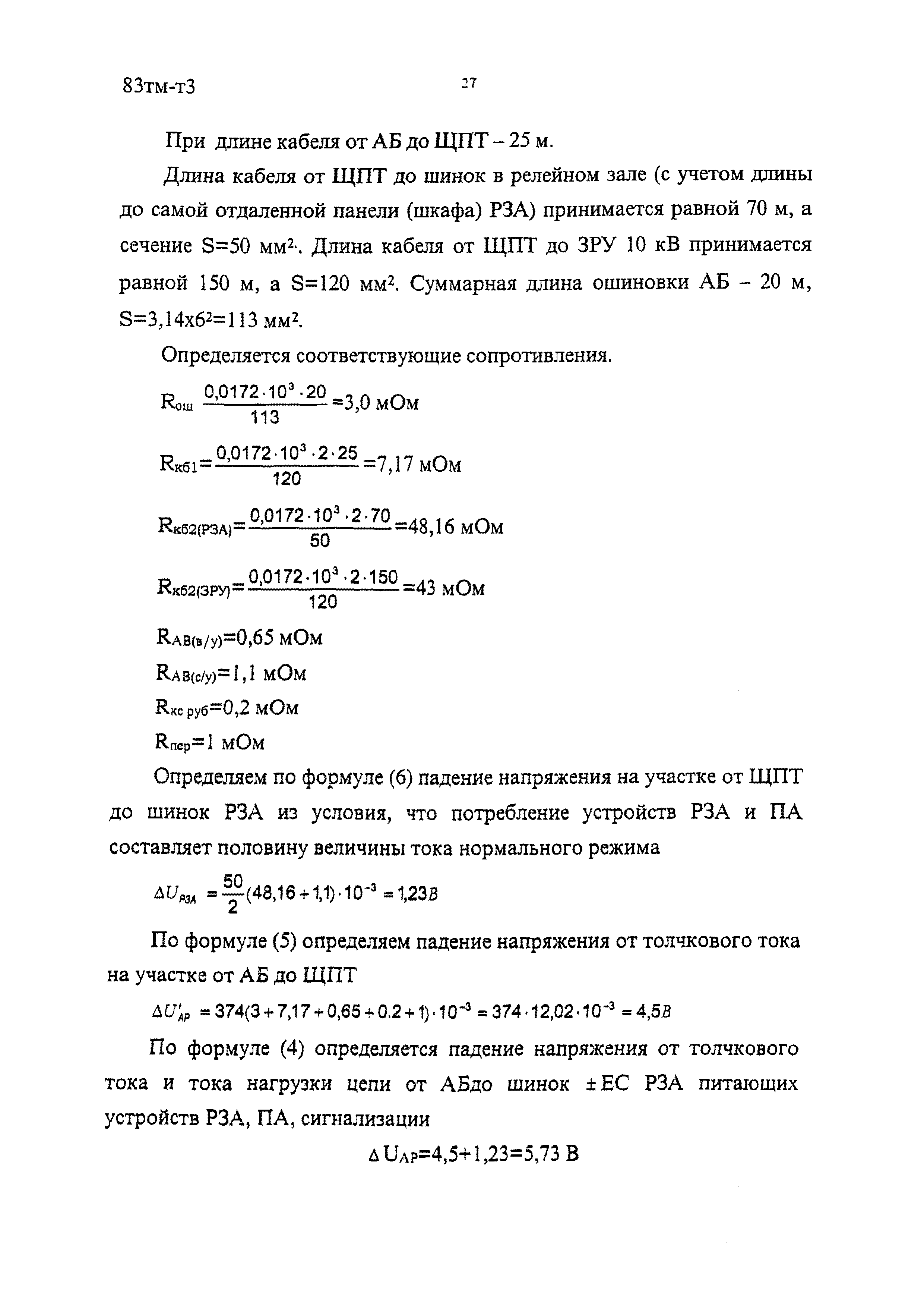
Скачать 83 тм-т3 Руководящие указания по организации системы оперативного постоянного тока на подстанциях 110 кВ и выше. Этап III. Расчеты по выбору параметров аккумуляторных батарей для ПС 330 кВ и выше с двумя аккумуляторными батареями. Полные схемы щитов постоянного токаДата актуализации: 01.01.2021
|
| Обозначение: | 83 тм-т3 |
| Обозначение англ: | 83 тм-т3 |
| Статус: | действует |
| Название рус.: | Руководящие указания по организации системы оперативного постоянного тока на подстанциях 110 кВ и выше. Этап III. Расчеты по выбору параметров аккумуляторных батарей для ПС 330 кВ и выше с двумя аккумуляторными батареями. Полные схемы щитов постоянного тока |
| Дата добавления в базу: | 01.09.2013 |
| Дата актуализации: | 01.01.2021 |
| Область применения: | Том 3 работы содержит указания по выбору параметров аккумуляторных батарей для ПС 330 кВ и выше, а также полные схемы щитов постоянного тока для ПС с двумя аккумуляторными батареями. Дан пример выбора параметров аккумуляторной батареи |
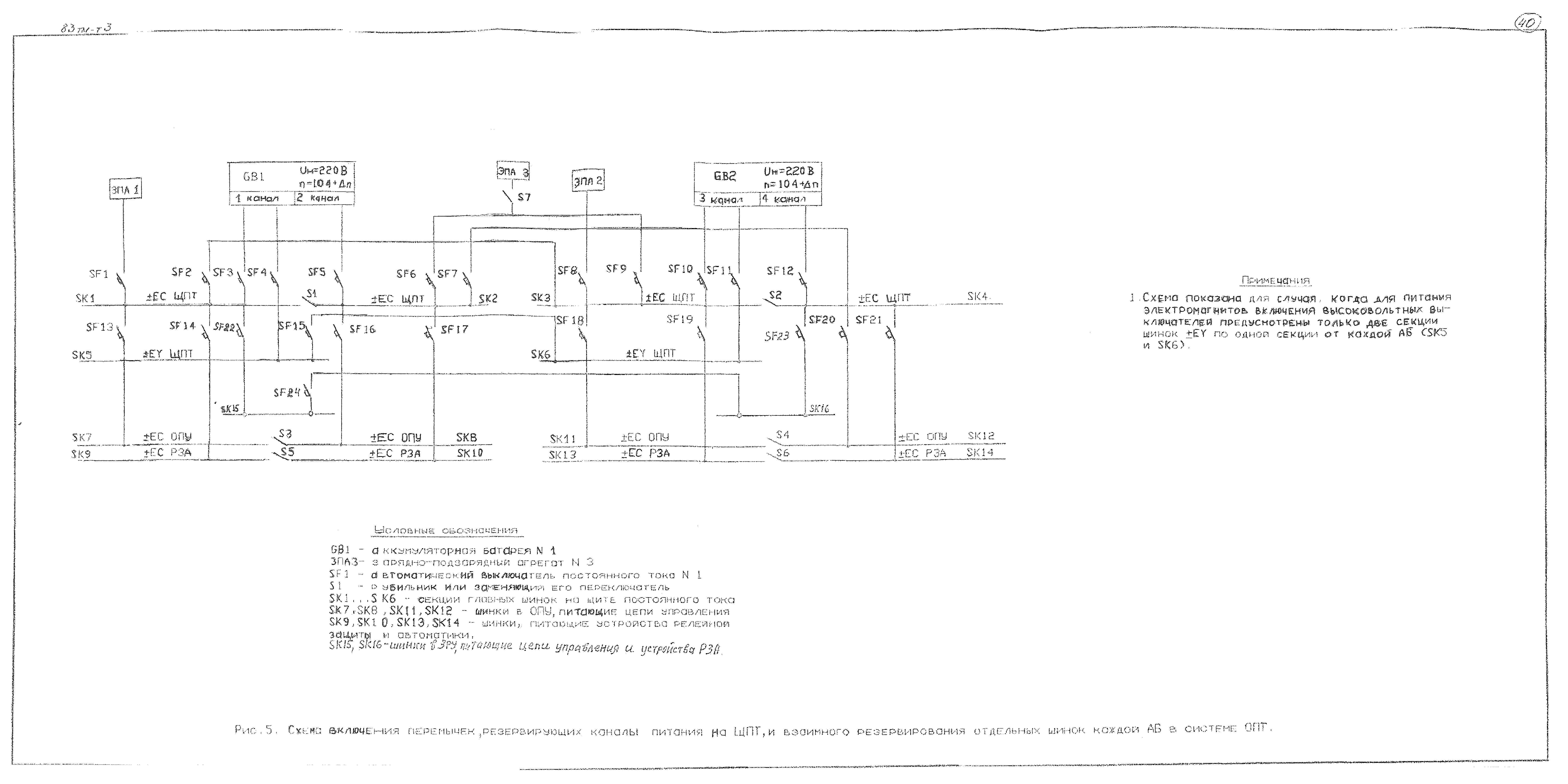
| Оглавление: | Состав проекта Список рисунков Введение 1. Общие положения 2. Выбор параметров аккумуляторной батареи 2.1.Общие положения 2.2.Расчет максимального толчкового тока 2.3.Определение числа аккумуляторов для АБ с номинальным напряжением 220 В 2.4.Расчет минимального напряжения приходящегося на один аккумулятор 2.5.Определение емкости аккумуляторной батареи 3. Примеры выбора типа и емкости аккумуляторных батарей для ПС 330 кВ и выше 3.1. Аккумуляторная батарея для ПС 500/220/110/10 кВ 3.2.Выбор емкости АБ по характеристикам разряда, изображенным в табличной форме 4. Схемы щита постоянного тока 4.1.Основные положения |
| Разработан: | Институт Энергосетьпроект |
| Утверждён: | Институт Энергосетьпроект |








































