Скачать П8-01398 Альбом 1. Несущие стены каркасных зданийДата актуализации: 01.01.2021
|
| Обозначение: | П8-01398 |
| Обозначение англ: | П8-01398 |
| Статус: | организационно-ограниченного применения |
| Название рус.: | Альбом 1. Несущие стены каркасных зданий |
| Дата добавления в базу: | 01.09.2013 |
| Дата актуализации: | 01.01.2021 |
| Дата введения: | 01.01.2001 |
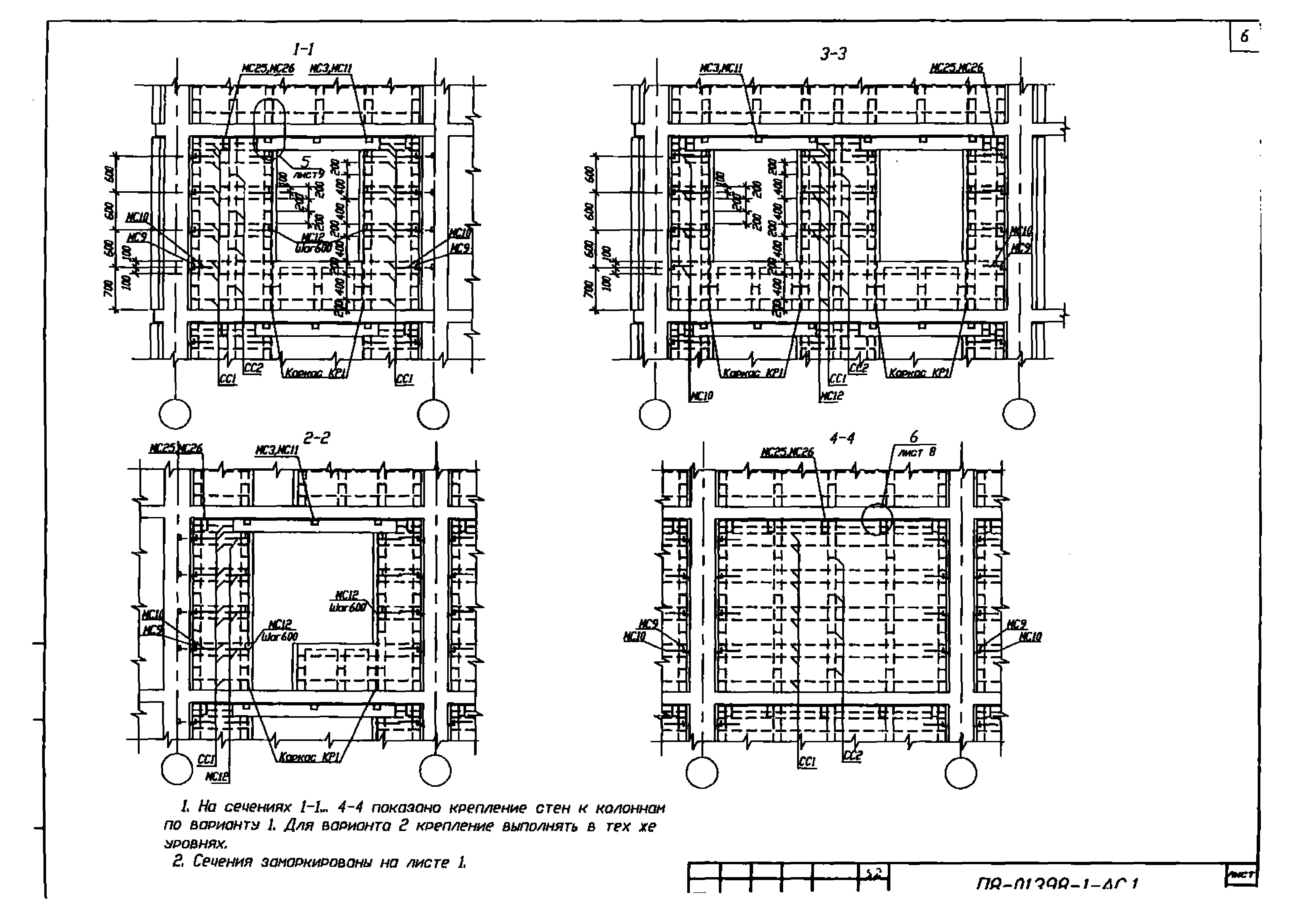
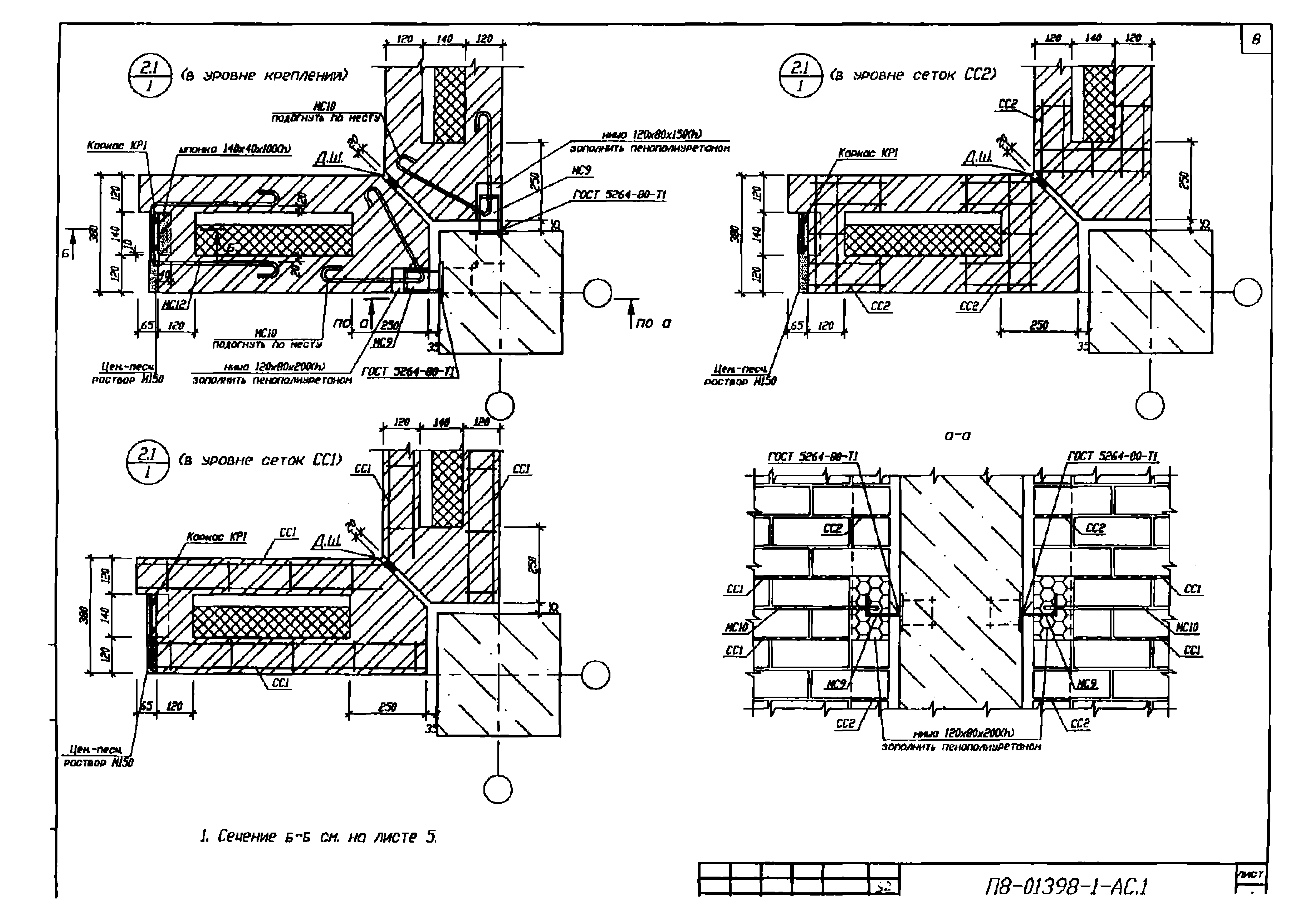
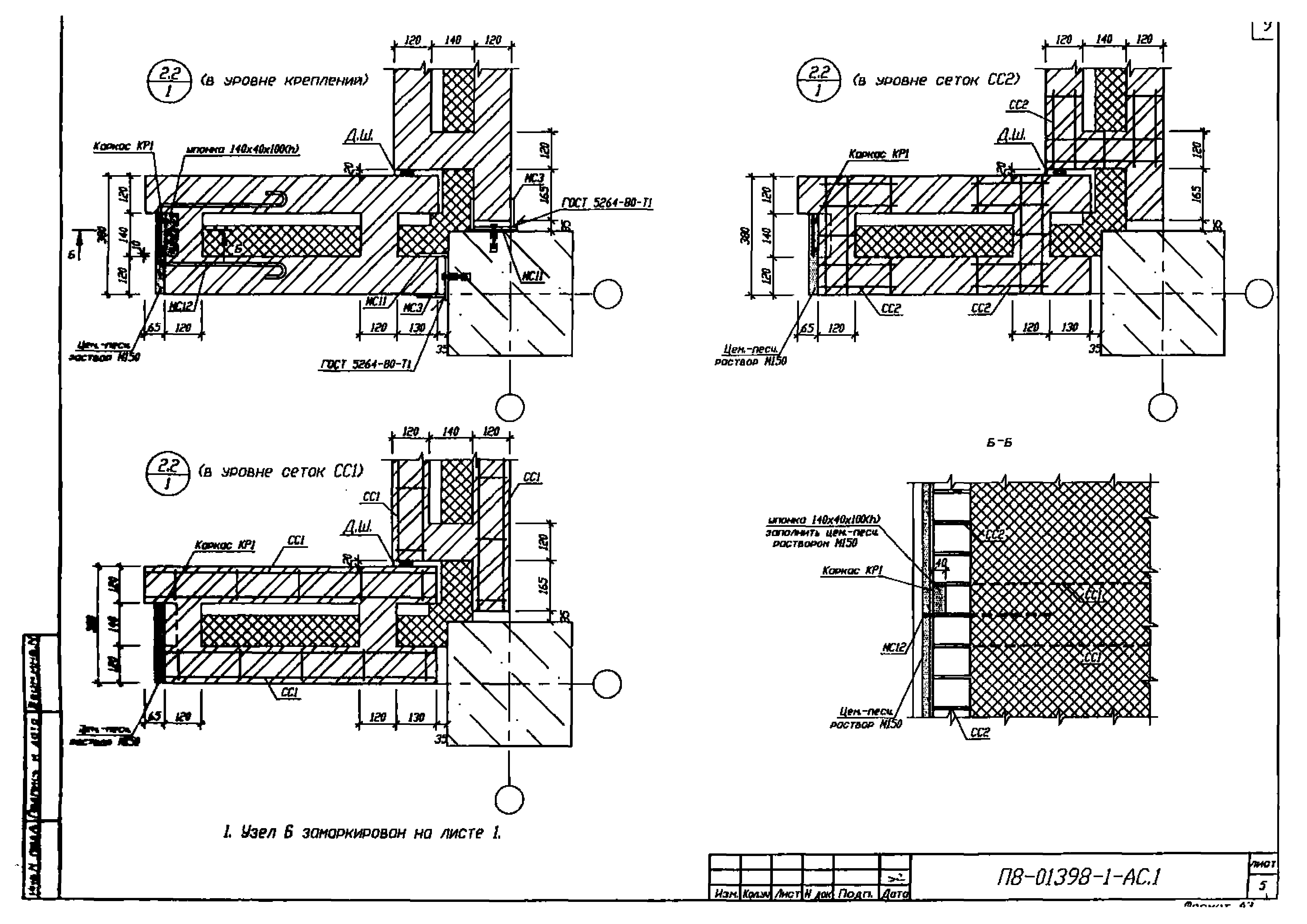
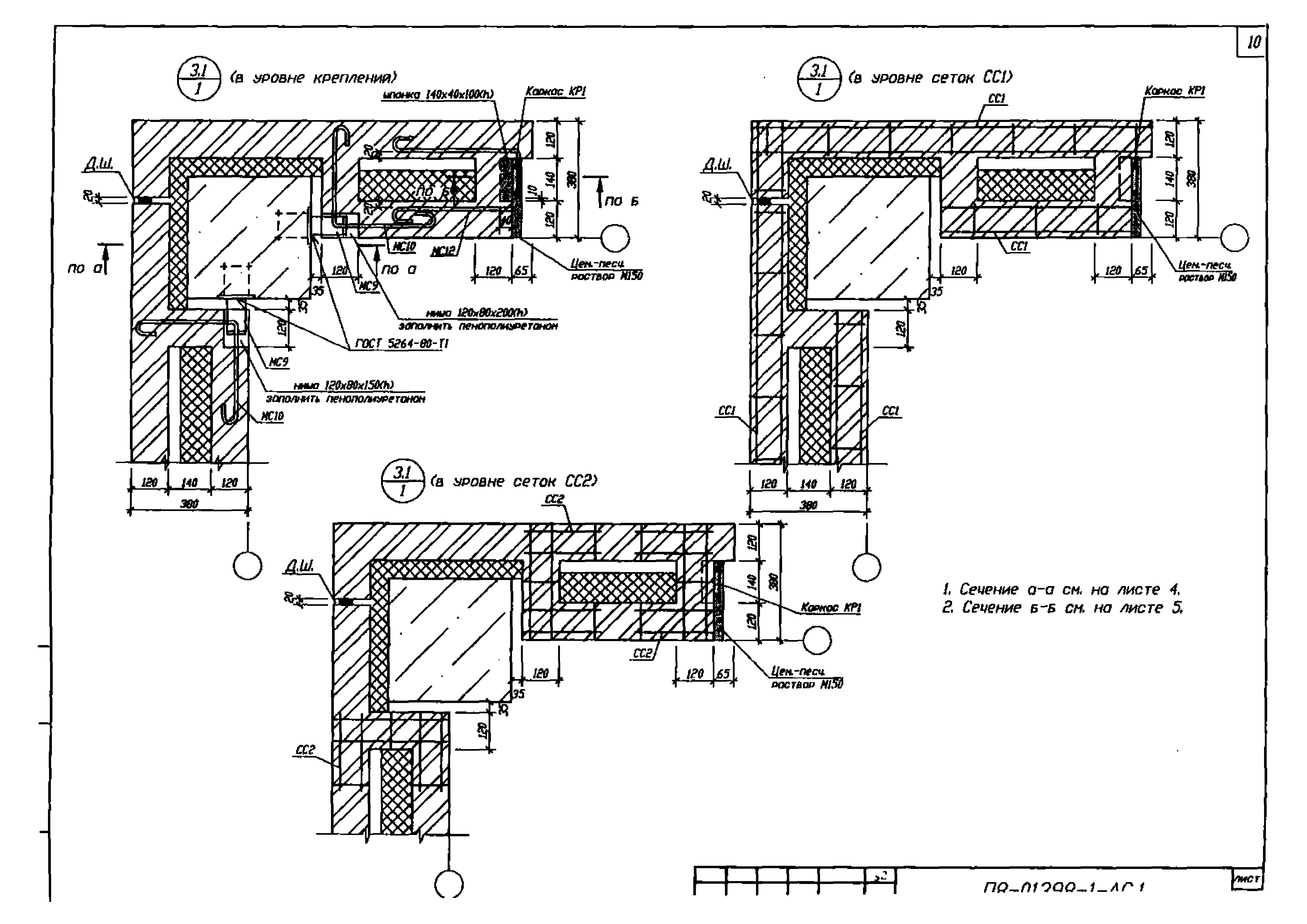
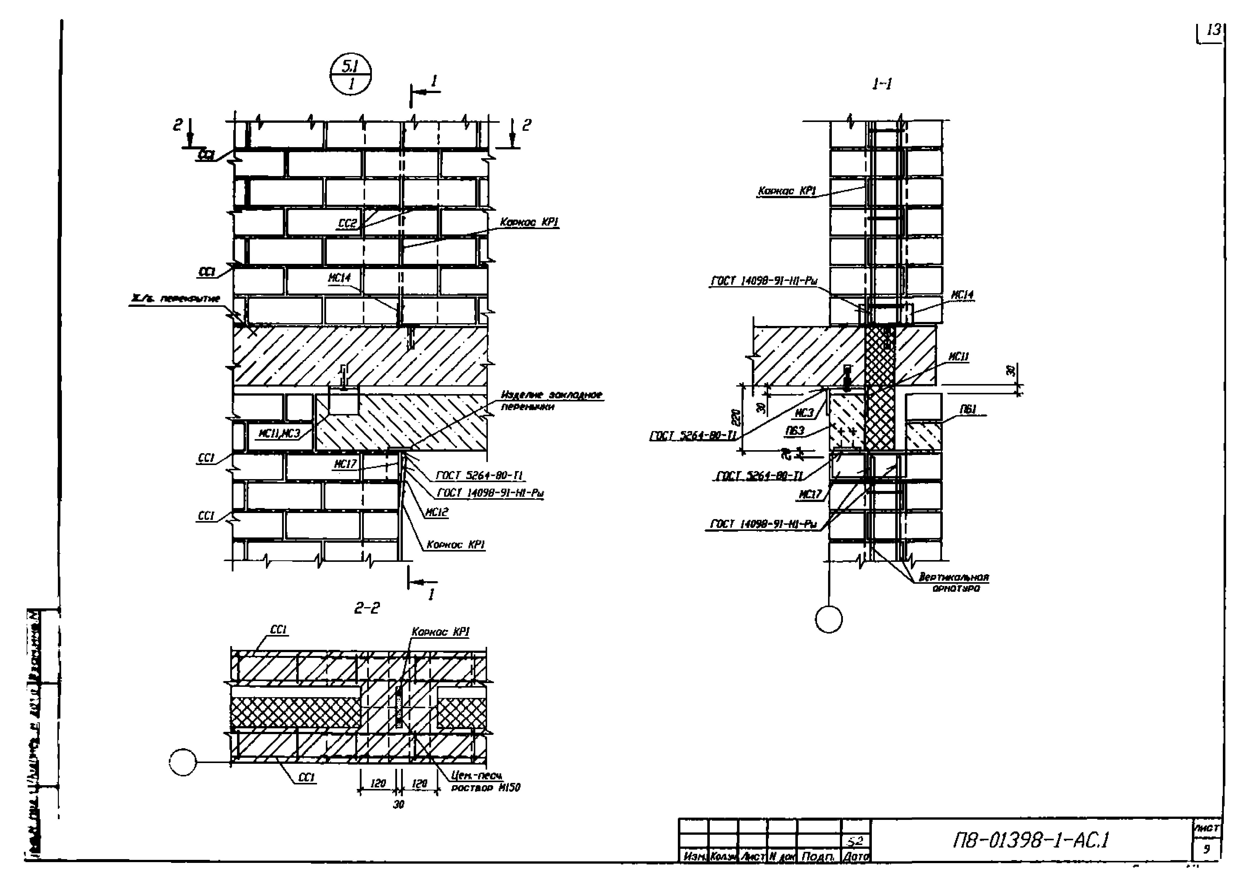
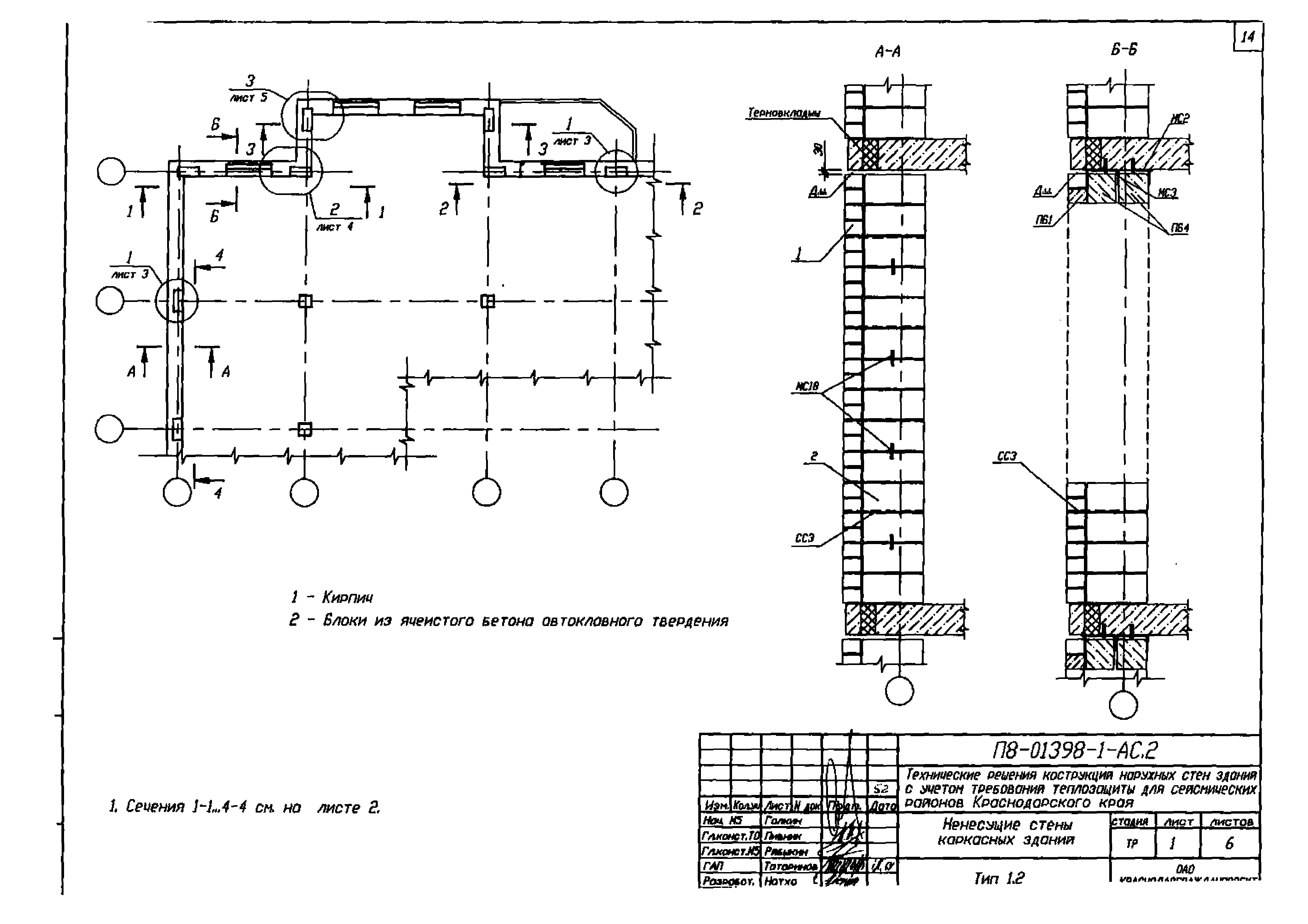
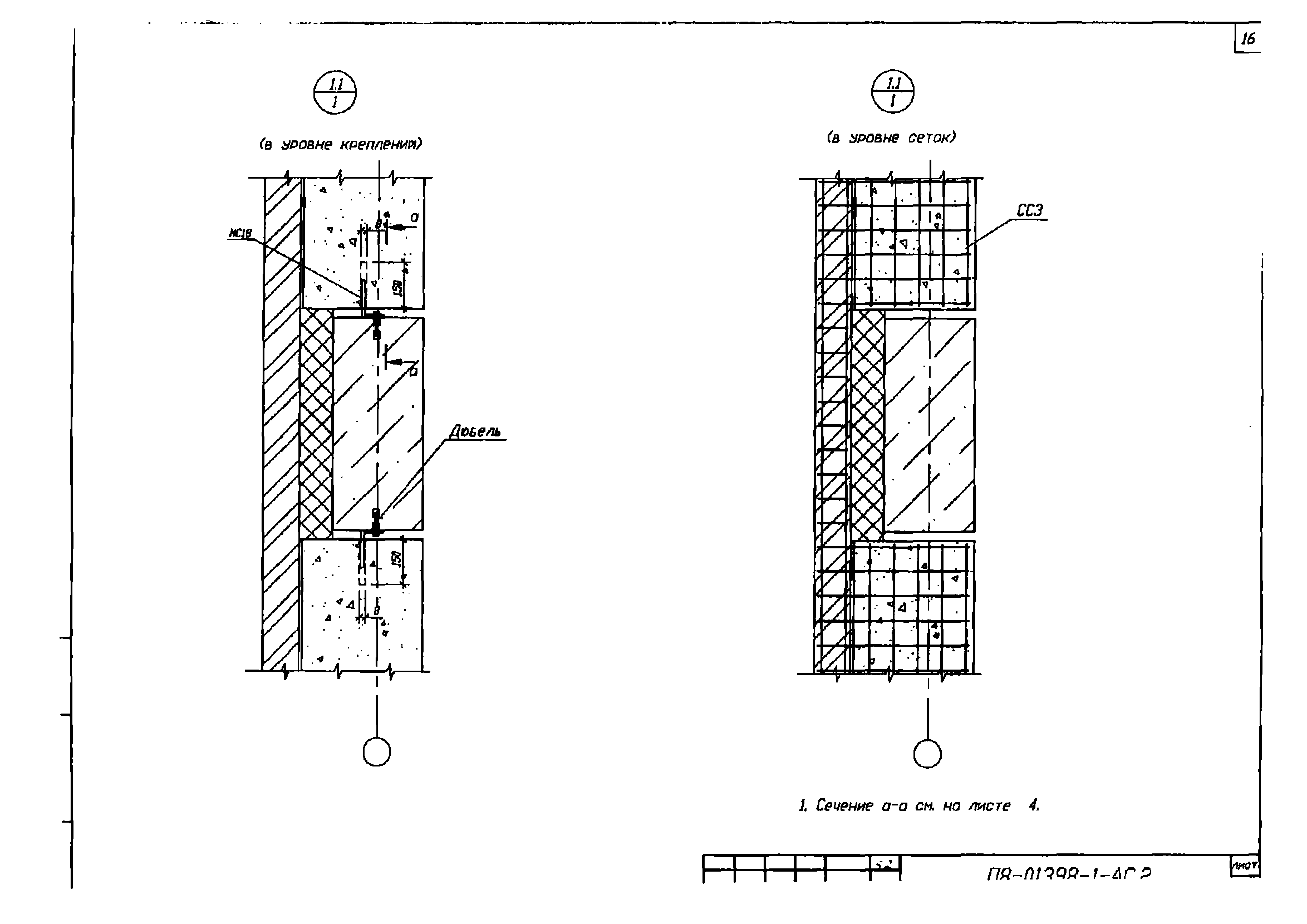
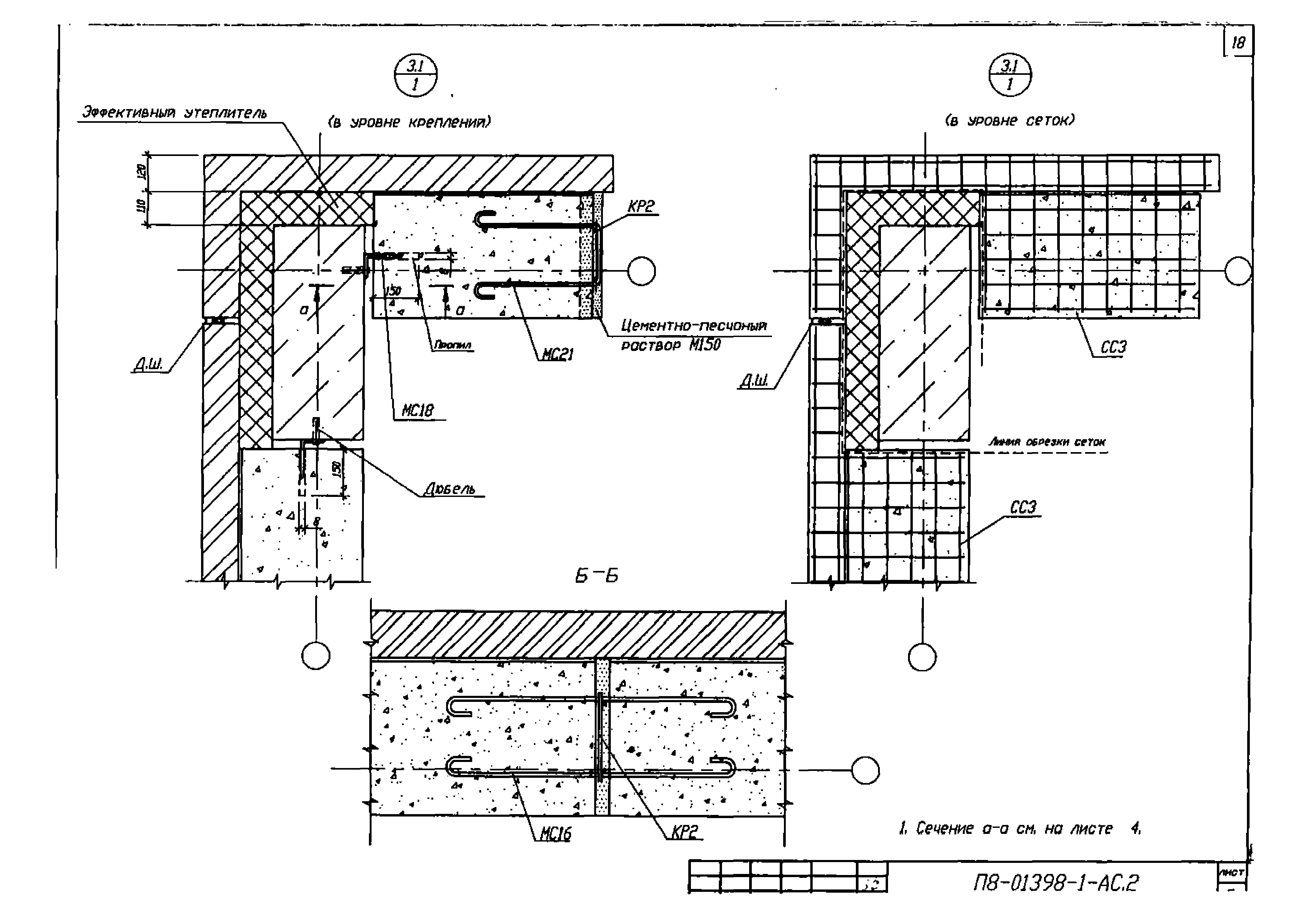
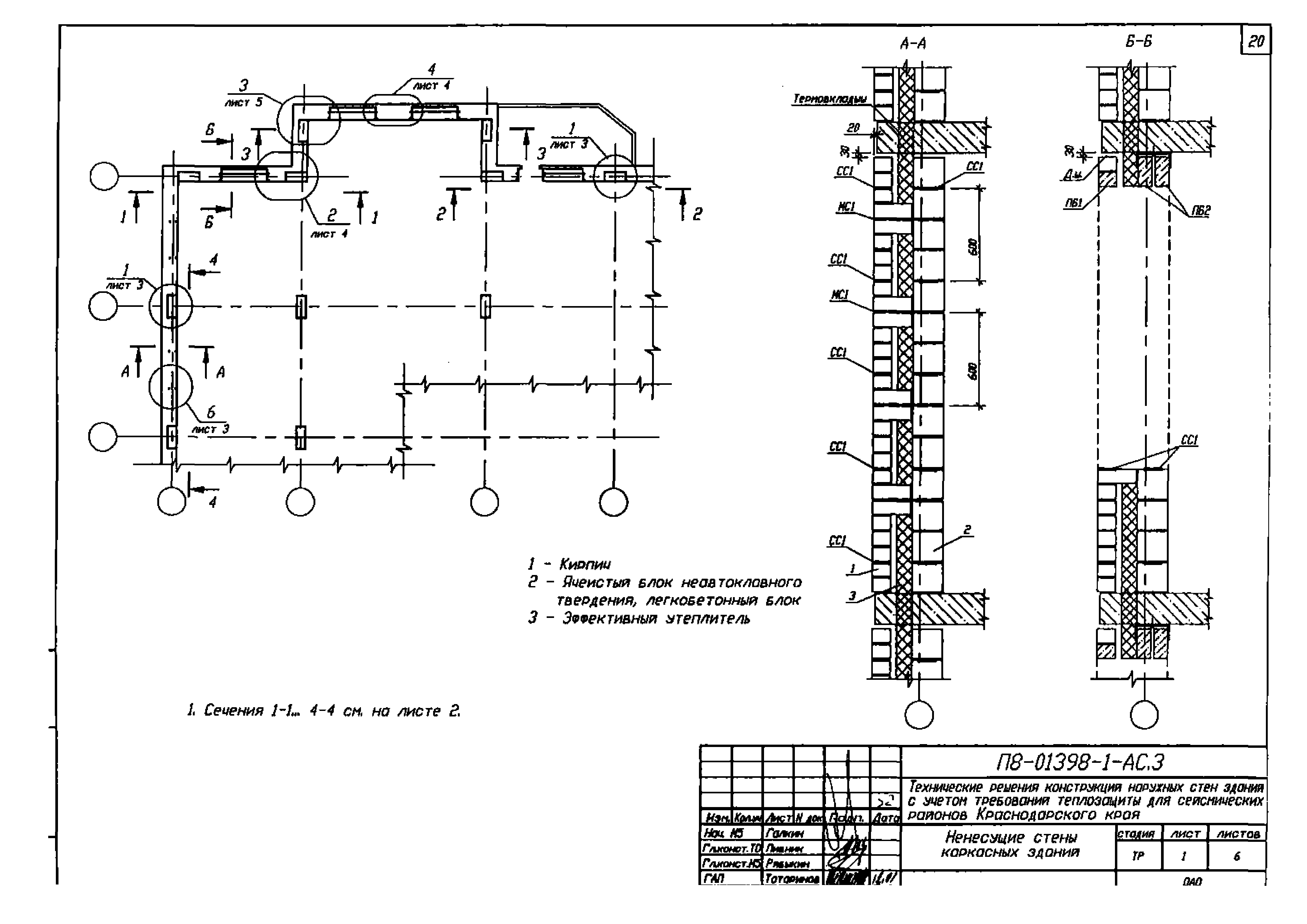
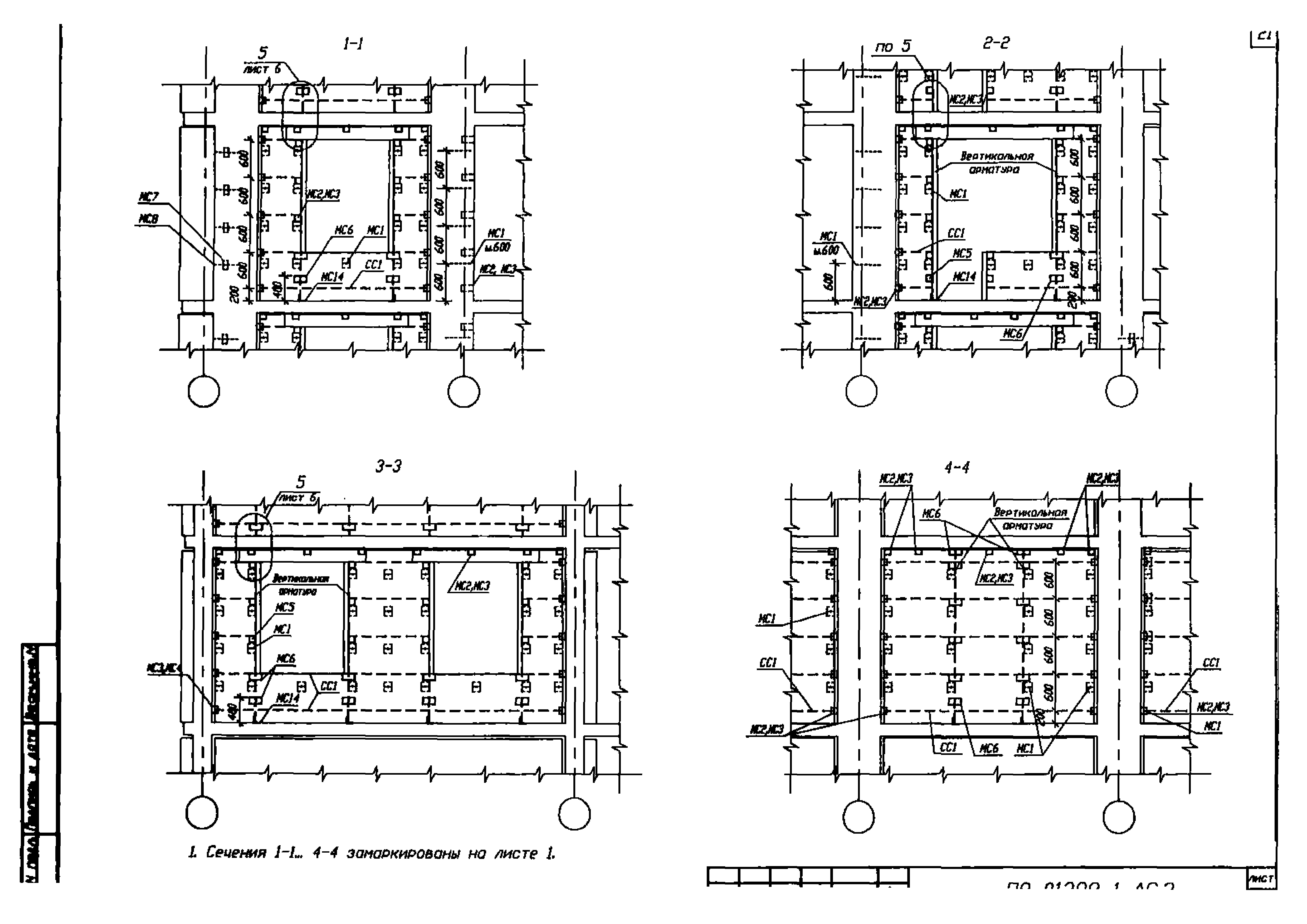
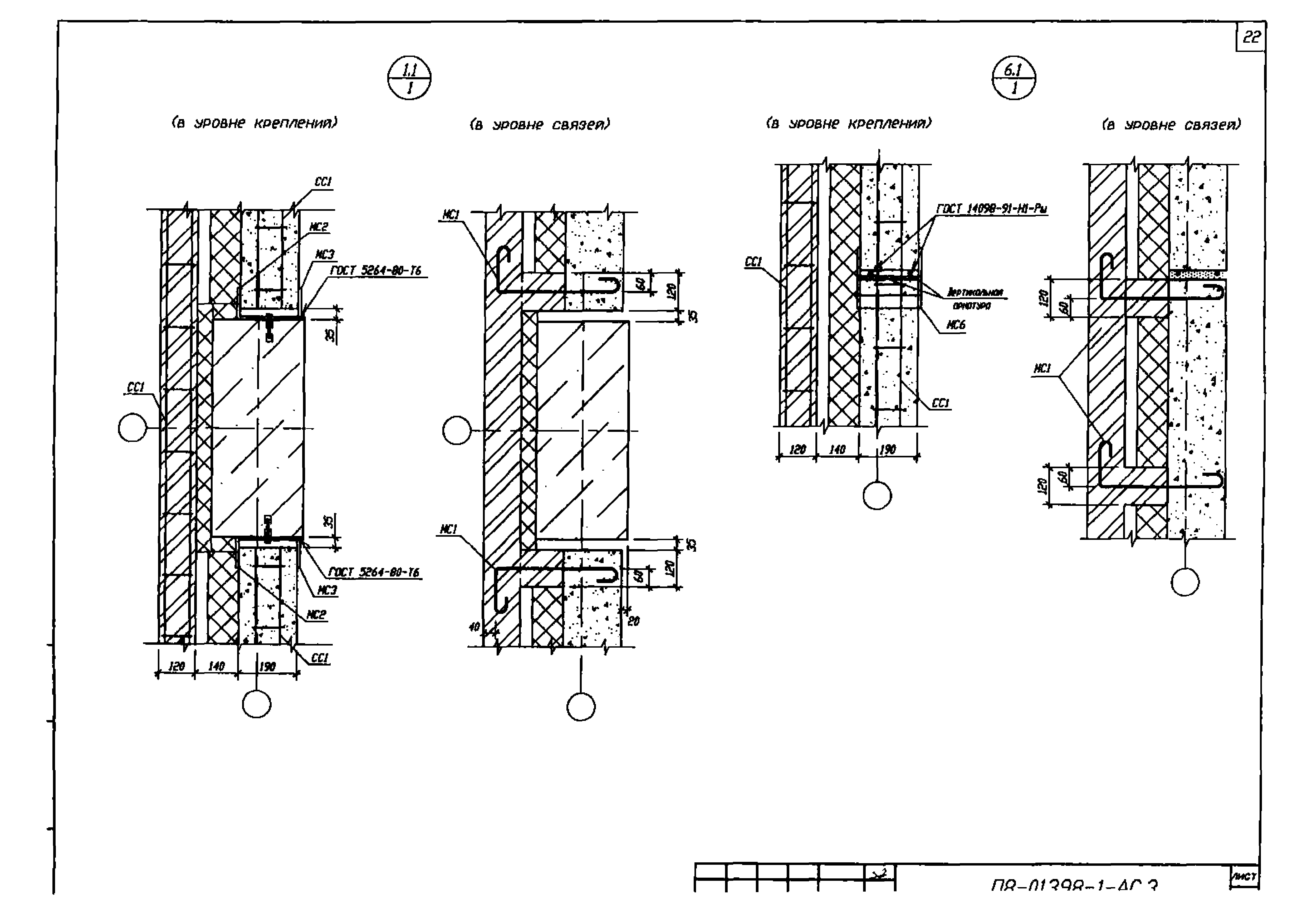
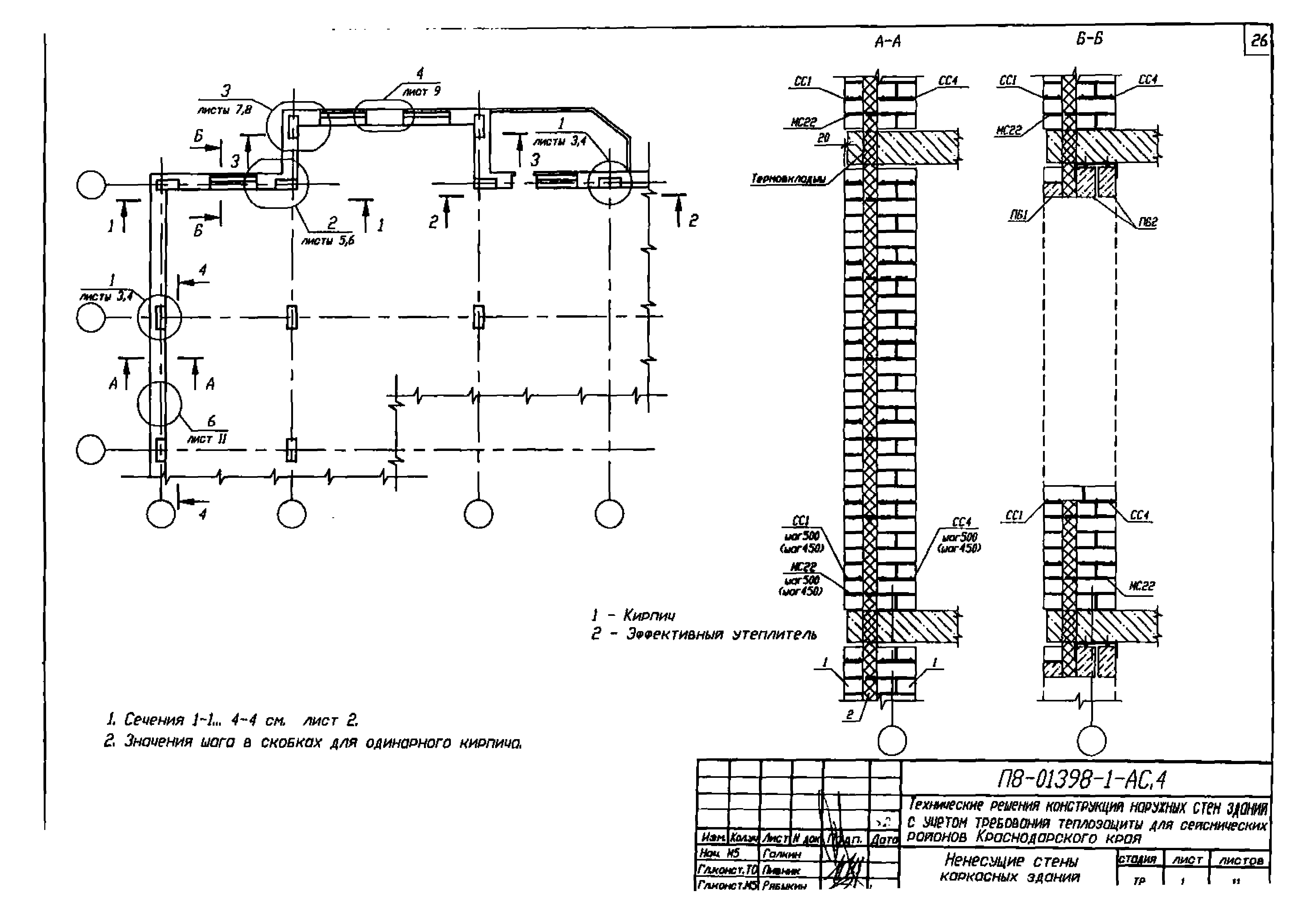
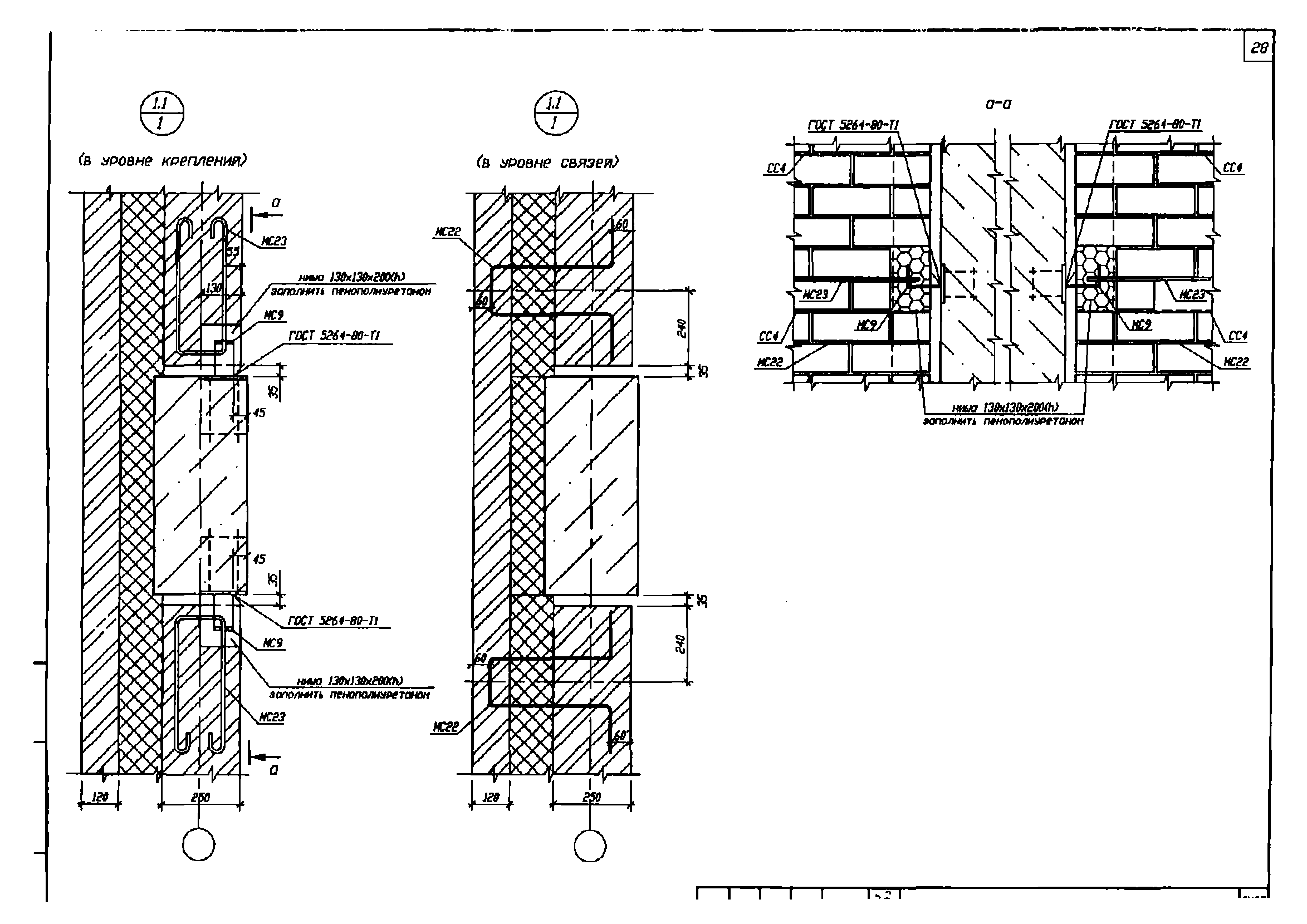
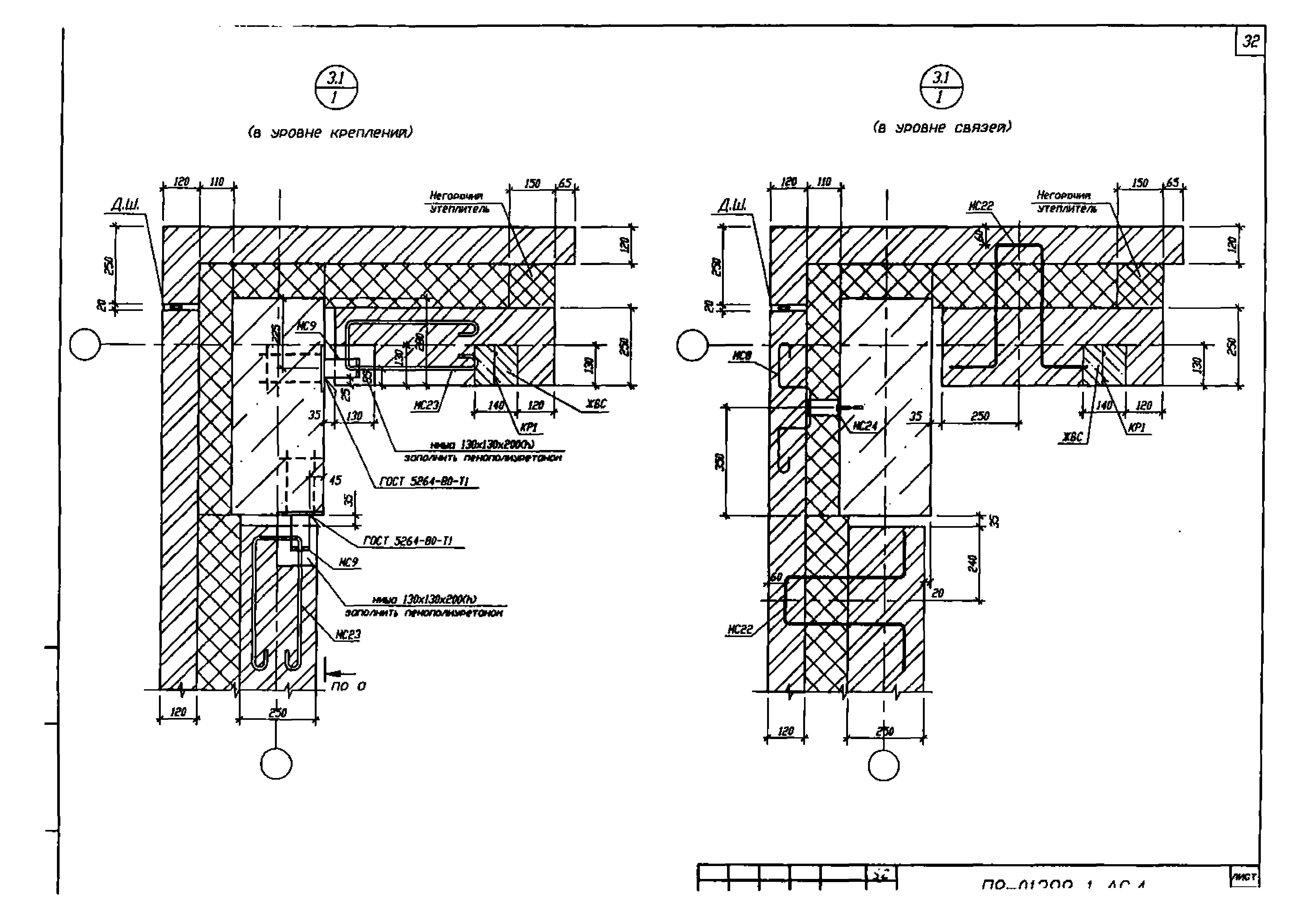
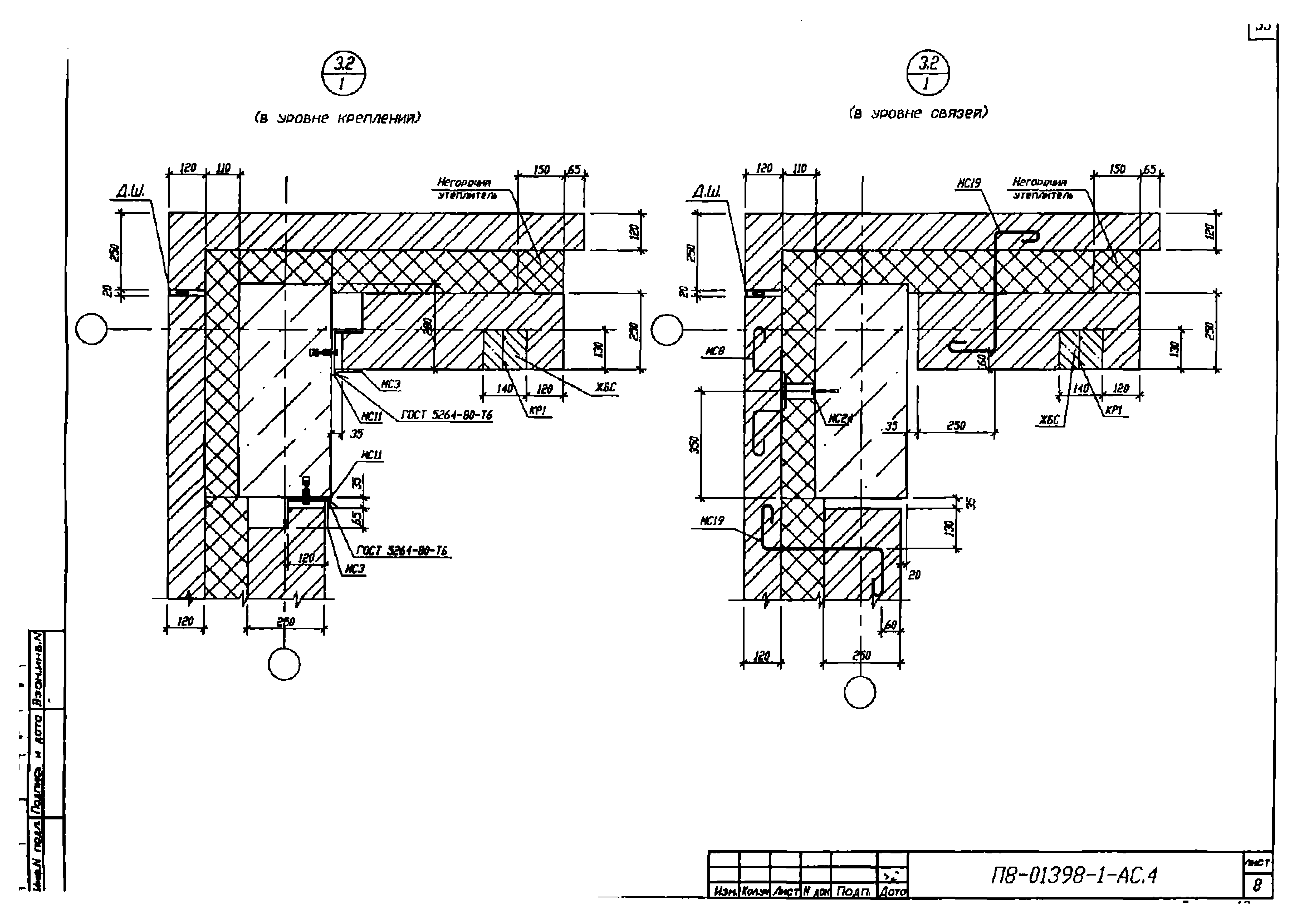
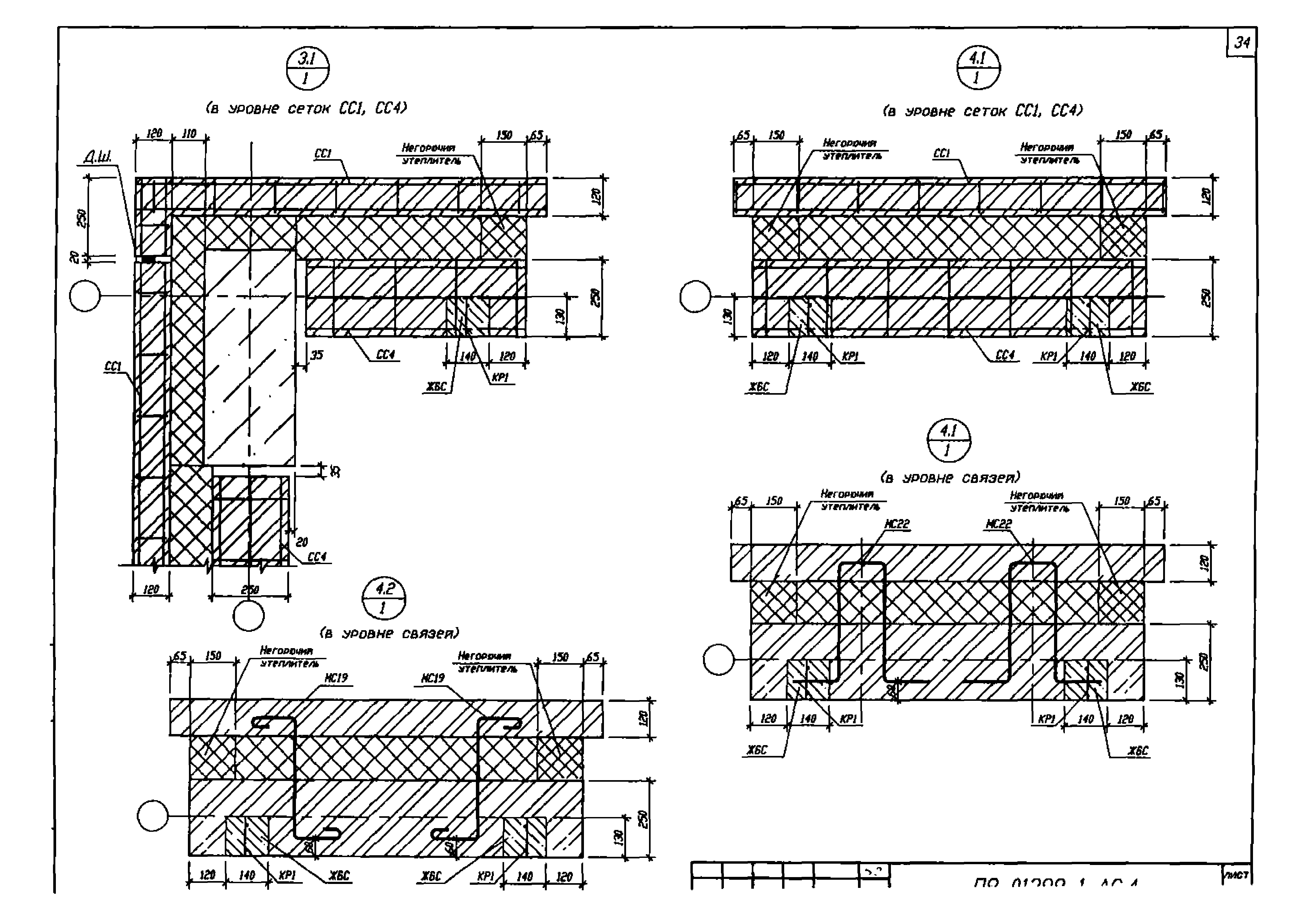
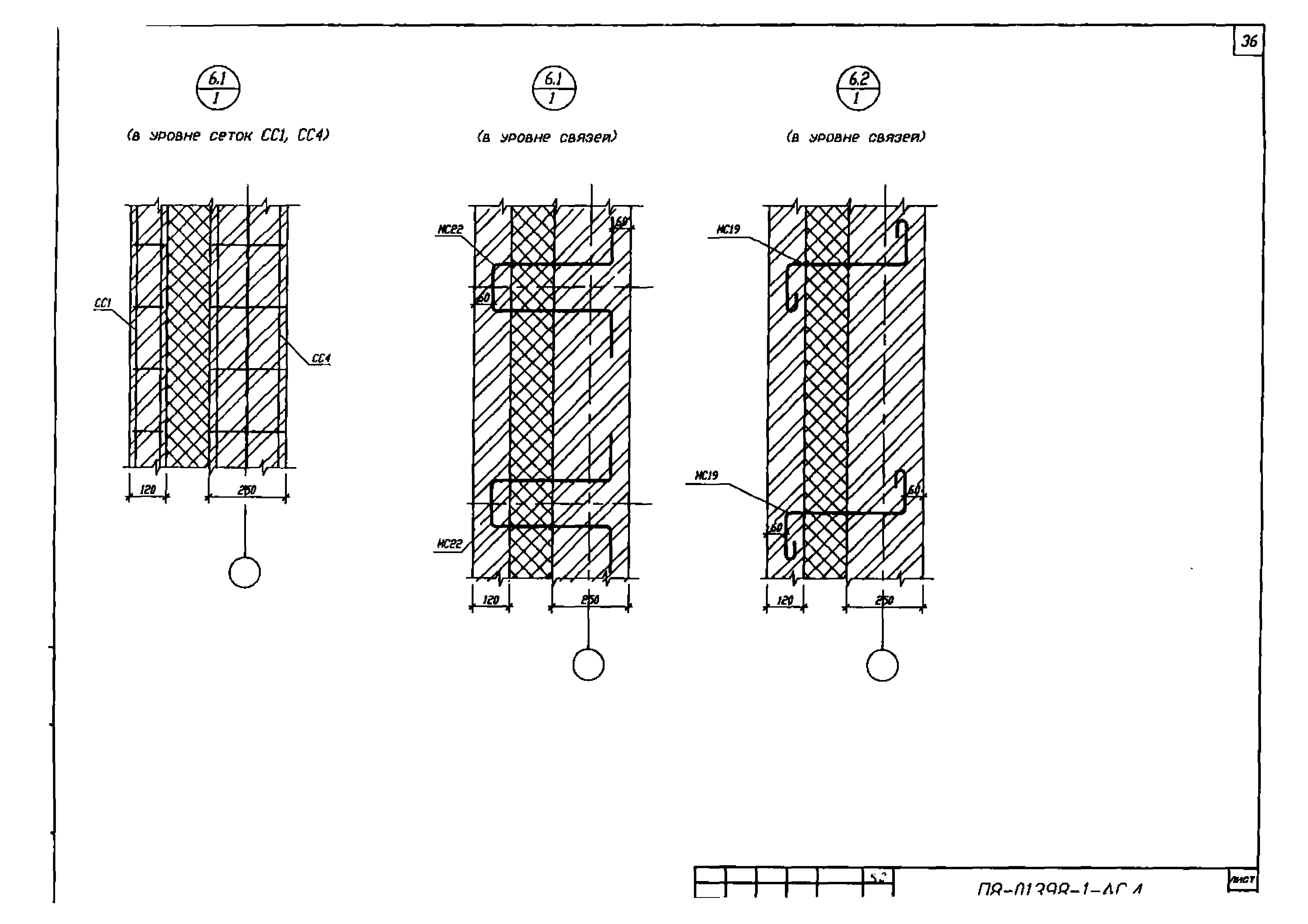
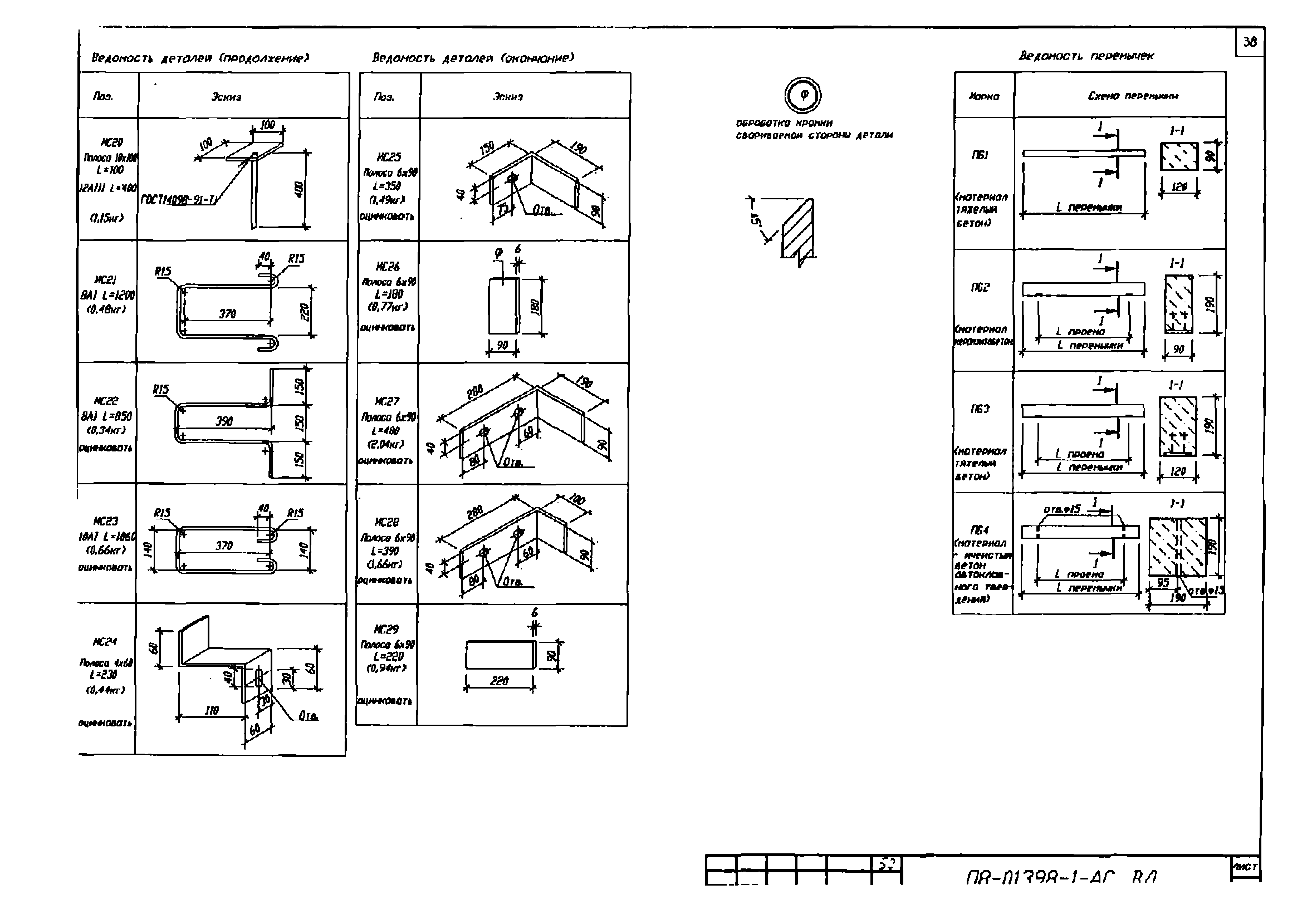
| Оглавление: | Пояснительная записка Тип 1.1 Тип 1.2 Тип 1.3 Тип 1.4 Ведомость деталей |
| Разработан: | ОАО Краснодаргражданпроект |
| Утверждён: | 01.01.2001 Департамент по строительству и архитектуре администрации Краснодарского края (Department of Construction and Architecture, Administration of Krasnodar Territory ) |







































