Скачать Серия 1.459-1 Выпуск 2. Площадки из горячекатаных профилей с настилом из просечно-вытяжной и рифленой сталей из элементов штампованного и решетчатого типов. Чертежи КМДата актуализации: 01.01.2021
|
| Обозначение: | Серия 1.459-1 |
| Обозначение англ: | Series 1.459-1 |
| Статус: | заменен |
| Название рус.: | Выпуск 2. Площадки из горячекатаных профилей с настилом из просечно-вытяжной и рифленой сталей из элементов штампованного и решетчатого типов. Чертежи КМ |
| Дата добавления в базу: | 01.09.2013 |
| Дата актуализации: | 01.01.2021 |
| Дата введения: | 01.07.1974 |
| Дата окончания срока действия: | 01.11.1984 |
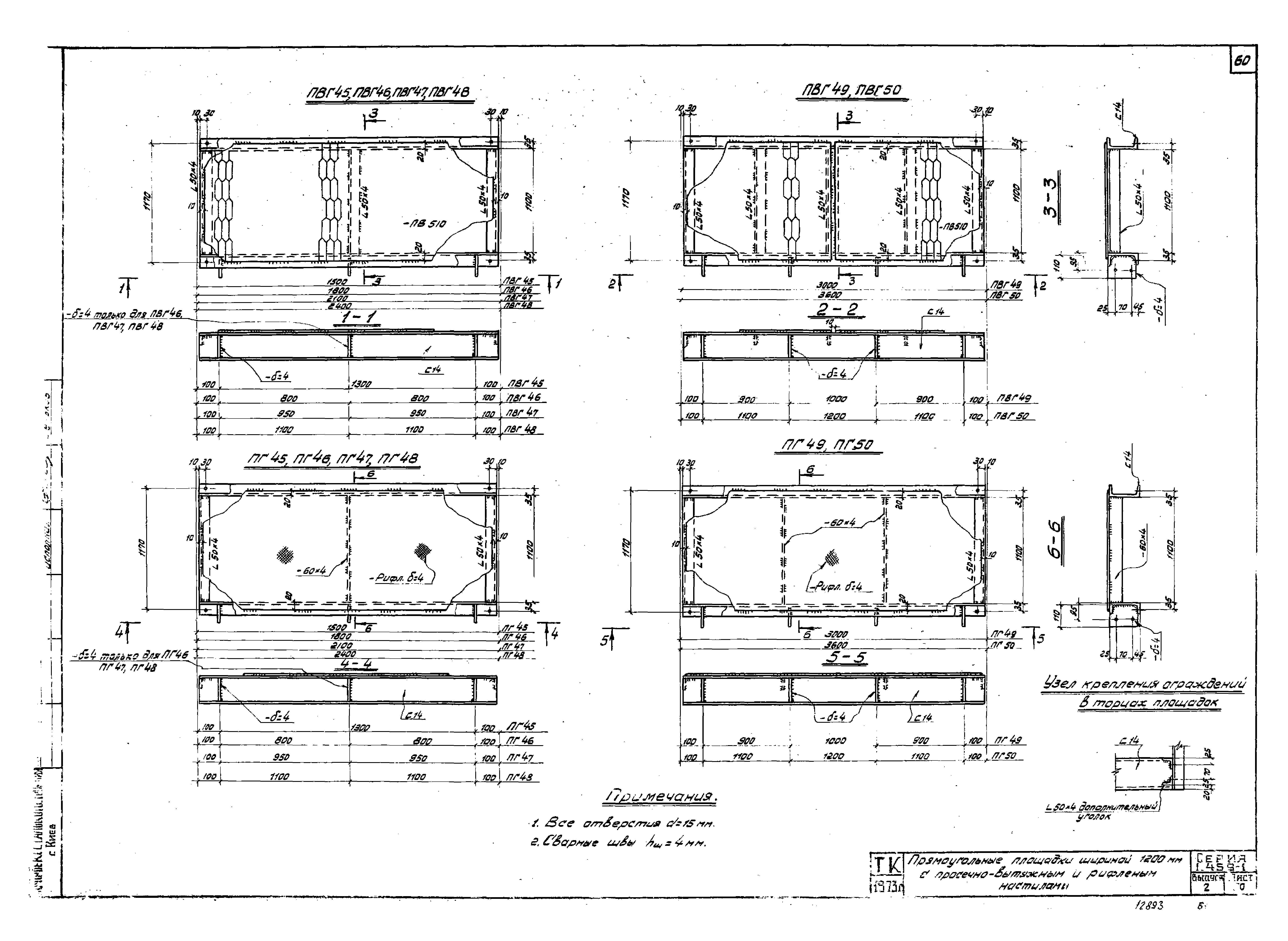
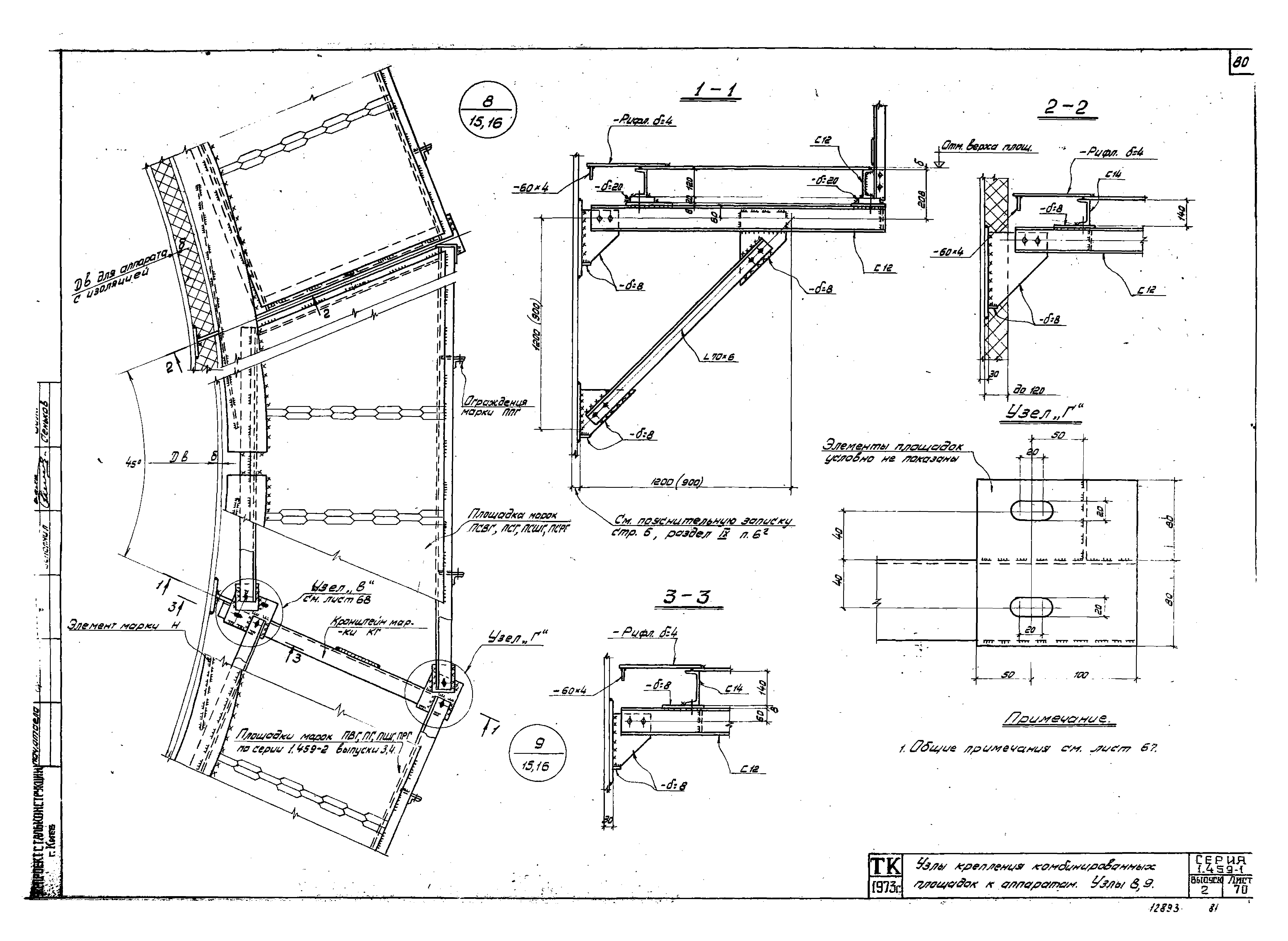
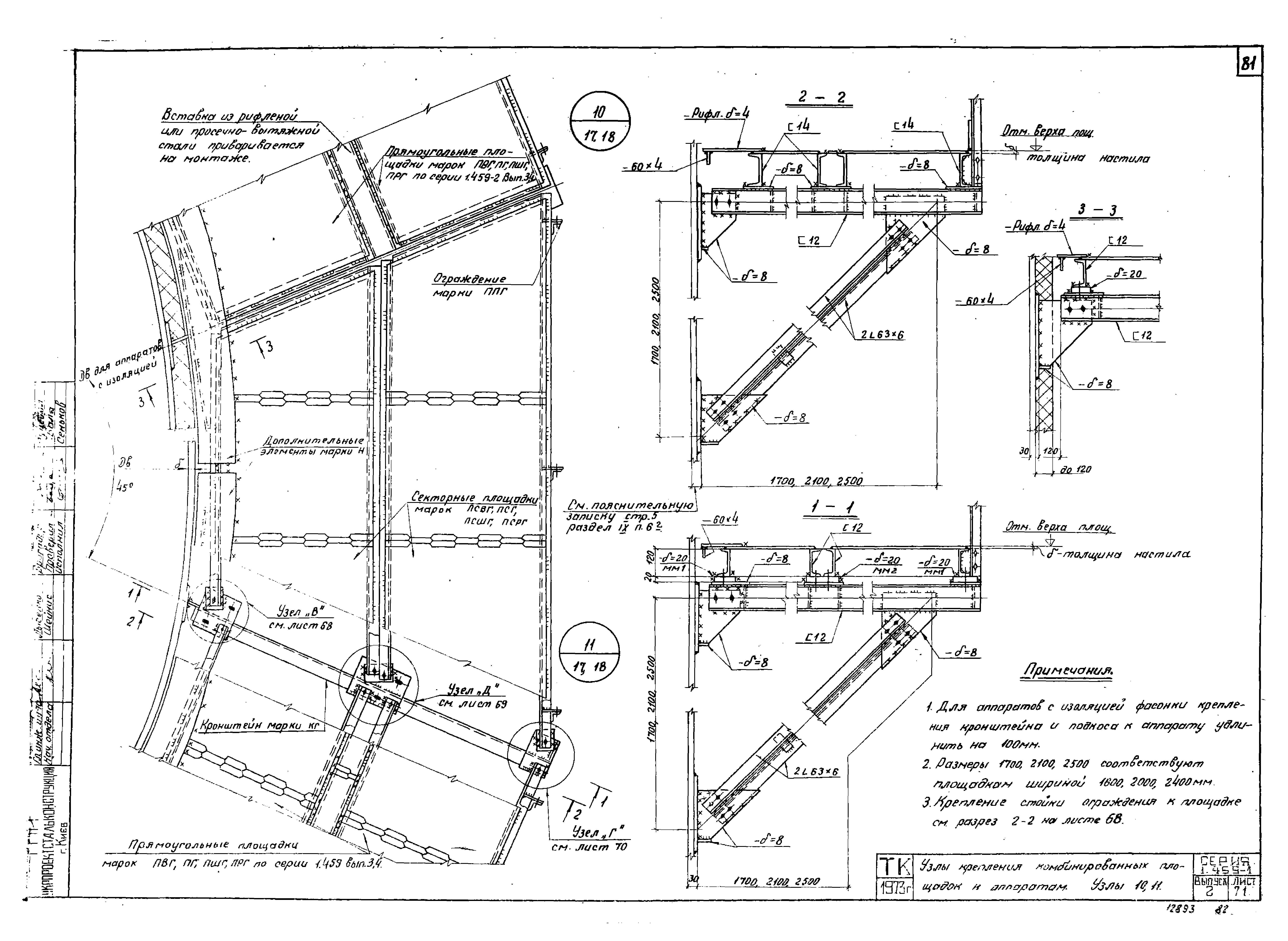
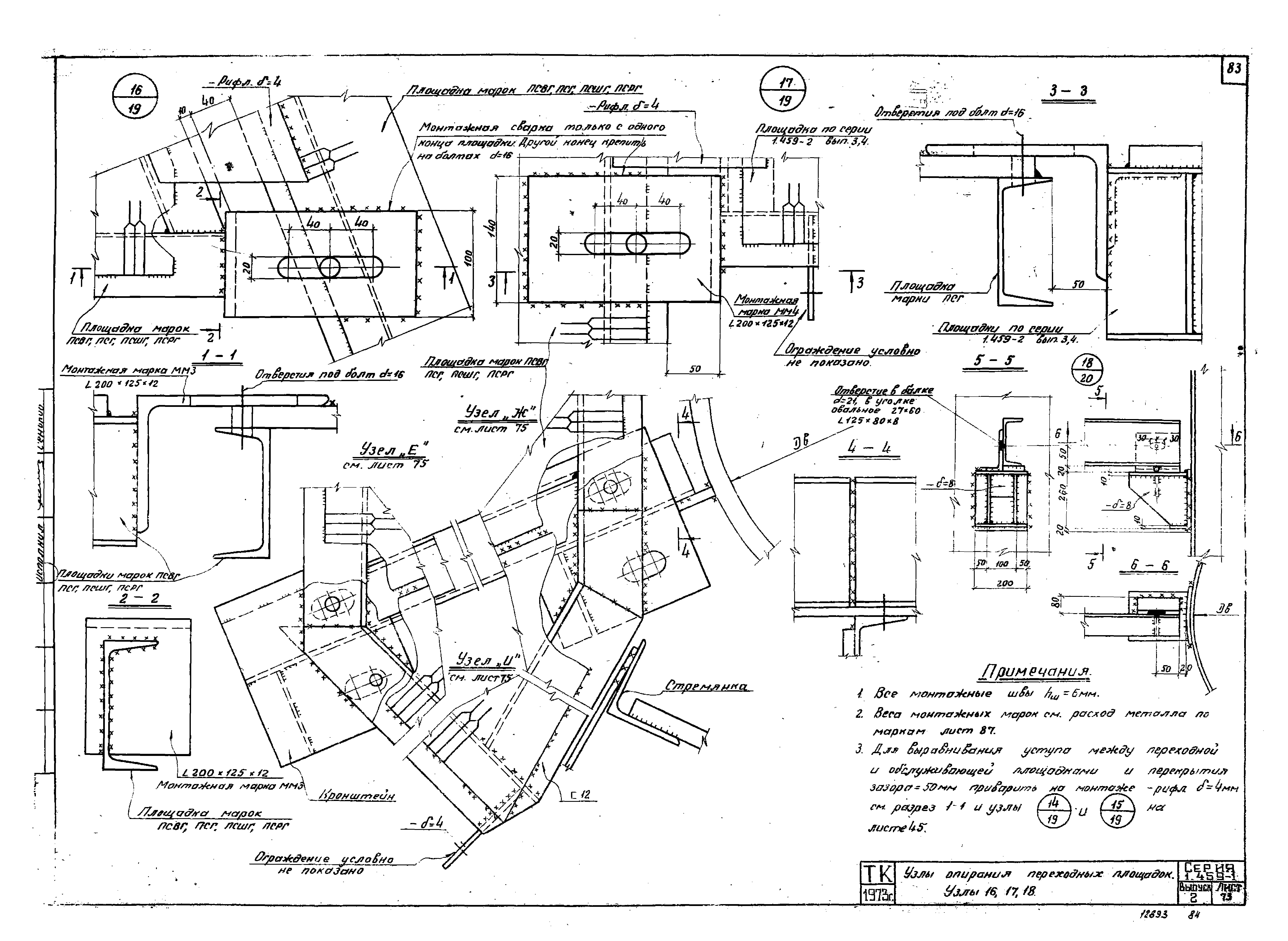
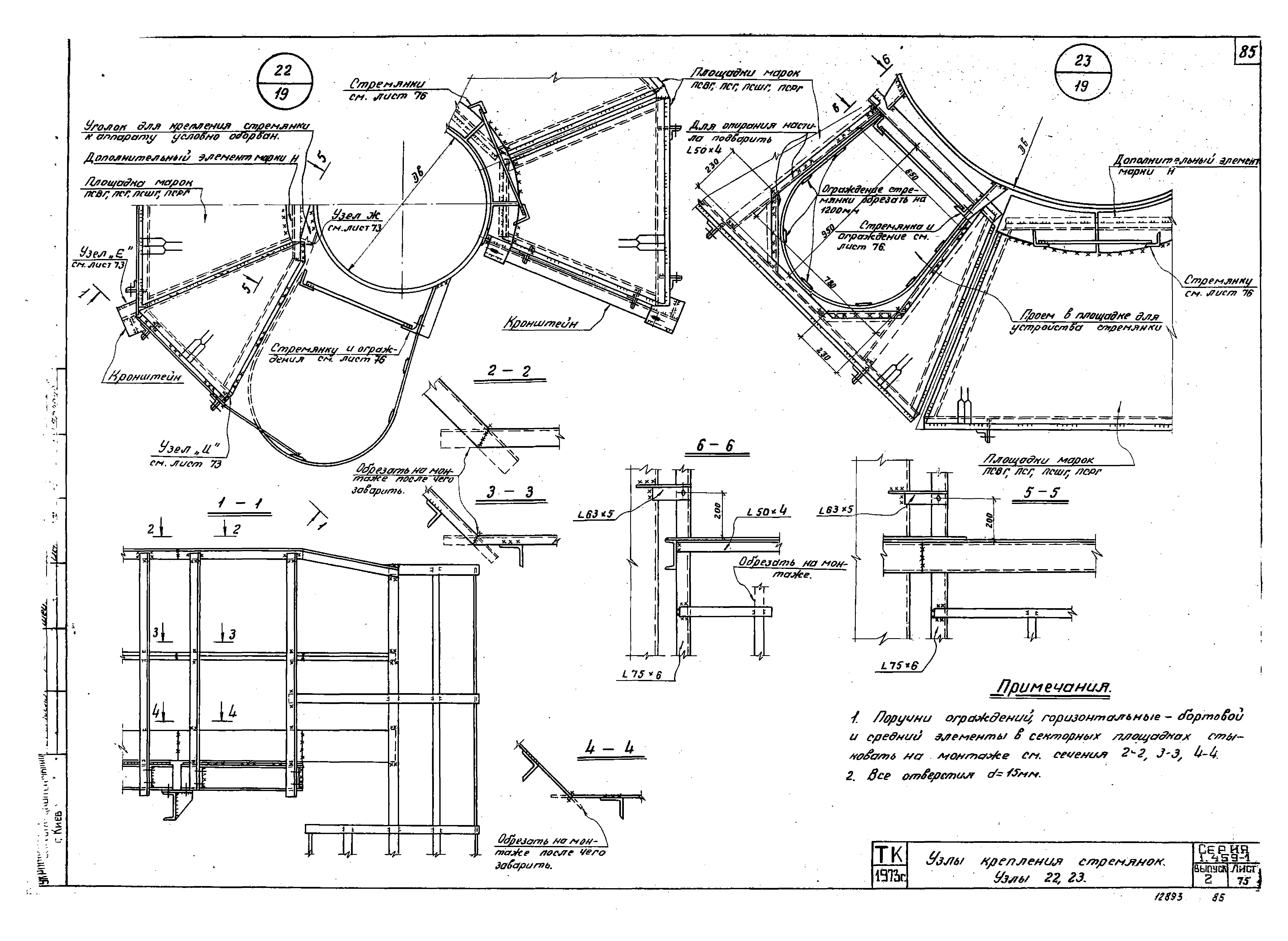
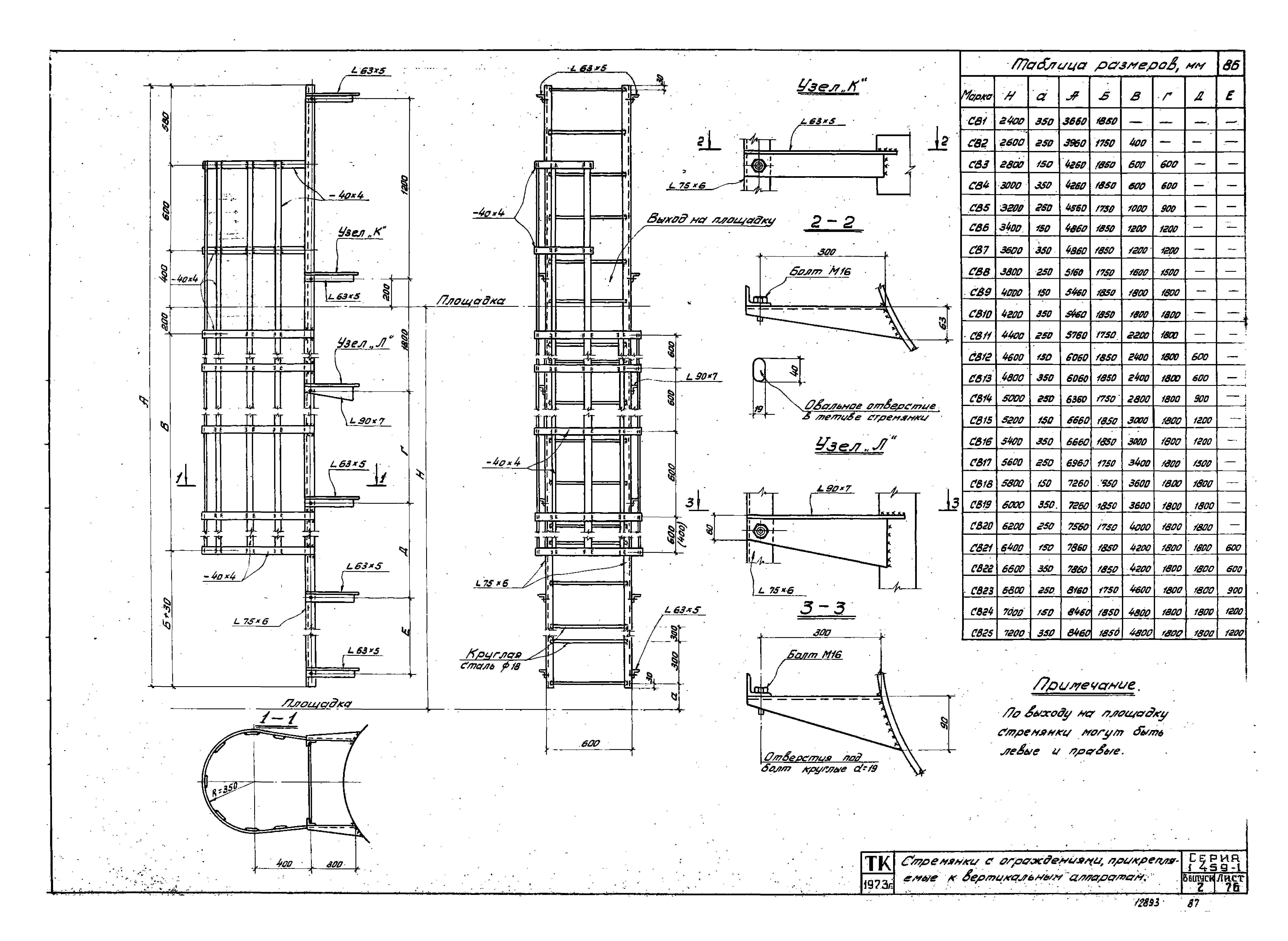
| Оглавление: | Содержание Пояснительная записка Таблицы нагрузок на стенки аппаратов от кронштейнов Основные компоновочные схемы площадок для вертикальных аппаратов. Схемы №№1, 2, 3, 4 Ключ для выбора марок площадок Ключ для выбора марок прямоугольных, переходных площадок и дополнительных элементов Ключ для выбора марок кронштейнов и консолей Ключ для выбора марок ограждений Монтажные схемы секторных площадок, кронштейнов и ограждений Монтажные схемы комбинированных площадок, кронштейнов и ограждений Монтажные схемы переходных площадок и стремянок Схемы лестниц Монтажные схемы ограждений Схемы разбивки фасонок Кронштейны для площадок шириной 800, 1000, 1200 мм Консоли КНГ1, КНГ2, КНГ3, КНГ4, КНГ5, КНГ6 и узлы 24, 25, 26 Кронштейны для площадок шириной 1600, 2000, 2400 мм Секторные площадки с просечно-вытяжным настилом шириной 800 и 1000 мм Секторные площадки с просечно-вытяжным настилом шириной 1200 мм. Узел 1 Секторные площадки с просечно-вытяжным настилом шириной 800, 1000 и 1200 мм Секторные площадки с рифленым настилом Секторные площадки с настилом из элементов штампованного типа ПСШГ1 - ПСШГ24, ПСШГ37 Секторные площадки с настилом из элементов штампованного типа ПСШГ25 - ПСШГ29, ПСШГ31, ПСШГ32, ПСШГ34, ПСШГ38, ПСШГ39 Секторные площадки с настилом из элементов штампованного типа ПСШГ30, ПСШГ33, ПСШГ35, ПСШГ36, ПСШГ40 - ПСШГ47, ПСШГ49, ПСШГ50, ПСШГ55 Секторные площадки с настилом из элементов штампованного типа ПСШГ48, ПСШГ51, ПСШГ52, ПСШГ56, ПСШГ57 Секторные площадки с настилом из элементов штампованного типа ПСШГ53, ПСШГ54, ПСШГ58 - ПСШГ69, ПСШГ73 - ПСШГ75 Секторные площадки с настилом из элементов штампованного типа ПСШГ70, ПСШГ71, ПСШГ72, ПСШГ76 - ПСШГ87, ПСШГ91, ПСШГ92 Секторные площадки с настилом из элементов штампованного типа ПСШГ88, ПСШГ89, ПСШГ90 Секторные площадки с настилом из элементов решетчатого типа ПСРГ1 - ПСРГ24, ПСРГ37 Секторные площадки с настилом из элементов решетчатого типа ПСРГ25 - ПСРГ29, ПСРГ31, ПСРГ32, ПСРГ34, ПСРГ38, ПСРГ39 Секторные площадки с настилом из элементов решетчатого типа ПСРГ30, ПСРГ33, ПСРГ35, ПСРГ36, ПСРГ40 - ПСРГ47, ПСРГ49, ПСРГ50, ПСРГ55 Секторные площадки с настилом из элементов решетчатого типа ПСРГ48, ПСРГ51, ПСРГ52, ПСРГ56, ПСРГ57 Секторные площадки с настилом из элементов решетчатого типа ПСРГ53, ПСРГ58 - ПСРГ69, ПСРГ73 - ПСРГ75 Секторные площадки с настилом из элементов решетчатого типа ПСРГ70, ПСРГ71, ПСРГ72, ПСРГ76 - ПСРГ87, ПСРГ91, ПСРГ92 Секторные площадки с настилом из элементов решетчатого типа ПСРГ88, ПСРГ89, ПСРГ90 Прямоугольные площадки шириной 1200 мм с просечно-вытяжным и рифленым настилами Прямоугольные площадки шириной 1200 мм с настилами из элементов штампованного и решетчатого типов Переходные площадки с просечно-вытяжным настилом ДПВГ1 - ДПВГ14 Переходные площадки с рифленым настилом ДПГ1 - ДПГ14 Переходные площадки с настилом из элементов штампованного типа ДПШГ1, ДПШГ2 Переходные площадки с настилом из элементов штампованного типа ДПШГ3, ДПШГ4, ДПШГ5 Переходные площадки с настилом из элементов штампованного типа ДПШГ6, ДПШГ7, ДПШГ8, ДПШГ9, ДПШГ10 Переходные площадки с настилом из элементов штампованного типа ДПШГ11, ДПШГ12, ДПШГ13, ДПШГ14 Переходные площадки с настилом из элементов решетчатого типа ДПРГ1, ДПРГ2 Переходные площадки с настилом из элементов решетчатого типа ДПРГ3, ДПРГ4, ДПРГ5 Переходные площадки с настилом из элементов решетчатого типа ДПРГ6, ДПРГ7, ДПРГ8, ДПРГ9, ДПРГ10 Переходные площадки с настилом из элементов решетчатого типа ДПРГ11, ДПРГ12, ДПРГ13, ДПРГ14 Узлы №№43, 44, 45 Ограждения секторных площадок Узлы крепления секторных площадок к аппаратам. Узлы 2, 3 Узлы крепления секторных площадок к аппаратам. Узлы 4, 5 Узлы крепления секторных площадок к аппаратам. Узлы 6, 7 Узлы крепления комбинированных площадок к аппаратам. Узлы 8, 9 Узлы крепления комбинированных площадок к аппаратам. Узлы 10, 11 Узлы опирания переходных площадок. Узлы 12, 13, 14, 15 Узлы опирания переходных площадок. Узлы 16, 17, 18 Узлы опирания лестниц на площадки. Узлы 19, 20, 21 Узлы крепления стремянок. Узлы 22, 23 Стремянки с ограждениями, прикрепляемые к вертикальным аппаратам Схемы расположения площадок горизонтальных аппаратов Схемы опирания площадок на горизонтальные аппараты. Схемы №№1, 2, 3. Узел 36 Схемы опирания площадок на вертикальные аппараты. Схемы №№4, 5 Схемы опирания площадок на вертикальные аппараты. Схемы №№6, 7, 8 Схемы опирания площадок на вертикальные аппараты и стойки. Схемы №№9, 10 Узлы опирания площадок на горизонтальные аппараты. Узлы 27, 28, 29 Узлы опирания площадок на горизонтальные аппараты. Узлы 30, 31, 32, 33, 34, 35 Узлы опирания площадок на вертикальные аппараты. Узлы 37, 38, 39, 40, 41, 42 Расход стали по маркам в кг Приложение №1. Примеры решения кольцевых и переходных площадок для вертикальных аппаратов с использованием типовых элементов. Схемы 1, 2, 3, 4 Приложение №2. Примеры решения кольцевых и переходных площадок для вертикальных аппаратов с использованием типовых элементов. Схемы 5, 6, 7, 8 Приложение №3. Примеры решения кольцевых и переходных площадок для вертикальных аппаратов с использованием типовых элементов. Схемы 9, 10 Приложение №4. Примеры решения кольцевых и переходных площадок для вертикальных аппаратов с использованием типовых элементов. Схемы 11, 12 ,13 Приложение №5. Примеры решения кольцевых и переходных площадок для вертикальных аппаратов с использованием типовых элементов. Схемы 14, 15 Сводная таблица масс элементов площадок в кг для аппаратов диаметром от 800 до 6800 мм |
| Разработан: | ЦНИИпроектстальконструкция Укрпроектстальконструкция |
| Утверждён: | 16.04.1974 Госстрой СССР (Государственный комитет Совета Министров СССР по делам строительства) (USSR Gosstroy 77) |
| Чем заменён: |







































































































