Скачать Типовой проект 501-260 Часть I. Общая частьДата актуализации: 01.01.2021
|
| Обозначение: | Типовой проект 501-260 |
| Обозначение англ: | 501-260 |
| Статус: | отменен |
| Название рус.: | Часть I. Общая часть |
| Дата добавления в базу: | 01.09.2013 |
| Дата актуализации: | 01.01.2021 |
| Дата введения: | 01.09.1975 |
| Дата окончания срока действия: | 01.10.2000 |
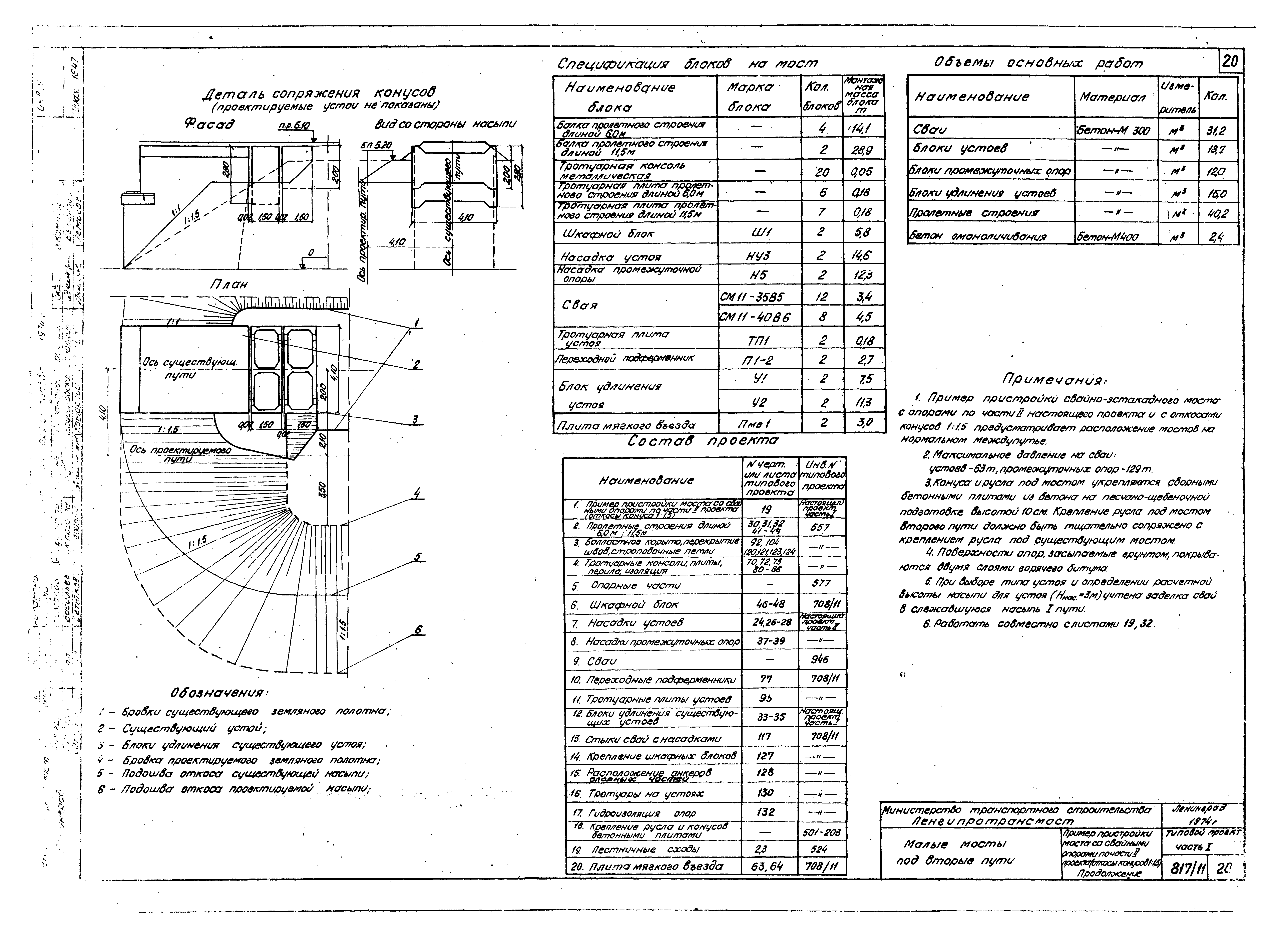
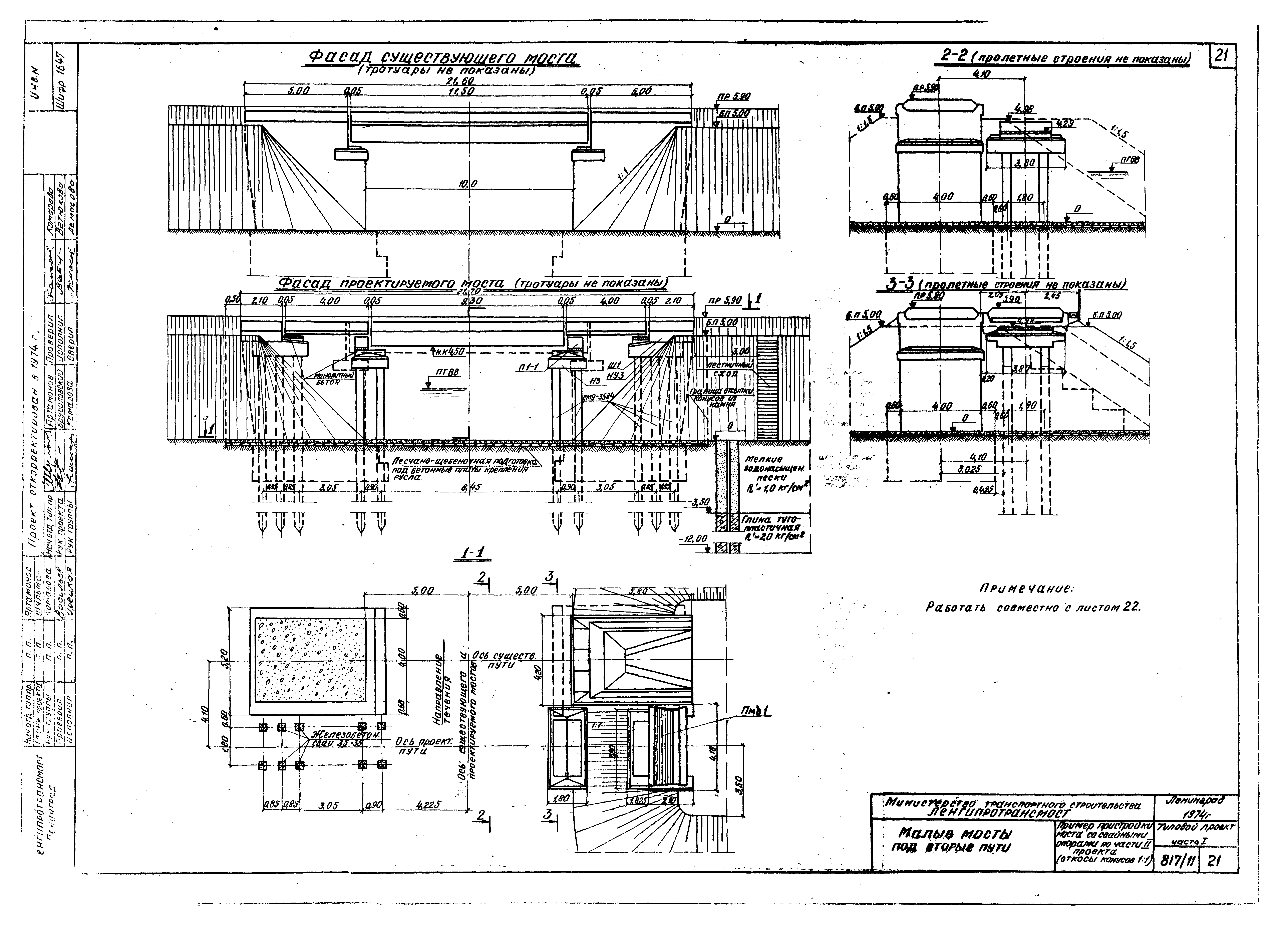
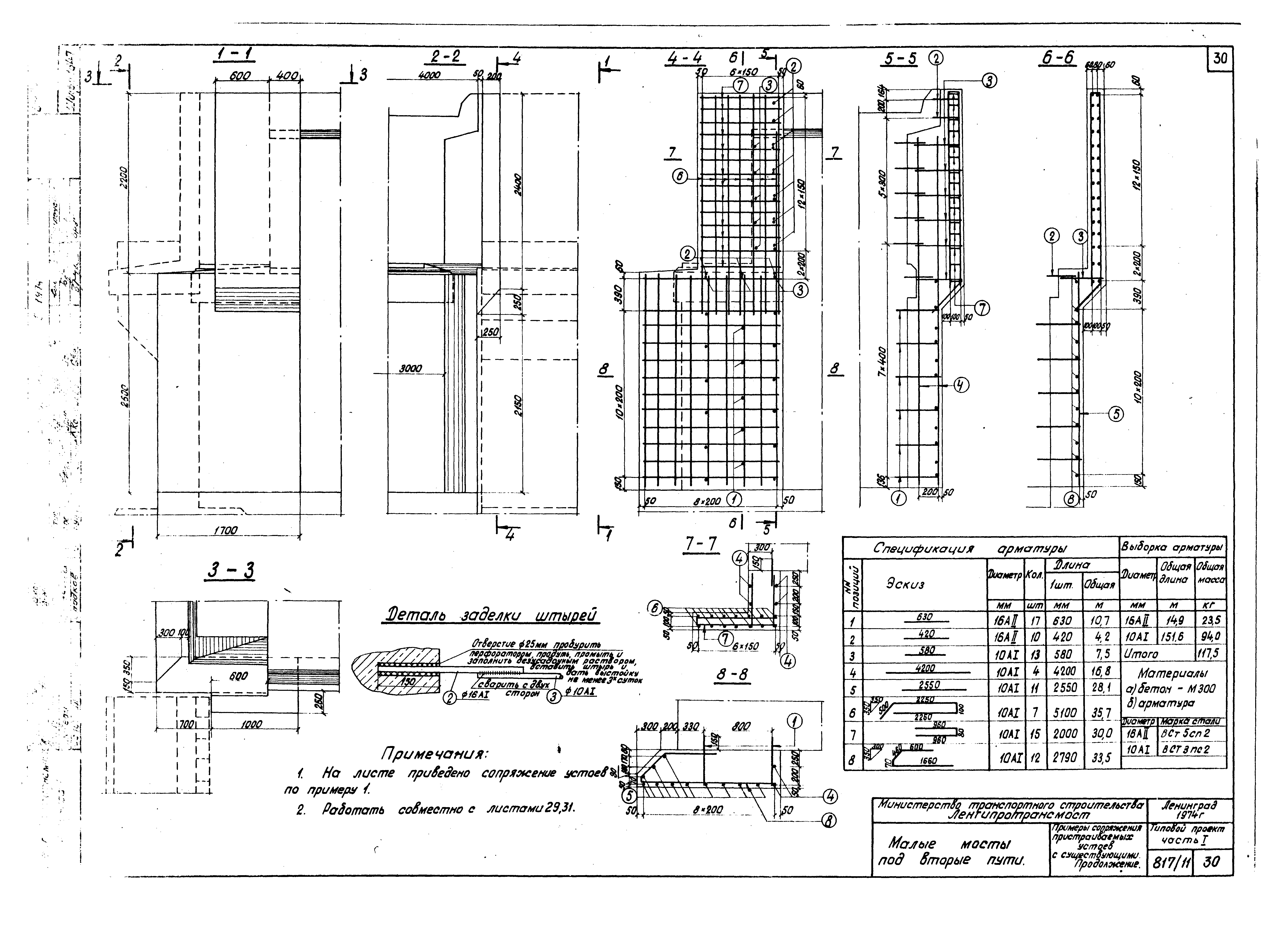
| Оглавление: | Пояснительная записка Основные данные пристраиваемых сооружений Рекомендации по выбору типов сооружений и определению междупутий Пример пристройки железобетонной трубы по типовому проекту инв. №180 Пример пристройки железобетонной трубы по типовому проекту инв. №180. Блок сопряжения Пример пристройки моста по типовому проекту инв. №708/11 со свайными опорами (откосы конусов 1:1,5) Пример пристройки моста по типовому проекту инв. №708/11 со свайными опорами (откосы конусов 1:1) Пример пристройки моста с опорами на естественном основании по типовому проекту инв. №708/11 (откосы конусов 1:1,5) Пример пристройки моста со свайными опорами по части II проекта (откосы конусов 1:1,5) Пример пристройки моста со свайными опорами по части II проекта (откосы конусов 1:1) Пример пристройки моста с опорами на естественном основании по части II проекта (откосы конусов 1:1) Пример пристройки моста с устоями по части III проекта с пролетными строениями длиной 6 м Пример пристройки моста с устоями по части III проекта с пролетными строениями длиной 11,5 м Примеры сопряжения пристраиваемых устоев с существующими Удлинение существующих устоев Блоки У1 и У2. Опалубочные чертежи Блок У1. Арматурный чертеж Блок У2. Арматурный чертеж Технико-экономические показатели пристраиваемых сооружений Пример двухпутного моста со свайными опорами по типовому проекту инв. №708/11 Пример двухпутного моста с опорами на естественном основании по типовому проекту инв. №708/11 на кривой |
| Разработан: | Ленгипротрансмост |
| Утверждён: | 28.03.1975 МПС (Ministry of Railroads П-8758) |








































