Скачать Типовой проект 407-9-32.90 Альбом 2. Электротехнические решения. Автоматизация и управлениеДата актуализации: 01.01.2021
|
| Обозначение: | Типовой проект 407-9-32.90 |
| Обозначение англ: | 407-9-32.90 |
| Статус: | не определен законодательством |
| Название рус.: | Альбом 2. Электротехнические решения. Автоматизация и управление |
| Дата добавления в базу: | 01.09.2013 |
| Дата актуализации: | 01.01.2021 |
| Дата введения: | 24.05.1990 |
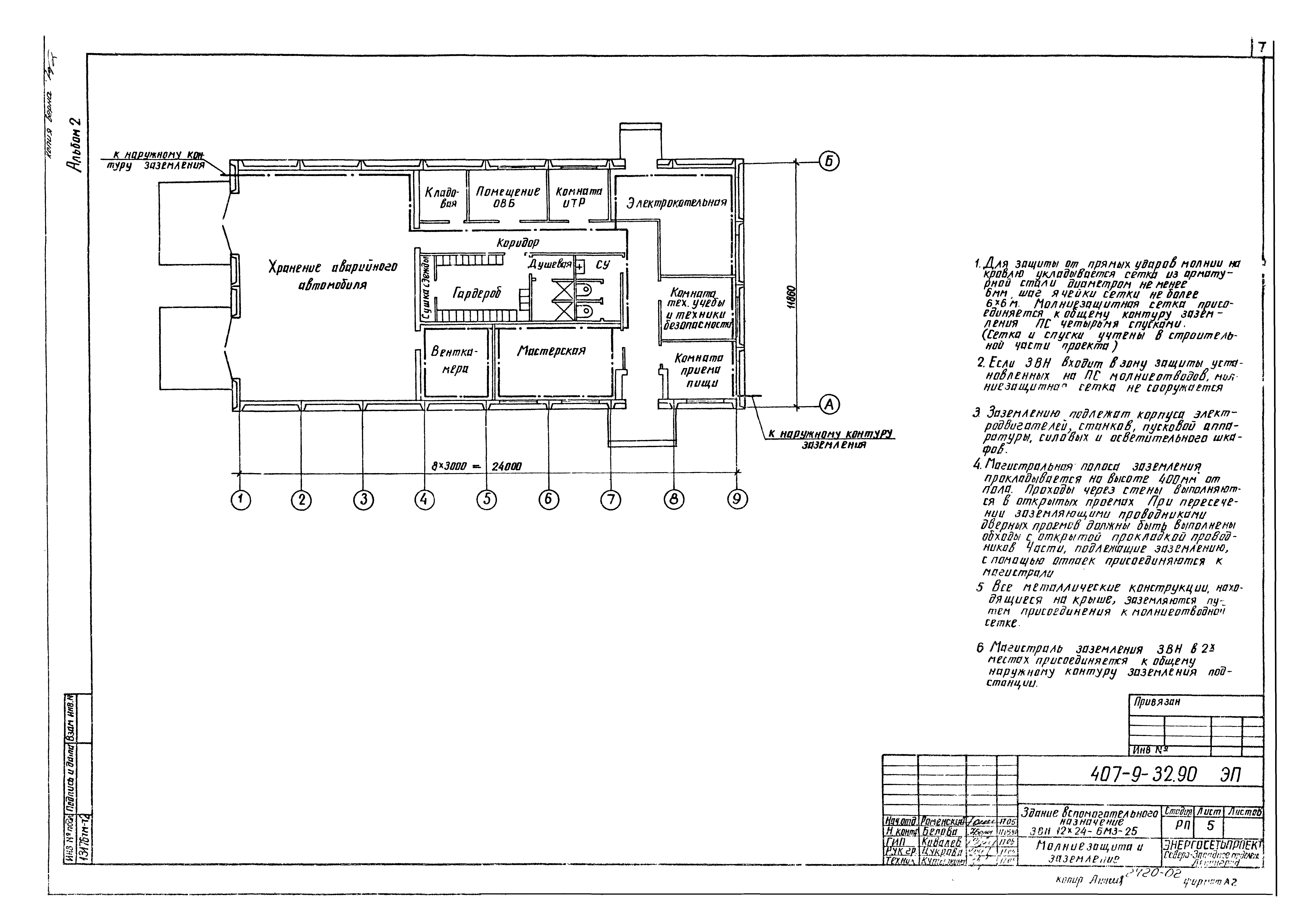
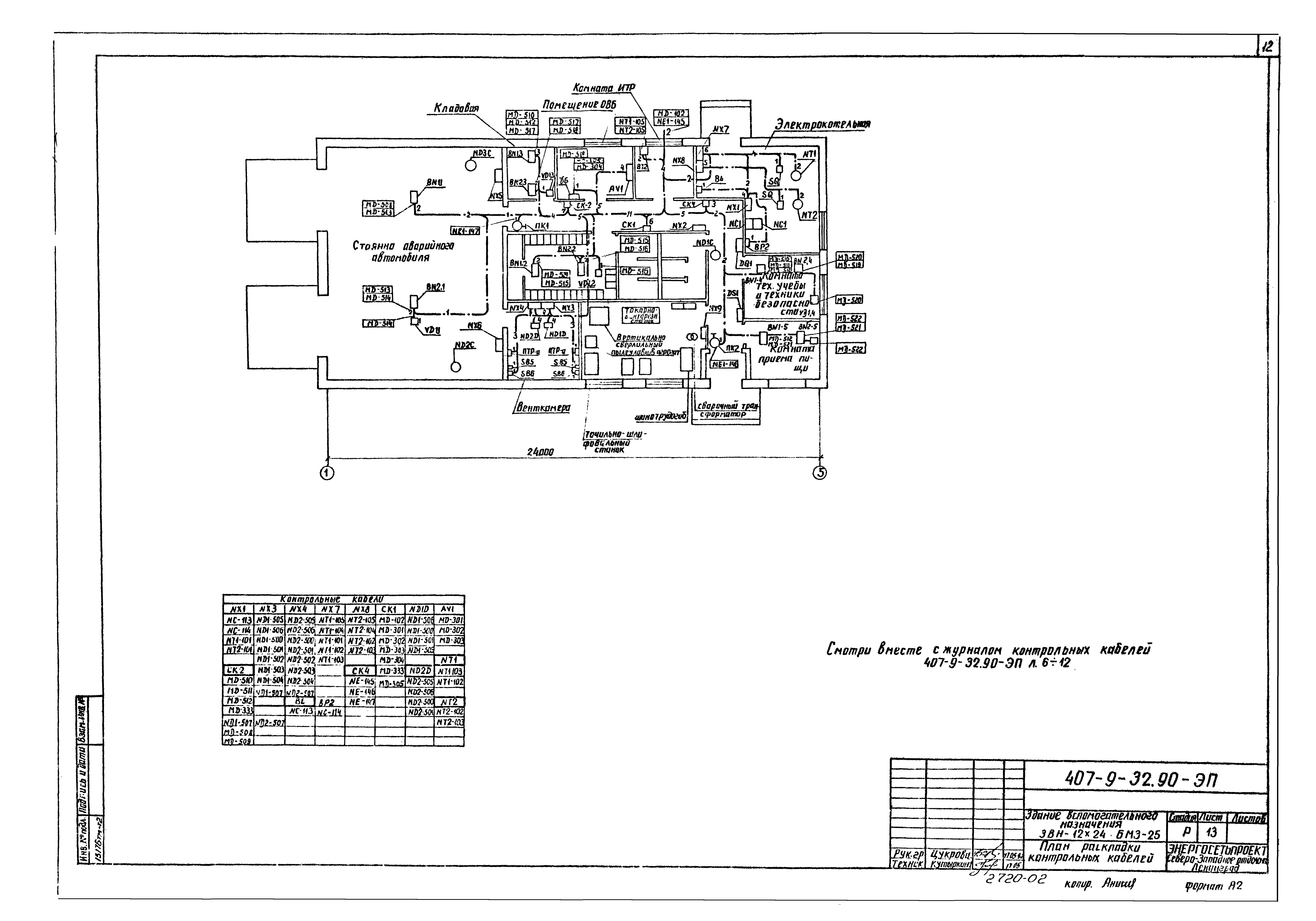
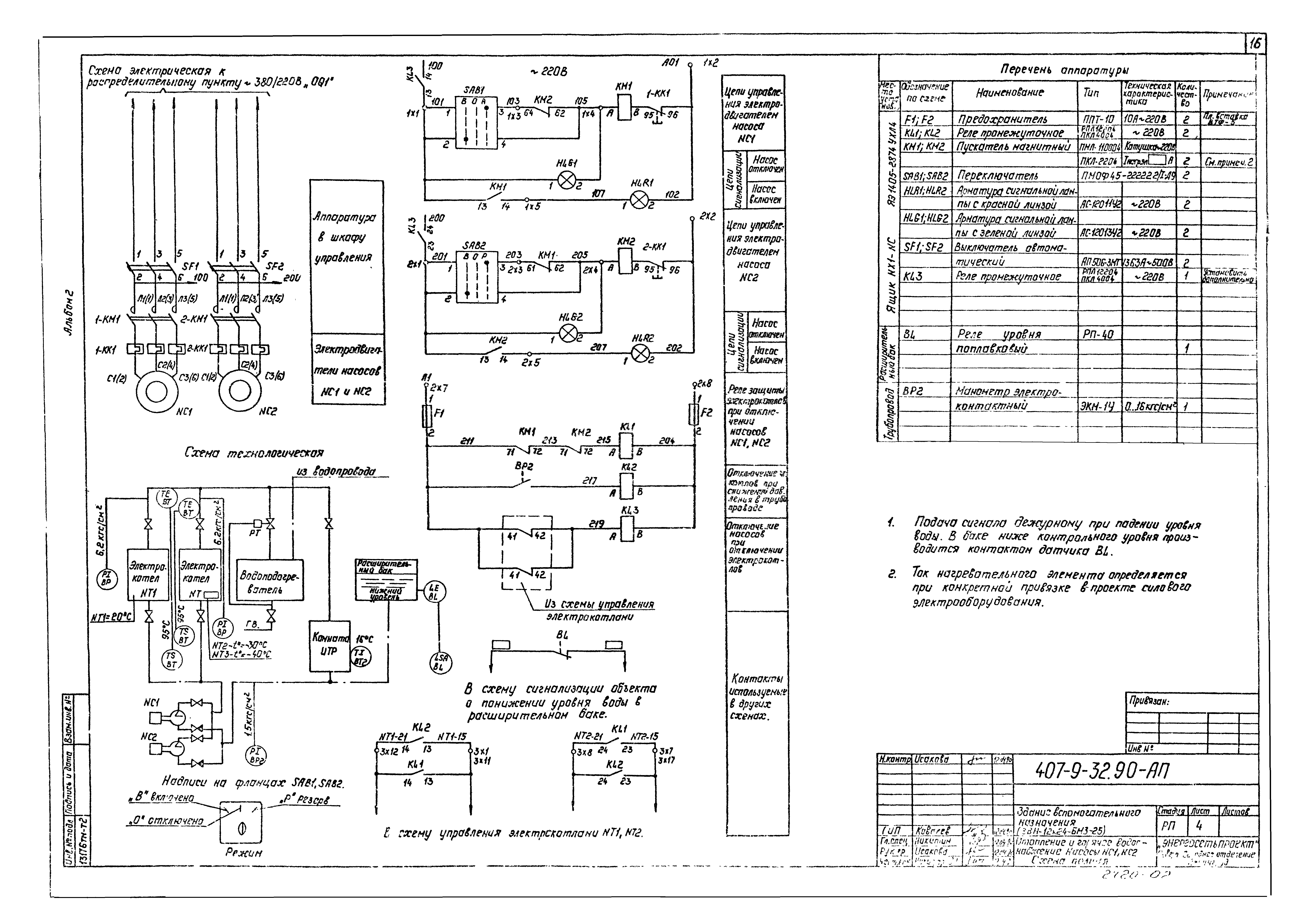
| Оглавление: | Электротехнические решения Общие данные Схема силовой распределительной сети План расположения оборудования. Силовая сеть Освещение. План и схема Молниезащита и заземление Журнал контрольных кабелей Журнал силовых кабелей План раскладки контрольных кабелей Автоматизация и управление Общие данные Отопление и горячее водоснабжение. Электрокотел NT1(NT2). Схема полная Отопление и горячее водоснабжение. Электрокотел NT1(NT2). Схема монтажная Отопление и горячее водоснабжение. Насосы NC1, NC2. Схема полная Отопление и горячее водоснабжение. Насосы NC1, NC2. Схема монтажная Приточная установка NO1. Схема полная Приточная установка NO1. Схема монтажная Приточная установка NO1. Схема подключения аппаратов Задвижка NE1 на обводной линии водомерного узла. Схема полная Задвижка NE1 на обводной линии водомерного узла. Схема монтажная ЗВН пожарная сигнализация. Схема полная ЗВН пожарная сигнализация. Схема монтажная Пожарная сигнализация. Схема подключения коробок |
| Разработан: | Северо-западное отделение института Энергосетьпроект |
| Утверждён: | 24.05.1990 Минэнерго СССР (USSR Minenergo 35) |
| Издан: | СЗО Энергосетьпроект (1990 г. ) |



























