Скачать Типовой проект 221-1-384.85 Альбом II. Витражи. Кинофикация. Технология и механизация. Водопровод и канализация. ХолодоснабжениеДата актуализации: 01.01.2021
|
| Обозначение: | Типовой проект 221-1-384.85 |
| Обозначение англ: | 221-1-384.85 |
| Статус: | действует |
| Название рус.: | Альбом II. Витражи. Кинофикация. Технология и механизация. Водопровод и канализация. Холодоснабжение |
| Дата добавления в базу: | 01.09.2013 |
| Дата актуализации: | 01.01.2021 |
| Дата введения: | 27.03.1985 |
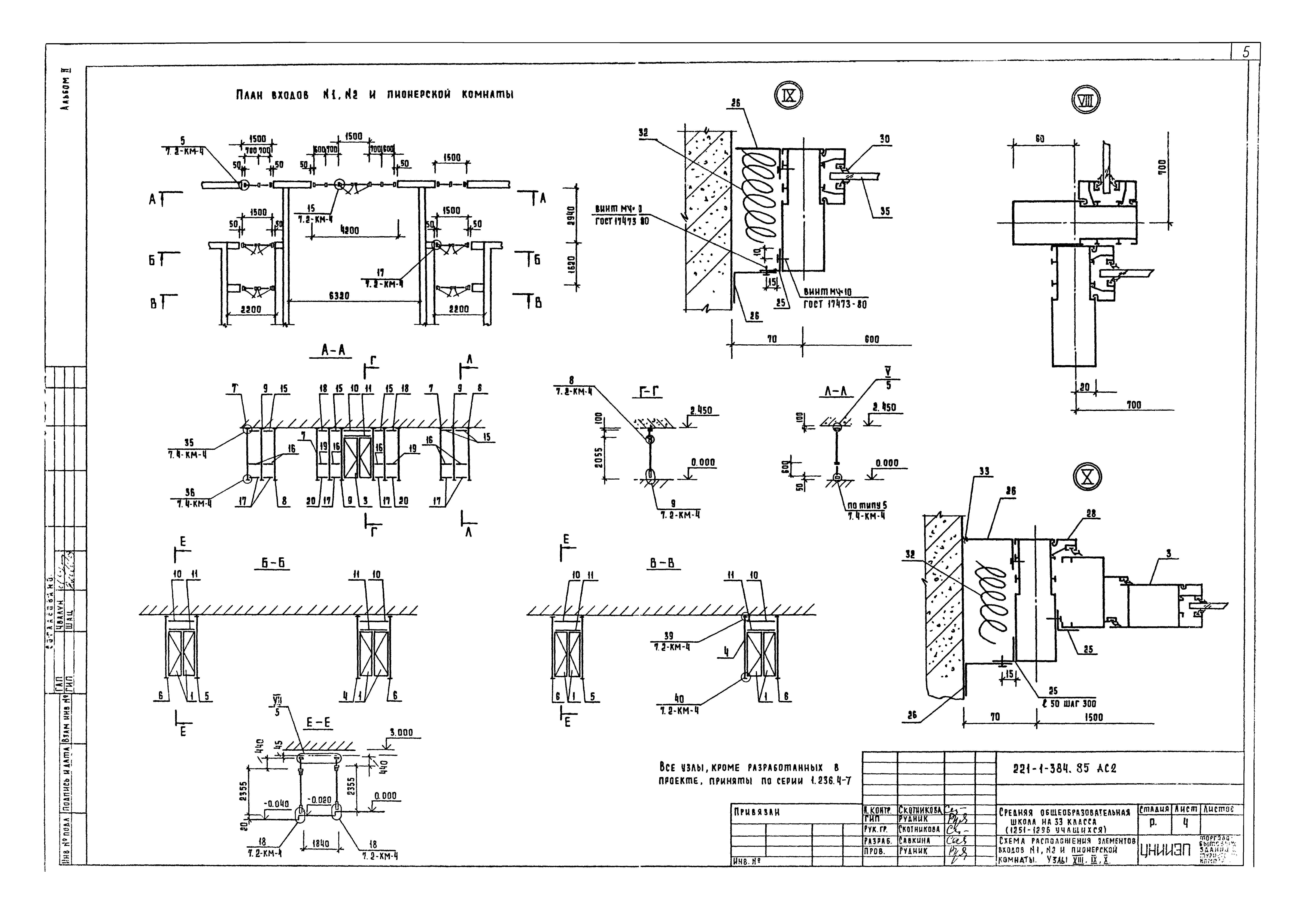
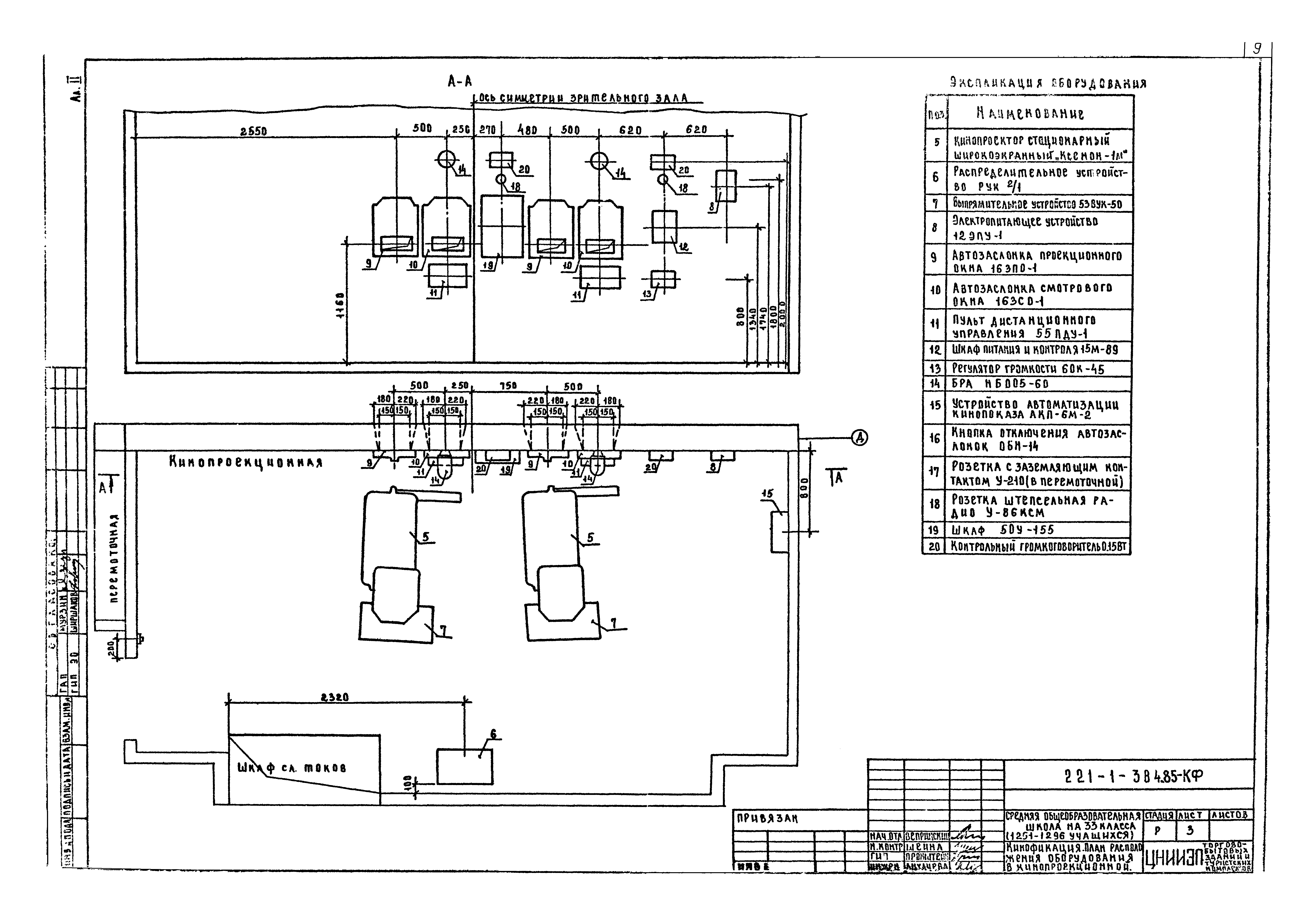
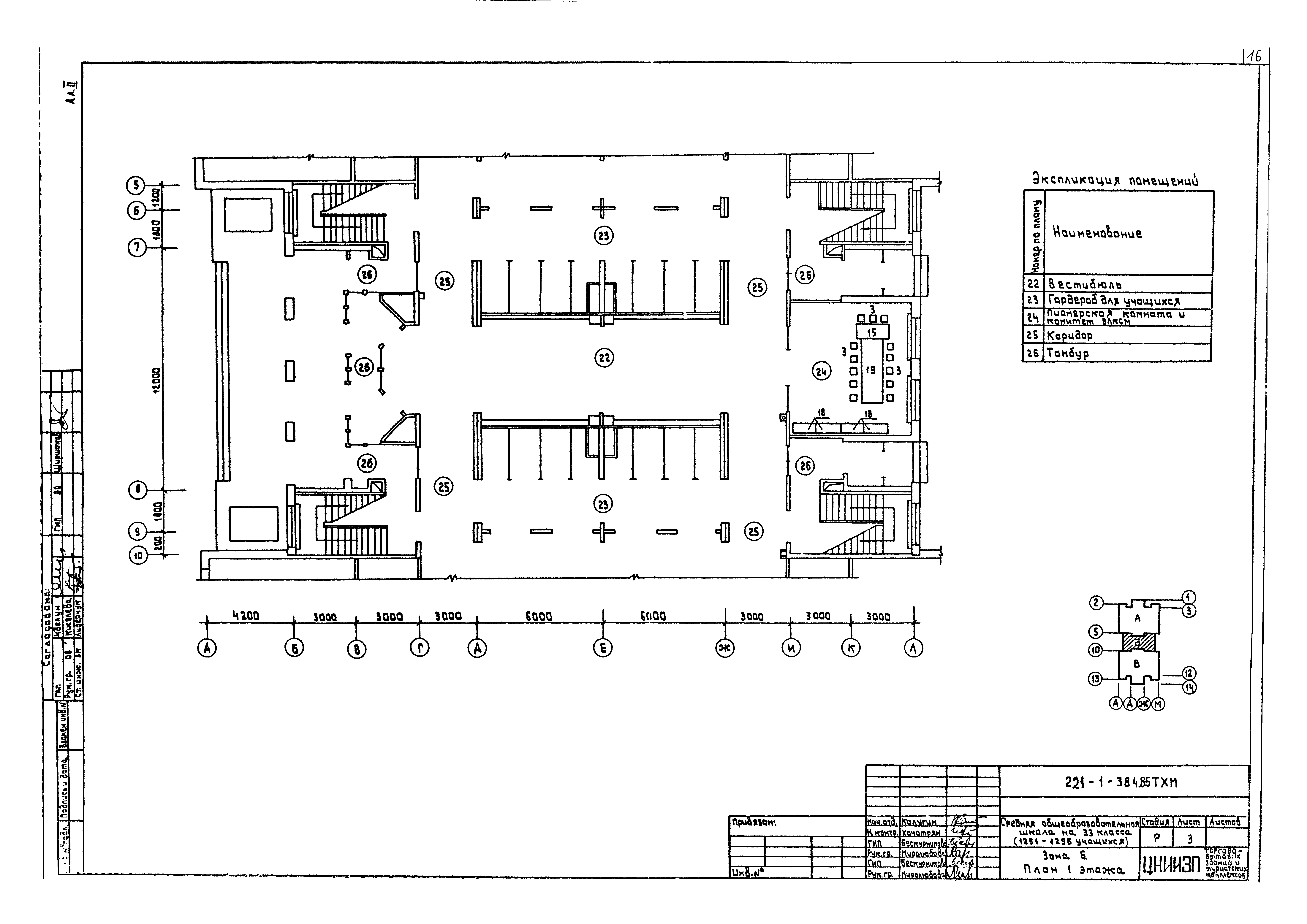
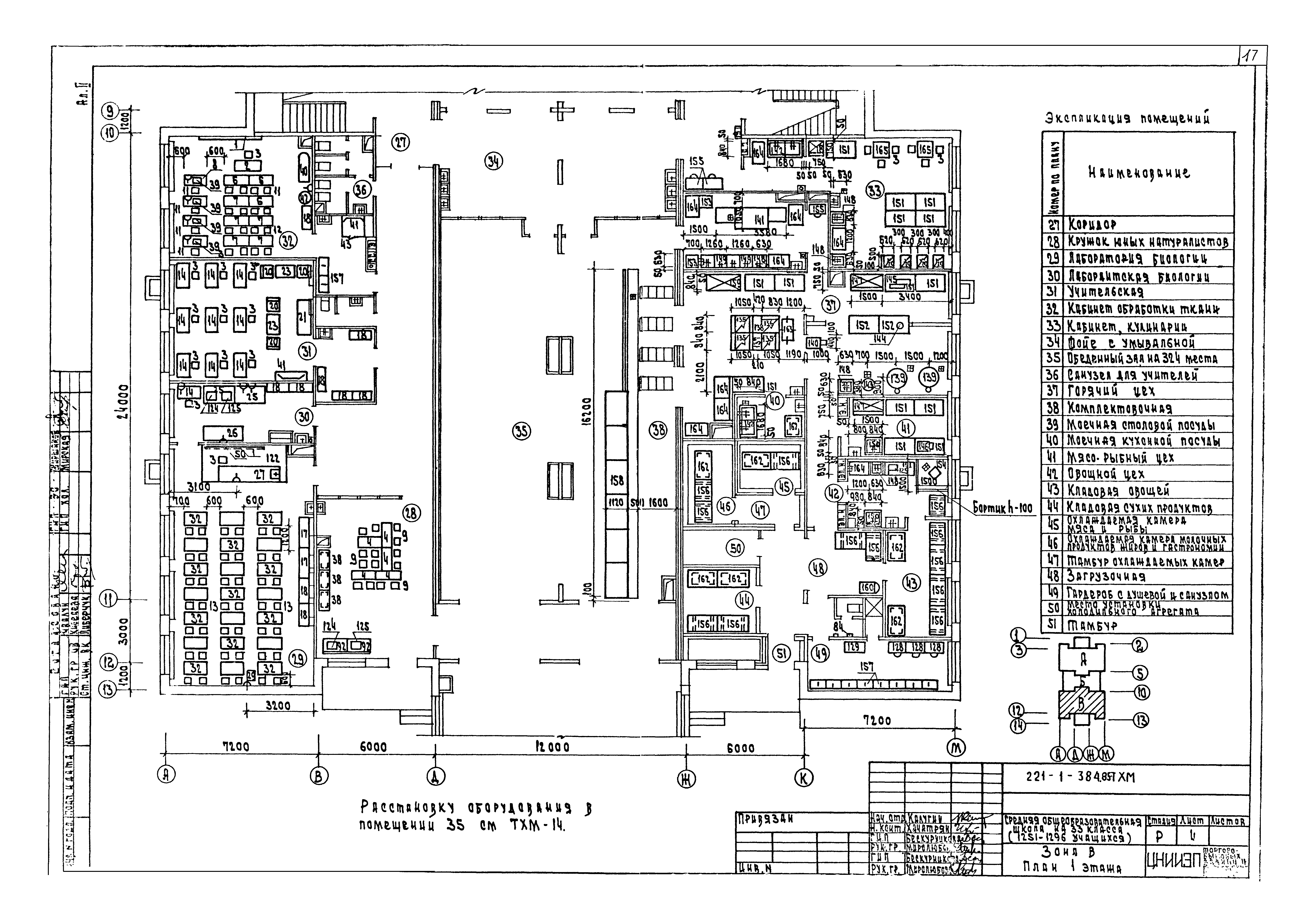
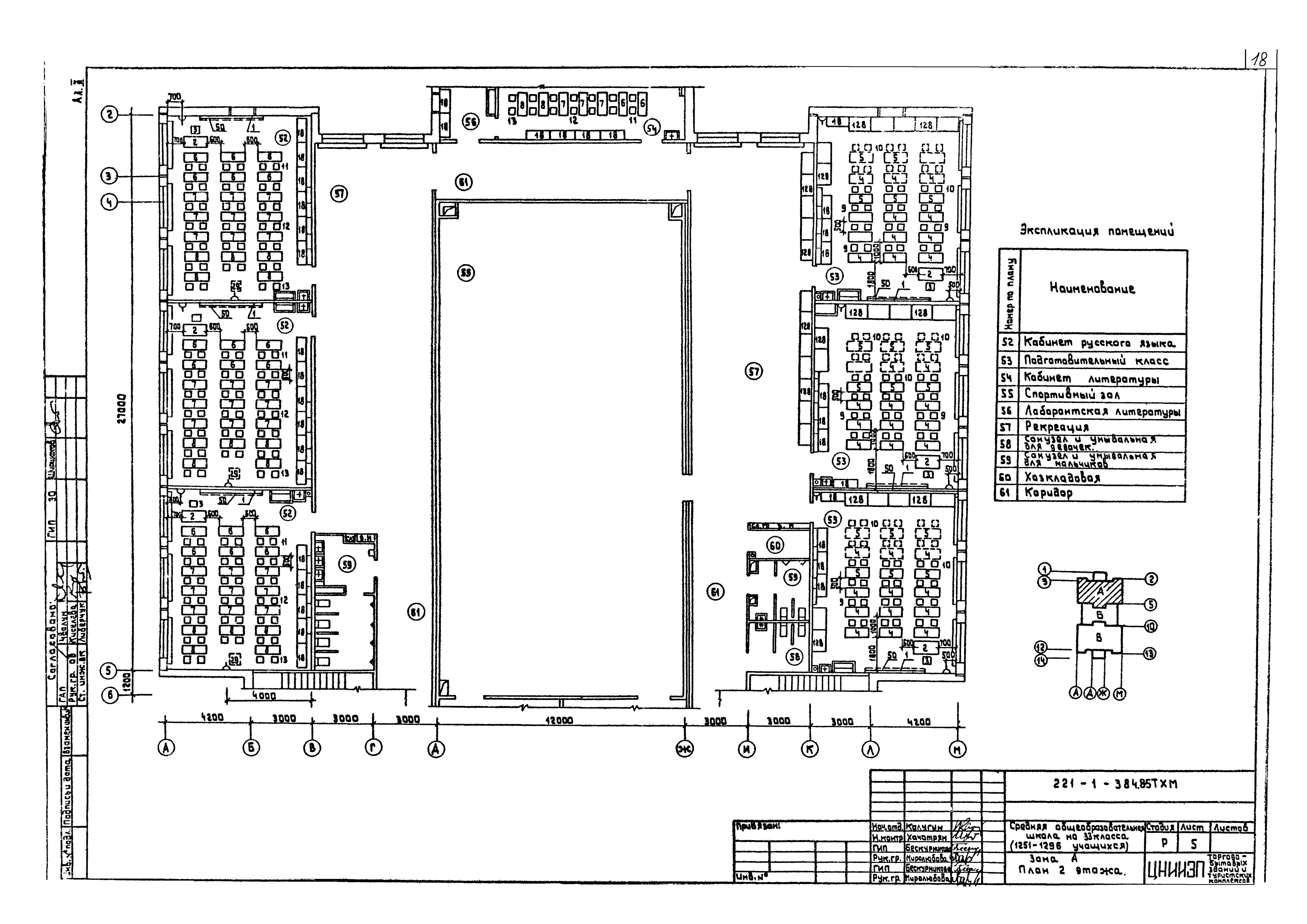
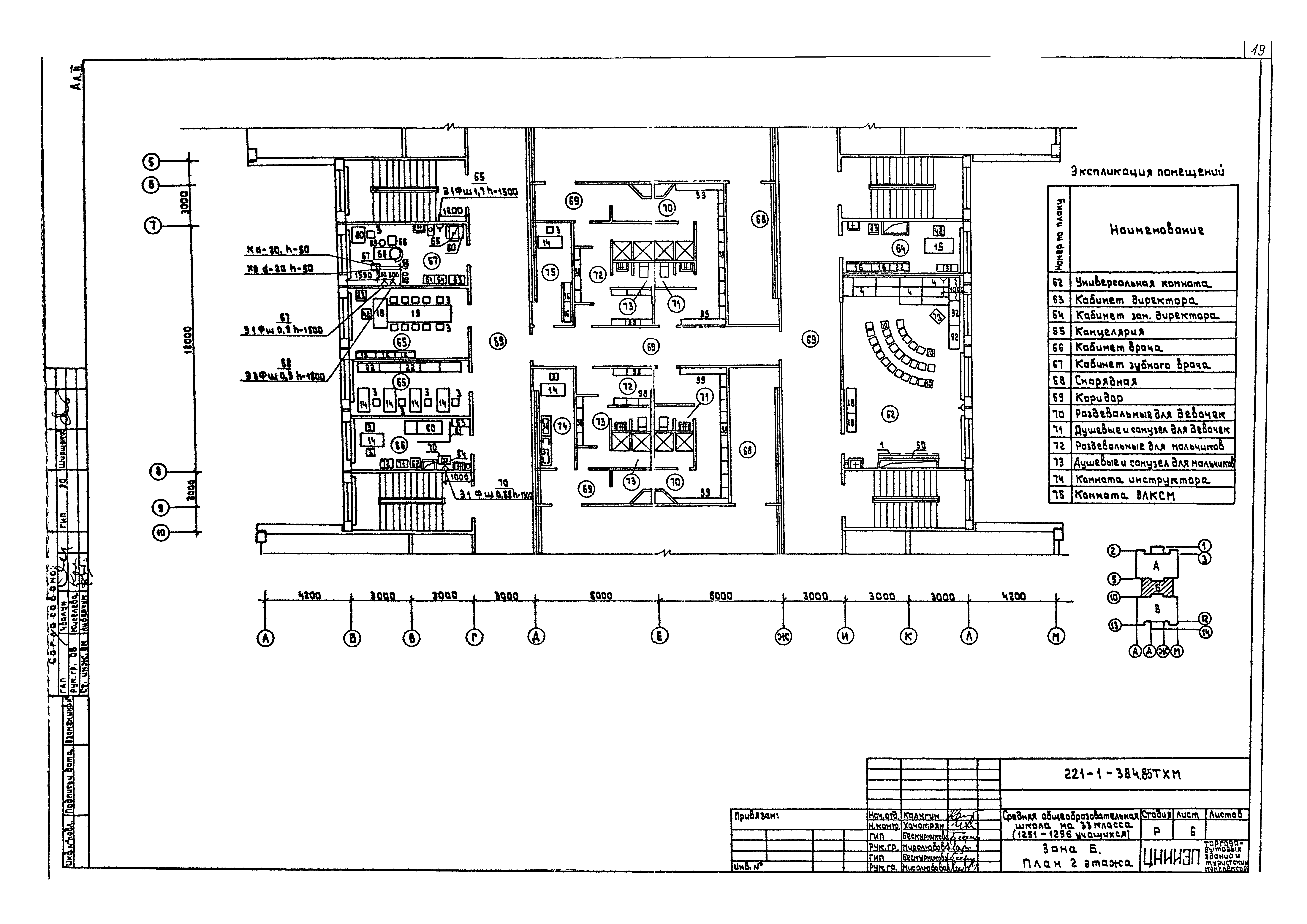
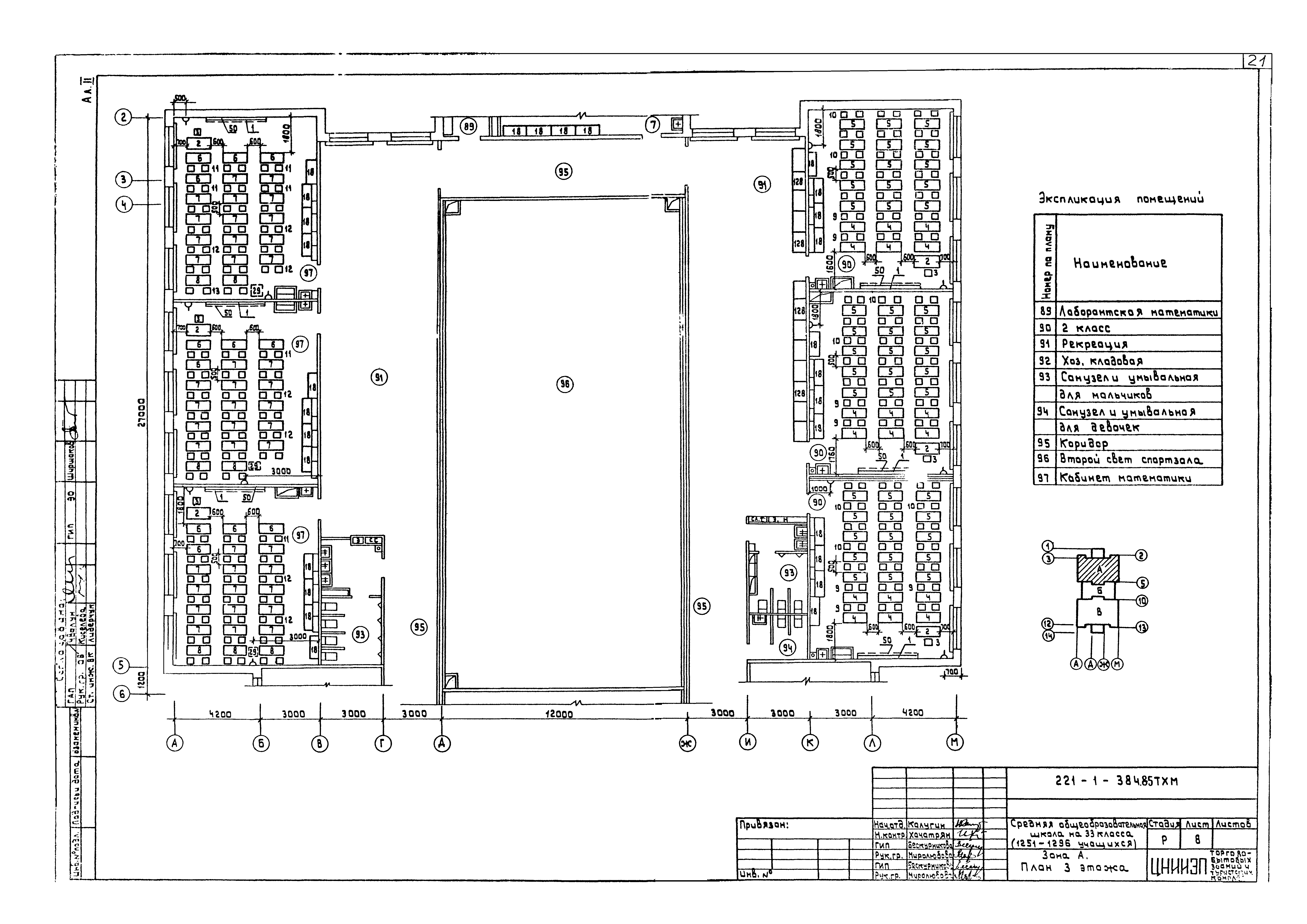
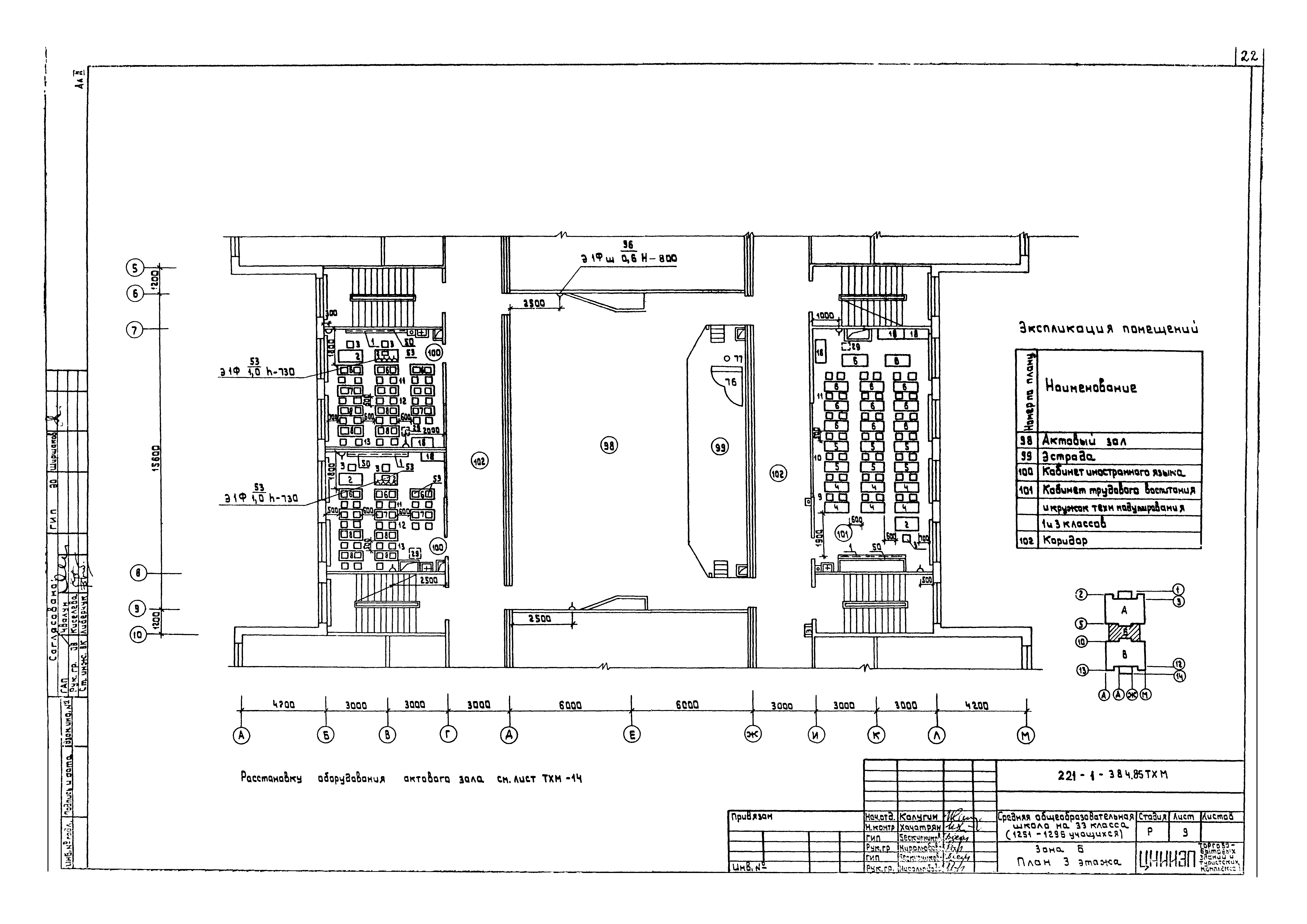
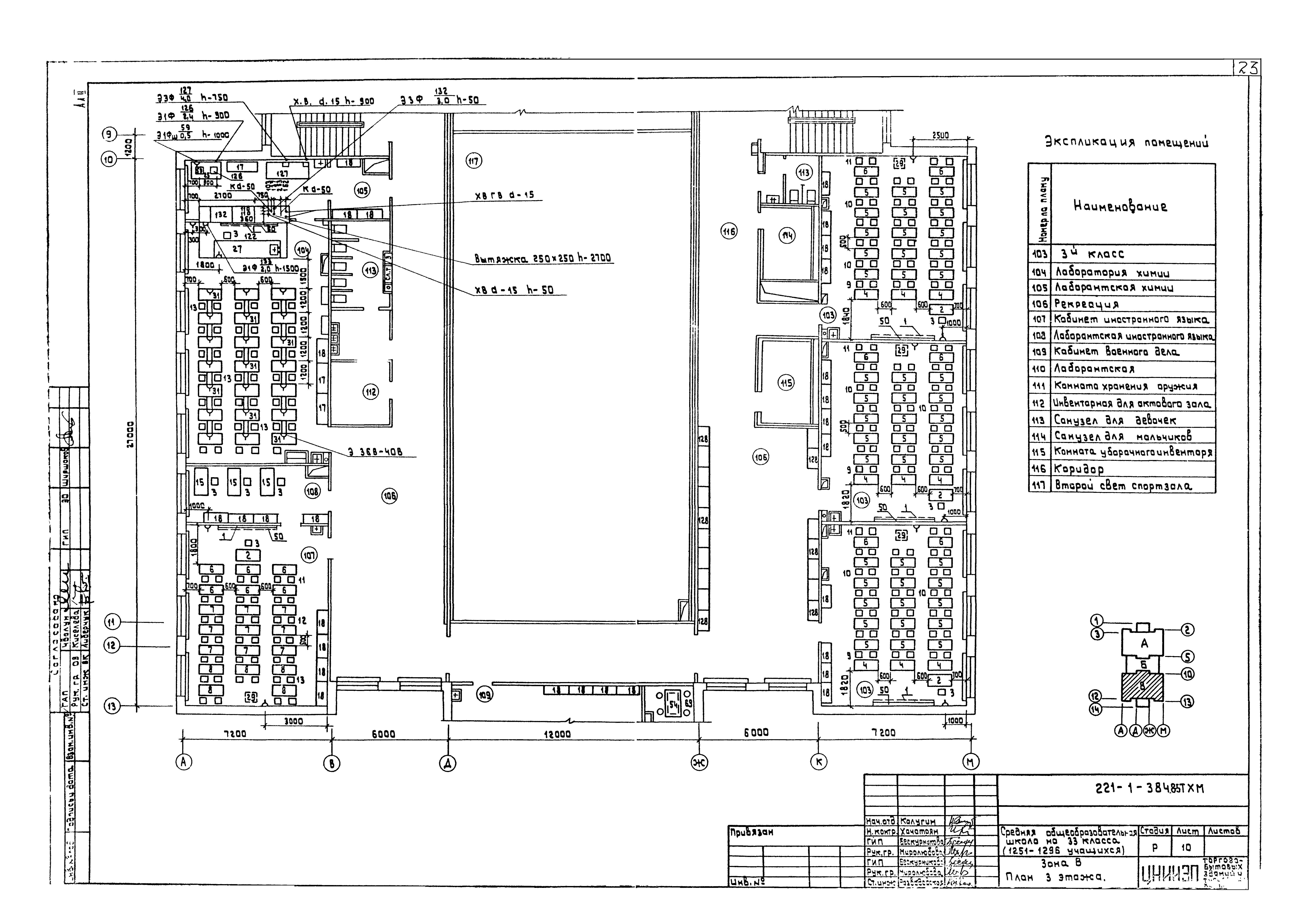
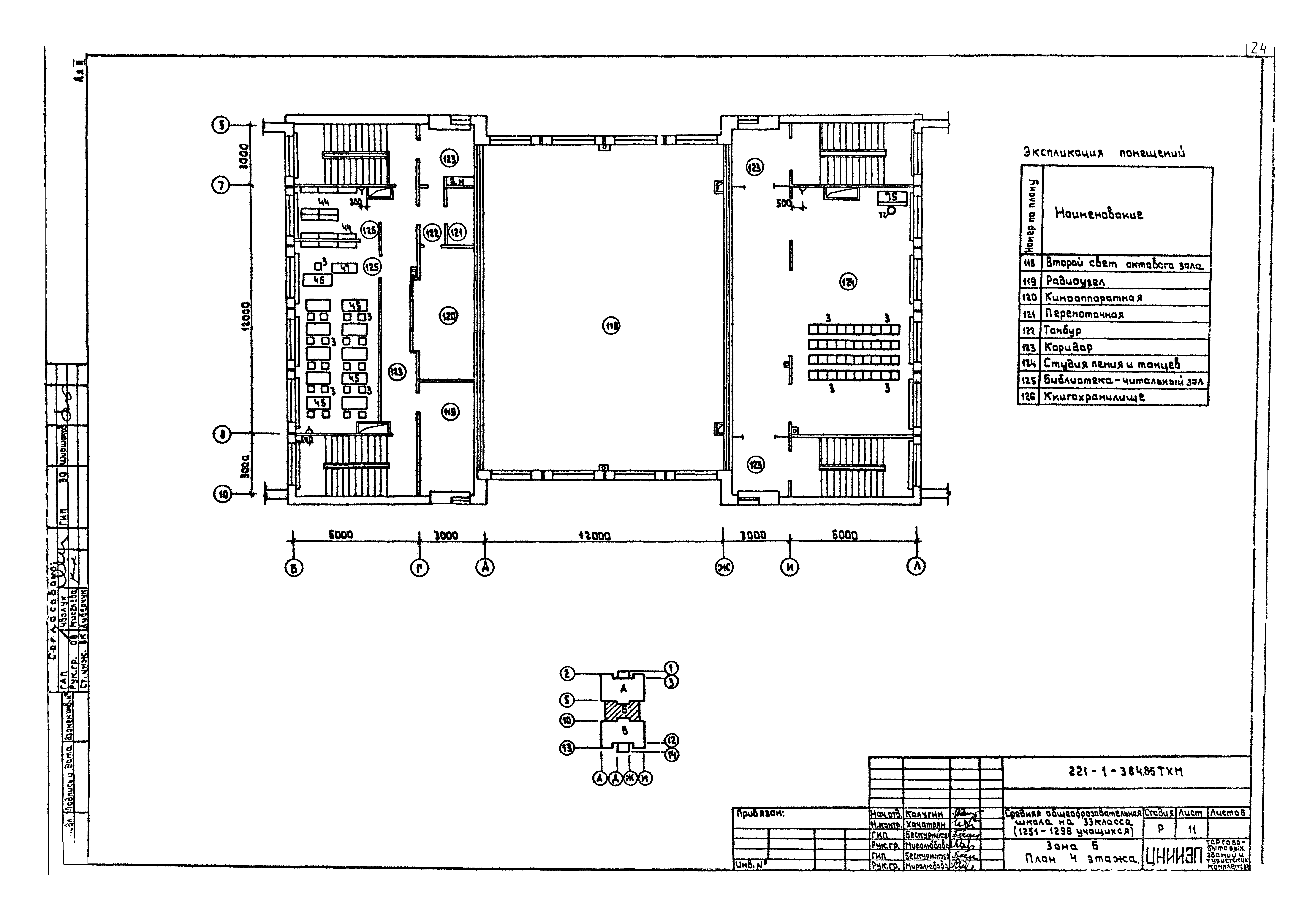
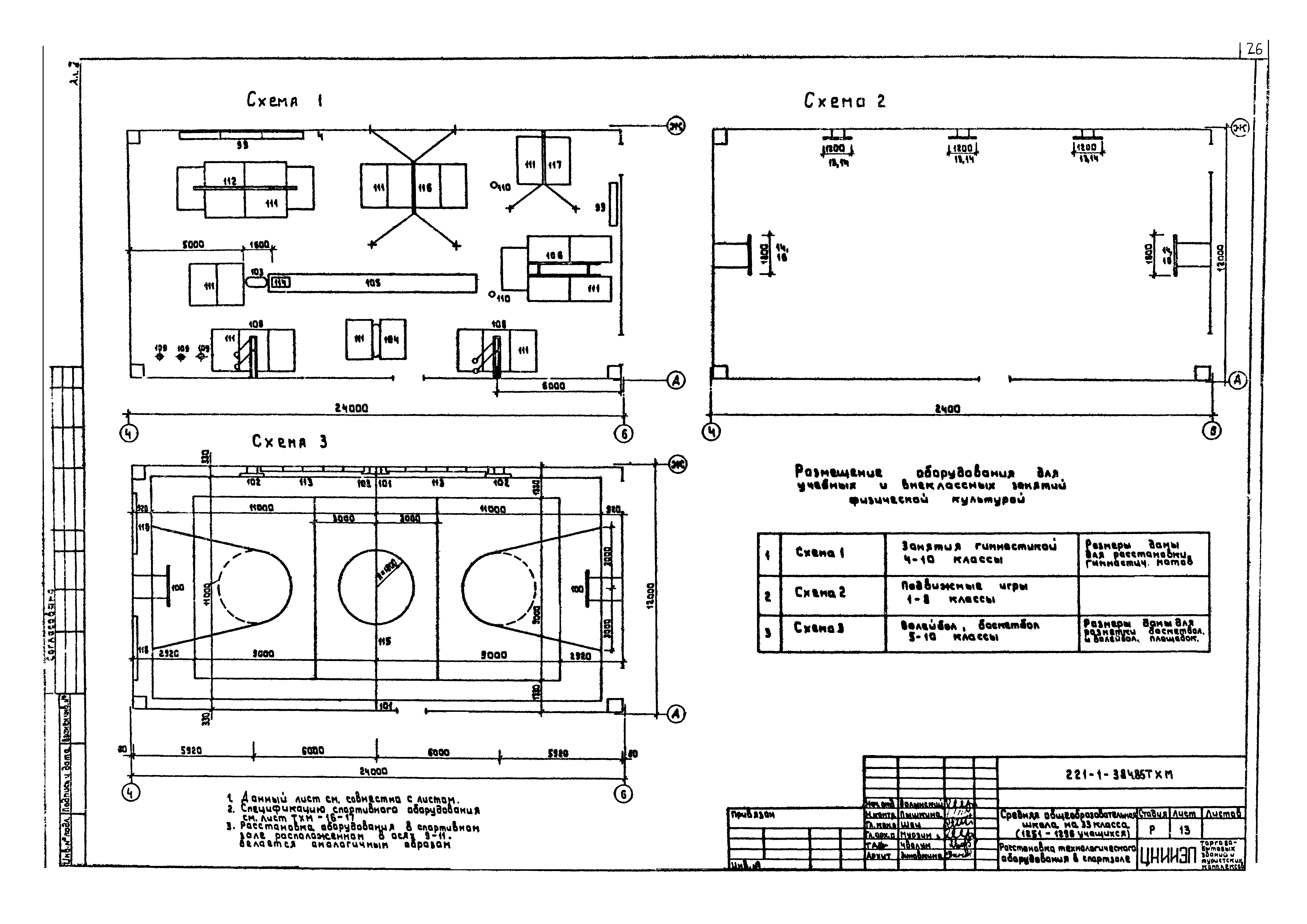
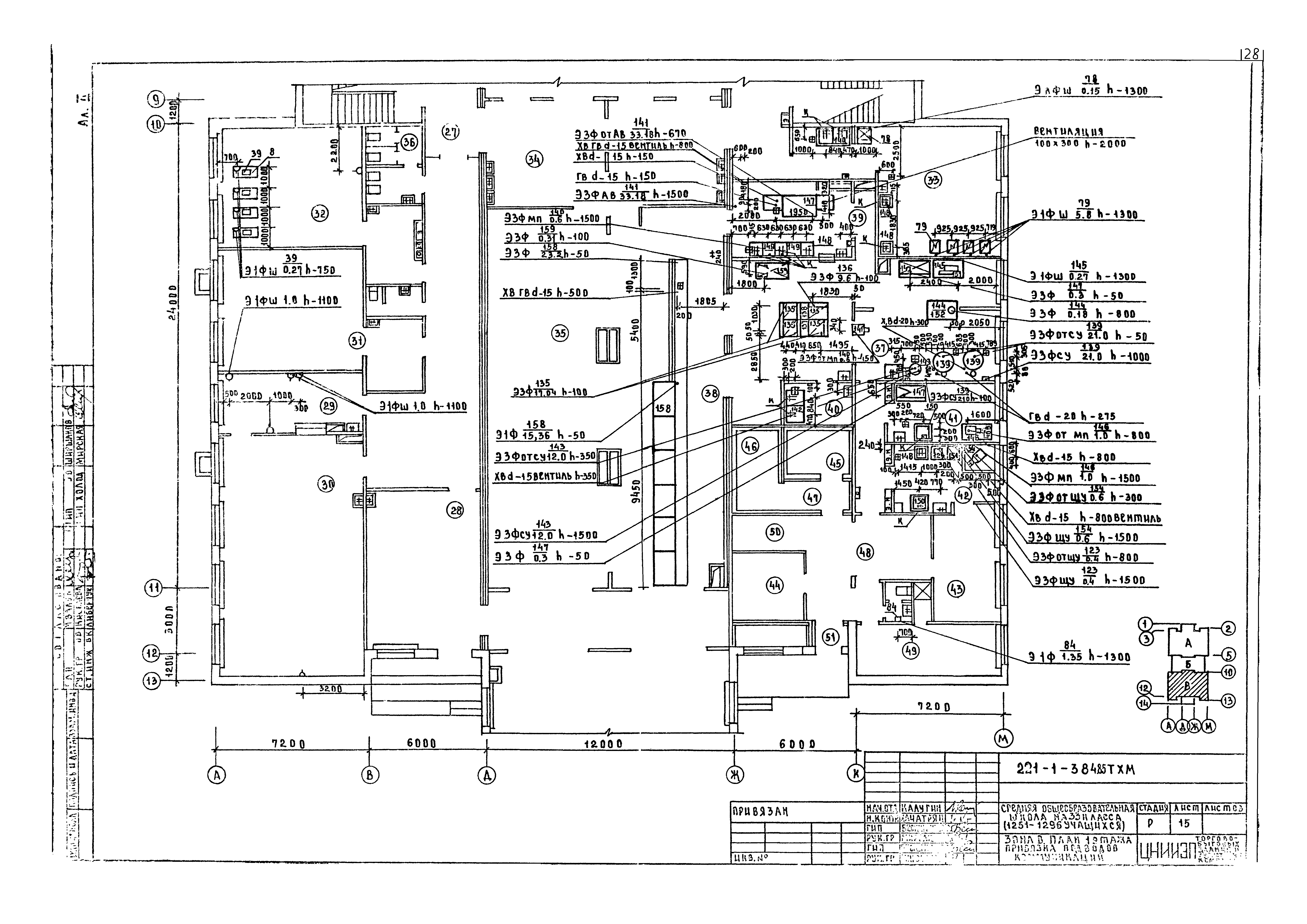
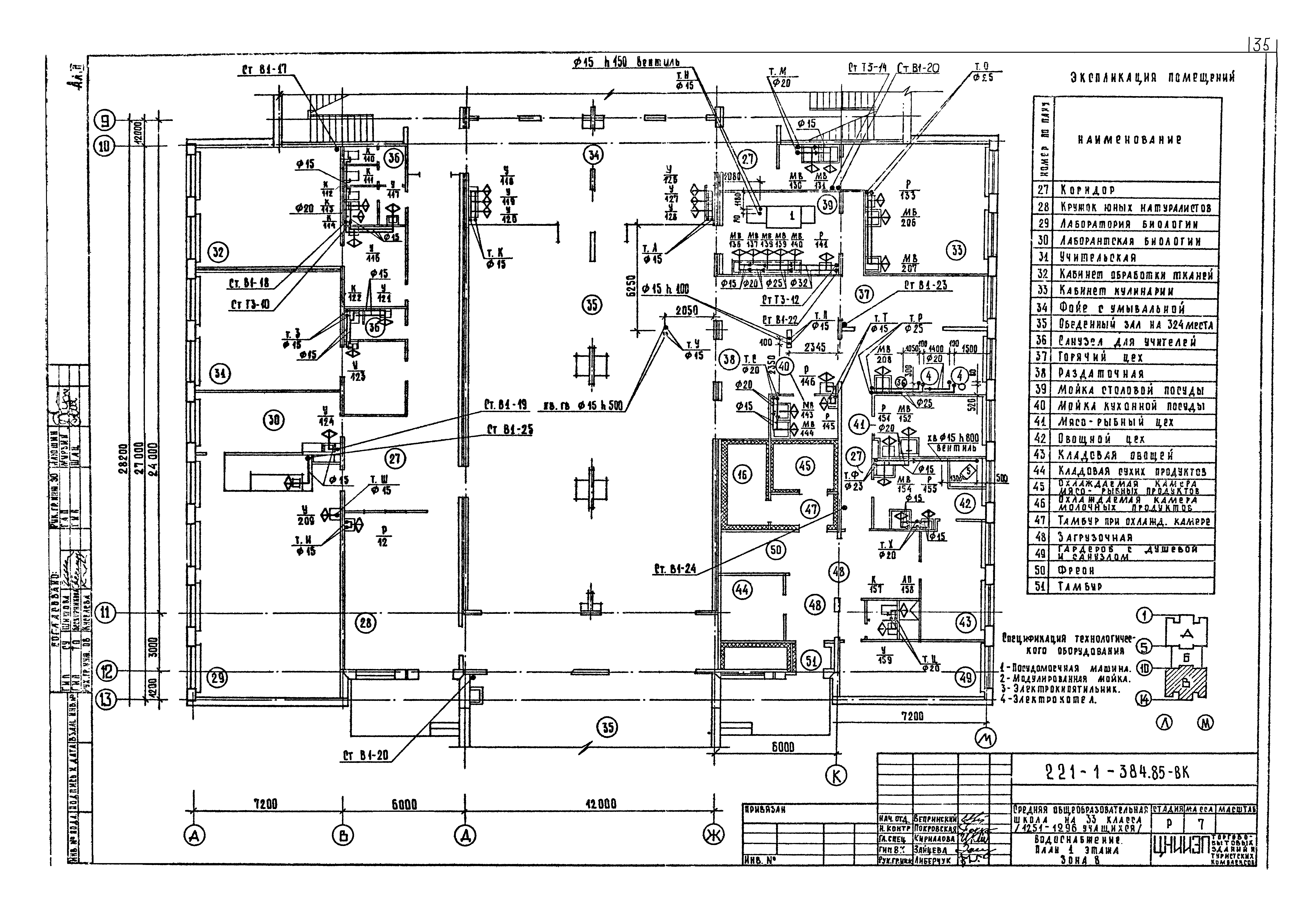
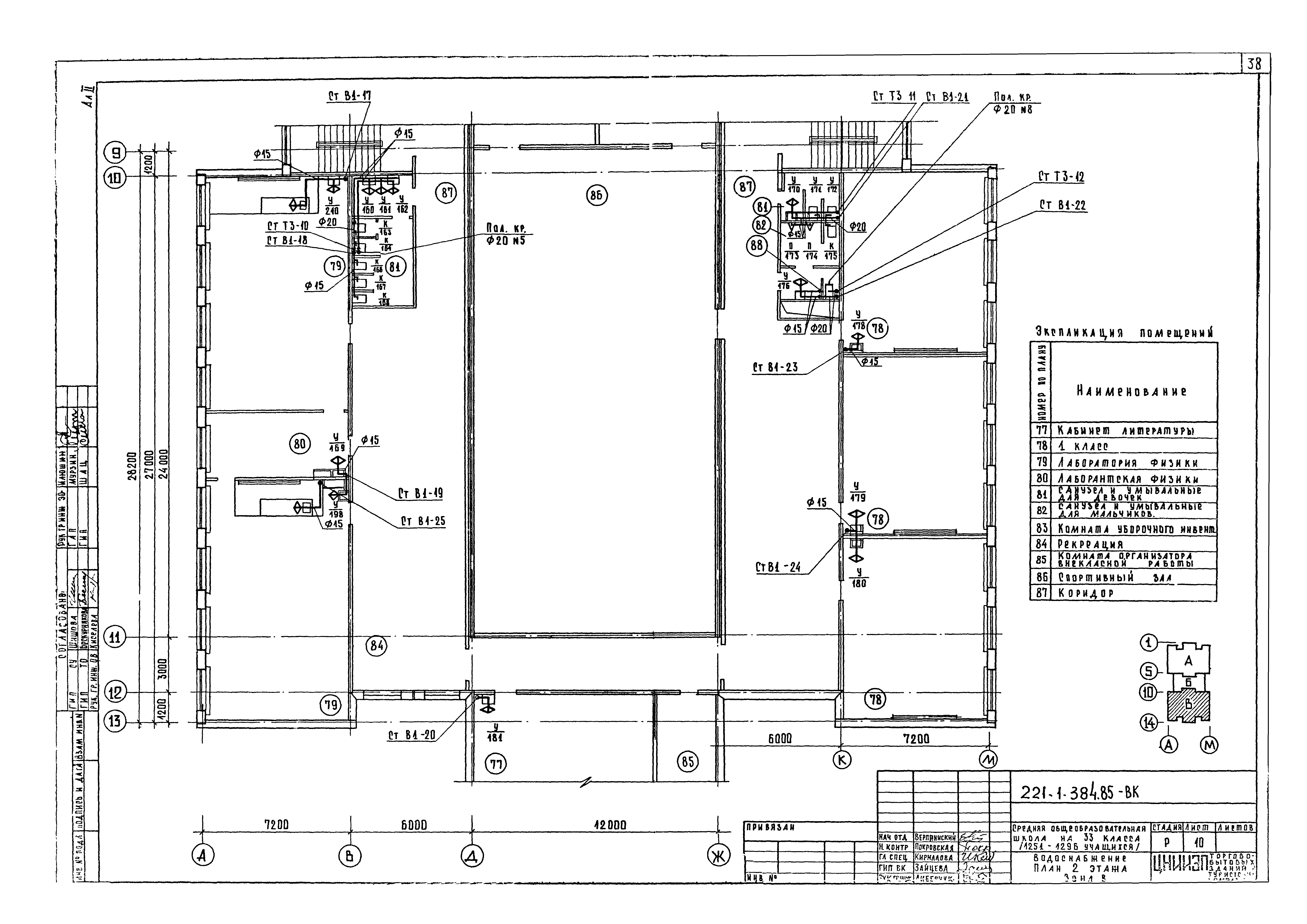
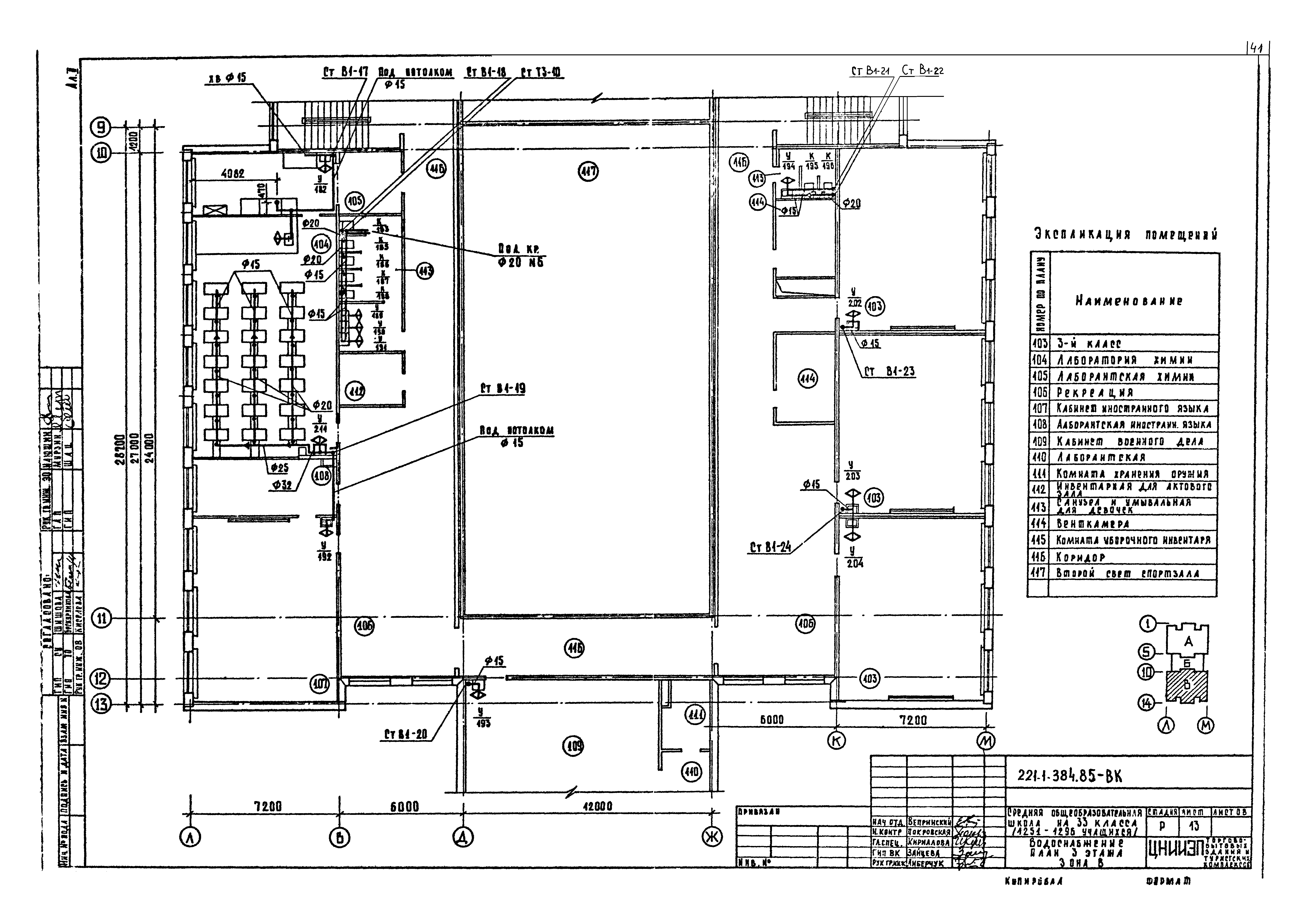
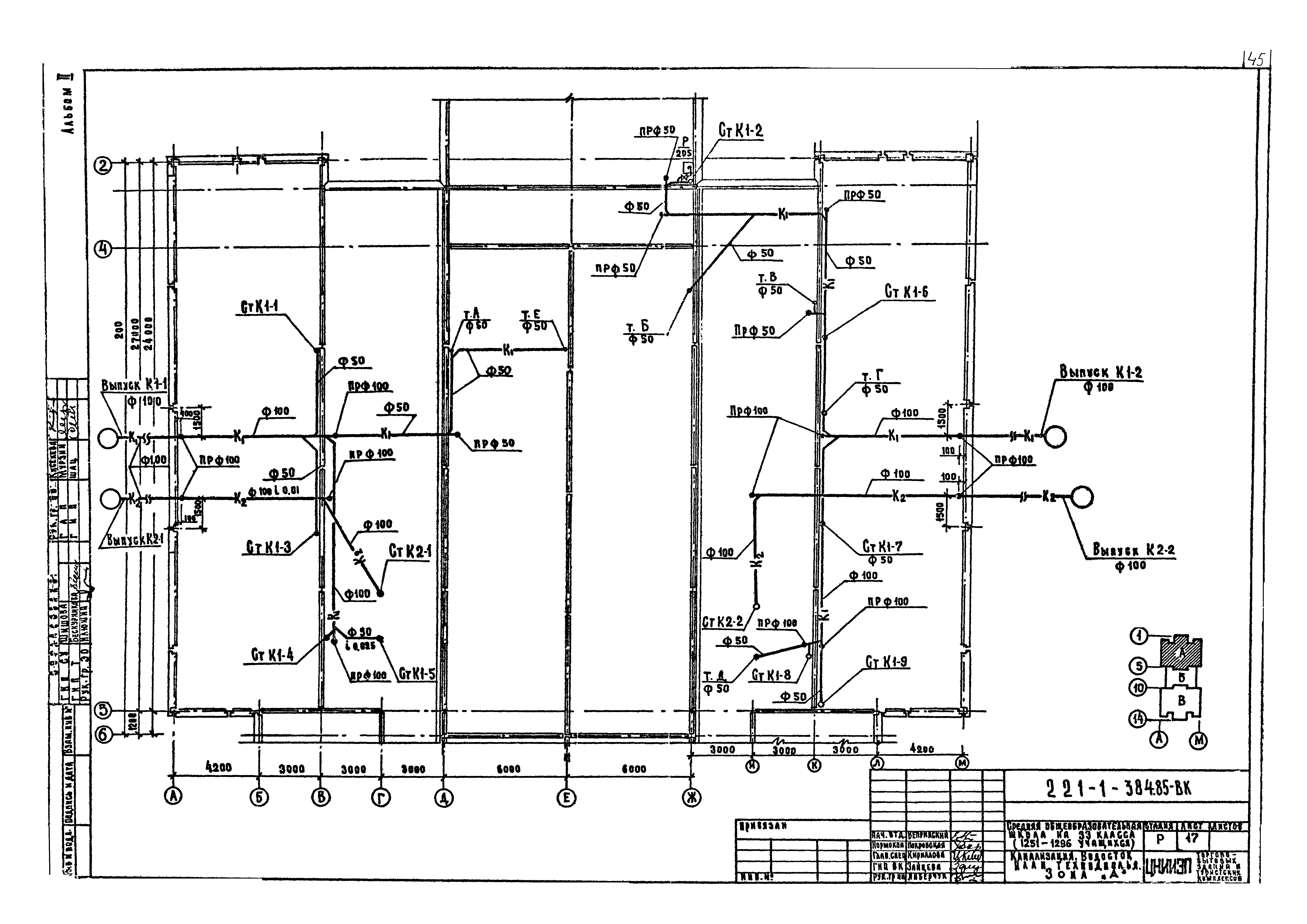
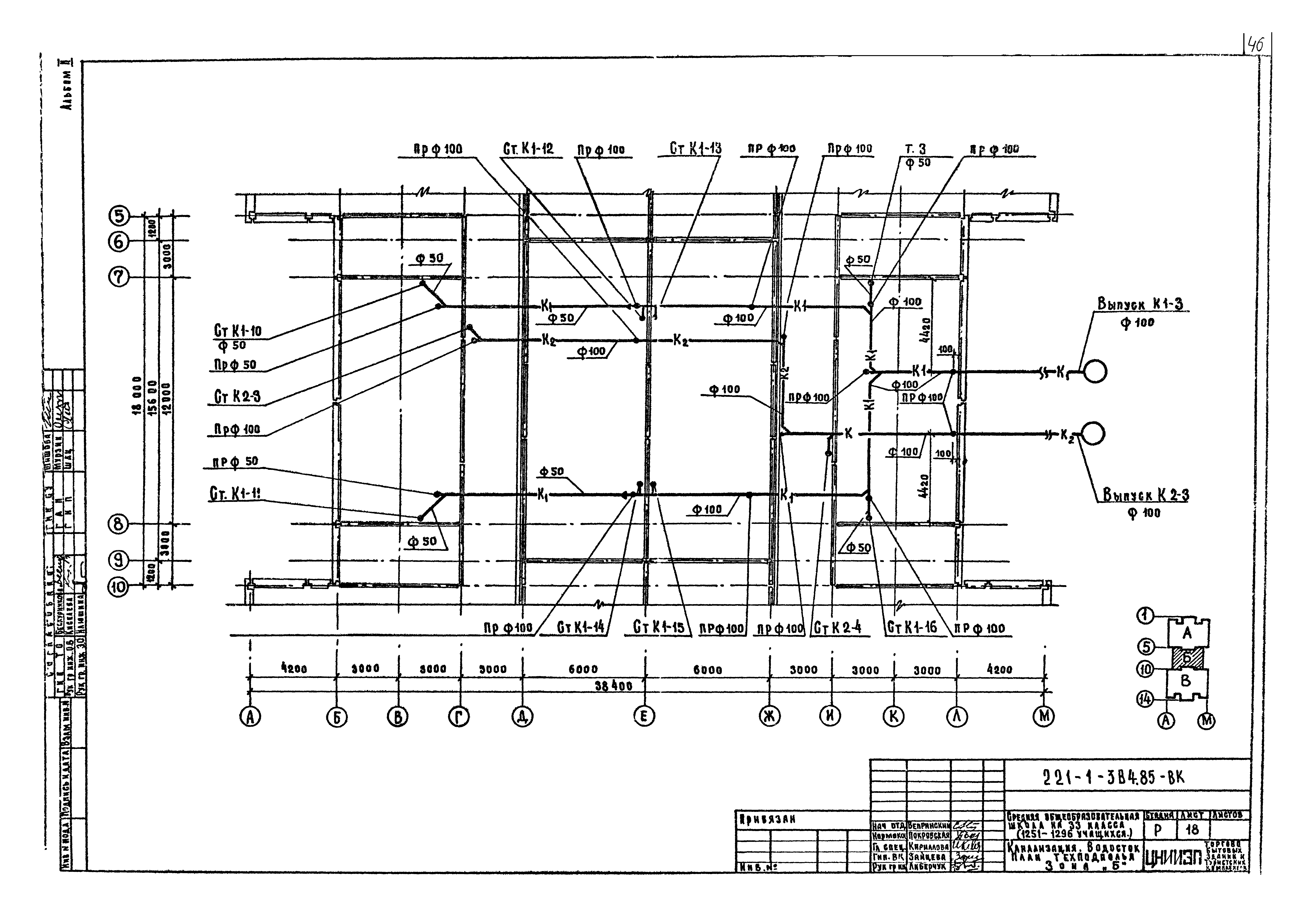
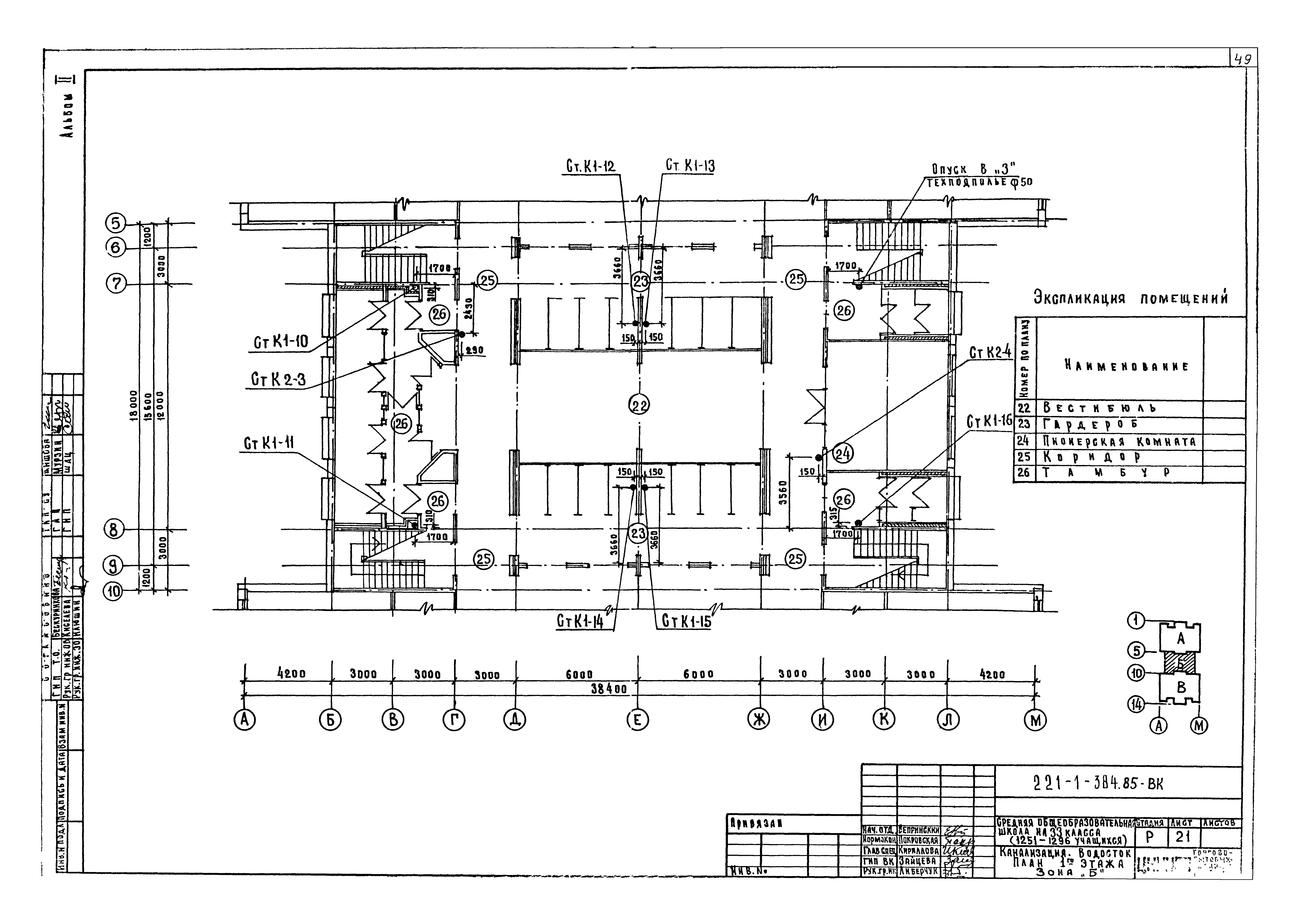
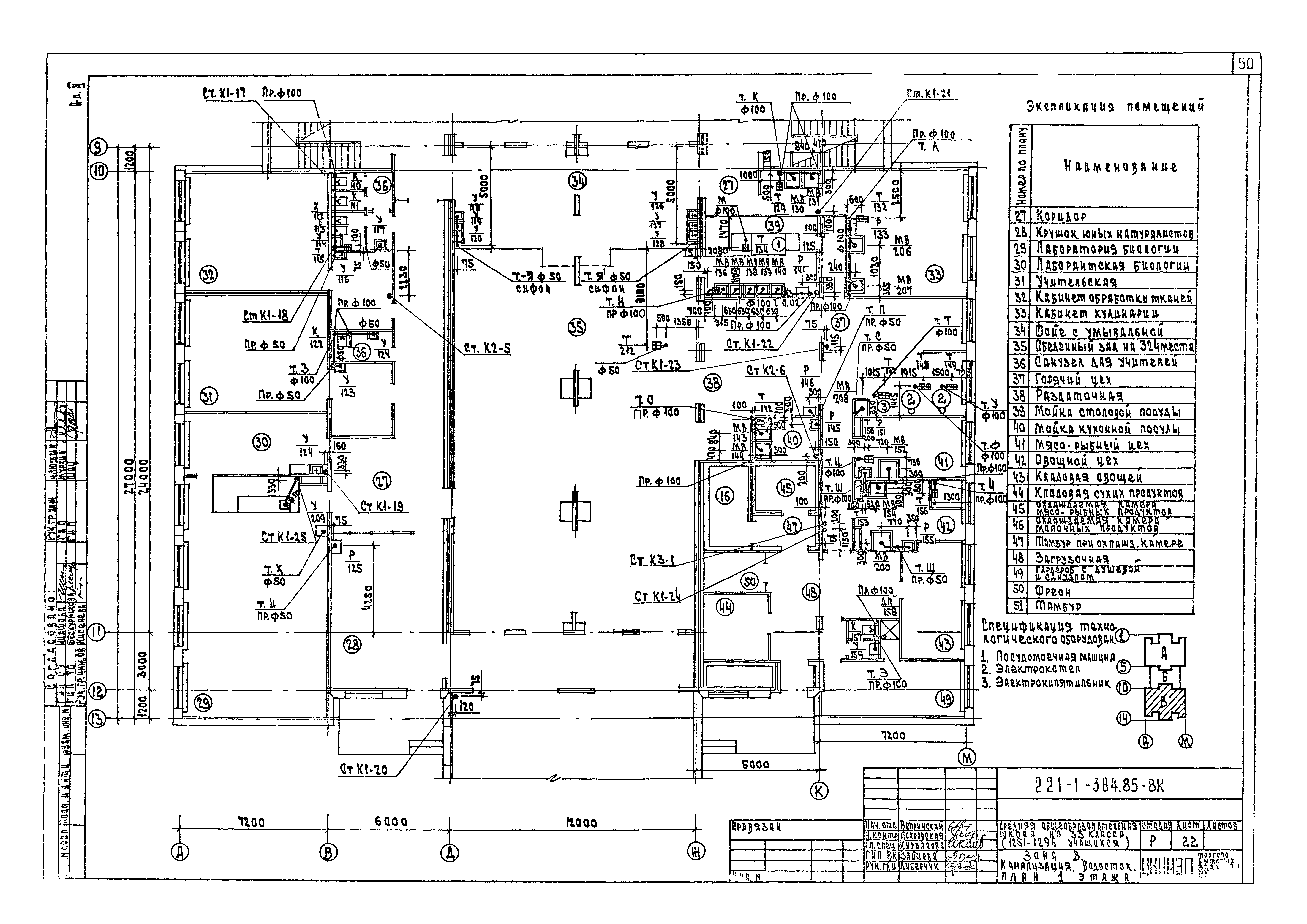
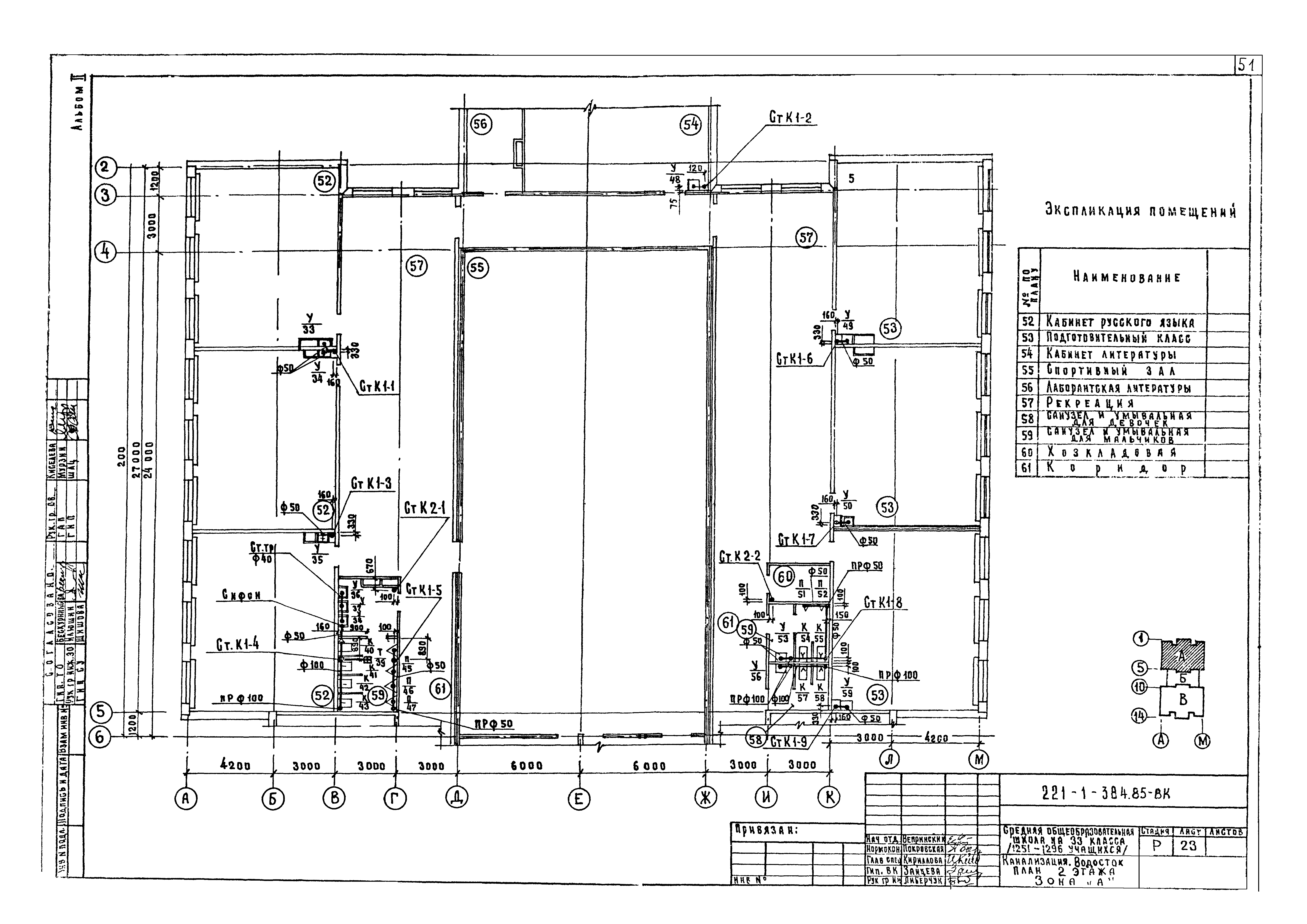
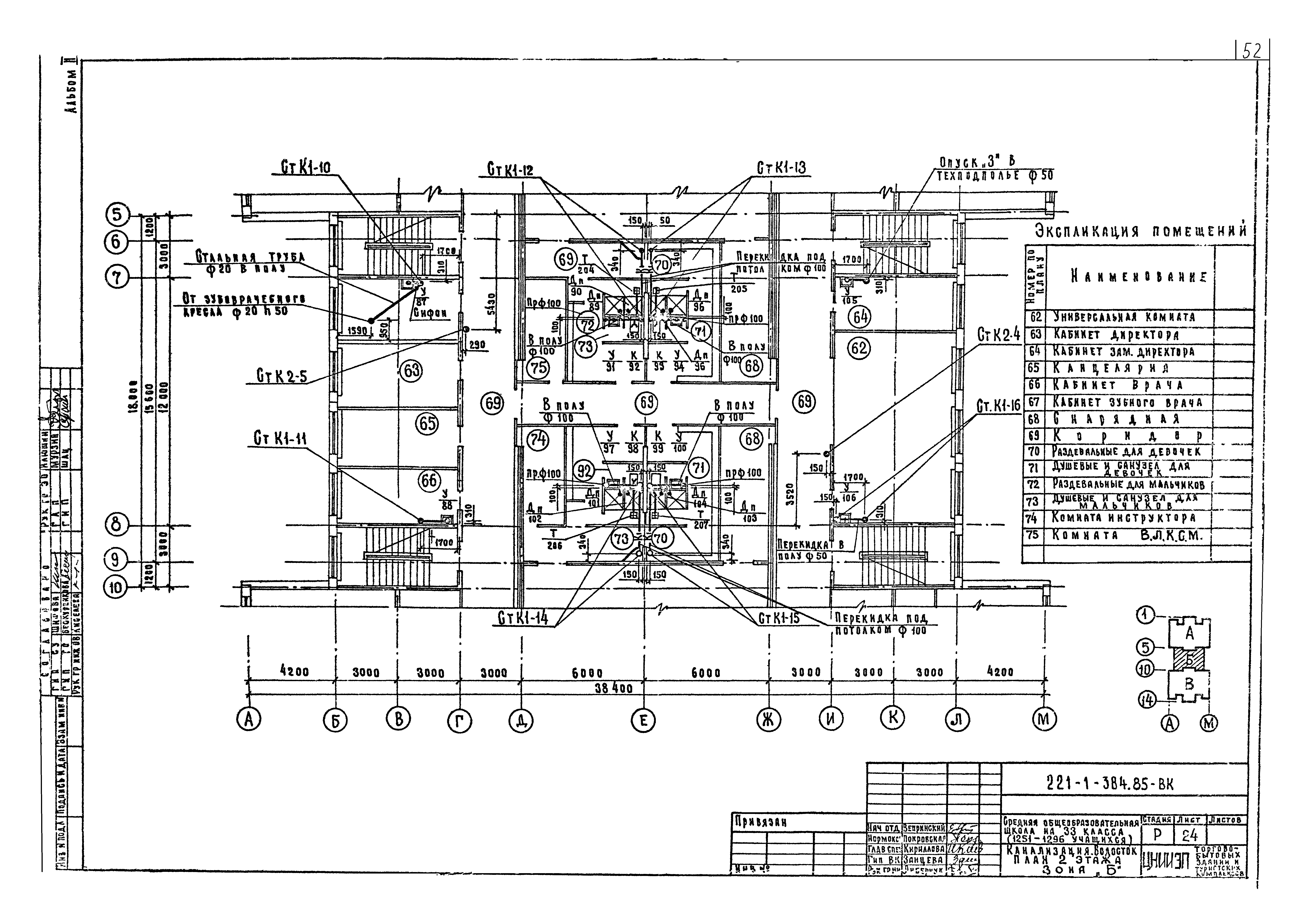
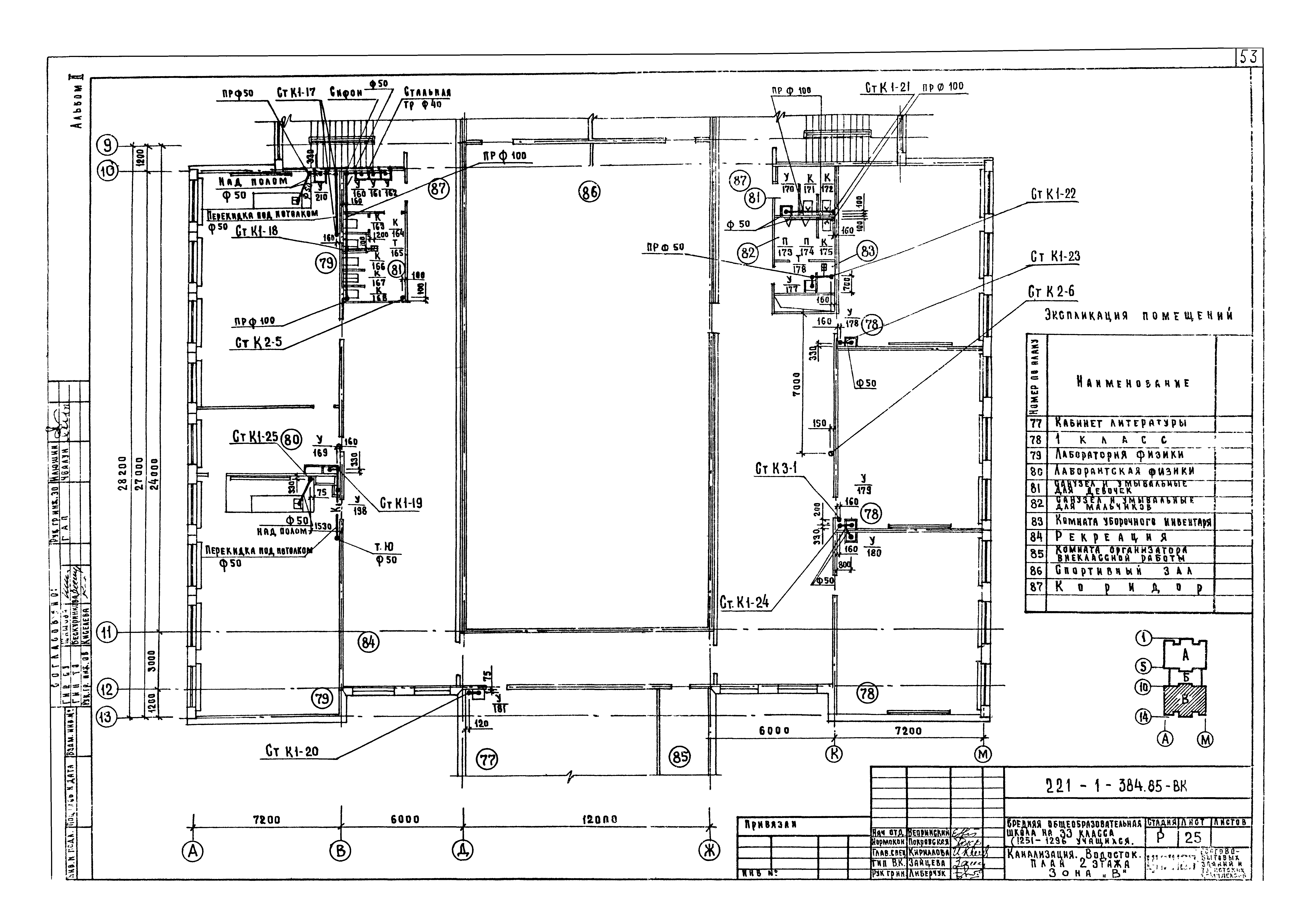
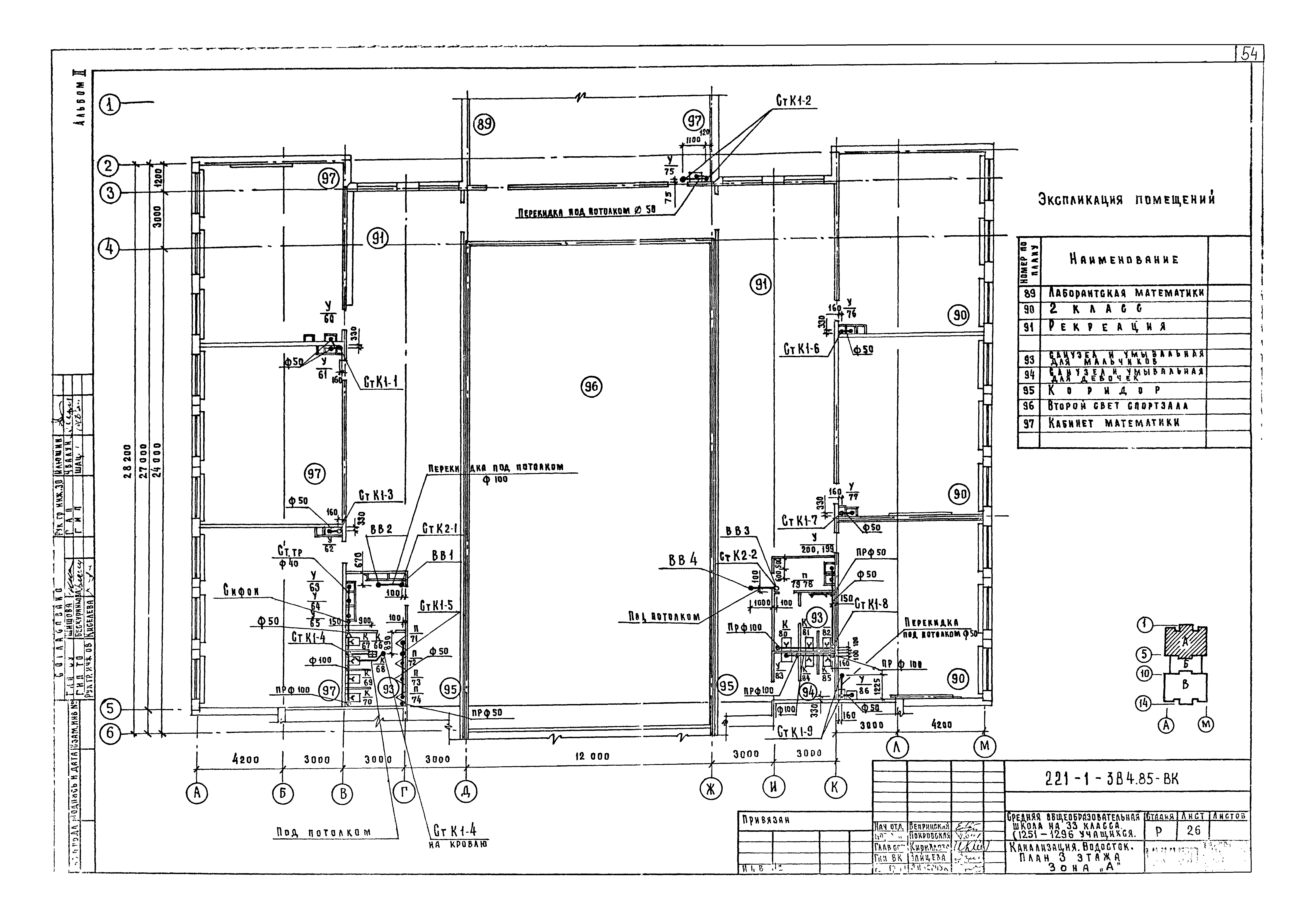
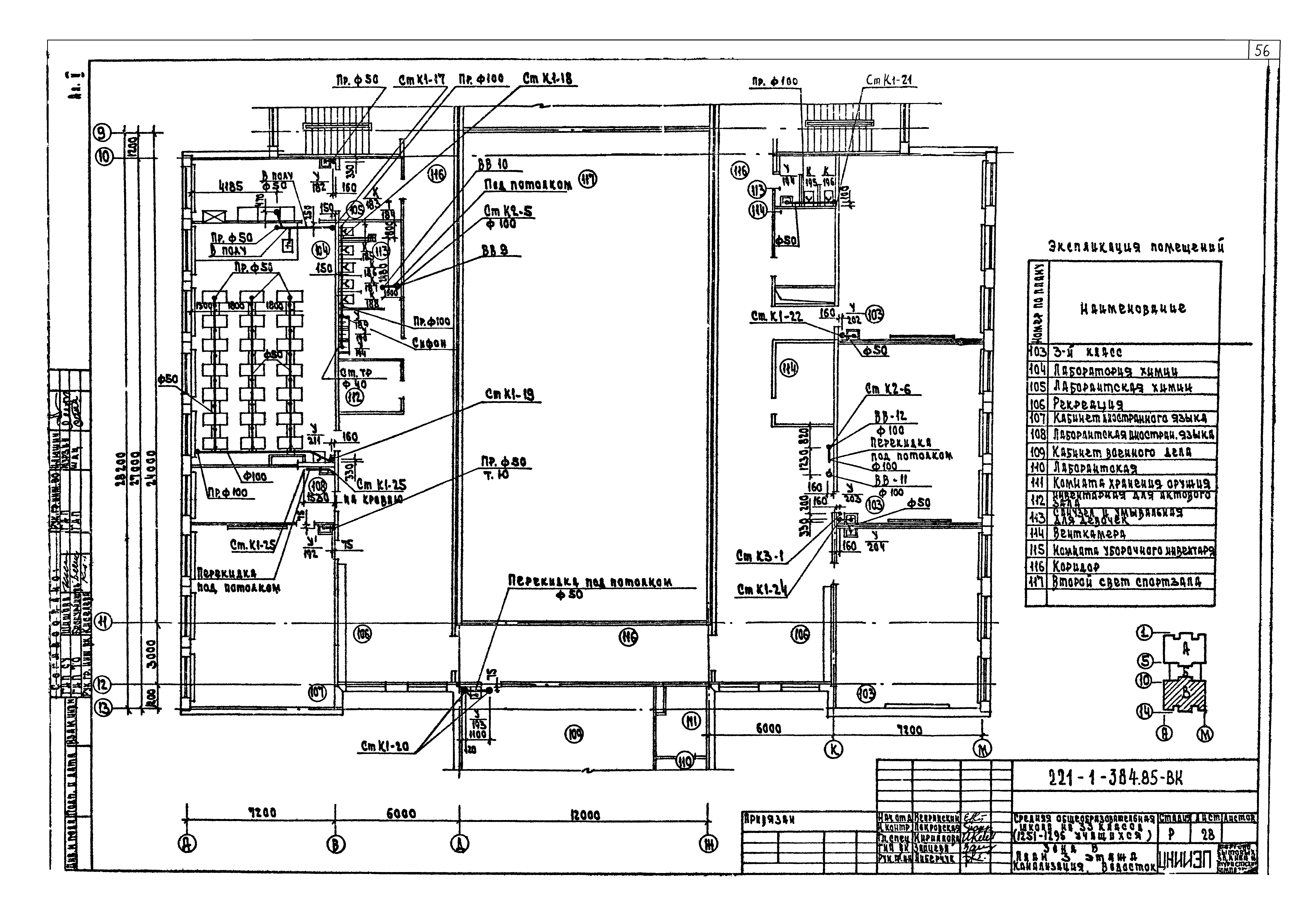
| Оглавление: | Чертежи основного комплекта марки АС2 Общие данные Спецификация элементов витражей и тамбуров. Витражи в обеденном зале и в рекреации Схема расположения элементов тамбура по оси Б Схема расположения элементов входов №1, №2 и пионерской комнаты. Узлы VIII, IX, X Узлы I; II; III; IV; V; VI; VII Чертежи основного комплекта марки КФ Кинофикация. Общие данные Кинофикация. План и разрезы зрительного зала и кинопроекционной Кинофикация. План расположения оборудования кинопроекционной Кинофикация. Схемы расположения трубопроводов и проводов Кинофикация. Схема электрическая электросилового оборудования Кинофикация. Монтажная схема акустического оборудования Кинофикация. Спецификация проводов и закладных устройств Чертежи основного комплекта марки ТХМ Общие данные Зона А. План 1 этажа Зона Б. План 1 этажа Зона В. План 1 этажа Зона А. План 2 этажа Зона Б. План 2 этажа Зона В. План 2 этажа Зона А. План 3 этажа Зона Б. План 3 этажа Зона В. План 3 этажа Зона Б. План 4 этажа Фрагменты планов 1, 2, 3 этажей в осях Д - Ж; 14-14 и Д - Ж; 1 - 3 Расстановка технологического оборудования в спортзале Расстановка технологического оборудования в обеденном и актовых залах План 1 этажа. Привязка подводов коммуникаций Чертежи основного комплекта марки ВК Общие данные Водоснабжение. План техподполья. Зона А Водоснабжение. План техподполья. Зона Б Водоснабжение. План техподполья. Зона В Водоснабжение. План I этажа. Зона А Водоснабжение. План I этажа. Зона Б Водоснабжение. План I этажа. Зона В Водоснабжение. План II этажа. Зона А Водоснабжение. План II этажа. Зона Б Водоснабжение. План II этажа. Зона В Водоснабжение. План III этажа. Зона А Водоснабжение. План III этажа. Зона Б Водоснабжение. План III этажа. Зона В Водоснабжение. Схема. Зона А Водоснабжение. Схема. Зона Б Водоснабжение. Схема. Зона В Канализация. Водосток. План техподполья. Зона А Канализация. Водосток. План техподполья. Зона Б Канализация. Водосток. План техподполья. Зона В Канализация. Водосток. План I этажа. Зона А Канализация. Водосток. План I этажа. Зона Б Канализация. Водосток. План I этажа. Зона В Канализация. Водосток. План II этажа. Зона А Канализация. Водосток. План II этажа. Зона Б Канализация. Водосток. План II этажа. Зона В Канализация. Водосток. План III этажа. Зона А Канализация. Водосток. План III этажа. Зона Б Канализация. Водосток. План III этажа. Зона В Канализация. Водосток. План IV этажа. Зона Б Канализация. Разрезы. Зона А Канализация. Водосток. Разрезы. Зона Б Канализация. Разрезы. Зона В Водосток. Разрезы. Зона А. Зона Б Чертежи основного комплекта марки ХС Общие данные План охлаждаемых камер. Разрез 1-1. Схема хладоновых трубопроводов |
| Разработан: | ЦНИИЭП торгово-бытовых зданий и туристских комплексов |
| Утверждён: | 27.11.1981 Госгражданстрой (Gosgrazhdanstroy 324) |


































































