Скачать Типовой проект 221-1-384.85 Альбом IV. Электроснабжение и силовое электрооборудование. Связь и сигнализация. Автоматизация инженерного оборудованияДата актуализации: 01.01.2021
|
| Обозначение: | Типовой проект 221-1-384.85 |
| Обозначение англ: | 221-1-384.85 |
| Статус: | действует |
| Название рус.: | Альбом IV. Электроснабжение и силовое электрооборудование. Связь и сигнализация. Автоматизация инженерного оборудования |
| Дата добавления в базу: | 01.09.2013 |
| Дата актуализации: | 01.01.2021 |
| Дата введения: | 27.03.1985 |
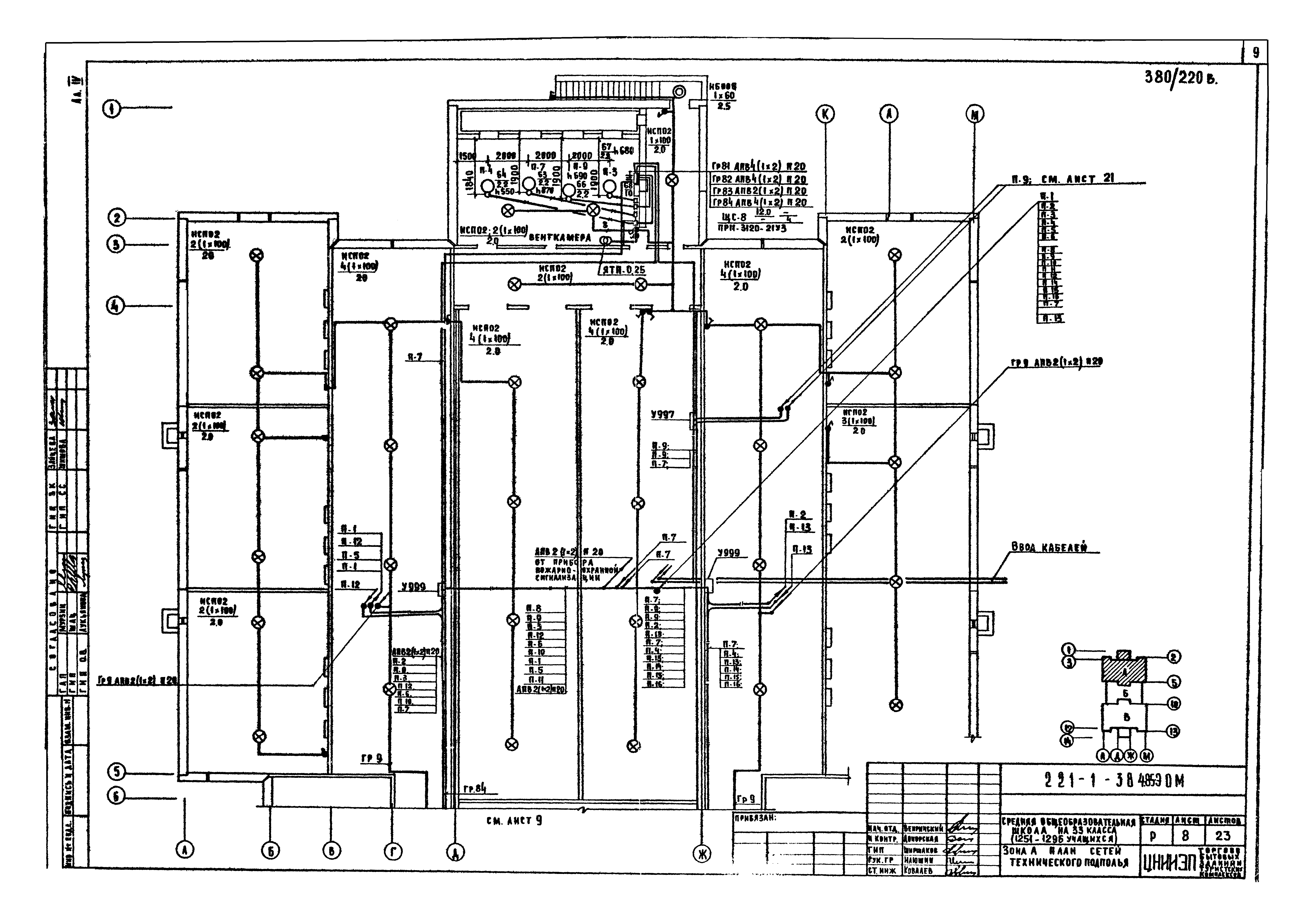
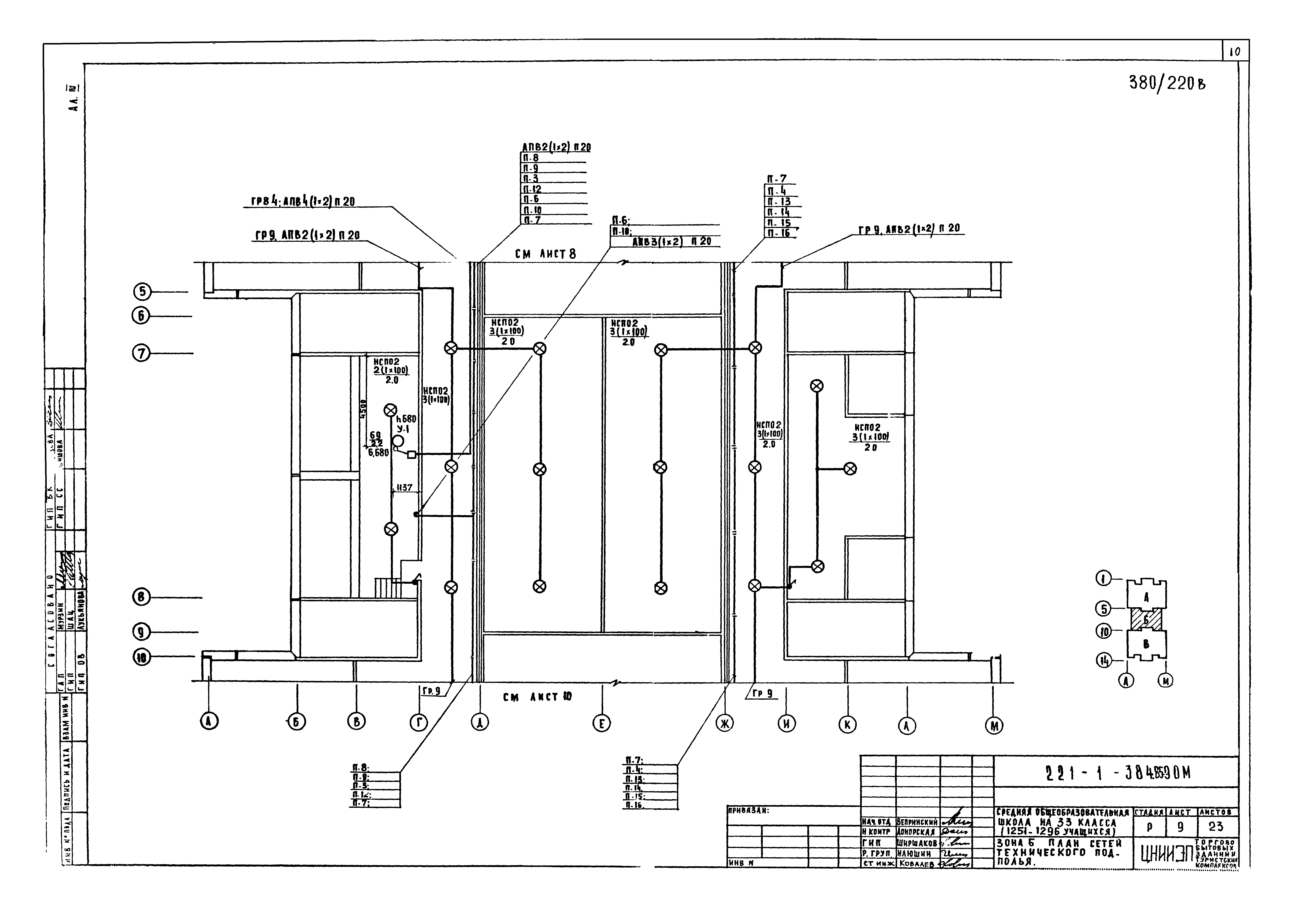
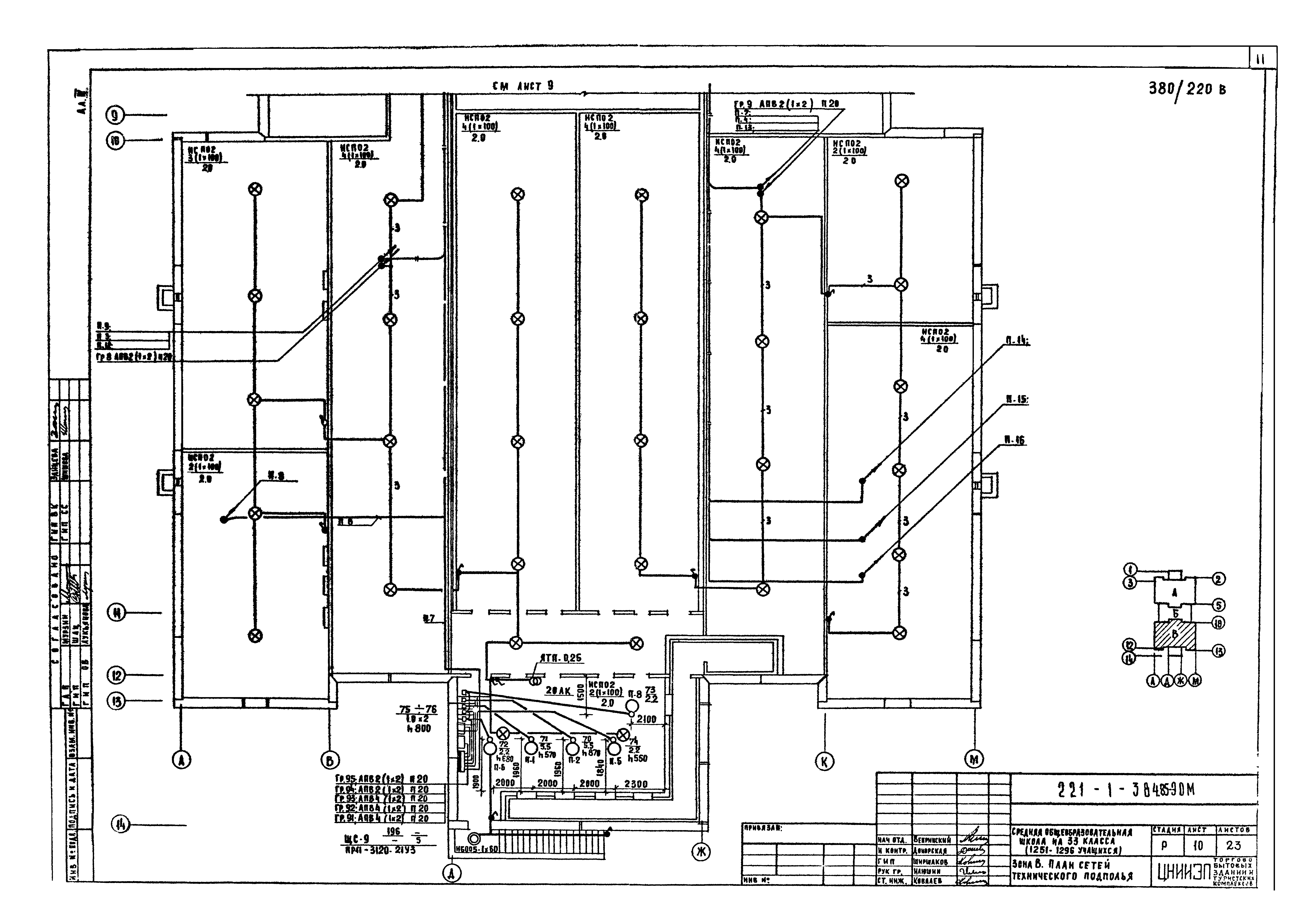
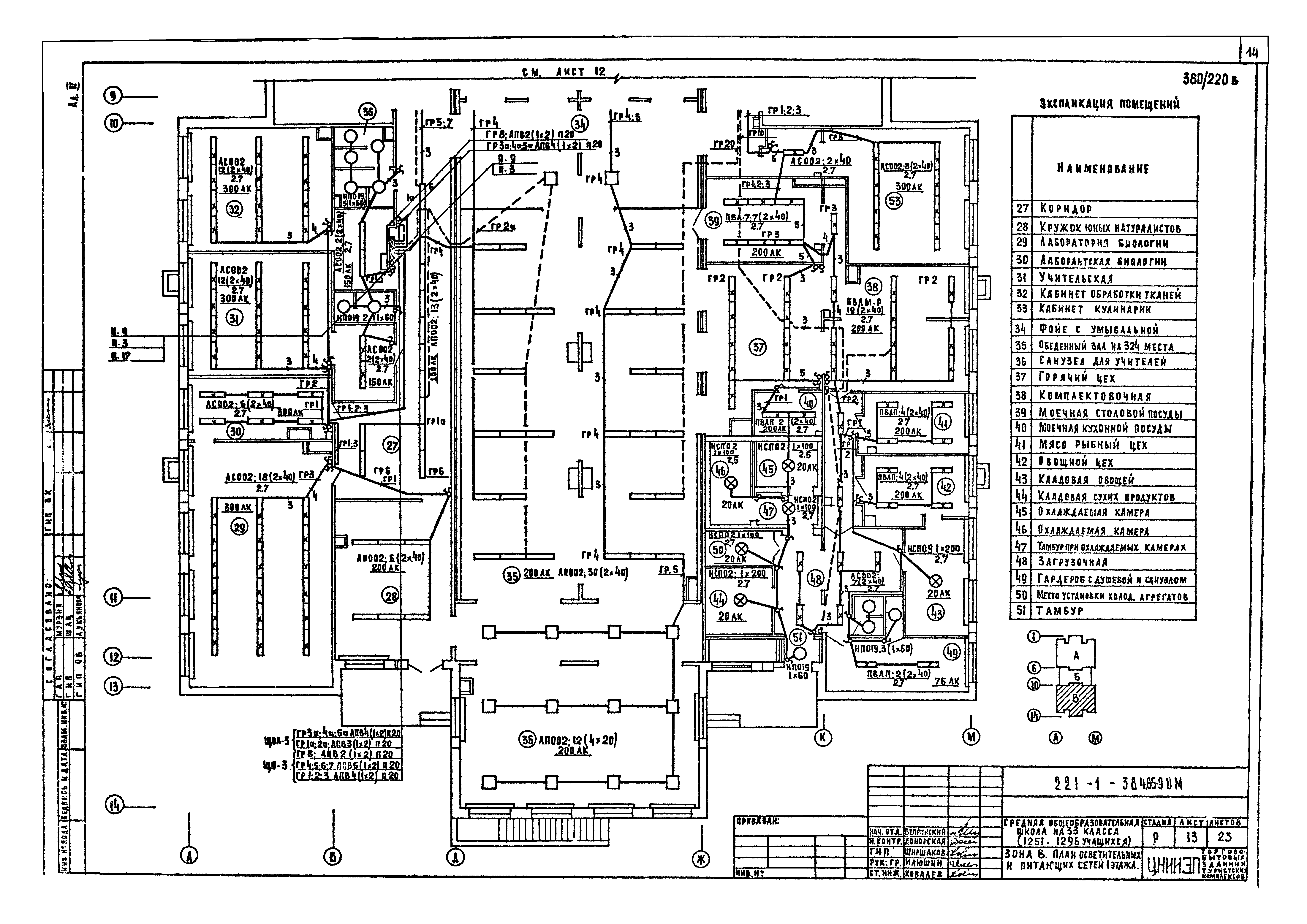
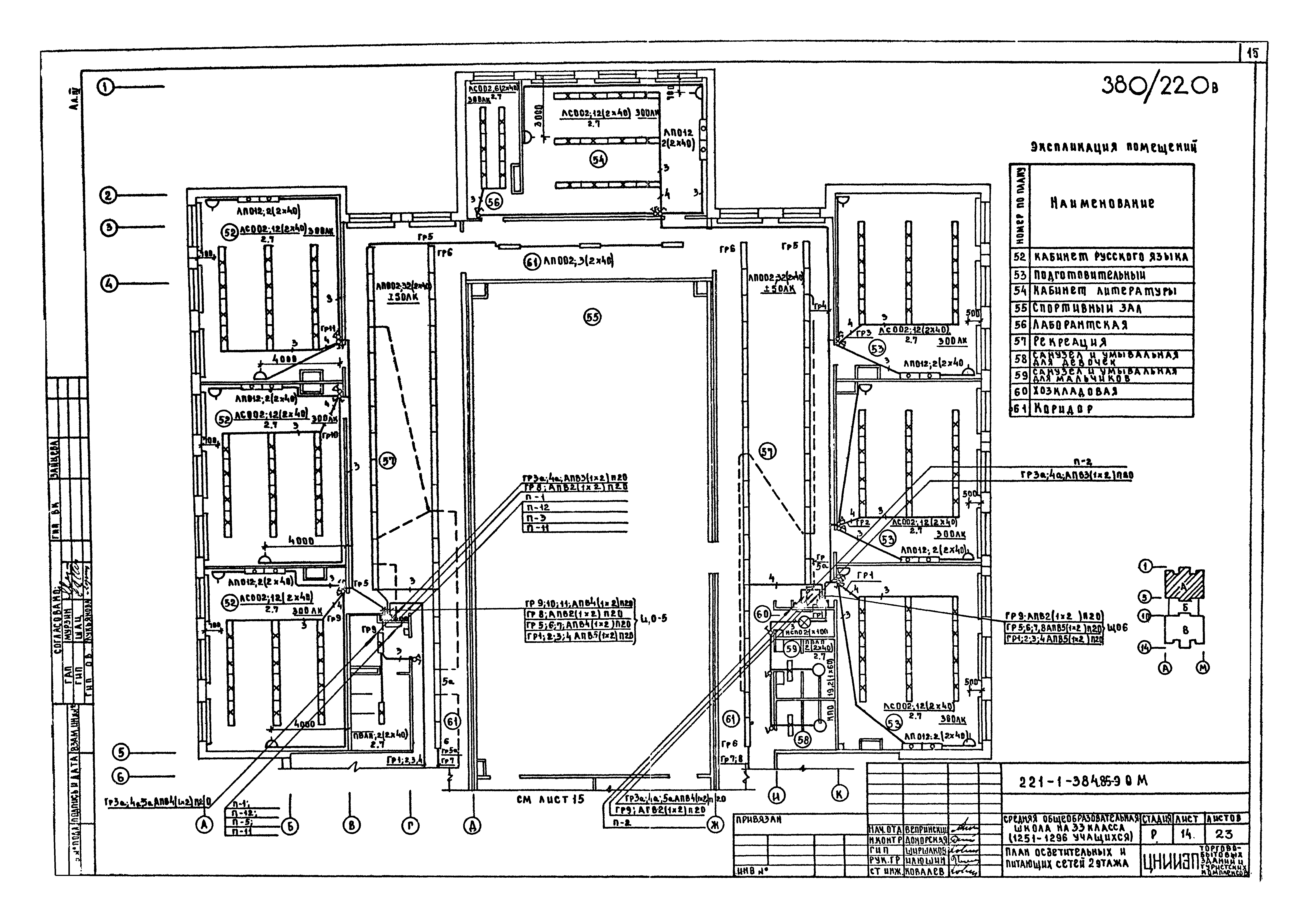
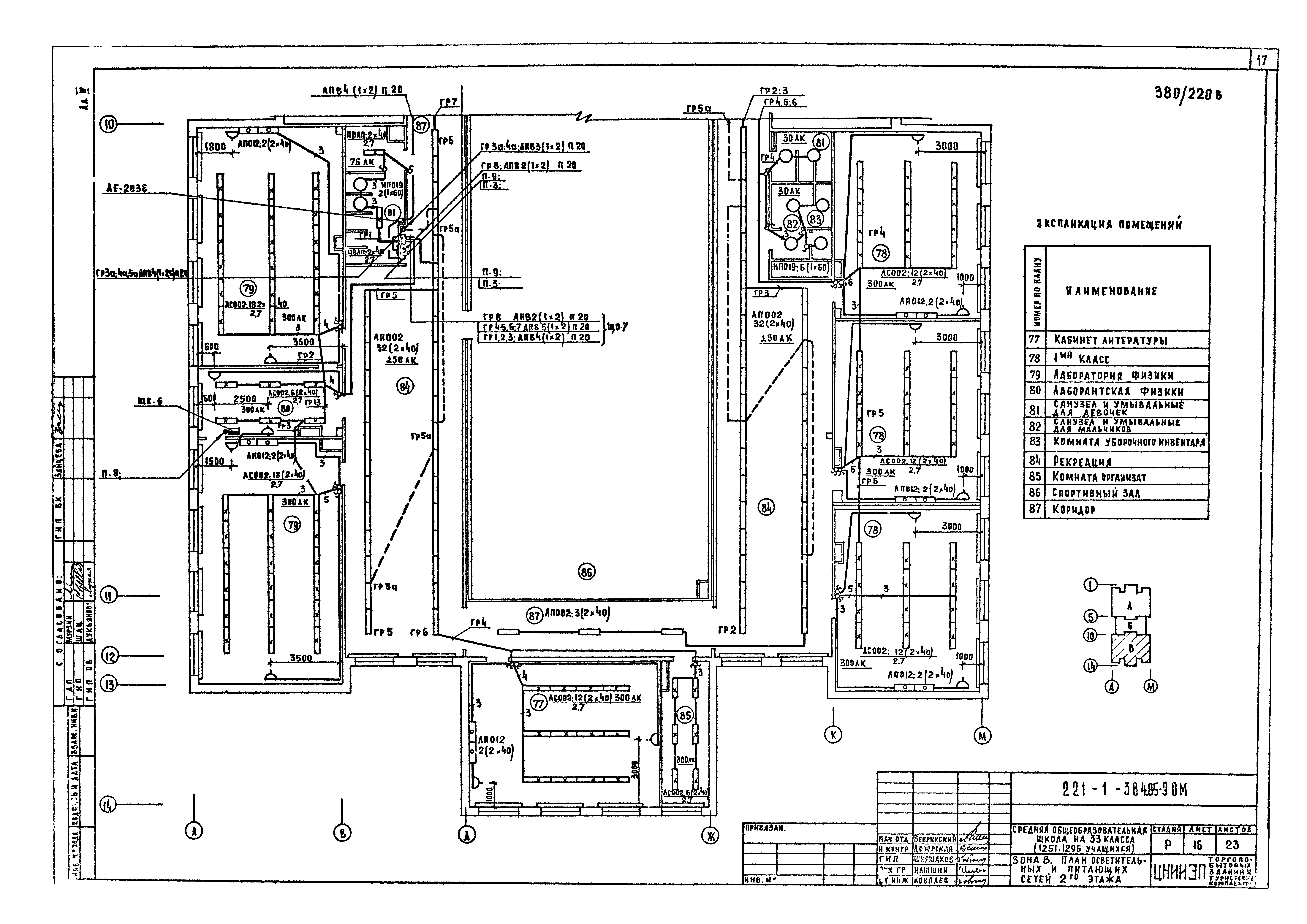
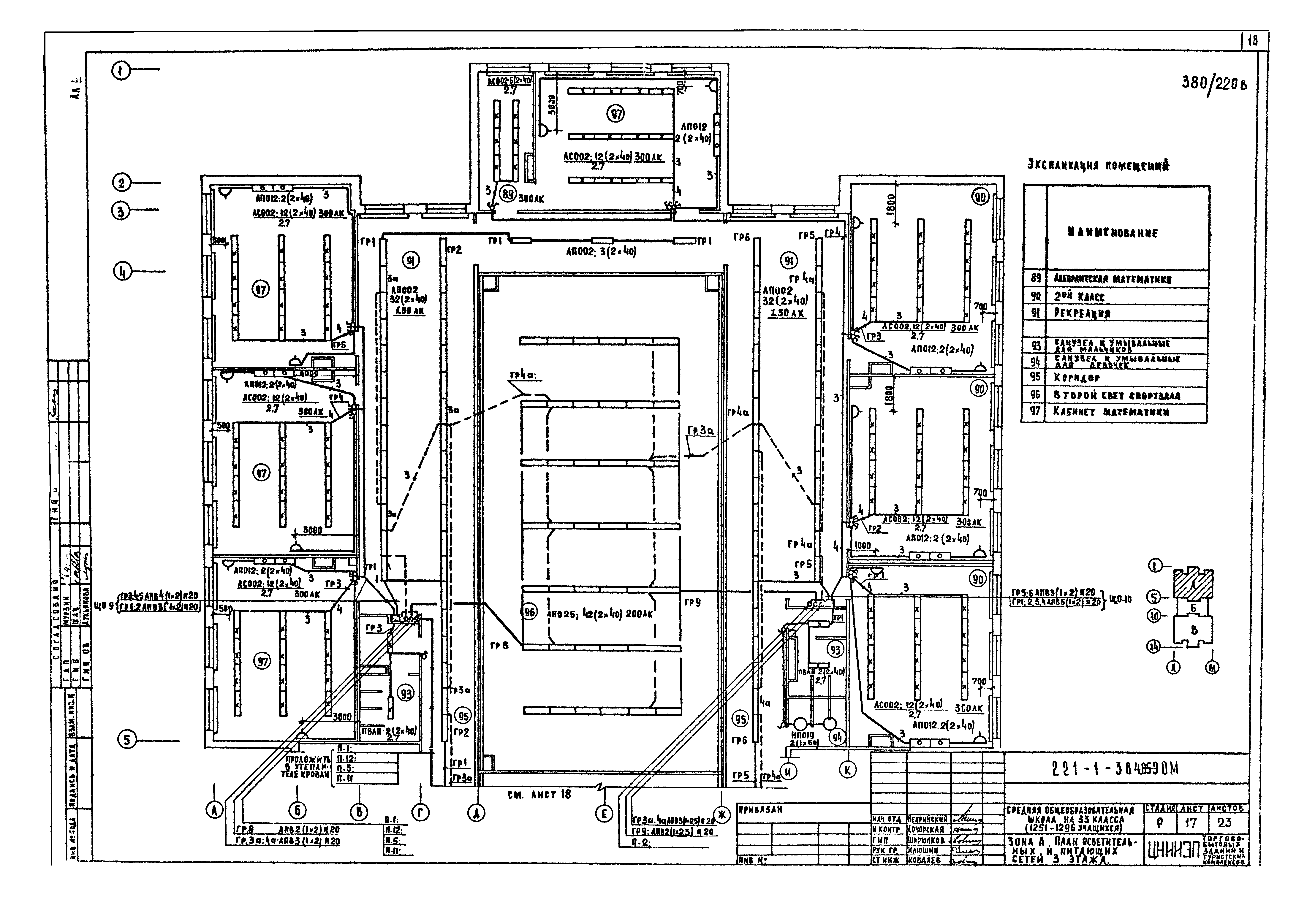
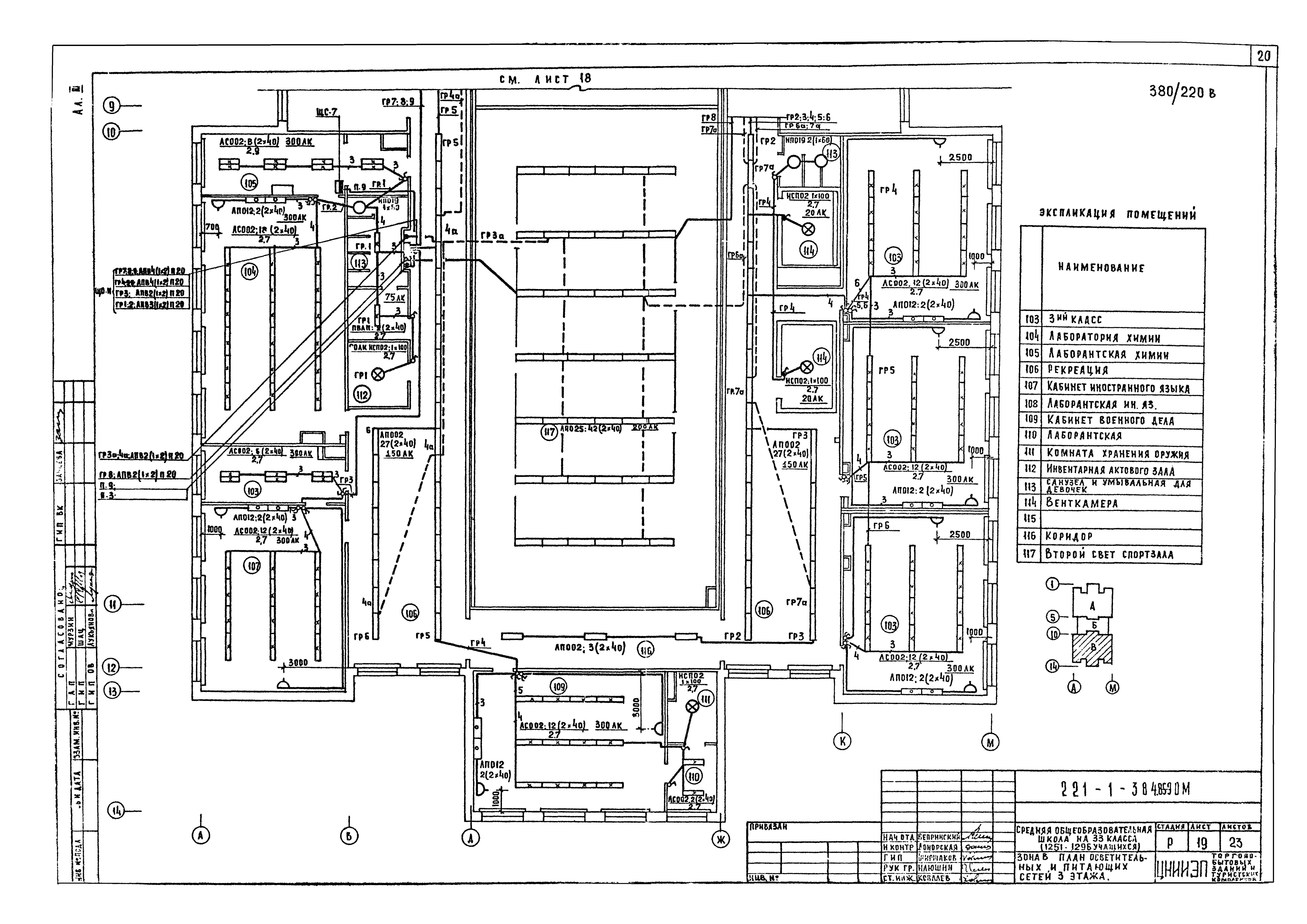
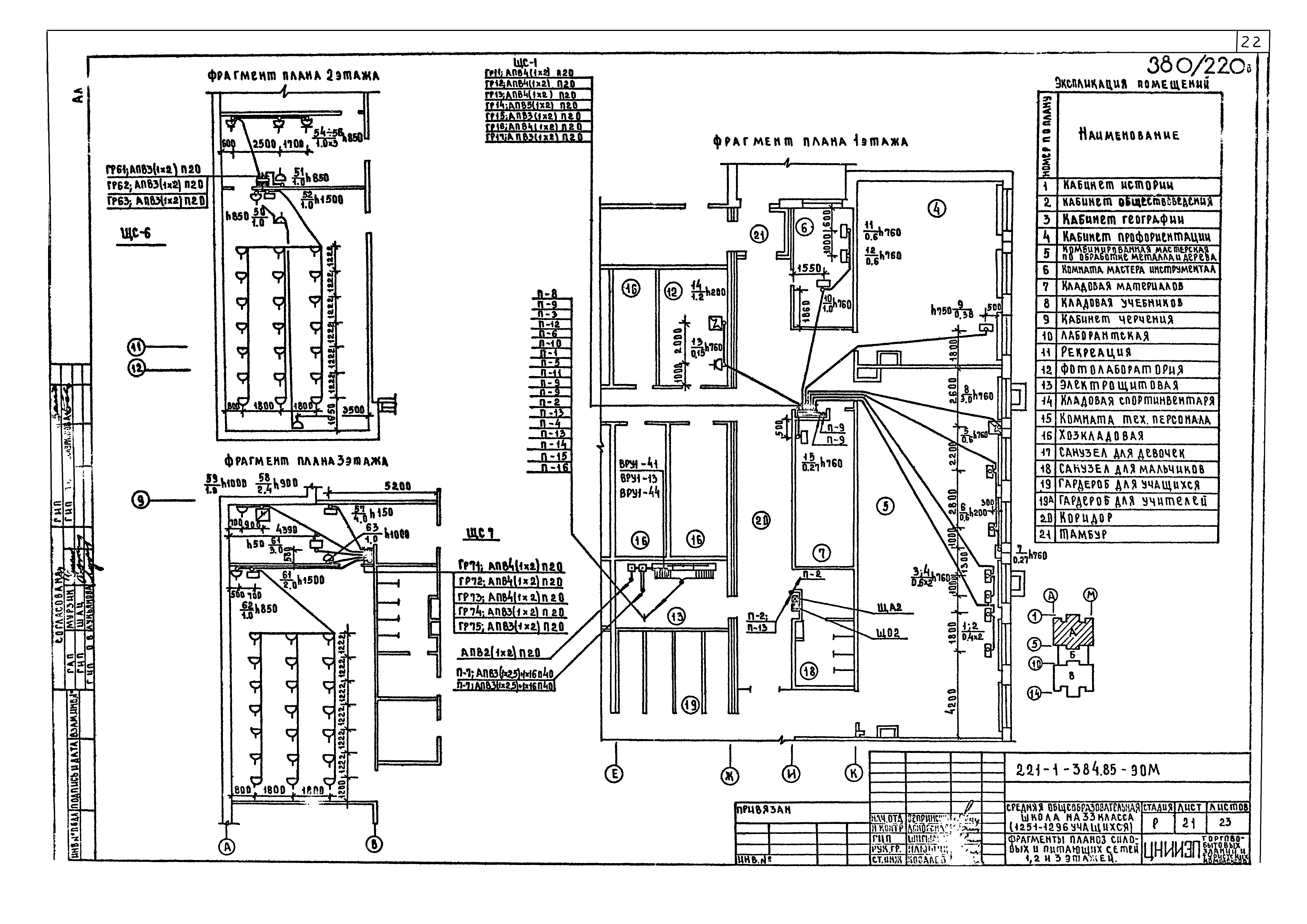
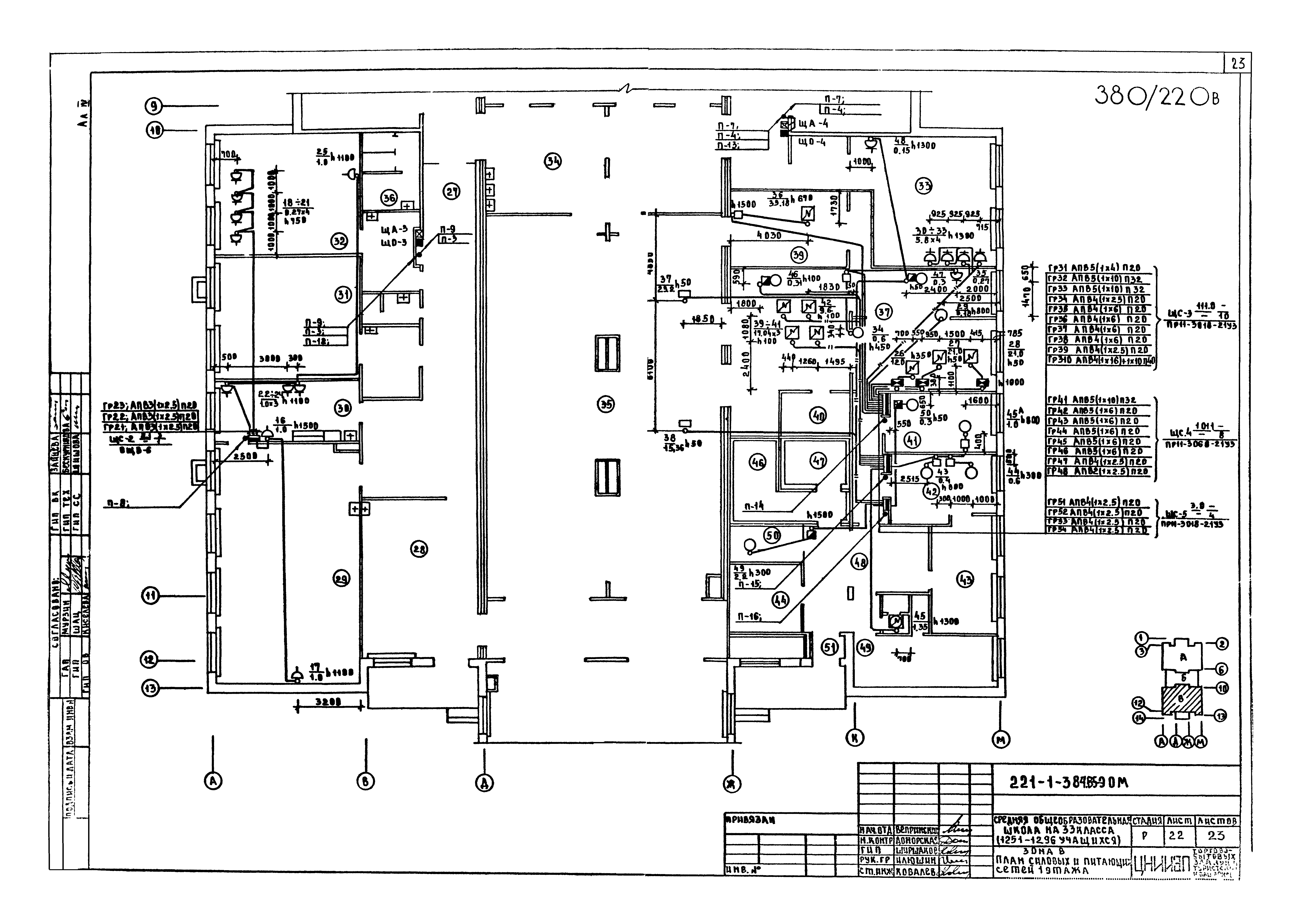
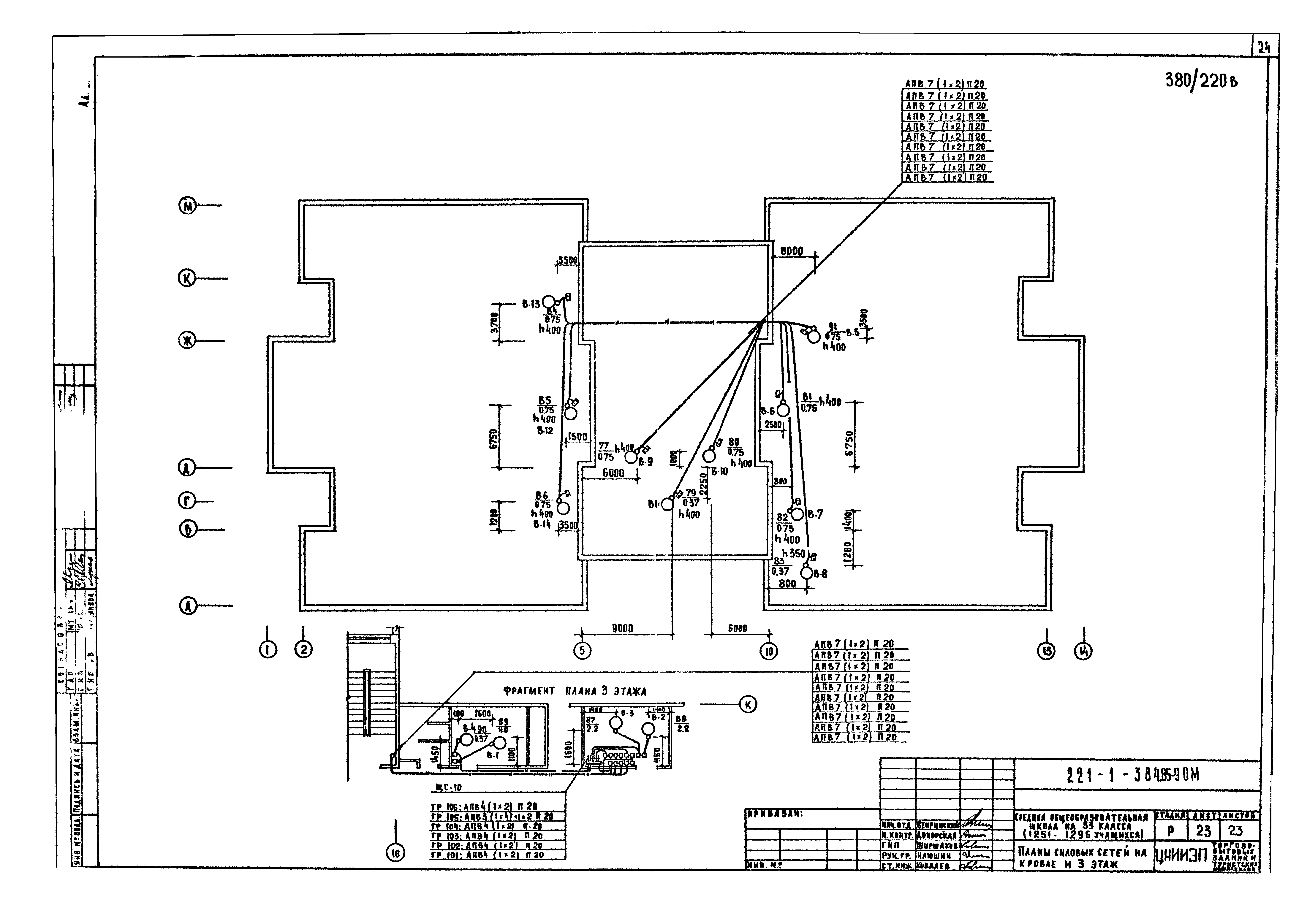
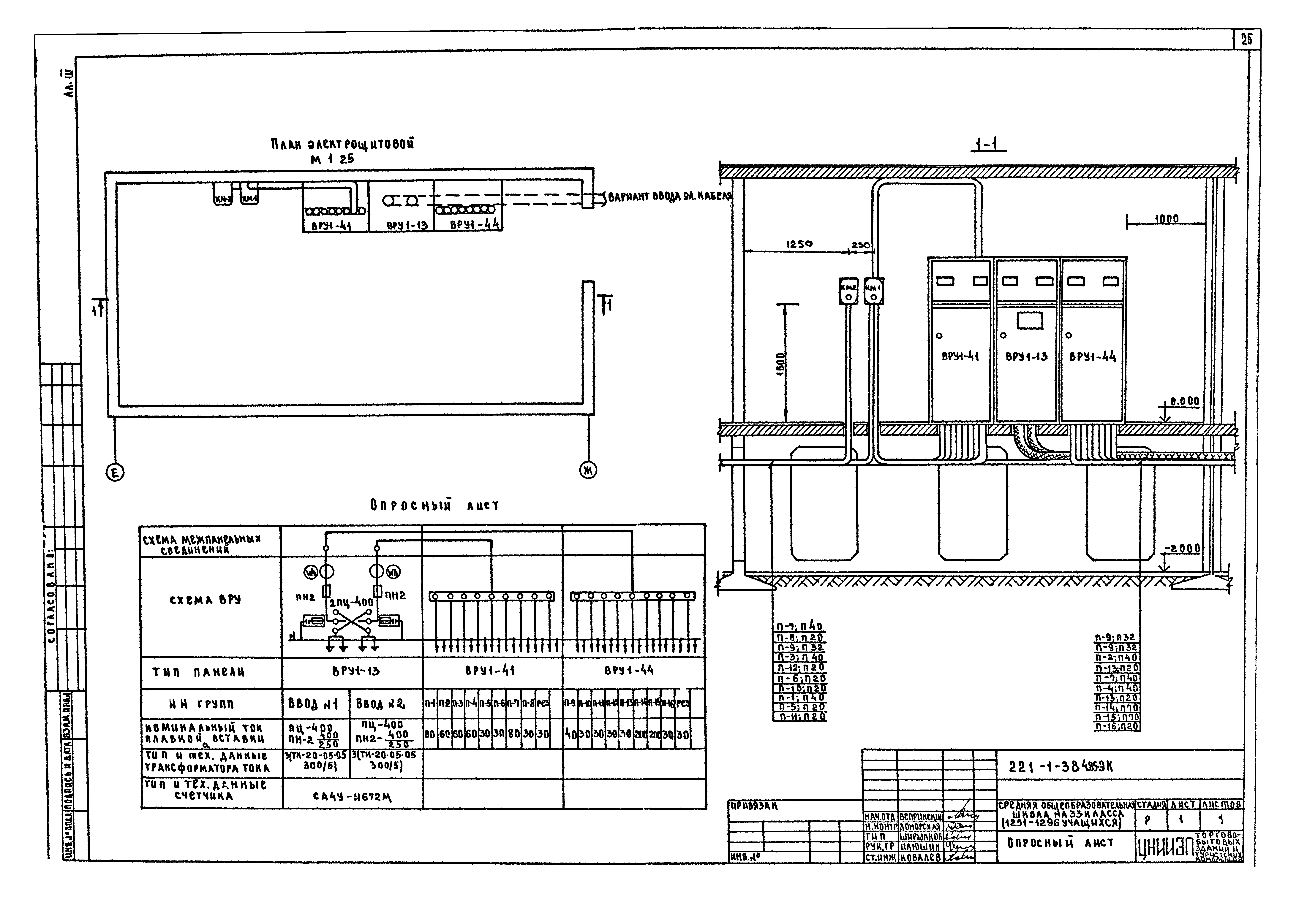
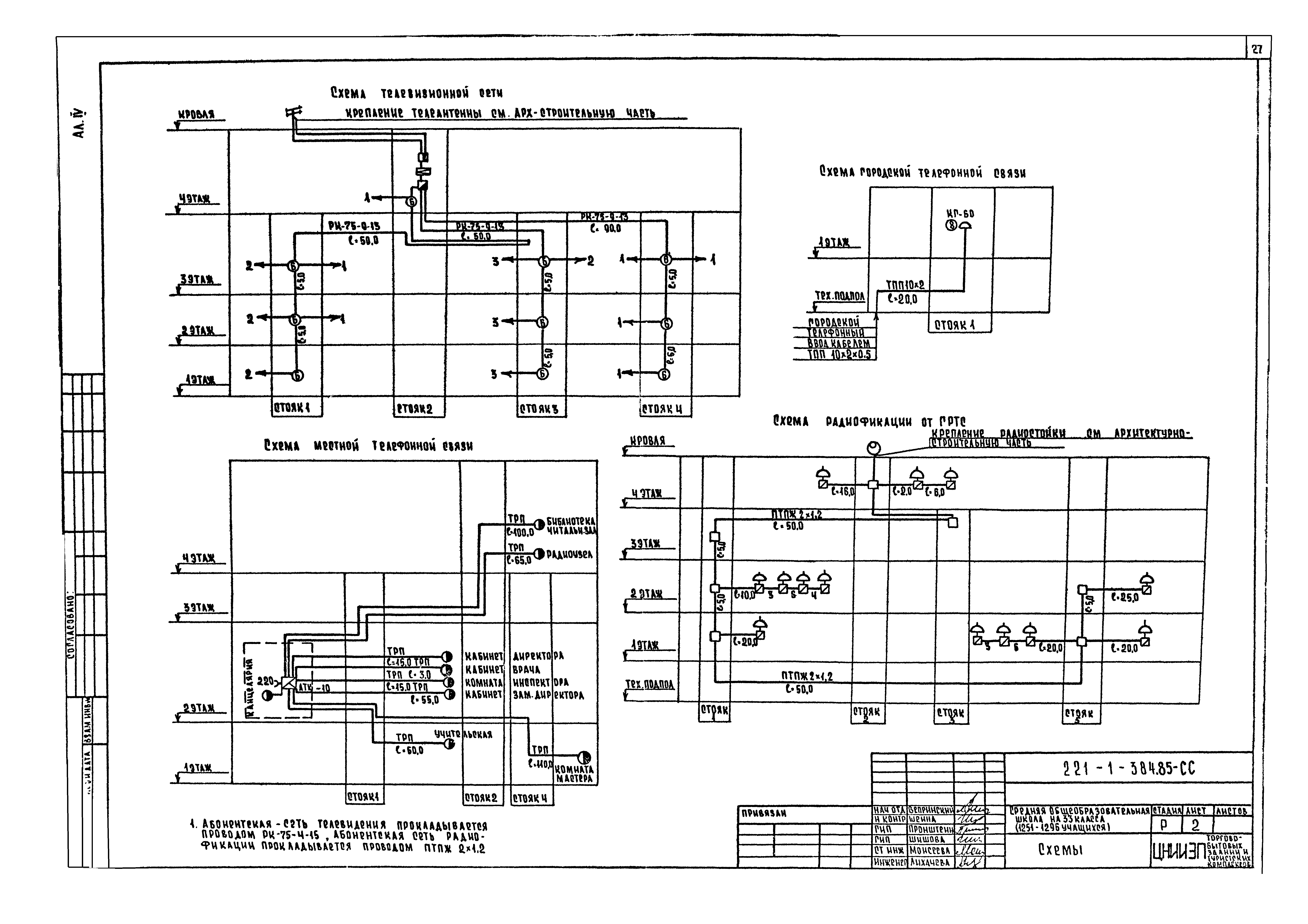
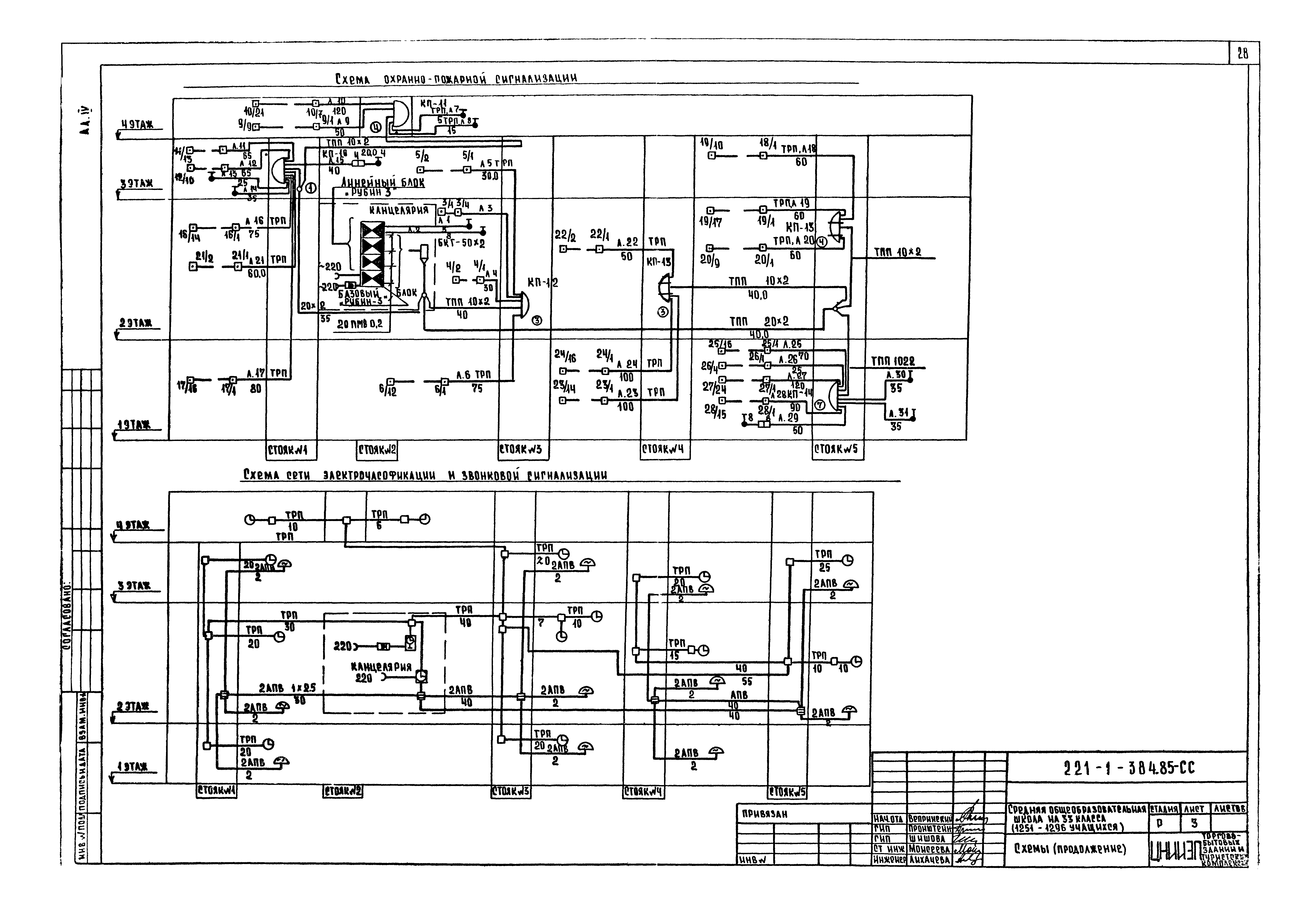
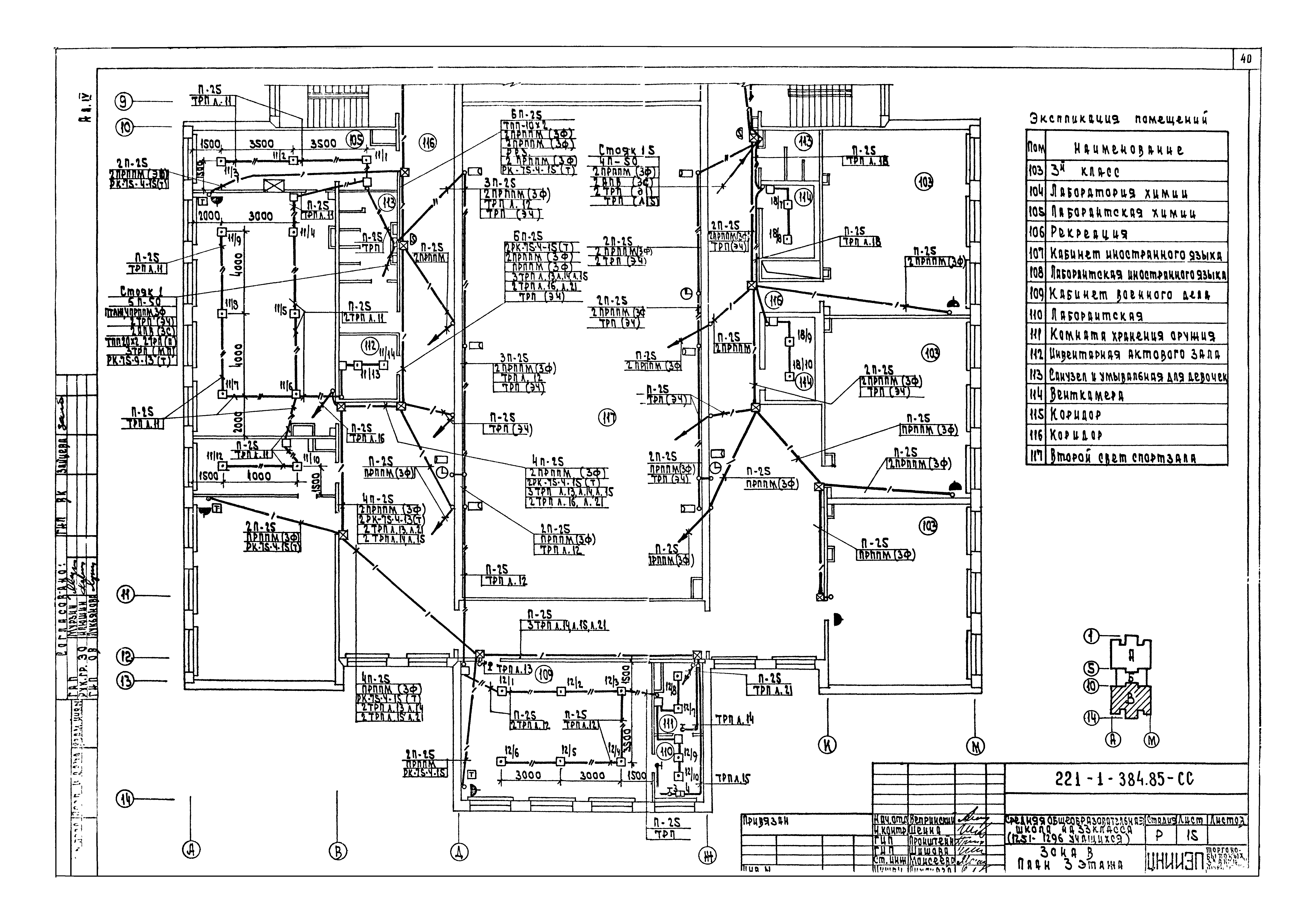
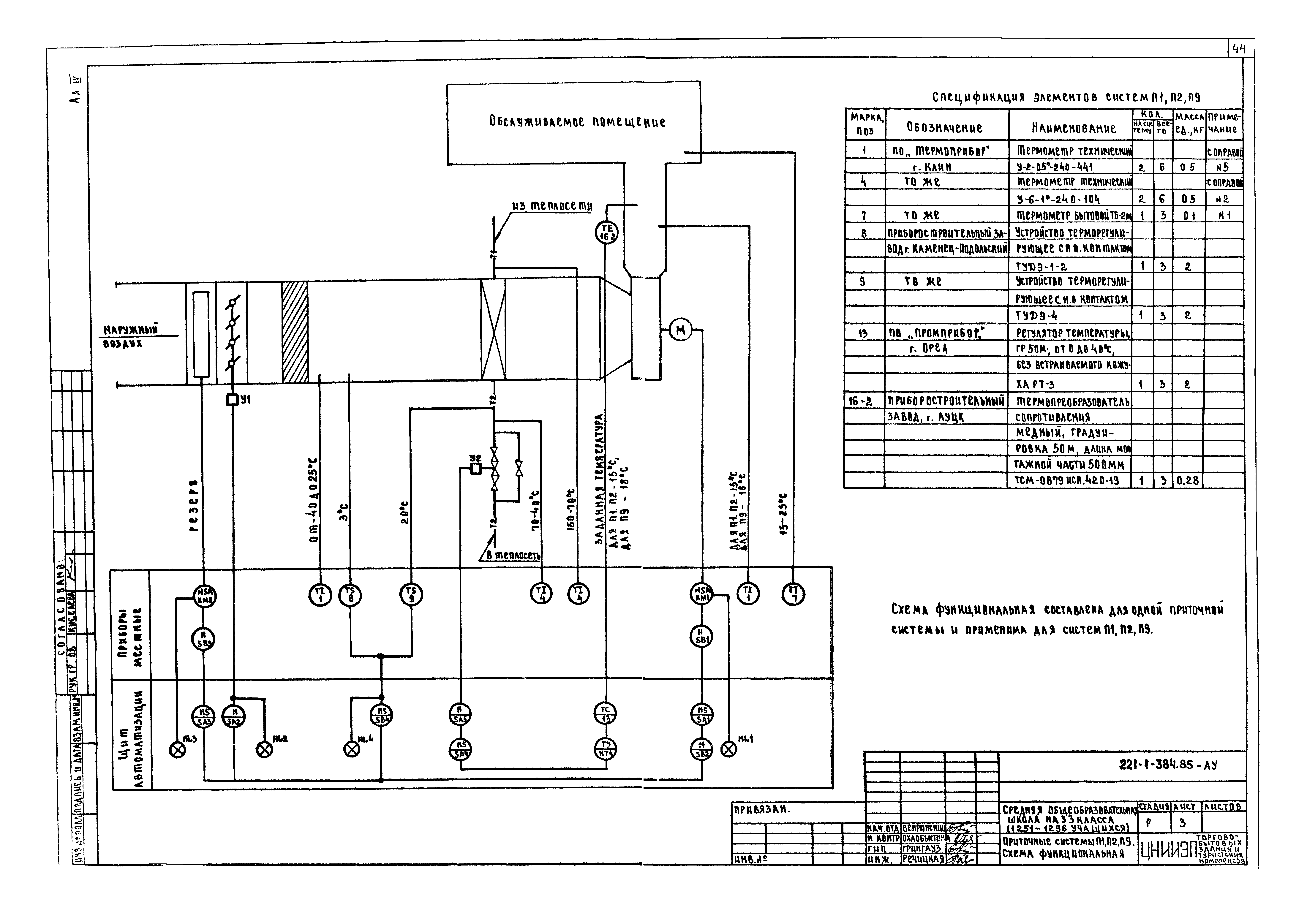
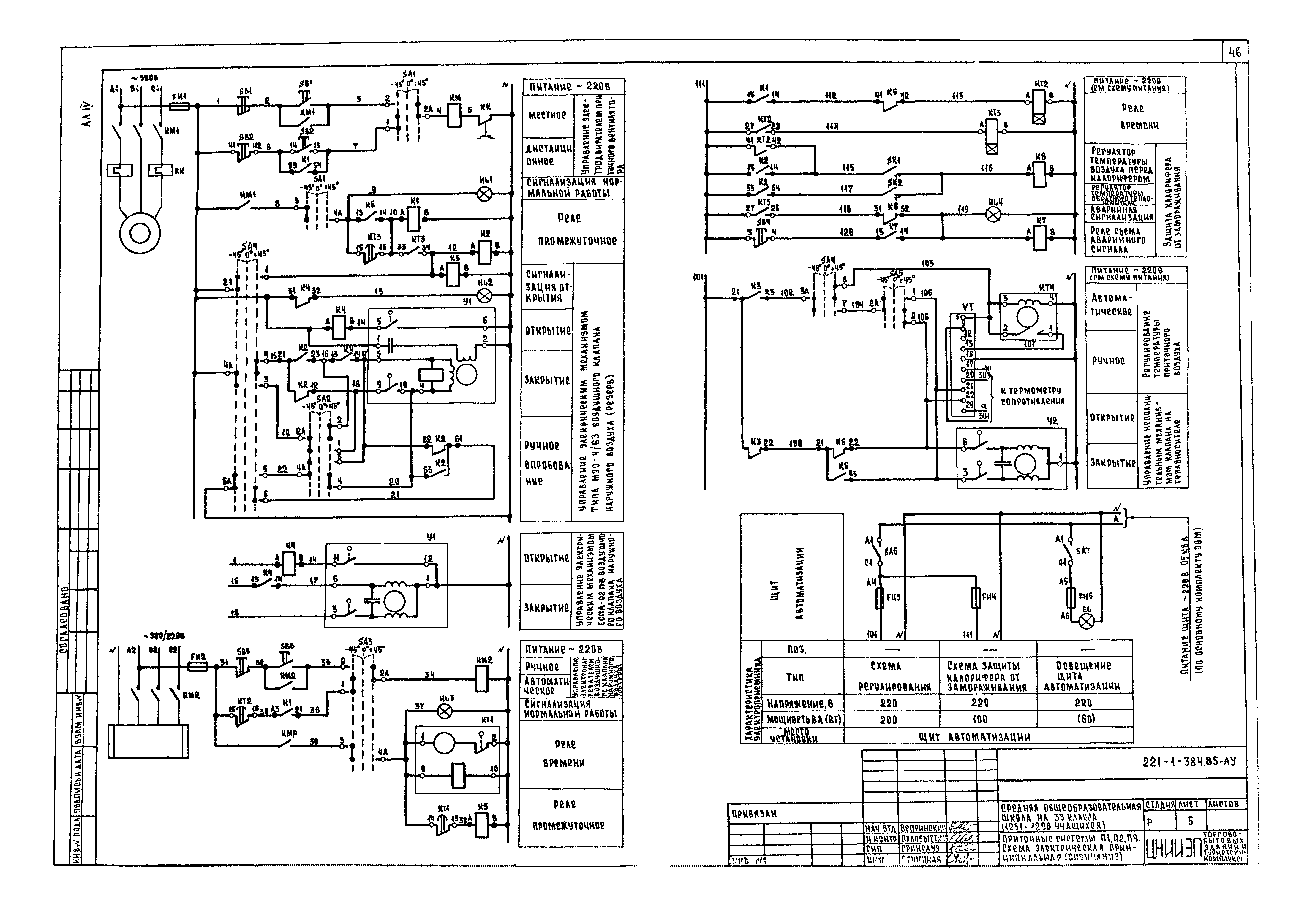
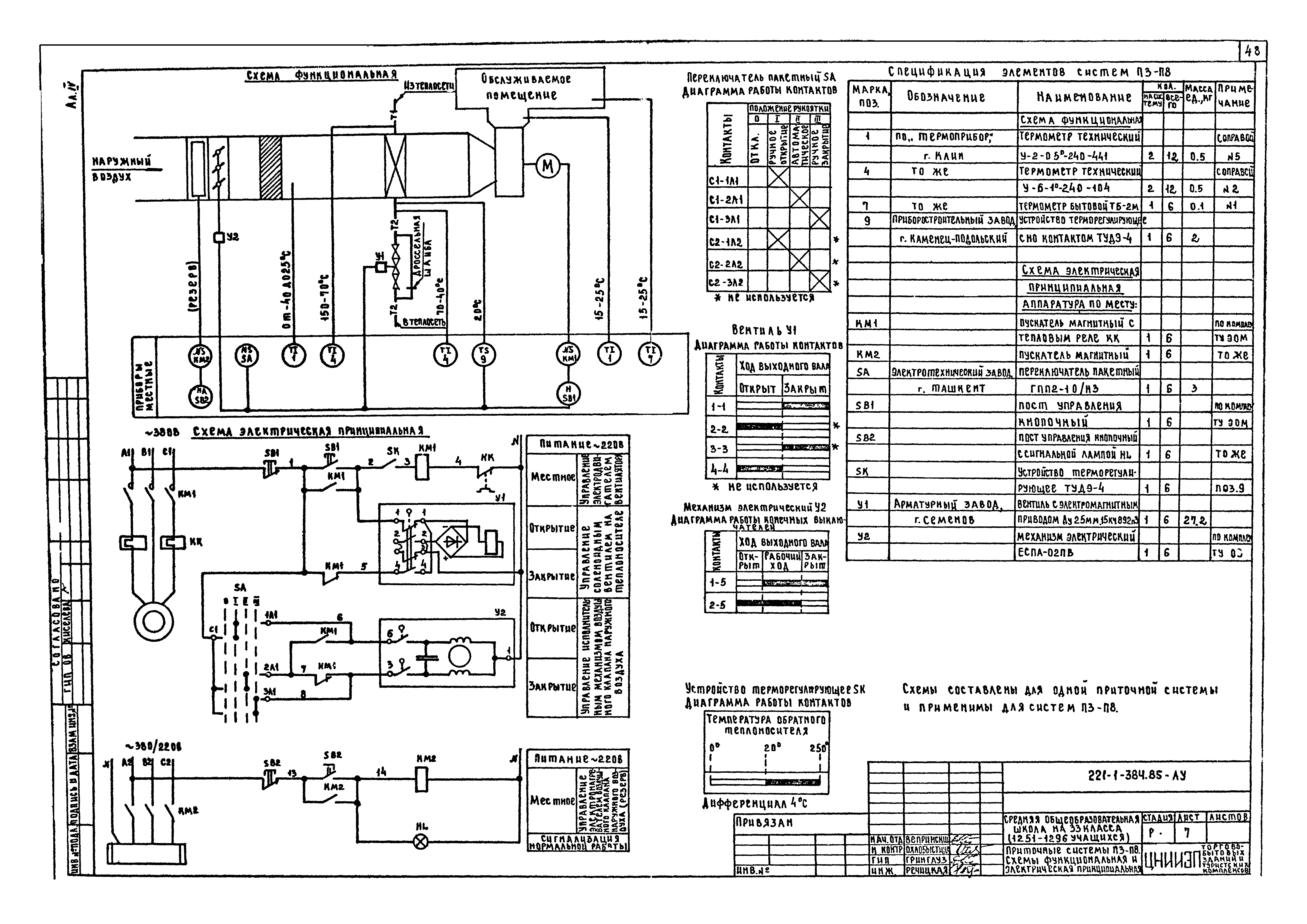
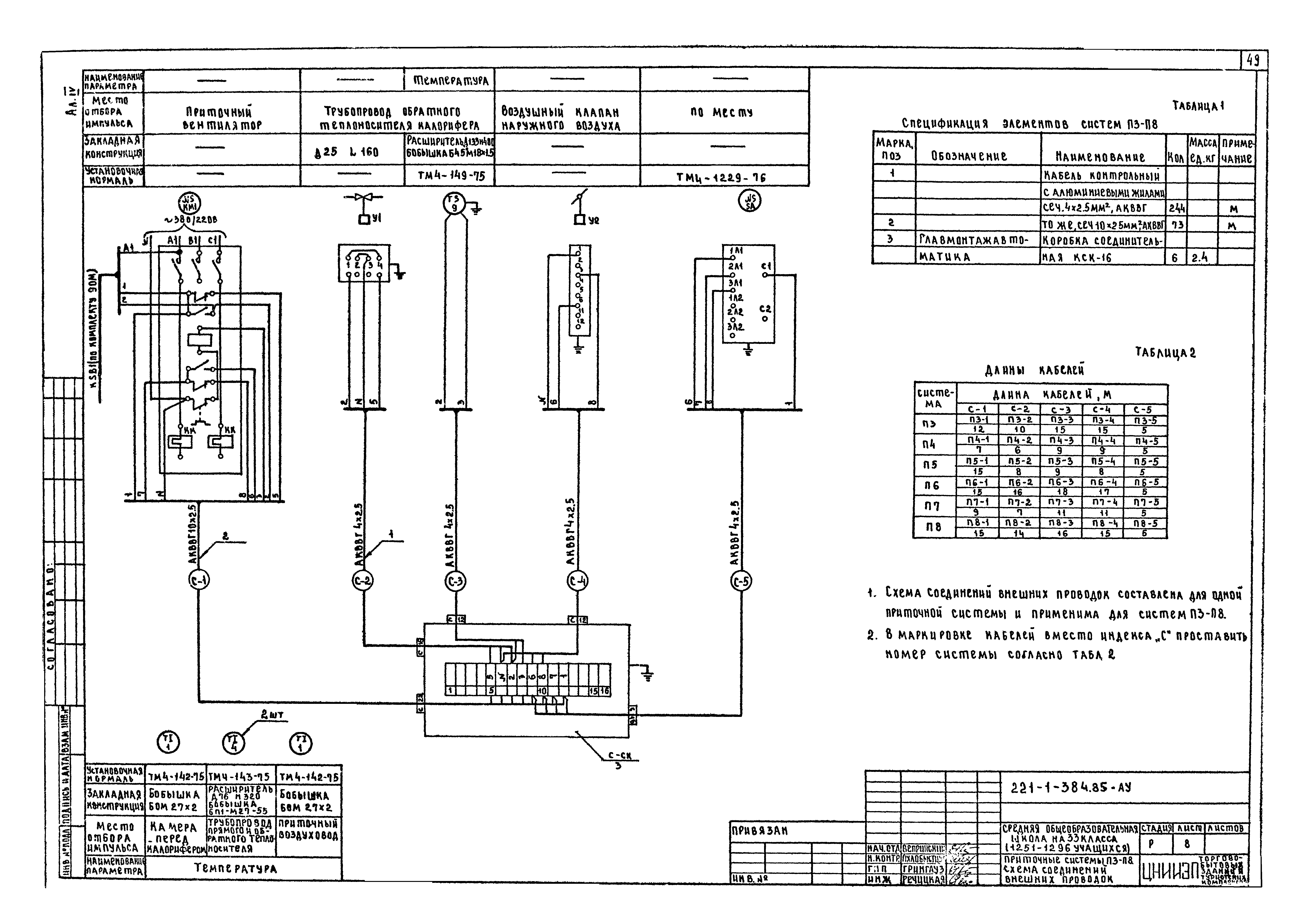
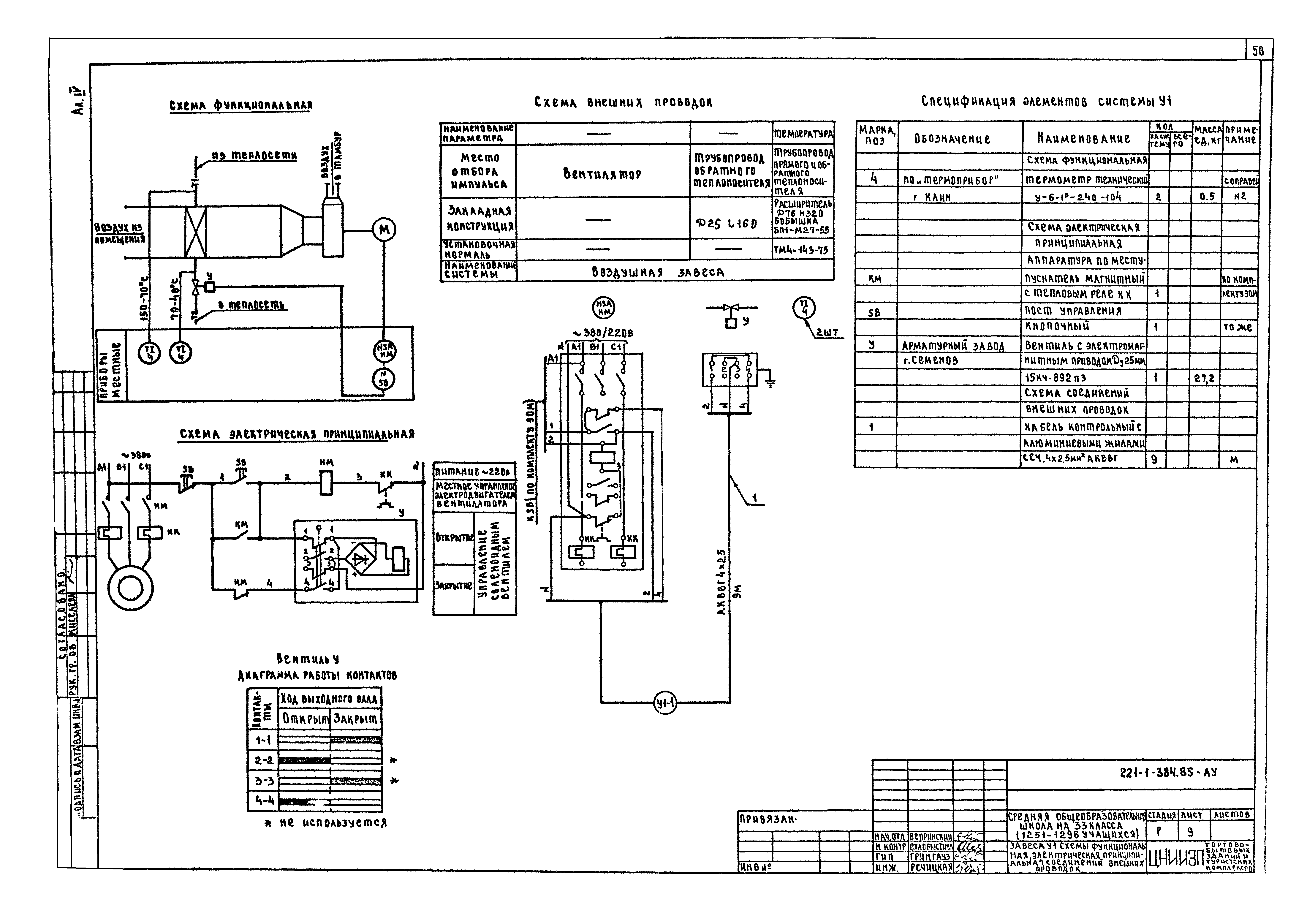
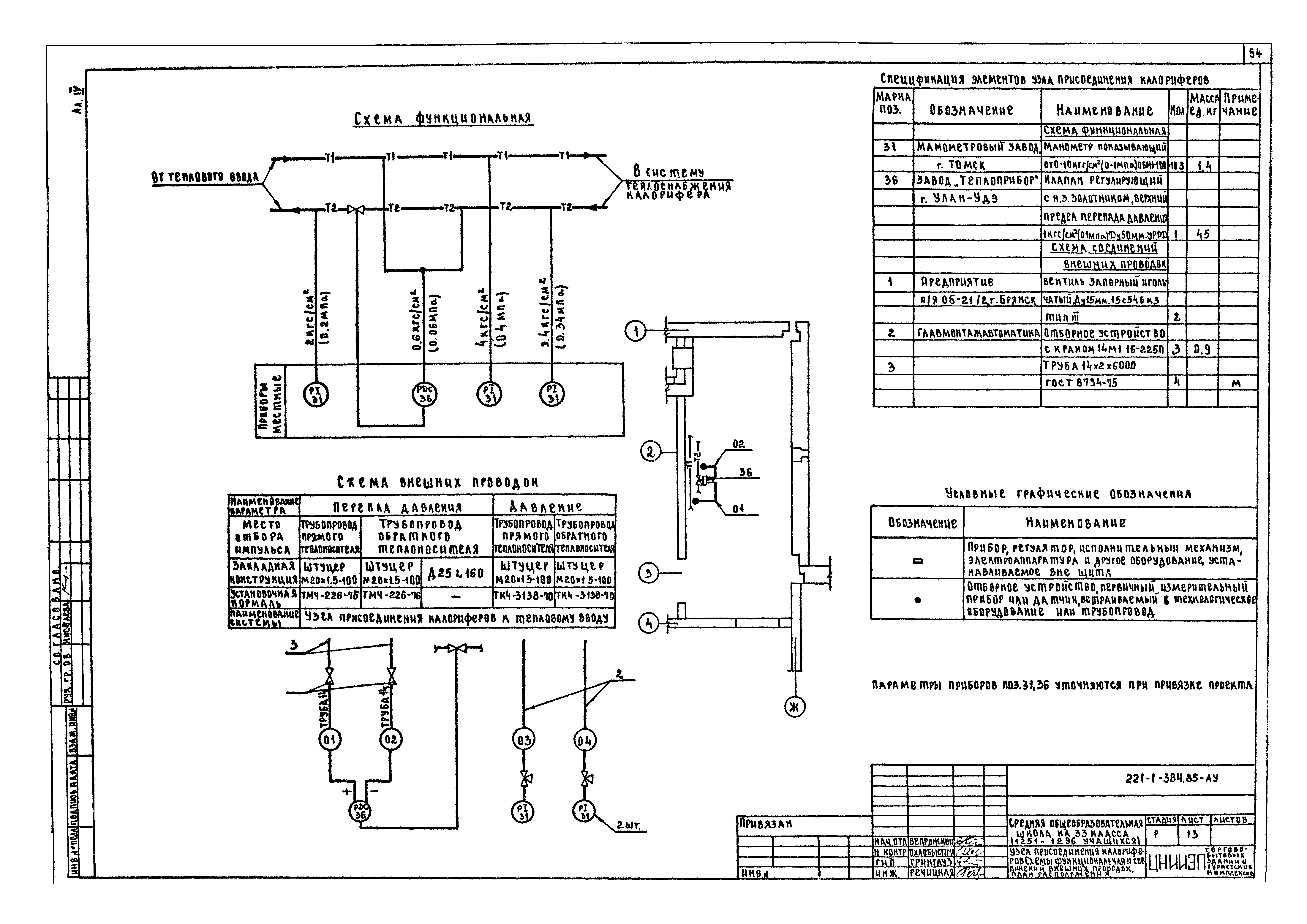
| Оглавление: | Чертежи основного комплекта марки ЭОМ Общие данные Однолинейная расчетная схема питающих сетей. Схема автоматического отключения вентиляции при пожаре Расчетная схема ЩС-1, ЩС-2 Расчетная схема ЩС-3, ЩС-4 Расчетная схема ЩС-5, ЩС-6, ЩС-7 Расчетная схема ЩС-8, ЩС-9, ЩС-10 Зона А. План сетей технического подполья Зона Б. План сетей технического подполья Зона В. План сетей технического подполья Зона А. План осветительных и питающих сетей 1 этажа Зона Б. План осветительных и питающих сетей 1 этажа Зона В. План осветительных и питающих сетей 1 этажа Зона А. План осветительных и питающих сетей 2 этажа Зона Б. План осветительных и питающих сетей 2 этажа Зона В. План осветительных и питающих сетей 2 этажа Зона А. План осветительных и питающих сетей 3 этажа Зона Б. План осветительных и питающих сетей 3 этажа Зона В. План осветительных и питающих сетей 3 этажа Зона Б. План осветительных и питающих сетей 4 этажа Фрагменты планов силовых и питающих сетей 1, 2 и 3 этажей Зона В. План силовых и питающих сетей 1 этажа План силовых сетей на кровле и 3 этаж Опросный лист Чертежи основного комплекта марки СС Общие данные Схемы Схема местной радиосети Зоны А, Б. План технического подполья Зона В. План технического подполья Зона А. План 1 этажа Зона Б. План 1 этажа Зона В. План 1 этажа Зона А. План 2 этажа Зона Б. План 2 этажа Зона В. План 2 этажа Зона А. План 3 этажа Зона Б. План 3 этажа Зона В. План 3 этажа Зона Б. План 4 этажа Чертежи основного комплекта марки АУ Общие данные Приточные системы П1, П2, П9. Схема функциональная Приточные системы П1, П2, П9. Схема электрическая принципиальная Приточные системы П1, П2, П9. Схема соединений внешних проводок Приточные системы П3 - П8. Схема функциональная и электрическая принципиальная Приточные системы П3 - П8. Схема соединений внешних проводок Завеса У1. Схемы функциональная, электрическая принципиальная и соединений внешних проводок Приточные системы П1, П2, П5, П6, П8. План расположения Приточные системы П3, П4, П7, П9. Завеса У1. План расположения Приточные системы П1, П2, П9. Общий вид щита автоматизации Узел присоединения калориферов. Схемы функциональная и соединений внешних проводок, план расположения Холодильная машина Х1 для камер. Схема соединений внешних проводок Холодильная машина Х1 для камер. План расположения |
| Разработан: | ЦНИИЭП торгово-бытовых зданий и туристских комплексов |
| Утверждён: | 27.11.1981 Госгражданстрой (Gosgrazhdanstroy 324) |

























































