Скачать Типовой проект 222-1-193/75 Альбом 0. Материалы для привязки и чертежи нулевого цикла работДата актуализации: 01.01.2021
|
| Обозначение: | Типовой проект 222-1-193/75 |
| Обозначение англ: | 222-1-193/75 |
| Статус: | действует |
| Название рус.: | Альбом 0. Материалы для привязки и чертежи нулевого цикла работ |
| Дата добавления в базу: | 01.10.2014 |
| Дата актуализации: | 01.01.2021 |
| Дата введения: | 24.11.1975 |
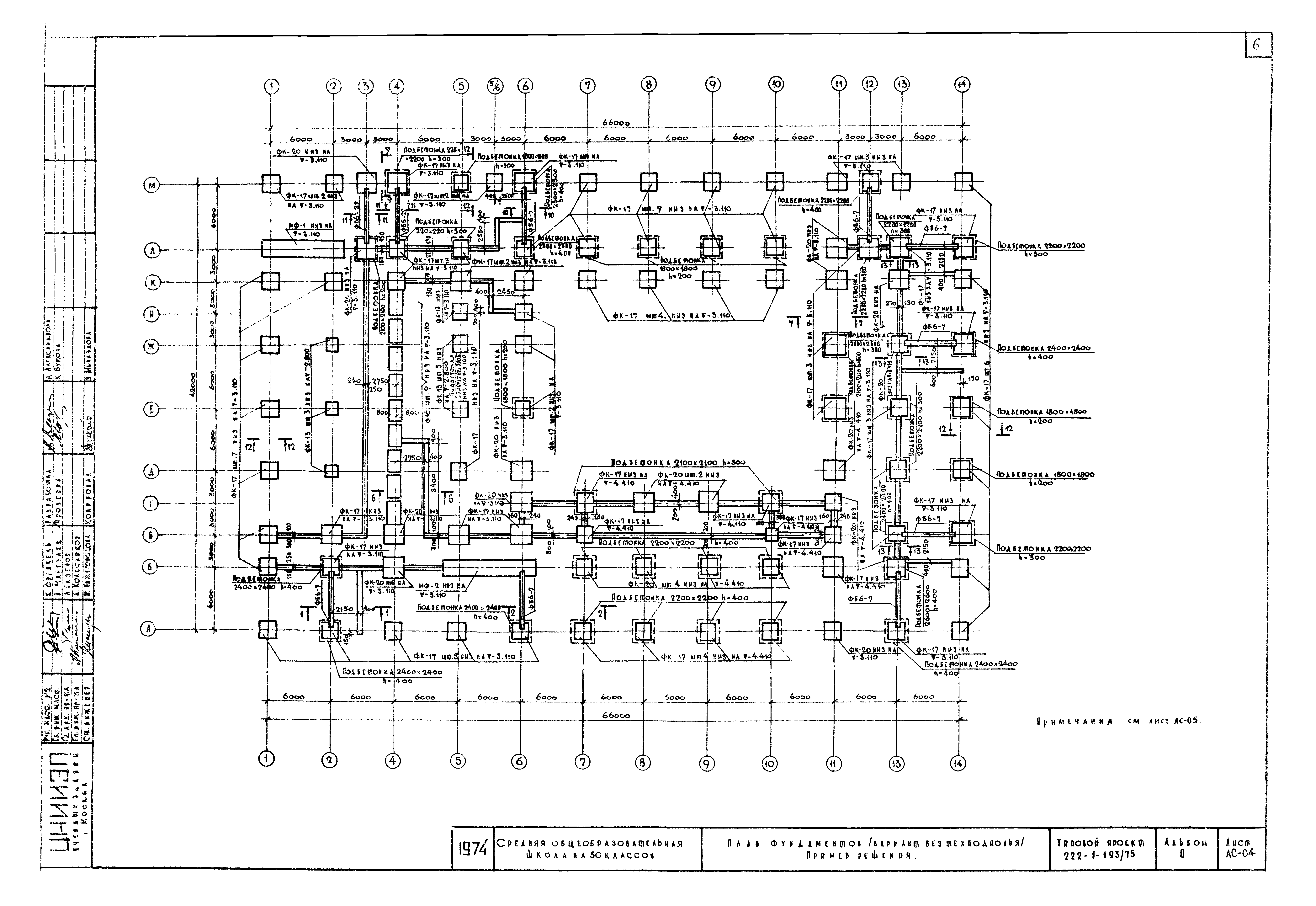
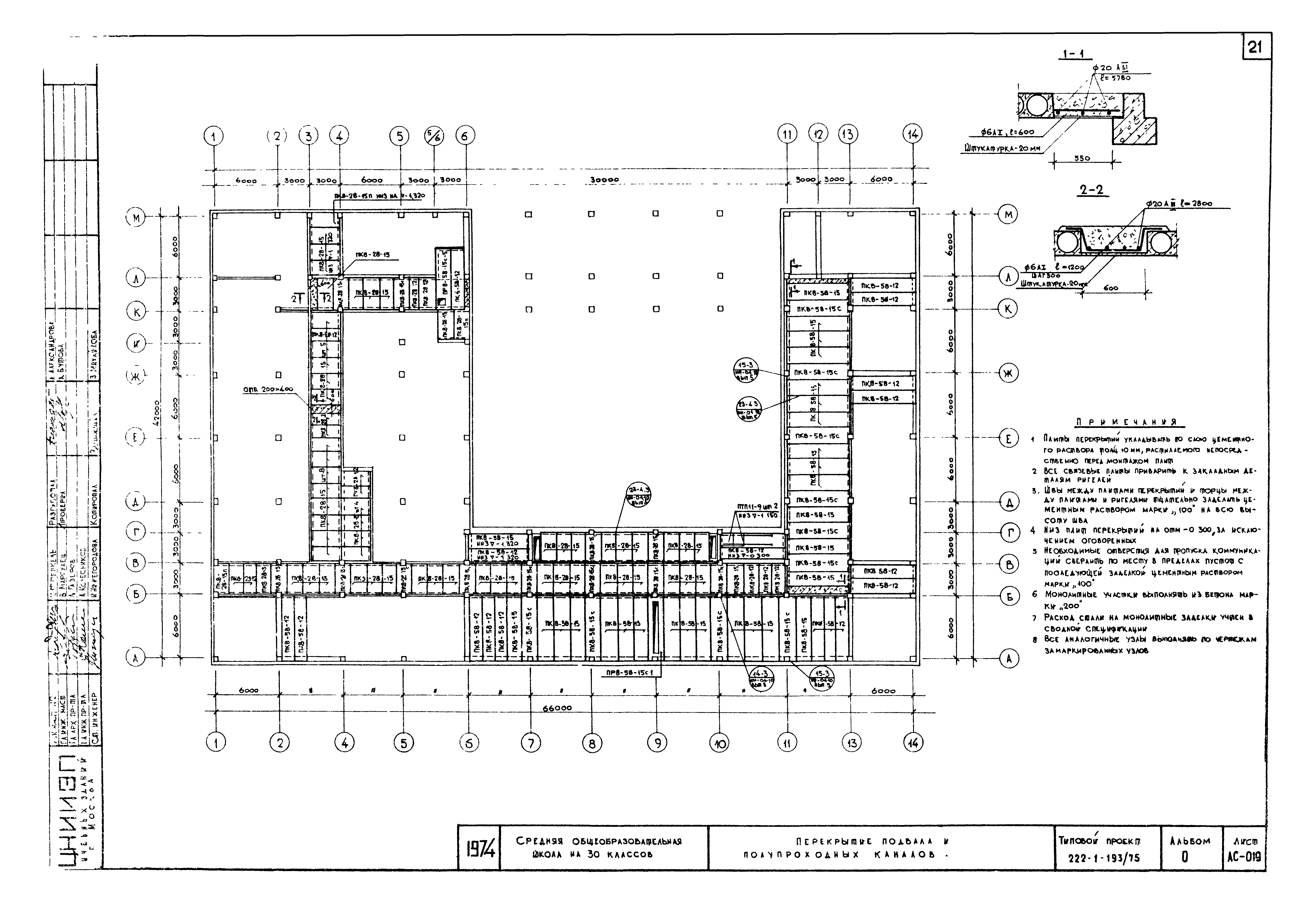
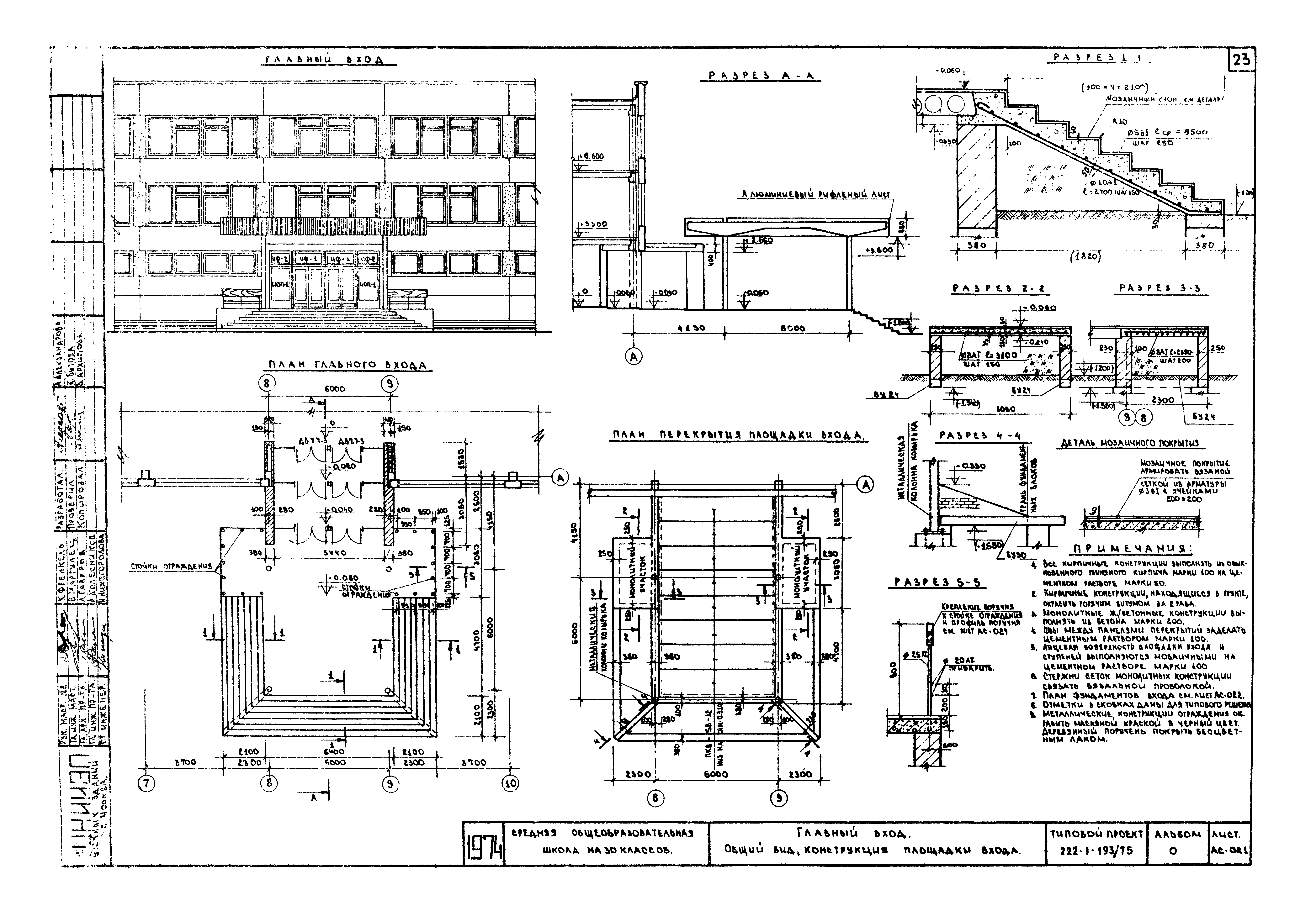
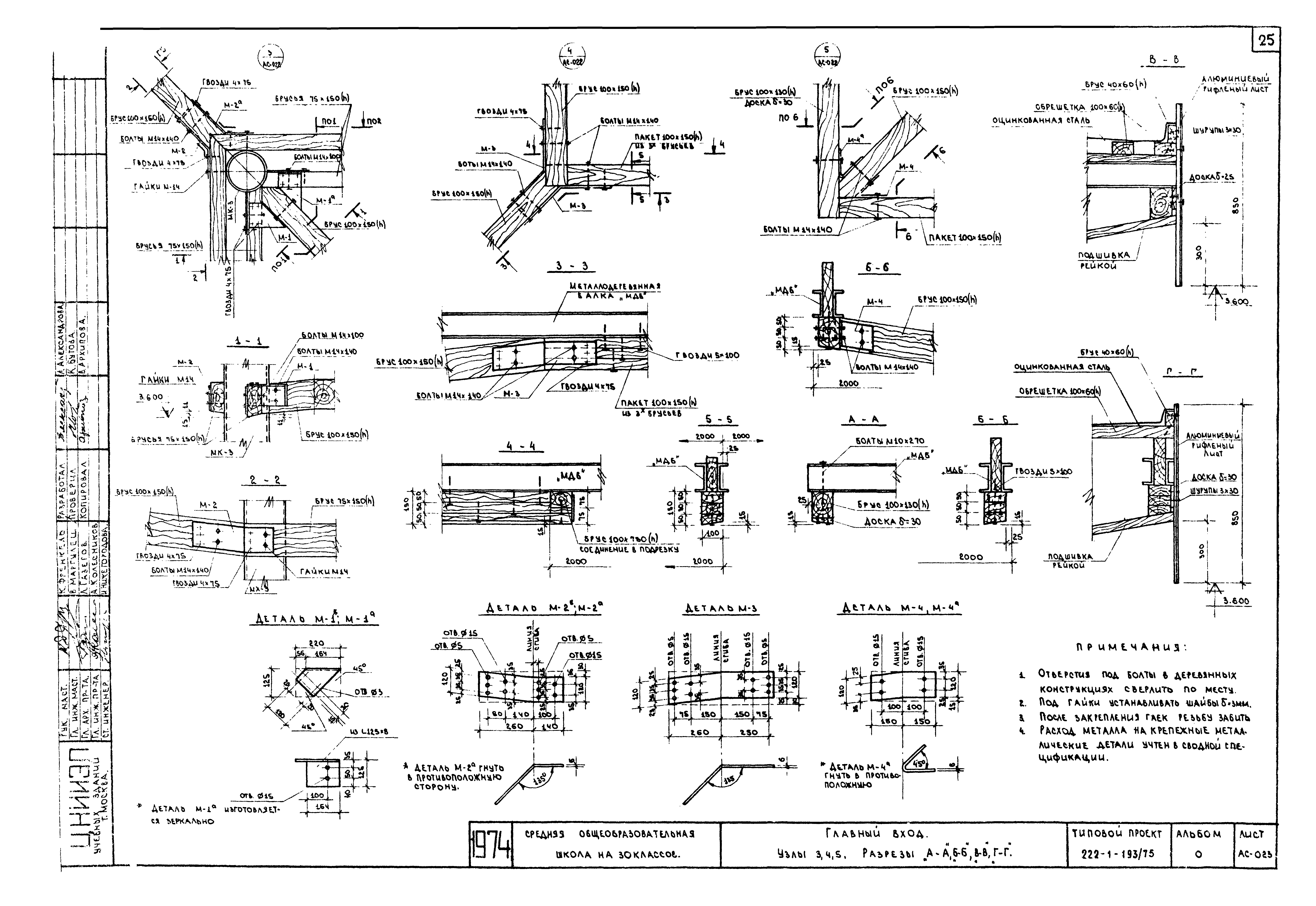
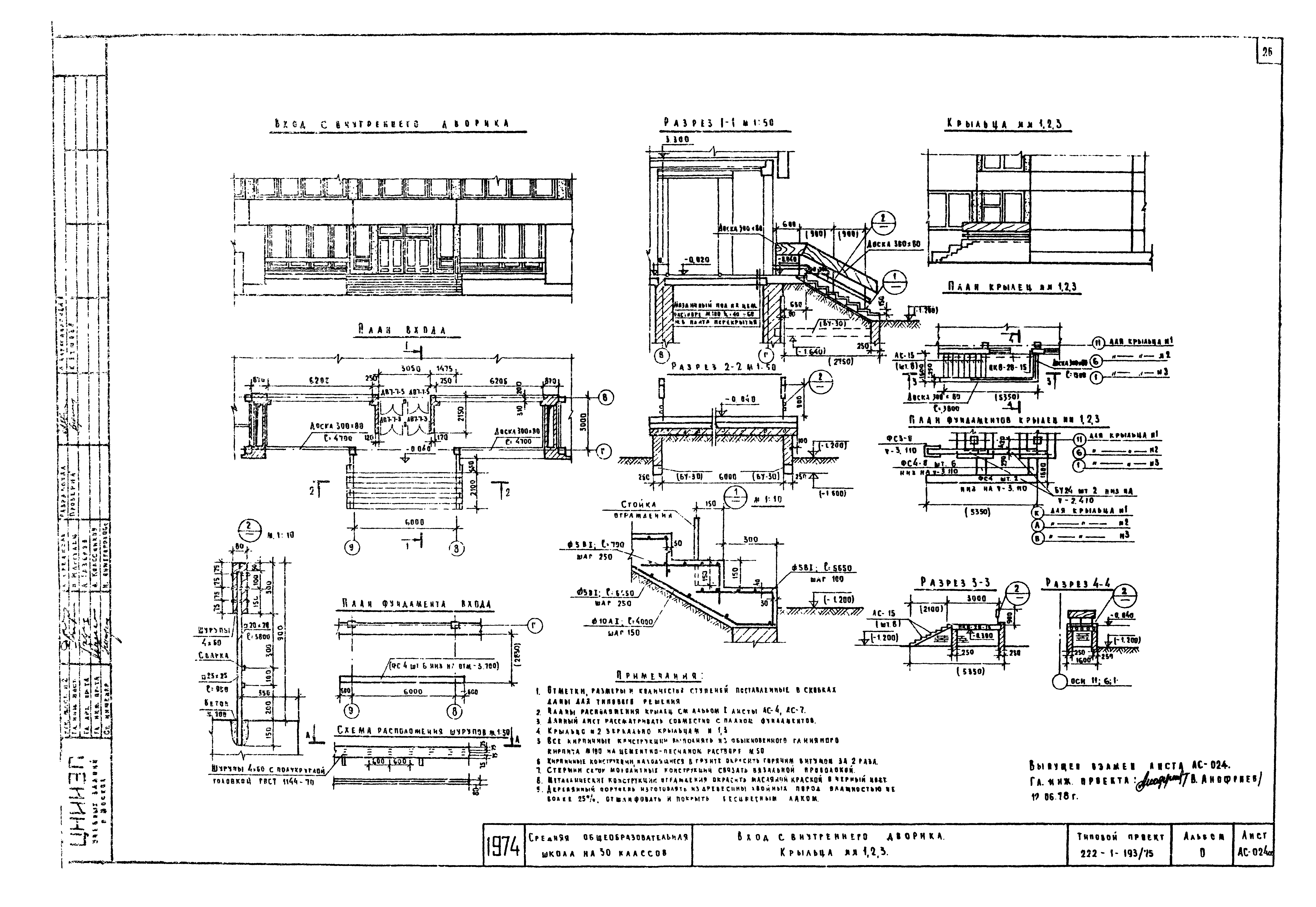
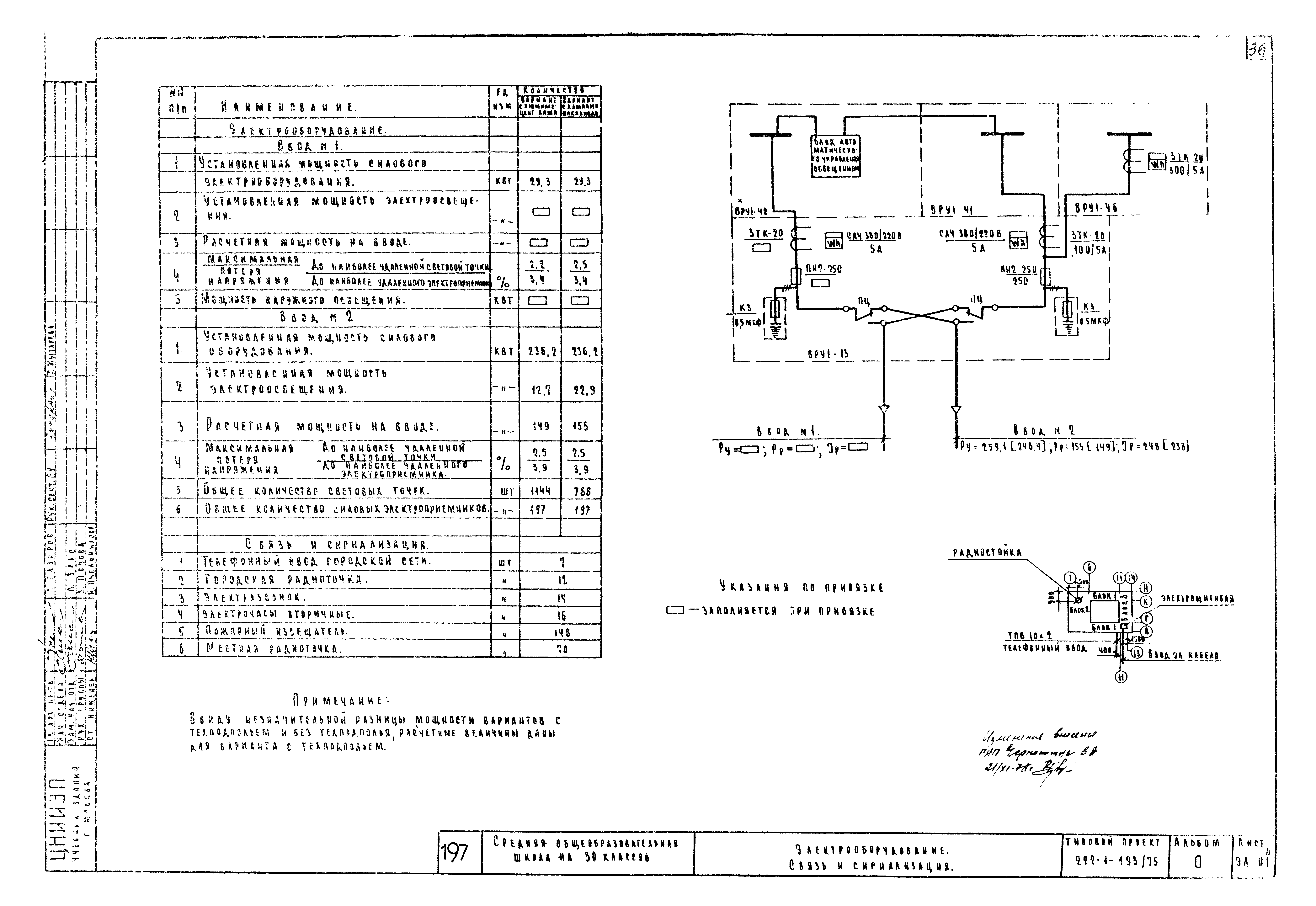
| Оглавление: | Содержание альбома. Генплан (пример решения). Пояснительная записка Таблицы нагрузок на фундаменты под колонны каркаса План фундаментов (вариант с техническим подпольем). Пример решения План фундаментов (вариант с техническим подпольем). Чертеж привязки План фундаментов (вариант без технического подполья). Пример решения План фундаментов (вариант без технического подполья). Чертеж привязки Развертки и сечения стен подвала (вариант с техническим и без технического подполья) Сечения и развертки фундаментов (вариант с техническим и без технического подполья) План колонн. Ориентация по закладным деталям (вариант с техническим и без технического подполья) Монтажные схемы каркасов по осям "А", "Б" Монтажные схемы каркасов по осям "Б", "Г", "Л", "1" Монтажные схемы каркасов по осям "В", "М", "2" Монтажные схемы каркасов по осям "К", "5", "6" Монтажные схемы каркасов по осям "10", "11", "13", "14", "И" Монтажные схемы сплошных диафрагм жесткости "Д-1", "Д-2". Диафрагмы жесткости вентиляционных блоков ДВБ и вентиляционных блоков "ВБ". Монолитные фундаменты "МФ-1", "МФ-2" План технического подполья План подвала. Лестница №2 План полупроходных и подпольных каналов Перекрытие подвала и технического подполья Перекрытие подвала и полупроходных каналов Раскладка цокольных панелей. Вариант с техническим и без технического подполья Главный вход. Общий вид. Конструкция площадки входа Главный вход. План фундаментов. Перекрытие тамбура. Конструкция козырька Главный вход. Узлы 3, 4, 5. Разрезы "А-А", "Б-Б", "В-В", "Г-Г" Вход с внутреннего дворика. Крыльца №№1, 2, 3 Отделочные работы Спецификация заполнения проемов выше и ниже отметки ноль Сводная спецификация изделий Отопление, вентиляция, газификация Водоснабжение, горячее водоснабжение, канализация, водостоки Электроснабжение и слаботочные устройства |
| Разработан: | ЦНИИЭП учебных зданий |
| Утверждён: | 24.11.1975 ЦНИИЭП учебных зданий (TsNIIEP of Educational Buildings 147) |




































