Скачать Типовой проект 222-1-193/75 Альбом II. Санитарно-технические чертежиДата актуализации: 01.01.2021
|
| Обозначение: | Типовой проект 222-1-193/75 |
| Обозначение англ: | 222-1-193/75 |
| Статус: | действует |
| Название рус.: | Альбом II. Санитарно-технические чертежи |
| Дата добавления в базу: | 01.10.2014 |
| Дата актуализации: | 01.01.2021 |
| Дата введения: | 24.11.1975 |
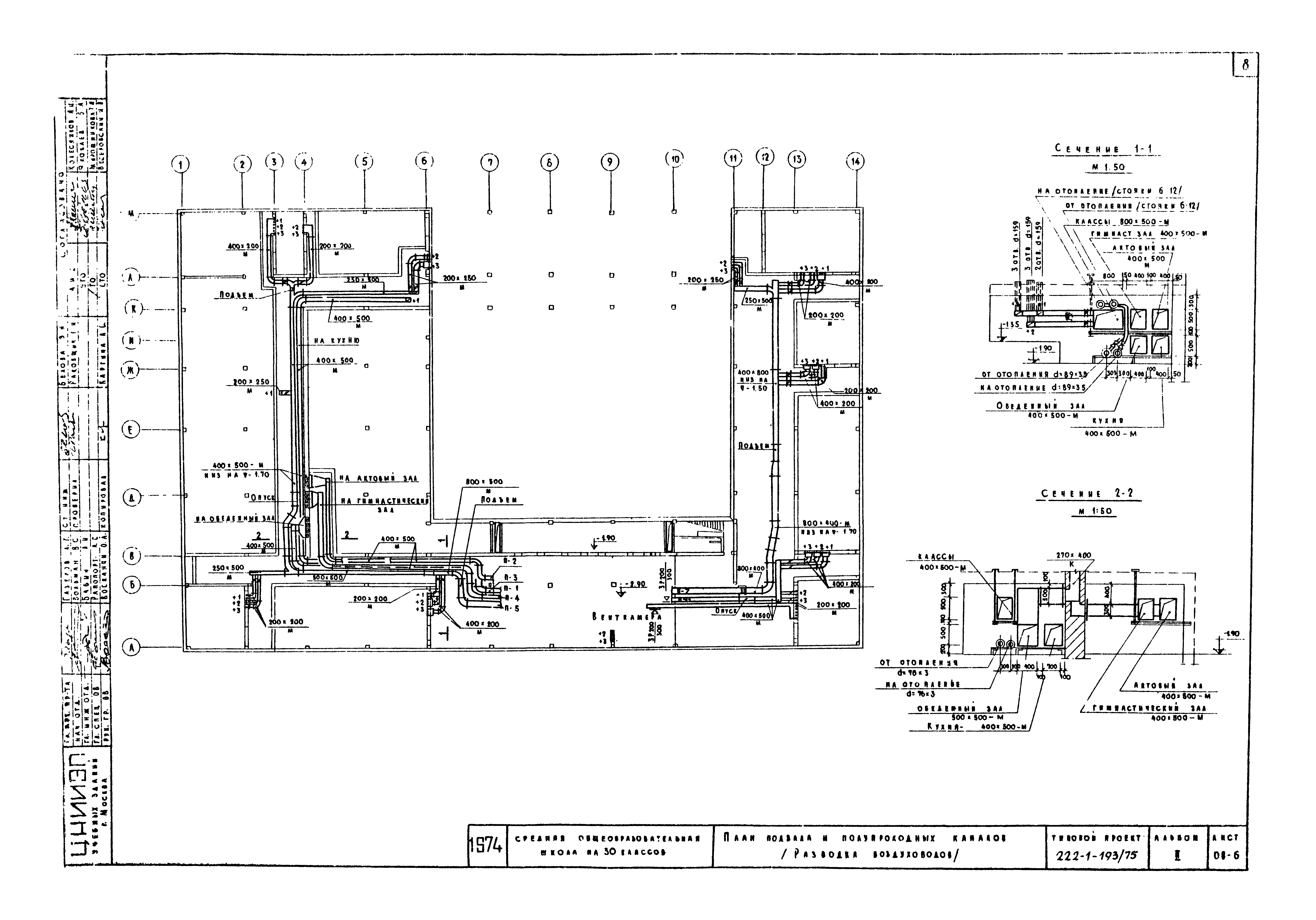
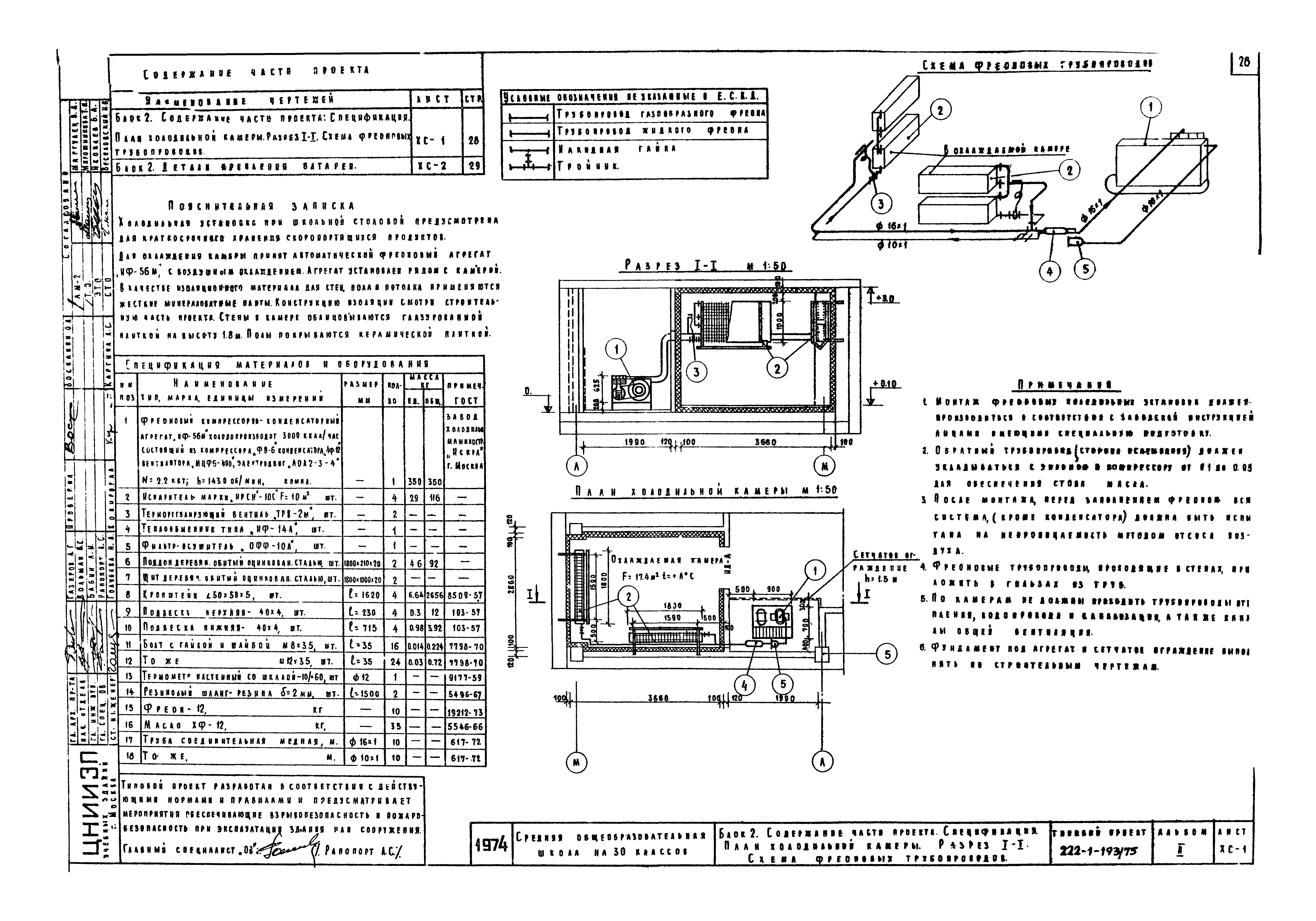
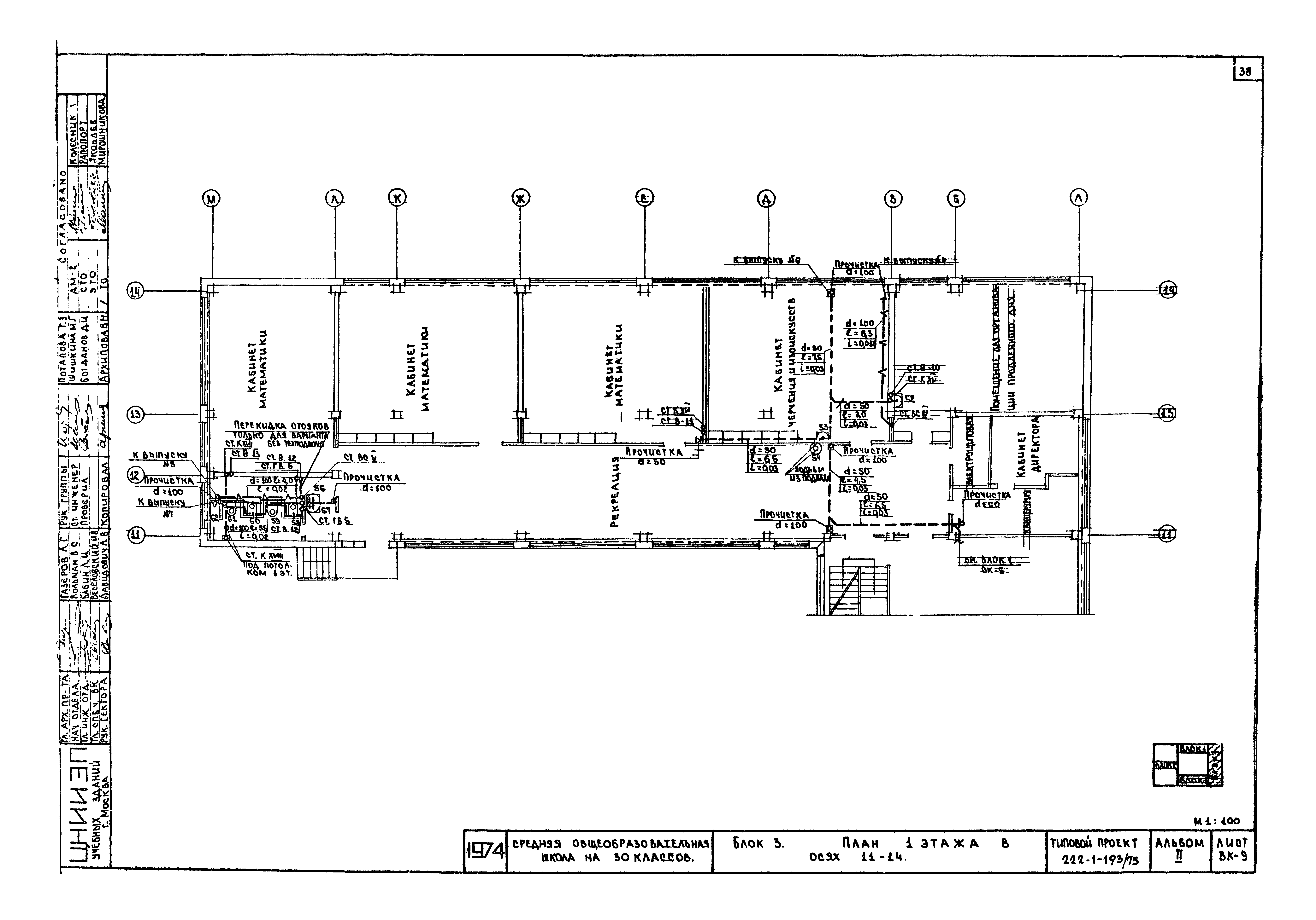
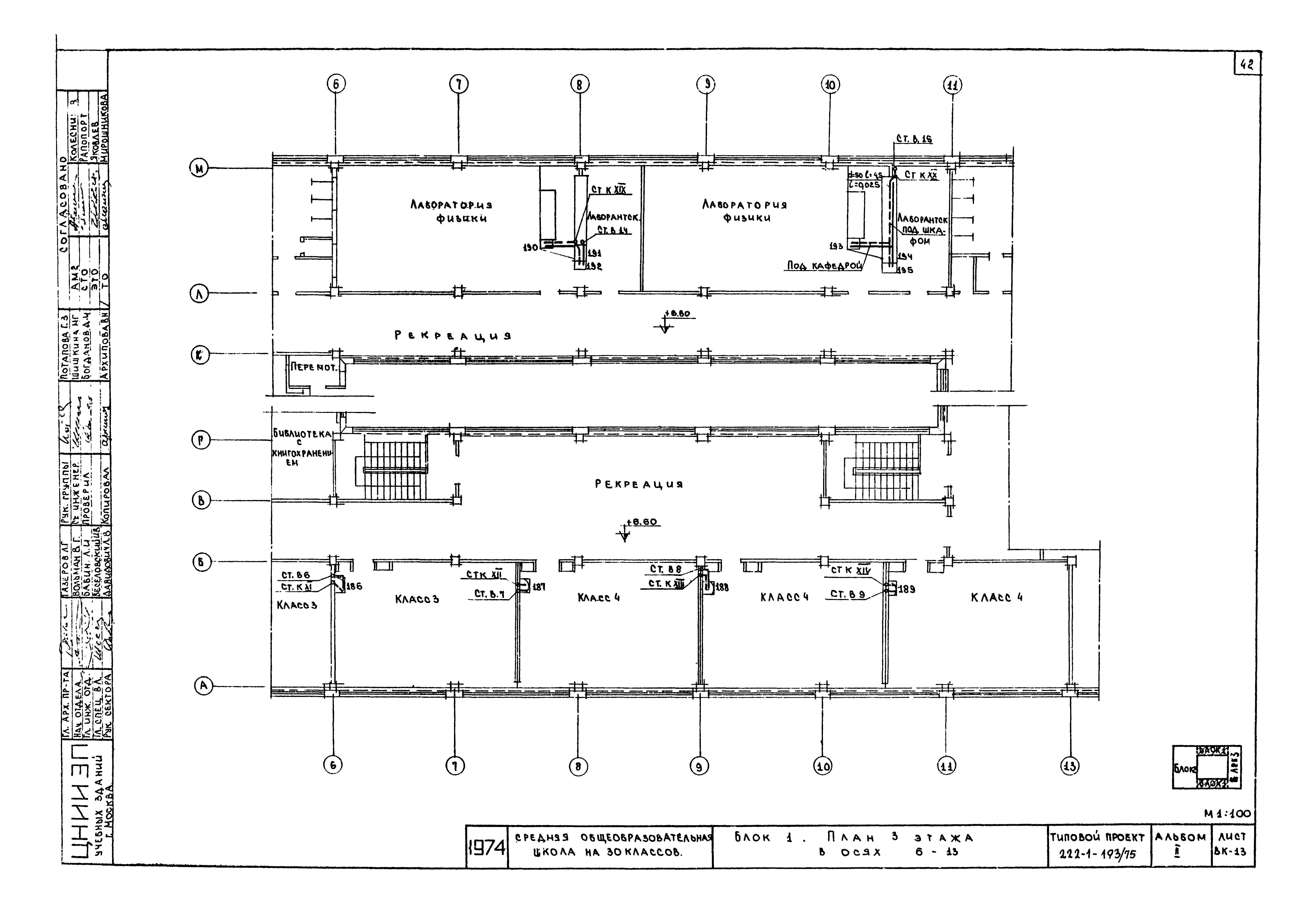
| Оглавление: | Содержание альбома. Примененные типовые чертежи. Пояснительная записка Отопление и вентиляция Содержание части проекта. Основные показатели по проекту. Пояснительная записка Спецификация материалов и оборудования Спецификация материалов и оборудования. Характеристика вытяжного оборудования Характеристика приточного оборудования План подвала, полупроходных и подпольных каналов (разводка магистральных трубопроводов) План подвала и полупроходных каналов (разводка воздуховодов) План подвала и технического подполья (разводка воздуховодов) Блок 1. План 1 этажа в осях 6 - 11 Блок 1. План 2 этажа в осях 6 - 13 Блок 1. План 3 этажа в осях 6 - 13 Блок 2. План 1 этажа в осях 1 - 6 Блок 2. План 2 этажа в осях 1 - 6 Блок 2. План 3 этажа в осях 1 - 6 Блок 3. План 1 этажа в осях 11 - 14 Блок 3. План 2 и 3 этажей в осях 11 - 14 План кровли Схема системы отопления (стояки 1 - 3) Схема системы отопления (стояки 4 - 5; 19 - 30) Схема системы отопления (стояки 6 - 18) Элеваторный узел. Схема подводки трубопроводов к калориферам Венткамера. Приточные установки П-1, П-2, П-3, П-4, П-5, П-6, П-7 Схемы приточной вентиляции П-1, П-2, П-3 и П-4 Схемы приточной вентиляции П-5, П-6 и П-7 Схемы вытяжной вентиляции с В-1 по В-8 Газификация Блок 1. Газификация лабораторий химии и физики Холодоснабжение Блок 2. Содержание части проекта. Спецификация. План холодильной камеры. Разрез I-I. Схема фреоновых трубопроводов Блок 2. Детали крепления испарителей Водоснабжение. Горячее водоснабжение. Канализация. Водостоки Содержание части проекта. Основные показатели. Пояснительная записка Спецификация Водоснабжение. План полупроходных и подпольных каналов Водоснабжение. План технического подполья Блок 1. План 1 этажа в осях 6 - 11 Канализация. Блок 2. План 1 этажа в осях 1 - 6 Водоснабжение. Блок 2. План 1 этажа в осях 1 - 6 (при варианте без техподполья) Водоснабжение. Блок 2. План 1 этажа в осях 1 - 6 (при варианте с техподпольем) Блок 3. План 1 этажа в осях 11 - 14 Блок 1. План 2 этажа в осях 6 - 13 Блок 2. План 2 этажа в осях 1 - 6 Блок 3. План 2 этажа в осях 11 - 14. План 3 этажа в осях 11 - 14 Блок 1. План 3 этажа в осях 6 - 13 Блок 2. План 3 этажа в осях 1 - 6 Водоснабжение. Блок 1. Блок 3. Схема магистральных трубопроводов Водоснабжение. Блок 2. Схема магистральных трубопроводов (при варианте без техподполья) Водоснабжение. Блок 2. Схема магистральных трубопроводов (при варианте с техподпольем) Водоснабжение. Схемы стояков Канализация. Разрезы ст. К I, II, III, IV, V, VI, VII Канализация. Разрезы ст. к VIII, IX, X, XI, XII, XIX, XX Канализация. Разрезы ст. к XIII, XIV, XV, XVI, XVII, XVIII |
| Разработан: | ЦНИИЭП учебных зданий |
| Утверждён: | 24.11.1975 ЦНИИЭП учебных зданий (TsNIIEP of Educational Buildings 147) |


















































