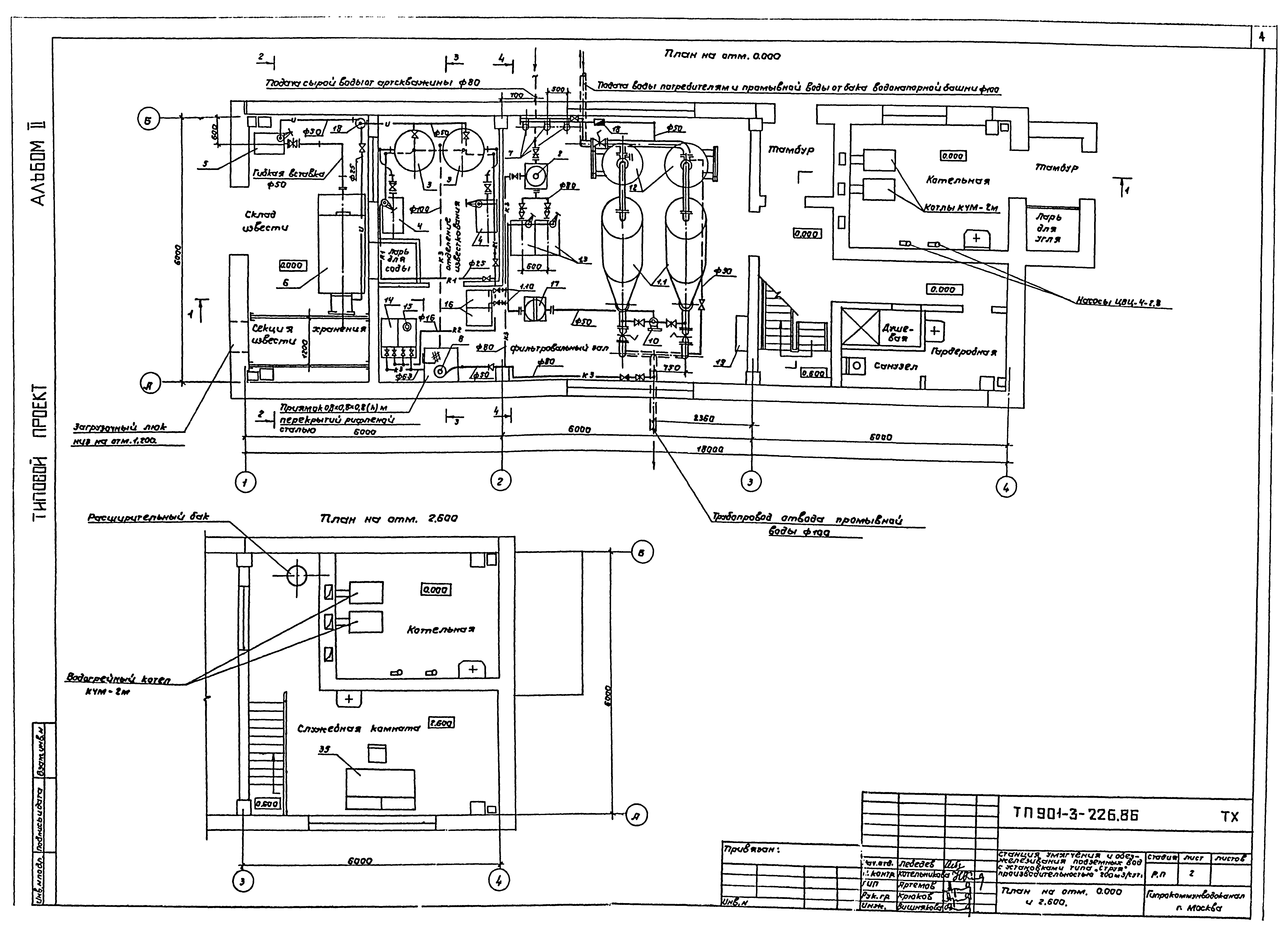
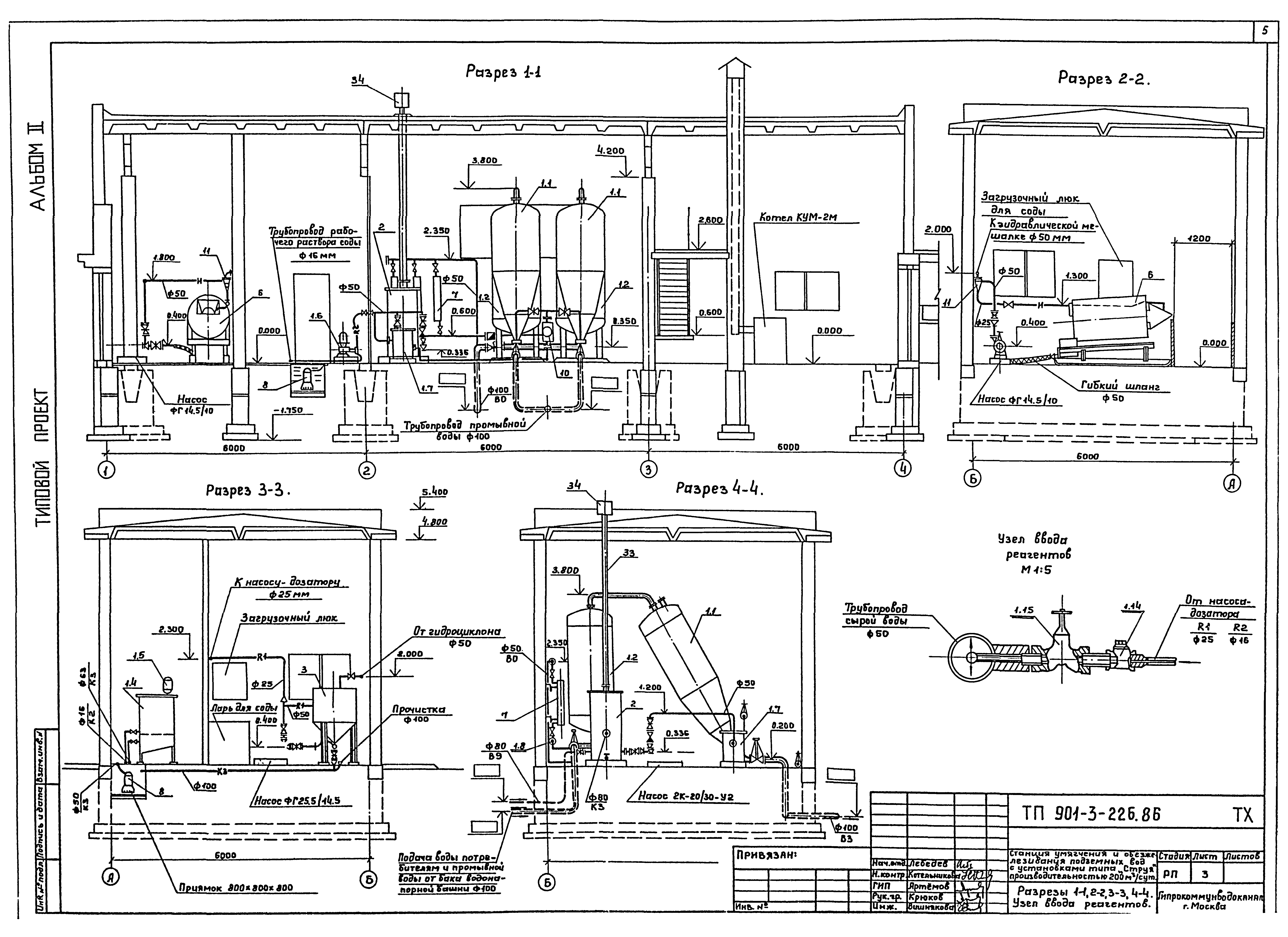
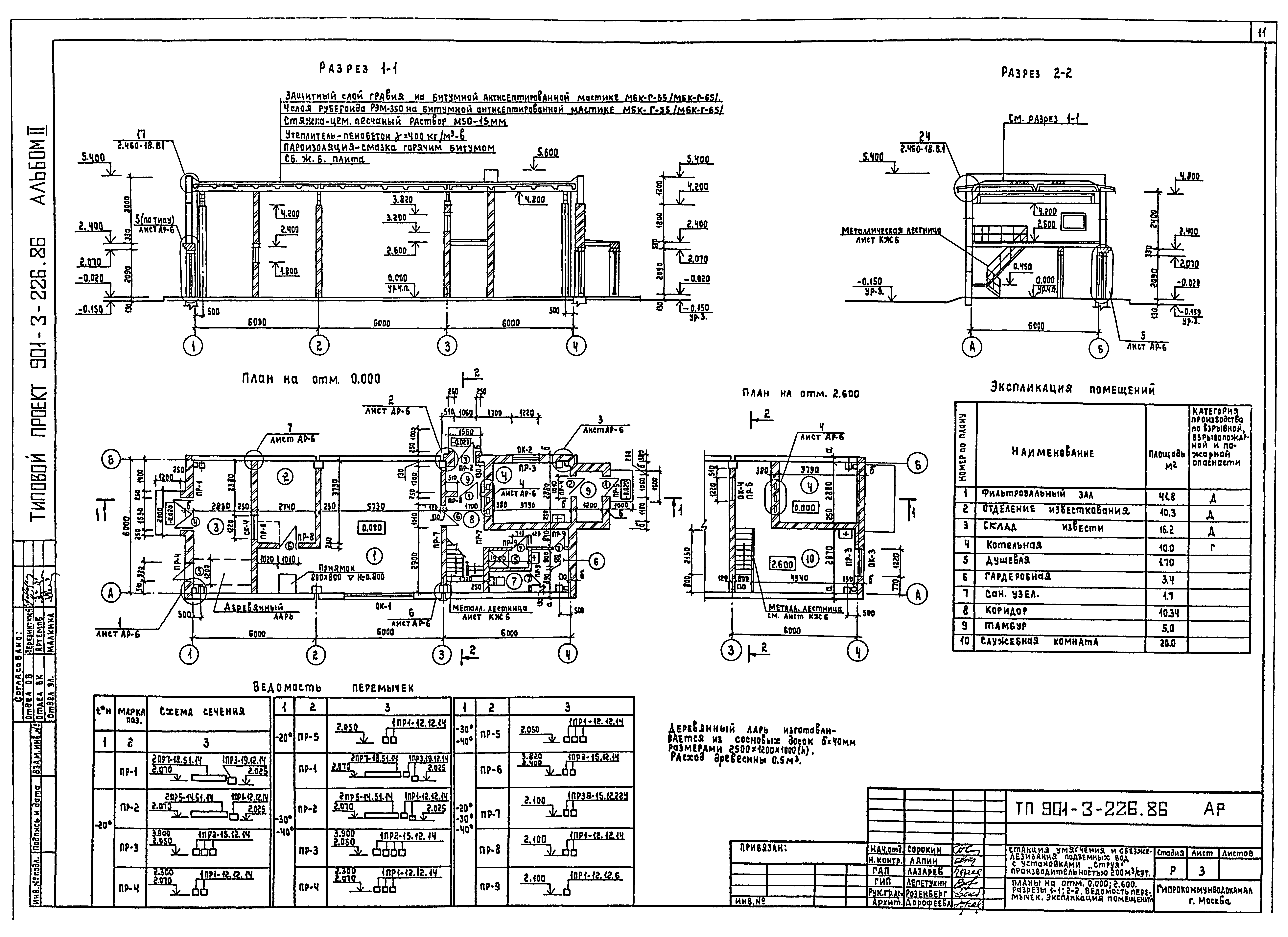
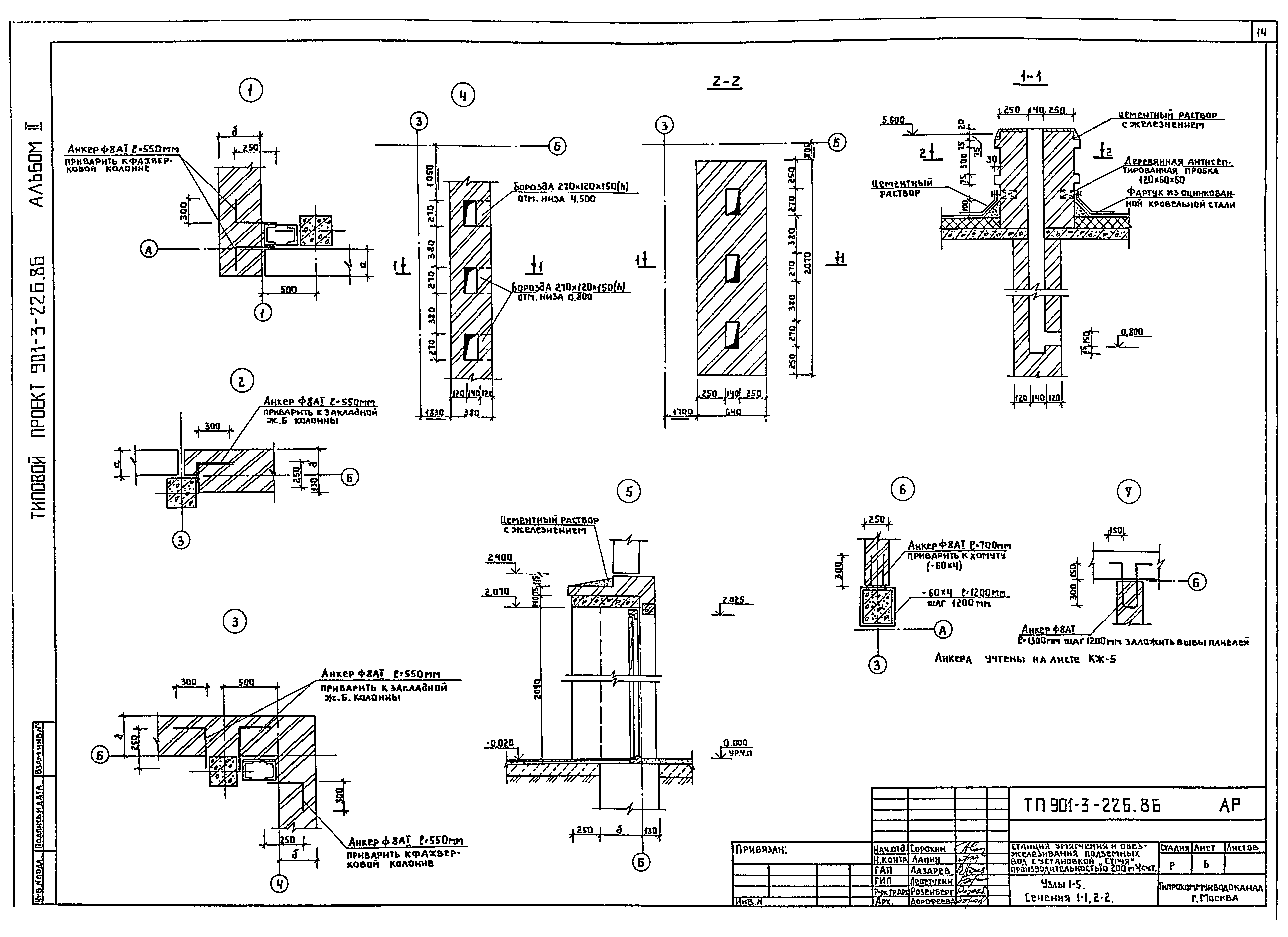
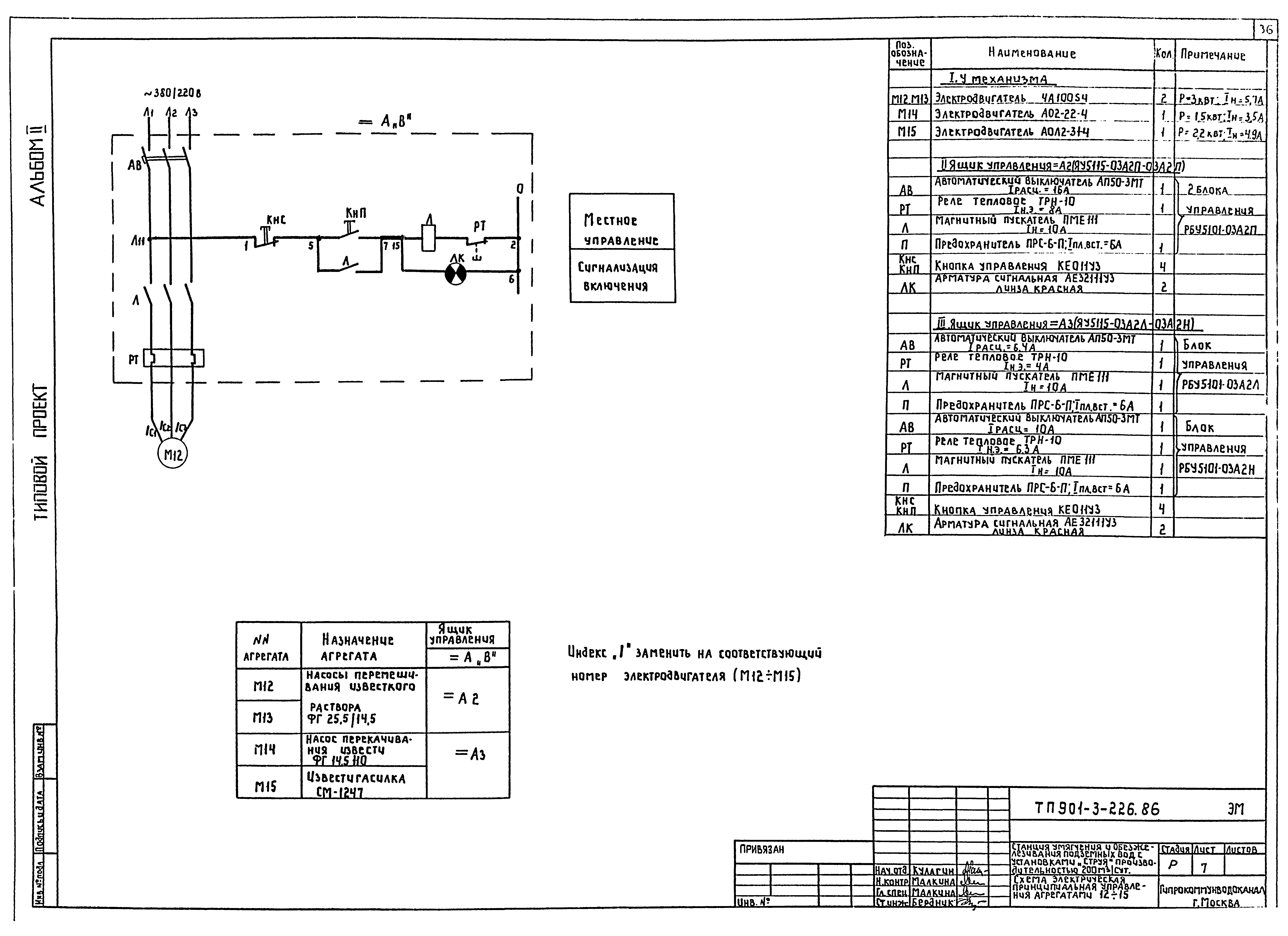
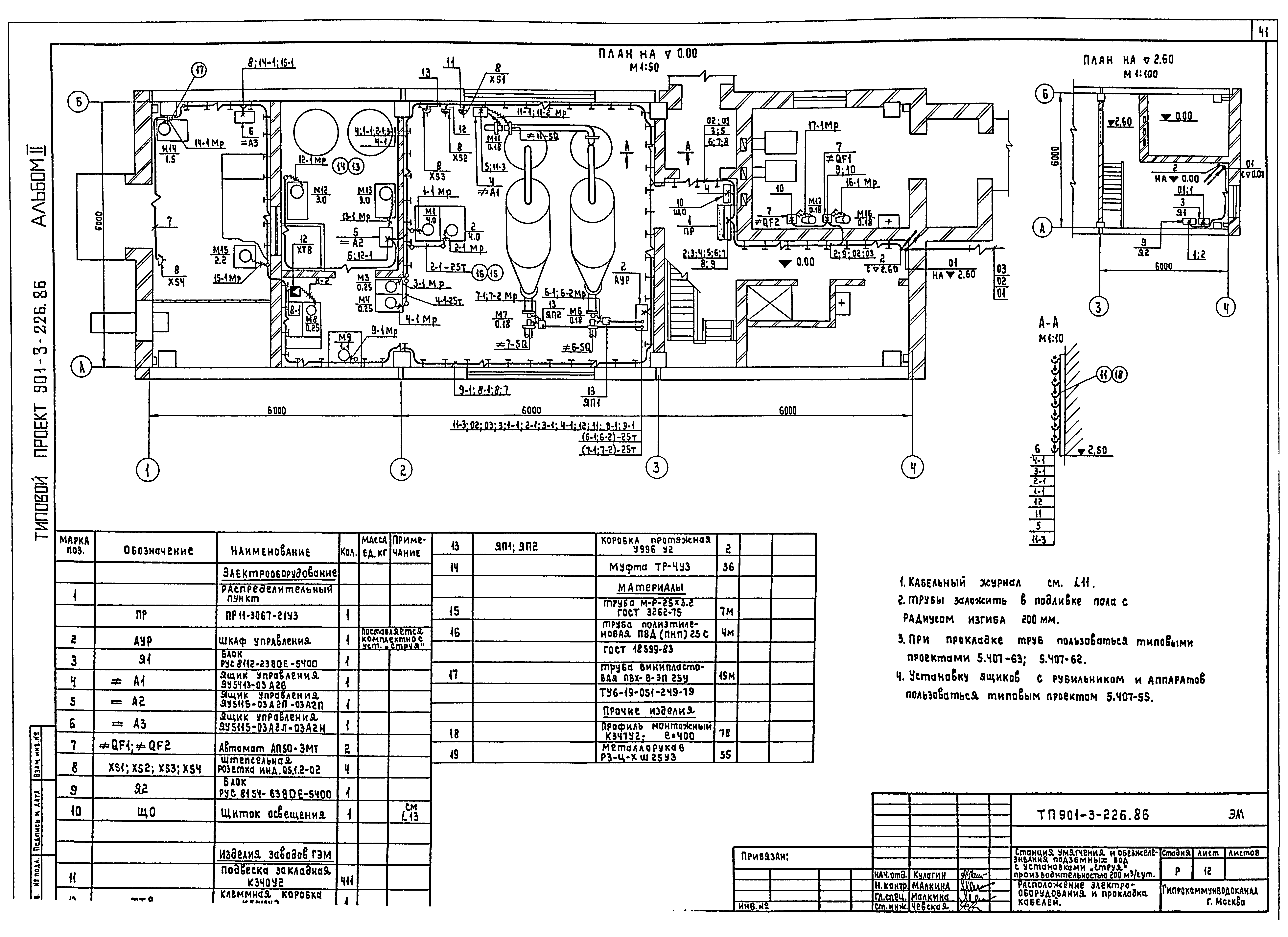
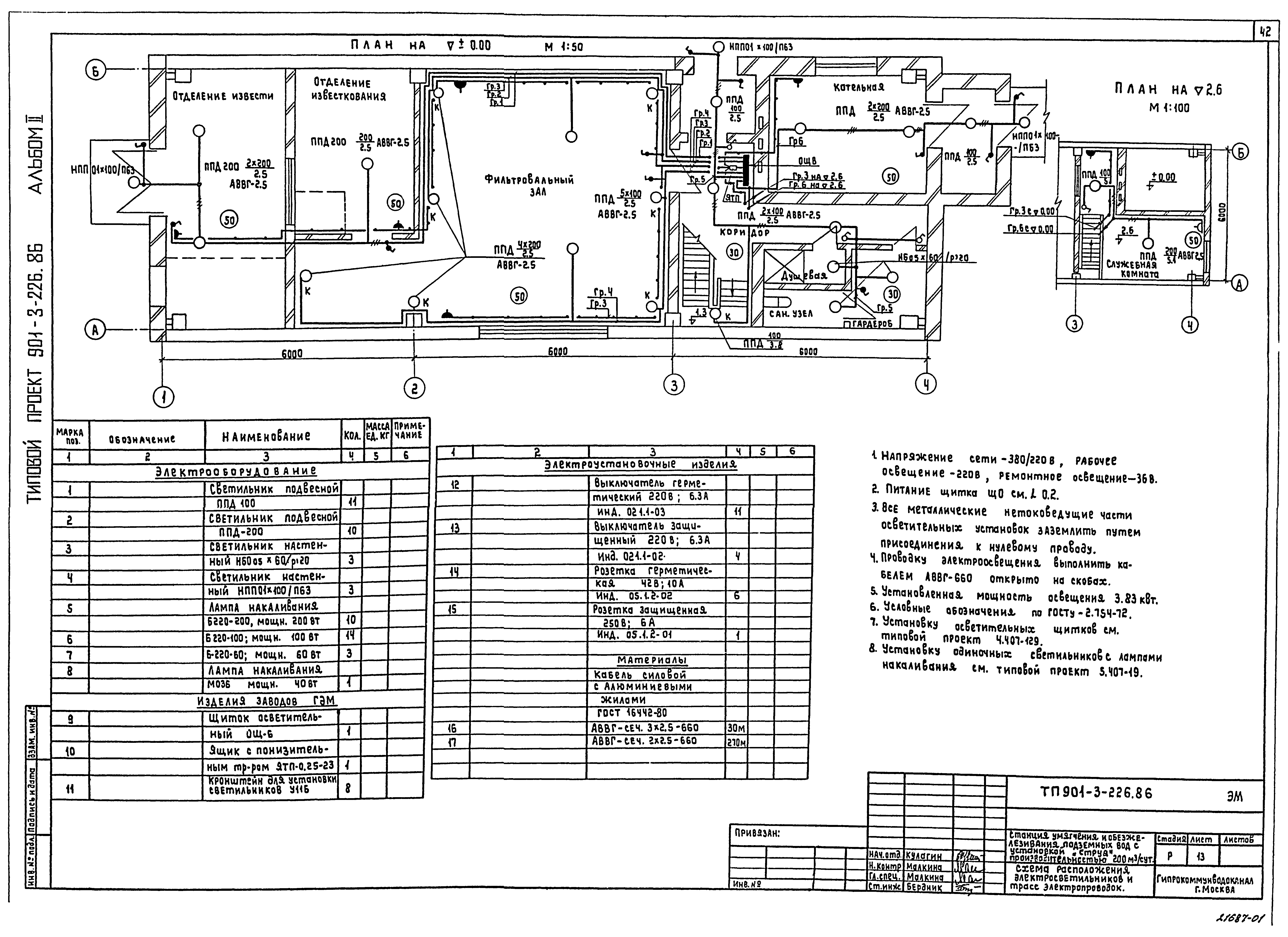
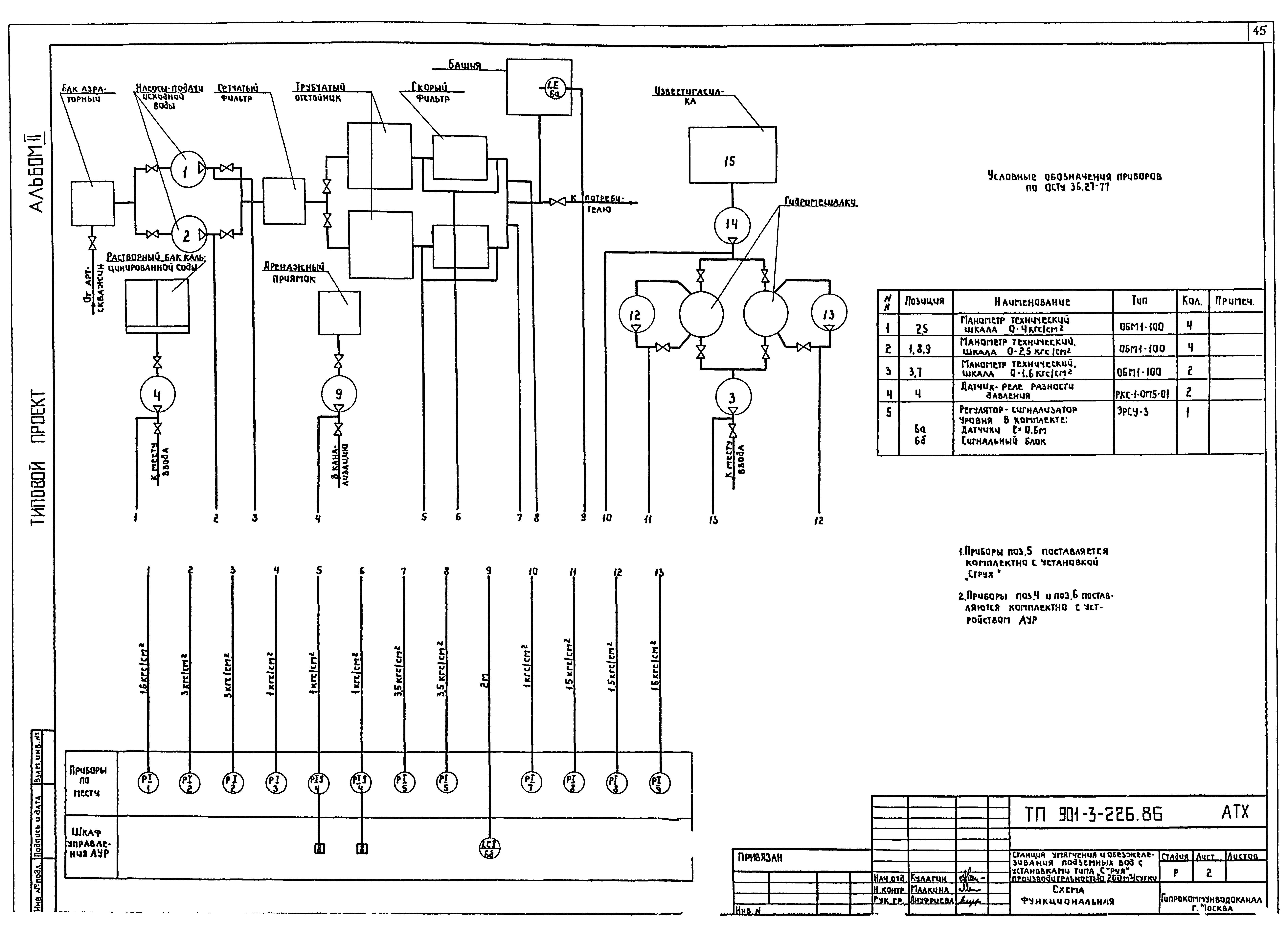
Скачать Типовой проект 901-3-226.86 Альбом II. Архитектурно-строительные решения, технологическая, санитарно-техническая и электротехническая частиДата актуализации: 01.01.2021 Типовой проект 901-3-226.86
Альбом II. Архитектурно-строительные решения, технологическая, санитарно-техническая и электротехническая части| Обозначение: | Типовой проект 901-3-226.86 | | Обозначение англ: | 901-3-226.86 | | Статус: | не определен законодательством | | Название рус.: | Альбом II. Архитектурно-строительные решения, технологическая, санитарно-техническая и электротехническая части | | Дата добавления в базу: | 01.01.2018 | | Дата актуализации: | 01.01.2021 | | Дата введения: | 07.08.1986 | | Дата окончания срока действия: | 30.06.2003 | | Разработан: | Гипрокоммунводоканал Минжилкомхоза РСФСР
| | Утверждён: | 07.08.1986 Минжилкомхоз РСФСР (Russian Federation Minzhilkomkhoz 11-ТД)
|
                                              
|