Скачать Типовой проект 901-4-86.86 Альбом II. Технологические трубопроводы и сигнализация (из ТП 901-4-93.86)Дата актуализации: 01.01.2021
|
| Обозначение: | Типовой проект 901-4-86.86 |
| Обозначение англ: | 901-4-86.86 |
| Статус: | действует |
| Название рус.: | Альбом II. Технологические трубопроводы и сигнализация (из ТП 901-4-93.86) |
| Дата добавления в базу: | 12.02.2016 |
| Дата актуализации: | 01.01.2021 |
| Дата введения: | 12.11.1986 |
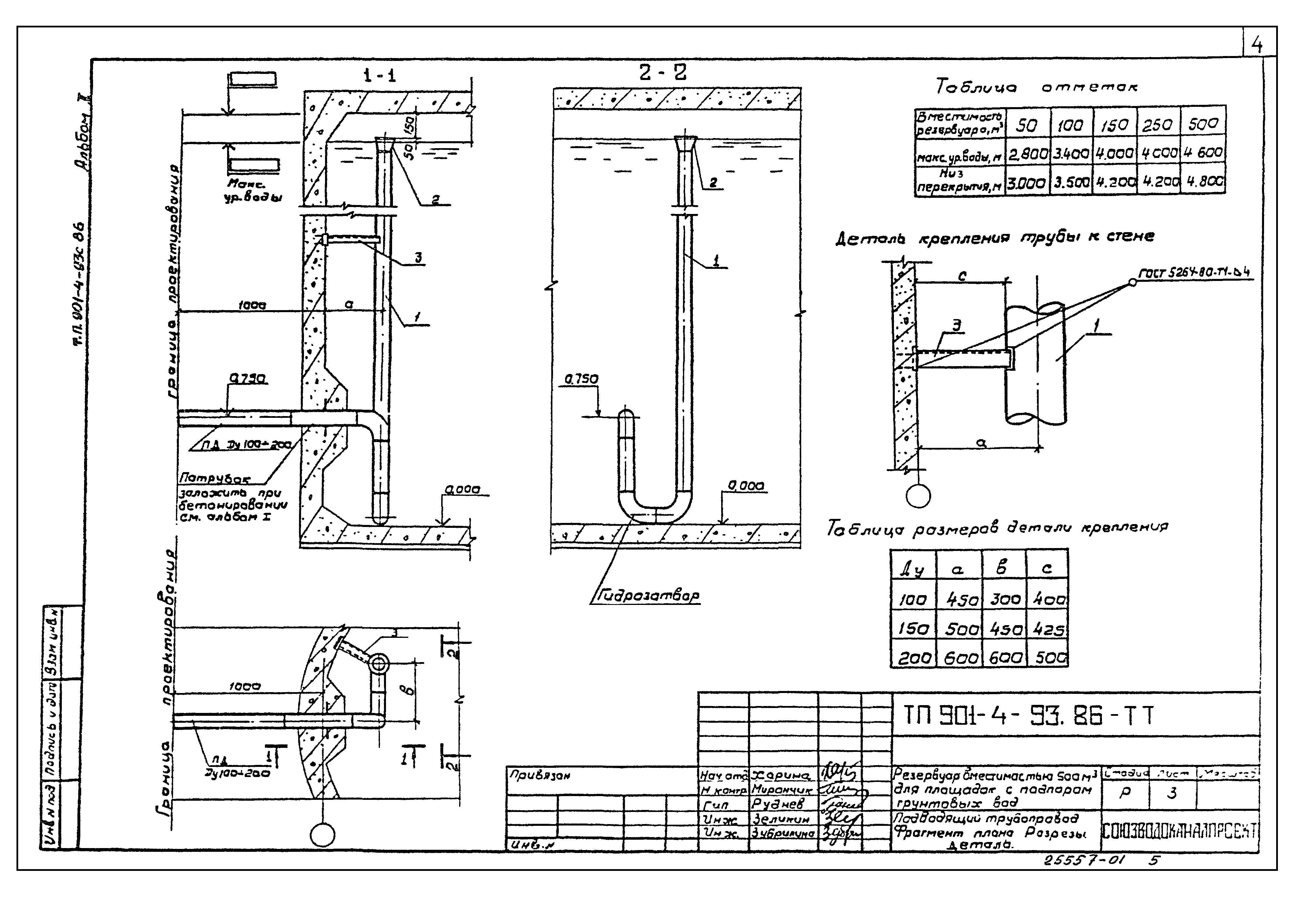
| Оглавление: | Общие данные Планы Подводящий трубопровод. Фрагмент плана. Разрезы. Деталь Подводящий трубопровод. Спецификация Переливное устройство. Фрагмент плана. Разрезы. Деталь Переливное устройство. Спецификация |
| Разработан: | Союзводоканалпроект |
| Утверждён: | 06.11.1986 Госстрой СССР (Государственный комитет Совета Министров СССР по делам строительства) (USSR Gosstroy АЧ-73) |
















