Скачать Типовой проект 223-1-544.87 Альбом I. Архитектурно-строительные и технологические чертежиДата актуализации: 01.01.2021
|
| Обозначение: | Типовой проект 223-1-544.87 |
| Обозначение англ: | 223-1-544.87 |
| Статус: | не определен законодательством |
| Название рус.: | Альбом I. Архитектурно-строительные и технологические чертежи |
| Дата добавления в базу: | 01.09.2013 |
| Дата актуализации: | 01.01.2021 |
| Дата введения: | 01.04.1986 |
| Дата окончания срока действия: | 30.06.2003 |
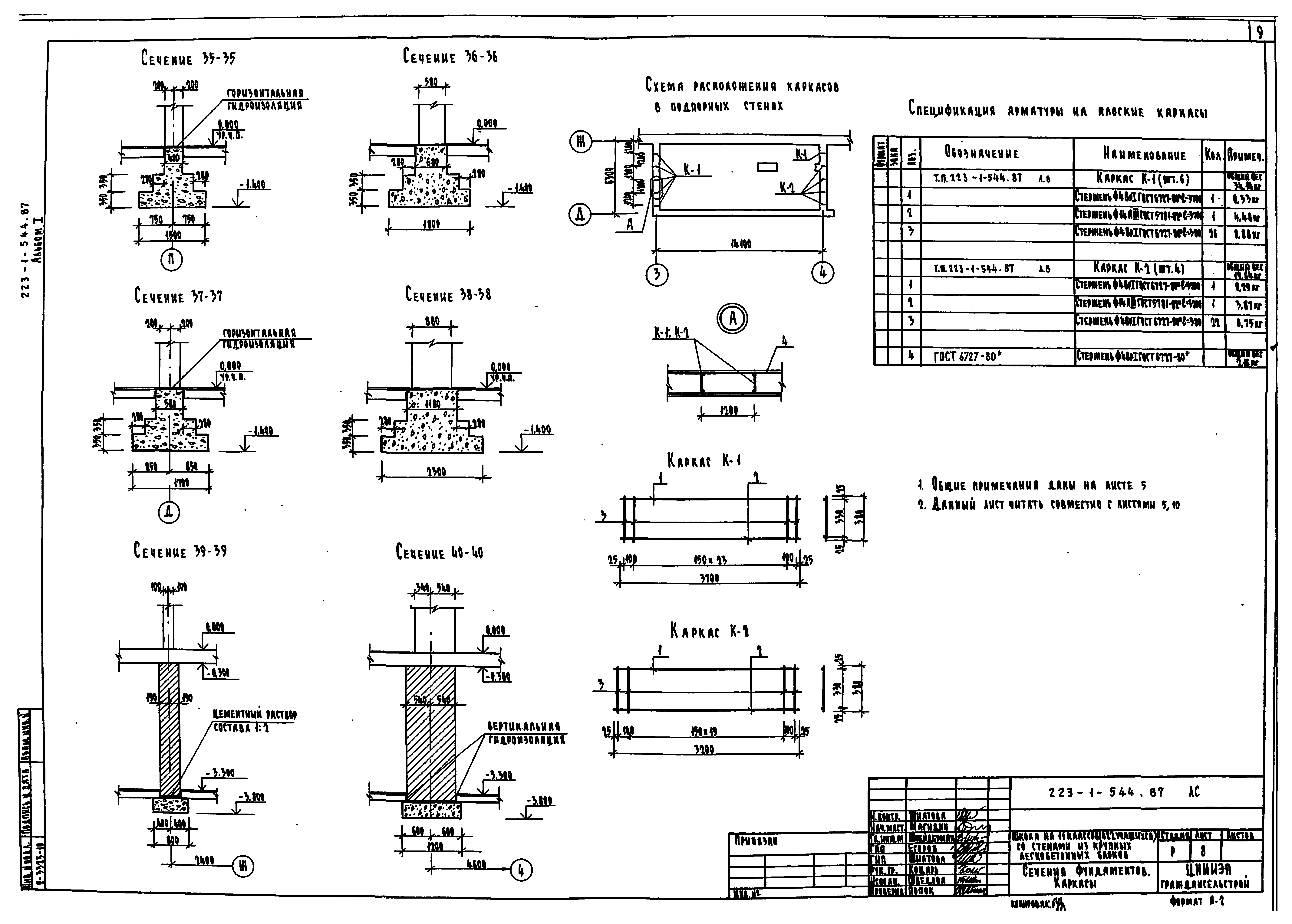
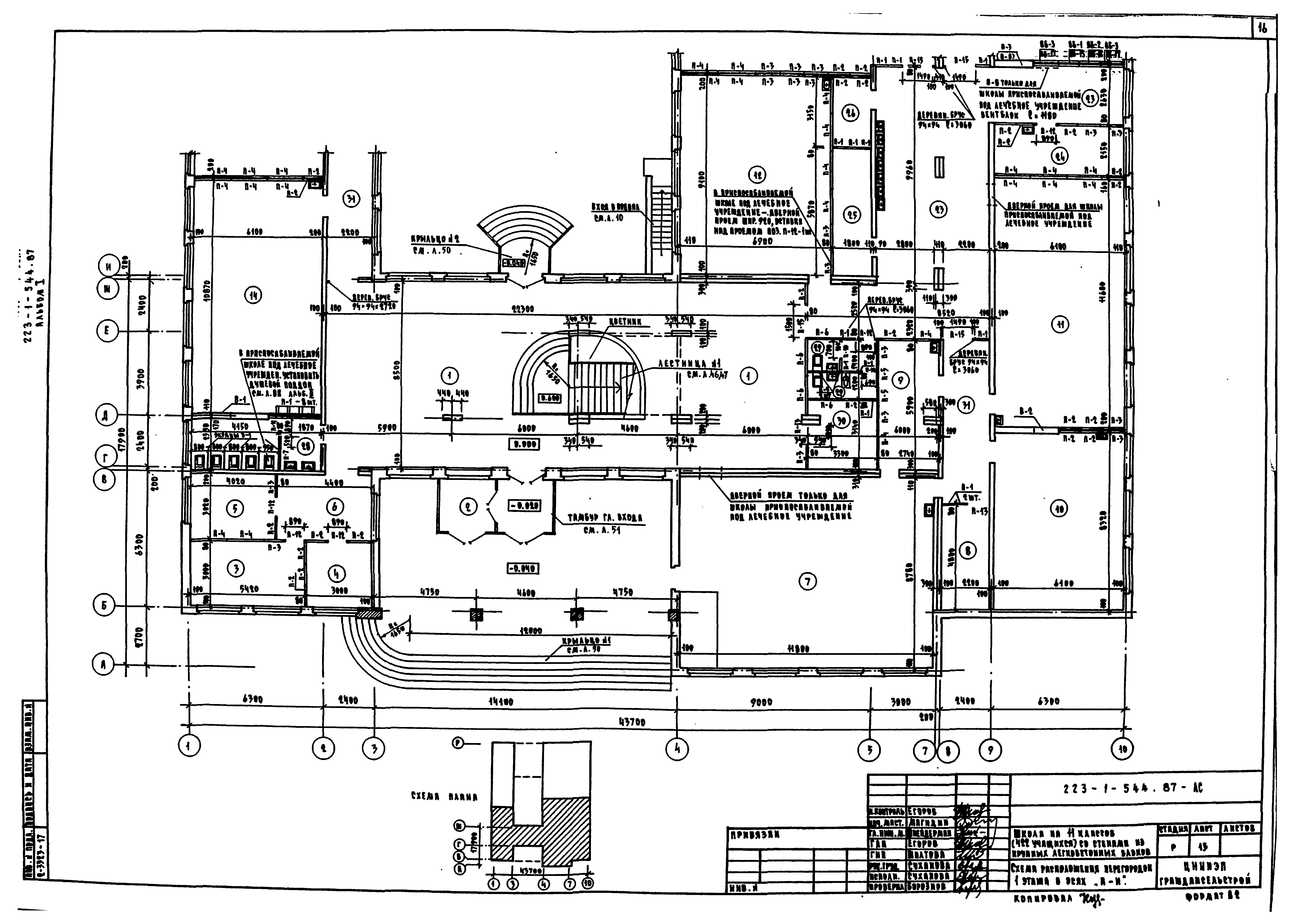
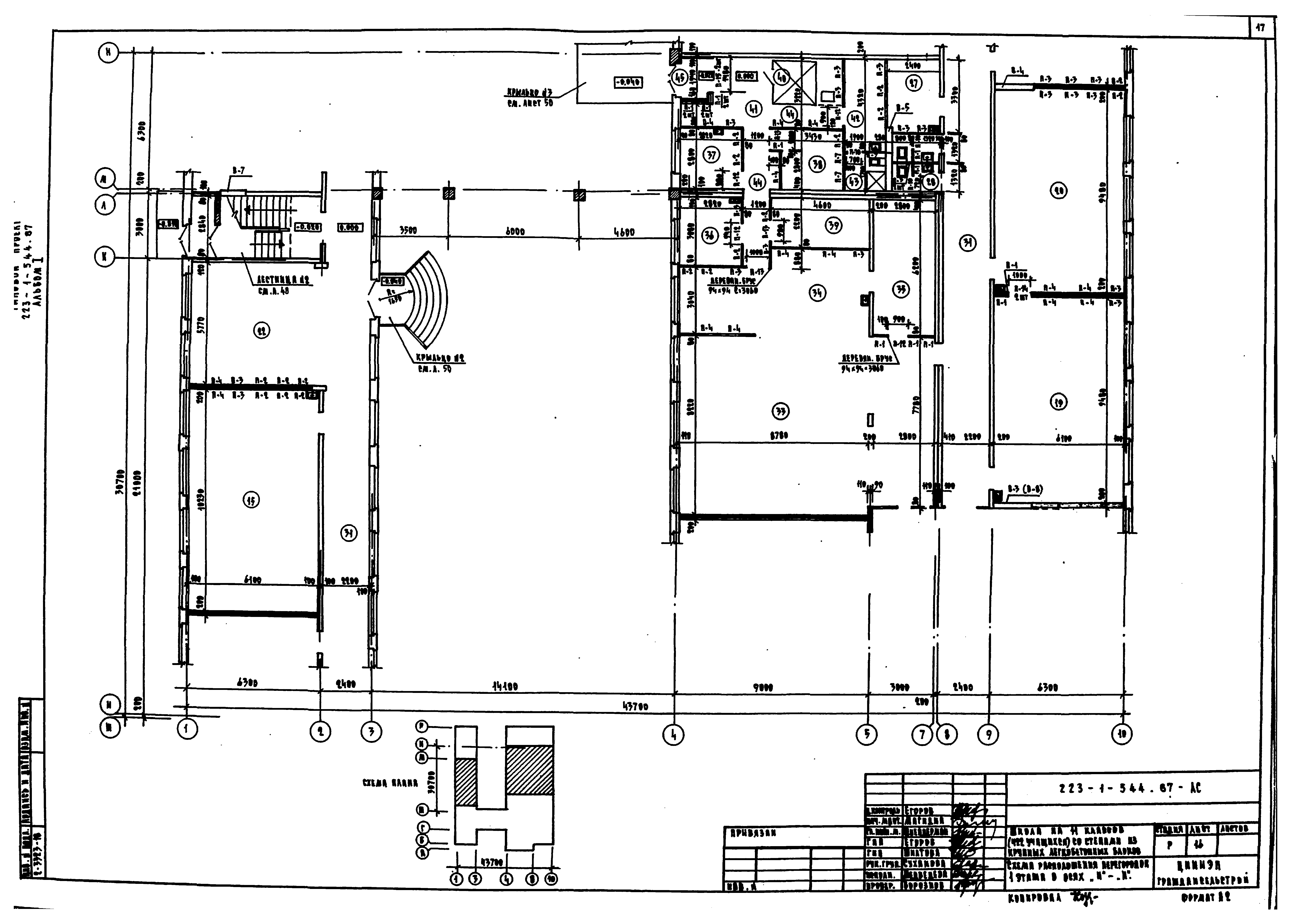
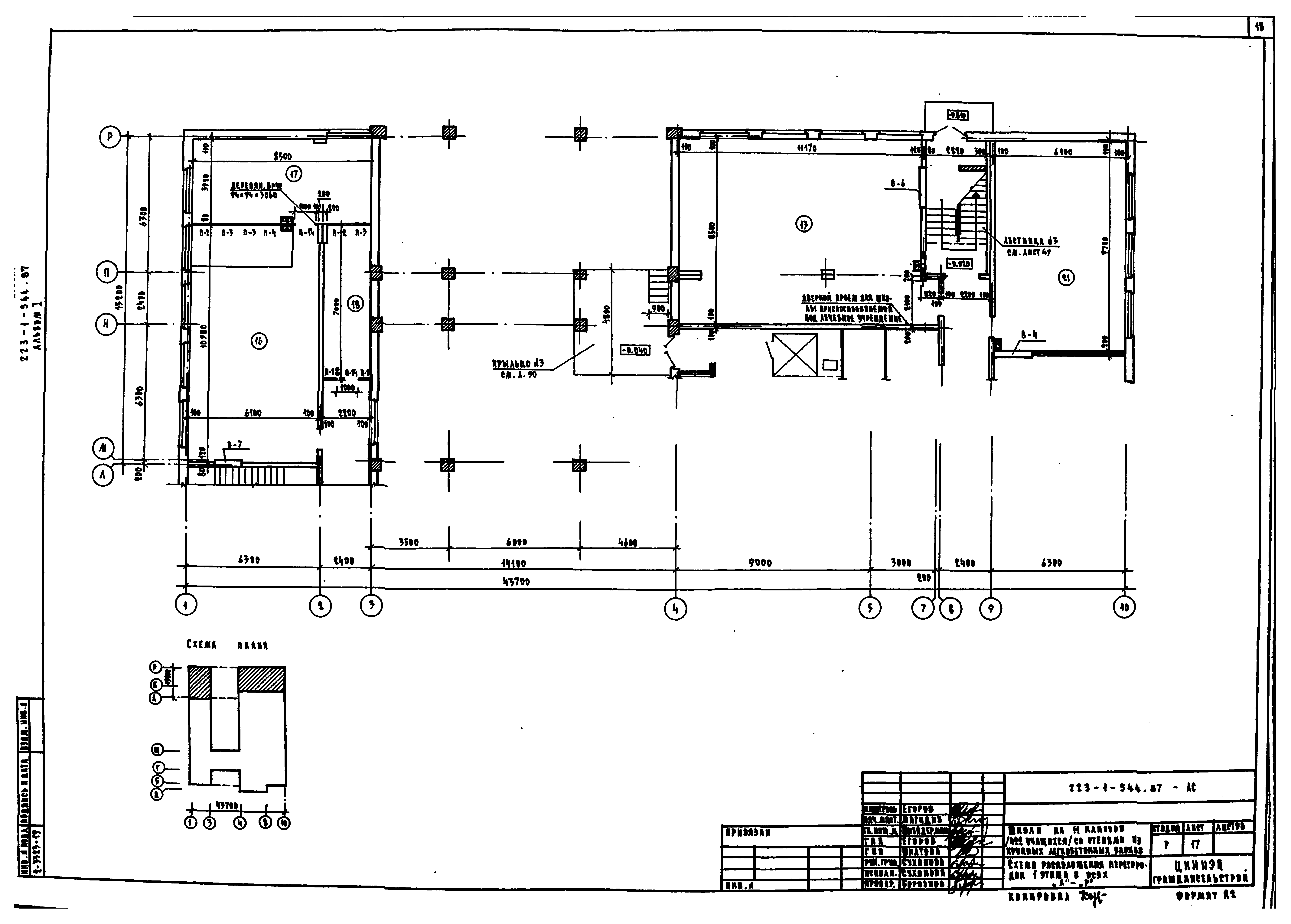
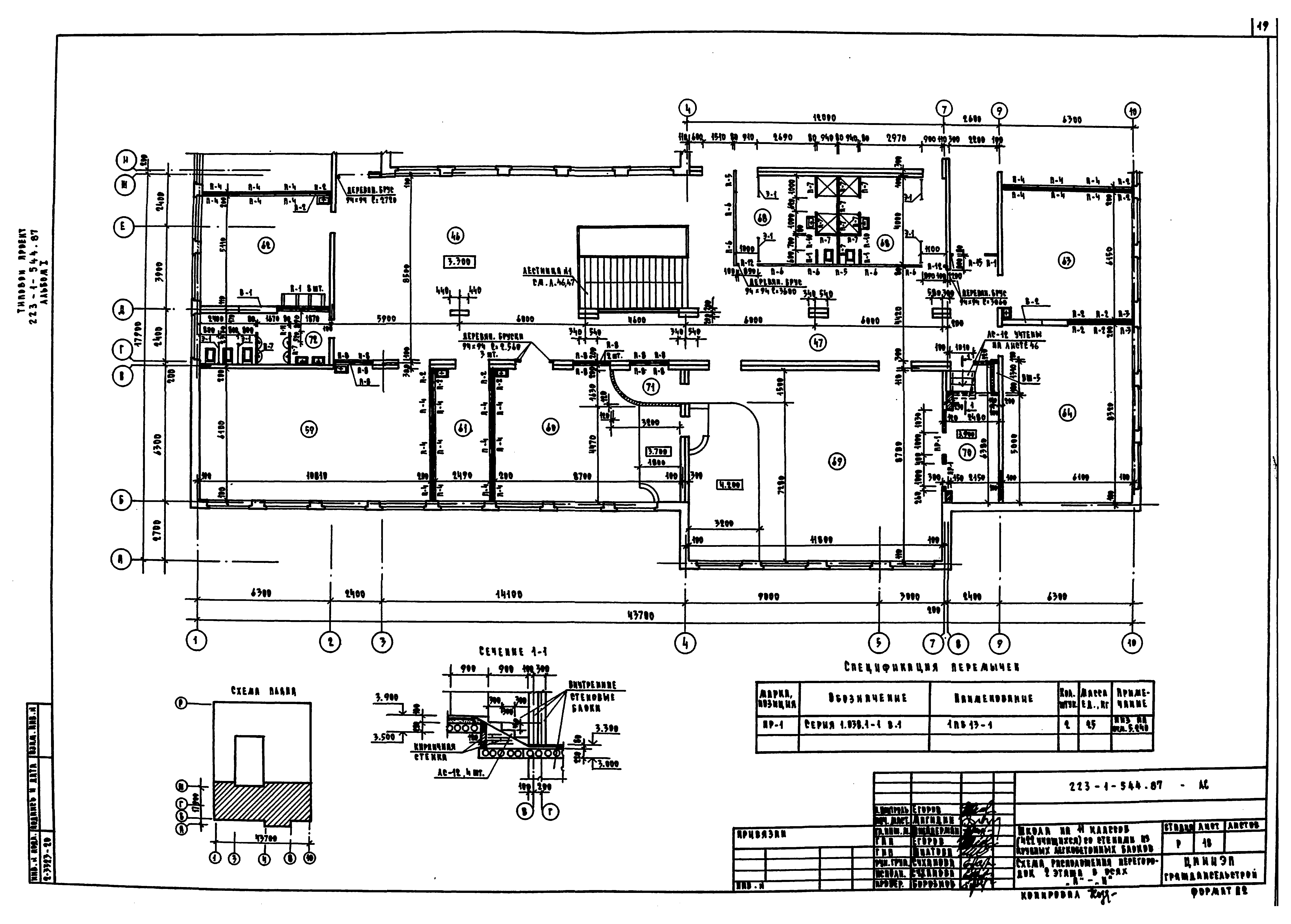
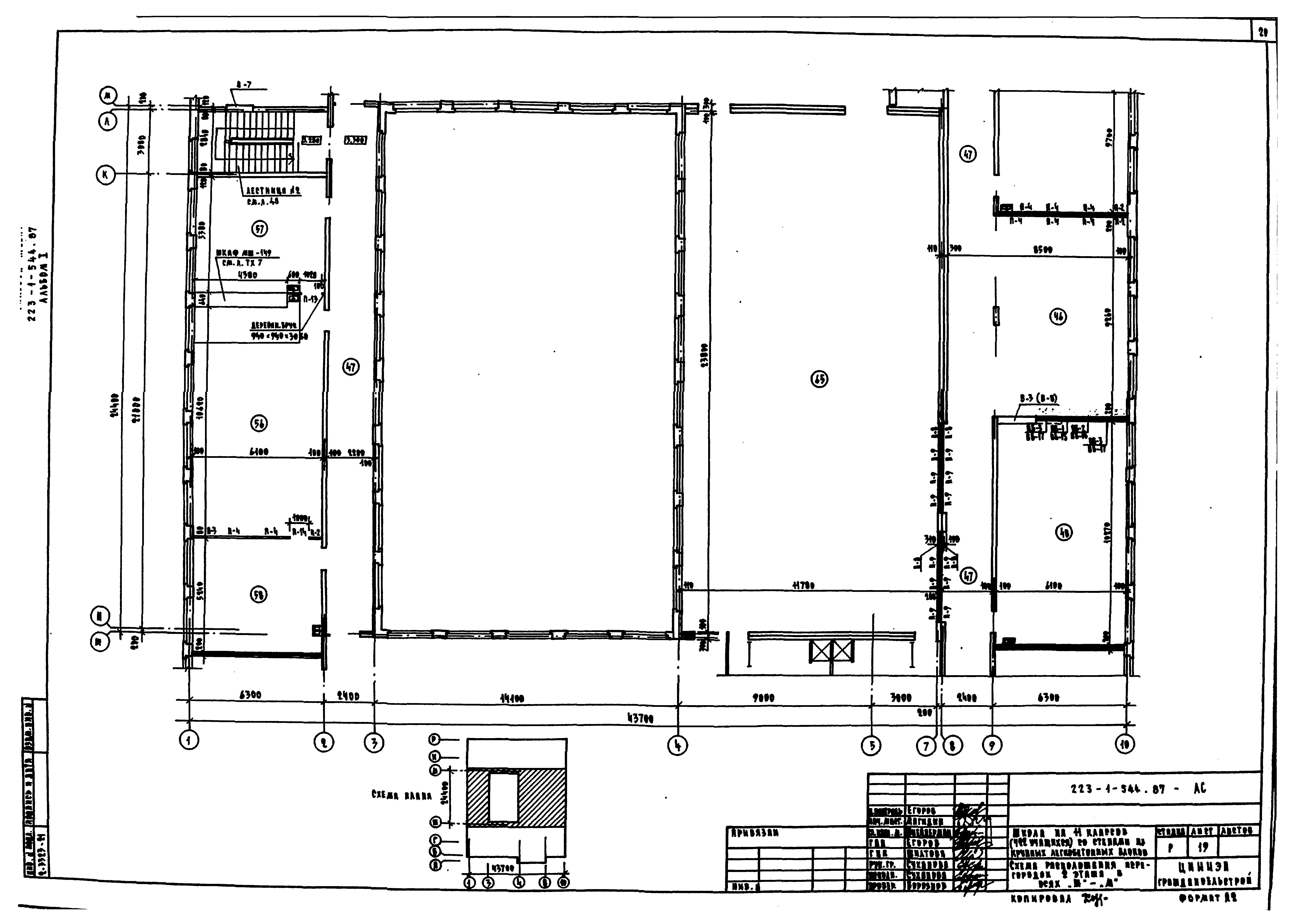
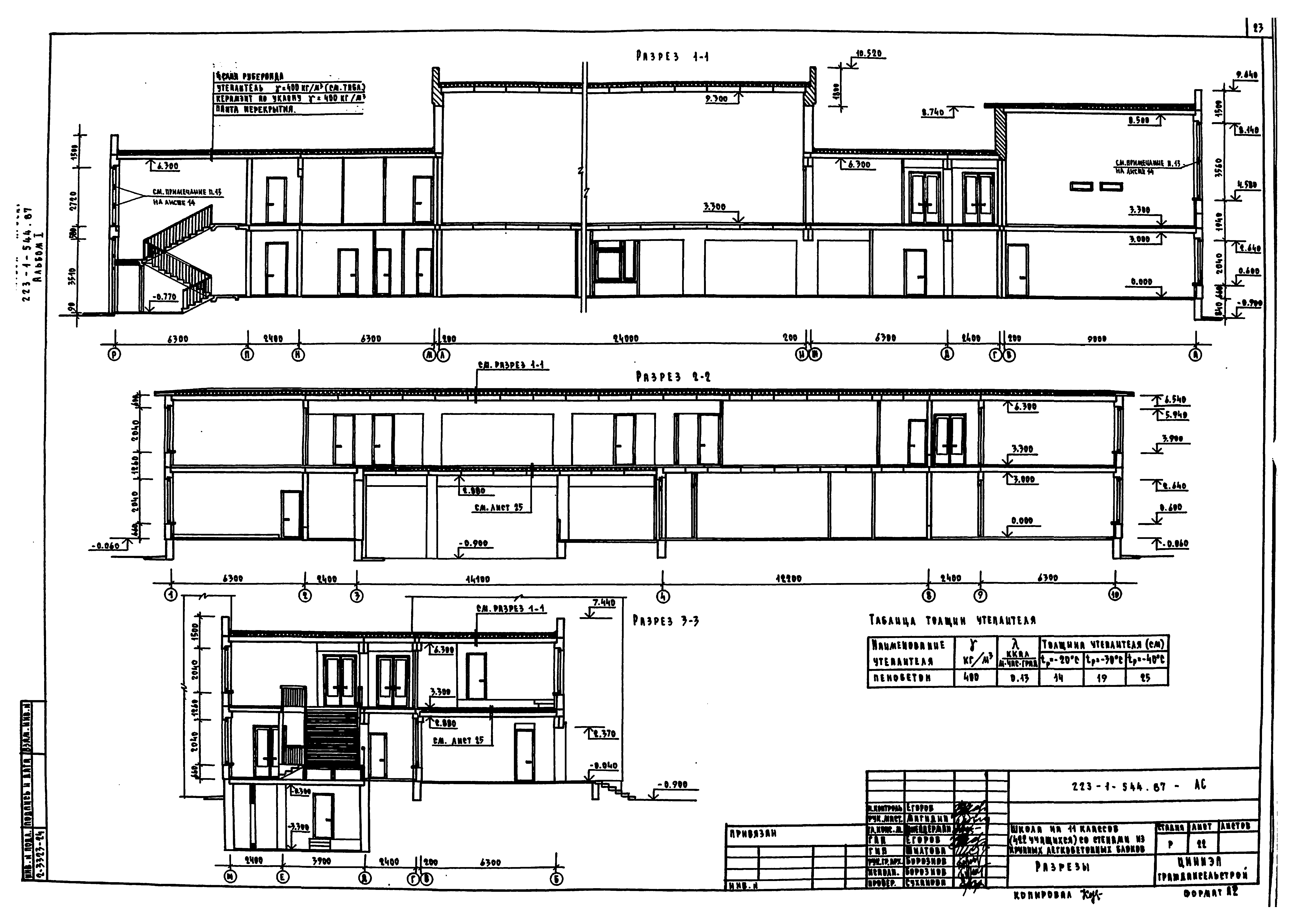
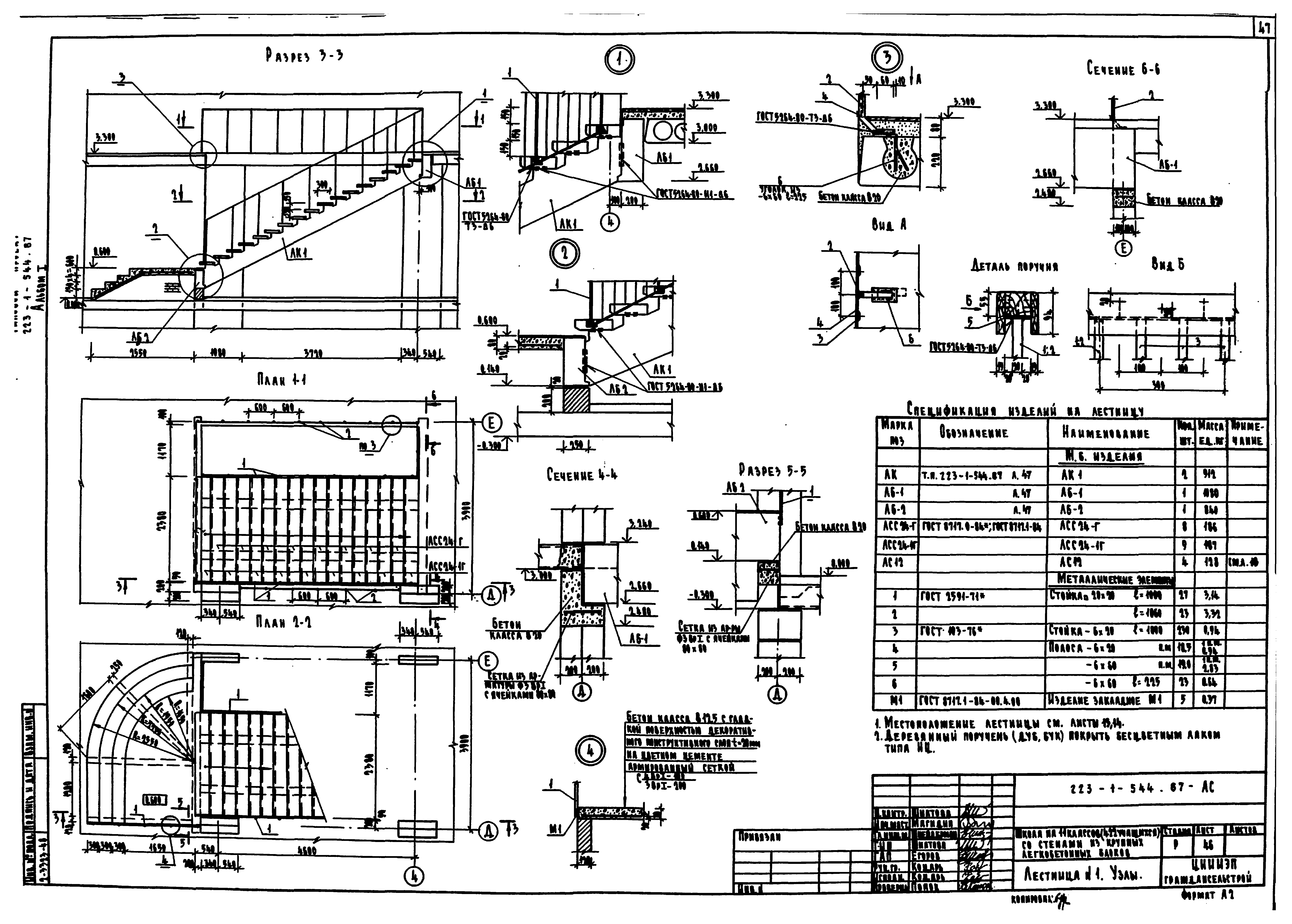
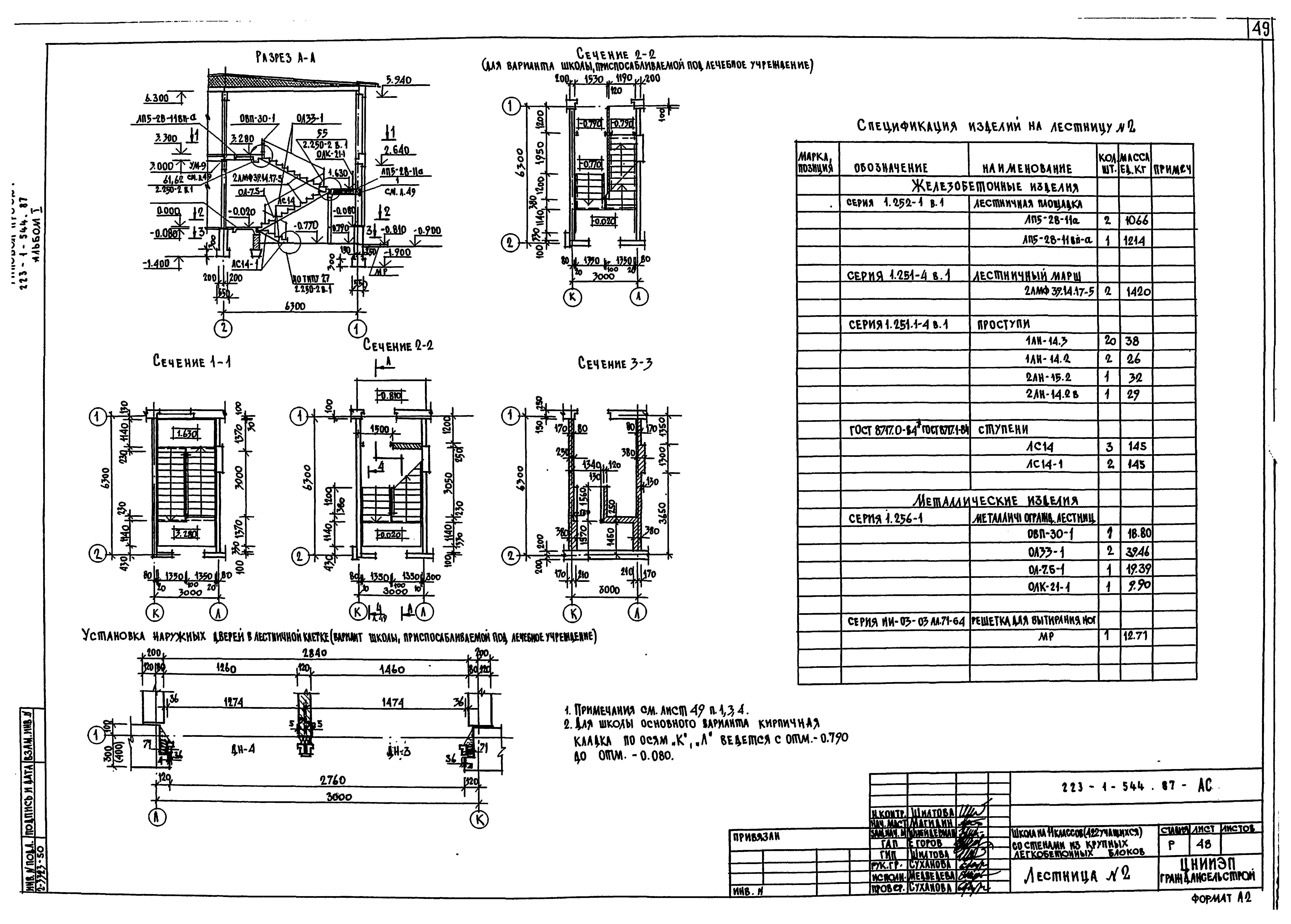
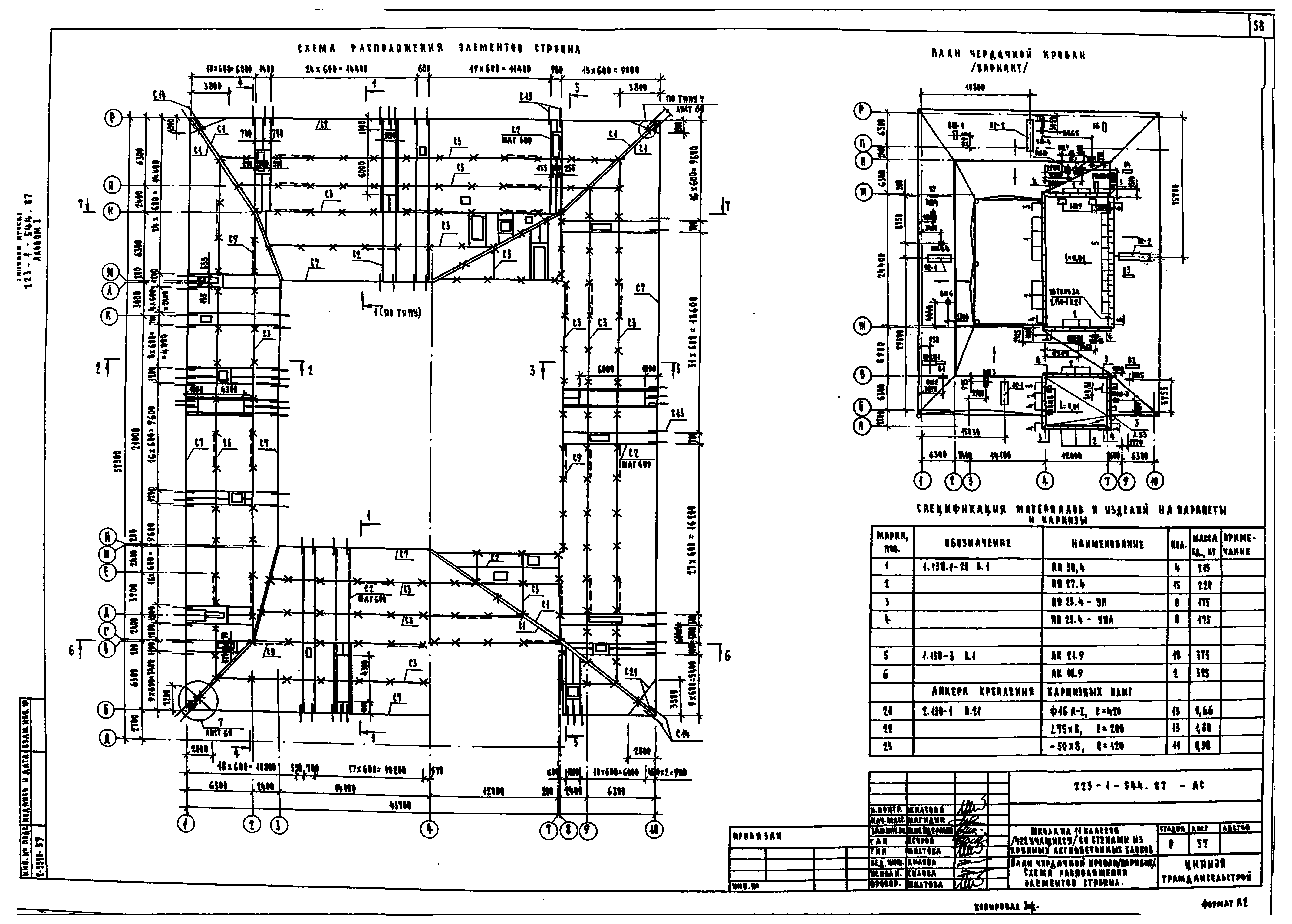
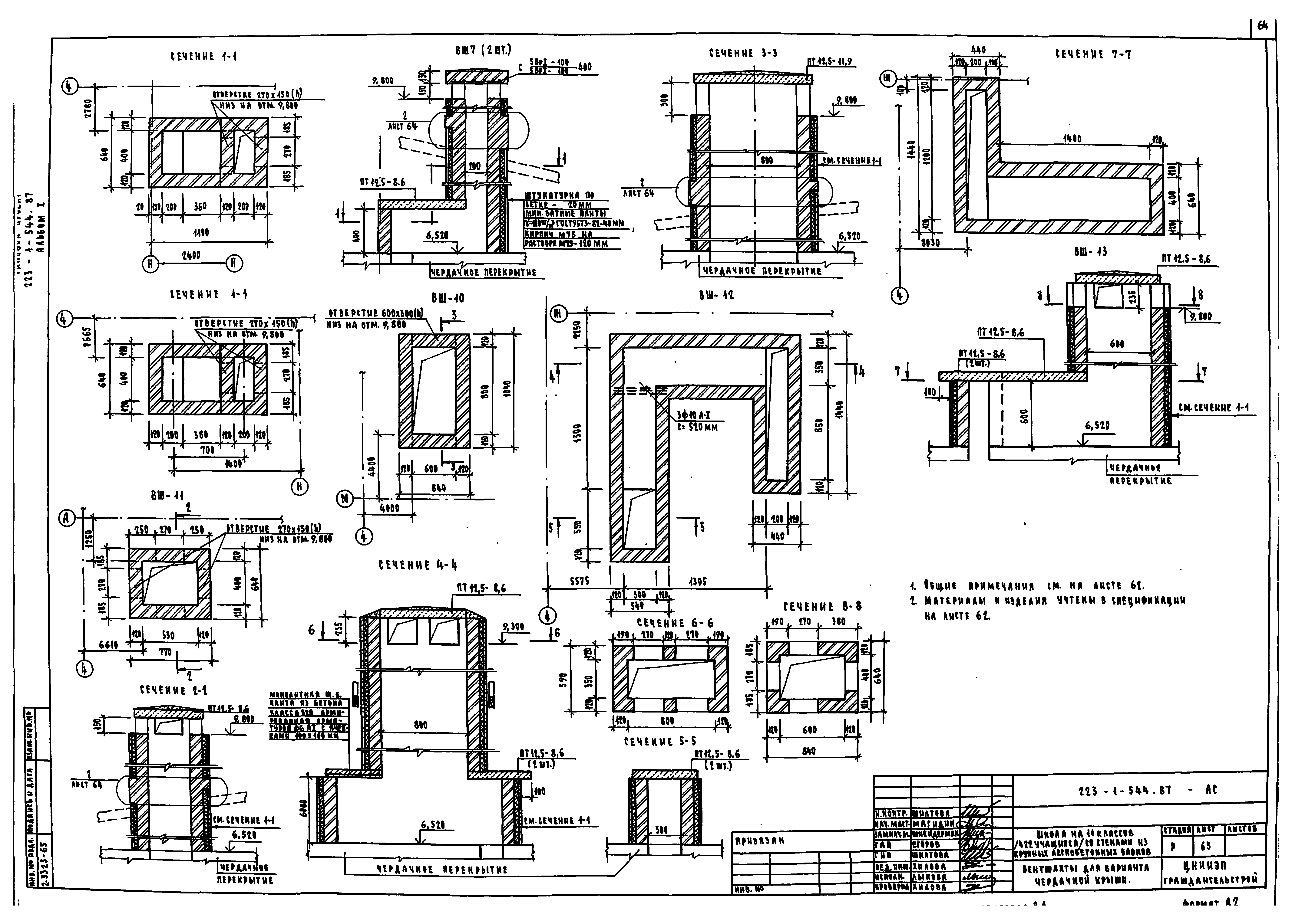
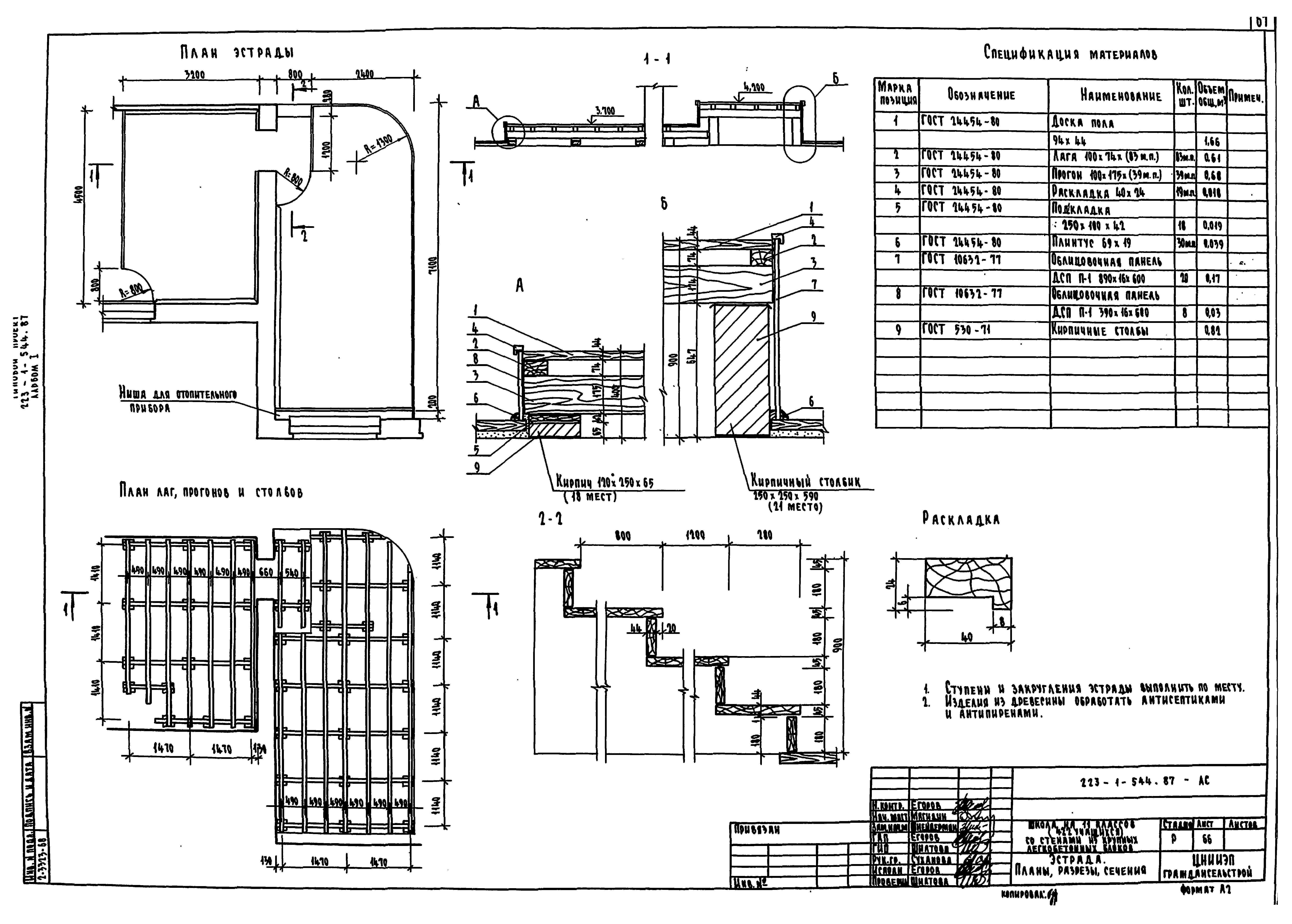
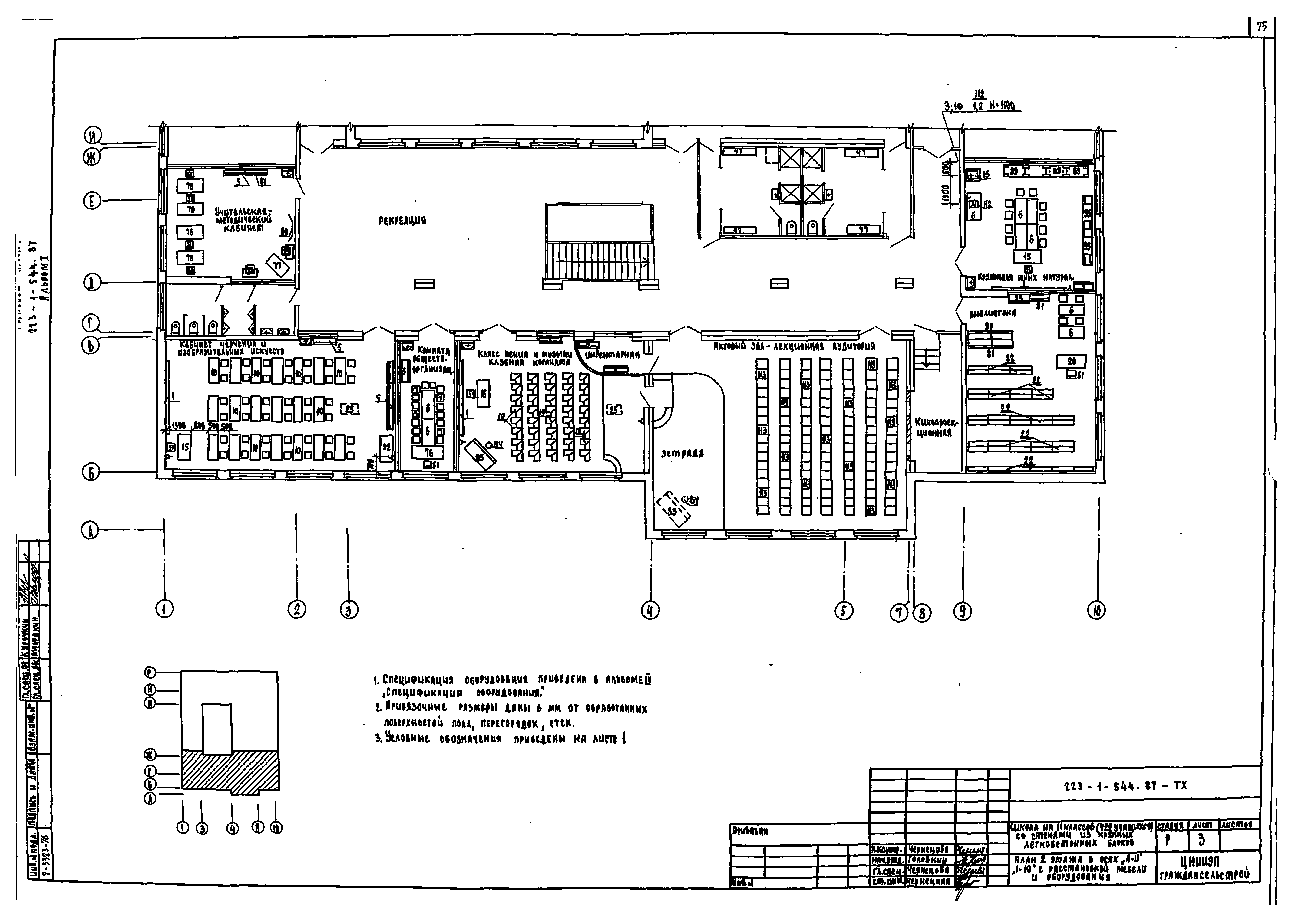
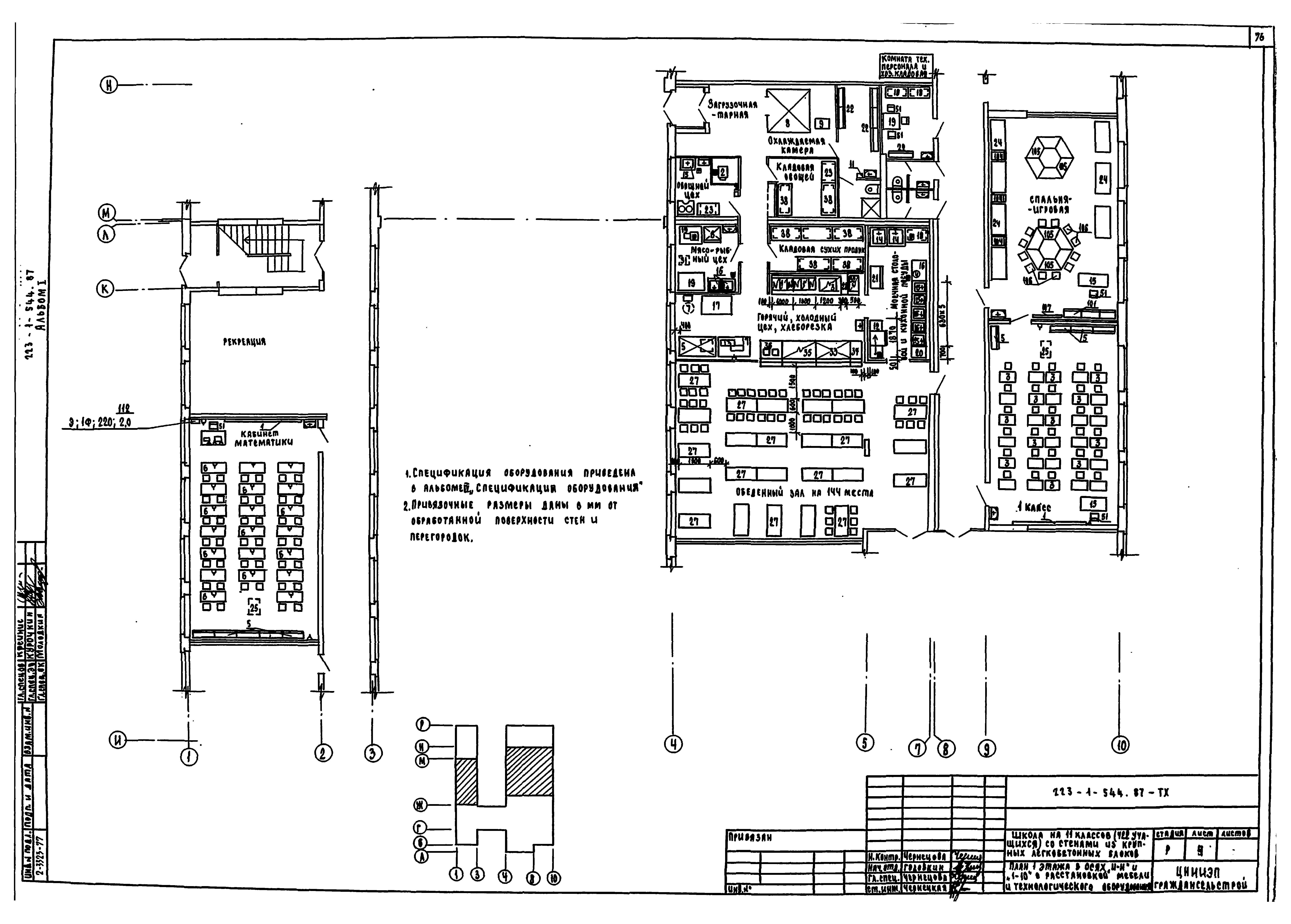
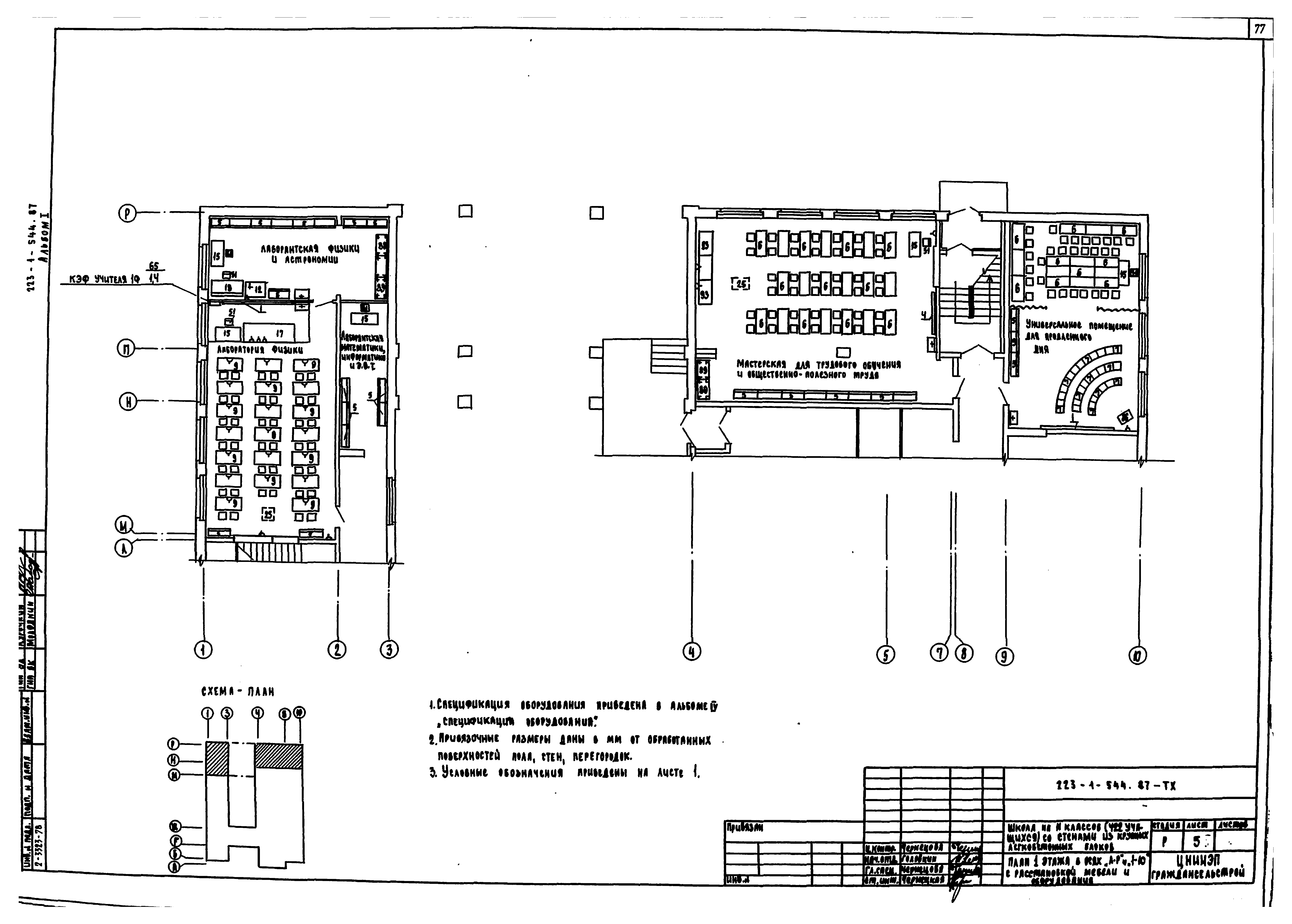
| Оглавление: | Чертежи основного комплекта марки АС Общие данные Схема генерального плана Схема расположения фундаментов Сечения фундаментов Сечения фундаментов. Каркасы Схема расположения подпольных каналов План подвала. Схема расположения элементов перекрытия над подвалом. Разрезы. Спецификация сборных изделий. Ведомость перемычек Фасады Фасады (вариант с чердачной крышей) План 1 этажа. Экспликация помещений План 2 этажа. Экспликация помещений Схема расположения перегородок 1 этажа в осях "А - И" Схема расположения перегородок 1 этажа в осях "И - Н" Схема расположения перегородок 1 этажа в осях "Л - Р" Схема расположения перегородок 2 этажа в осях "А - И" Схема расположения перегородок 2 этажа в осях "Ж - М" Схема расположения перегородок 2 этажа в осях "Л - Р" Спецификации внутренних перегородок и столярных изделий Разрезы Ведомость отделки помещений Экспликация полов Экспликация полов для школы, приспосабливаемой под лечебное учреждение Спецификации к схемам расположения блоков наружных стен толщиной 400 и 500 мм Схема расположения блоков наружных стен по оси "1" Схема расположения блоков наружных стен по осям "10", "Ж", "Б", "Г" Схема расположения блоков наружных стен по оси "3" Схема расположения блоков наружных стен по оси "4" Схема расположения блоков наружных стен по осям "Б", "М" Схема расположения блоков наружных стен по оси "Р" Схема расположения блоков внутренних стен по осям "2", "В - Г", "Ж", "Л - М" Схема расположения блоков внутренних стен по осям "9", "6", "Л", "К" Схемы расположения блоков наружных и внутренних стен по осям "И - Ж", "Л - М", по оси "4" Схемы расположения блоков наружных и внутренних стен по осям "7 - 8" Схемы расположения блоков внутренних стен по осям "Н", "П" и вентиляционных блоков Спецификация внутренних и вентиляционных блоков Спецификация анкеров крепления наружных и внутренних стен. Узлы Схемы расположения прогонов. Ведомость прогонов. Узлы "1 - 4" Узлы "5 - 14" Узлы "15 - 28". Спецификация металлических соединительных элементов Схема расположения элементов перекрытия 1 этажа Схема расположения элементов перекрытия 2 этажа Спецификация материалов на монолитные участки Лестница №1. Узлы Железобетонные элементы лестницы №1 Лестница №2 Лестница №3 Крыльца №№1, 2, 3 Тамбур главного входа Развертки вентиляционных каналов В-1, В-2, В-3, В-4, В-6 Развертки вентиляционных каналов В-5, В-7, В-8 Зонты 1, 2, 3 План совмещенной кровли вентшахты Вентшахты с крышными вентиляторами План чердачной кровли (вариант). Схема расположения элементов стропил Схема расположения перемычек, опорных и кирпичных столбиков под стойки Продольные сечения стропил Узлы чердачной крыши Слуховые окна ОС1, ОС2 Вентшахты для варианта чердачной крыши Кабины санузлов Эстрада. Планы, разрезы, сечения Вестибюль с рекреацией, обеденный зал. Интерьеры, развертки стен Актовый зал. Развертки стен Спортивный зал. Детали интерьера Детали крепления спортивного оборудования Коробки витражей КВ-1, КВ-2 Чертежи основного комплекта марки ТХ Общие данные План 1 этажа в осях "А - И" и "1 - 10" с расстановкой мебели и оборудования План 2 этажа в осях "А - И" и "1 - 10" с расстановкой мебели и оборудования План 1 этажа в осях "И - Н" и "1 - 10" с расстановкой мебели и технологического оборудования План 1 этажа в осях "Л - Р" и "1 - 10" с расстановкой мебели и оборудования План 2 этажа в осях "Л - Р" и "1 - 10" с расстановкой мебели и оборудования План 2 этажа в осях "Ж - М" и "1 - 10" с расстановкой мебели и оборудования План 1 этажа в осях "И - Н" и "1 - 10" с привязкой подводов воды, электроэнергии, канализации к оборудованию |
| Разработан: | ЦНИИЭП граждансельстрой |
| Утверждён: | 01.04.1986 Госгражданстрой (Gosgrazhdanstroy 117) |
















































































