Скачать Типовой проект 212-2-41/75 Альбом I. Архитектурно-строительные и технологические чертежиДата актуализации: 01.01.2021
|
| Обозначение: | Типовой проект 212-2-41/75 |
| Обозначение англ: | 212-2-41/75 |
| Статус: | действует |
| Название рус.: | Альбом I. Архитектурно-строительные и технологические чертежи |
| Дата добавления в базу: | 01.09.2013 |
| Дата актуализации: | 01.01.2021 |
| Дата введения: | 10.07.1975 |
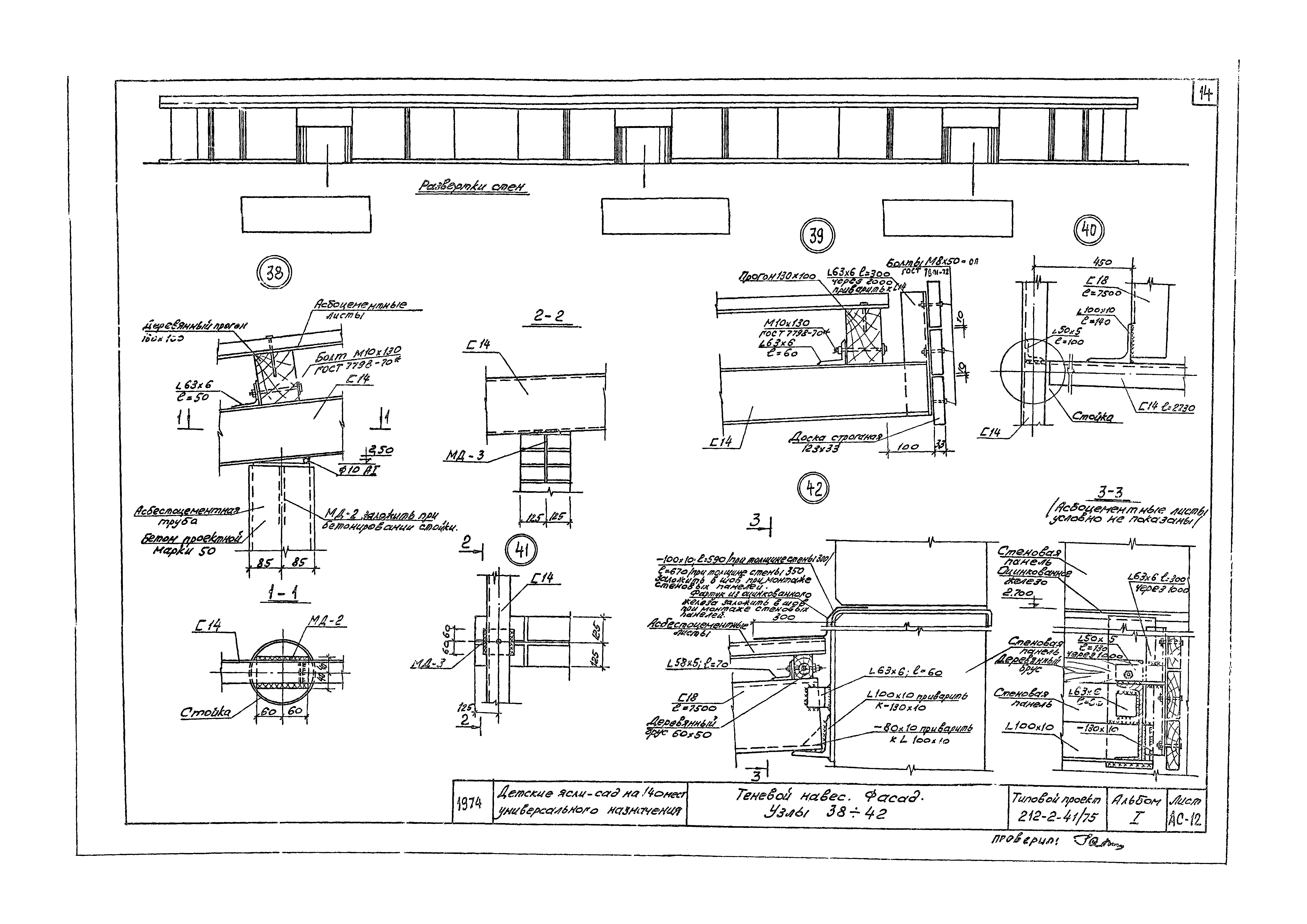
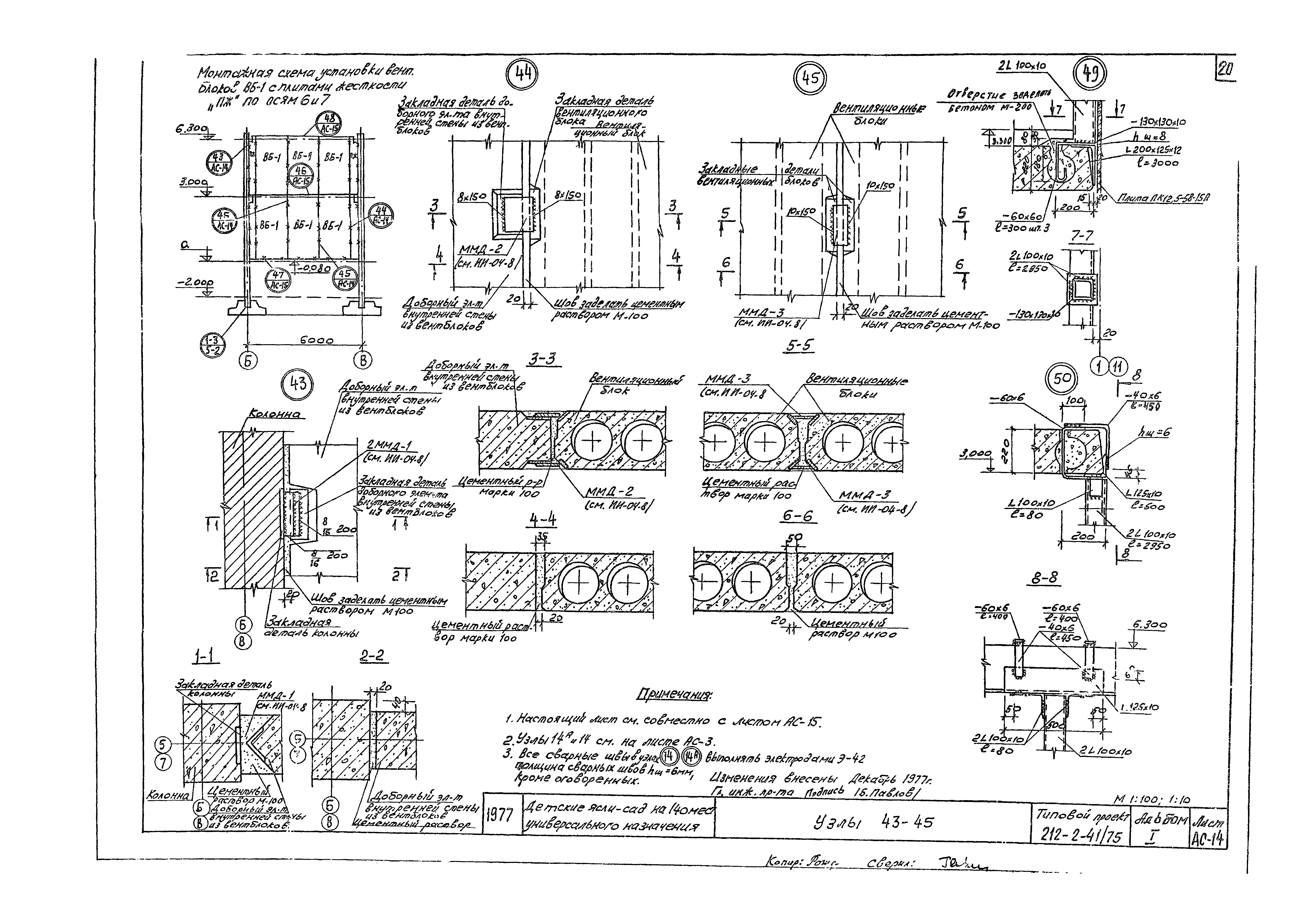
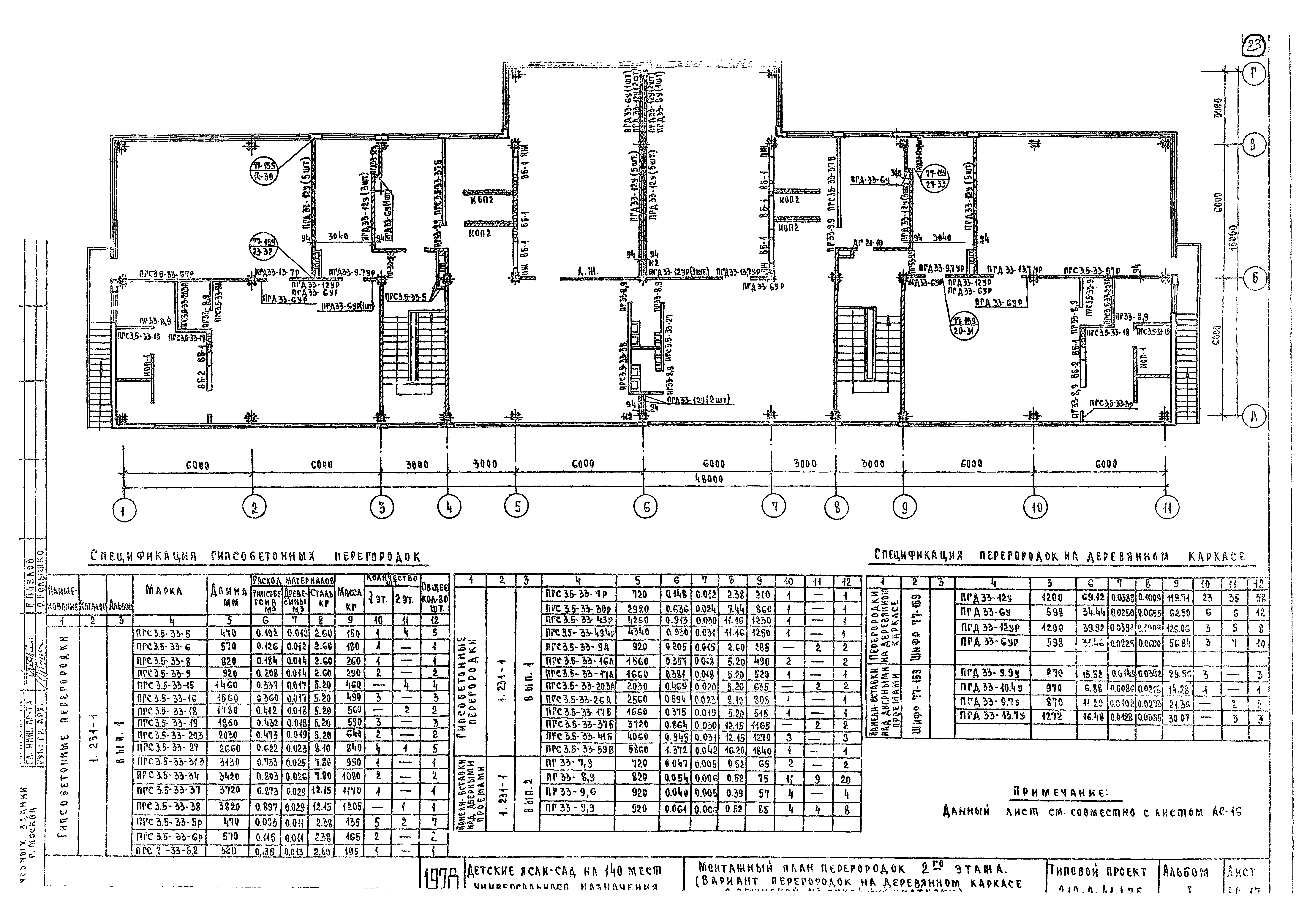
| Оглавление: | Содержание альбома. Пояснительная записка. Спецификация типовых деталей и нормалей, применяемых в проекте План 1 этажа. Узлы 8 - 10 План 2 этажа Фасады в осях 1 - 11; по осям 1 и 11. Раскладка стеновых панелей по осям А, 1, 11. Узел 11 Фасады в осях 11 - 1. Раскладка стеновых панелей в осях 11 - 1; 7 - 5 по осям 5 и 7. Разрез 1-1. Узел 12 Фасады в осях 1 - 11; 11 - 1; А - Г. Разрез 1-1. Вариант с тройным остеклением Лестницы №1 и №2. Декоративная перегородка. Узлы 13, 15 - 17 Монтажные планы перекрытий над 1 этажом. Покрытия и подшивного потолка. Сечения. Узлы 18 - 21 Монтажные схемы остекленных перегородок ИОП-1, ИОП-2. Сечения. Узлы 22 - 24 Эвакуационные лестницы. Монтажный план. Сечения. Узлы 25 - 36 План кровли. Сечения. Узел 37 Теневой навес. План. Монтажная схема каркаса и покрытия. Разрез I-I Теневой навес. Фасад. Узлы 38 - 42 Примерное решение интерьеров Узлы 43 - 45 Узлы 46 - 48 Монтажный план перегородок 1 этажа (вариант перегородок на деревянном каркасе) Монтажный план перегородок 2 этажа (вариант перегородок на деревянном каркасе) Планы 1 и 2 этажей Расстановка технологического оборудования и монтажный план пищеблока и постирочной Сводная спецификация технологического оборудования |
| Разработан: | ЦНИИЭП учебных зданий |
| Утверждён: | 20.07.1971 Госгражданстрой (Gosgrazhdanstroy 125) |






















