Скачать Типовой проект 212-2-41/75 Альбом III. Электротехнические чертежиДата актуализации: 01.01.2021
|
| Обозначение: | Типовой проект 212-2-41/75 |
| Обозначение англ: | 212-2-41/75 |
| Статус: | действует |
| Название рус.: | Альбом III. Электротехнические чертежи |
| Дата добавления в базу: | 01.09.2013 |
| Дата актуализации: | 01.01.2021 |
| Дата введения: | 10.07.1975 |
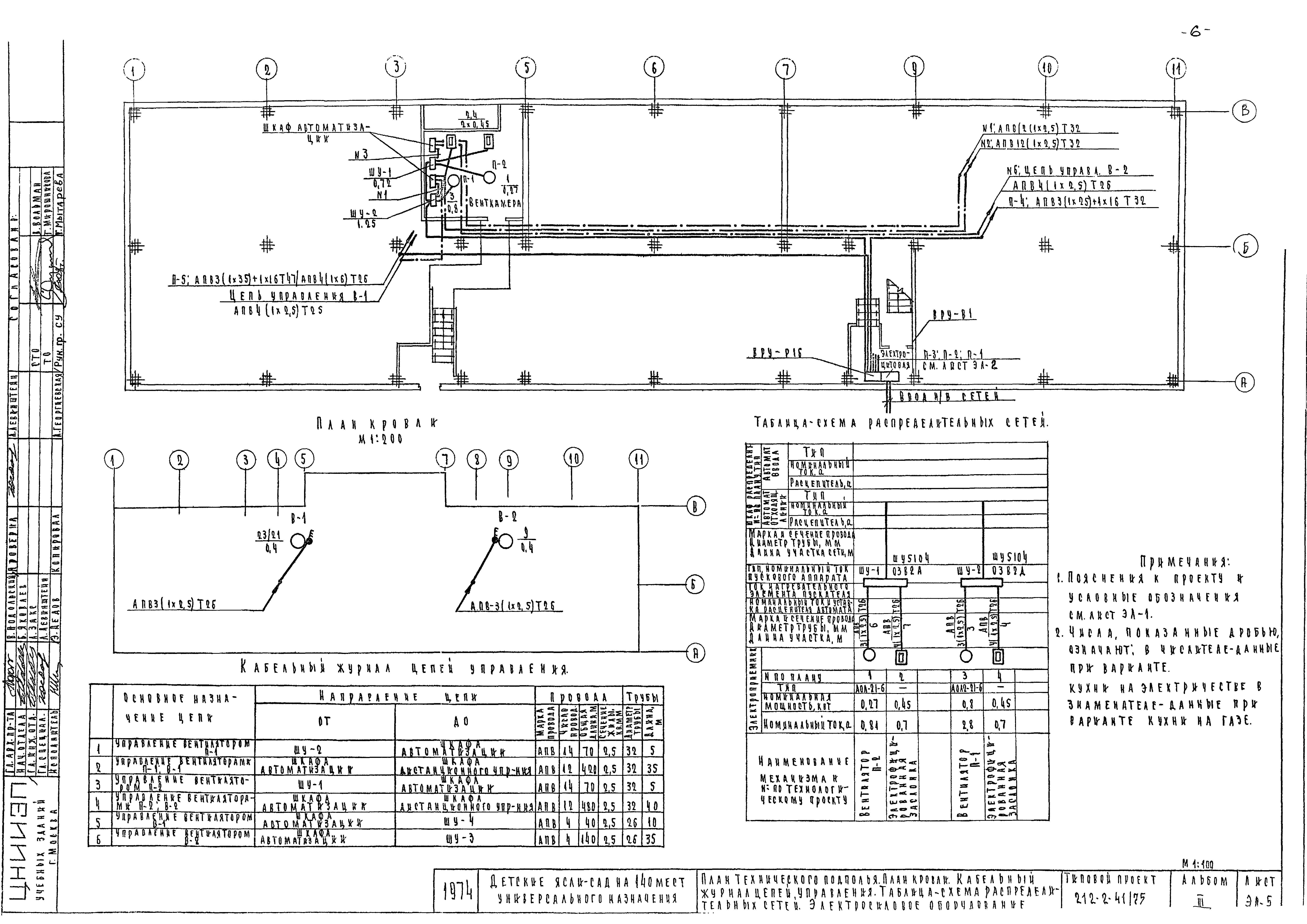
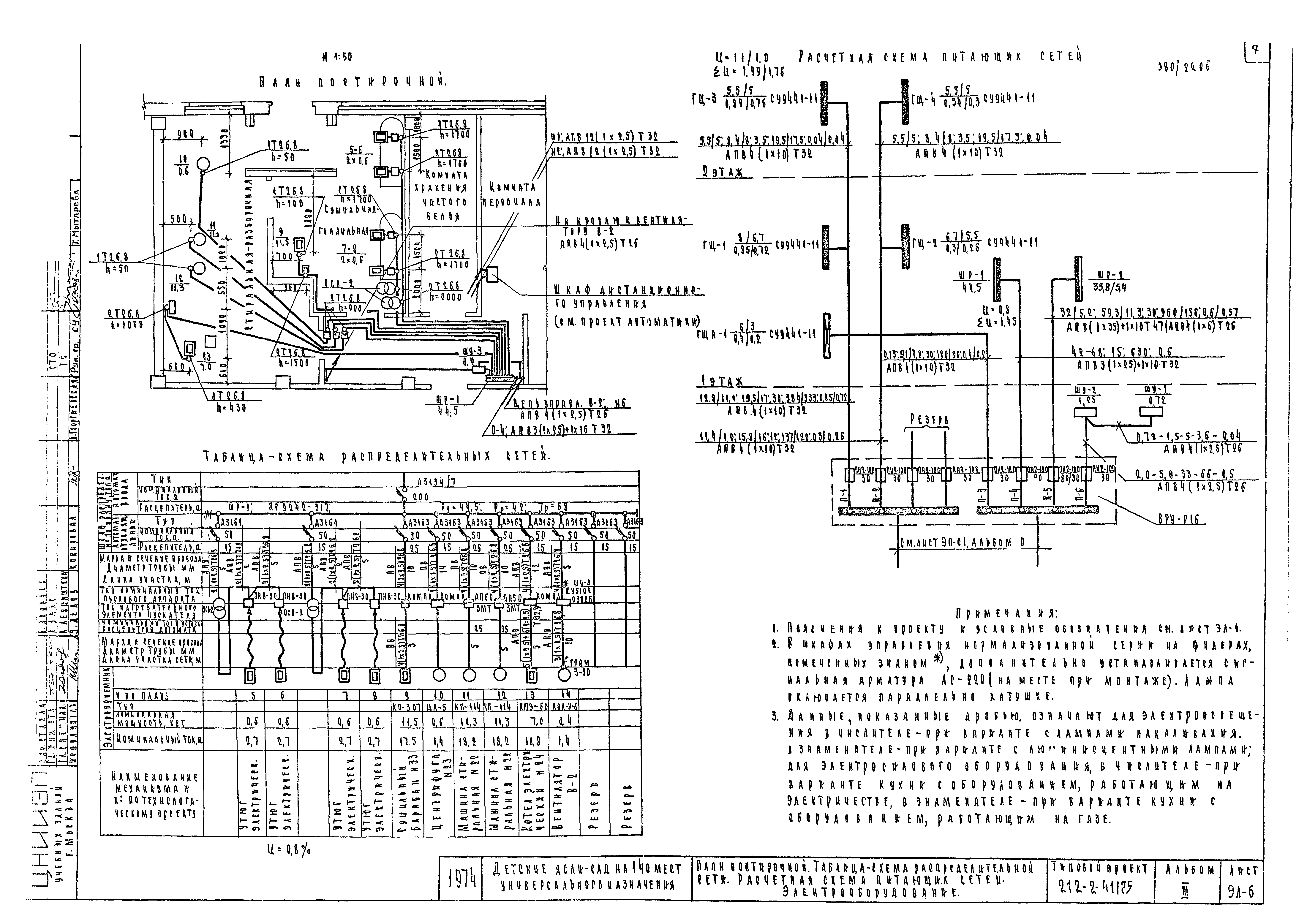
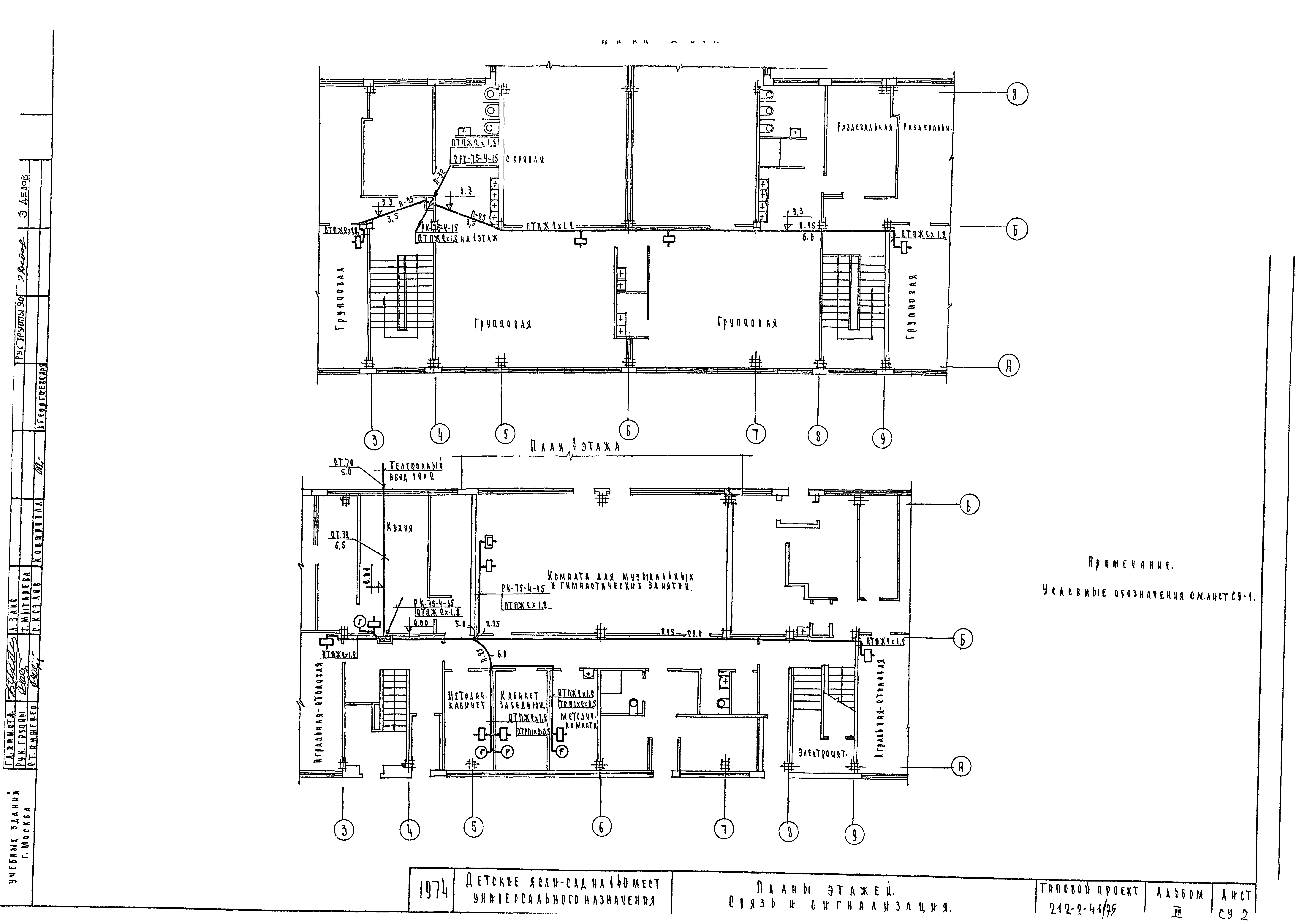
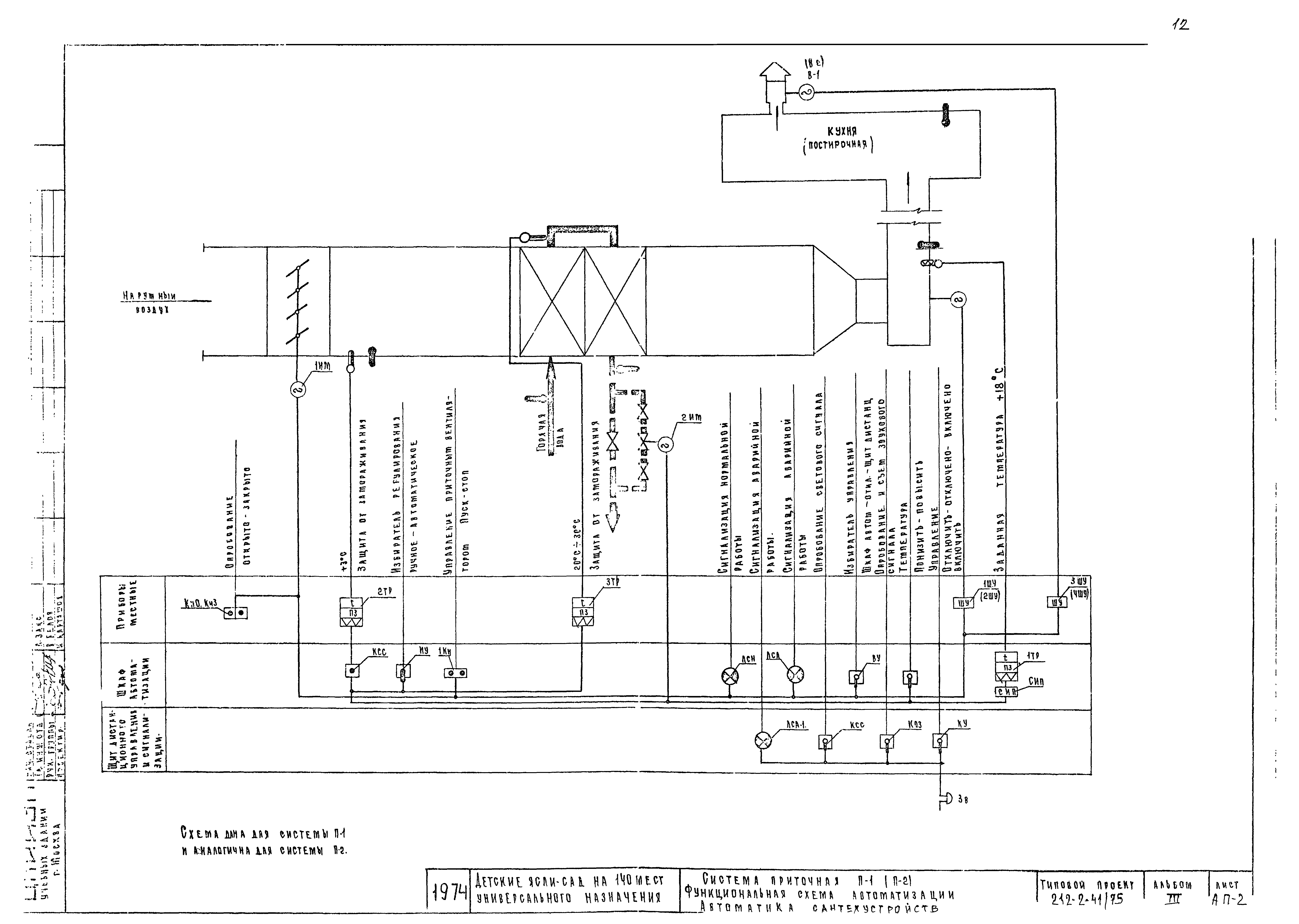
| Оглавление: | Чертежи основного комплекта марки ЭЛ Пояснения к проекту и условные обозначения, содержание альбома. Электрооборудование План технического подполья и подвала. Электроосвещение Планы 1 и 2 этажей. Вариант с люминесцентными лампами. Электроосвещение Планы 1 и 2 этажей. Вариант с лампами накаливания. Электроосвещение План технического подполья. План кровли. Кабельный журнал цепей управления. Таблицы-схемы распределительных цепей. Электросиловое оборудование План постирочной. Таблицы-схемы распределительных сетей. Расчетная схема питающих сетей. Электрооборудование План кухни. Таблицы-схемы распределительных сетей. Электросиловое оборудование Связь и сигнализация Заглавный лист. Схемы сетей. Связь и сигнализация Планы этажей. Связь и сигнализация Автоматика Содержание. Пояснения к проекту. Автоматика сантехустройств Приточная система П-1 (П-2). Функциональная схема автоматизации. Автоматика сантехустройств Приточная система П-1 (П-2). Схемы управления принципиальные электрические. Автоматика сантехустройств Приточная система П-1 (П-2). Схемы регулирования управления принципиальные электрические. Автоматика сантехустройств Приточная система П-1 (П-2). Схема присоединения и план контрольных сетей. Автоматика сантехустройств |
| Разработан: | ЦНИИЭП учебных зданий |
| Утверждён: | 20.07.1971 Госгражданстрой (Gosgrazhdanstroy 125) |














