Скачать Серия 3.501.1-131 Выпуск 2. Свайные сборные фундаменты металлических опор контактной сетиДата актуализации: 01.01.2021
|
| Обозначение: | Серия 3.501.1-131 |
| Обозначение англ: | Series 3.501.1-131 |
| Статус: | заменен |
| Название рус.: | Выпуск 2. Свайные сборные фундаменты металлических опор контактной сети |
| Дата добавления в базу: | 01.09.2013 |
| Дата актуализации: | 01.01.2021 |
| Дата введения: | 01.10.1982 |
| Дата окончания срока действия: | 01.02.1989 |
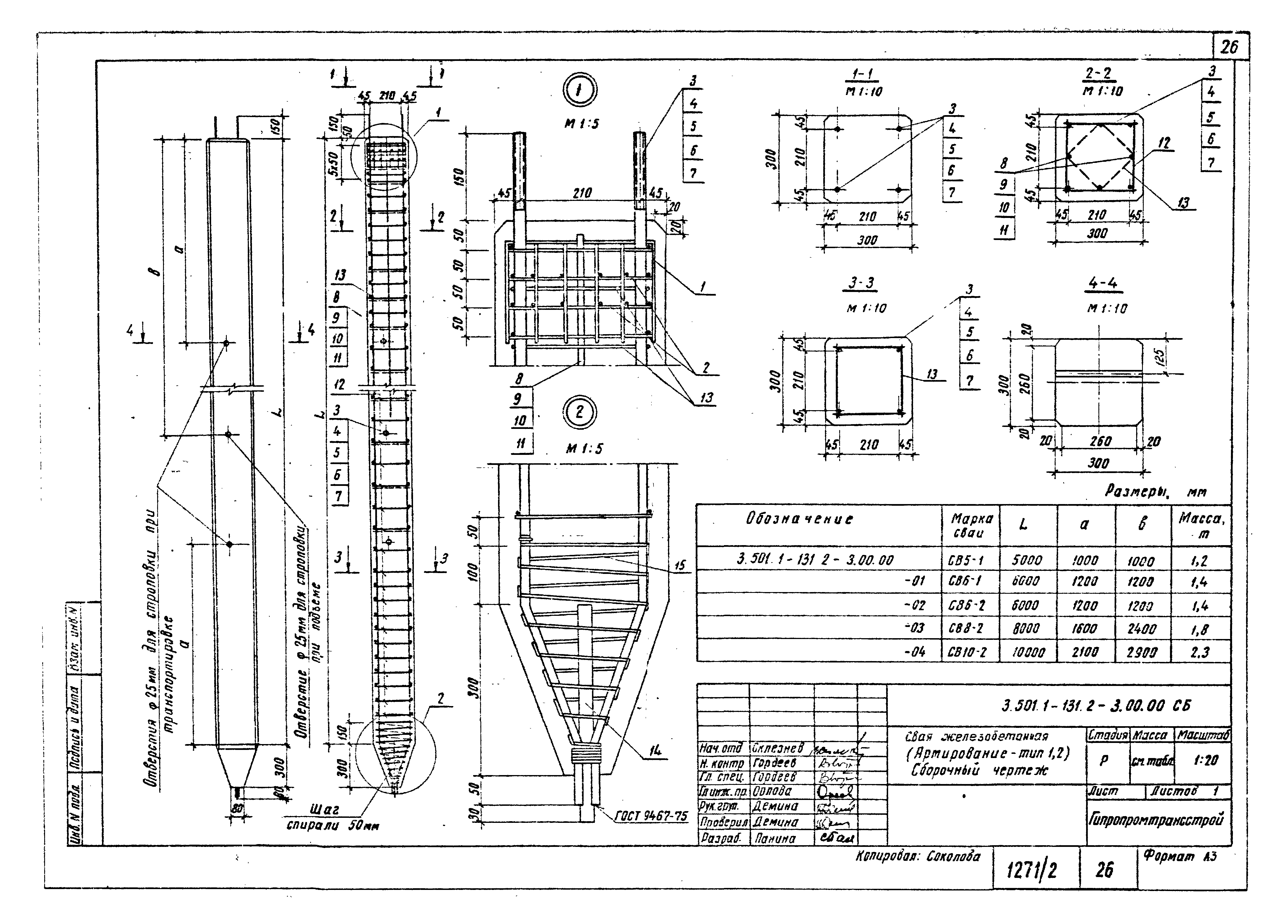
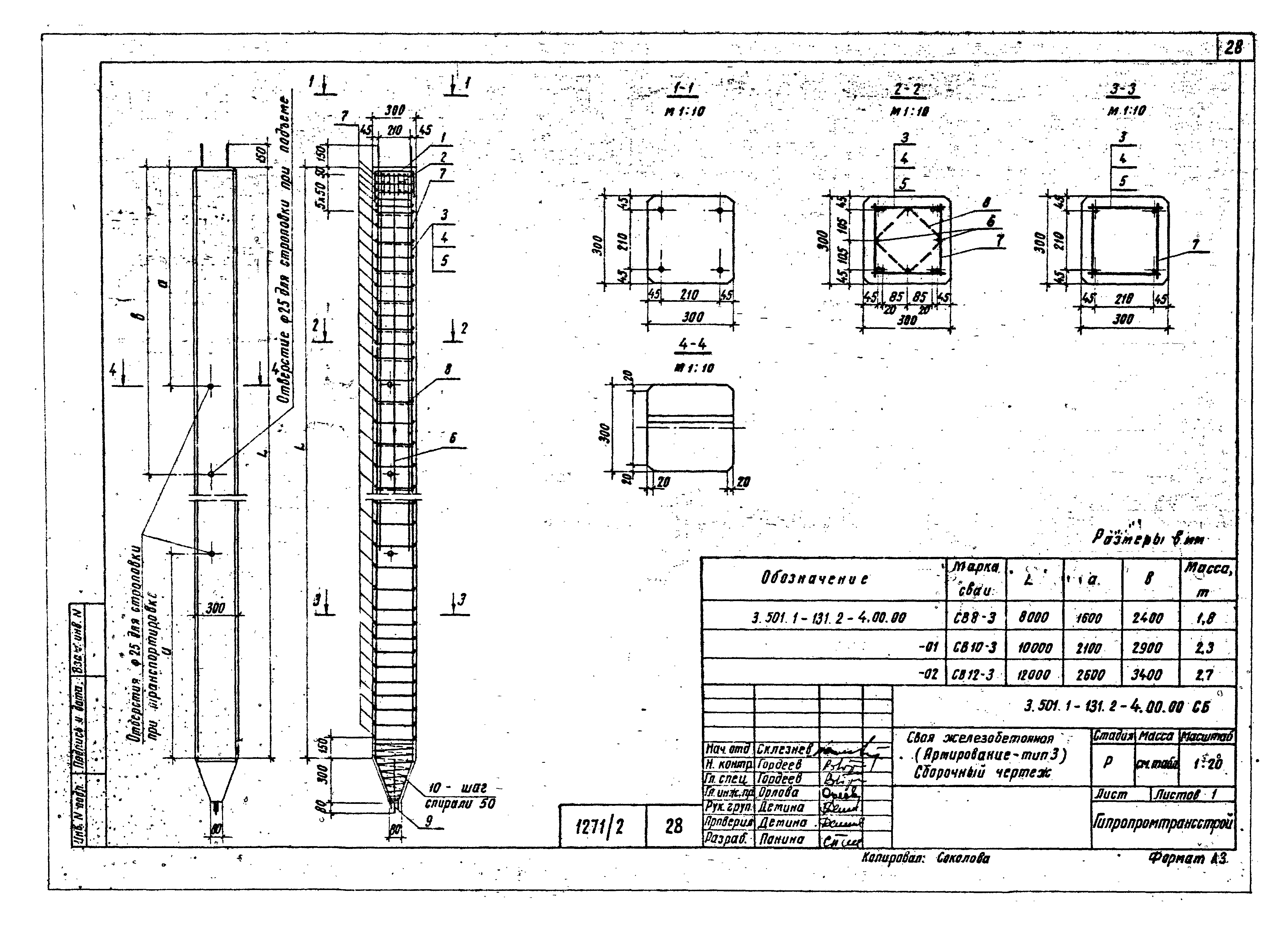
| Оглавление: | Содержание 3.501.1-131.2-0.00.00ТО Техническое описание 3.501.1-131.2-0.00.01 Номенклатура изделий 3.501.1-131.2-0.00.02 Расчетный лист 3.501.1-131.2-1.00.00 Ростверк железобетонный РС1-1, РС1-2, РС1-3, РС2-1, РС2-2, РС2-3 3.501.1-131.2-1.00.00СБ Ростверк железобетонный РС1-1, РС1-2, РС1-3, РС2-1, РС2-2, РС2-3. Сборочный чертеж 3.501.1-131.2-2.00.00 Ростверк железобетонный РС3-1, РС3-2, РС3-3, РС3-4 3.501.1-131.2-2.00.00СБ Ростверк железобетонный РС3-1, РС3-2, РС3-3, РС3-4. Сборочный чертеж 3.501.1-131.2-3.00.00 Свая железобетонная (армирование тип 1, 2) 3.501.1-131.2-3.00.00СБ Свая железобетонная (армирование тип 1, 2). Сборочный чертеж 3.501.1-131.2-4.00.00 Свая железобетонная (армирование тип 3) 3.501.1-131.2-4.00.00СБ Свая железобетонная (армирование тип 3). Сборочный чертеж 3.501.1-131.2-0.01.00 Петля инвентарная для подъема ростверков 3.501.1-131.2-0.02.00 Соединение сваи с ростверком 3.501.1-131.2-0.02.00СБ Соединение сваи с ростверком. Сборочный чертеж 3.501.1-131.2-0.03.00 Устройство оголовков 3.501.1-131.2-1.01.00 Каркас пространственный КП1, КП2 3.501.1-131.2-3.01.00 Каркас пространственный КП3 3.501.1-131.2-1.02.00 Сетка арматурная С1 - С5 3.501.1-131.2-2.01.00 Сетка арматурная С6 - С11 3.501.1-131.2-2.01.00СБ Сетка арматурная С6 - С11. Сборочный чертеж 3.501.1-131.2-1.03.00 Сетка арматурная С12 - С13 3.501.1-131.2-3.02.00 Сетка арматурная С14 3.501.1-131.2-3.03.00 Сетка арматурная С15 - С19 3.501.1-131.2-3.00.05 Хомут 3.501.1-131.2-4.01.00 Сетка арматурная С20 - С22 3.501.1-131.2-1.02.00 Сетка арматурная С1 - С5 (вариант) 3.501.1-131.2-2.01.00 Сетка арматурная С6 - С11 (вариант) 3.501.1-131.2-1.03.00 Сетка арматурная С12 - С13 (вариант) 3.501.1-131.2-3.03.00 Сетка арматурная С15 - С19 (вариант) 3.501.1-131.2-4.01.00 Сетка арматурная С20 - С22 (вариант) 3.501.1-131.2-1.04.00 Закладная деталь ЗД-1 3.501.1-131.2-1.05.00 Закладная деталь ЗД-2 3.501.1-131.2-1.06.00 Закладная деталь ЗД-3 3.501.1-131.2-1.04.02 Анкер 3.501.1-131.2-0.01.01 Петля 3.501.1-131.2-0.01.02 Швеллер 3.501.1-131.2-1.05.02 Болт анкерный 3.501.1-131.2-1.05.03 Шайба 3.501.1-131.2-0.00.00ВМС Ведомость расхода стали на элемент |
| Разработан: | Гипропромтрансстрой |
| Утверждён: | 30.04.1982 МПС (Ministry of Railroads А-14337) |
| Чем заменён: |



















































