Скачать Типовой проект 901-3-236.87 Альбом V. Нестандартизированное оборудованиеДата актуализации: 01.01.2021
|
| Обозначение: | Типовой проект 901-3-236.87 |
| Обозначение англ: | 901-3-236.87 |
| Статус: | не определен законодательством |
| Название рус.: | Альбом V. Нестандартизированное оборудование |
| Дата добавления в базу: | 01.09.2013 |
| Дата актуализации: | 01.01.2021 |
| Дата введения: | 27.04.1987 |
| Дата окончания срока действия: | 30.06.2003 |
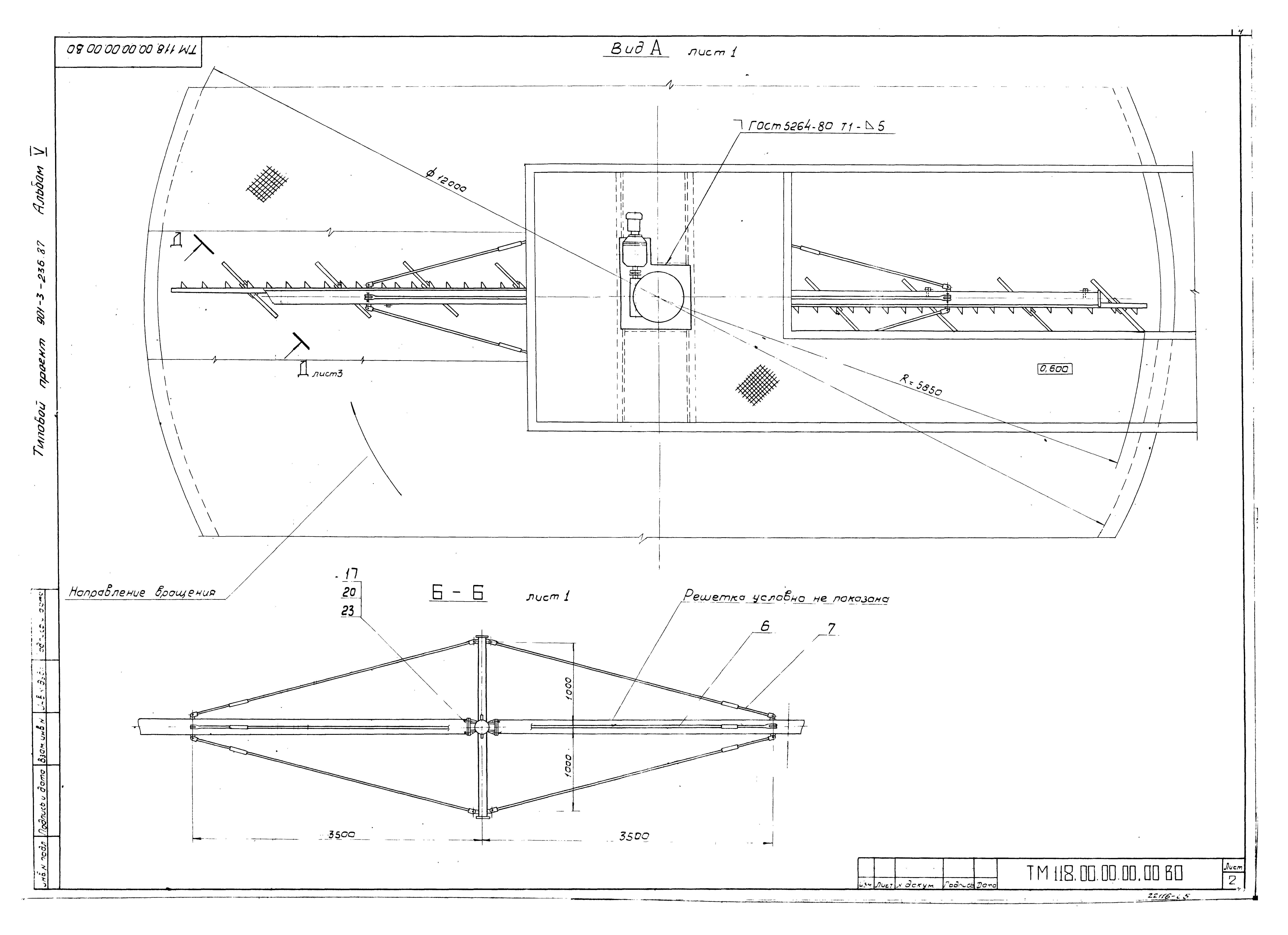
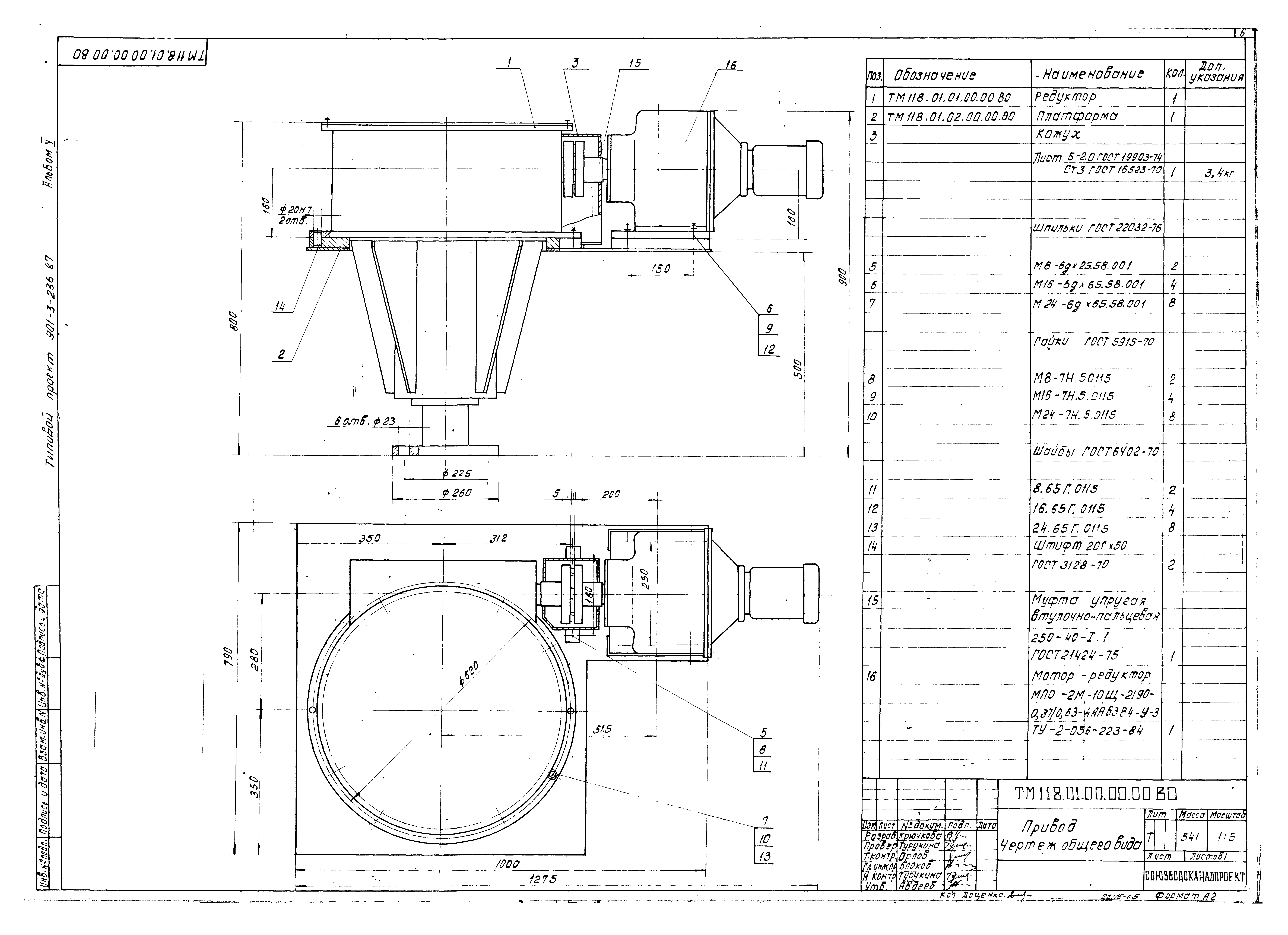
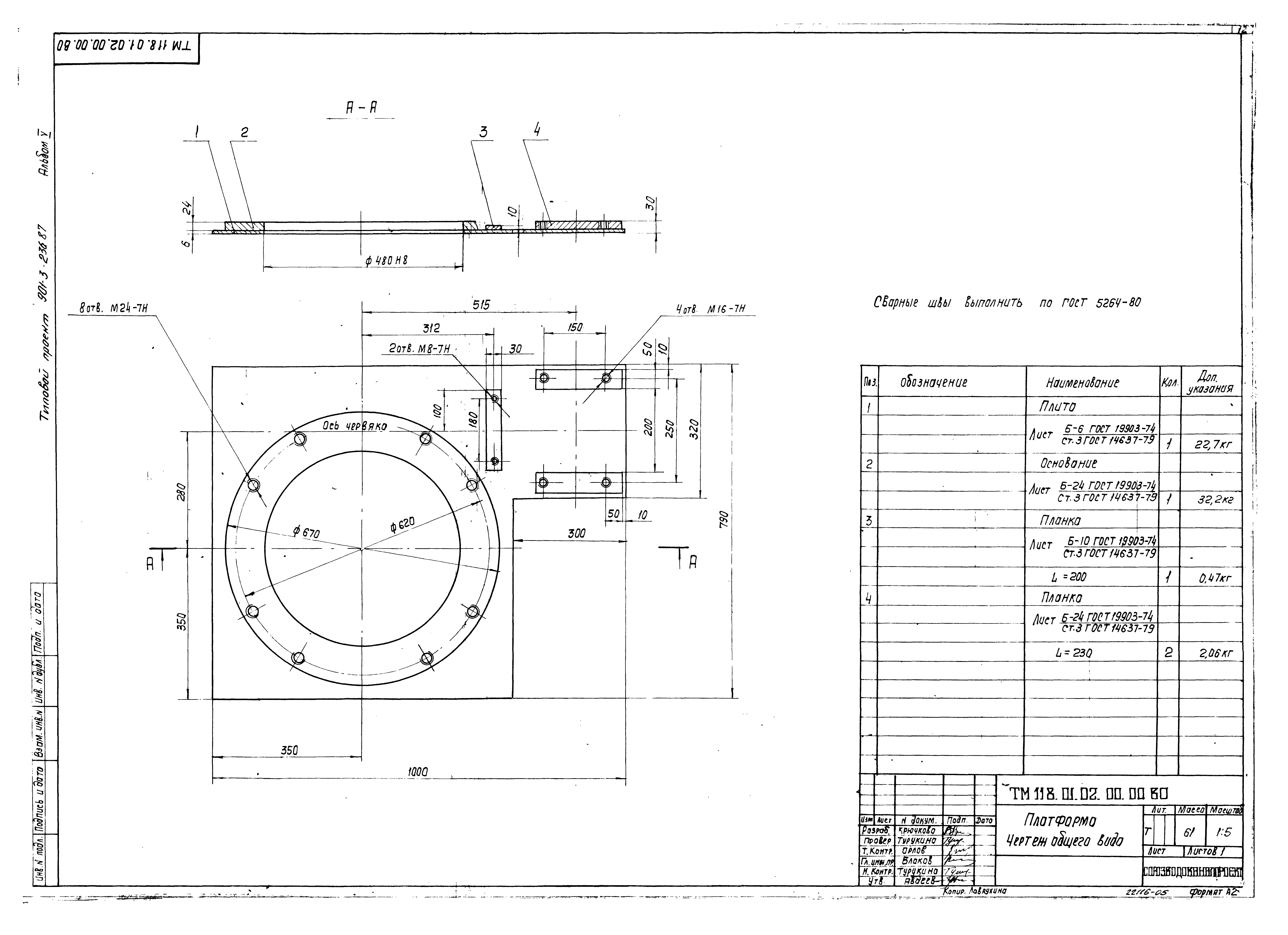
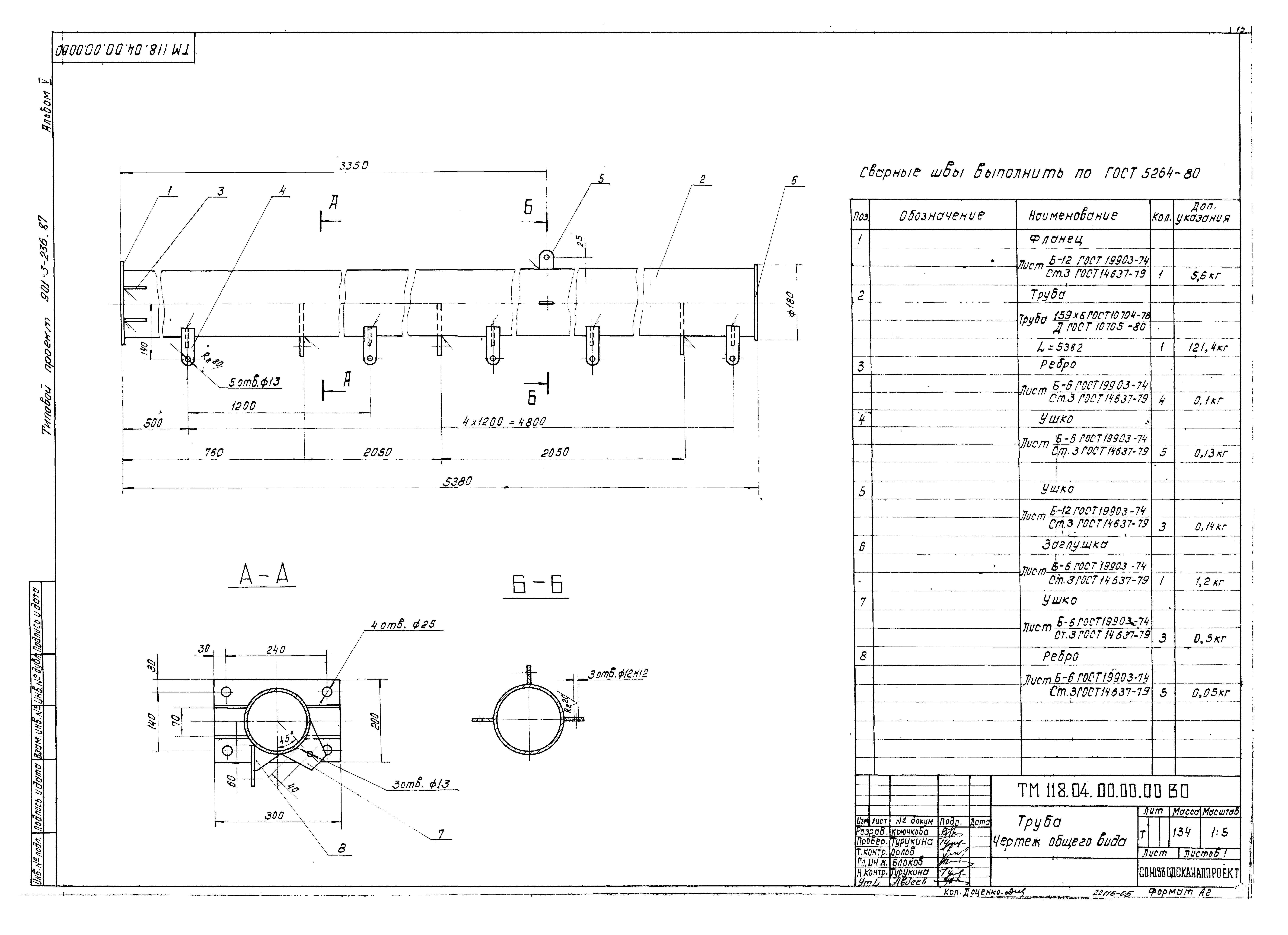
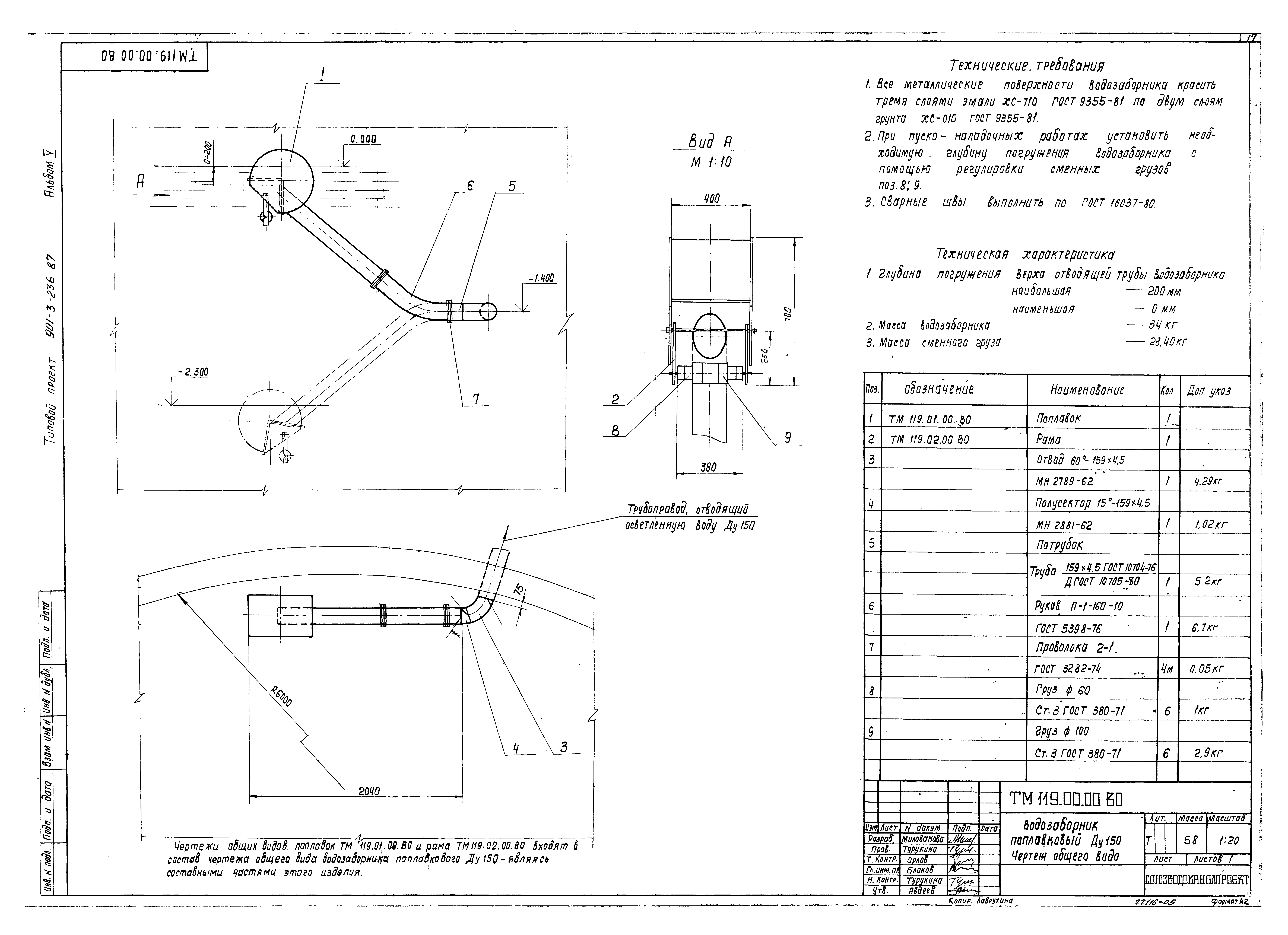
| Оглавление: | Содержание альбома Механизм сгустителя осадка диаметром 12 м Привод Редуктор Корпус Колесо червячное Стакан Вал с фланцем Вал червячный Платформа Вал Решетка Труба Растяжка Тяга Водозаборник поплавковый Ду150 Поплавок Ду150 Рама |
| Разработан: | Союзводоканалпроект ВНИИ ВОДГЕО |
| Утверждён: | 25.12.1986 Госстрой СССР (Государственный комитет Совета Министров СССР по делам строительства) (USSR Gosstroy АЧ-95) |


















