Скачать Типовой проект 804-2-41.86 Альбом I. Общая пояснительная записка. Рабочие чертежи. Спецификации оборудованияДата актуализации: 01.01.2021
|
| Обозначение: | Типовой проект 804-2-41.86 |
| Обозначение англ: | 804-2-41.86 |
| Статус: | не определен законодательством |
| Название рус.: | Альбом I. Общая пояснительная записка. Рабочие чертежи. Спецификации оборудования |
| Дата добавления в базу: | 01.09.2013 |
| Дата актуализации: | 01.01.2021 |
| Дата введения: | 06.11.1986 |
| Дата окончания срока действия: | 30.06.2003 |
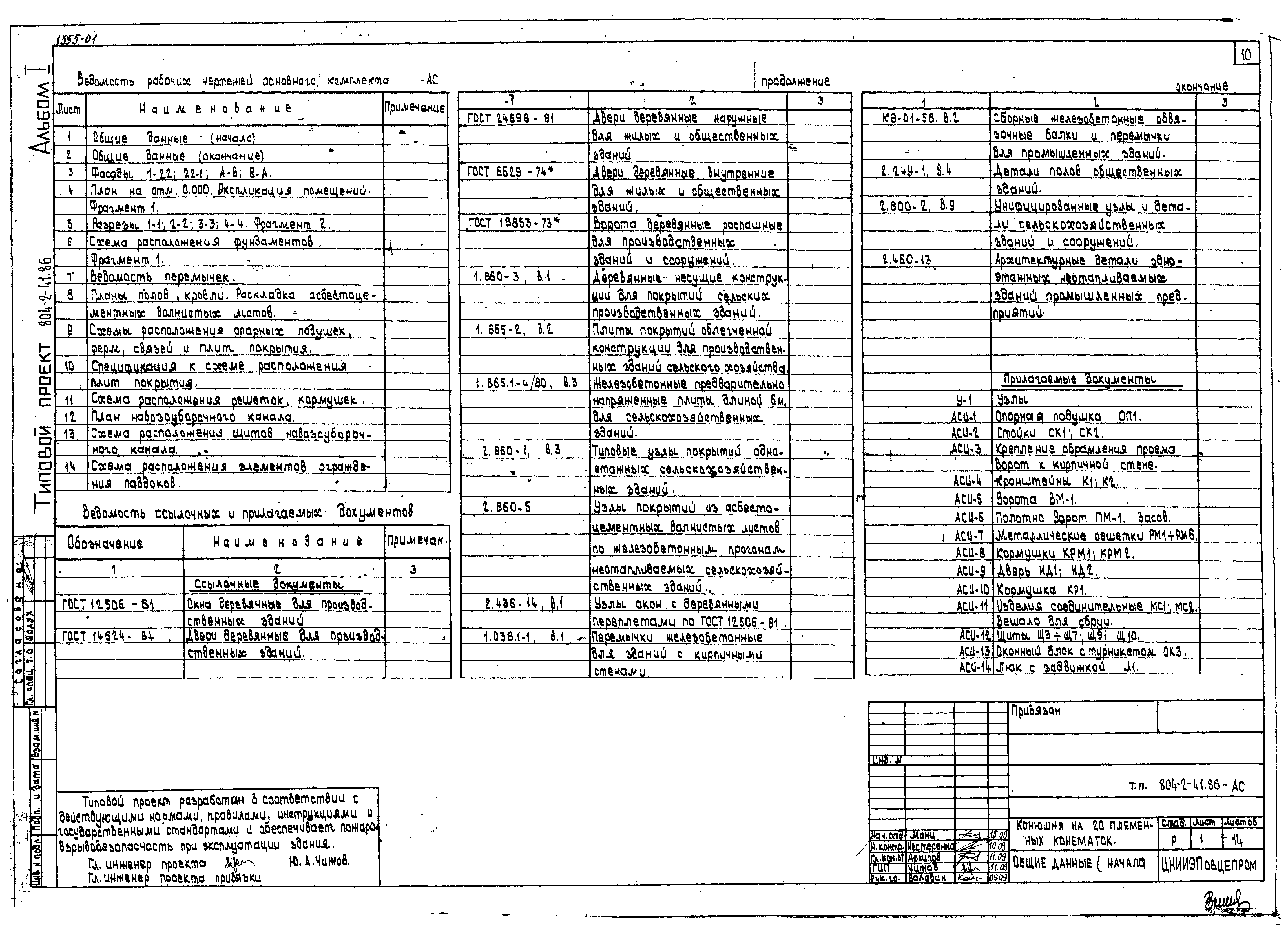
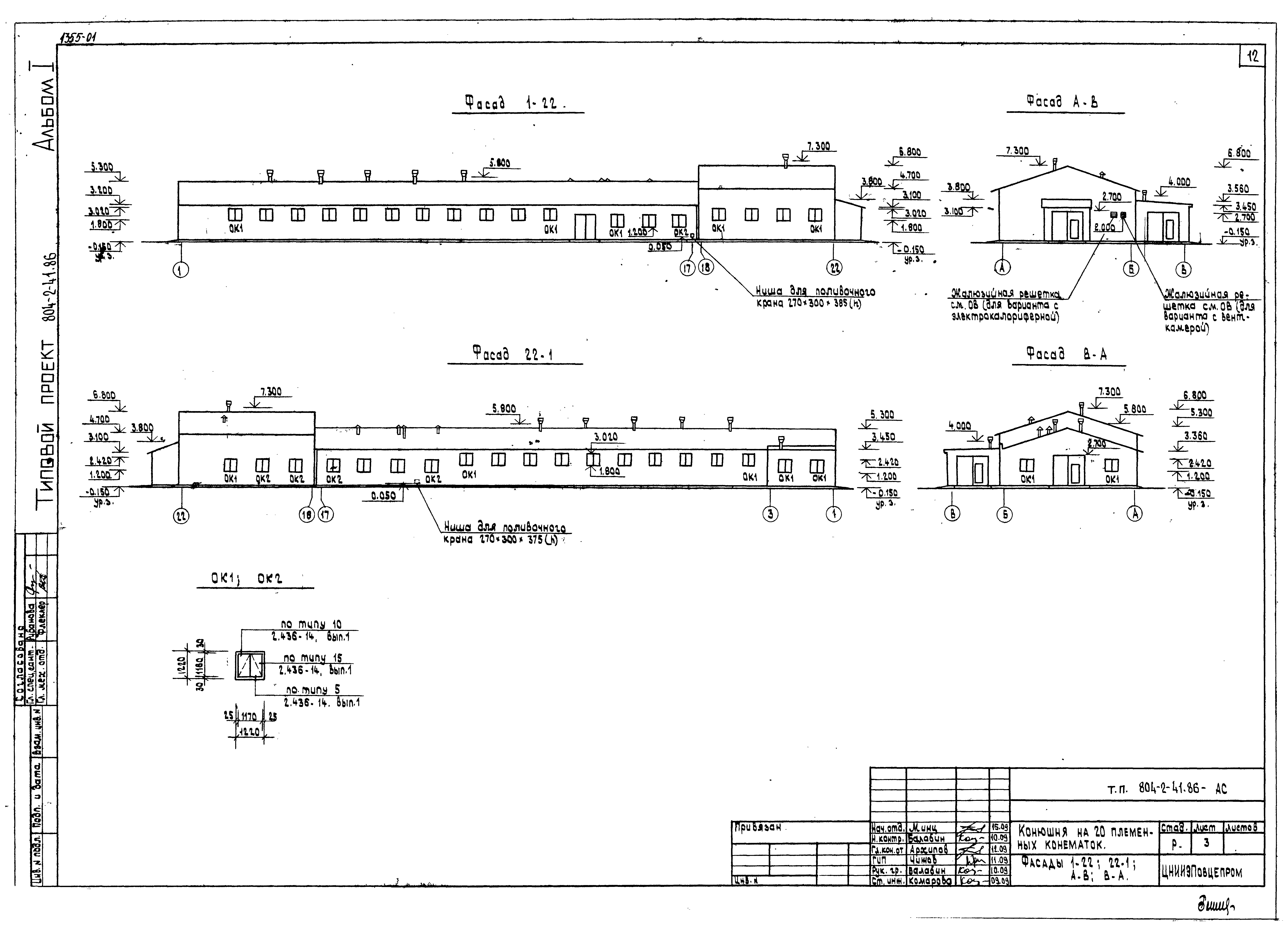
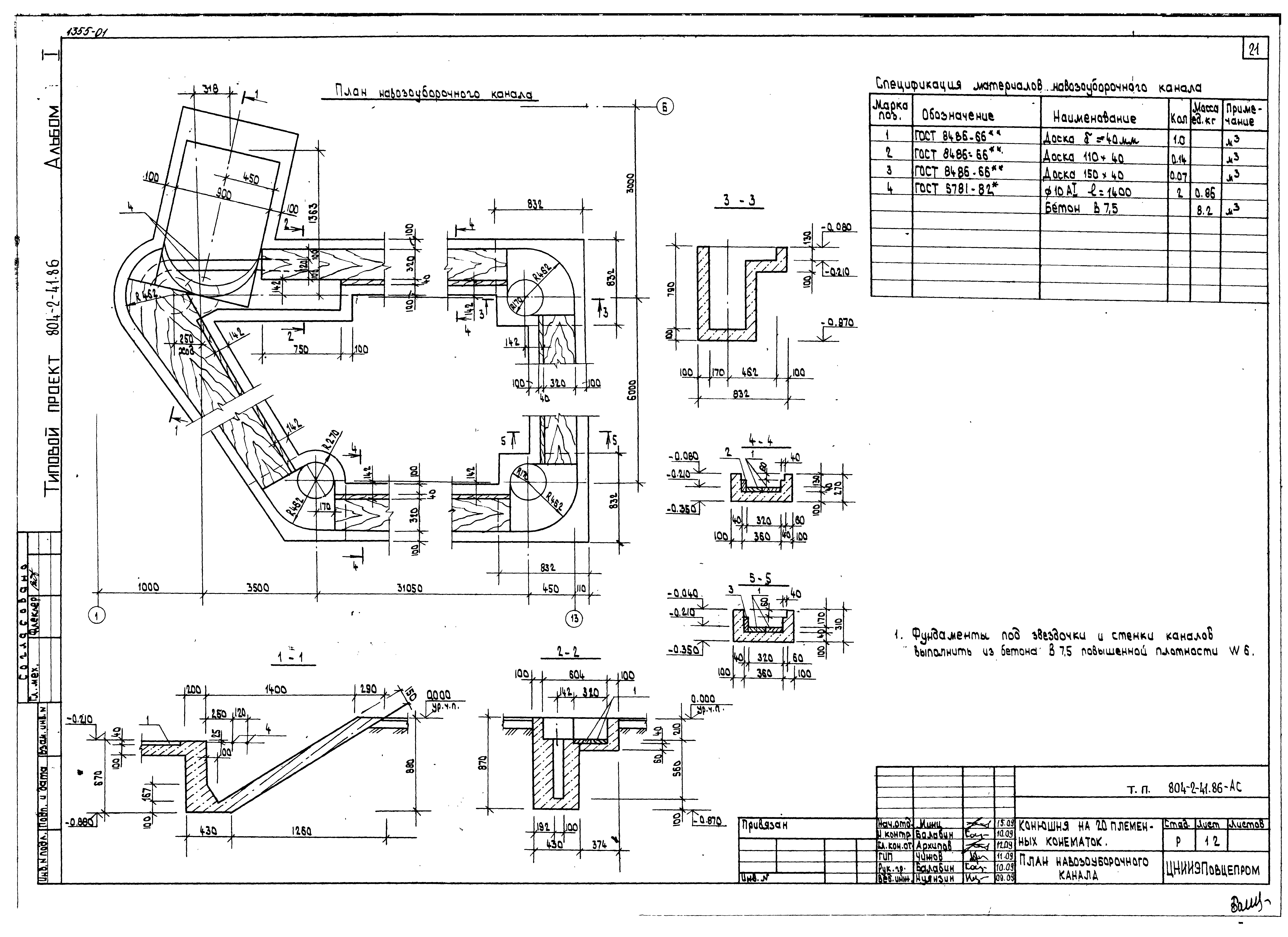
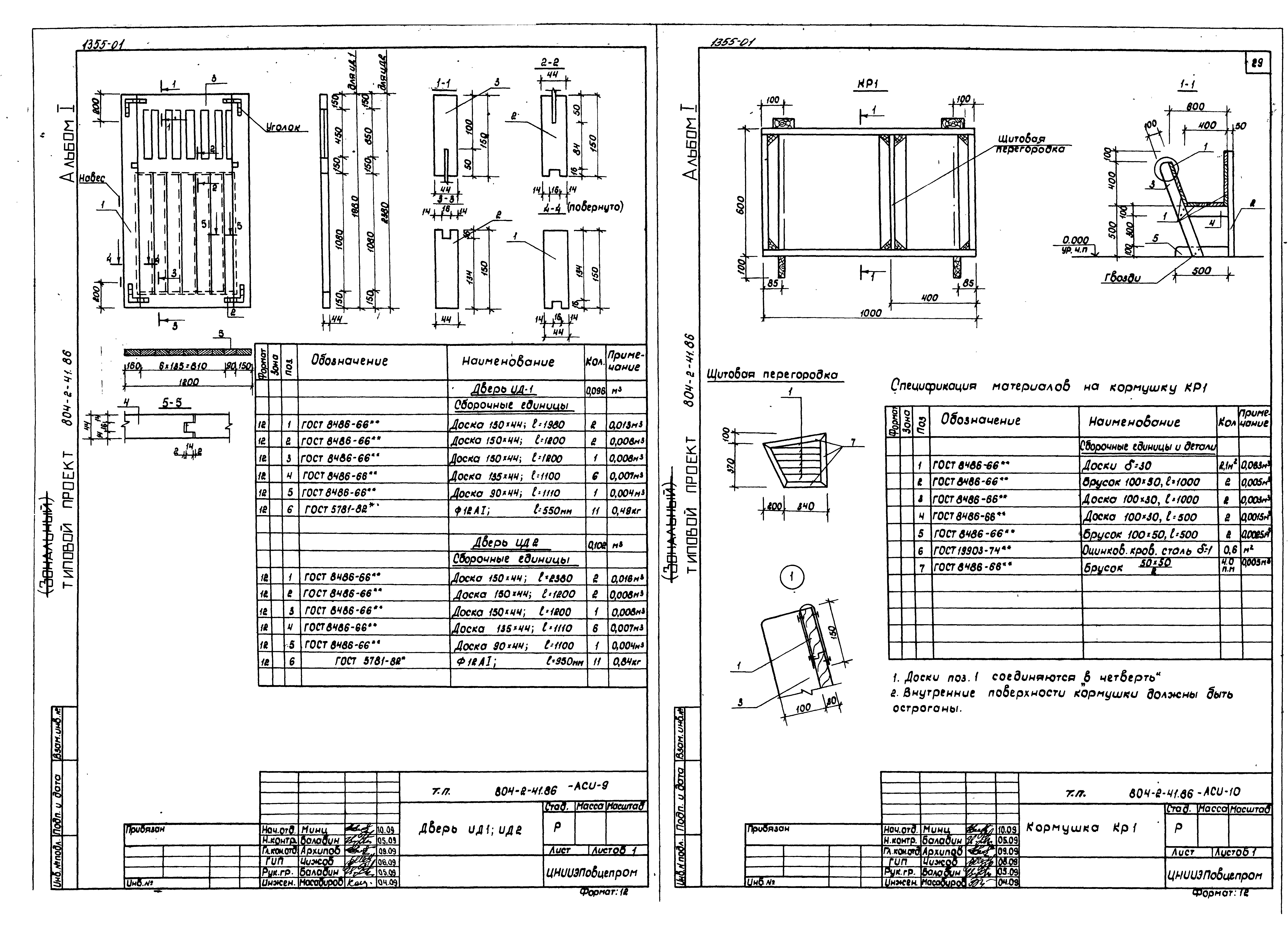
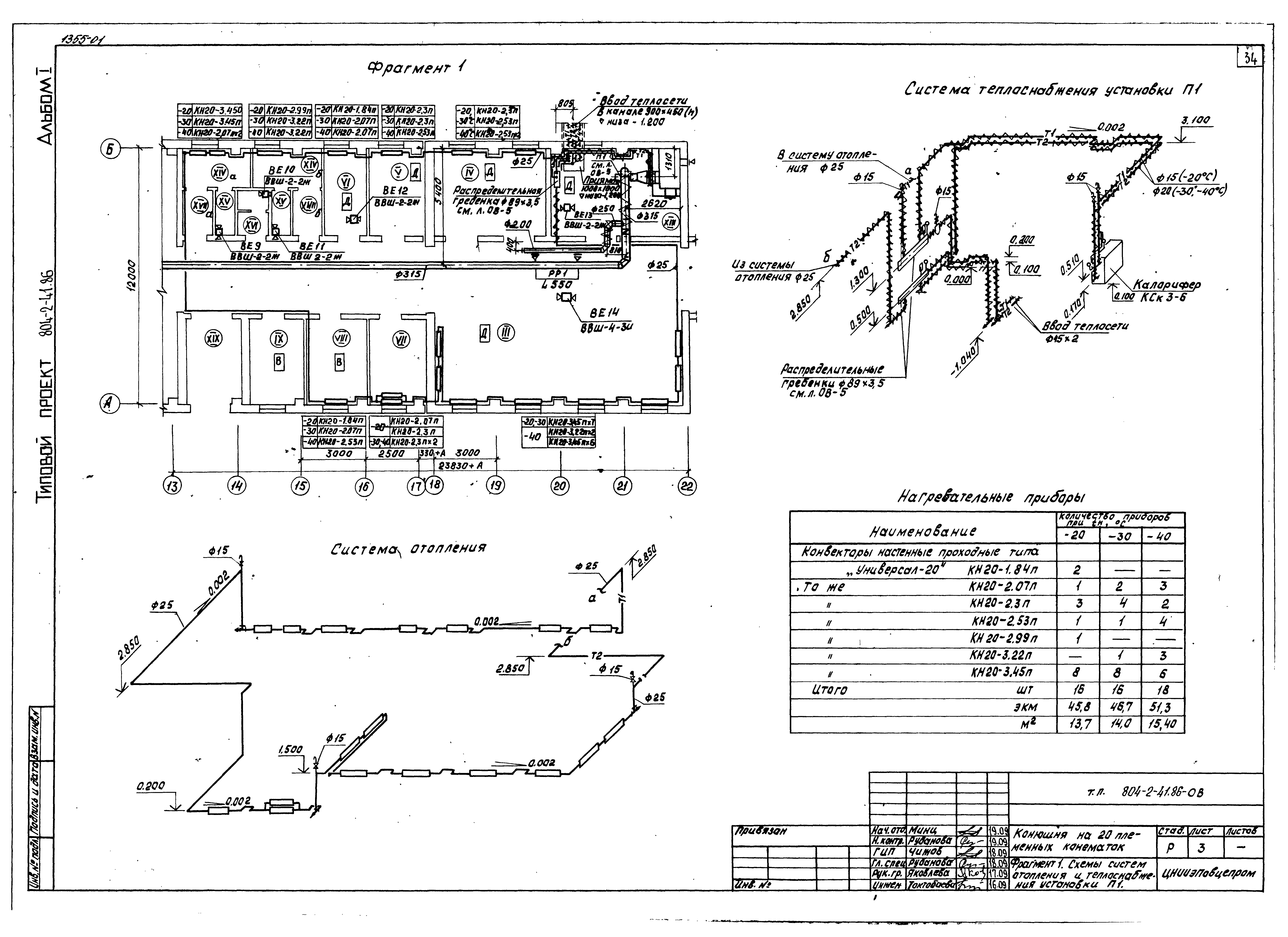
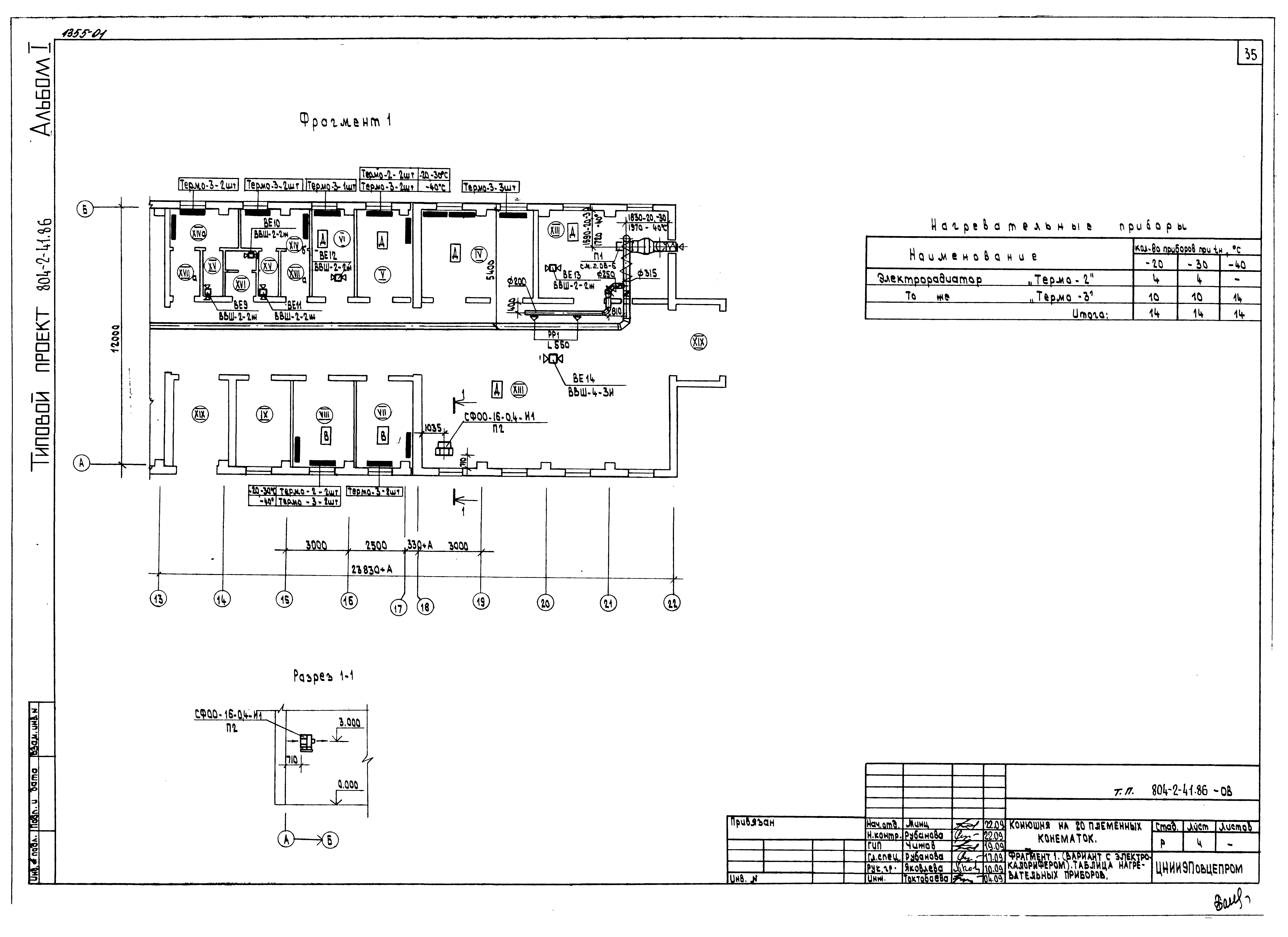
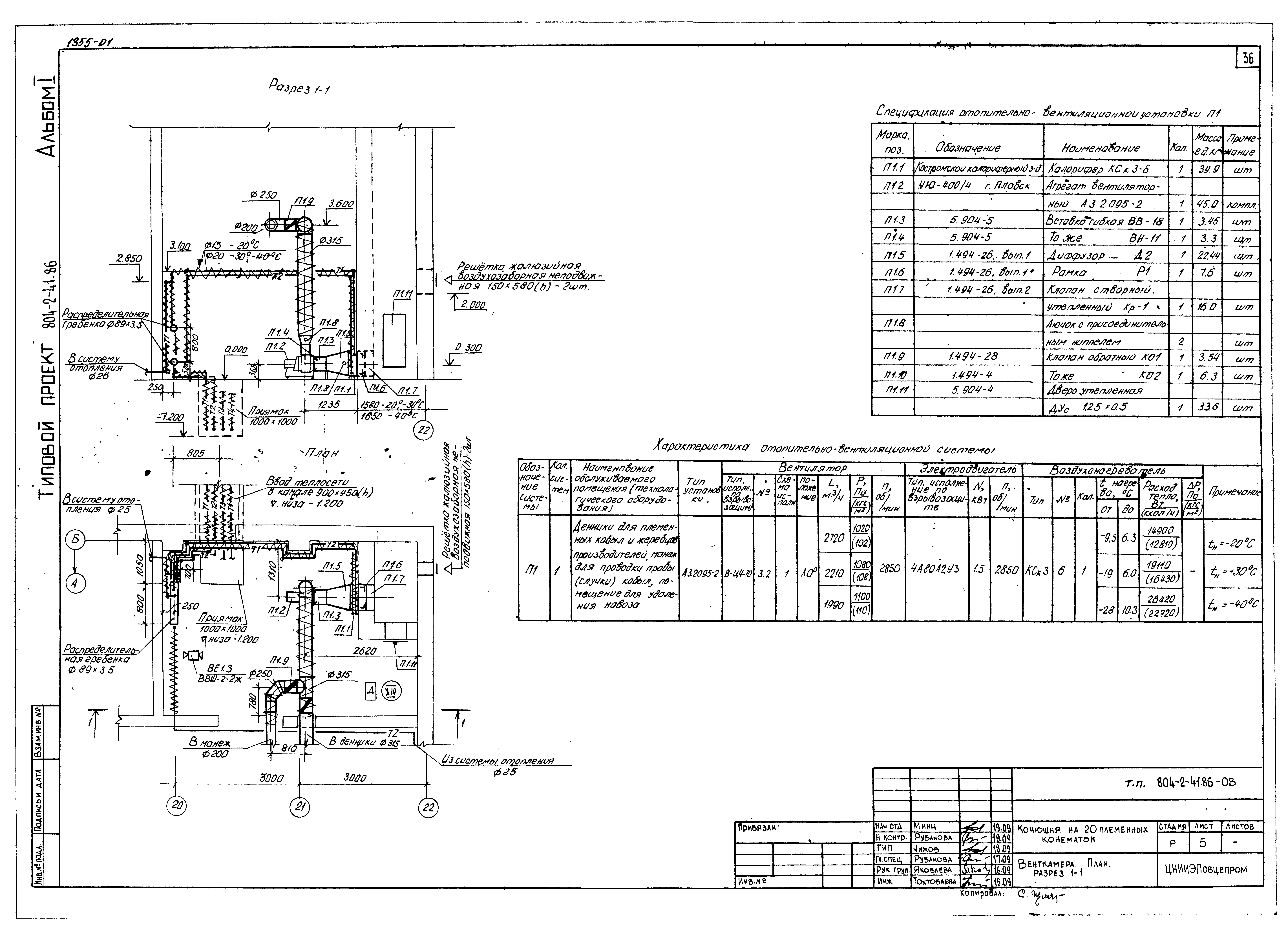
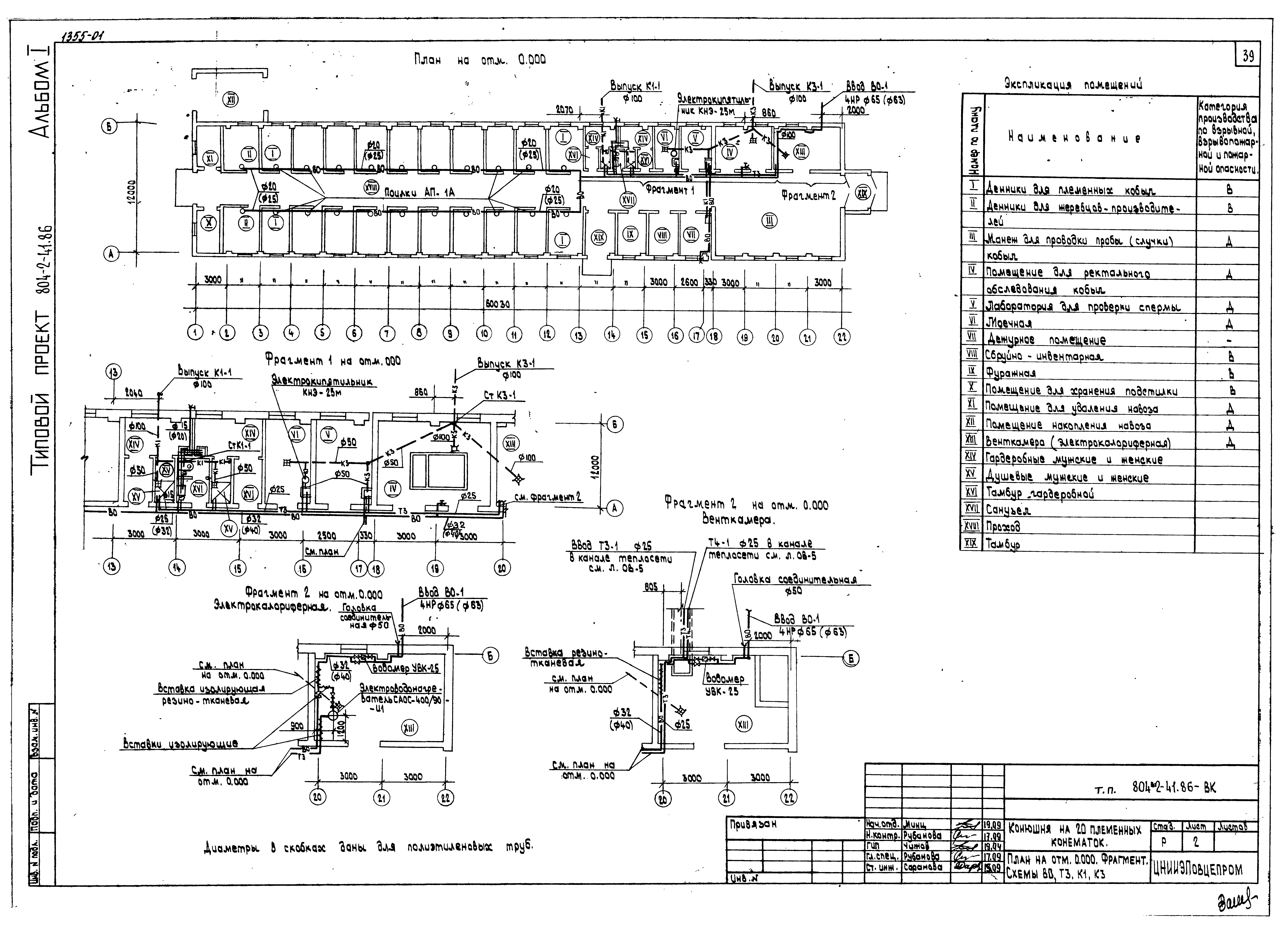
| Оглавление: | Содержание альбома Пояснительная записка Комплект рабочих чертежей марки ТХ Общие данные План расстановки технологического оборудования с паддоками. Разрез А-А Комплект рабочих чертежей марки АС Общие данные Фасады 1 - 22; 22 - 1; А - В; В - А План на отм. 0.000. Экспликация помещений. Фрагмент 1 Разрезы 1-1, 2-2, 3-3, 4-4. Фрагмент 2 Схема расположения фундаментов. Фрагмент 1 Ведомость перемычек Планы полов, кровли. Раскладка асбестоцементных волнистых листов Схемы расположения опорных подушек, ферм, связей и плит покрытия Спецификация к схеме расположения плит покрытия Схема расположения решеток, кормушек План навозоуборочного канала Схема расположения щитов навозоуборочного канала Схема ограждения элементов ограждения паддоков Узлы 1 - 6 Опорная подушка ОП-1 Стойки СК1, СК2 Крепление проема ворот к кирпичной стене Кронштейны К1, К2 Ворота ВМ-1 Полотно ворот ПМ-1. Засов Металлические решетки РМ1 - РМ6 Кормушки КРМ1, КРМ2 Дверь ИД1, ИД2 Кормушка КР1 Изделия соединительные МС1, МС2. Вешало для сбруи Щиты Щ3 - Щ7, Щ9, Щ10 Оконный блок с турникетом ОК3 Люк с задвижкой Л1 Комплект рабочих чертежей марки ОВ Общие данные План на отм. 0.000. Разрез 1-1. Схема системы вентиляции П1 Фрагмент 1. Схемы систем отопления м теплоснабжения установки П1 Фрагмент 1 (вариант с электрокалорифером). Таблица нагревательных приборов Венткамера. План. Разрез 1-1 Электрокалориферная. План. Разрез 1-1 Комплект рабочих чертежей марки ВК Общие данные План на отм. 0.000. Фрагмент 1, 2 Схемы систем В0, Т3, К1, К3 Комплект рабочих чертежей марки ЭМ Общие данные Электроосвещение Силовое электрооборудование Расчетная схема (вариант с вентагрегатом) Расчетная схема (вариант с электрокалорифером) Схемы электрические принципиальные Задание мастерской электромонтажных заготовок Спецификации оборудования |
| Разработан: | ЦНИИЭПовцепрома |
| Утверждён: | 08.10.1986 Госагропром РСФСР (Russian Federation Gosagroprom 53-В) |






























































