Скачать Типовой проект 407-3-581.90 Альбом 1. Пояснительная записка. Электротехническая часть. Архитектурно-строительные решения. Строительные решенияДата актуализации: 01.01.2021
|
| Обозначение: | Типовой проект 407-3-581.90 |
| Обозначение англ: | 407-3-581.90 |
| Статус: | не определен законодательством |
| Название рус.: | Альбом 1. Пояснительная записка. Электротехническая часть. Архитектурно-строительные решения. Строительные решения |
| Дата добавления в базу: | 01.09.2013 |
| Дата актуализации: | 01.01.2021 |
| Дата введения: | 15.08.1990 |
| Дата окончания срока действия: | 30.06.2003 |
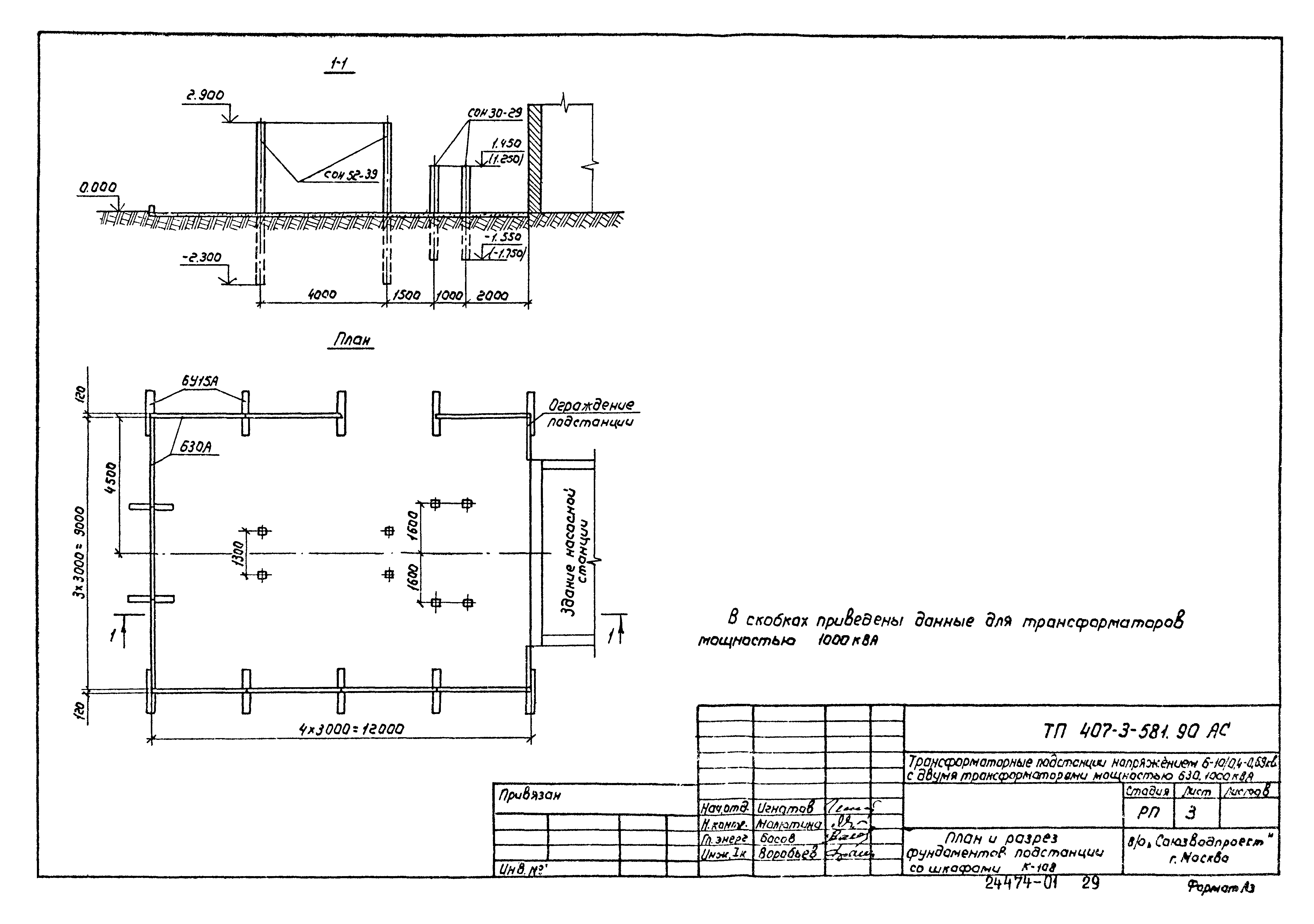
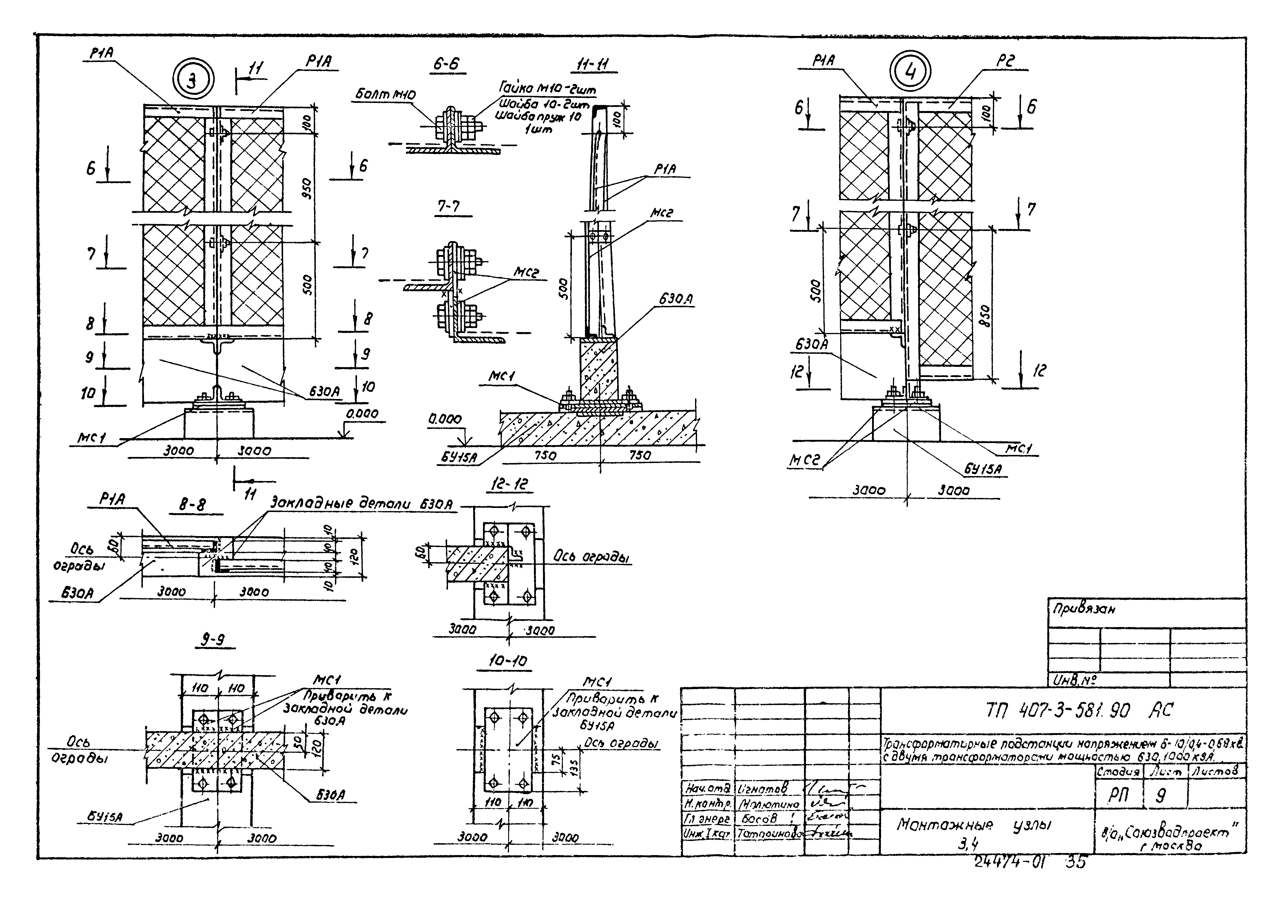
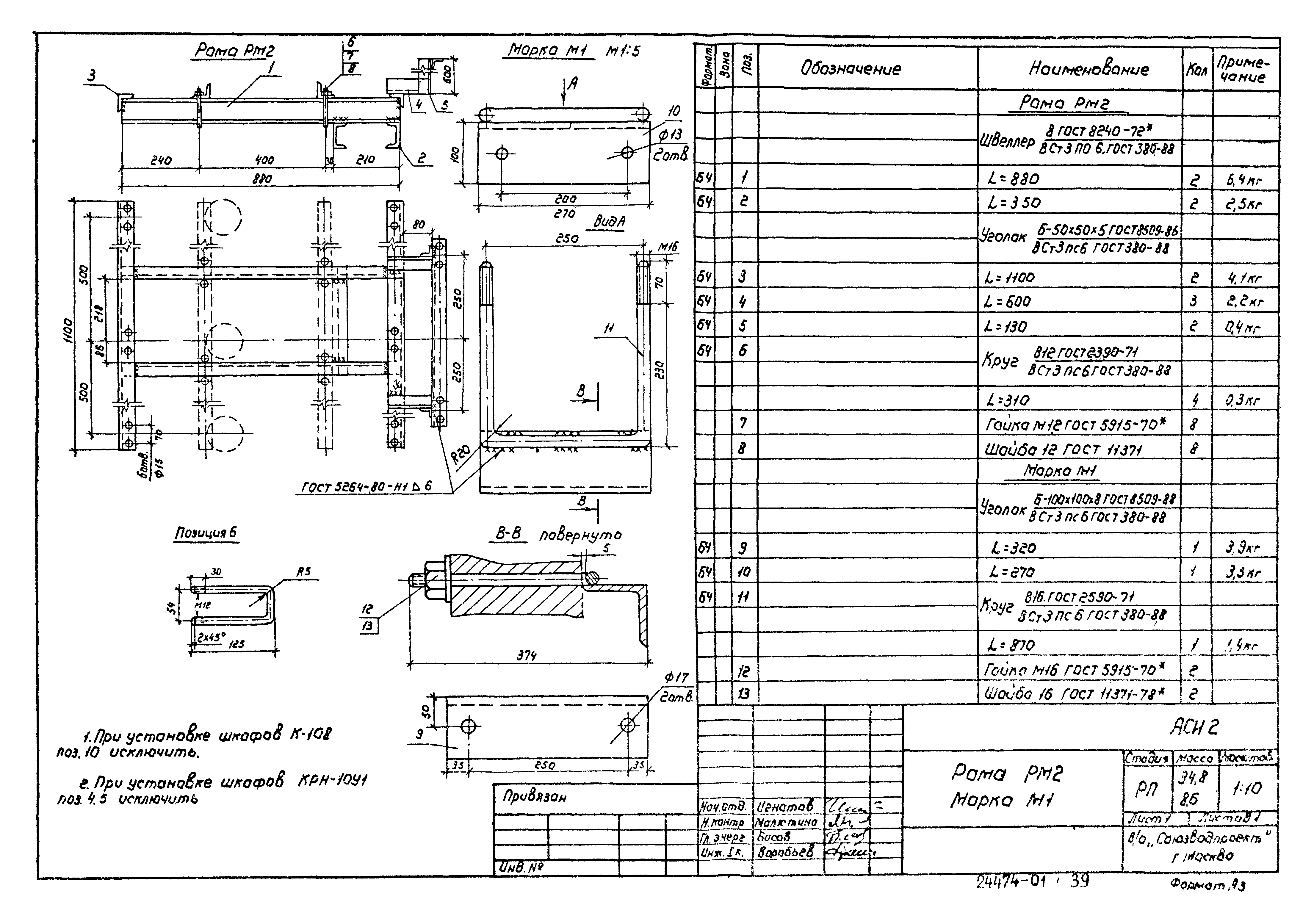
| Оглавление: | Пояснительная записка Электротехническая часть Общие данные Схема электрических соединений подстанции со шкафами КРН-10У1. Схема блокировки План и разрез подстанции со шкафами КРН-10У1 Опросный лист на КРН-10У1 Схема электрических соединений подстанции со шкафами К-10В. Схема блокировки План и разрез подстанции со шкафами К-108 Опросный лист на К-108 Ввод низкого напряжения в здание насосной станции. План и разрез Установка шкафов КРН-10У1 Установка шкафа К-108 Установка разъединителя РЛНД1-10/400У1 Установка проходных изоляторов в шкафу КРН-10У1 Плита с проходными изоляторами ИП-10 Установка кронштейна К1 Установка кронштейна К2 Установка кронштейна К3 Раскладка кабелей, освещение и заземляющее устройство подстанции со шкафами КРН-10У1 Раскладка кабелей, освещение и заземляющее устройство подстанции со шкафами К-108 Кабельные журналы Архитектурно-строительные решения Общие данные План и разрез фундаментов подстанции со шкафами КРН-10У1 План и разрез фундаментов подстанции со шкафами К-108 Фундамент под трансформаторы мощностью 630, 1000 кВА Фундамент под шкаф К-108 Опора под разъединитель РЛНД1-10/400У1 Ограждение подстанции Монтажные узлы 1, 2 Монтажные узлы 3, 4 Панель сетчатая рядовая Р1. Панель сетчатая съемная Р1А Панель сетчатая с калиткой Р2 Строительные изделия Рама РМ1 Рама РМ2. Марка М1 Рама РМ3. Рама РМ4 Рама РМ5 Рама РМ6 Марки М2, М3, М4 Кронштейн К1 Кронштейн К2 Кронштейн К3. Рама РМ7 Изделия соединительные МС1, МС2 |
| Разработан: | Союзводпроект Минводстроя СССР |
| Утверждён: | 15.08.1990 Союзводпроект (830) |
| Издан: | ЦИТП Госстроя СССР (CITP, Gosstroy (USSR) 1990 г. ) |















































