Скачать Типовой проект 501-193 Часть IV. Производство работДата актуализации: 01.01.2021
|
| Обозначение: | Типовой проект 501-193 |
| Обозначение англ: | 501-193 |
| Статус: | действует |
| Название рус.: | Часть IV. Производство работ |
| Дата добавления в базу: | 01.09.2013 |
| Дата актуализации: | 01.01.2021 |
| Дата введения: | 15.02.1972 |
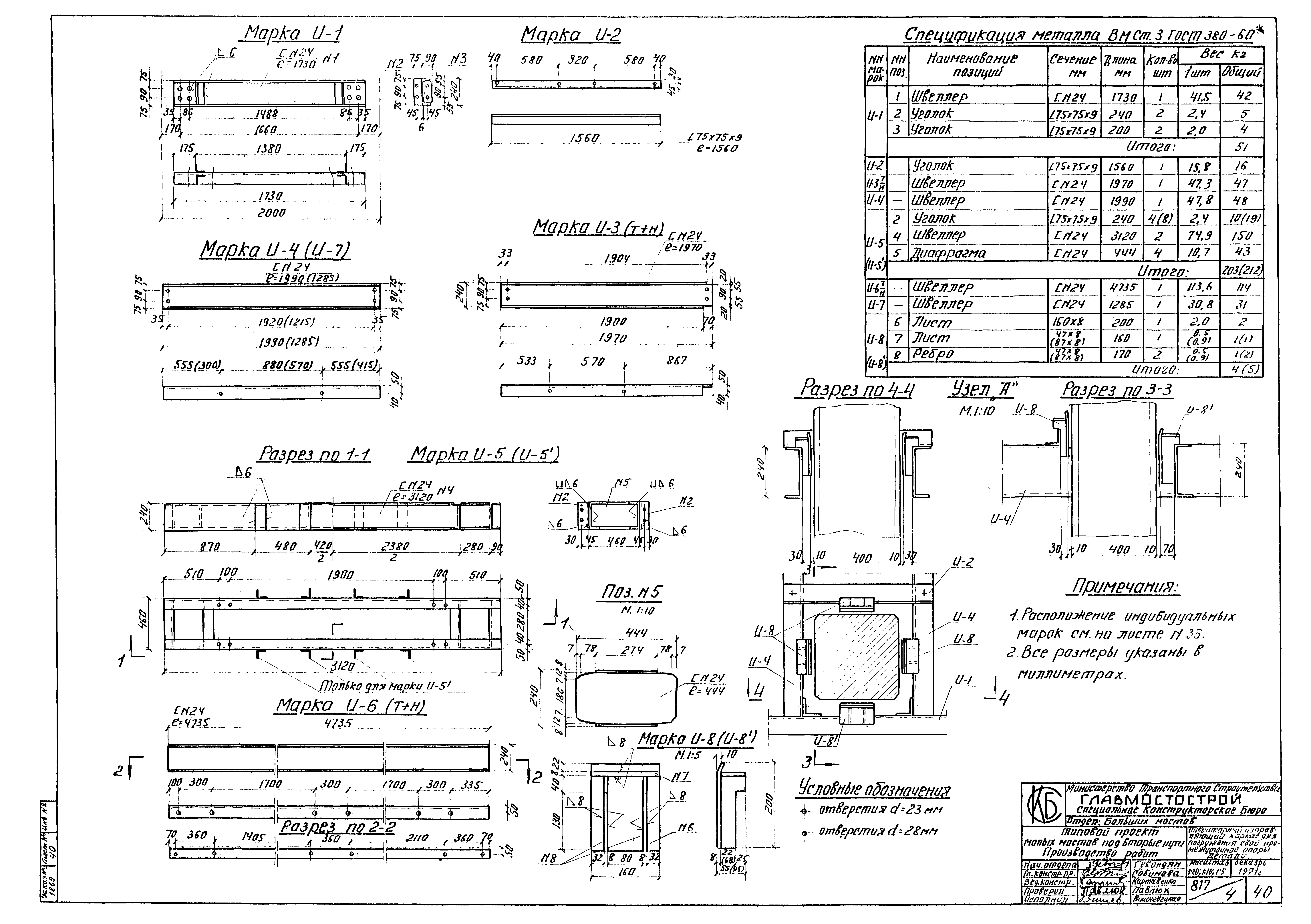
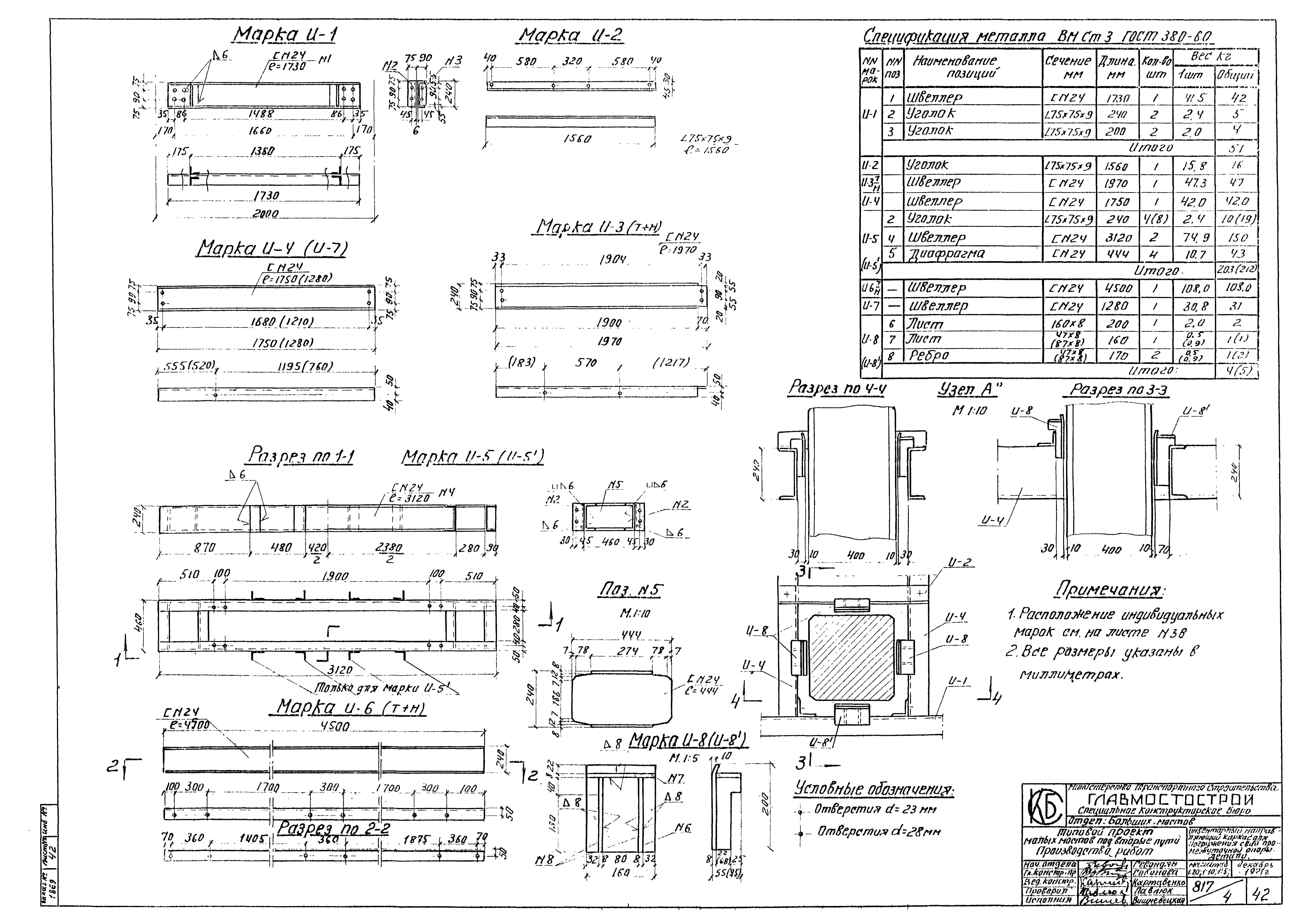
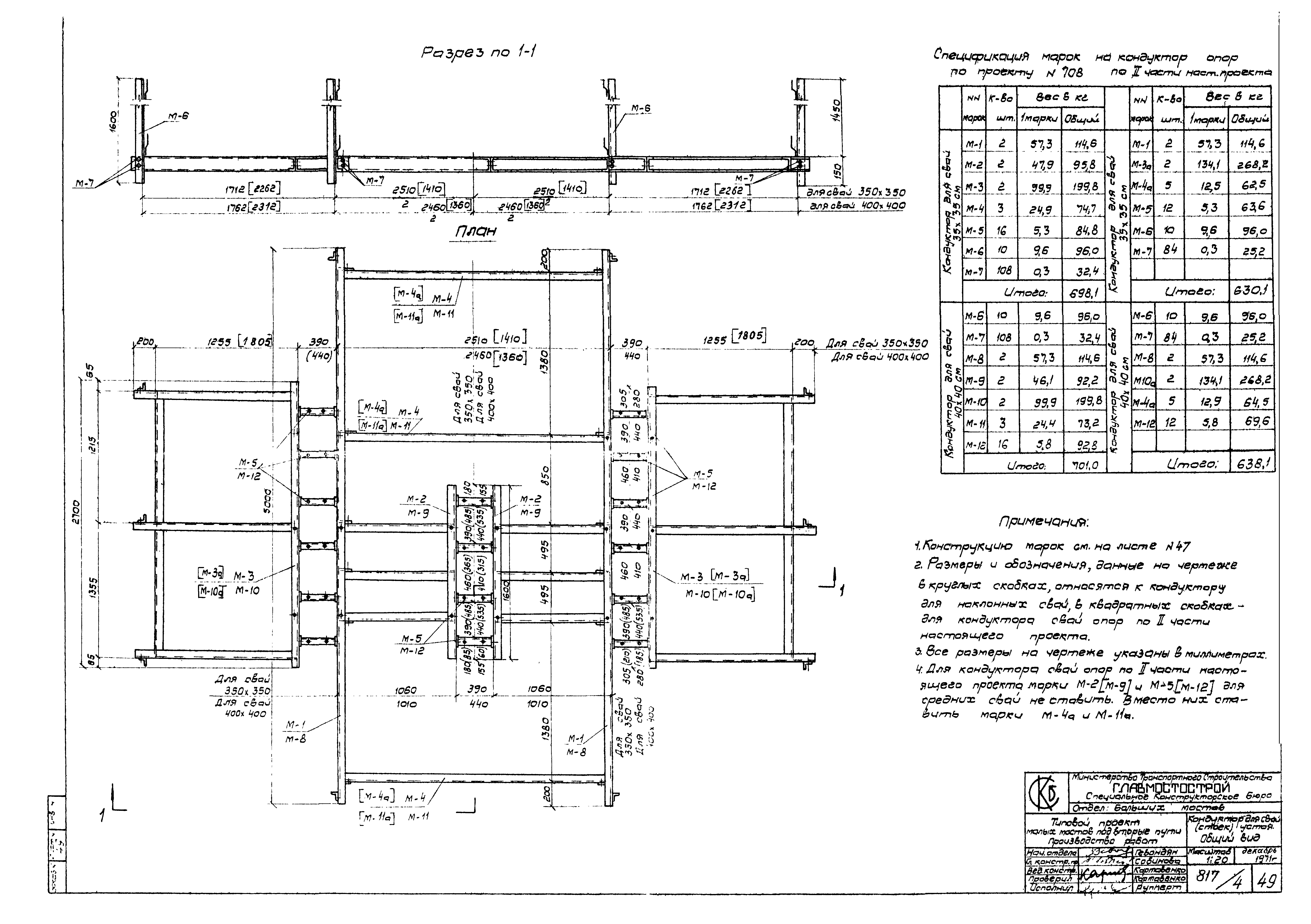
| Оглавление: | Состав проекта Пояснительная записка Трубы Пристройка трубы Промежуточные свайные опоры Погружение свай вибропогружателем Монтаж насадок Свайные устои Погружение вертикальных свай вибропогружателем Погружение вертикальных свай молотом Погружение наклонных свай Монтаж насадок Опоры на естественном основании Устройство крепления насыпи Монтаж фундаментов Монтаж стоек и насадок Устои с параллельными откосными крыльями Устройство крепления насыпи Монтаж фундаментов и стеновых блоков Монтаж шкафных блоков Бетонирование карниза Монтаж пролетных строений Длиной 2,95 - 6,0 м автокраном Длиной 2,95 - 6,0 м одним ж/д краном К-501 Длиной 9,3; 11,5 и 13,5 м двумя ж/д кранами Консольным краном Графики производства работ Пример: пристройка трубы Пример: сооружение моста со свайными опорами Пример: сооружение моста с опорами на естественном основании Пример: постройка моста на устоях с параллельными откосными крыльями Крепление насыпей и котлованов При пристройке труб и свайных опор При постройке устоев с параллельными откосными крыльями При постройке опор на естественном основании Конструктивные чертежи Плоский направляющий каркас для погружения свай. Общий вид Плоский направляющий каркас для погружения свай. Детали Инвентарный направляющий каркас для погружения свай промежуточных опор. Общий вид Инвентарный направляющий каркас для погружения свай промежуточных опор. Детали Инвентарный направляющий каркас для погружения свай промежуточных опор. Общий вид Инвентарный направляющий каркас для погружения свай промежуточных опор. Детали Инвентарный направляющий каркас для погружения свай устоев. Общий вид Инвентарный направляющий каркас для погружения свай устоев. Детали Инвентарный направляющий каркас для погружения свай устоев. Общий вид Инвентарный направляющий каркас для погружения свай устоев. Детали Кондуктор для свай (стоек) промежуточной опоры. Общий вид Кондуктор для свай (стоек) промежуточной опоры. Детали Кондуктор для свай (стоек) устоев. Общий вид Кондуктор для свай (стоек) устоев. Детали |
| Разработан: | Ленгипротрансмост |
| Утверждён: | 15.02.1972 МПС (Ministry of Railroads П-4230) |
















































