Скачать Типовой проект 902-2-444.87 Альбом II. Технологические решения, отопление и вентиляция. Внутренний водопровод и канализация. Архитектурно-строительные решения. Конструкции железобетонные и металлические. Генплан

Дата актуализации: 01.01.2021

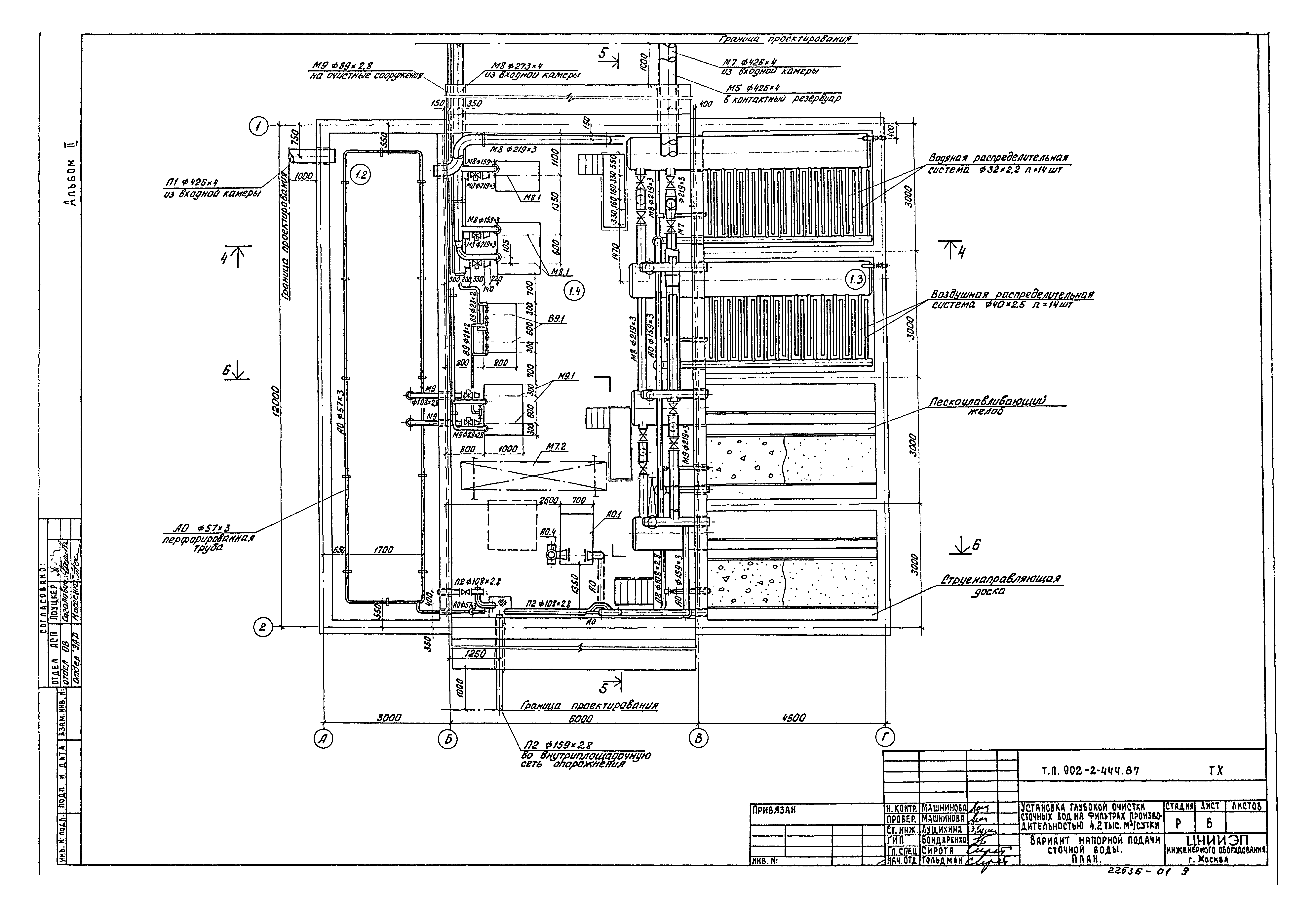
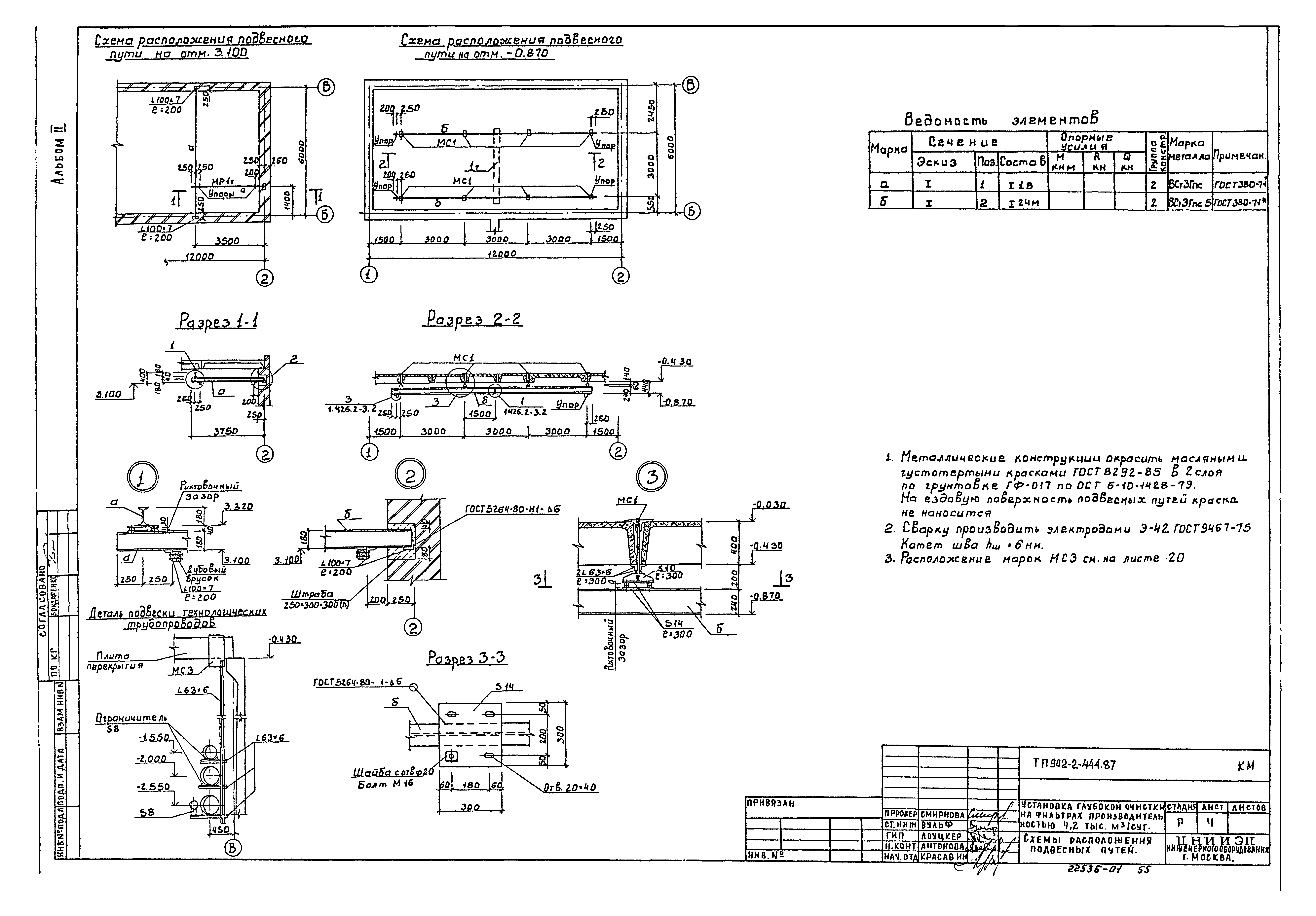
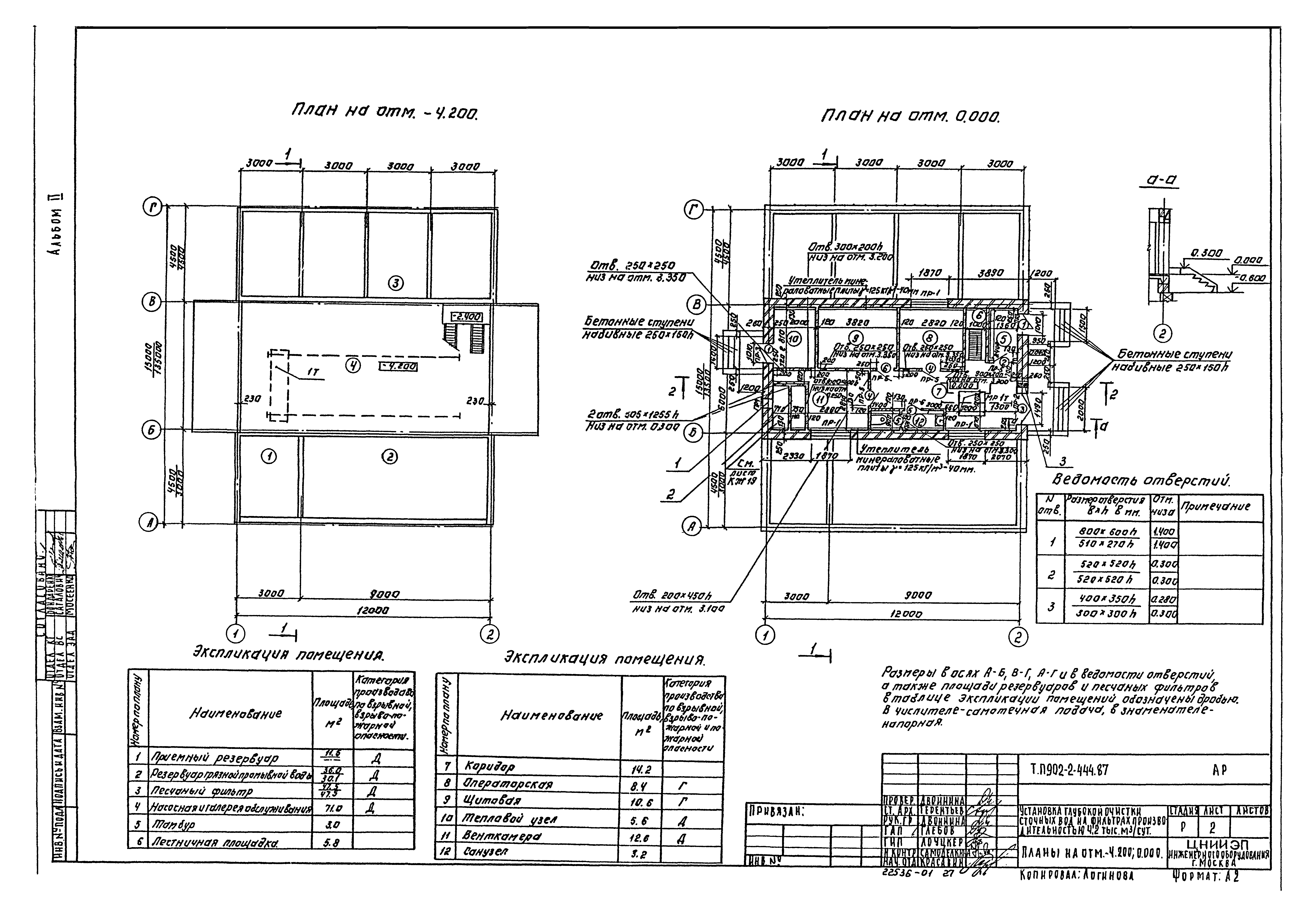
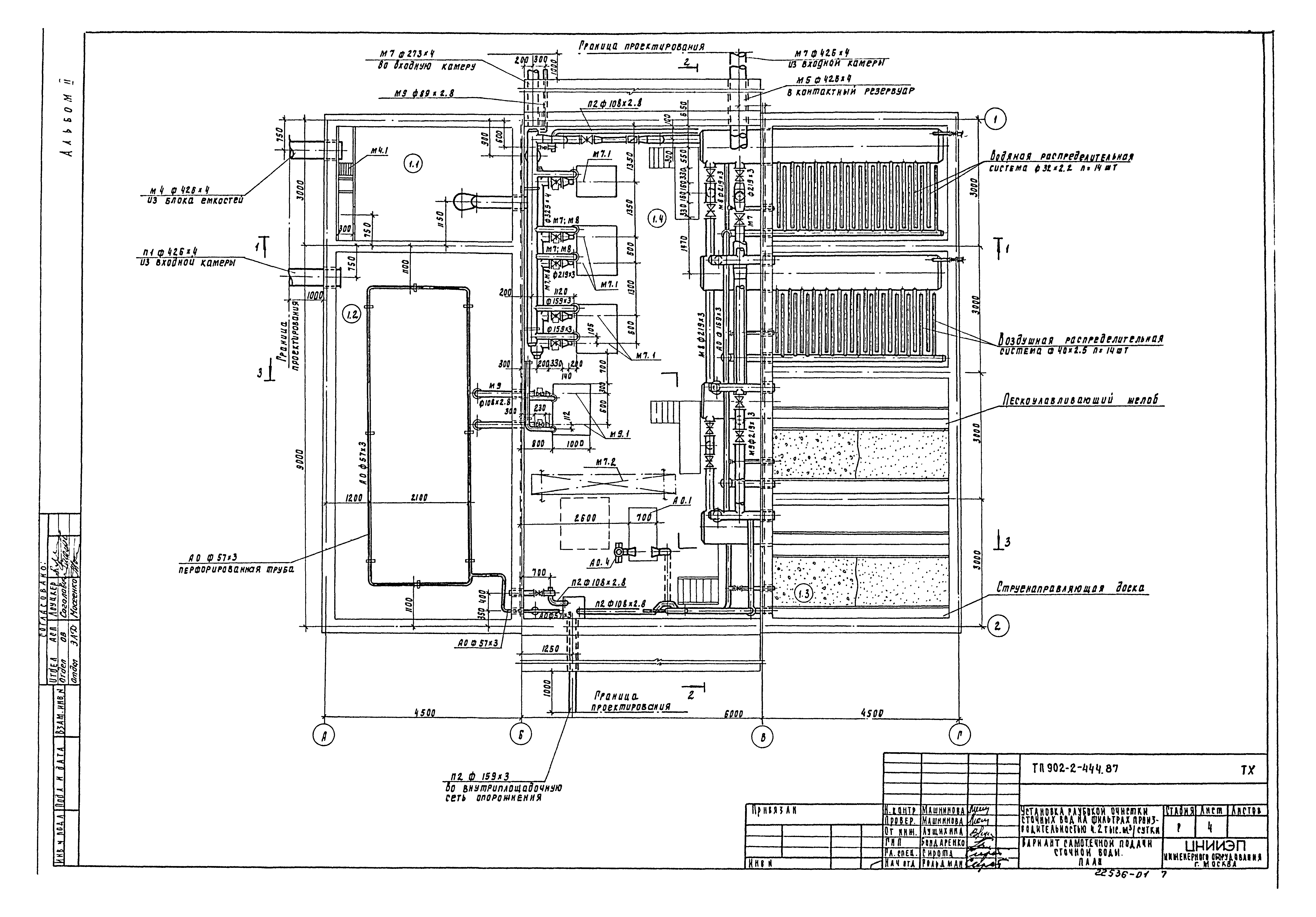
Типовой проект 902-2-444.87

Альбом II. Технологические решения, отопление и вентиляция. Внутренний водопровод и канализация. Архитектурно-строительные решения. Конструкции железобетонные и металлические. Генплан

Обозначение: Типовой проект 902-2-444.87
Обозначение англ: 902-2-444.87
Статус:не определен законодательством
Название рус.:Альбом II. Технологические решения, отопление и вентиляция. Внутренний водопровод и канализация. Архитектурно-строительные решения. Конструкции железобетонные и металлические. Генплан
Дата добавления в базу:01.01.2018
Дата актуализации:01.01.2021
Дата введения:04.09.1987
Дата окончания срока действия:30.06.2003
Разработан: ЦНИИЭП инженерного оборудования
Утверждён:04.09.1987 Госгражданстрой (Gosgrazhdanstroy 277)
Издан: ЦИТП Госстроя СССР (CITP, Gosstroy (USSR) 1988 г. )
Заменяет собой:
  • Типовой проект 902-2-326
Нормативные ссылки:
Типовой проект 902-2-444.87Типовой проект 902-2-444.87Типовой проект 902-2-444.87Типовой проект 902-2-444.87Типовой проект 902-2-444.87Типовой проект 902-2-444.87Типовой проект 902-2-444.87Типовой проект 902-2-444.87Типовой проект 902-2-444.87Типовой проект 902-2-444.87Типовой проект 902-2-444.87Типовой проект 902-2-444.87Типовой проект 902-2-444.87Типовой проект 902-2-444.87Типовой проект 902-2-444.87Типовой проект 902-2-444.87Типовой проект 902-2-444.87Типовой проект 902-2-444.87Типовой проект 902-2-444.87Типовой проект 902-2-444.87Типовой проект 902-2-444.87Типовой проект 902-2-444.87Типовой проект 902-2-444.87Типовой проект 902-2-444.87Типовой проект 902-2-444.87Типовой проект 902-2-444.87Типовой проект 902-2-444.87Типовой проект 902-2-444.87Типовой проект 902-2-444.87Типовой проект 902-2-444.87Типовой проект 902-2-444.87Типовой проект 902-2-444.87Типовой проект 902-2-444.87Типовой проект 902-2-444.87Типовой проект 902-2-444.87Типовой проект 902-2-444.87Типовой проект 902-2-444.87Типовой проект 902-2-444.87Типовой проект 902-2-444.87Типовой проект 902-2-444.87Типовой проект 902-2-444.87Типовой проект 902-2-444.87Типовой проект 902-2-444.87Типовой проект 902-2-444.87Типовой проект 902-2-444.87Типовой проект 902-2-444.87Типовой проект 902-2-444.87Типовой проект 902-2-444.87Типовой проект 902-2-444.87Типовой проект 902-2-444.87Типовой проект 902-2-444.87Типовой проект 902-2-444.87Типовой проект 902-2-444.87Типовой проект 902-2-444.87Типовой проект 902-2-444.87Типовой проект 902-2-444.87Типовой проект 902-2-444.87Типовой проект 902-2-444.87Типовой проект 902-2-444.87Типовой проект 902-2-444.87Типовой проект 902-2-444.87