Скачать Типовой проект 407-3-580.90 Альбом 1. Пояснительная записка. Электротехническая часть. Архитектурно-строительные решения. Строительные изделияДата актуализации: 01.01.2021
|
| Обозначение: | Типовой проект 407-3-580.90 |
| Обозначение англ: | 407-3-580.90 |
| Статус: | не определен законодательством |
| Название рус.: | Альбом 1. Пояснительная записка. Электротехническая часть. Архитектурно-строительные решения. Строительные изделия |
| Дата добавления в базу: | 01.09.2013 |
| Дата актуализации: | 01.01.2021 |
| Дата введения: | 15.08.1990 |
| Дата окончания срока действия: | 30.06.2003 |
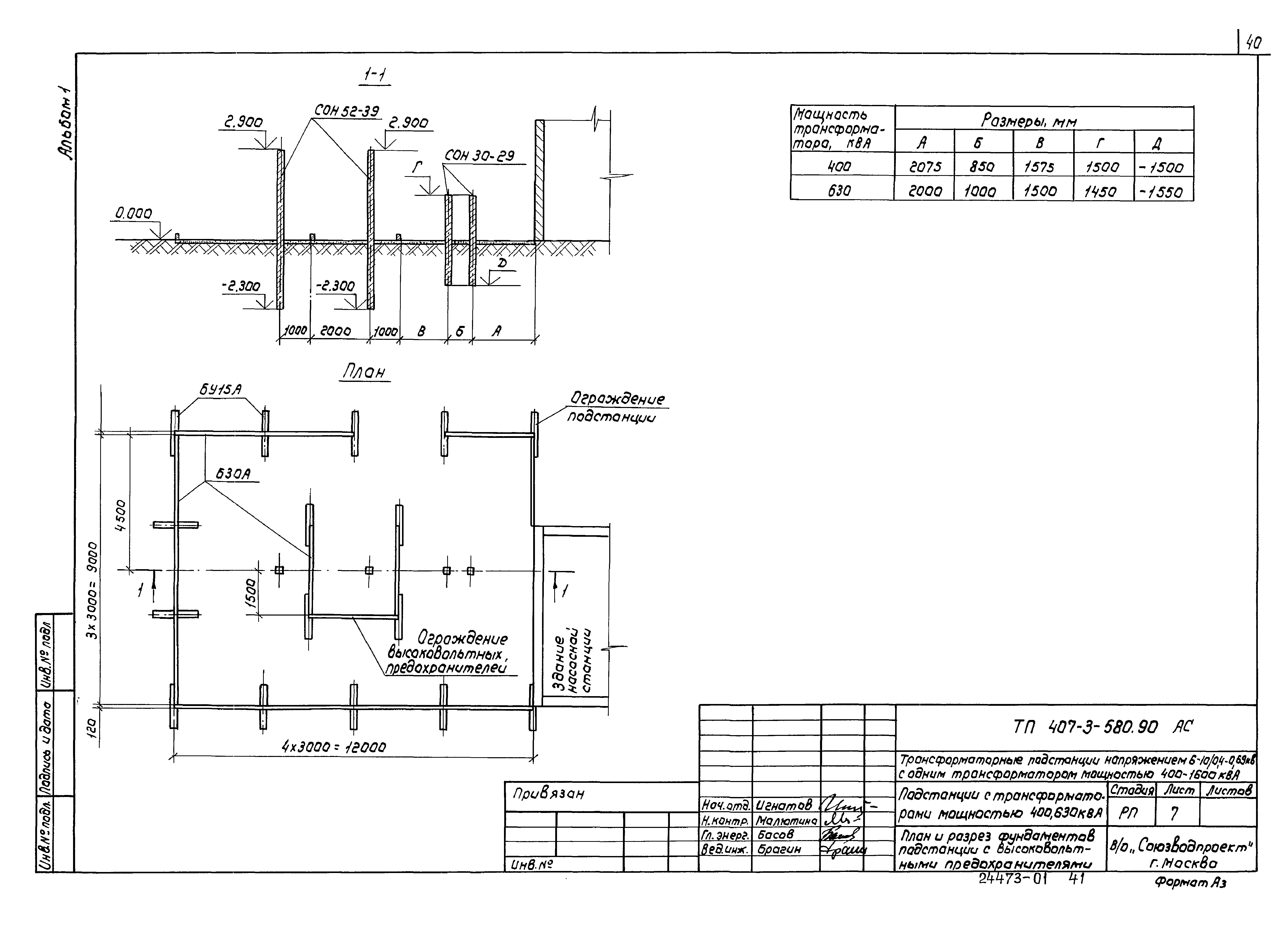
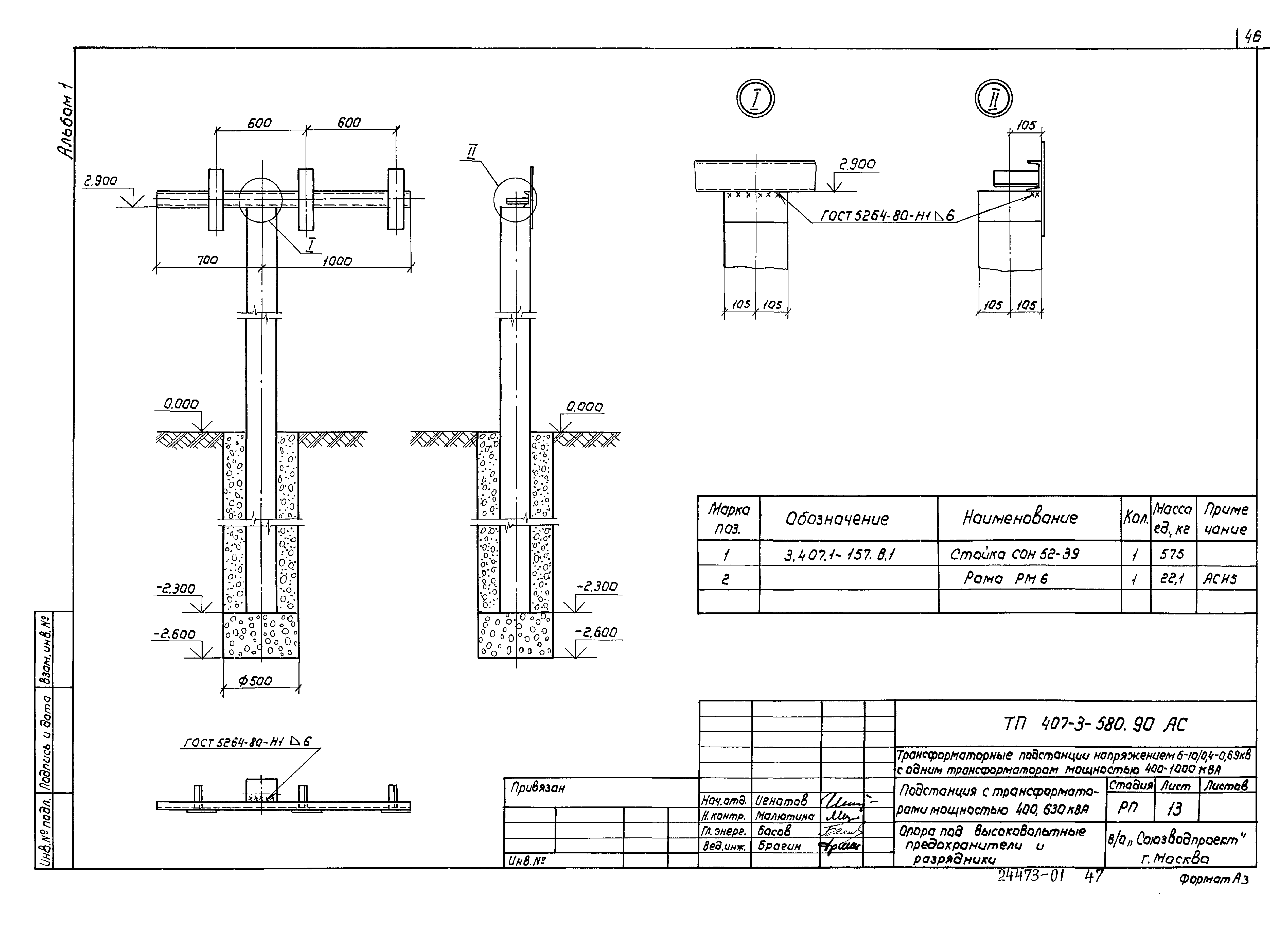
| Оглавление: | Пояснительная записка Электротехническая часть Общие данные Схема электрических соединений подстанции со шкафами КРН-10У1. Схема блокировки План и разрез подстанции со шкафами КРН-10У1. Подстанции с трансформаторами мощностью 400 - 1000 кВА План и разрез подстанции со шкафами КРН-10У1. Подстанция с трансформатором мощностью 1600 кВА Опросный лист на КРН-10У1 Схема электрических соединений подстанции со шкафом К-108. Схема блокировки План и разрез подстанции со шкафом К-108. Подстанции с трансформаторами мощностью 400 - 1000 кВА План и разрез подстанции со шкафом К-108. Подстанция с трансформатором мощностью 1600 кВА Опросный лист на К-108 Схема электрических соединений подстанции с высоковольтными предохранителями. Схема блокировки План и разрез подстанции с высоковольтными предохранителями. Подстанции с трансформаторами мощностью 400, 630 кВА Ввод низкого напряжения в здание насосной станции. План и разрез Установка шкафов КРН-10У1 Установка шкафа К-108 Установка разъединителя РЛНД.1-10/400У1 Установка высоковольтных предохранителей и разрядников. Подстанции с трансформаторами мощностью 400, 630 кВА Установка проходных изоляторов в шкафу КРН-10У1 Плита с проходными изоляторами ИП-10 Установка кронштейна К1 Установка кронштейна К2 Установка кронштейна К3 Раскладка кабелей, освещение и заземляющее устройство подстанции со шкафами КРН-10У1 Раскладка кабелей, освещение и заземляющее устройство подстанции со шкафом К-108 Раскладка кабелей, освещение и заземляющее устройство подстанции с высоковольтными предохранителями Кабельные журналы Архитектурно-строительные решения Общие данные План и разрез фундаментов подстанции со шкафами КРН-10У1. Подстанции с трансформаторами мощностью 400 - 1000 кВА План и разрез фундаментов подстанции со шкафами КРН-10У1. Подстанция с трансформатором мощностью 1600 кВА План и разрез подстанции со шкафом К-108. Подстанции с трансформаторами мощностью 400 - 1000 кВА План и разрез подстанции со шкафом К-108. Подстанция с трансформатором мощностью 1600 кВА План и разрез подстанции с высоковольтными предохранителями. Подстанции с трансформаторами мощностью 400, 630 кВА Фундамент под трансформатор мощностью 400 кВА Фундамент под трансформатор мощностью 630, 1000 кВА Фундамент под трансформатор мощностью 1600 кВА Фундамент под шкаф К-108 Опора под разъединитель РЛНД.1-10/400У1 Опора под высоковольтные предохранители и разрядники. Подстанции с трансформаторами мощностью 400, 630 кВА Колодец-маслосборник Ограждение подстанции Ограждение высоковольтных предохранителей Монтажные узлы 1, 2 Монтажные узлы 3, 4 Панель сетчатая рядовая Р1. Панель сетчатая съемная Р1А Панель сетчатая с калиткой Р2 Установка механических блокировочных замков на калитке ограждения высоковольтных предохранителей Строительные изделия Рама РМ1 Рама РМ2 Рама РМ3. Марка М1 Рама РМ4. Рама РМ5 Рама РМ6 Рама РМ7 Рама РМ8 Марки М2, М3, М4 Кронштейн К1 Кронштейн К2 Кронштейн К3. Рама РМ9 Изделия соединительные МС1, МС2 |
| Разработан: | Союзводпроект Минводстроя СССР |
| Утверждён: | 15.08.1990 Союзводпроект (830) |
| Издан: | АПП ЦИТП (1991 г. ) |


































































