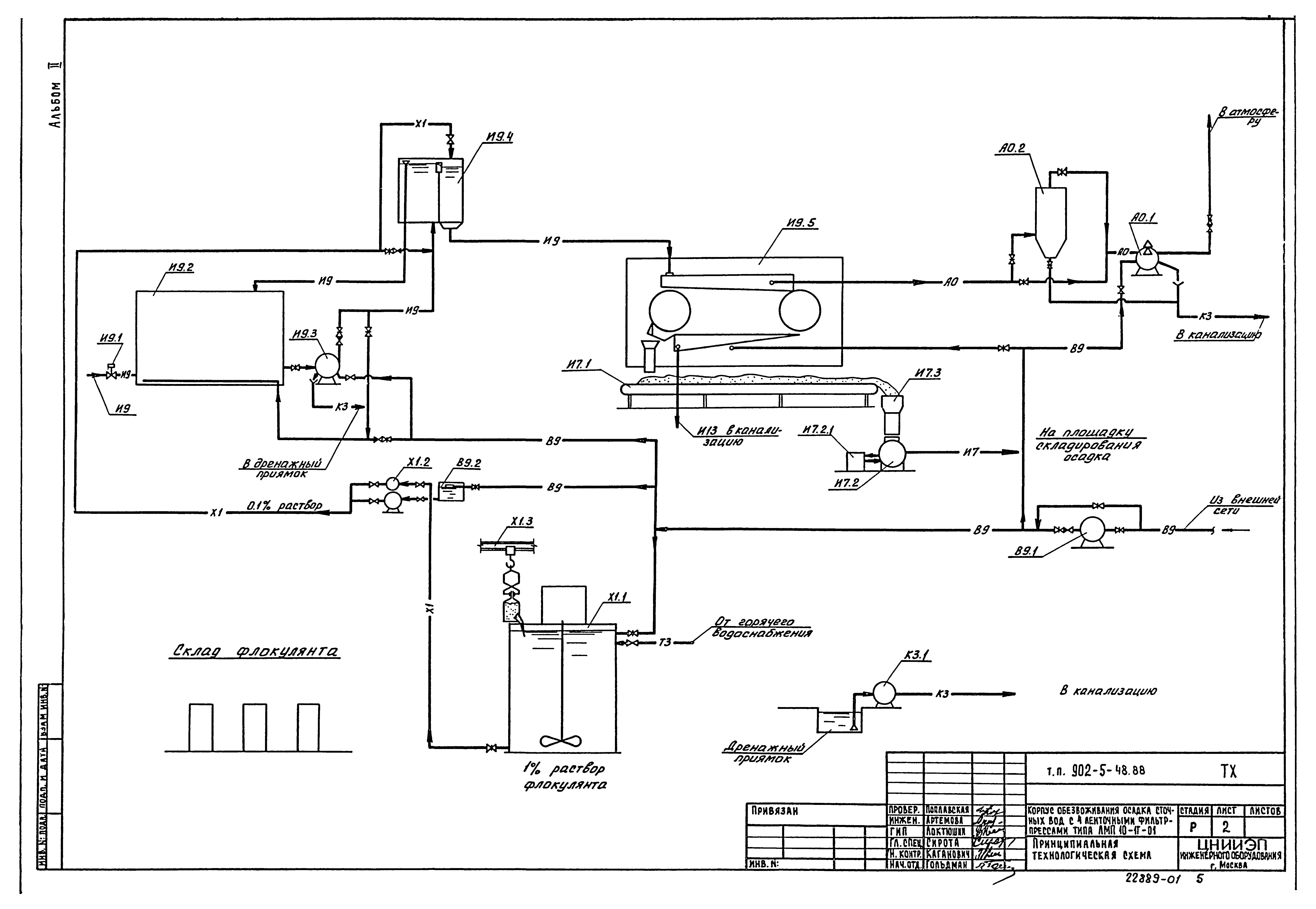
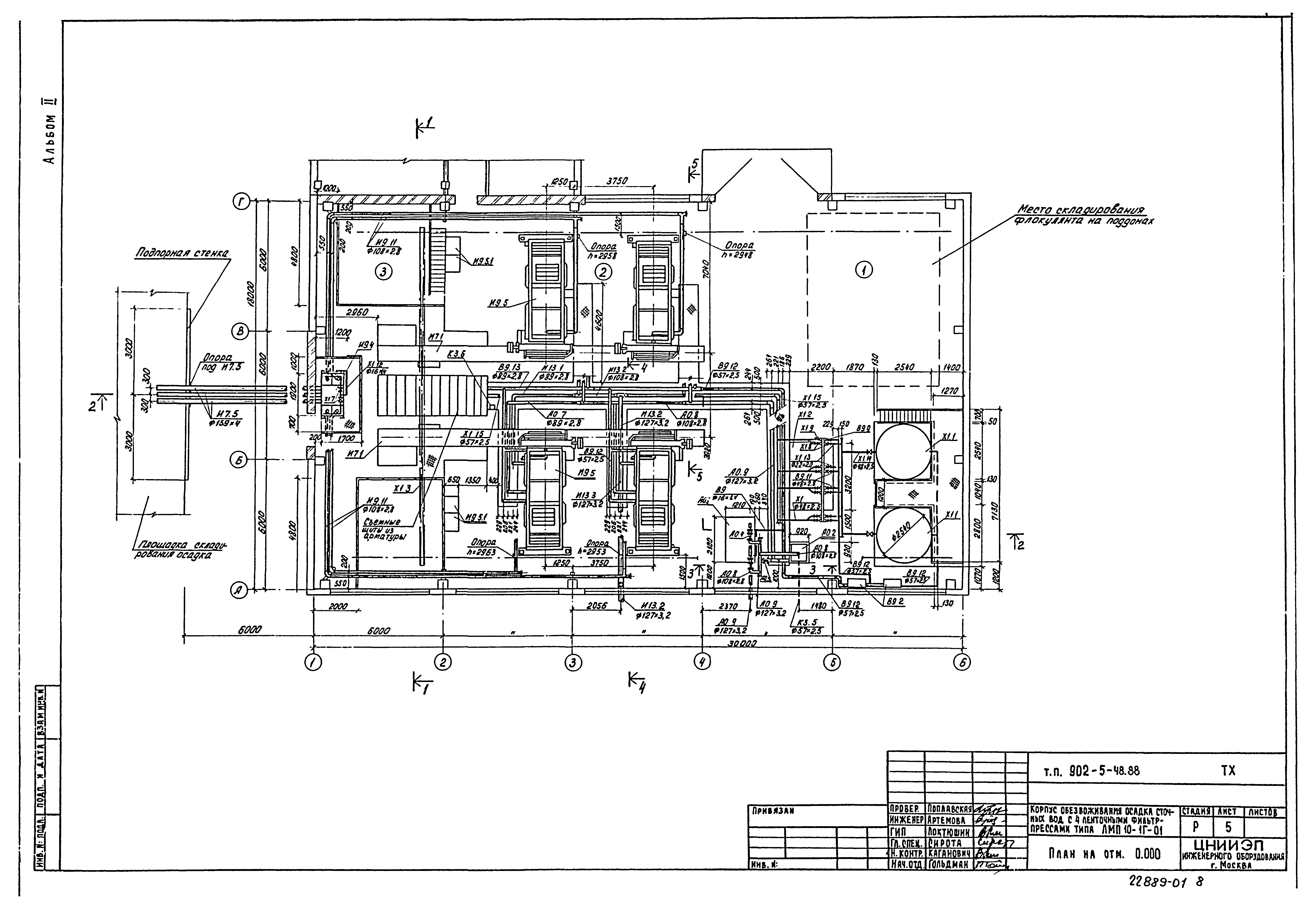
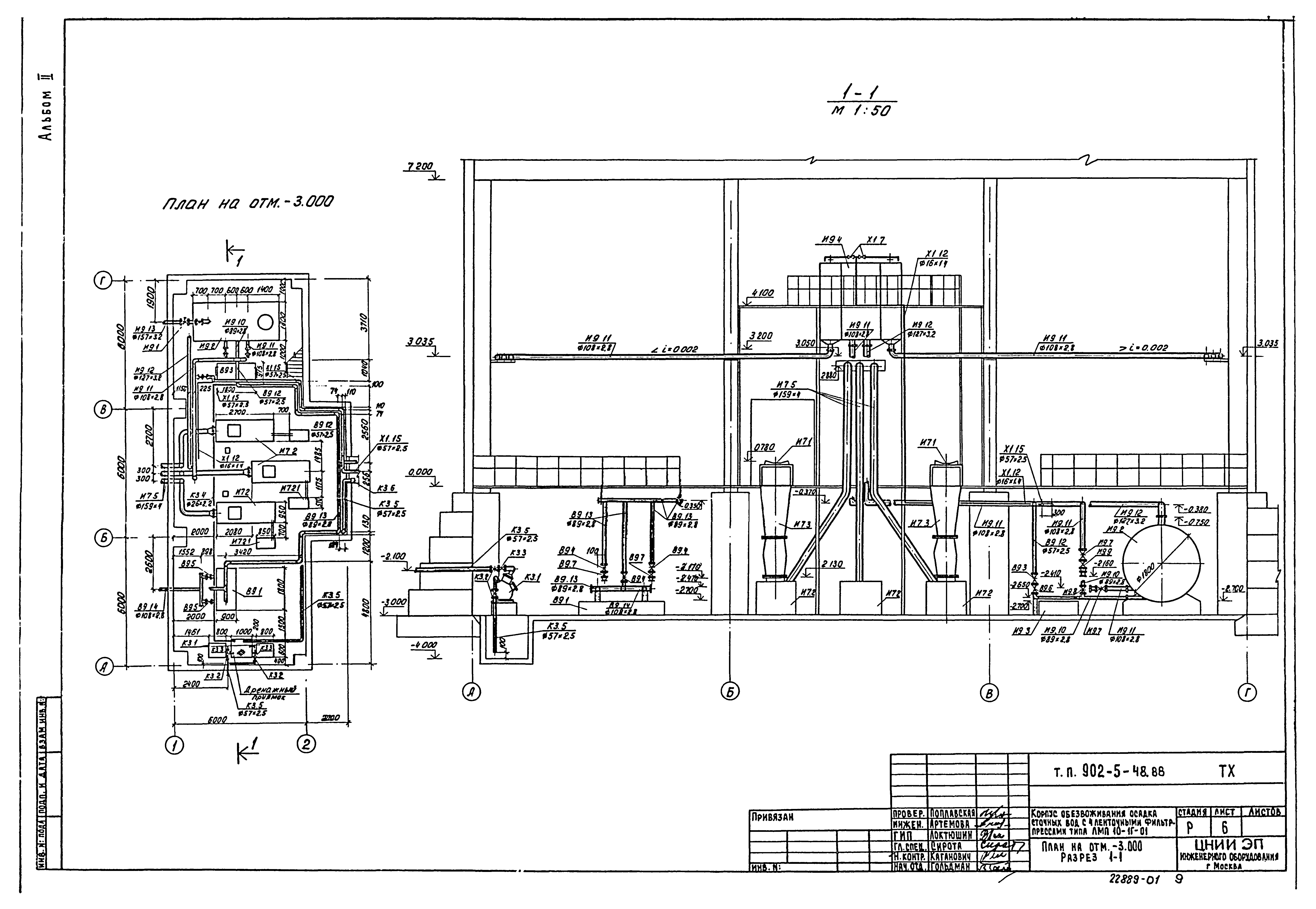
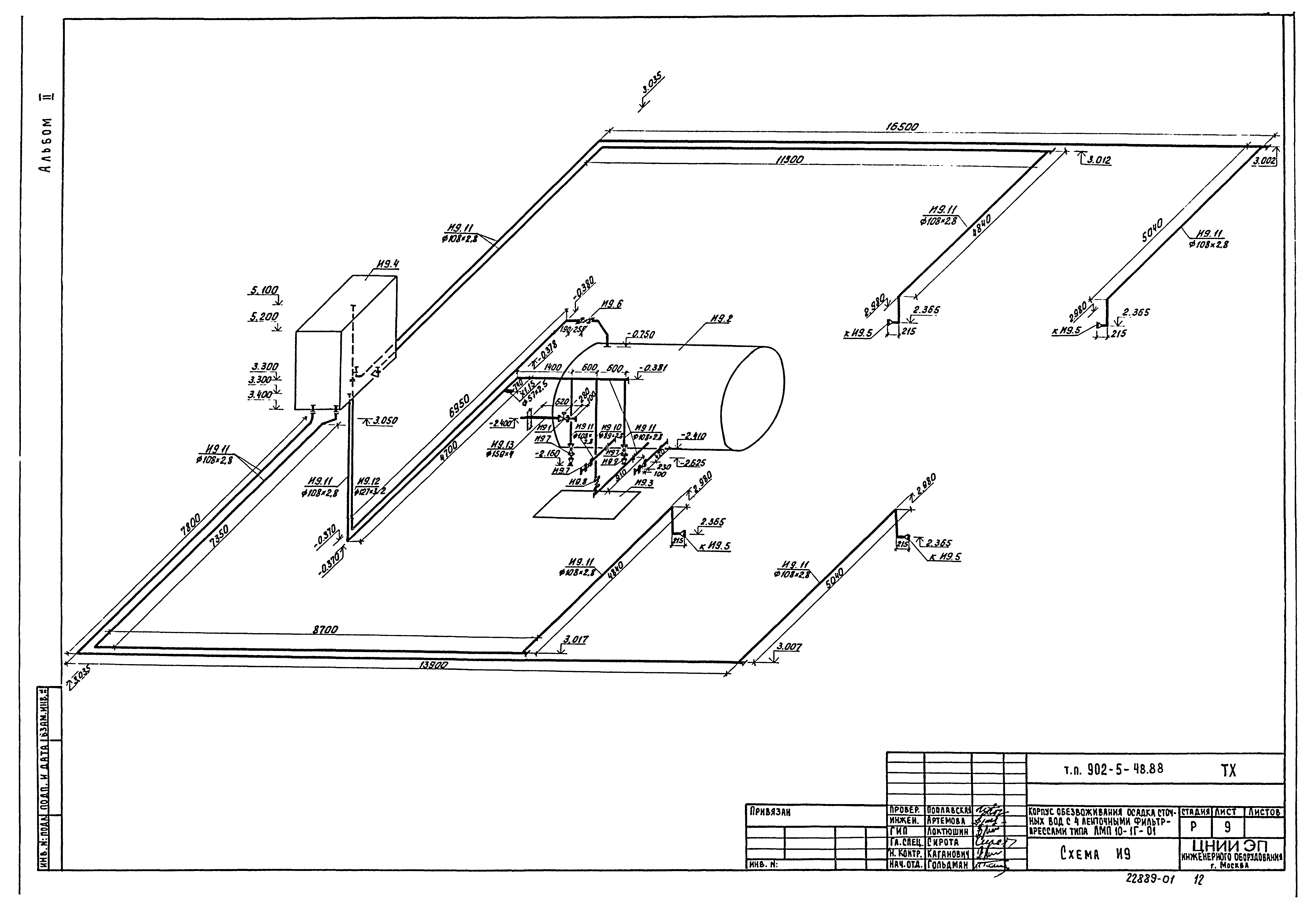
Скачать Типовой проект 902-5-48.88 Альбом II. Технологические и санитарно-технические решения. Нестандартизированное оборудованиеДата актуализации: 01.01.2021
|
| Обозначение: | Типовой проект 902-5-48.88 |
| Обозначение англ: | 902-5-48.88 |
| Статус: | не определен законодательством |
| Название рус.: | Альбом II. Технологические и санитарно-технические решения. Нестандартизированное оборудование |
| Дата добавления в базу: | 12.02.2016 |
| Дата актуализации: | 01.01.2021 |
| Дата введения: | 01.06.1988 |
| Дата окончания срока действия: | 30.06.2003 |
| Разработан: | ЦНИИЭП инженерного оборудования |
| Утверждён: | 03.11.1986 Госгражданстрой (Gosgrazhdanstroy 361) |













































