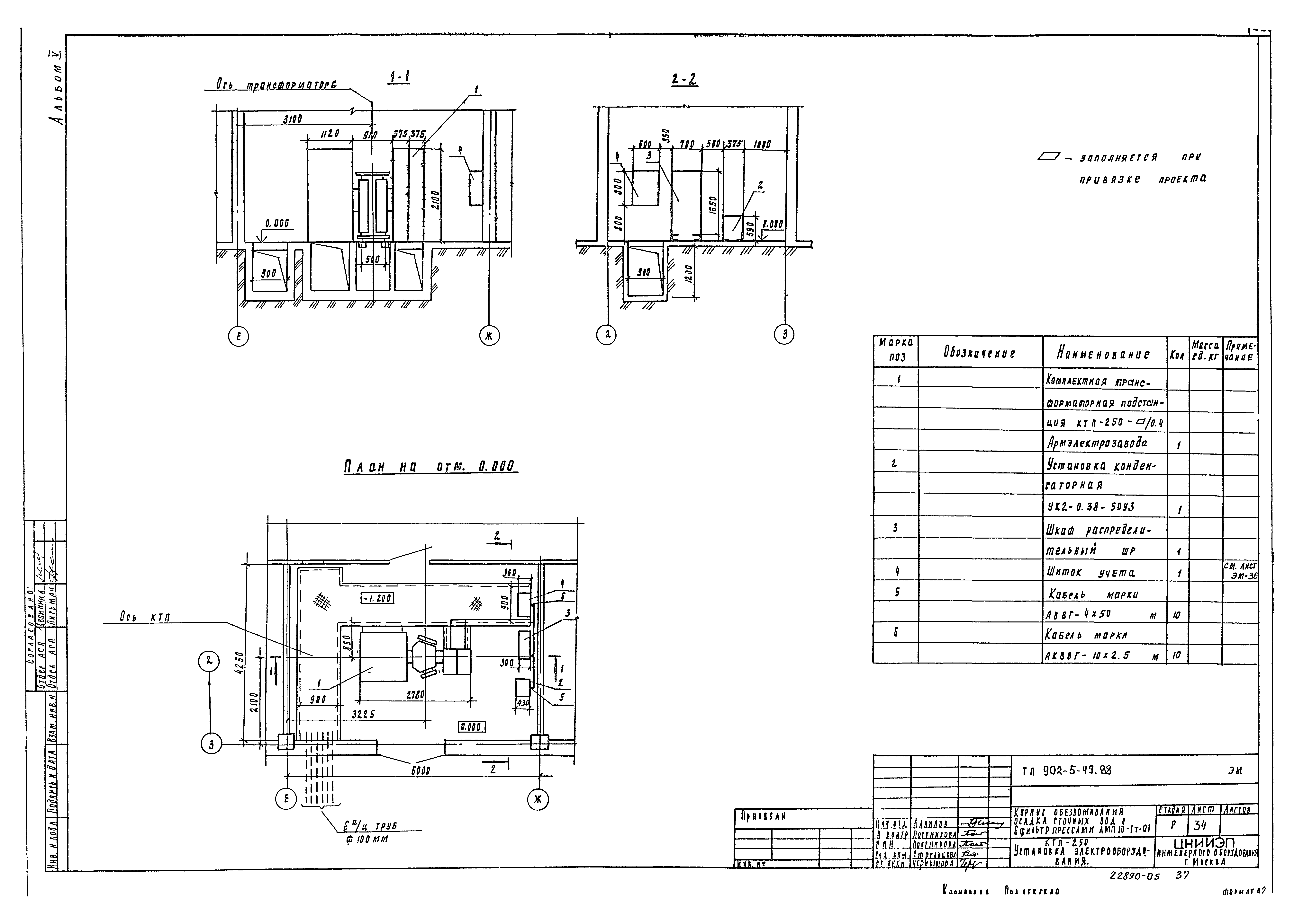
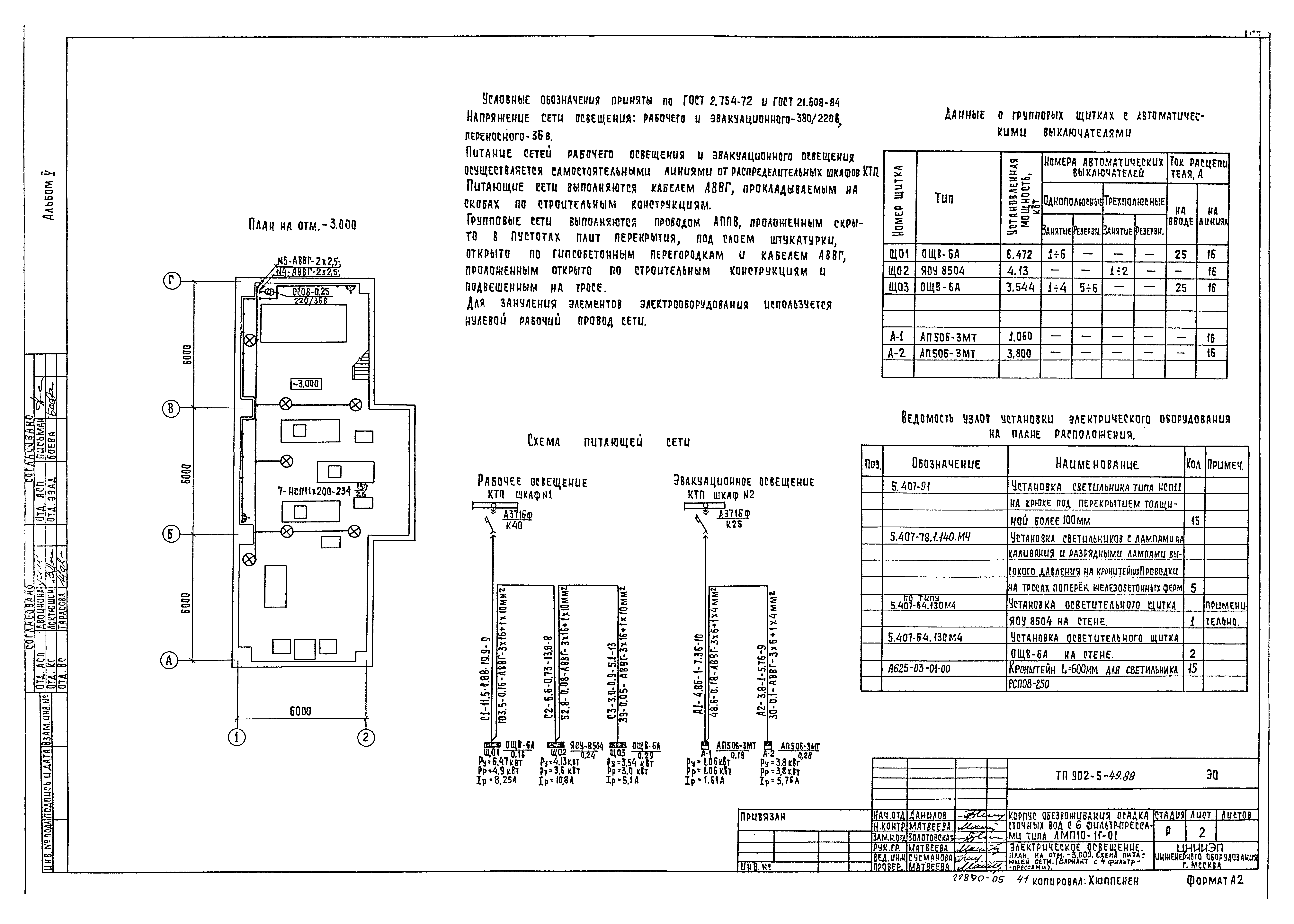
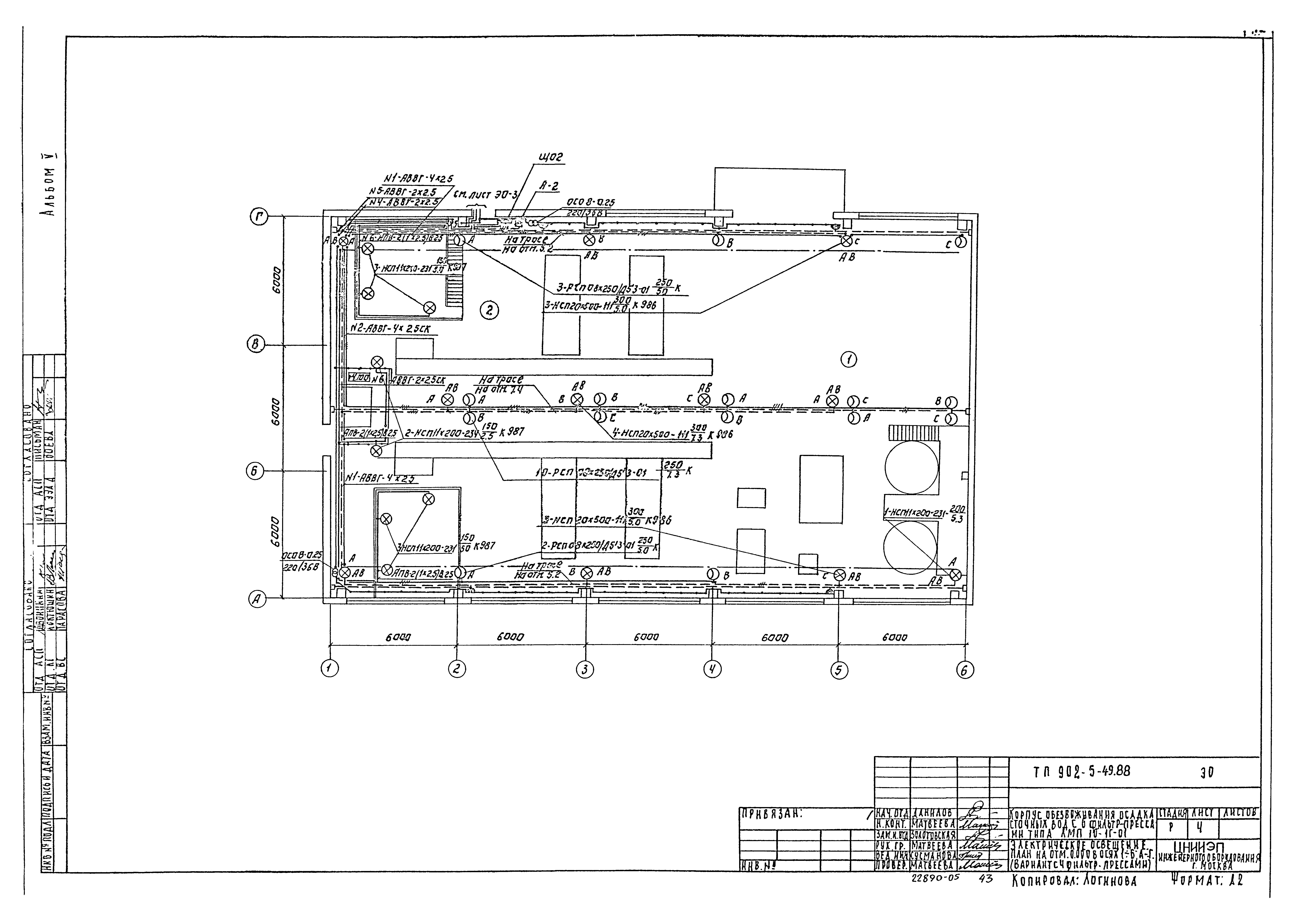
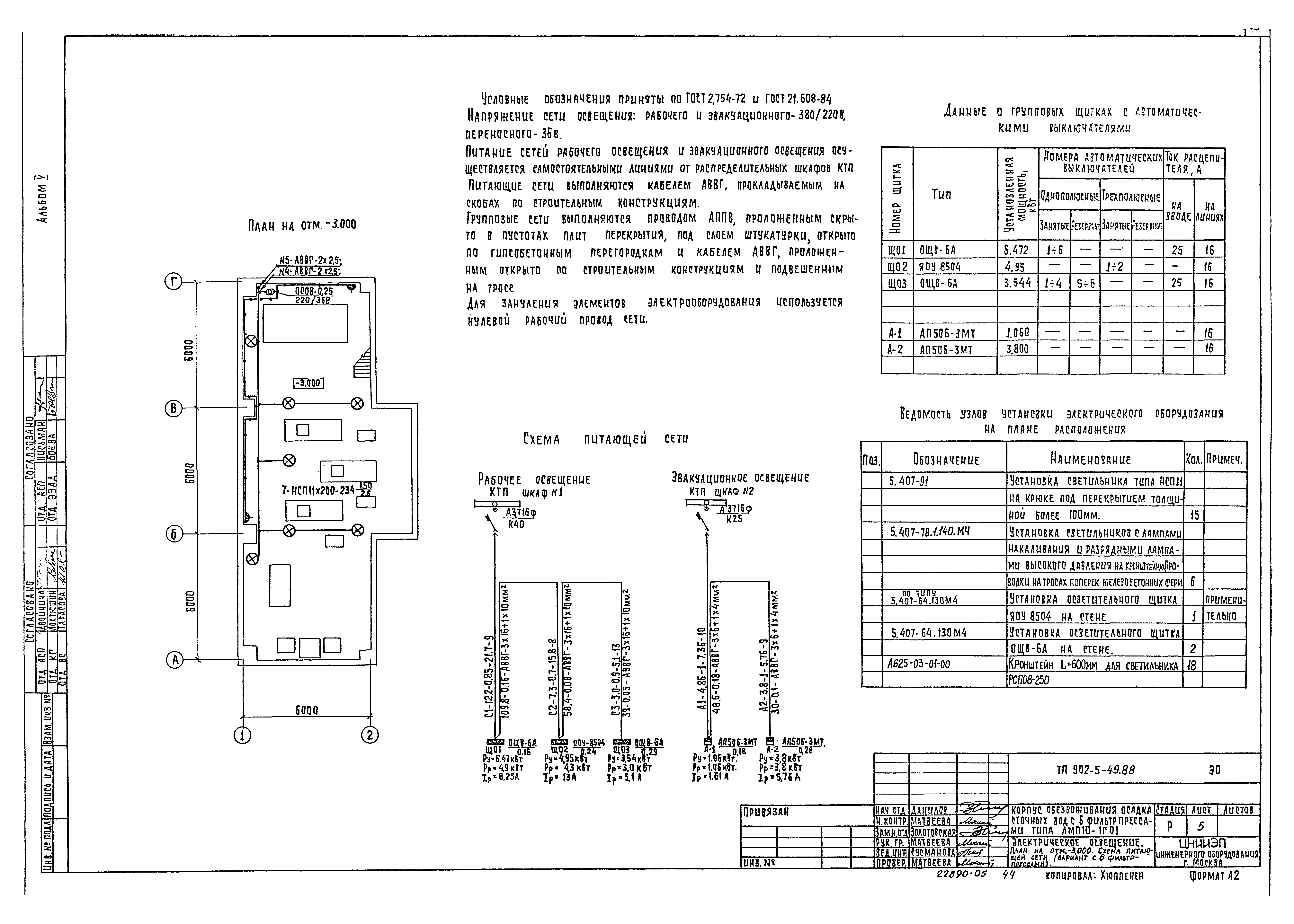
Скачать Типовой проект 902-5-49.88 Альбом V. Электротехнические решения. Автоматизация. Связь и сигнализацияДата актуализации: 01.01.2021
|
| Обозначение: | Типовой проект 902-5-49.88 |
| Обозначение англ: | 902-5-49.88 |
| Статус: | не определен законодательством |
| Название рус.: | Альбом V. Электротехнические решения. Автоматизация. Связь и сигнализация |
| Дата добавления в базу: | 12.02.2016 |
| Дата актуализации: | 01.01.2021 |
| Дата введения: | 01.06.1988 |
| Дата окончания срока действия: | 30.06.2003 |
| Разработан: | ЦНИИЭП инженерного оборудования |
| Утверждён: | 03.11.1986 Госгражданстрой (Gosgrazhdanstroy 361) |





























































