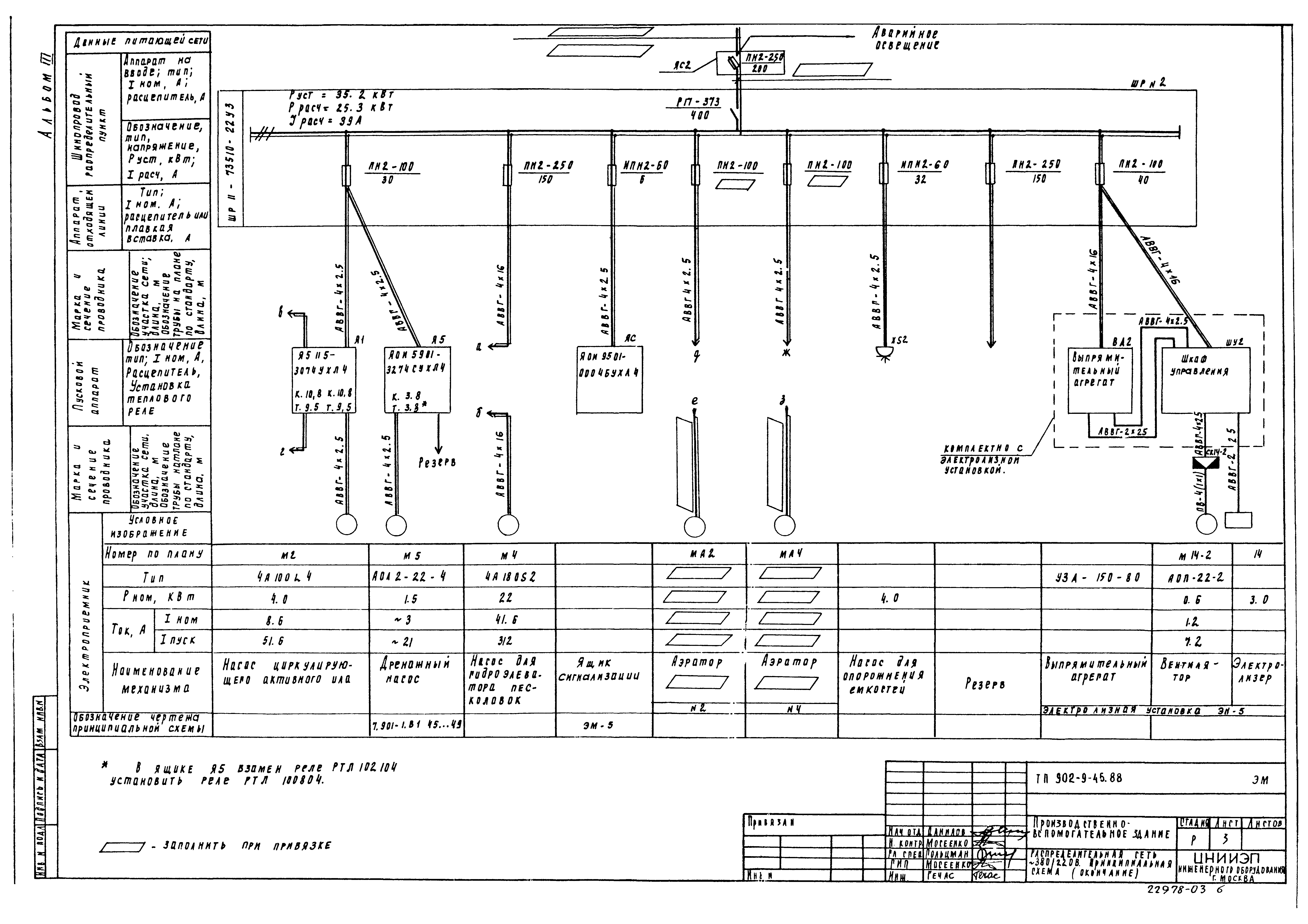
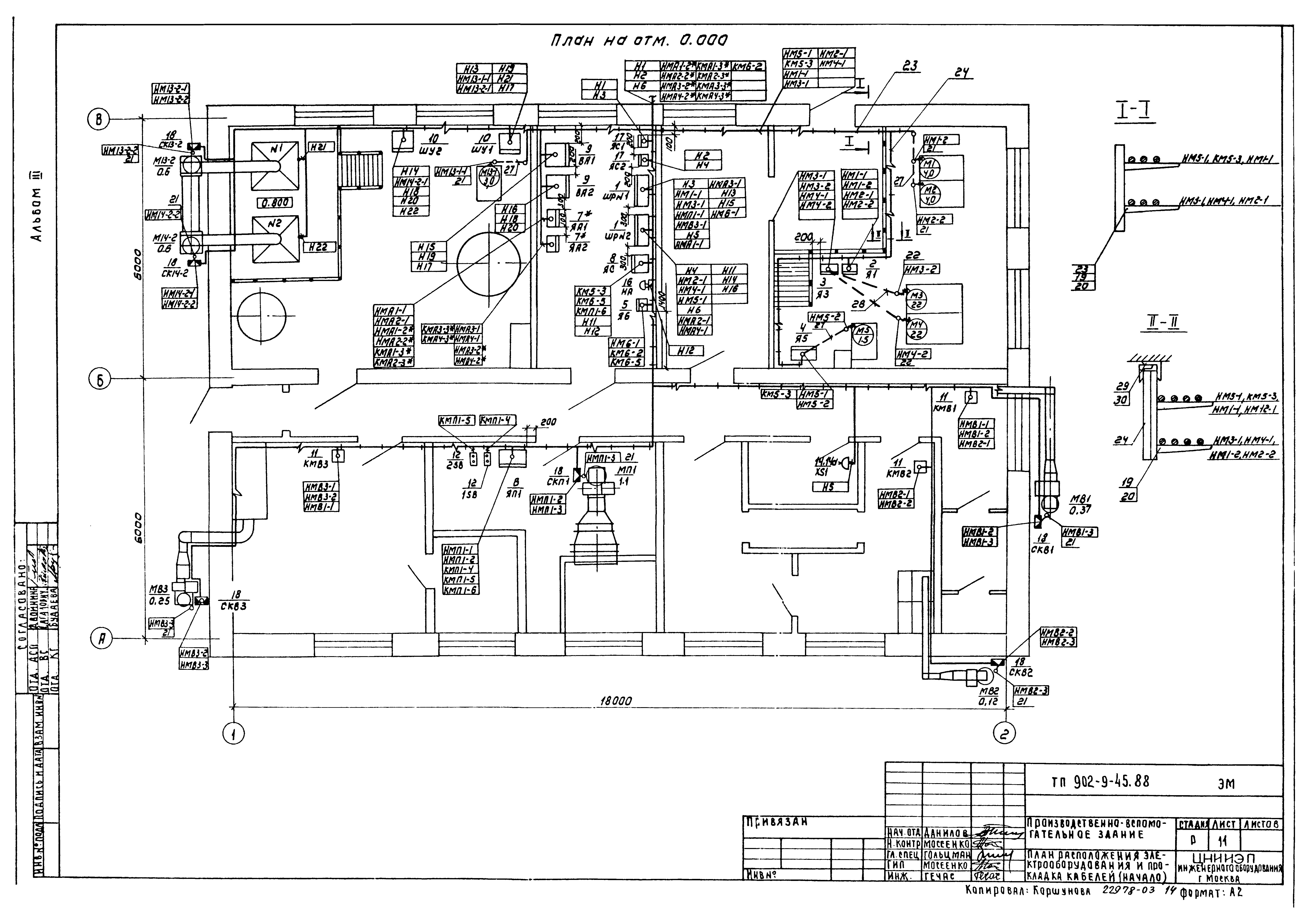
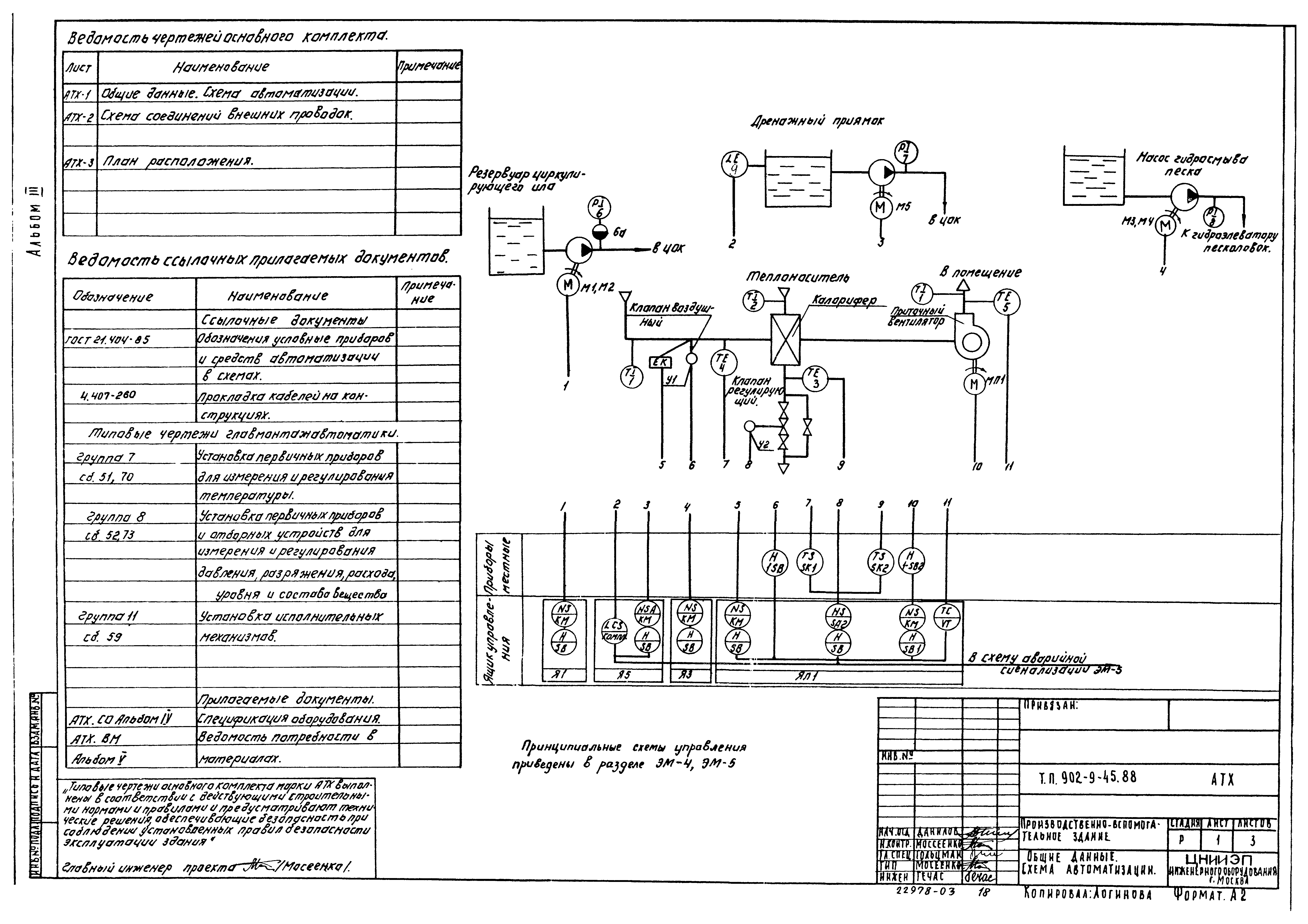
Скачать Типовой проект 902-9-45.88 Альбом III. Электротехническая часть. Автоматизация. Связь и сигнализацияДата актуализации: 01.01.2021
|
| Обозначение: | Типовой проект 902-9-45.88 |
| Обозначение англ: | 902-9-45.88 |
| Статус: | не определен законодательством |
| Название рус.: | Альбом III. Электротехническая часть. Автоматизация. Связь и сигнализация |
| Дата добавления в базу: | 21.05.2015 |
| Дата актуализации: | 01.01.2021 |
| Дата введения: | 17.12.1987 |
| Дата окончания срока действия: | 30.06.2003 |
| Разработан: | ЦНИИЭП инженерного оборудования |
| Утверждён: | 17.12.1987 Госгражданстрой (Gosgrazhdanstroy 409) |





















