Скачать Типовой проект 905-1-37.87 Альбом 1. Пояснительная записка. Технология производства. Спецификация оборудования. Ведомость потребности в материалах. Архитектурно-строительные решения. Ведомость потребности в материалах. Конструкции металлические. Электроснабжение. Спецификация оборудования. Ведомость потребности в материалахДата актуализации: 01.01.2021
|
| Обозначение: | Типовой проект 905-1-37.87 |
| Обозначение англ: | 905-1-37.87 |
| Статус: | действует |
| Название рус.: | Альбом 1. Пояснительная записка. Технология производства. Спецификация оборудования. Ведомость потребности в материалах. Архитектурно-строительные решения. Ведомость потребности в материалах. Конструкции металлические. Электроснабжение. Спецификация оборудования. Ведомость потребности в материалах |
| Дата добавления в базу: | 01.10.2014 |
| Дата актуализации: | 01.01.2021 |
| Дата введения: | 14.12.1987 |
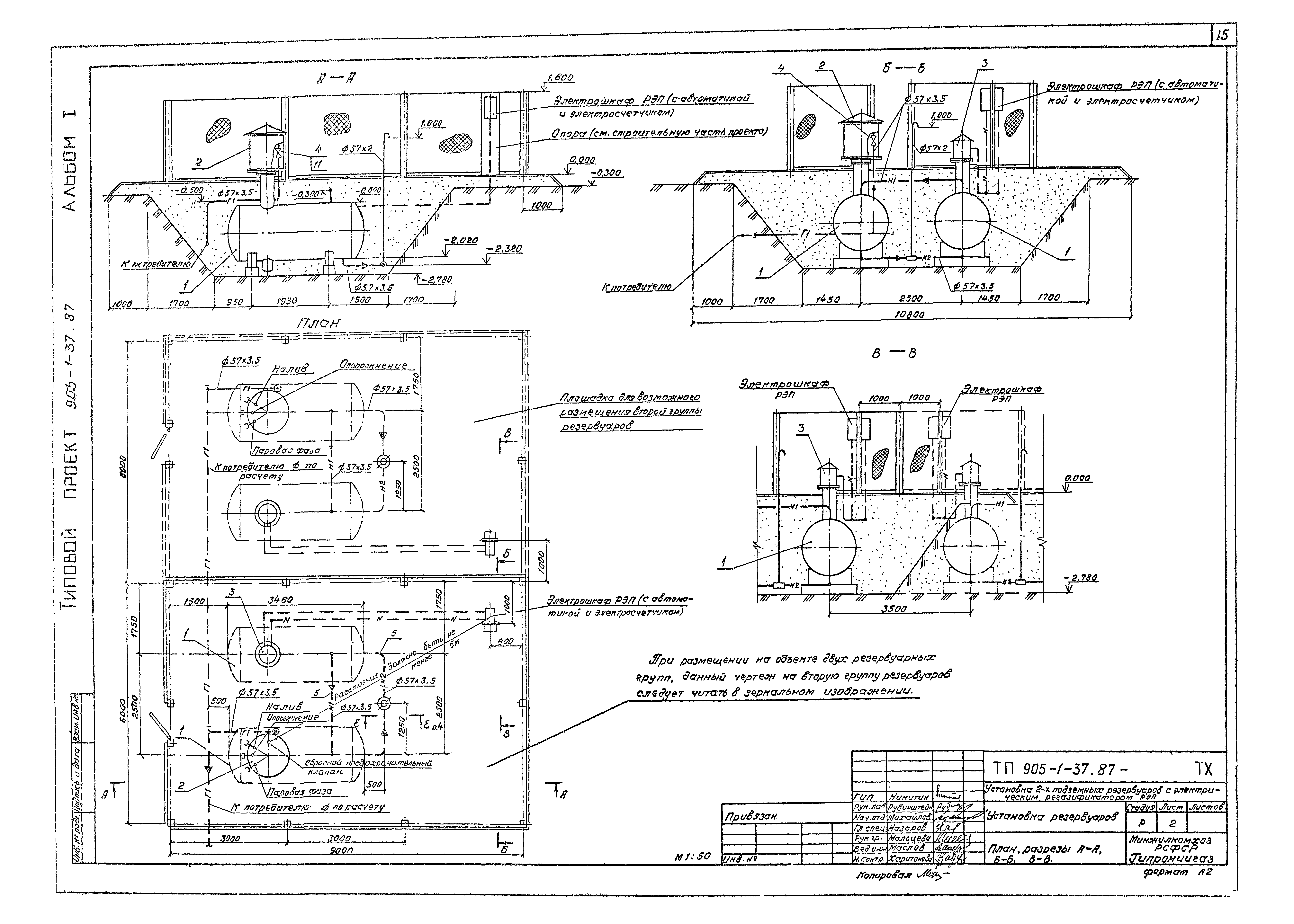
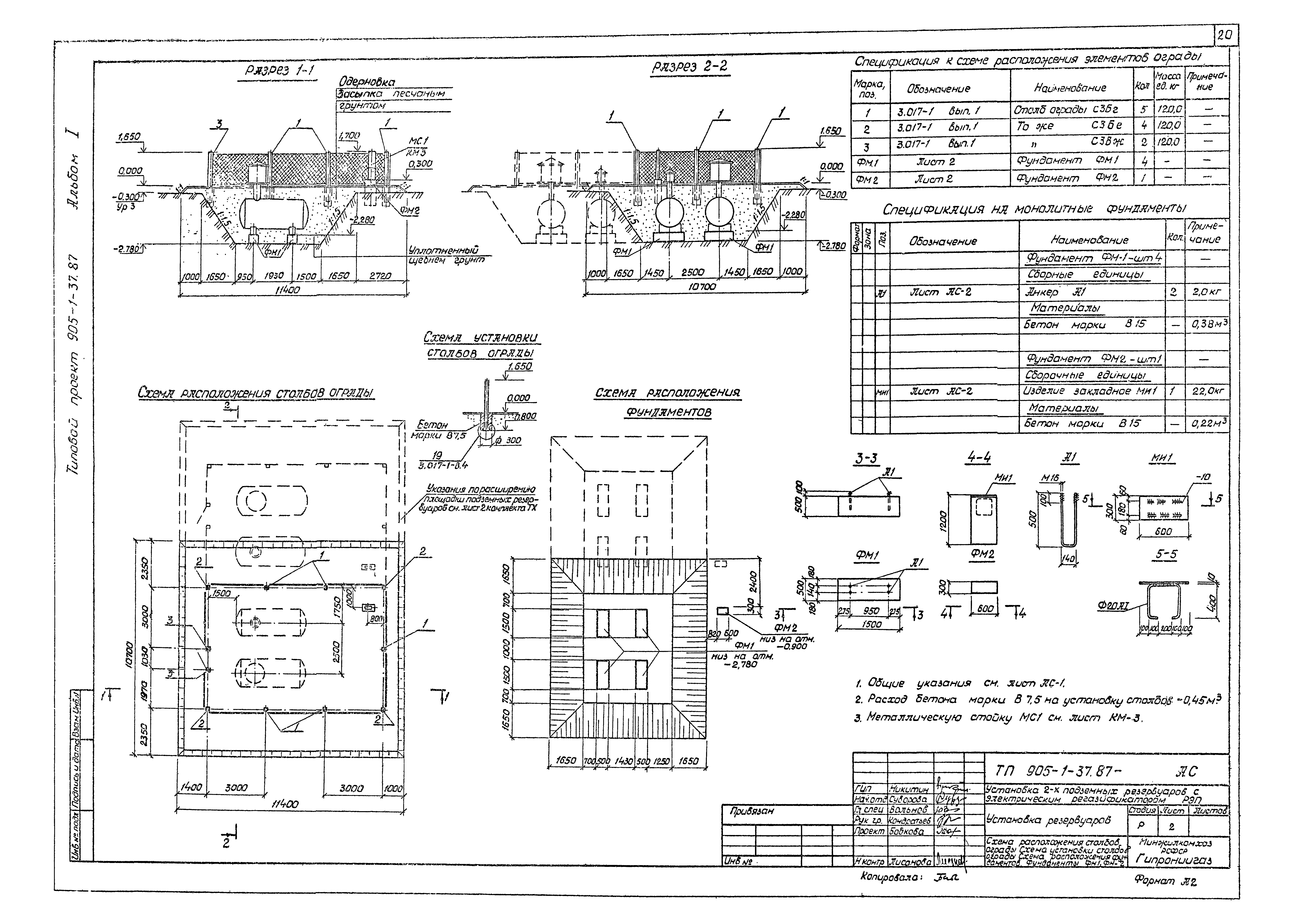
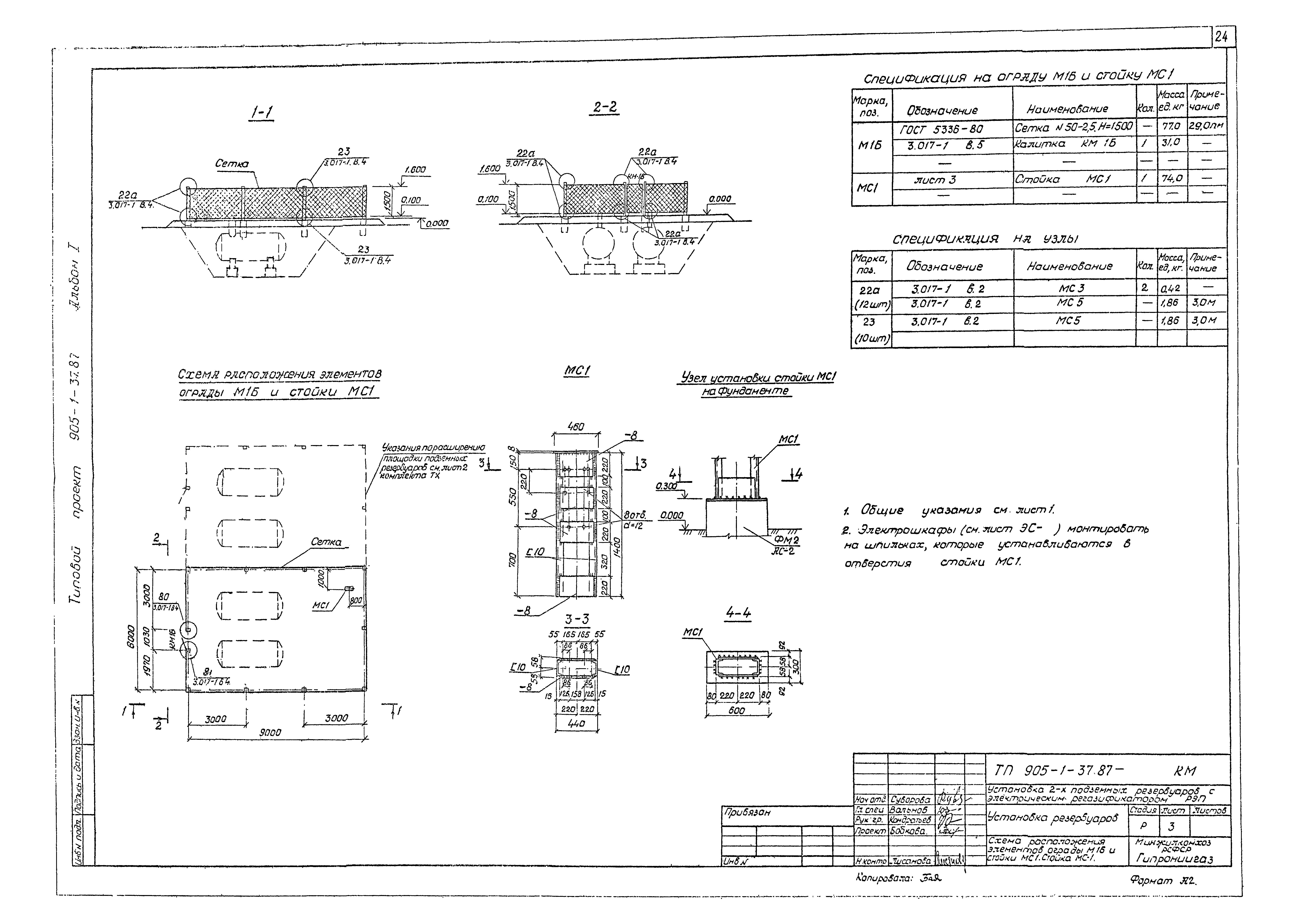
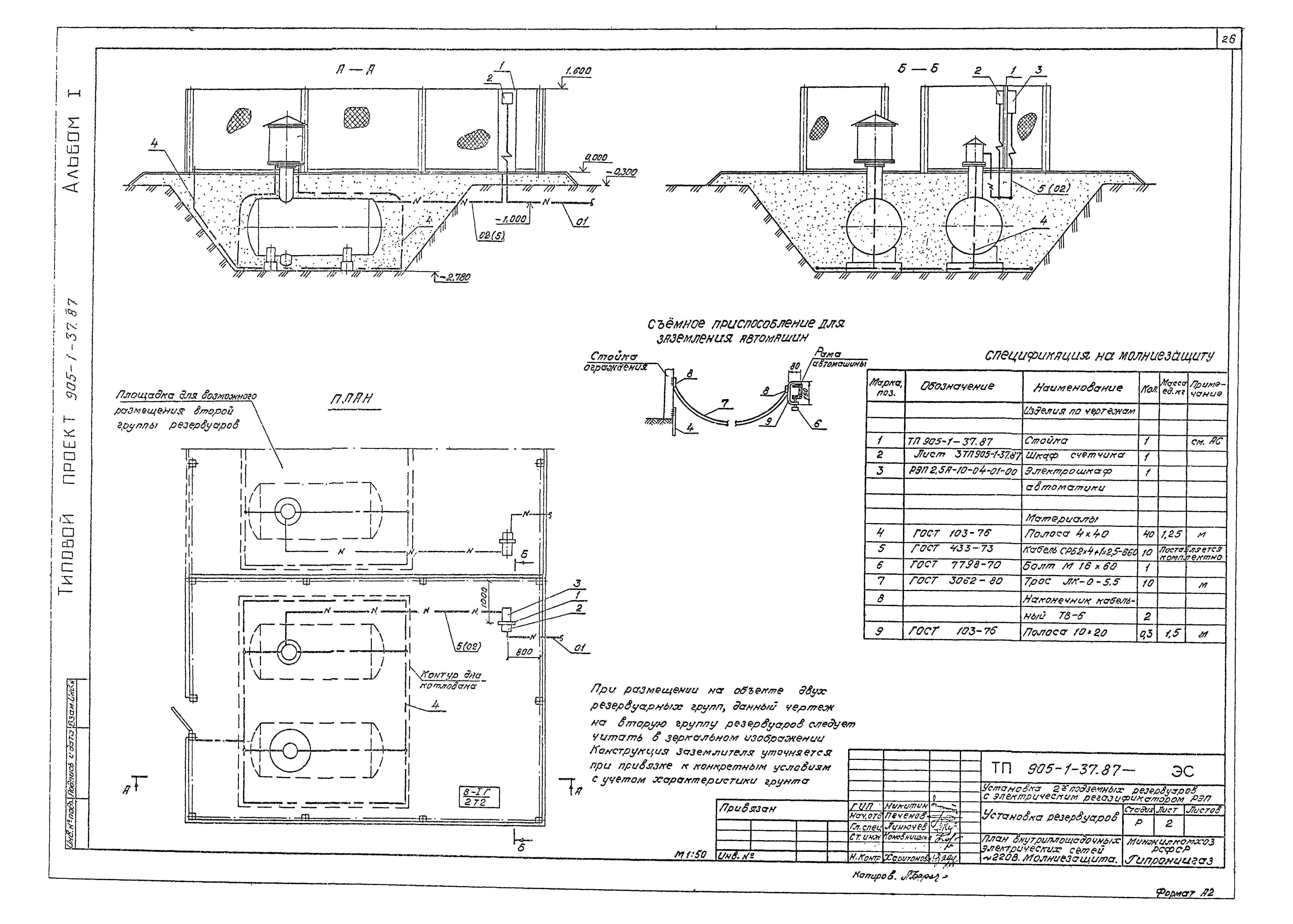
| Оглавление: | Содержание альбома Общая пояснительная записка Технология производства Общие данные План, разрезы А-А, Б-Б, В-В Схема обвязки резервуаров Фрагмент плана. Разрезы Г-Г, Д-Д Дренажная трубка Ведомость потребности материалов Спецификация оборудования Архитектурно-строительные решения Общие данные Схема расположения столбов ограды. Схема установки столбов ограды. Схема расположения фундаментов. Фундаменты ФМ-1, ФМ-2 Ведомость потребности материалов Конструкции металлические Общие данные Схема расположения элементов ограды М1Б и стойки МС. Стойка МС. Узел 1 Электроснабжение Общие данные План внутриплощадочных электрических сетей 220 В. Молниезащита Шкаф счетчика Шкаф счетчика. Схема соединений Ведомость потребности материалов Спецификация оборудования |
| Разработан: | Гипрониигаз Минжилкомхоза РСФСР |
| Утверждён: | 14.12.1987 Минжилкомхоз РСФСР (Russian Federation Minzhilkomkhoz ) |
| Заменяет собой: |
|




























