Скачать Типовой проект 503-1-49.86 Альбом I. Пояснительная записка. Технология производства. Технологические коммуникации. Внутренние водопровод и канализация. Отопление и вентиляцияДата актуализации: 01.01.2021
|
| Обозначение: | Типовой проект 503-1-49.86 |
| Обозначение англ: | 503-1-49.86 |
| Статус: | не определен законодательством |
| Название рус.: | Альбом I. Пояснительная записка. Технология производства. Технологические коммуникации. Внутренние водопровод и канализация. Отопление и вентиляция |
| Дата добавления в базу: | 01.09.2013 |
| Дата актуализации: | 01.01.2021 |
| Дата введения: | 21.11.1985 |
| Дата окончания срока действия: | 30.06.2003 |
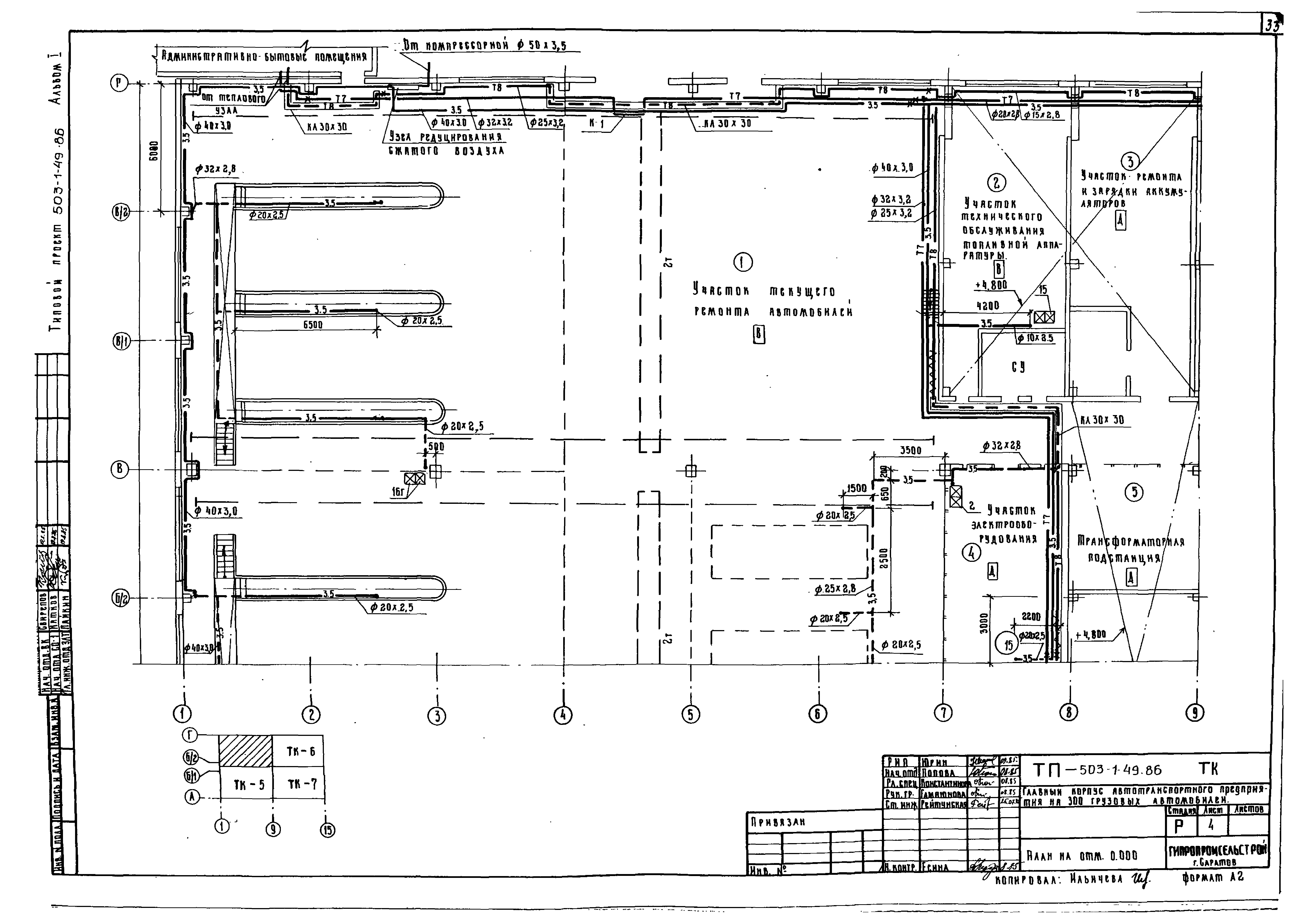
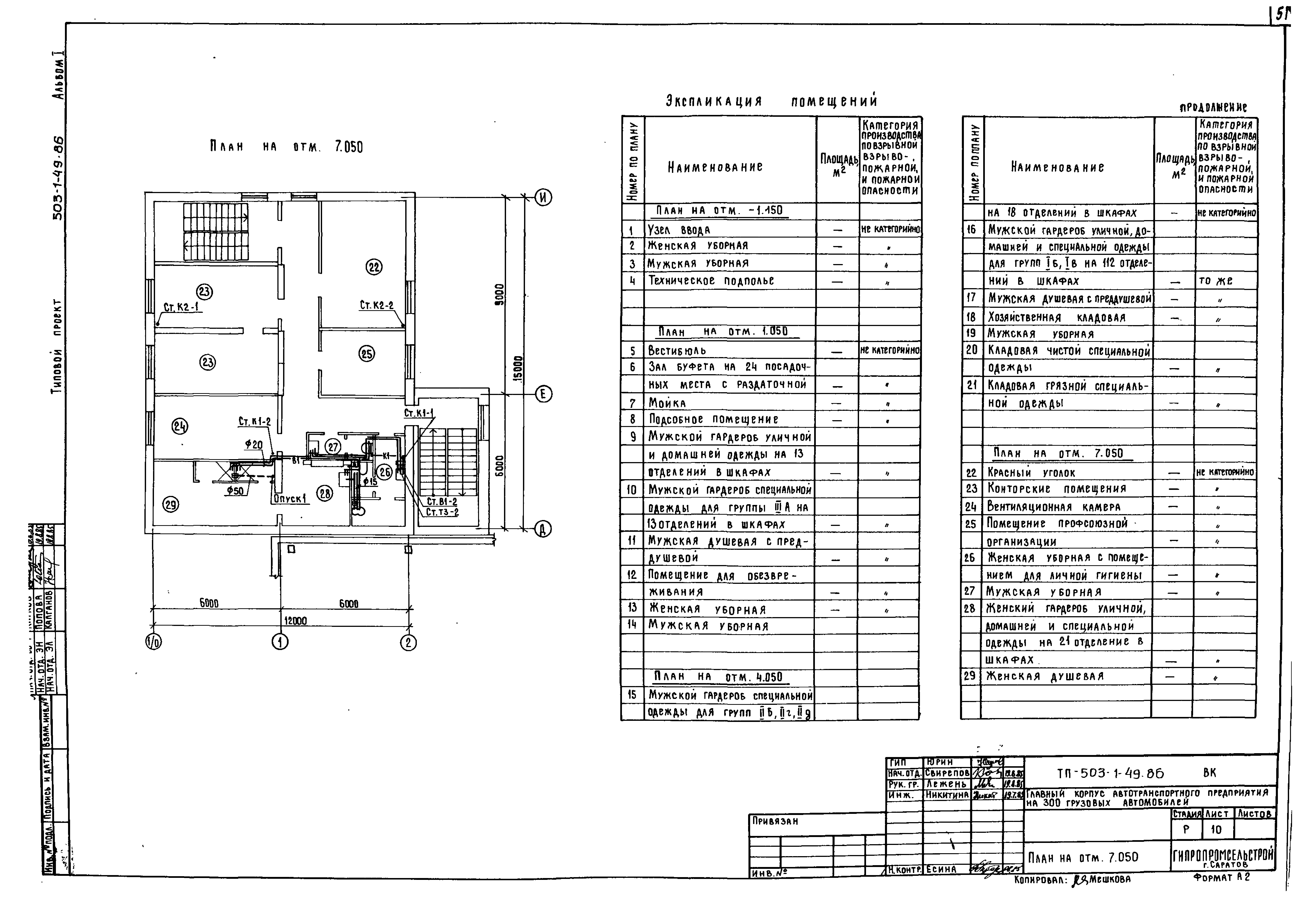
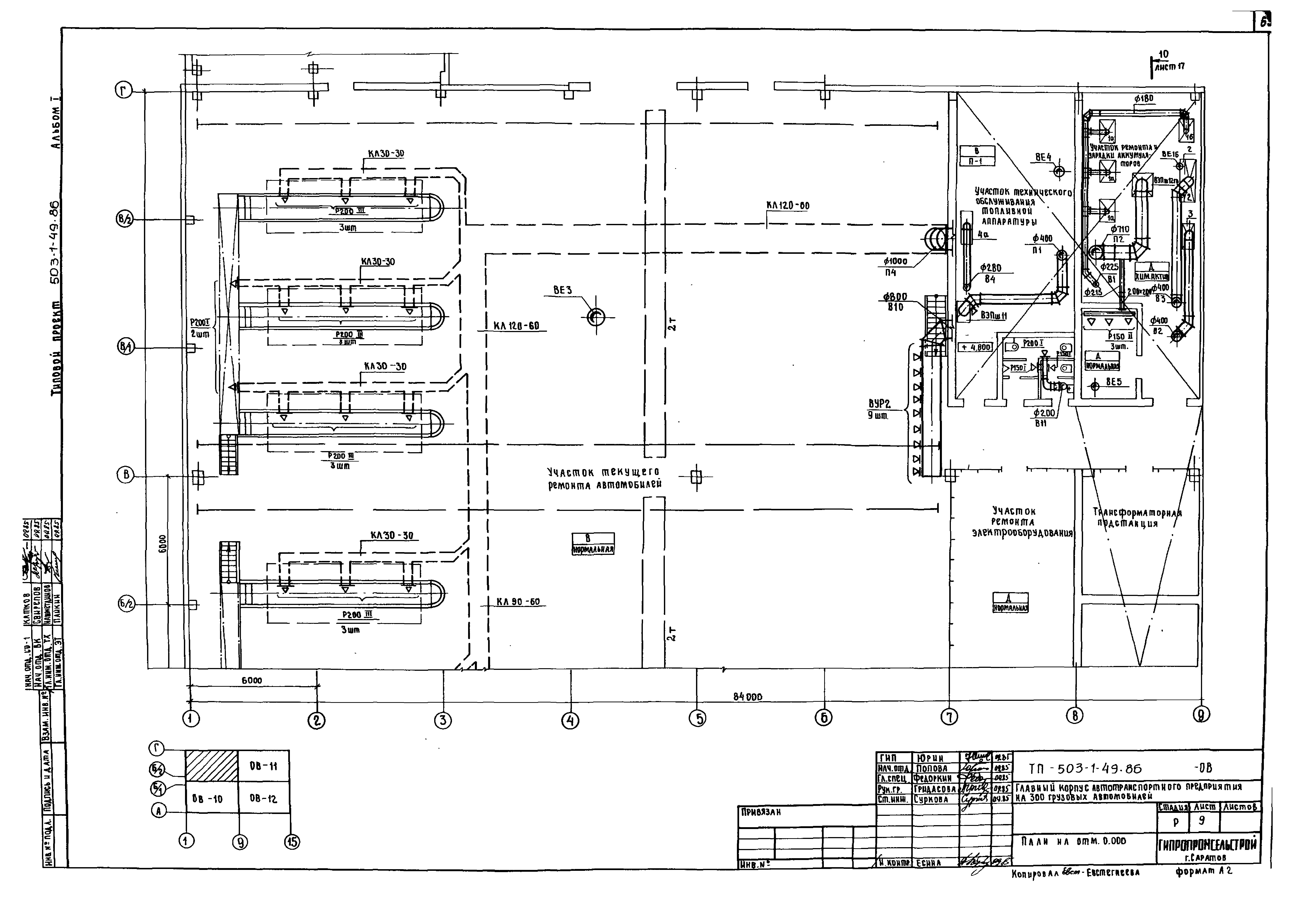
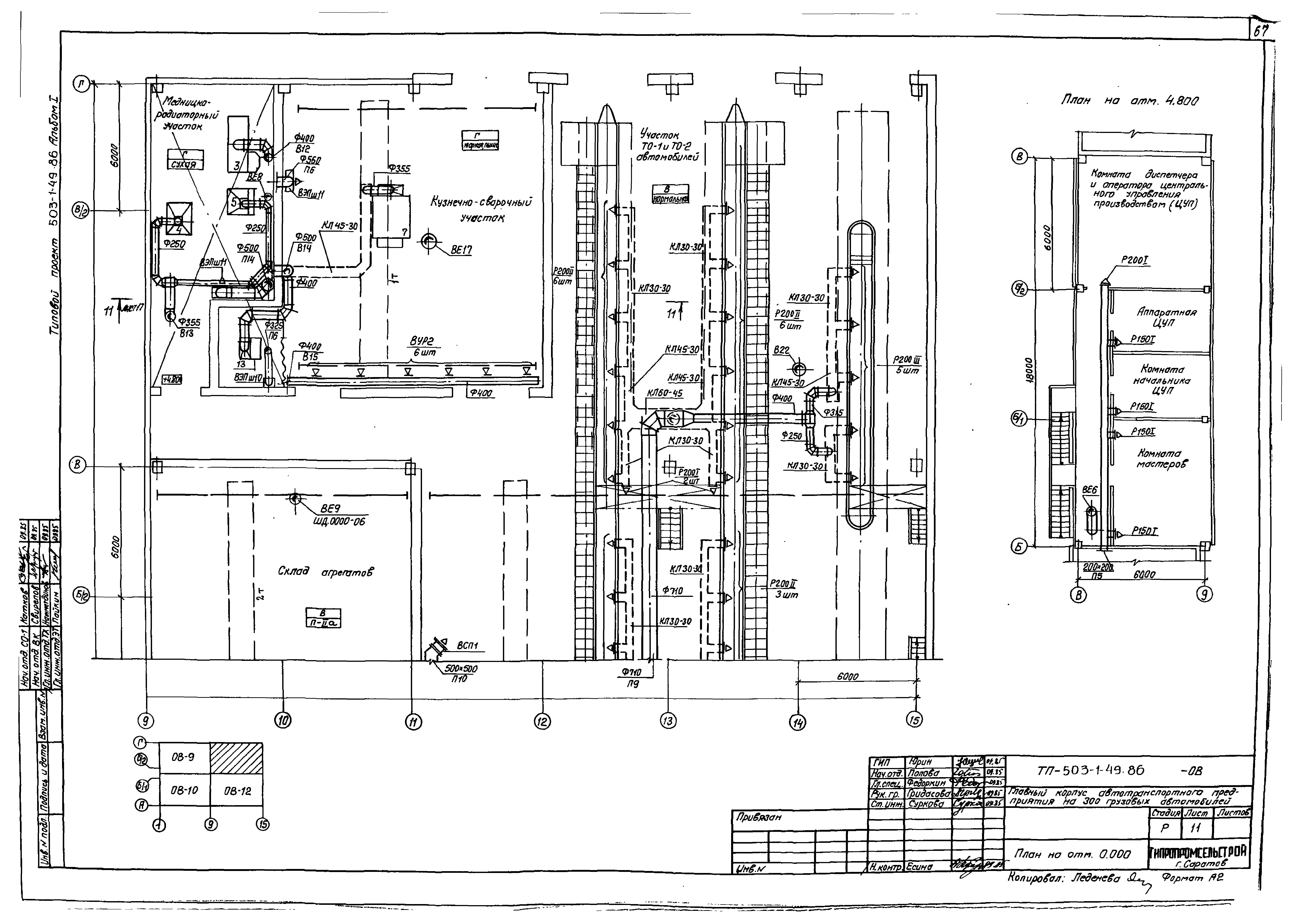
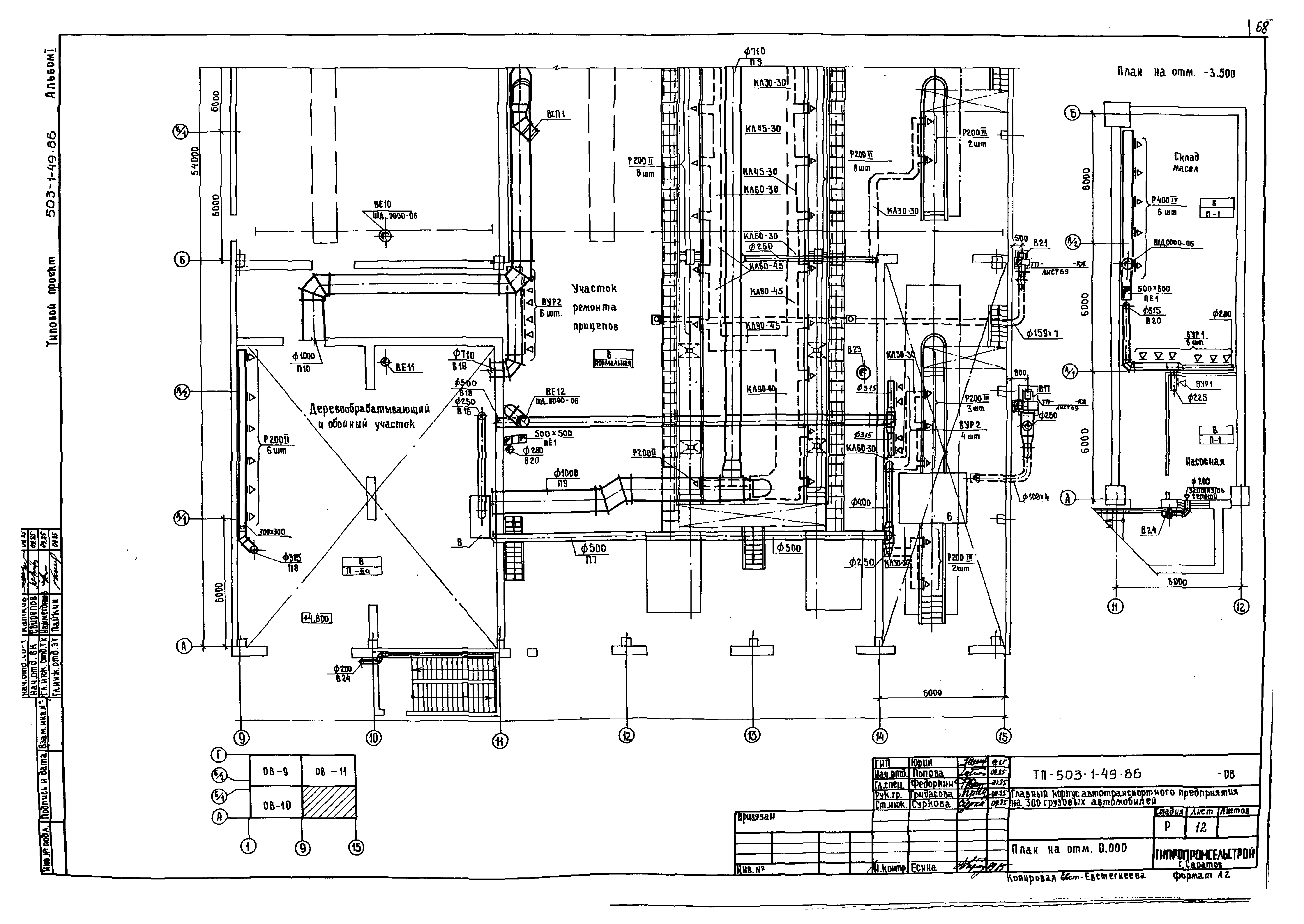
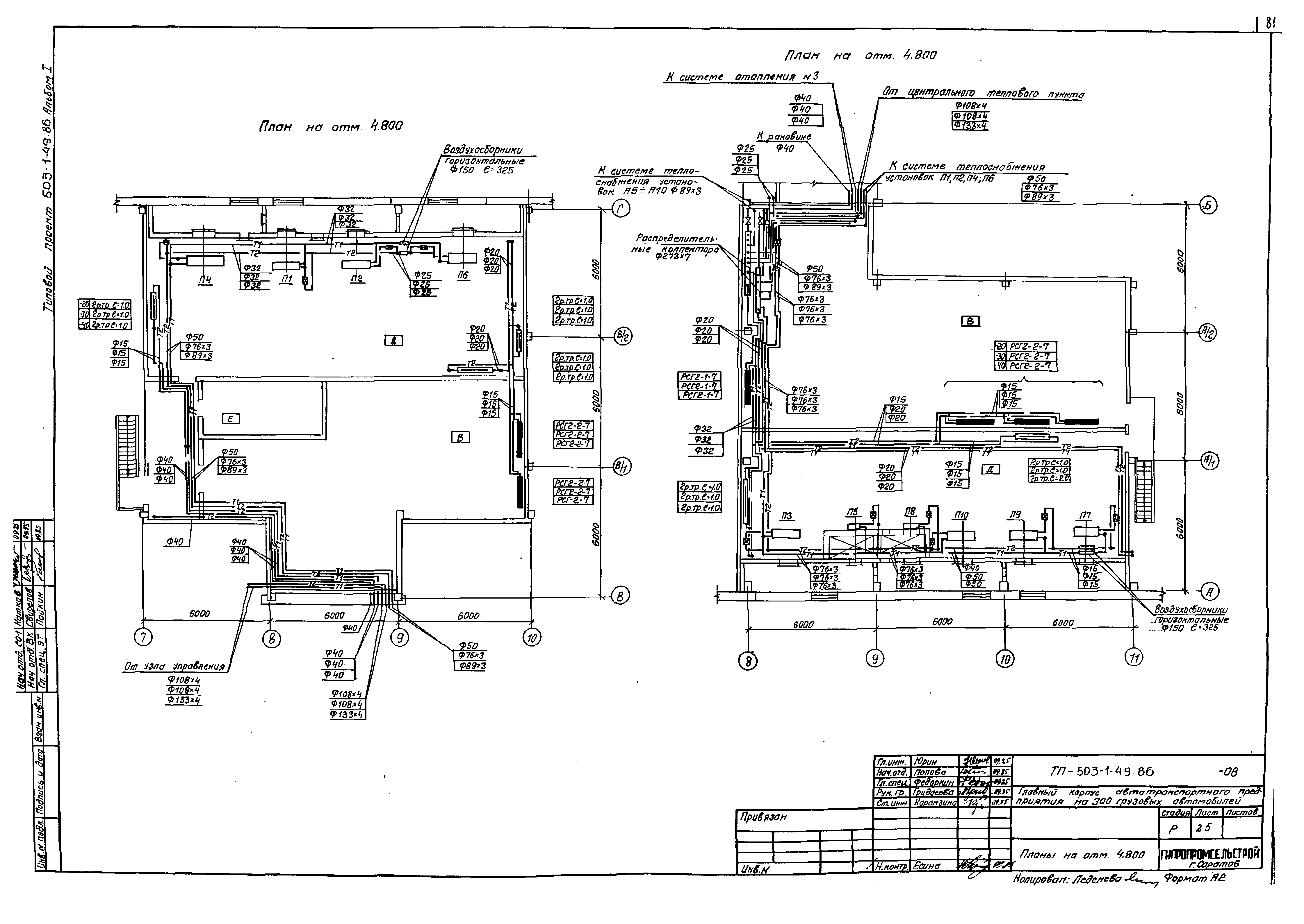
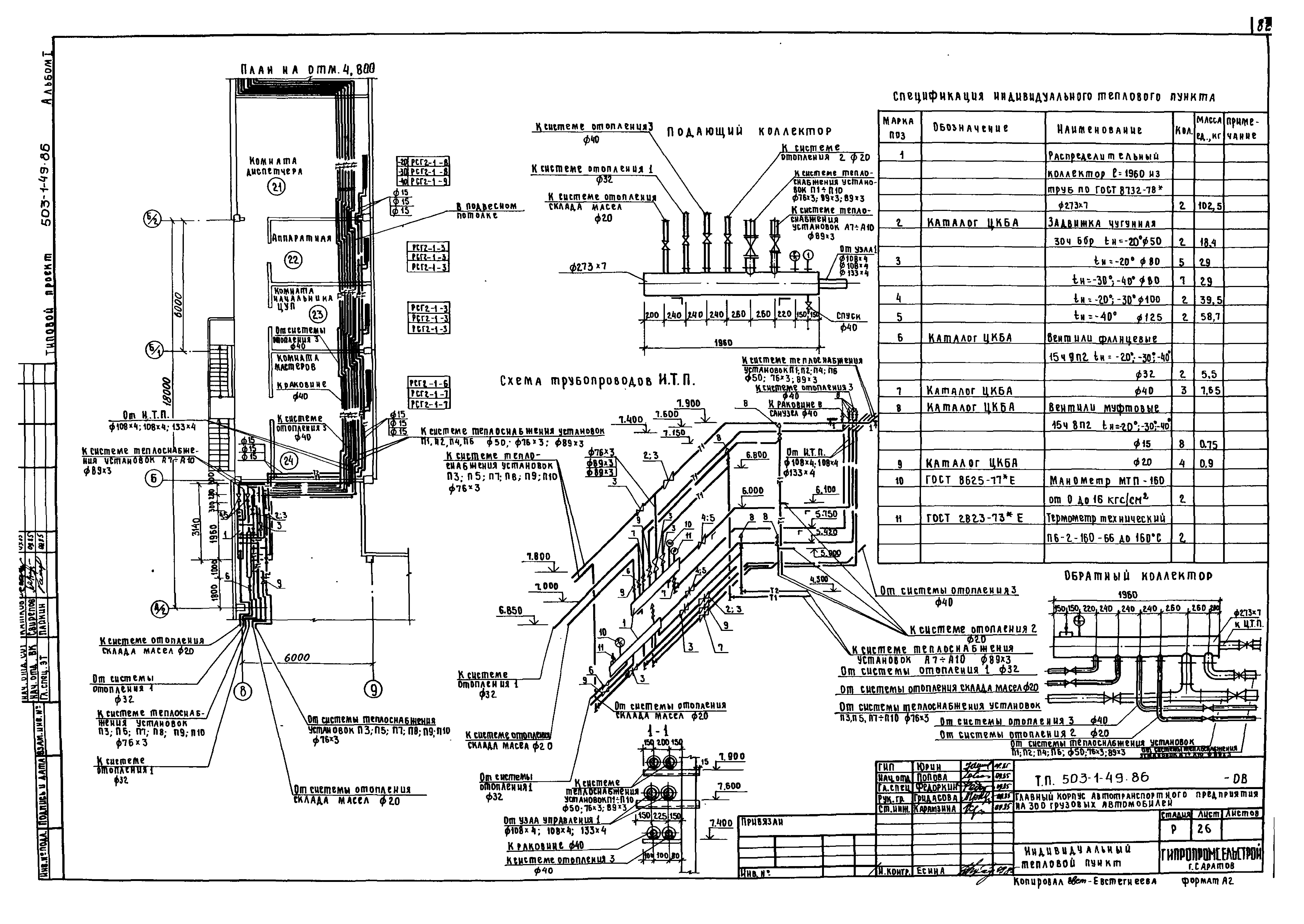
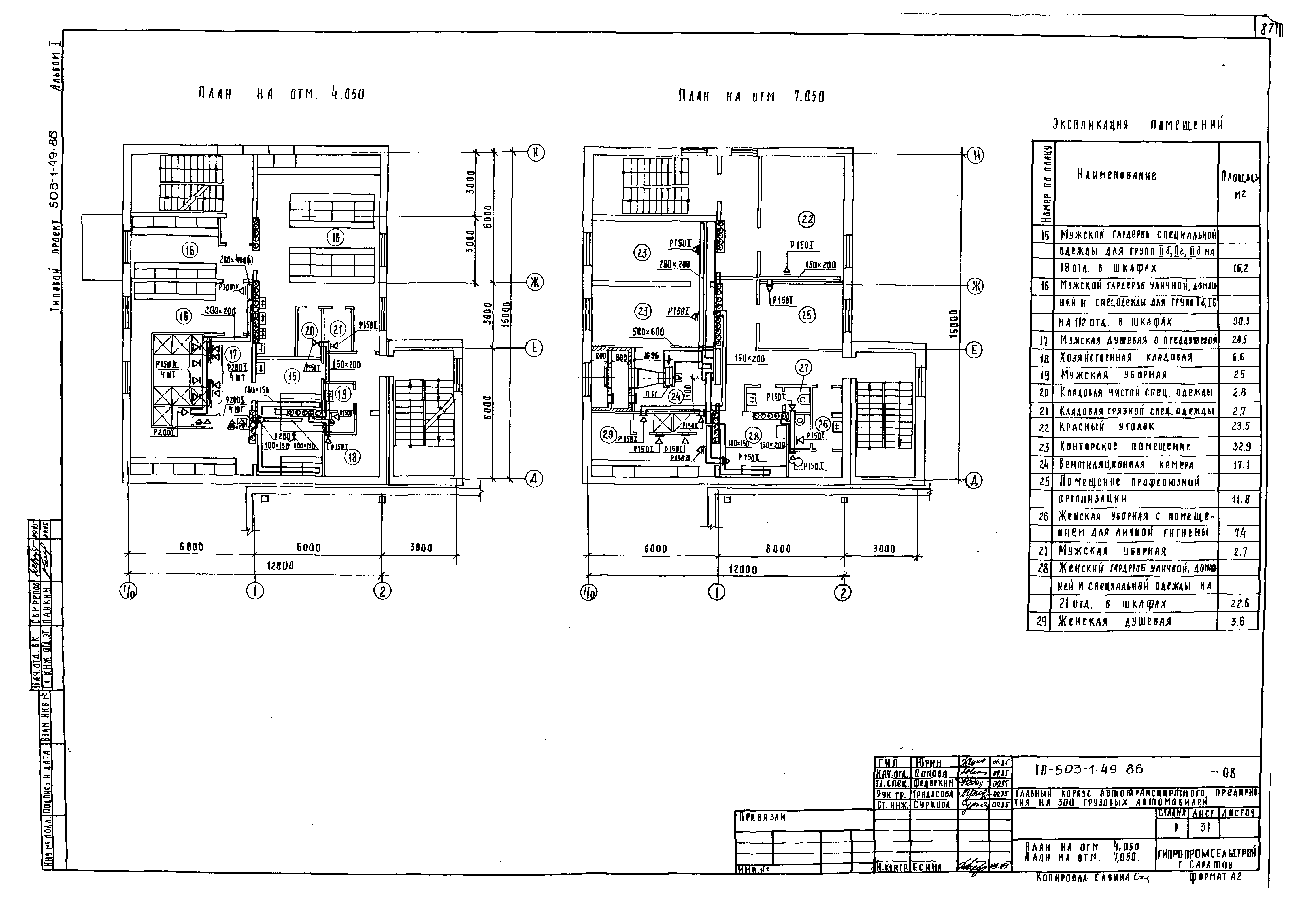
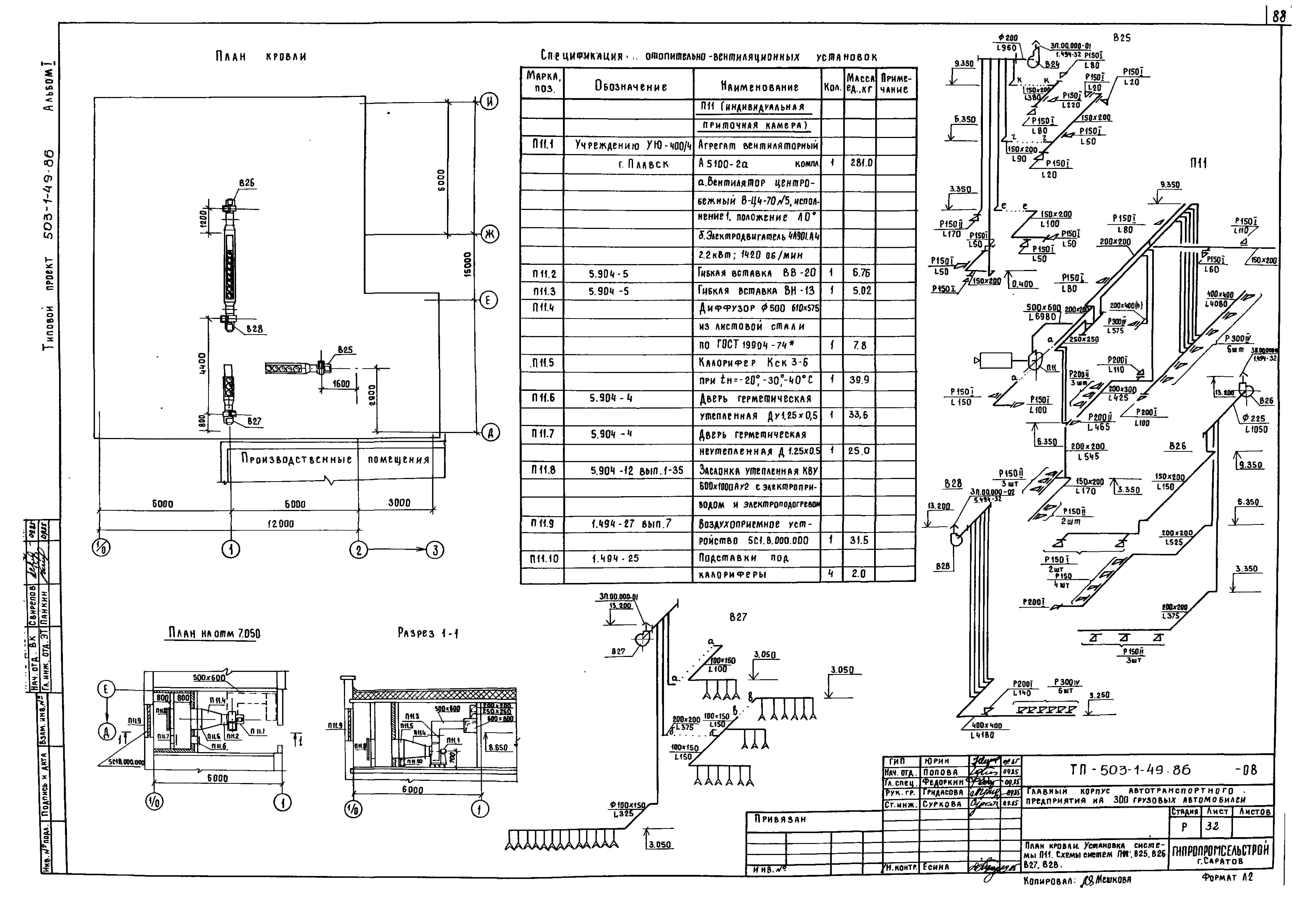
| Оглавление: | Содержание альбома Пояснительная записка Технология производства ТХ Общие данные Ведомость оборудования План на отм. 0.000 Планы на отм. 0.000; 1.050 между осями 1 - 2; Е - И; 1.050 между осями 1 - 2; Д - Е Планы на отм. 0.000; - 3.500 Конвейер одноветвевой пластинчатый на участке 12 поз. 1 и 2. Монтажный чертеж Технологические коммуникации ТК Общие данные План на отм. 0.000 Планы на отм. 0.000; - 3.500 Фрагмент 1 Схема трубопроводов сжатого воздуха Схема трубопроводов масел Схемы технологического пароснабжения и снабжения стендов маслом, водой и топливом Внутренние водопровод и канализация ВК Общие данные План на отм. 0.000 План на отм. - 1.150. План сетей водостоков. Расчетные расходы и площадь водосбора. Схемы систем В1, К2 План на отм. 1.050; 4.050 План на отм. 7.050 Фрагмент 1. Водомерный узел. Схемы систем К13, Т3, К1, В4 Схемы систем В1, В5, В4, В10 Схемы систем В4, В10, К3, К13 Схемы систем Т3, К1 План сетей водостоков. Расчетные расходы и площадь водосбора. Схема системы К2 Отопление и вентиляция ОВ Общие данные Производственные помещения Местные отсосы от технологического оборудования План на отм. 0.000 Установки систем П1 - П9; В1 - В4; В6 - В8; В10 - В16; В18 - В20 Разрезы 1-1 - 9-9 Спецификация отопительно-вентиляционных установок Разрезы 10-10, 11-11 Схемы систем П1 - П6 Схемы систем П7 - П10, ПЕ1 Схемы систем В1 - В13 Схемы систем В14 - В21, В24, ВЕ4 - ВЕ8, ВЕ12 Планы на отм. 4.800. Система ВЭР В10 - П2, В6, В8 - П3, В19 - П17 План на отм. 0.000 Схемы систем отопления 1, 2, 3 Планы на отм. 4.800 Индивидуальный тепловой пункт Схема системы теплоснабжения установок П1 - П10 Схема системы теплоснабжения установок А1 - А6, А7 - А10 План на отм. - 3.500. Схема системы отопления склада масел Административно-бытовые помещения План на отм. - 1.050 План на отм. 4.050. План на отм. 7.050 План кровли. Установка системы П11. Схемы систем П11, В25, В26, В27, В28 План на отм. - 1.050 План на отм. 4.050. План на отм. 7.050 Схема системы отопления. Схема системы теплоснабжения установки П11 Центральный тепловой пункт |
| Разработан: | Гипропромсельстрой |
| Утверждён: | 31.10.1983 Госкомсельхозтехника СССР (66) |




























































































