Скачать Типовой проект 503-1-49.86 Альбом IV. Силовое электрооборудование. Электрическое освещение. Автоматизация производства. Связь и сигнализацияДата актуализации: 01.01.2021
|
| Обозначение: | Типовой проект 503-1-49.86 |
| Обозначение англ: | 503-1-49.86 |
| Статус: | не определен законодательством |
| Название рус.: | Альбом IV. Силовое электрооборудование. Электрическое освещение. Автоматизация производства. Связь и сигнализация |
| Дата добавления в базу: | 01.09.2013 |
| Дата актуализации: | 01.01.2021 |
| Дата введения: | 21.11.1985 |
| Дата окончания срока действия: | 30.06.2003 |
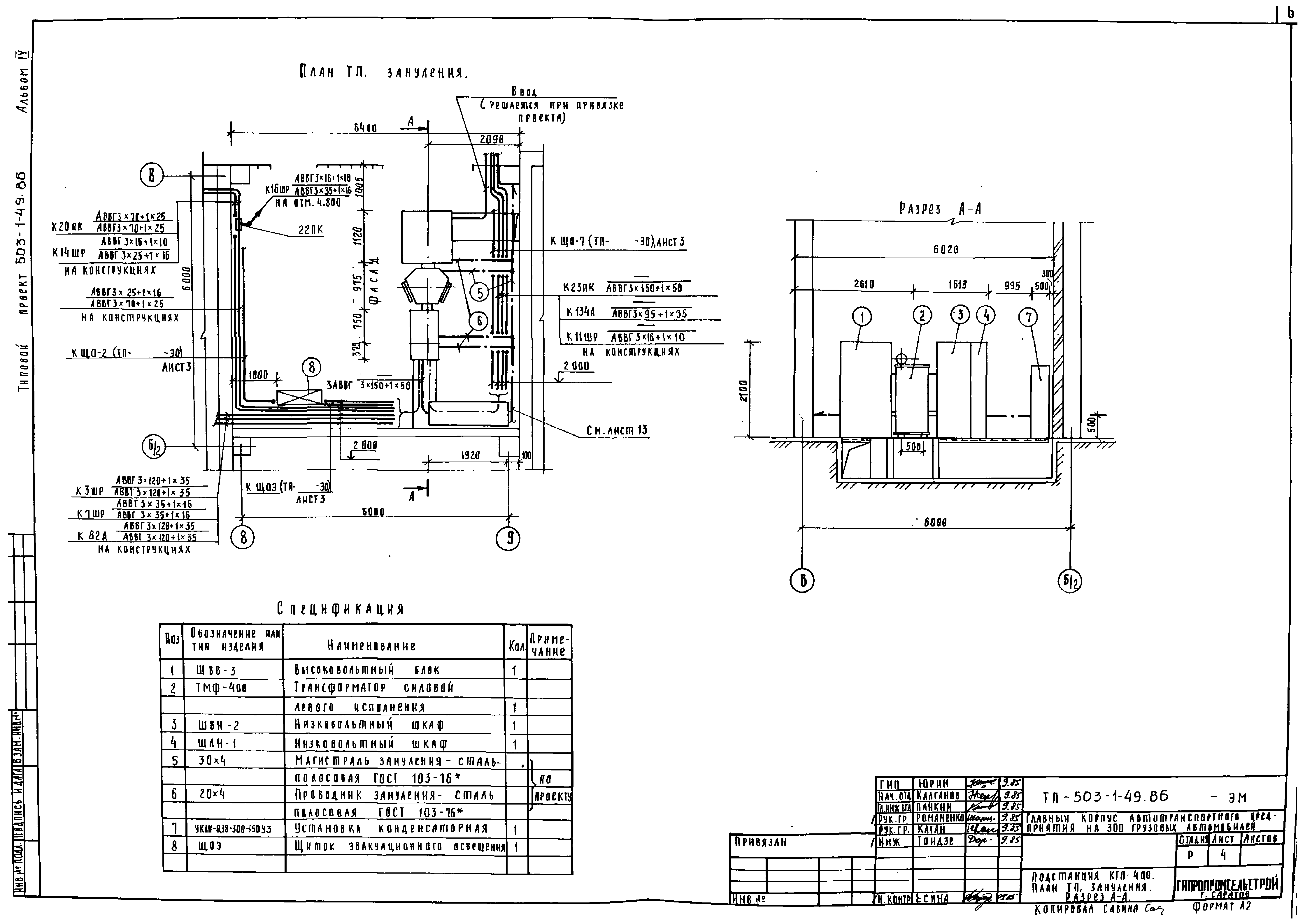
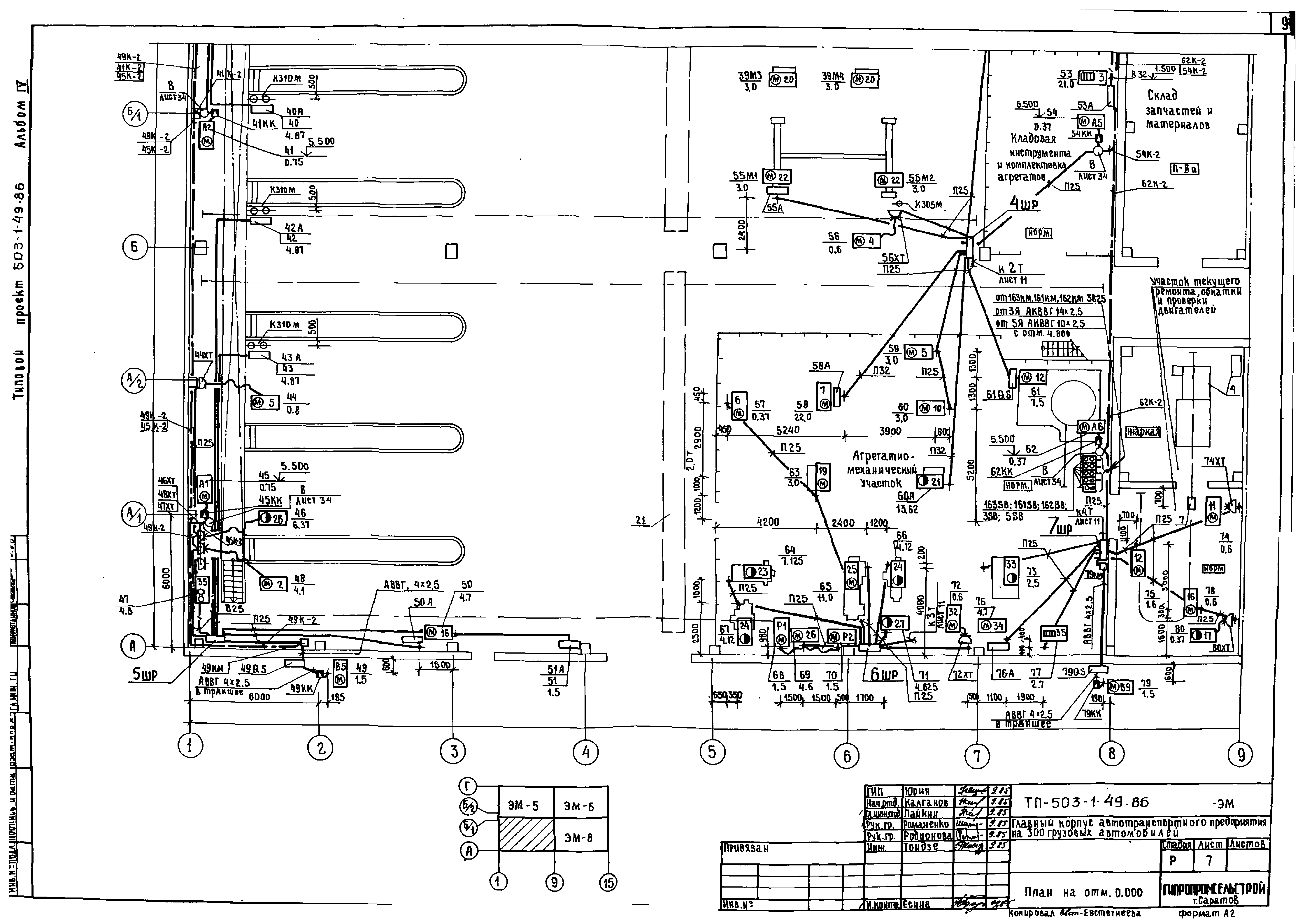
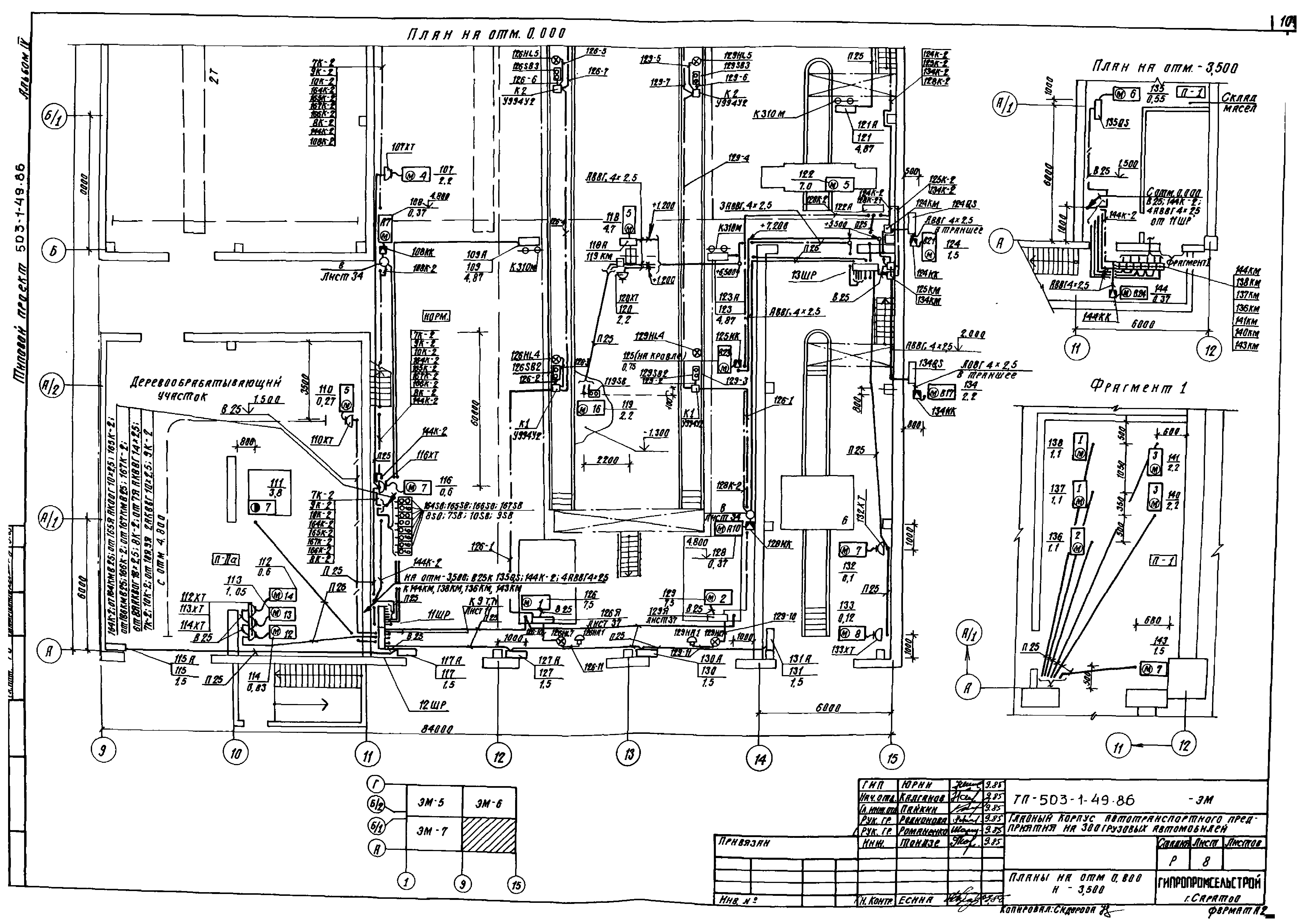
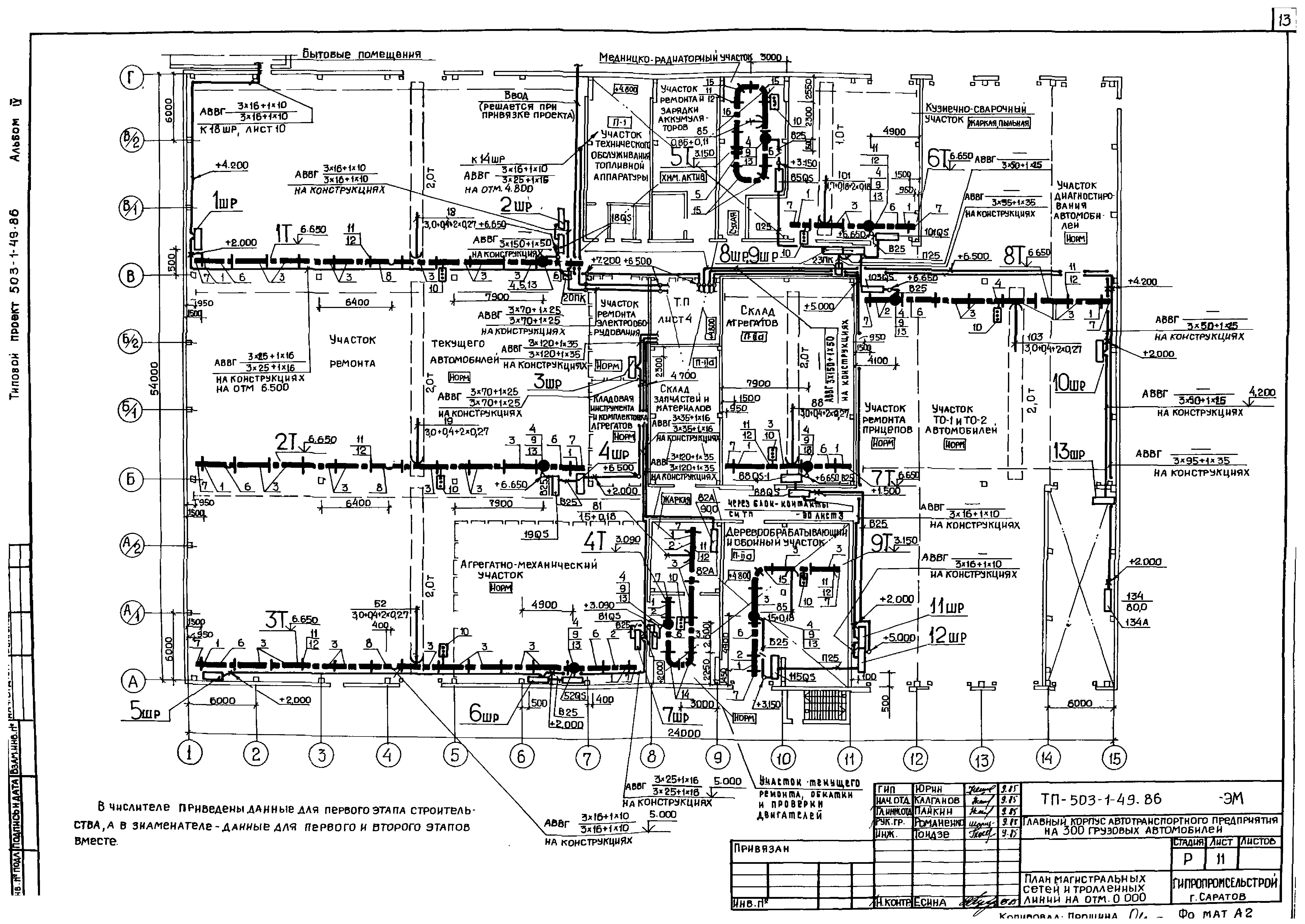
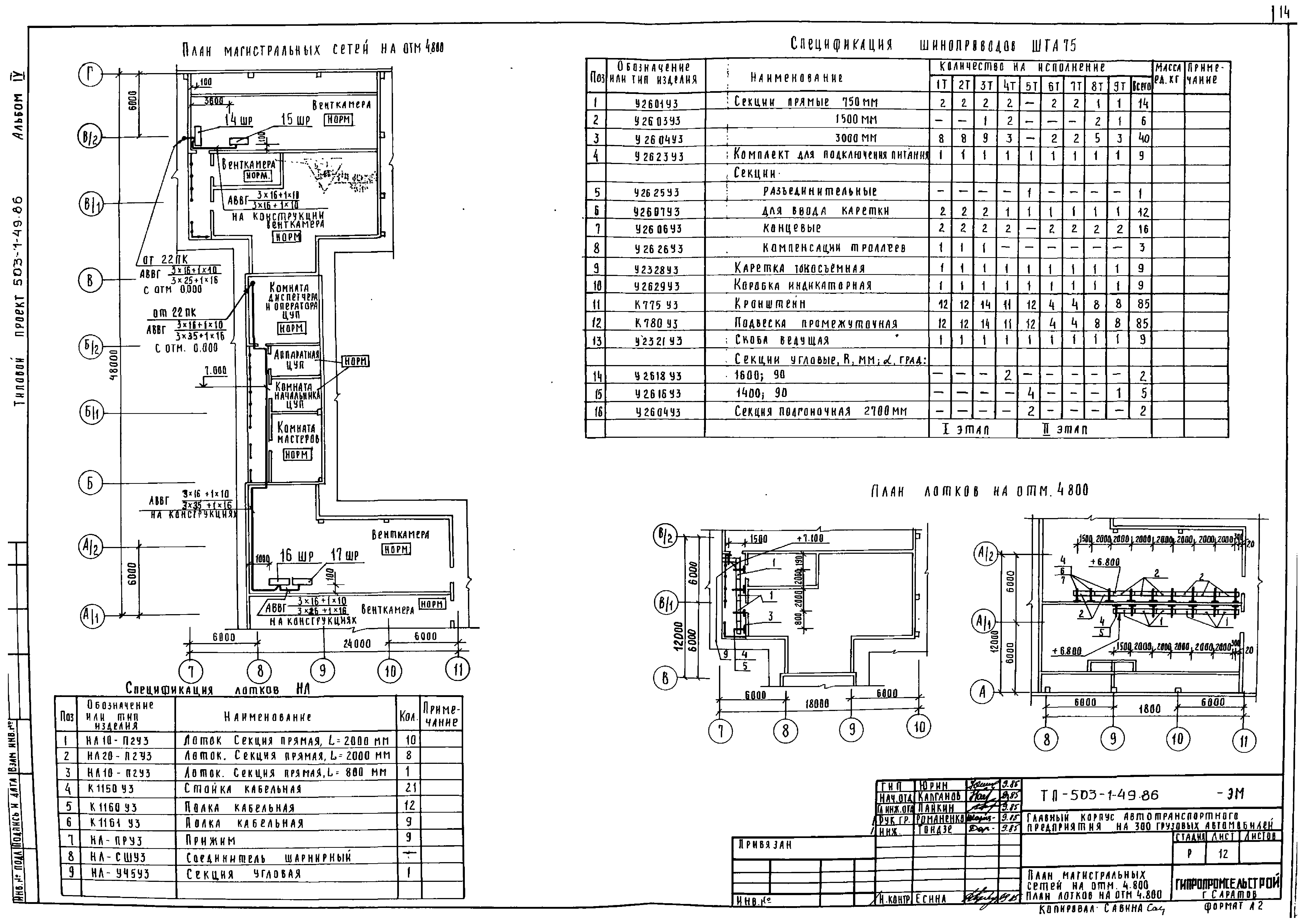
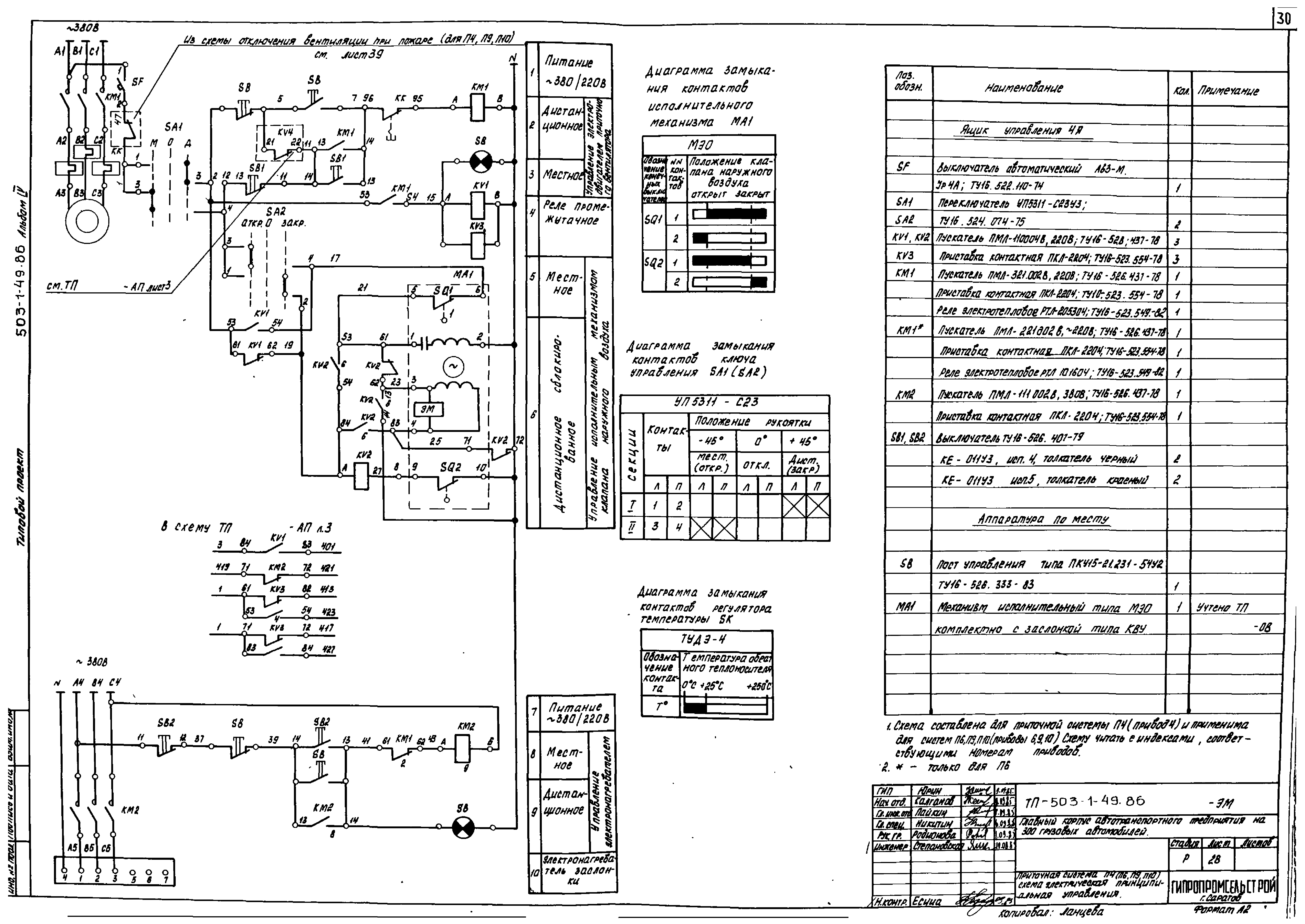
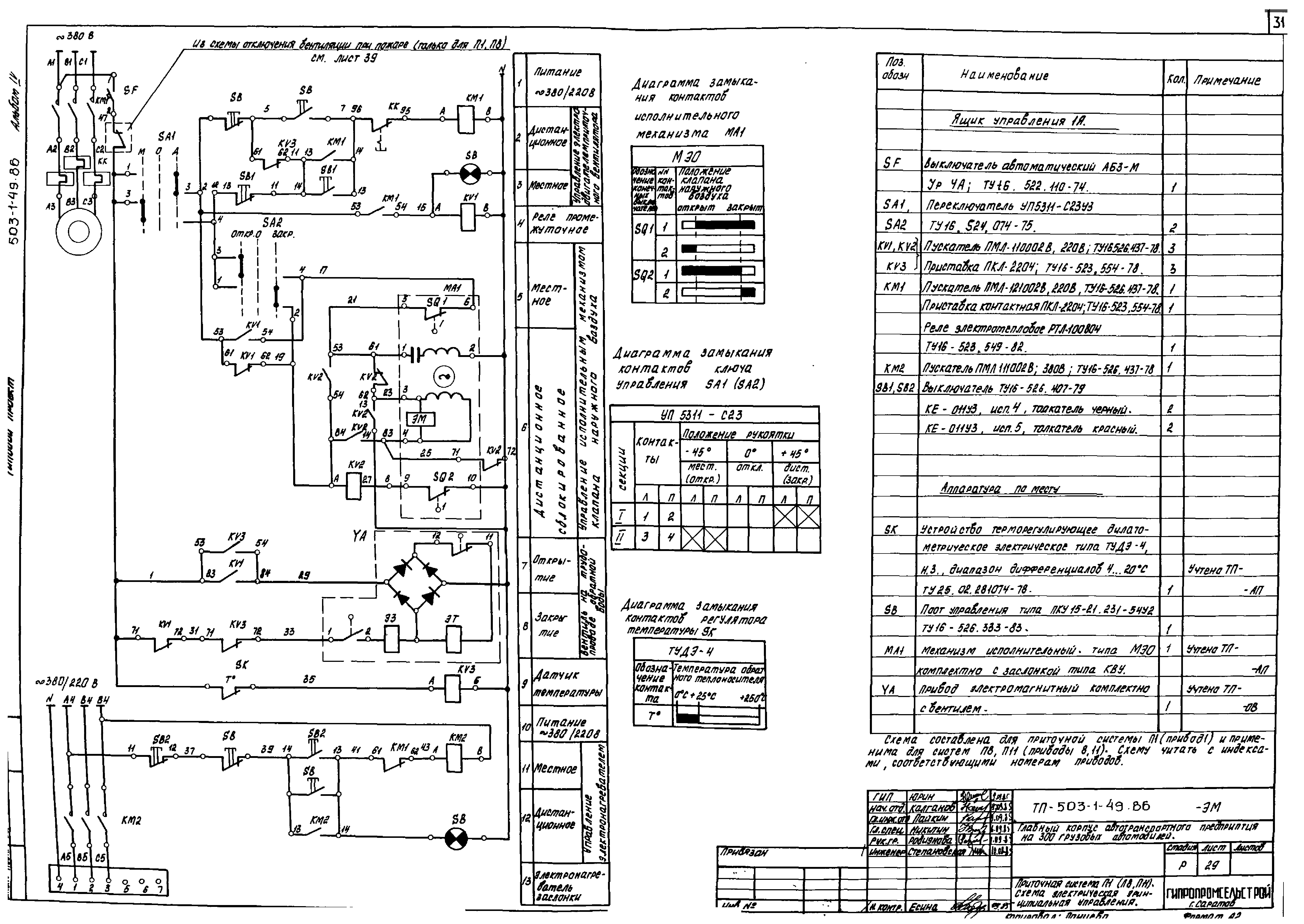
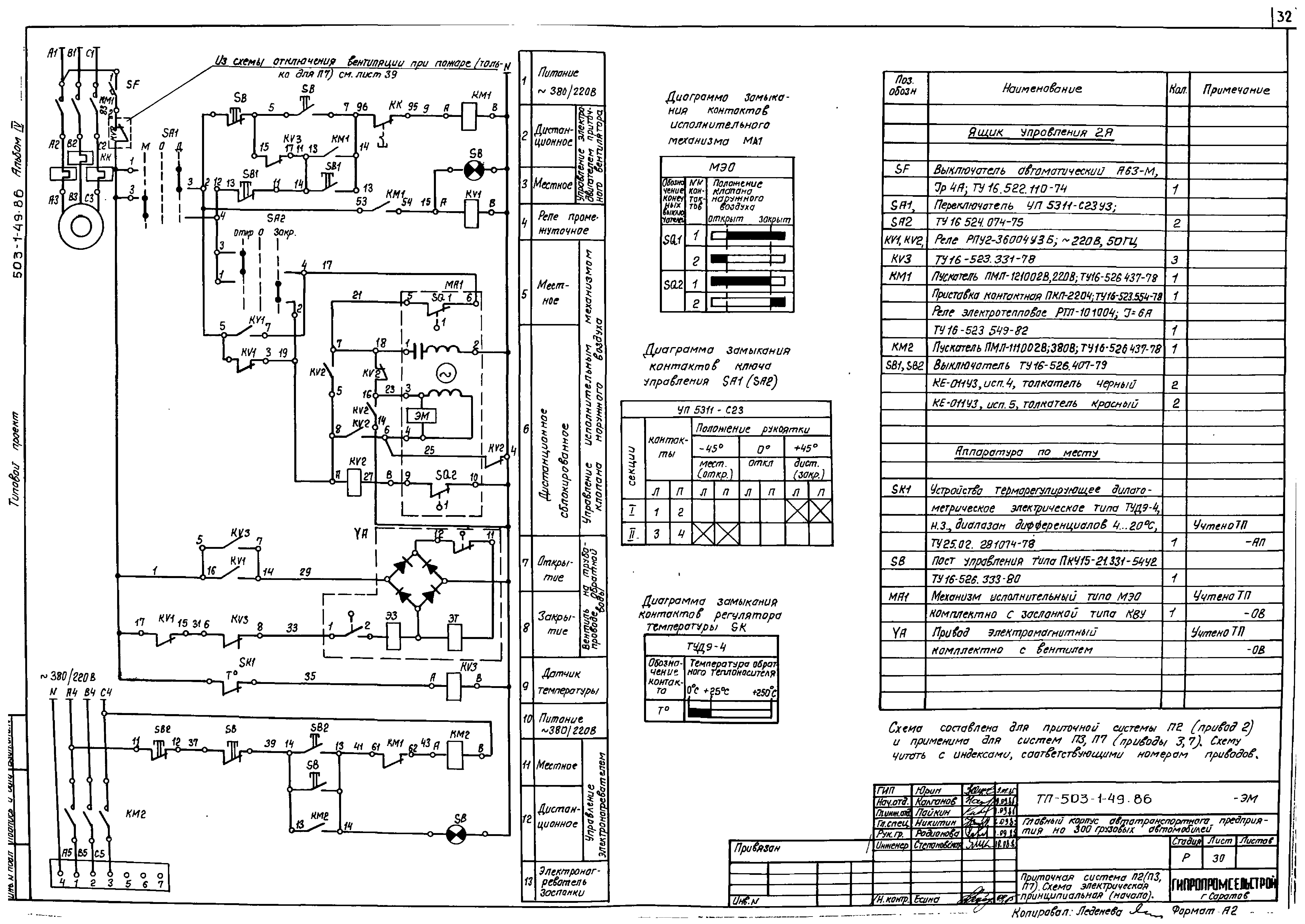
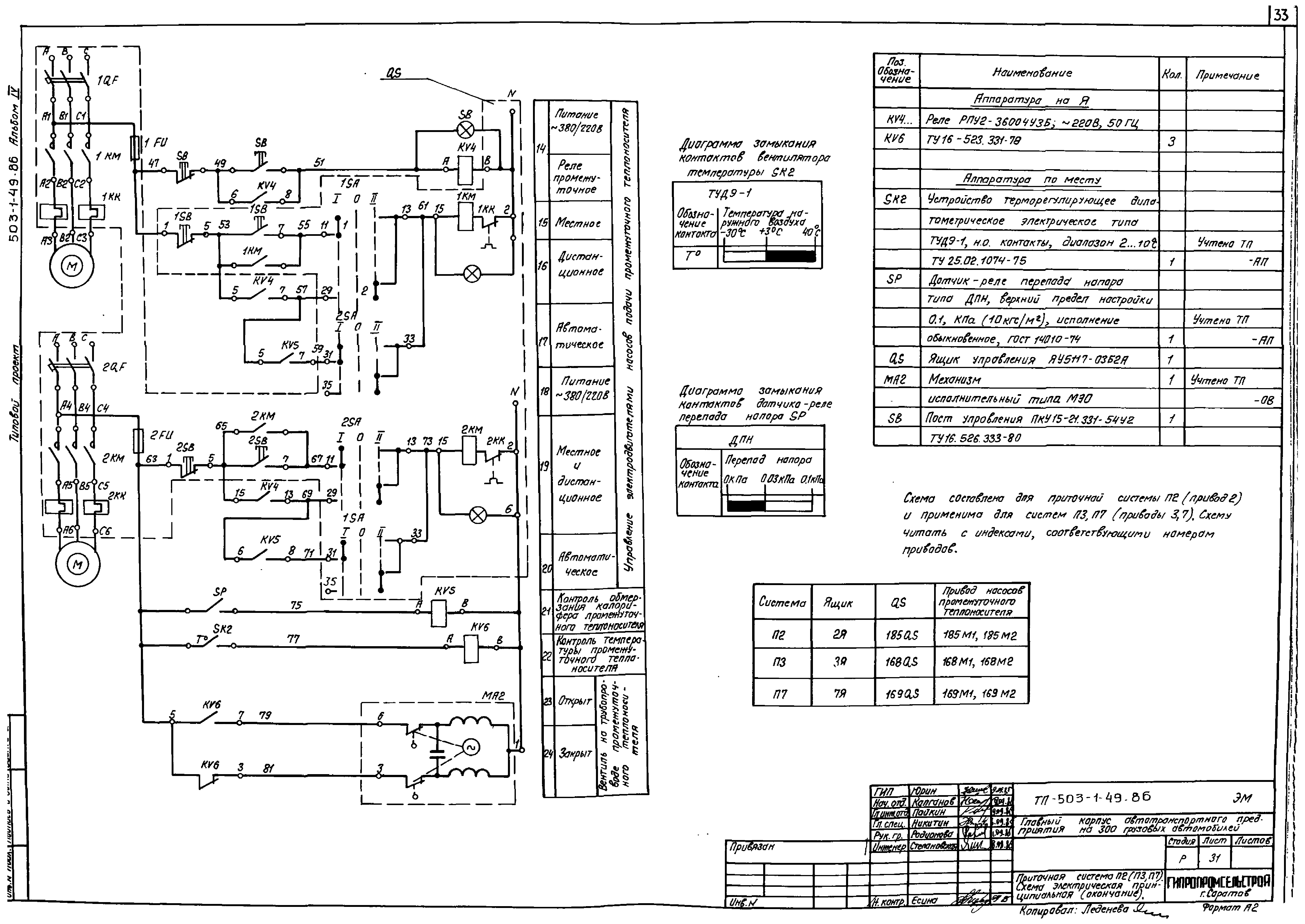
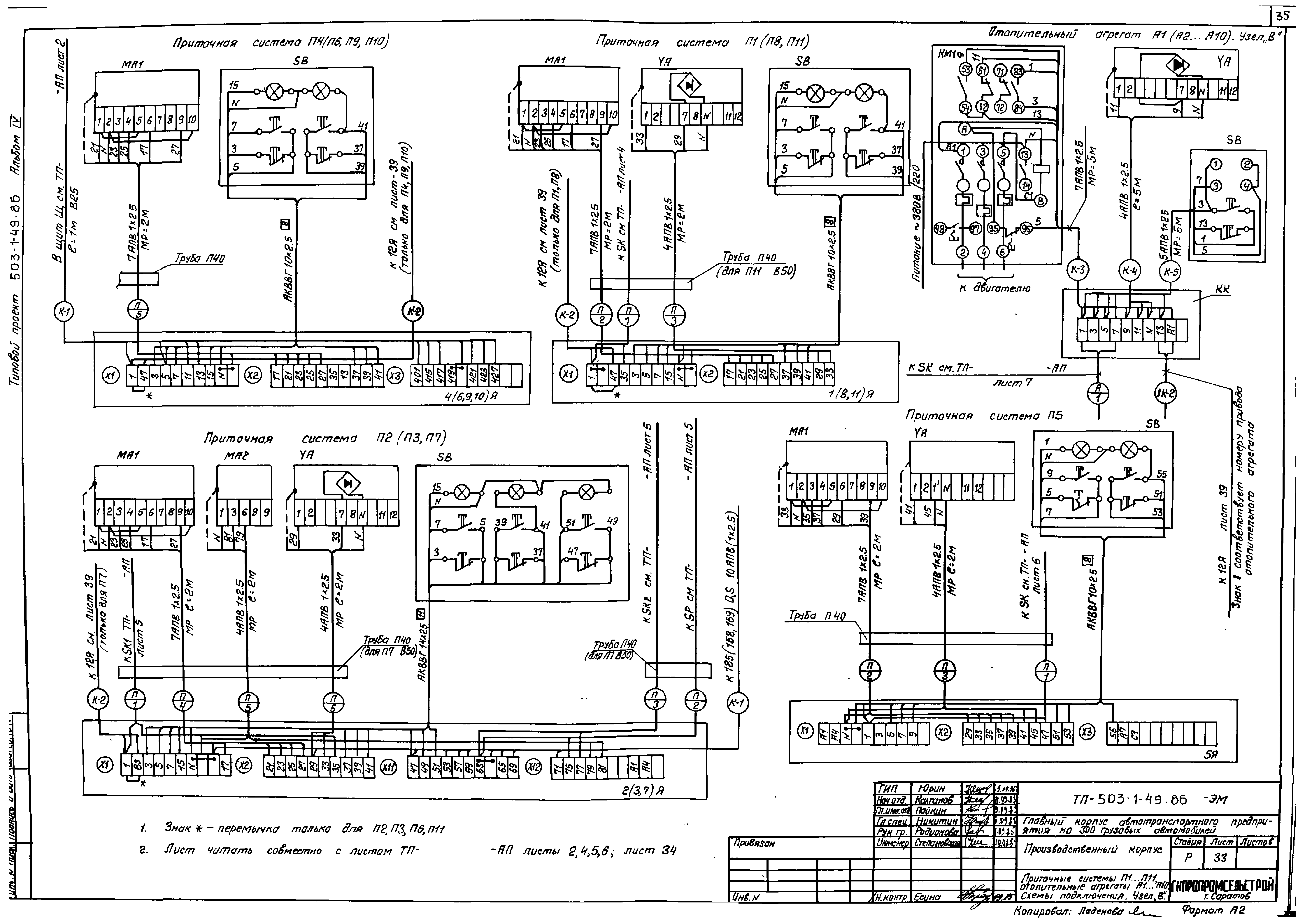
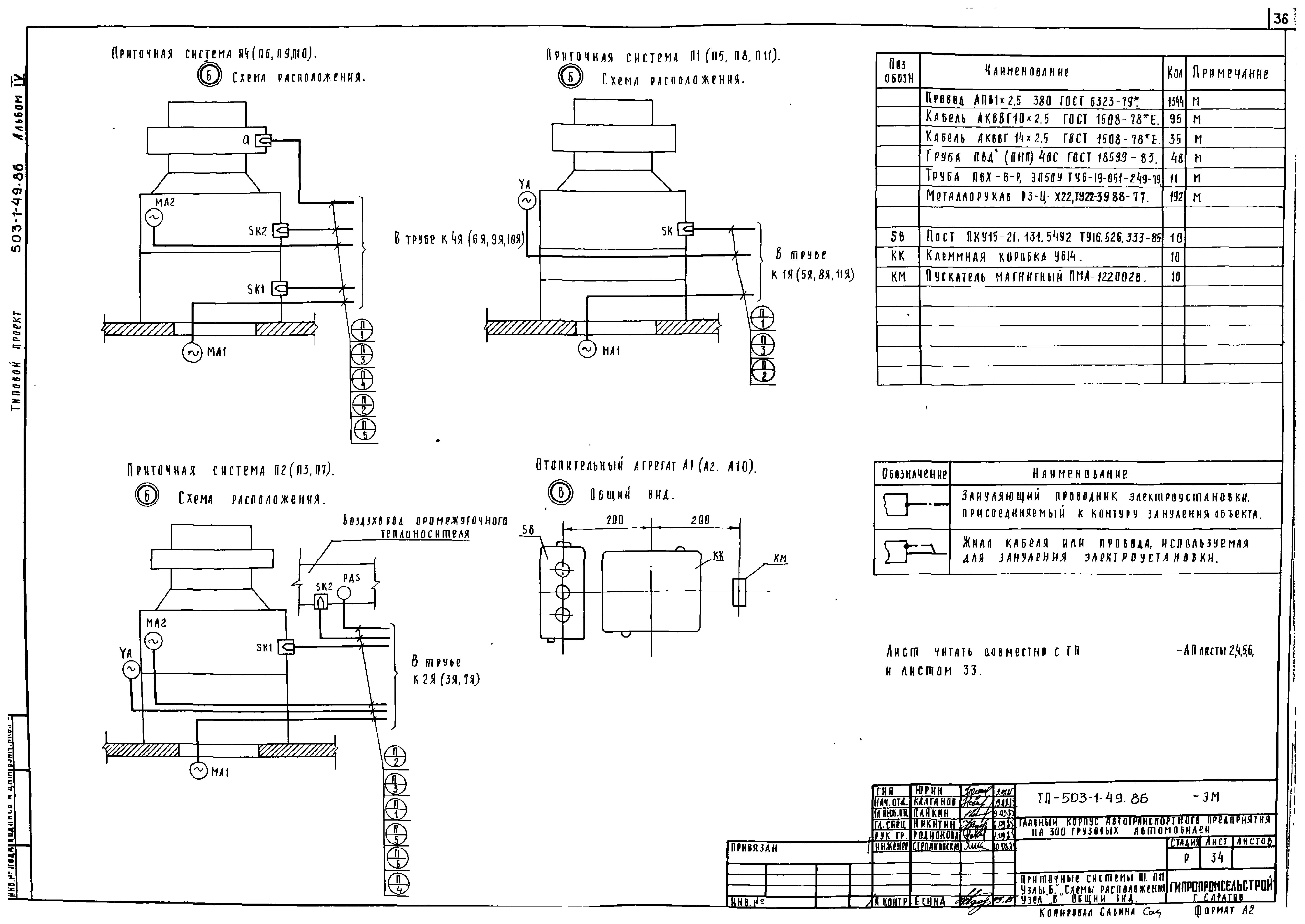
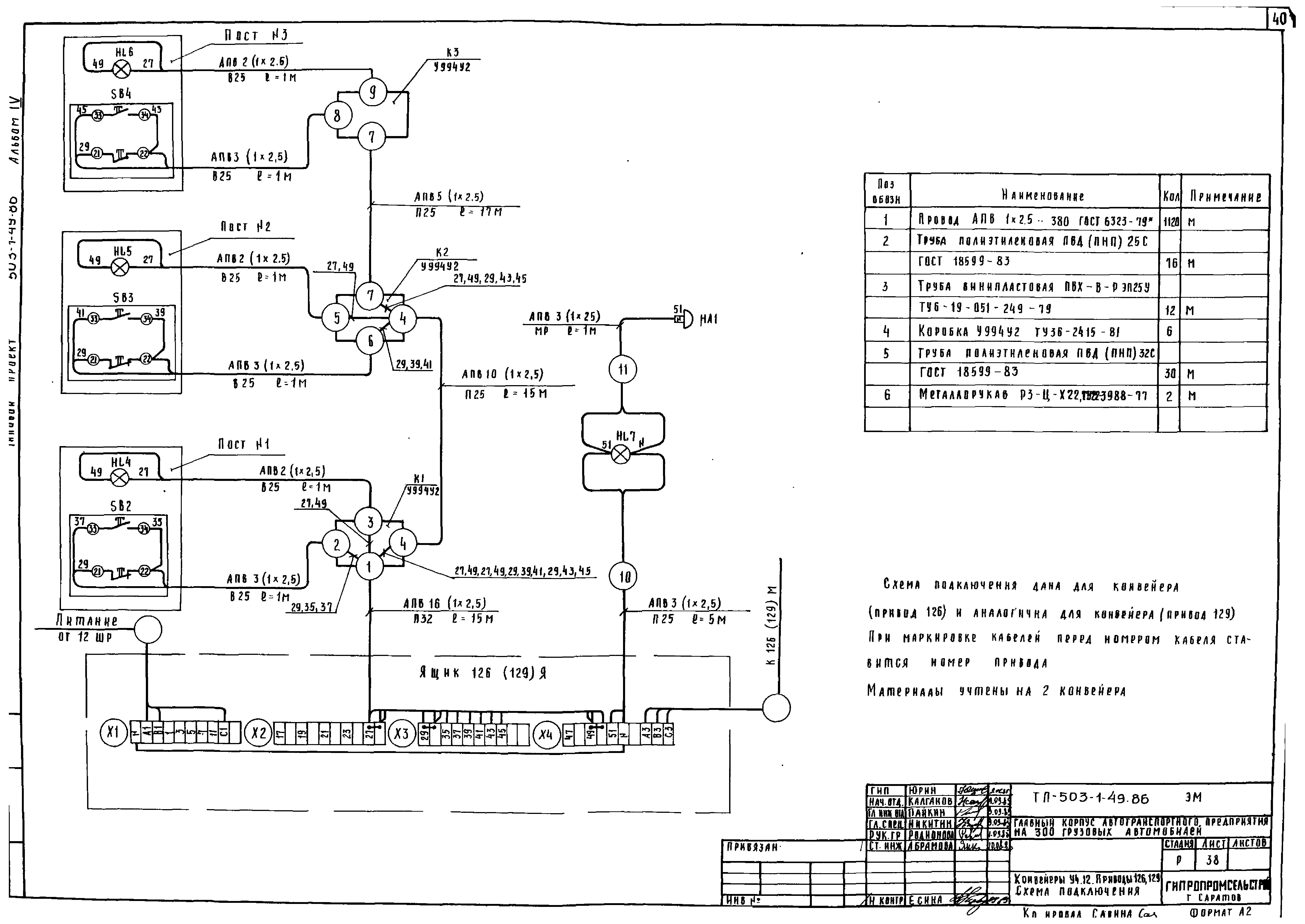
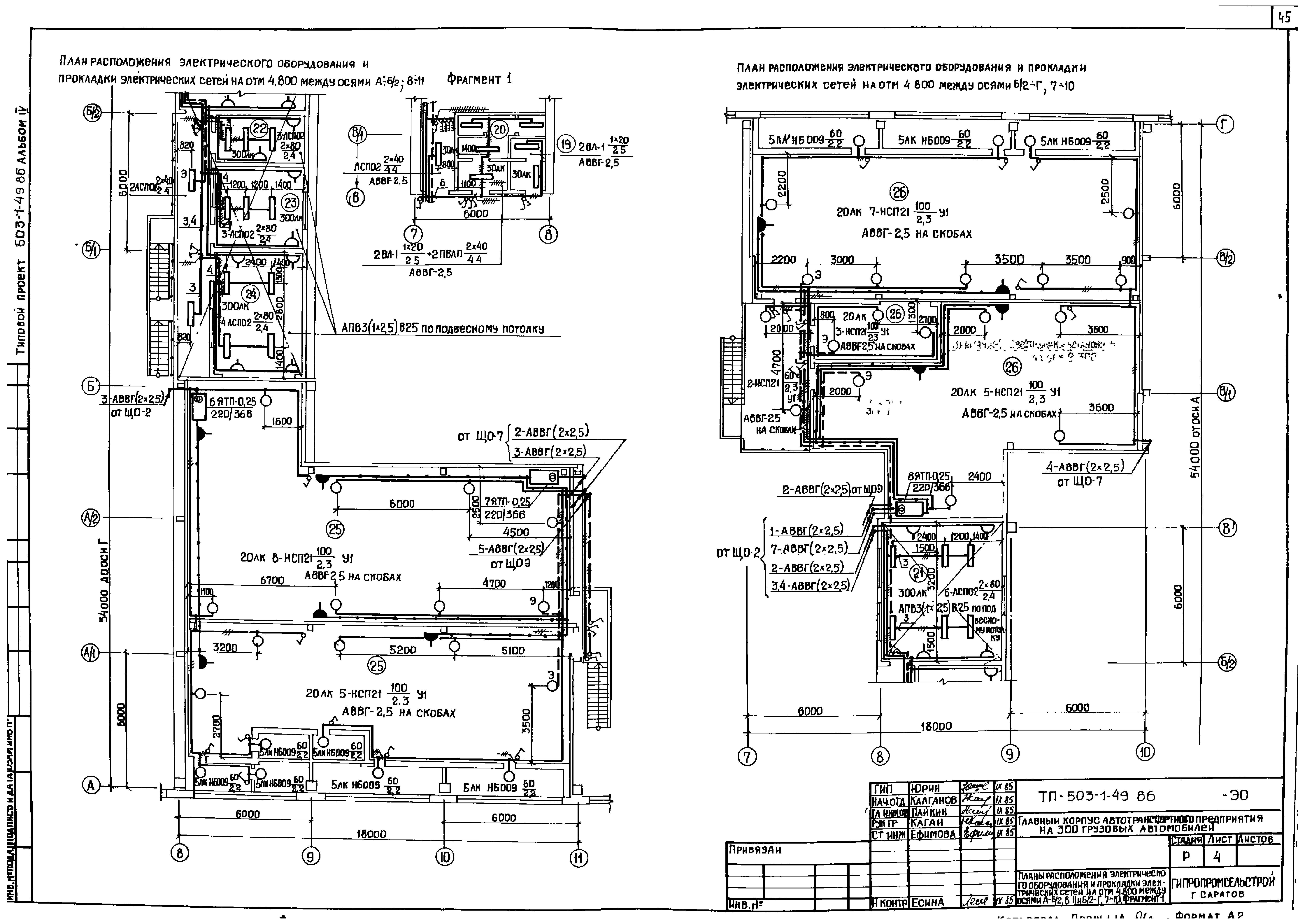
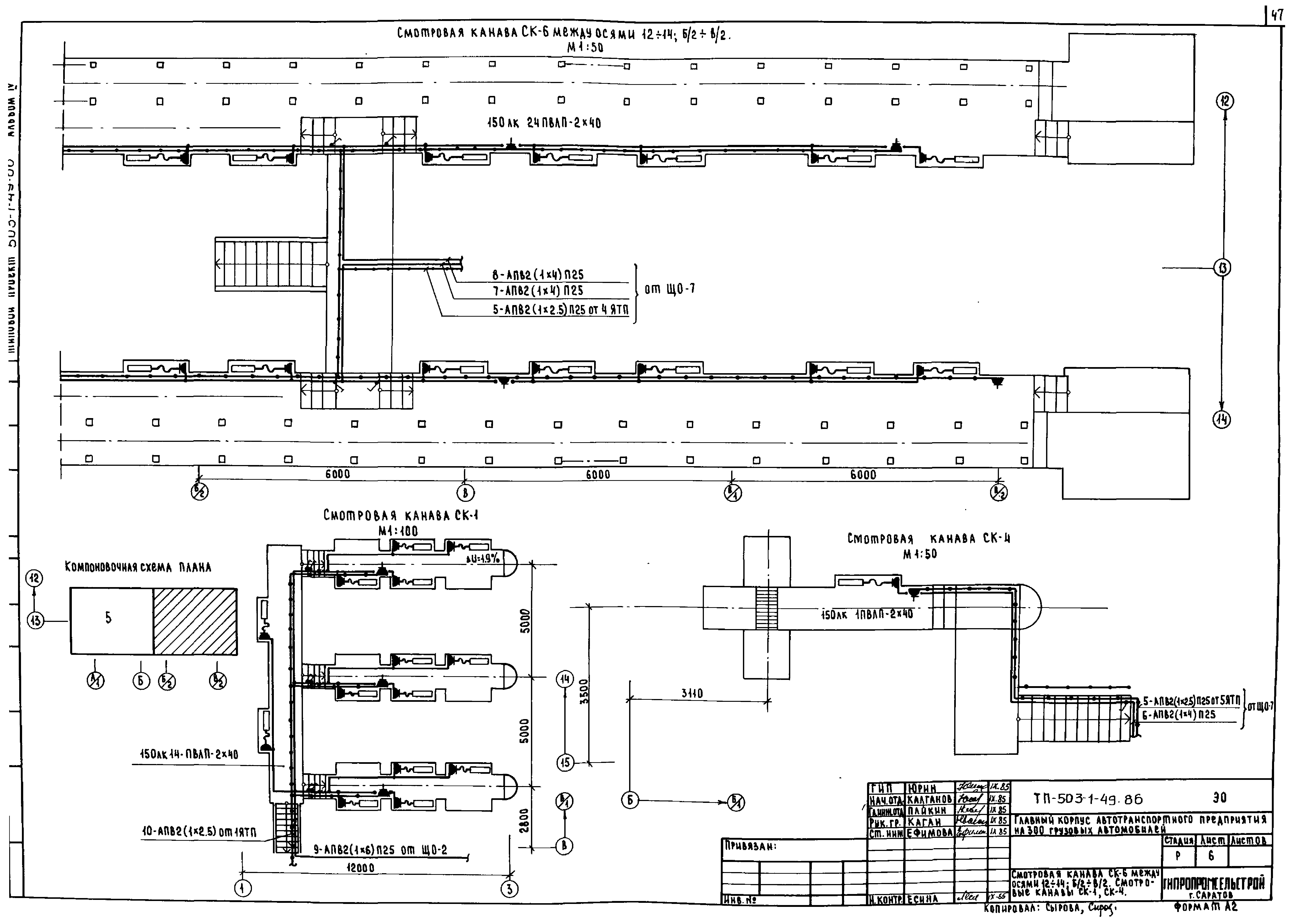
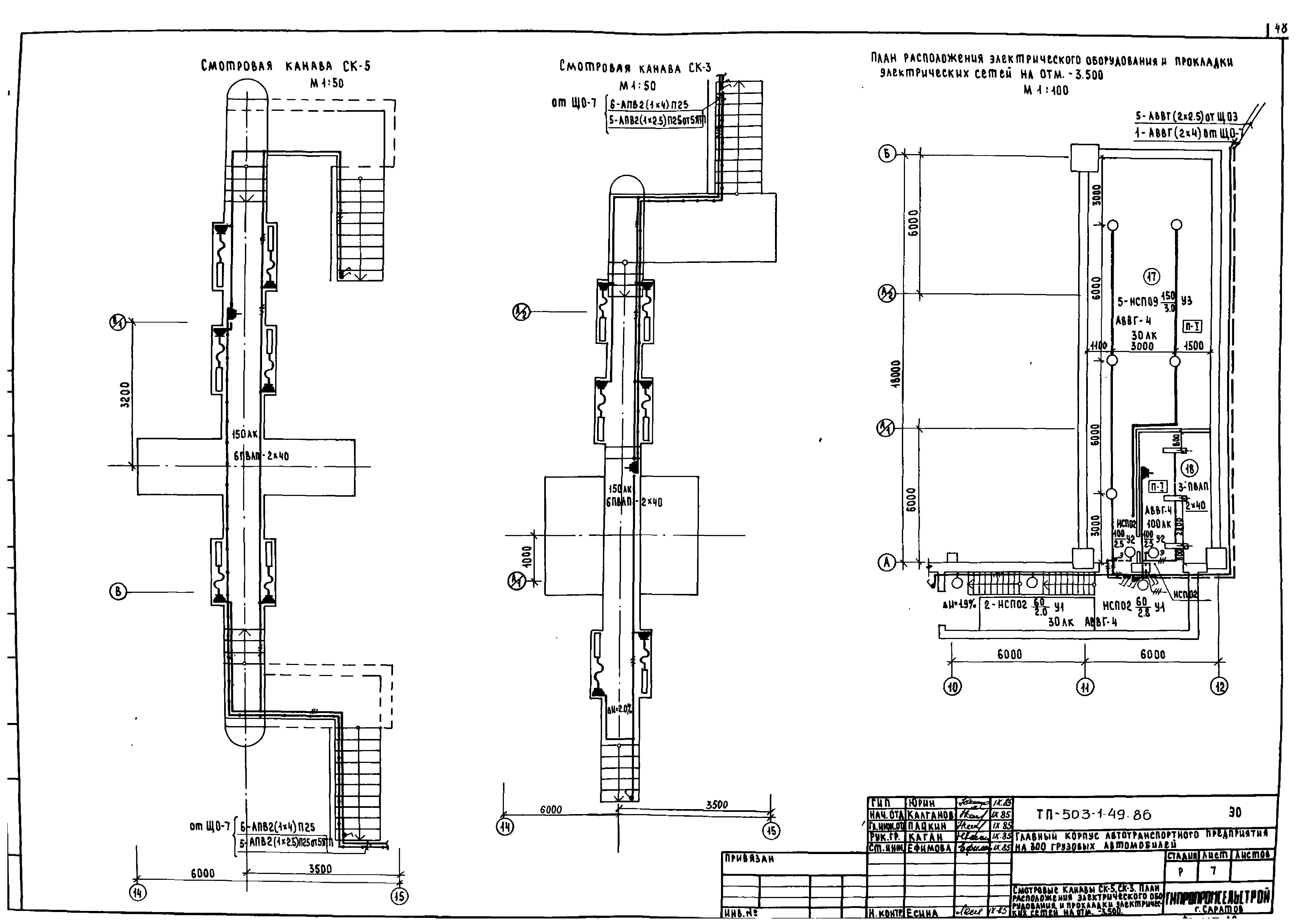
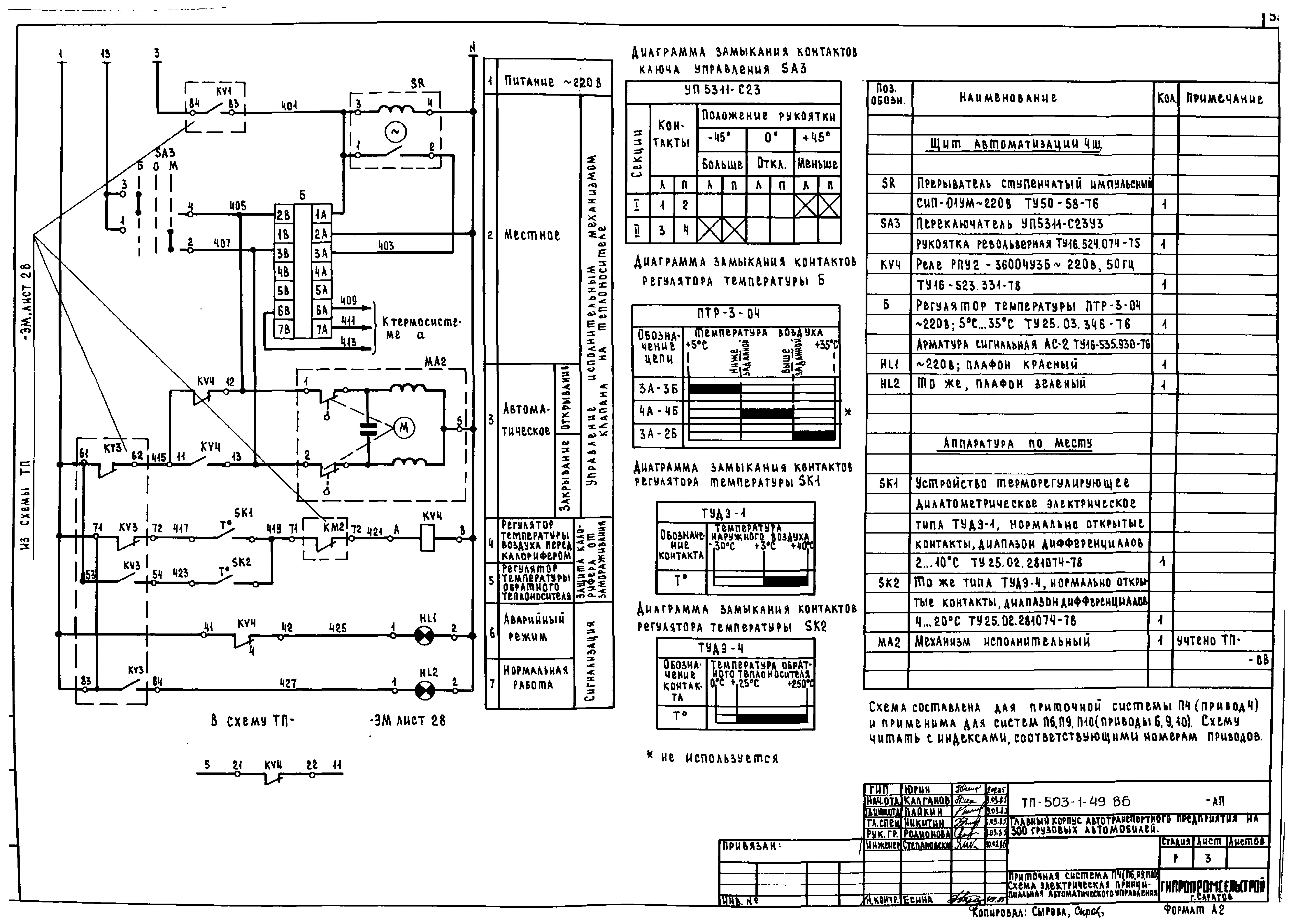
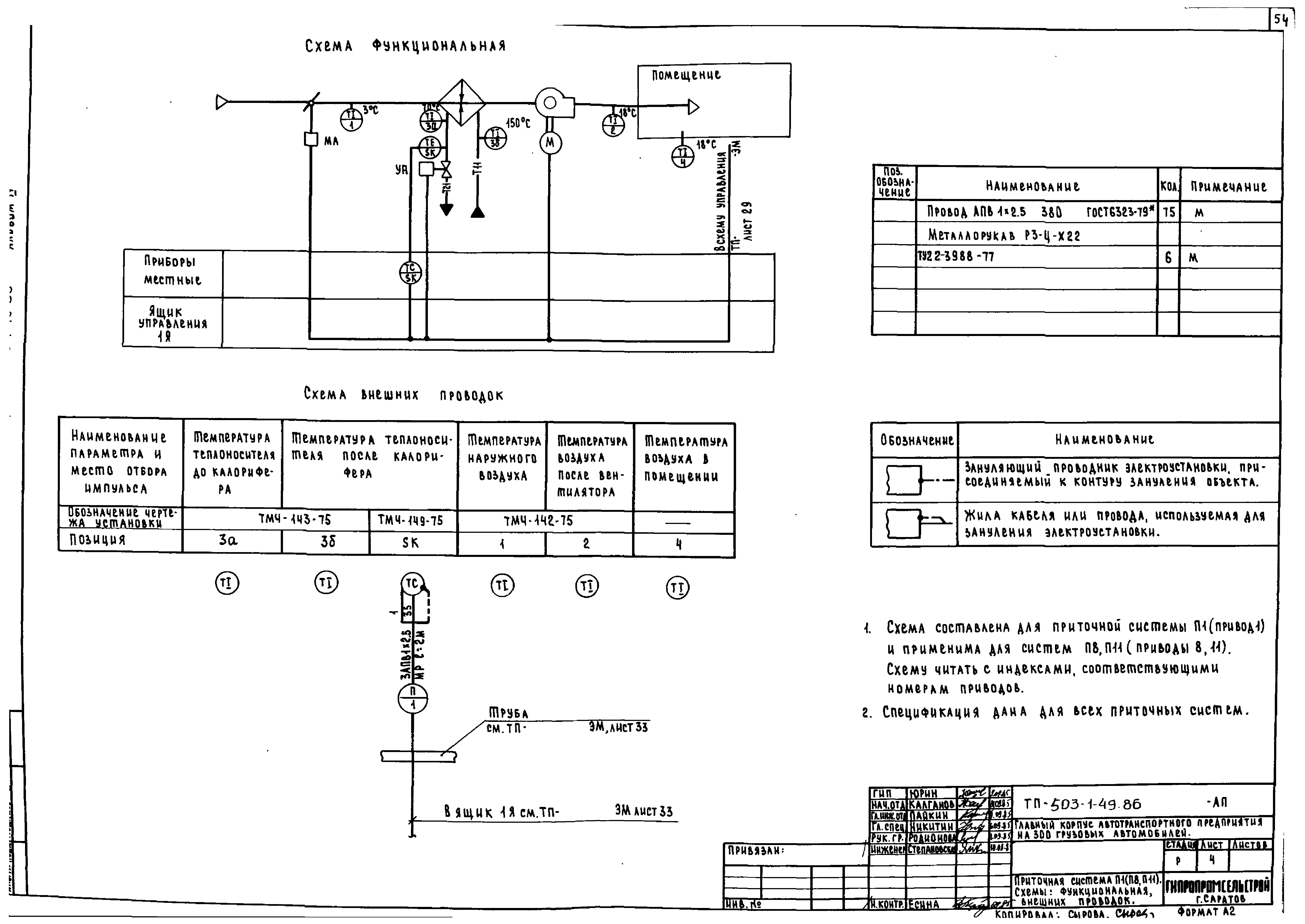
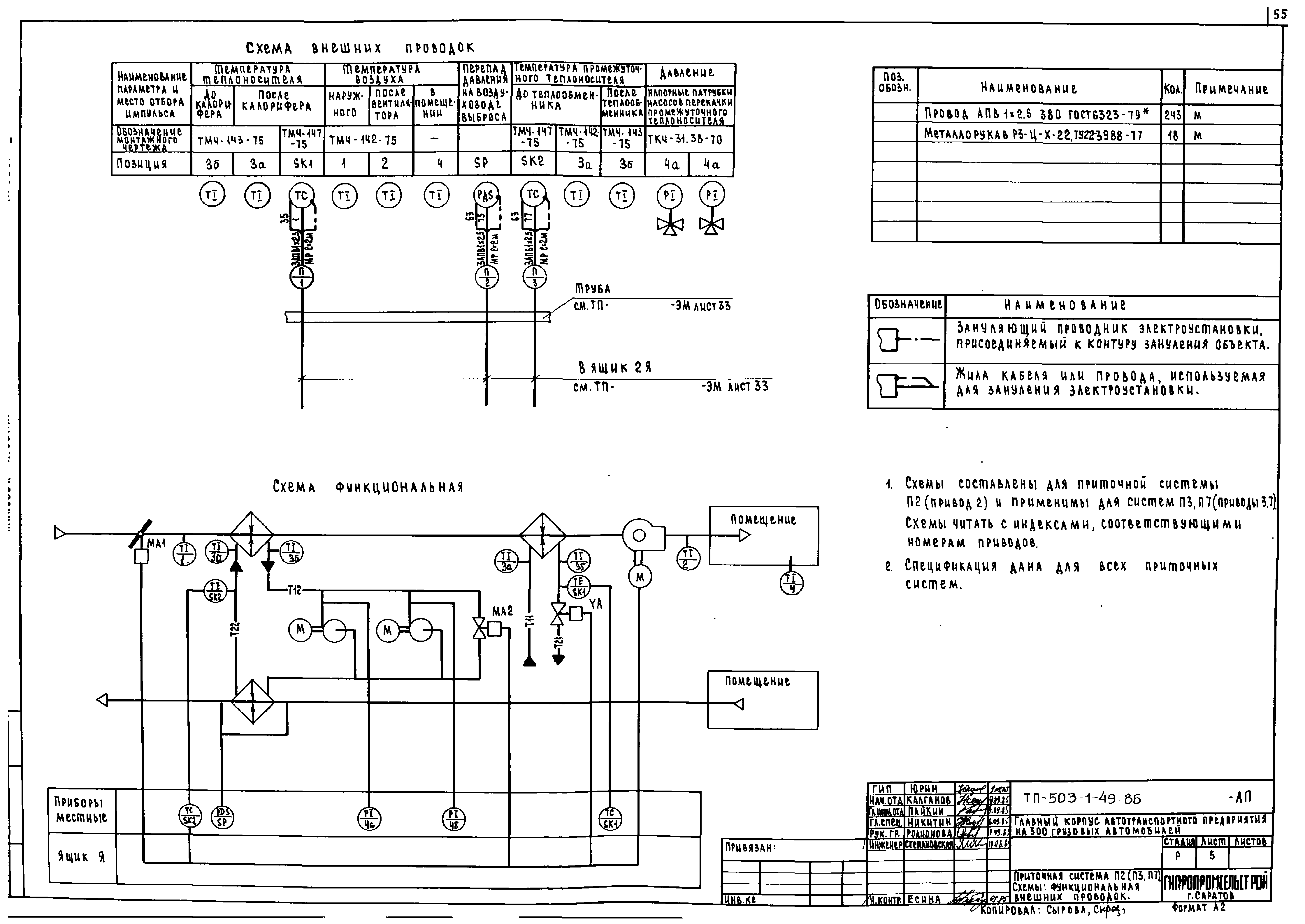
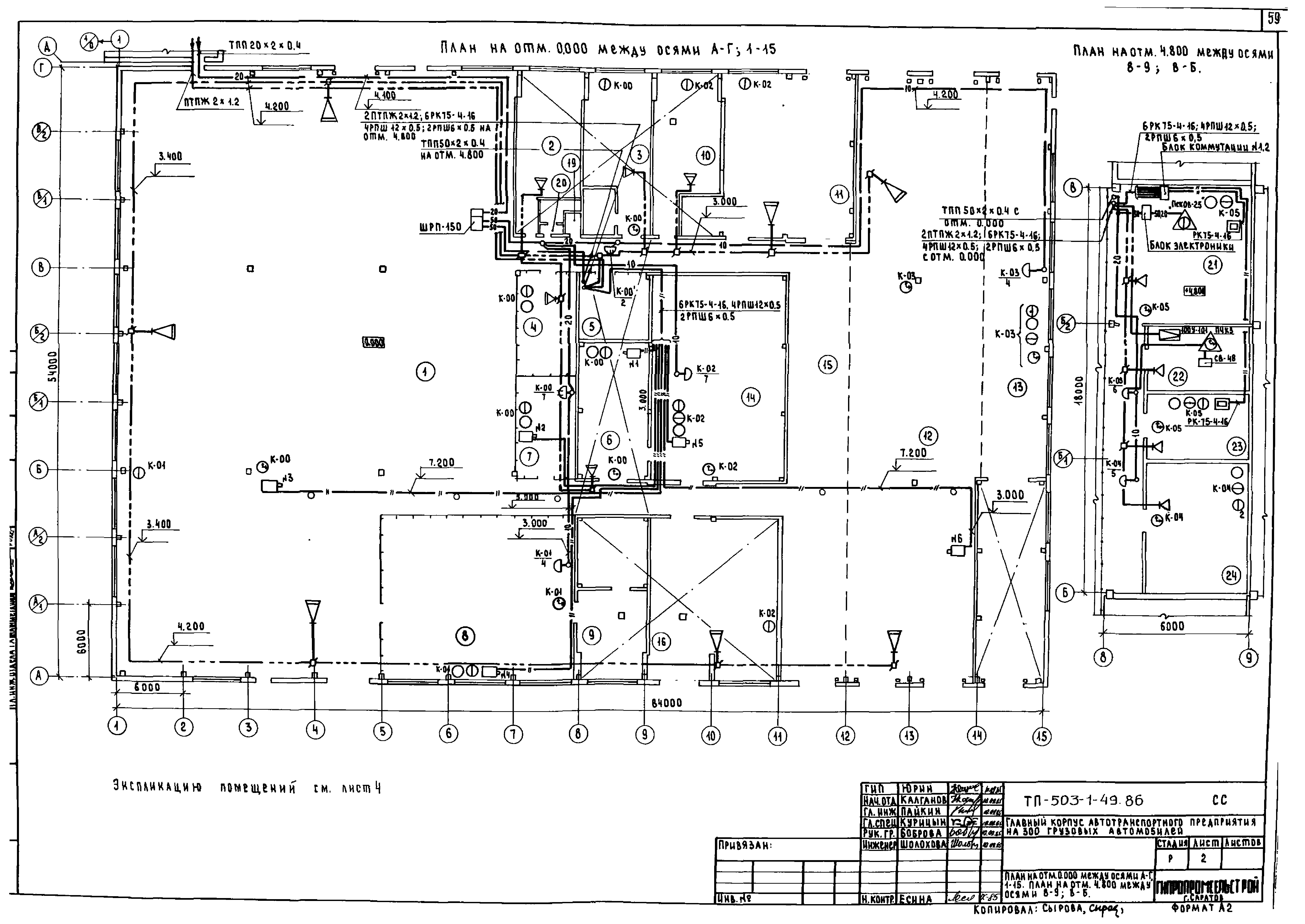
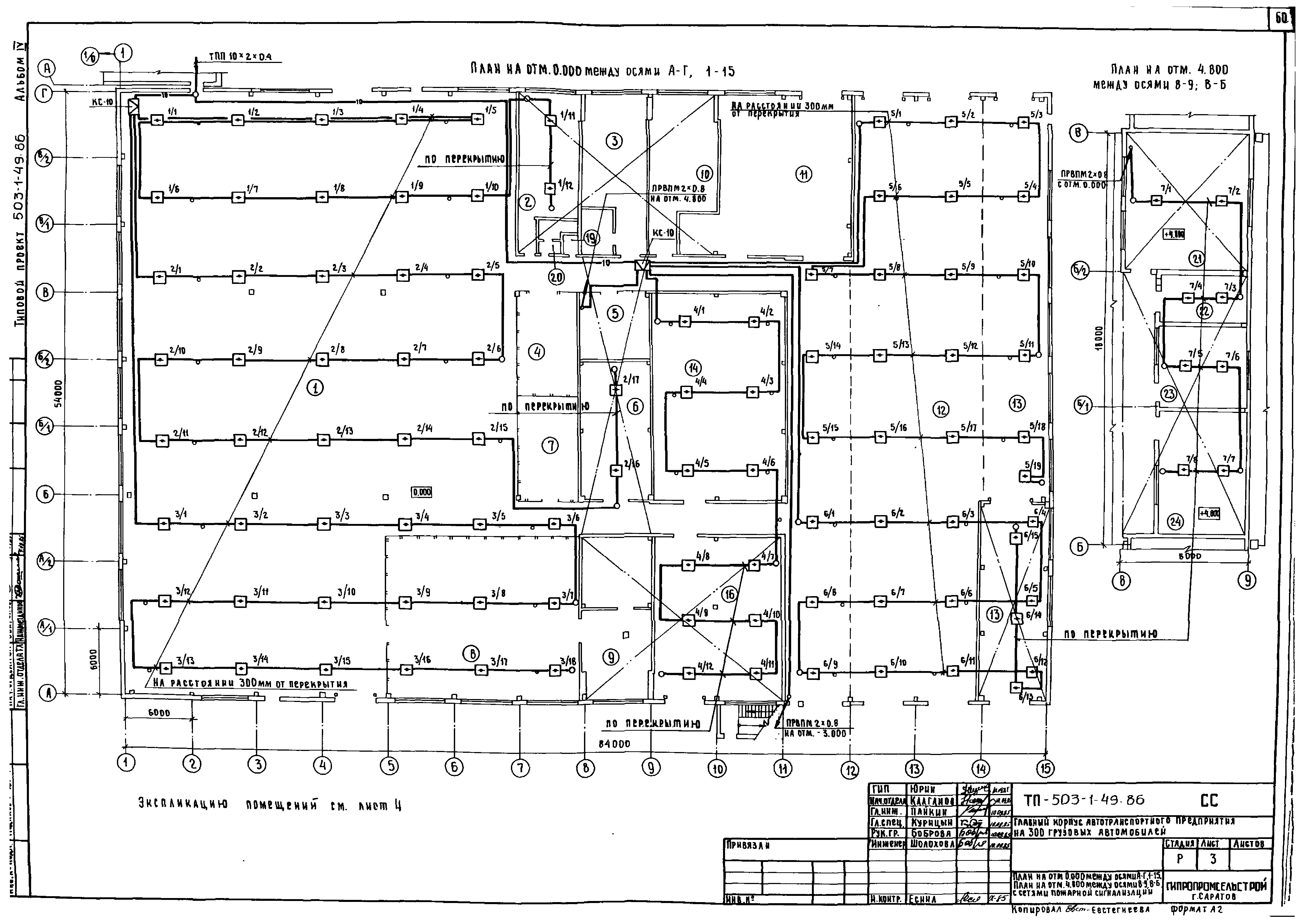
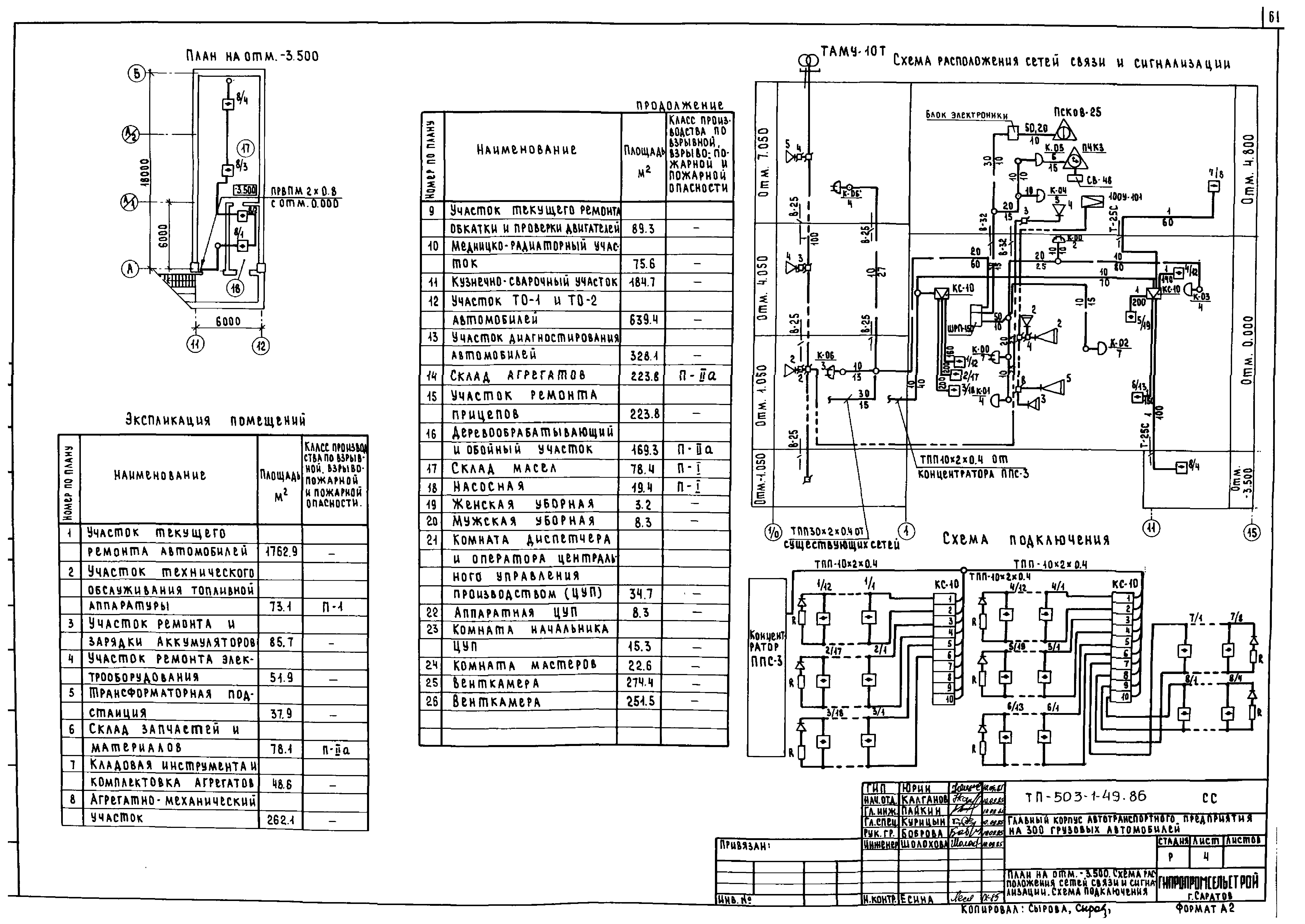
| Оглавление: | Содержание альбома Силовое электрооборудование Общие данные Опросный лист на КТП мощностью 400 кВА Армэлектрозавода Подстанция КТП-400. План ТП зануления. Разрез А-А План на отм. 0.000 Планы на отм. 0.000 и - 3.500 План на отм. 4.800 Планы на отм. - 1.050; 1.050; 4.050; 7.050 и кровли План магистральных сетей и троллейных линий на отм. 0.000 План магистральных сетей на отм. 4.800. План лотков на отм. 4.800 Планы зануления на отм. 0.000 и 4.800. Схема молниезащиты Принципиальная схема магистральной сети Расчетно-монтажная таблица Приточная система П4 (П6, П9, П10). Схема электрическая принципиальная управления Приточная система П1 (П8, П11). Схема электрическая принципиальная управления Приточная система П2 (П3, П7). Схема электрическая принципиальная Приточная система П5. Схема электрическая принципиальная управления Приточные системы П1…П11, отопительные агрегаты А1…А10. Схемы подключения. Узел "В" Приточные системы П1…П11. Узлы "Б". Схемы расположения. Узел "В". Общий вид Вентиляторы В20. Приводы 165М1, 165М2. Схемы электрическая принципиальная, подключения Отопительный агрегат А1 (А2…А10). Схема электрическая принципиальная Конвейеры уч. 12. Приводы 126, 129. Схема электрическая принципиальная Конвейеры уч. 12. Приводы 126, 129. Схема подключения Отключение вентиляции при пожаре. Схемы принципиальная, подключения Электрическое освещение Общие данные Общие данные. Экспликация помещений План расположения электрического оборудования и прокладка электрических сетей на отм. 0.000 Планы расположения электрического оборудования и прокладки электрических сетей на отм. 4.800 между осями А - Б/2; 8 - 11 и Б/2 - Г; 7 - 10. Фрагмент 1 Смотровая канава СК-6 между осями 12 - 14; А/1 - Б. Смотровая канава СК2 Смотровая канава СК-6 между осями 12 - 14; Б/2 - В/2. Смотровые канавы СК1, СК4 Смотровые канавы СК5, СК3. План расположения электрического оборудования и прокладки электрических сетей на отм. - 3.500 Планы расположения электрического оборудования и прокладки электрических сетей на отм. - 1.050; 1.050 Планы расположения электрического оборудования и прокладки электрических сетей на отм. 4.050; 7.050 Автоматизация производства Общие данные Приточная система П4 (П6, П9, П10). Схемы функциональная, внешних проводок Приточная система П4 (П6, П9, П10). Схема электрическая принципиальная автоматического управления Приточная система П1 (П8, П11). Схемы функциональная, внешних проводок Приточная система П2 (П3, П7). Схемы функциональная, внешних проводок Приточная система П5. Схемы функциональная, внешних проводок Отопительный агрегат А1 (А2…А10). Схемы функциональная, внешних проводок Связь и сигнализация Общие данные. План размещения ПТУ-53 и Псков-25 План на отм. 0.000 между осями А - Г; 1 - 15. План на отм. 4.800 между осями 8 - 9; В - Б План на отм. 0.000 между осями А - Г; 1 - 15. План на отм. 4.800 между осями 8 - 9; В - Б с сетями пожарной сигнализации План на отм. - 3.500. Схема расположения сетей связи и сигнализации. Схема подключения План на отм. 1.050 между осями 1/0 - 2; Д - И Планы на отм. 4.050; 7.050 между осями 1/0 - 2; Д - И. Схема расположения устройств телевидения |
| Разработан: | Гипропромсельстрой |
| Утверждён: | 31.10.1983 Госкомсельхозтехника СССР (66) |































































