Скачать Типовой проект 503-1-58.86 Альбом I. Архитектурно-строительная и электротехническая частиДата актуализации: 01.01.2021
|
| Обозначение: | Типовой проект 503-1-58.86 |
| Обозначение англ: | 503-1-58.86 |
| Статус: | не определен законодательством |
| Название рус.: | Альбом I. Архитектурно-строительная и электротехническая части |
| Дата добавления в базу: | 01.09.2013 |
| Дата актуализации: | 01.01.2021 |
| Дата введения: | 24.11.1986 |
| Дата окончания срока действия: | 30.06.2003 |
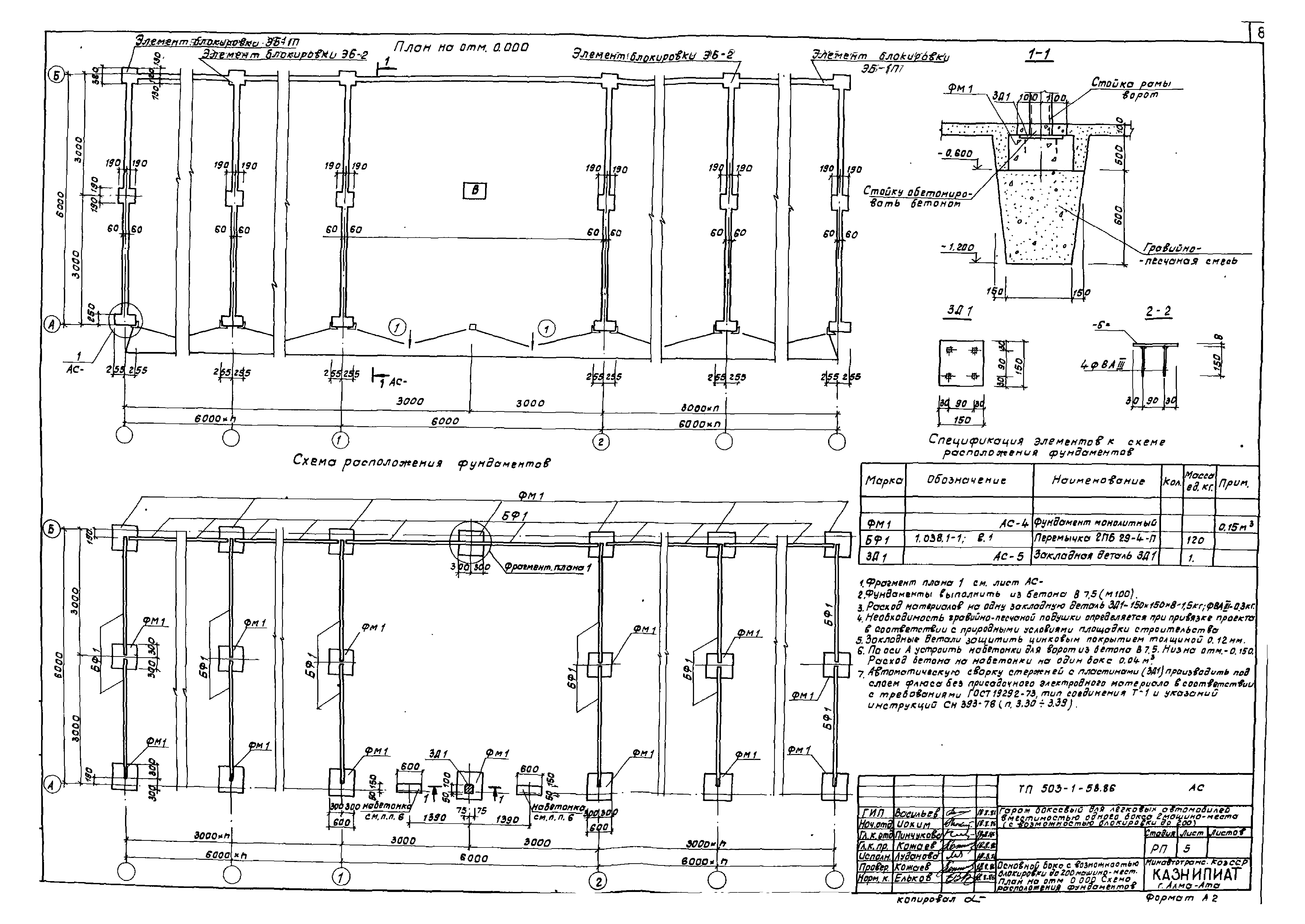
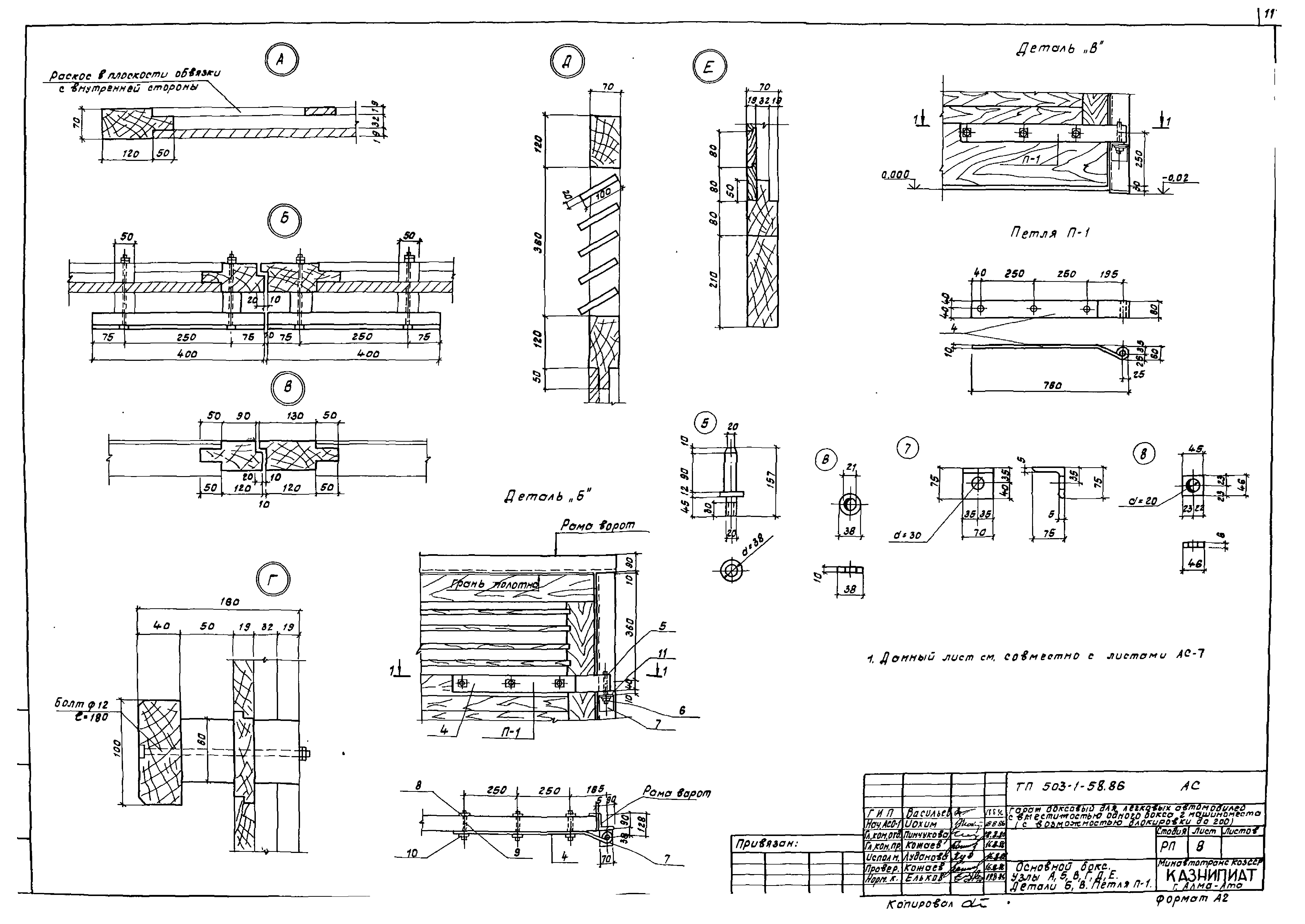
| Оглавление: | Пояснительная записка. Содержание альбома Схема генерального плана Чертежи основного комплекта марки АС Общие данные Схема компоновки гаражей Основной бокс. План, фасады. Разрезы Основной бокс. Схема расположения фундаментов Основной бокс с возможностью блокировки до 200 машино-мест. План на отм. 0.000. Схема расположения фундаментов Схемы расположения плит покрытия. Узлы А; 1 - 4 Основной бокс. Рама ворот РВ. Полотно ворот Основной бокс. Узлы А, Б, В, Г, Д, Е. Детали "Б", "В". Петля П-1 Основной бокс. Полотно ворот гаража. Деталь "Б". Шпингалет М1 Основной бокс. Щеколда фалевая ЩФ Чертежи основного комплекта марки ЭО Общие данные. План электроосветительной сети основного бокса Спецификация оборудования |
| Разработан: | КазНИПИАТ НПО КазАВТОТРАНСТЕХНИКА |
| Утверждён: | 24.11.1986 Госстрой Казахской ССР (250) |















