Скачать Типовой проект 274-20-169.90 Альбом I. Архитектурно-строительные чертежи. Отопление и вентиляция. Водопровод и канализация. Электроосвещение и электрооборудование. Связь и сигнализация. Автоматика вентсистем. ТехнологияДата актуализации: 01.01.2021
|
| Обозначение: | Типовой проект 274-20-169.90 |
| Обозначение англ: | 274-20-169.90 |
| Статус: | не определен законодательством |
| Название рус.: | Альбом I. Архитектурно-строительные чертежи. Отопление и вентиляция. Водопровод и канализация. Электроосвещение и электрооборудование. Связь и сигнализация. Автоматика вентсистем. Технология |
| Дата добавления в базу: | 01.09.2013 |
| Дата актуализации: | 01.01.2021 |
| Дата введения: | 01.11.1990 |
| Дата окончания срока действия: | 30.06.2003 |
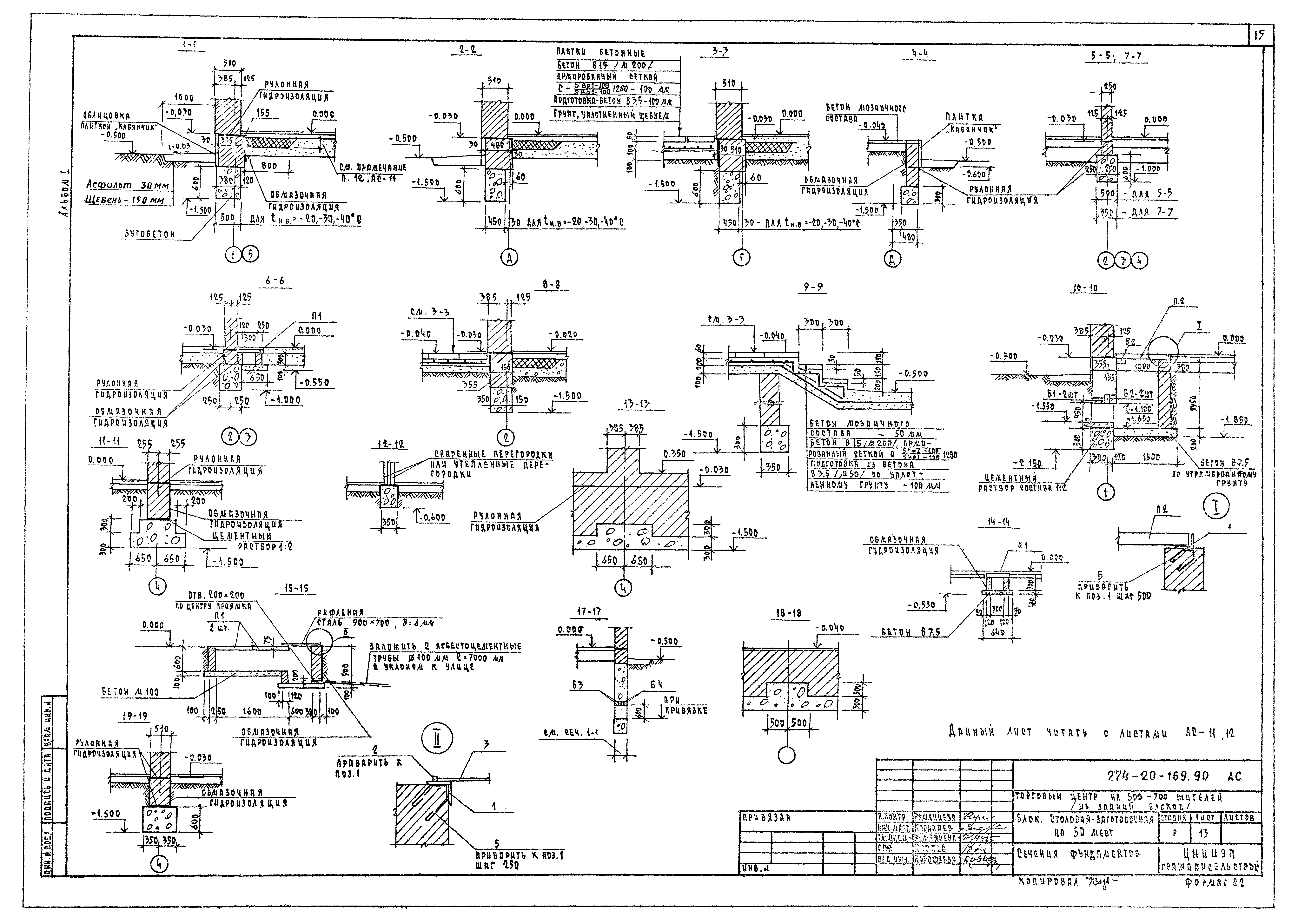
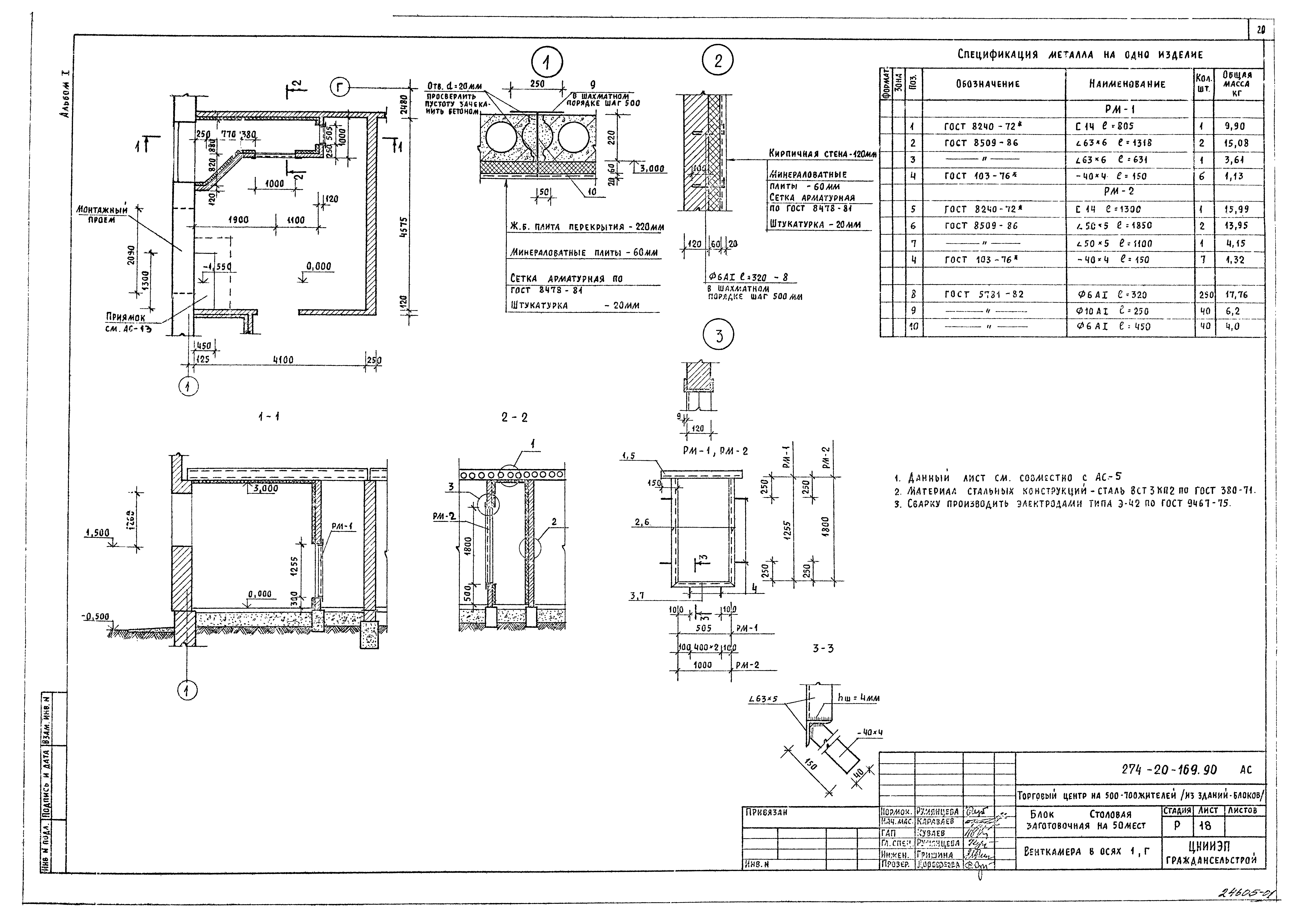
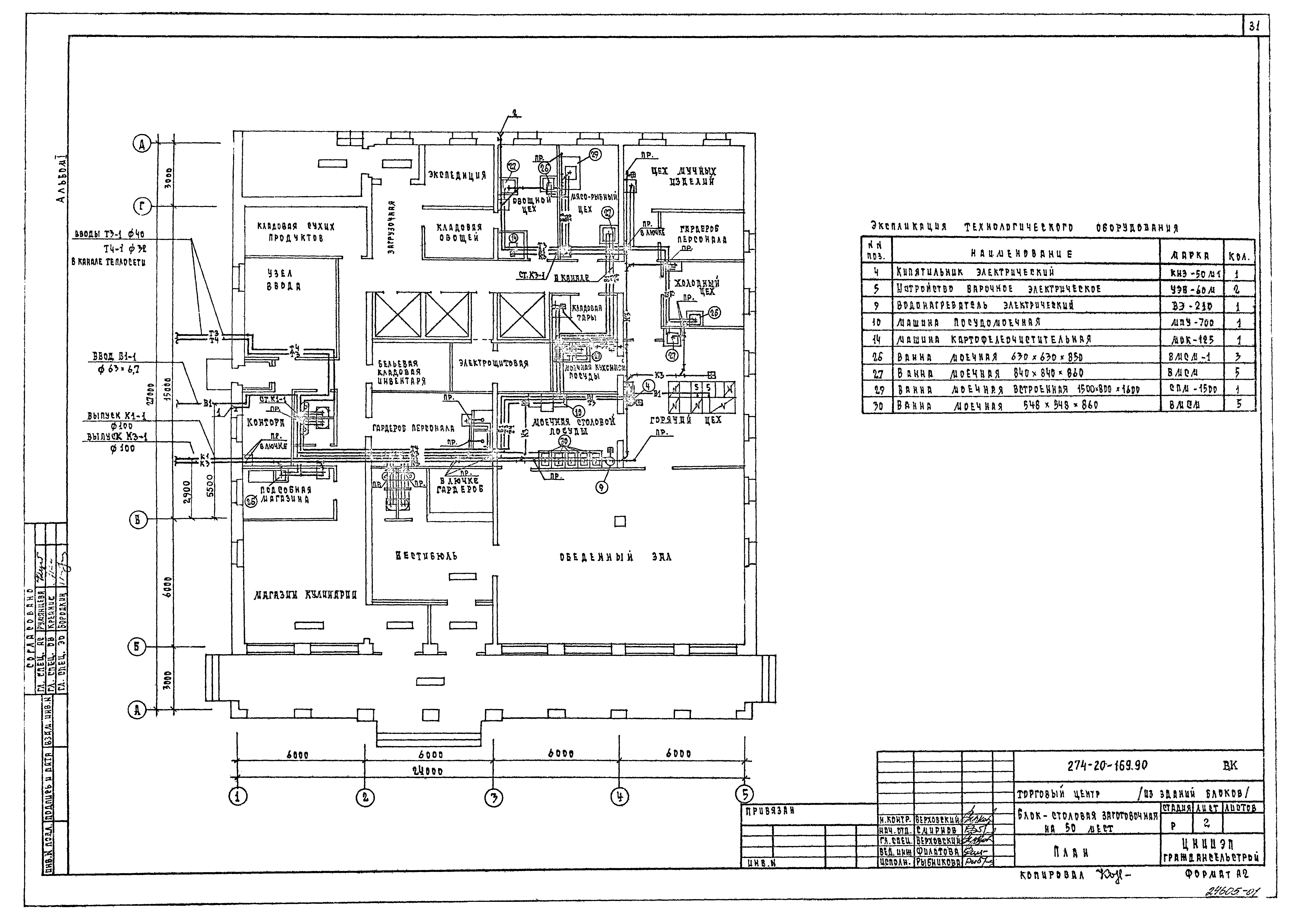
| Оглавление: | Содержание альбома Архитектурно-строительные чертежи АС Общие данные Фасад 1 - 5; А - Д; Д - А. Фрагмент фасада Фасад 5 - 1. Разрезы 1-1, 2-2 Кладочный план. Отделочные работы План отделочных работ. Ведомость отделки помещений. Экспликация полов План перегородок из гипсобетонных панелей Спецификация столярных и железобетонных изделий Монтажная схема витража №1 (№1н) Монтажная схема витражей №2 и 3 Фундаменты. Таблица расчетных нагрузок. Спецификация План фундаментов. Подпольные каналы. Сечения Сечения фундаментов План плит перекрытия на отм. 3.000 Монолитные участки УМ-1 - УМ-4. Анкера Схема перемычек. Ведомость перемычек Спецификация к схеме перемычек. Сечения. Узлы Венткамера в осях 1, Г План крыши Схема армирования облегченной кладки Отопление и вентиляция ОВ Общие данные План этажа Схема системы отопления. Схема теплоснабжения установки П1 Узел управления Установка системы П-1 Схемы систем П-1, В1 - В5, ВЕ-1 - ВЕ-6 Водопровод и канализация ВК Общие данные План Схемы систем В1, Т3, Т4 Схемы систем К1, К3 Электроосвещение и электрооборудование ЭО Общие данные Принципиальная схема питающей сети План расположения осветительных сетей План расположения силовых и питающих сетей Расчетная схема силовых сетей Опросный лист на вводно-распределительное устройство Связь и сигнализация СС Общие данные Схема расположения устройств связи План расположения сетей связи на этаже План расположения сетей пожарной сигнализации на этаже Автоматика вентсистем АВ Общие данные Вентсистема №1. Схема автоматизации Схема принципиальная электрическая управления Схема подключений П-1. Схема расположений П-1 Технология ТХ Общие данные План |
| Разработан: | ЦНИИЭП граждансельстрой |
| Утверждён: | 23.03.1978 Госкомархитектура (66) |


















































