Скачать Типовой проект 274-23-27.91 Альбом 1. Архитектурно-строительные решения. Технология производства. Отопление и вентиляция. Водопровод и канализация. Электрическое освещение. Автоматизация. Электрооборудование. Связь и сигнализацияДата актуализации: 01.01.2021
|
| Обозначение: | Типовой проект 274-23-27.91 |
| Обозначение англ: | 274-23-27.91 |
| Статус: | не определен законодательством |
| Название рус.: | Альбом 1. Архитектурно-строительные решения. Технология производства. Отопление и вентиляция. Водопровод и канализация. Электрическое освещение. Автоматизация. Электрооборудование. Связь и сигнализация |
| Дата добавления в базу: | 01.09.2013 |
| Дата актуализации: | 01.01.2021 |
| Дата введения: | 20.05.1991 |
| Дата окончания срока действия: | 30.06.2003 |
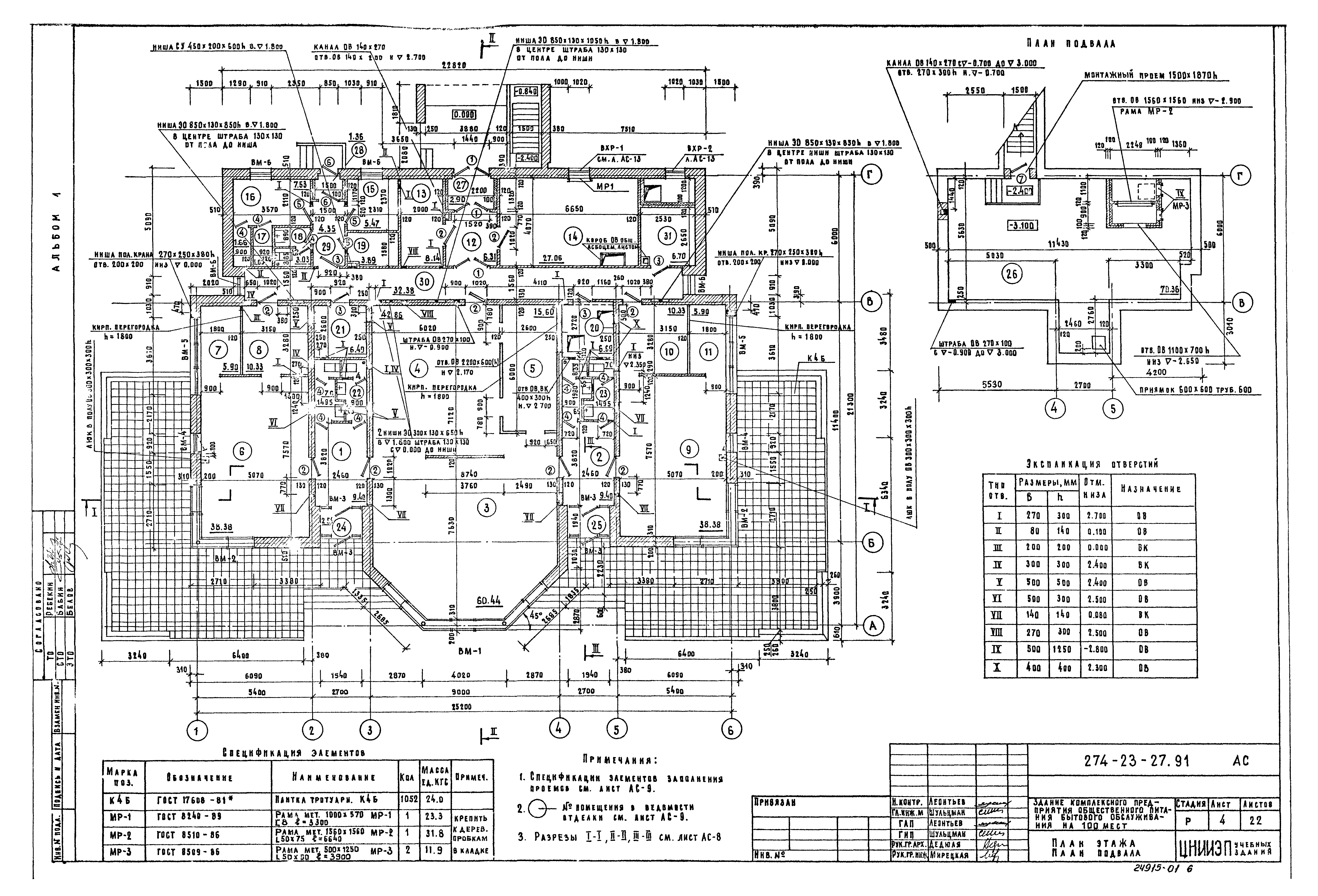
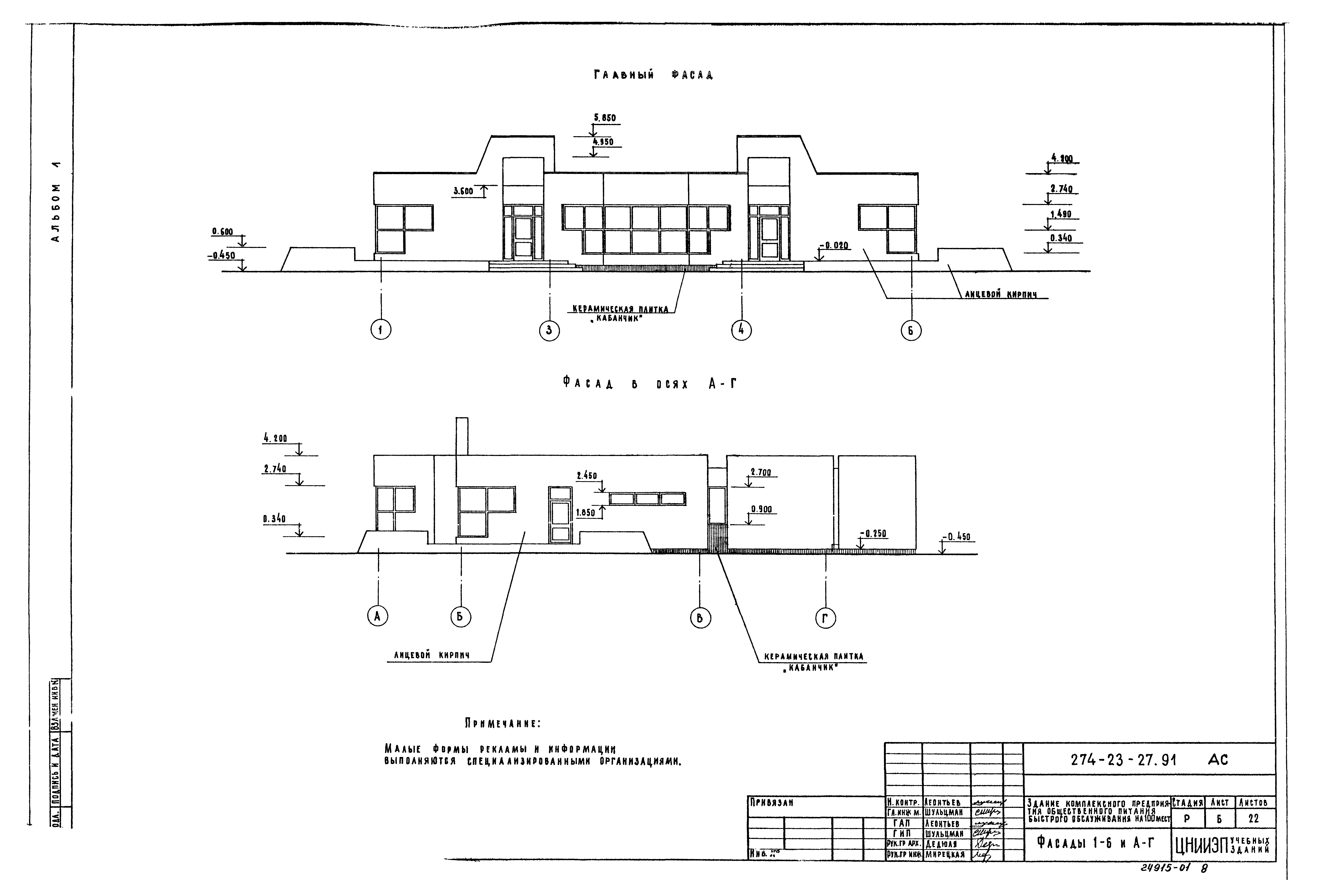
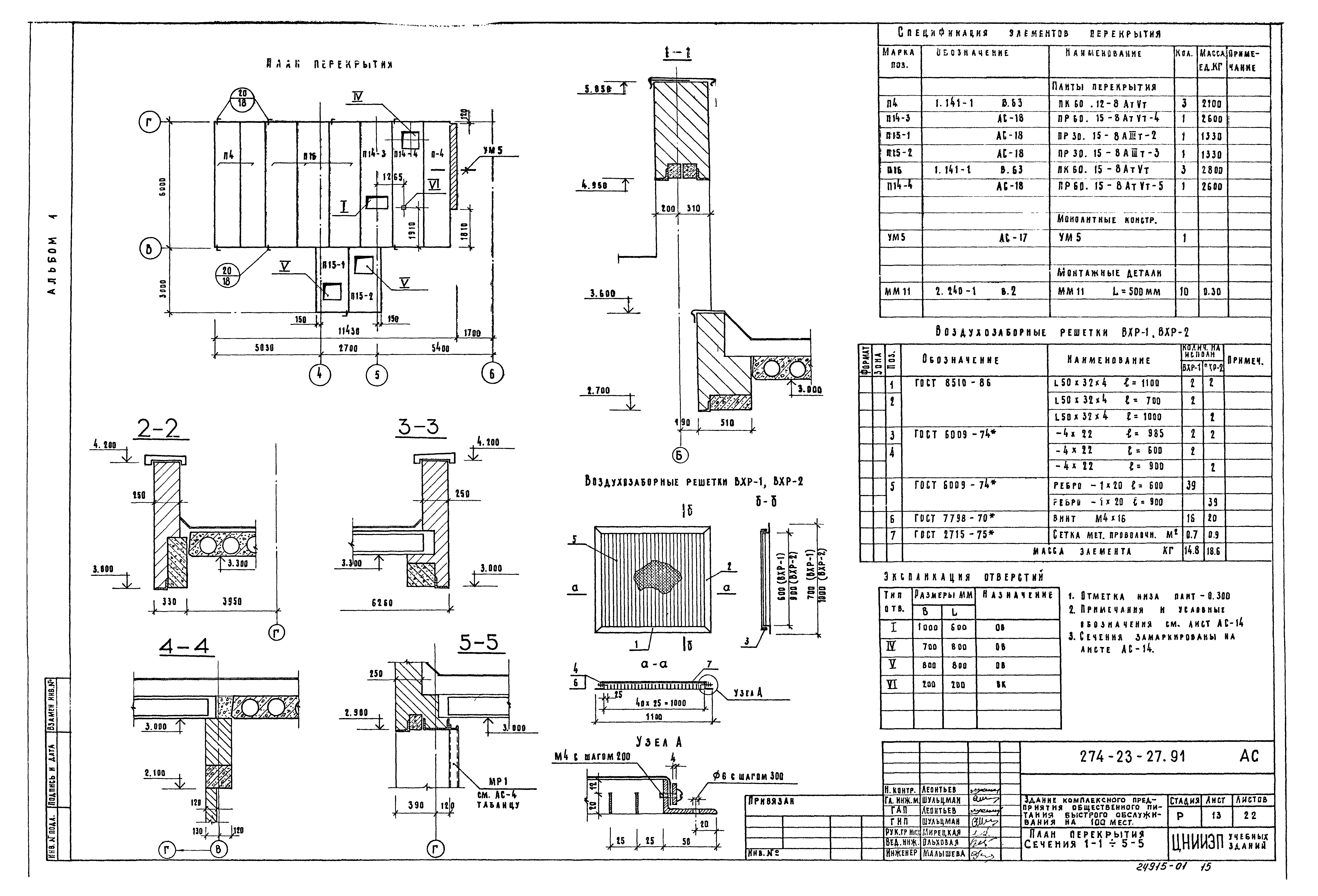
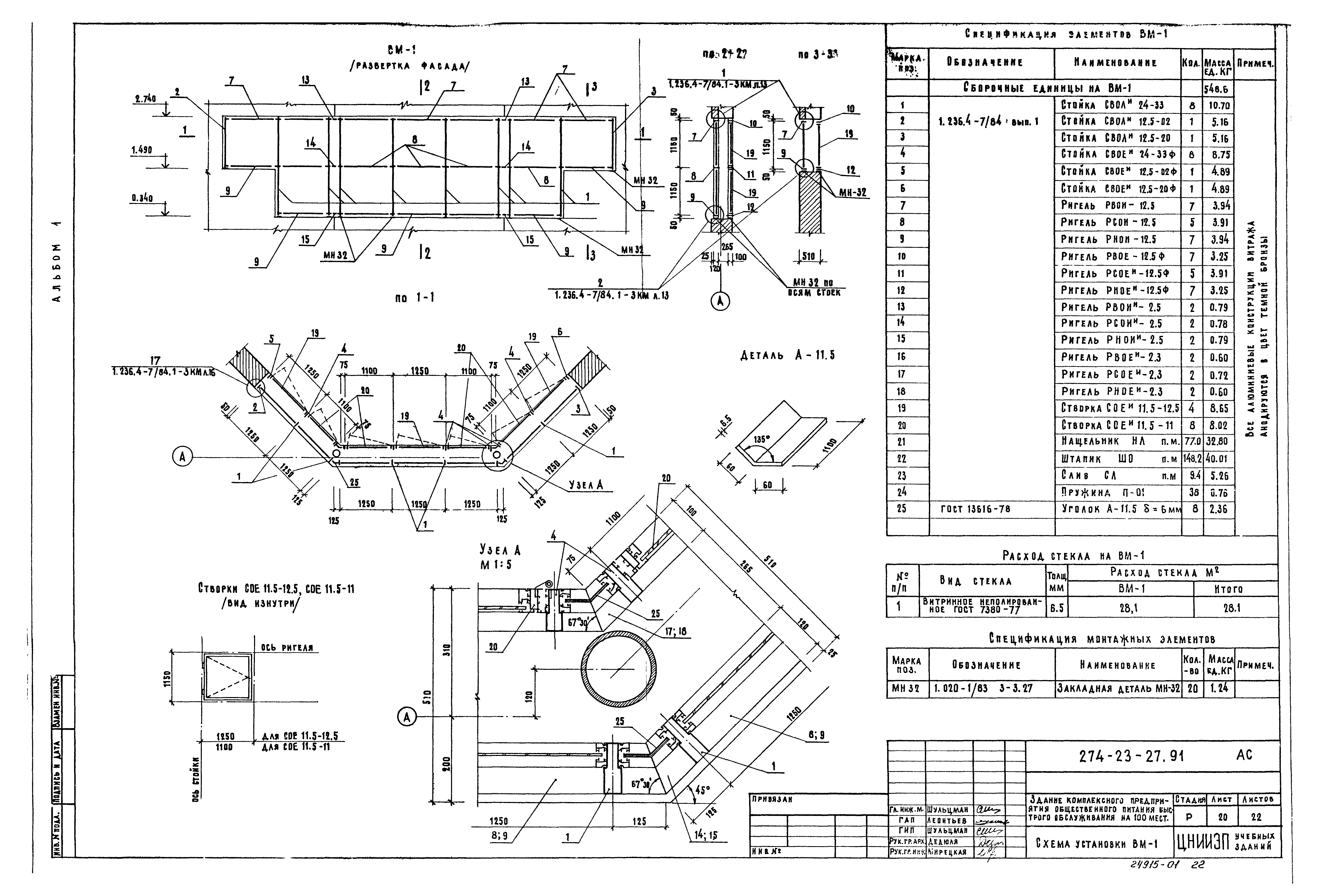
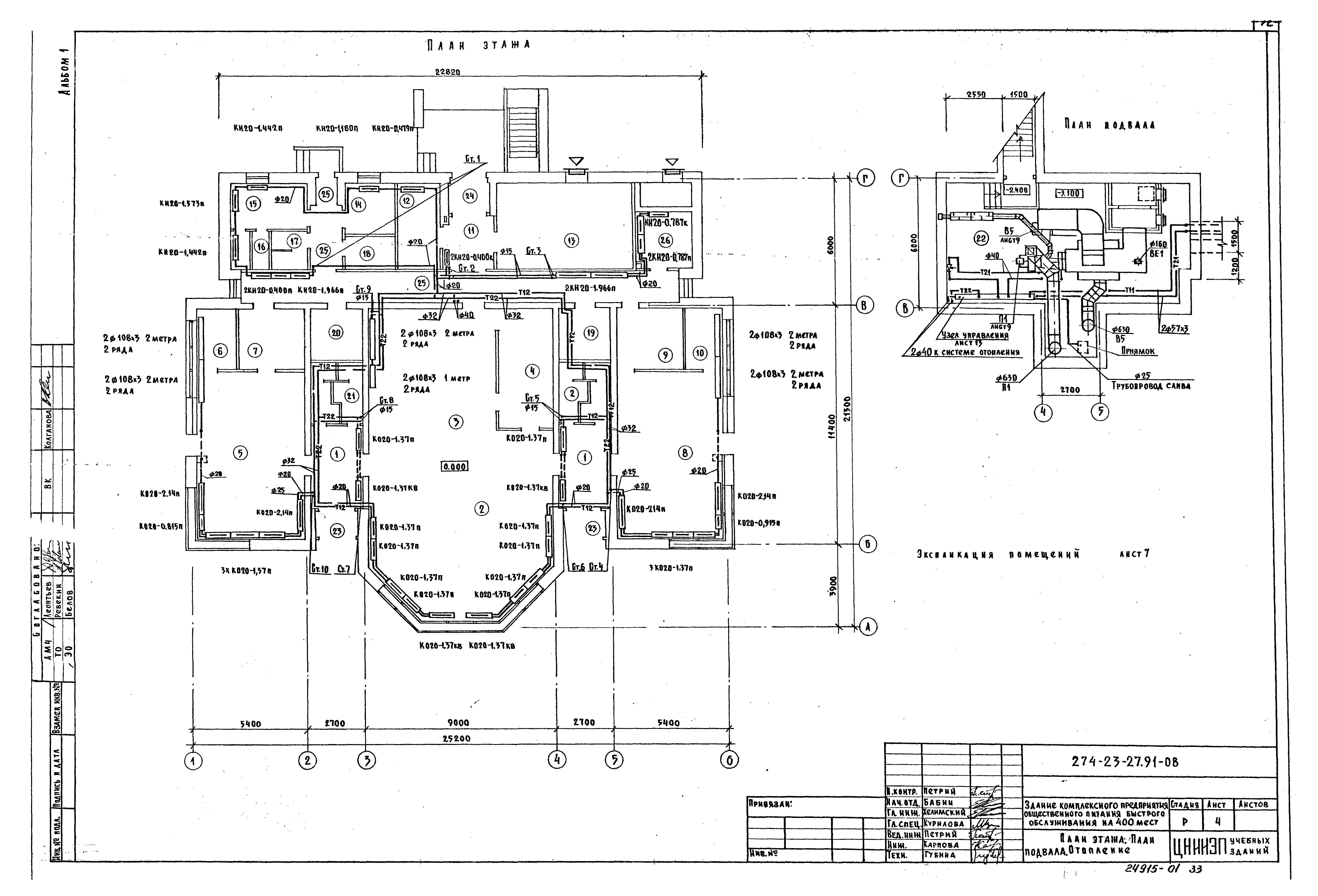
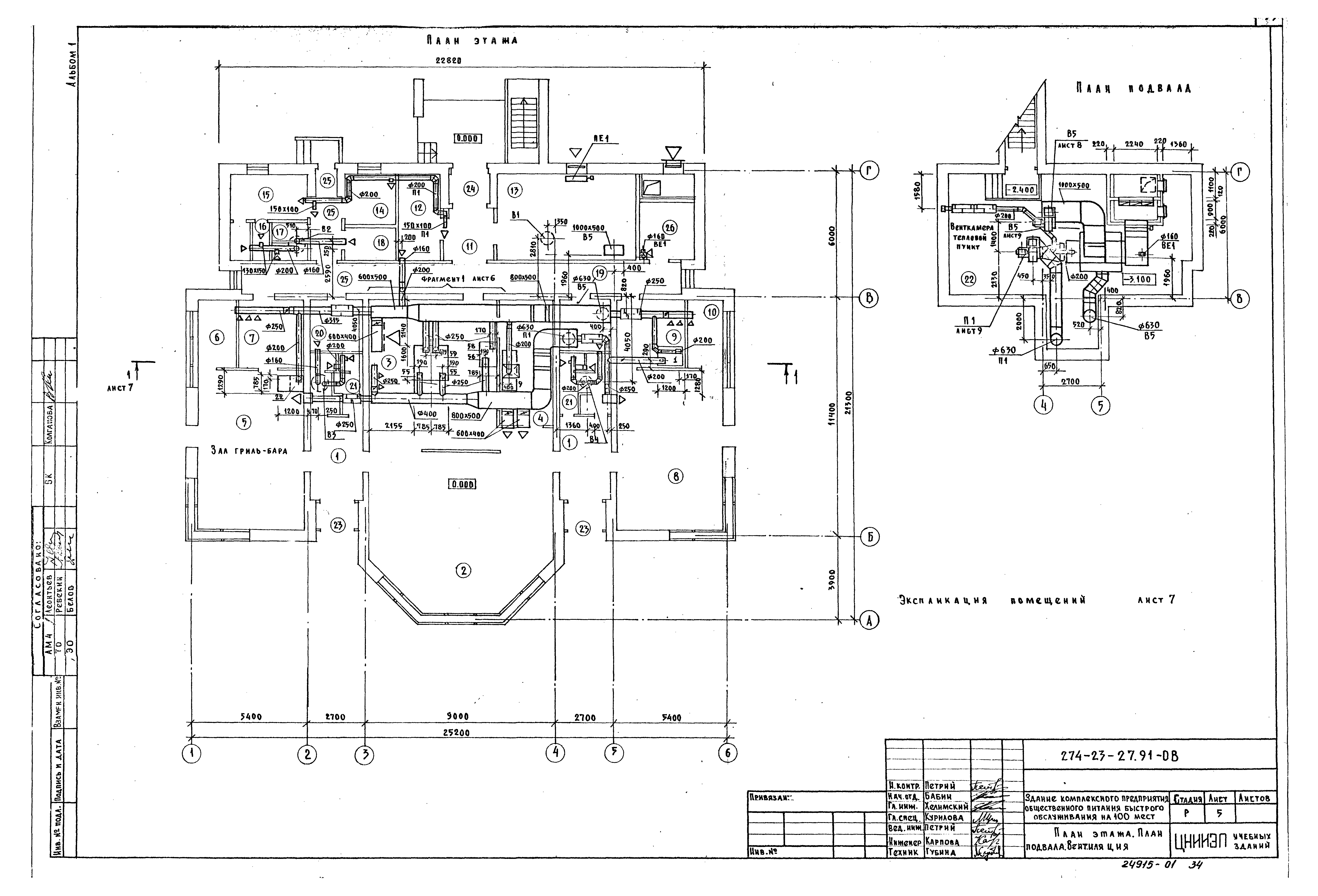
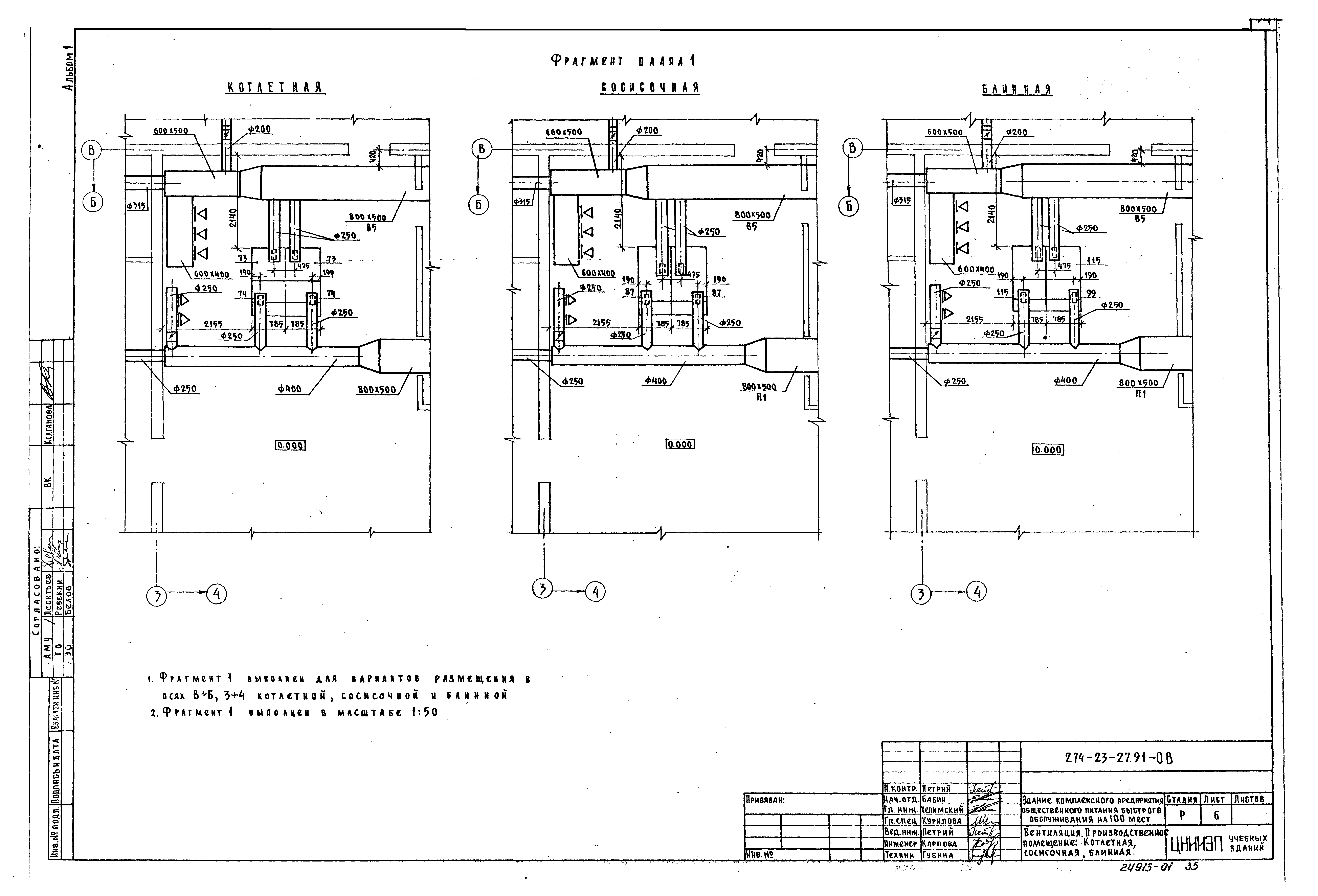
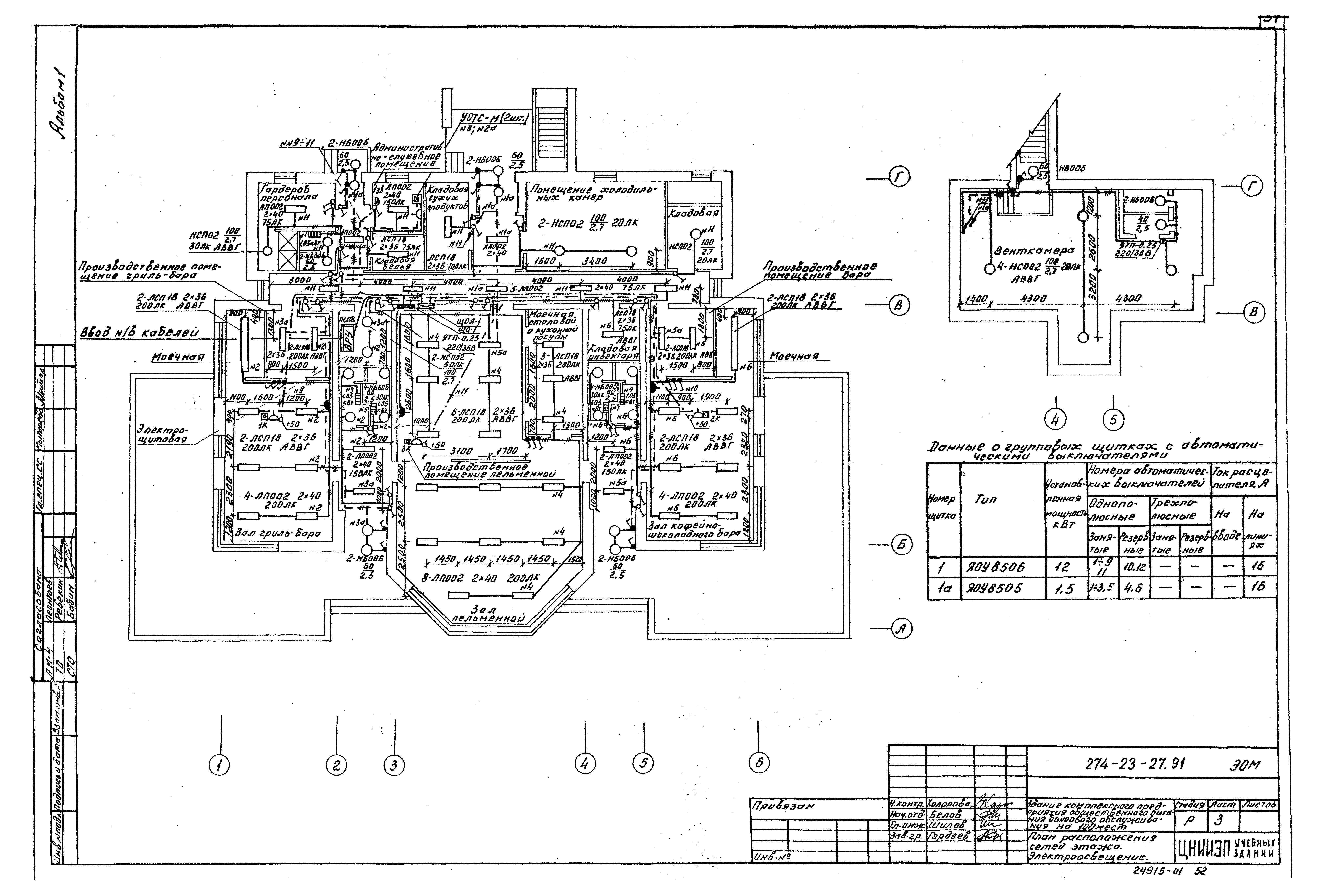
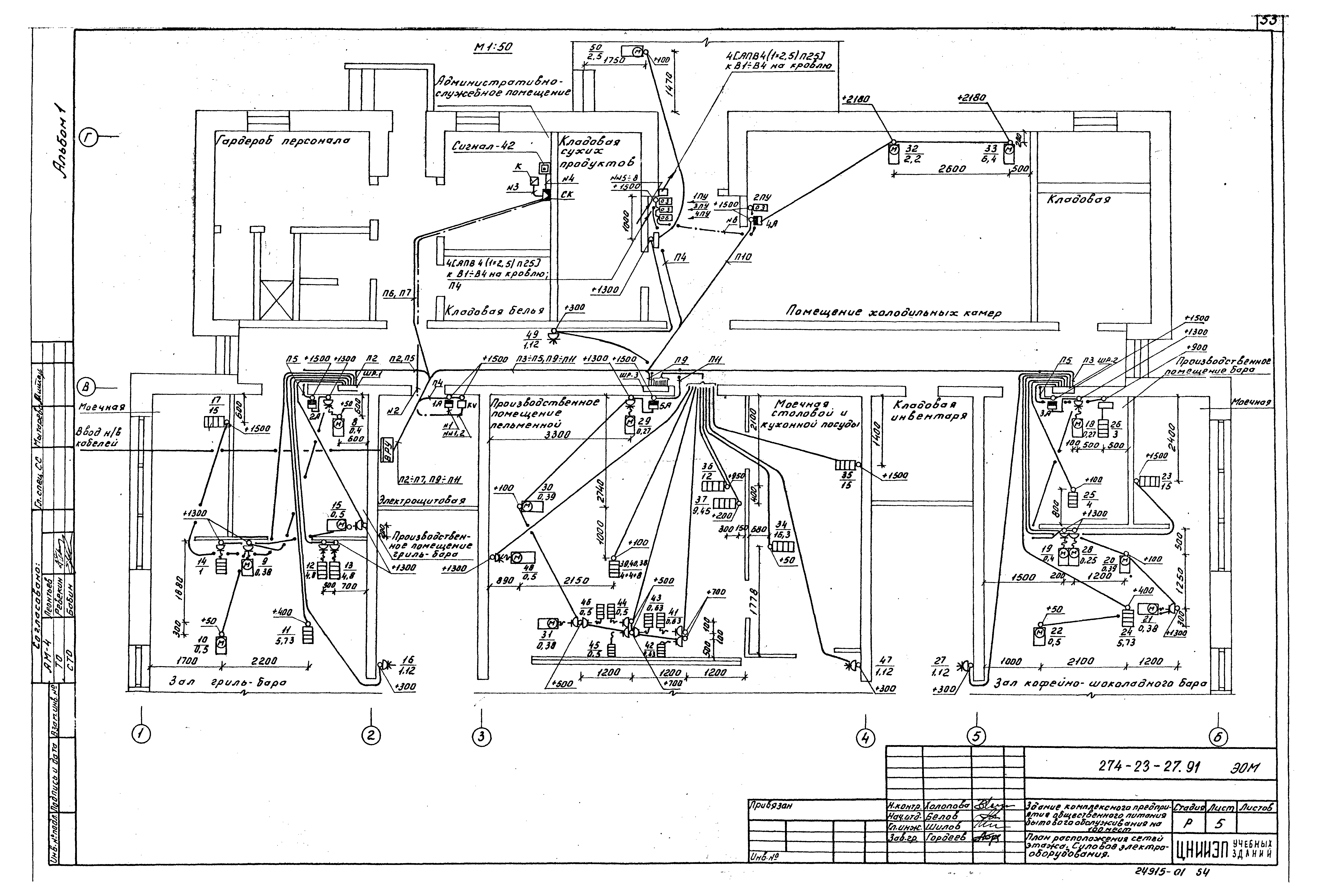
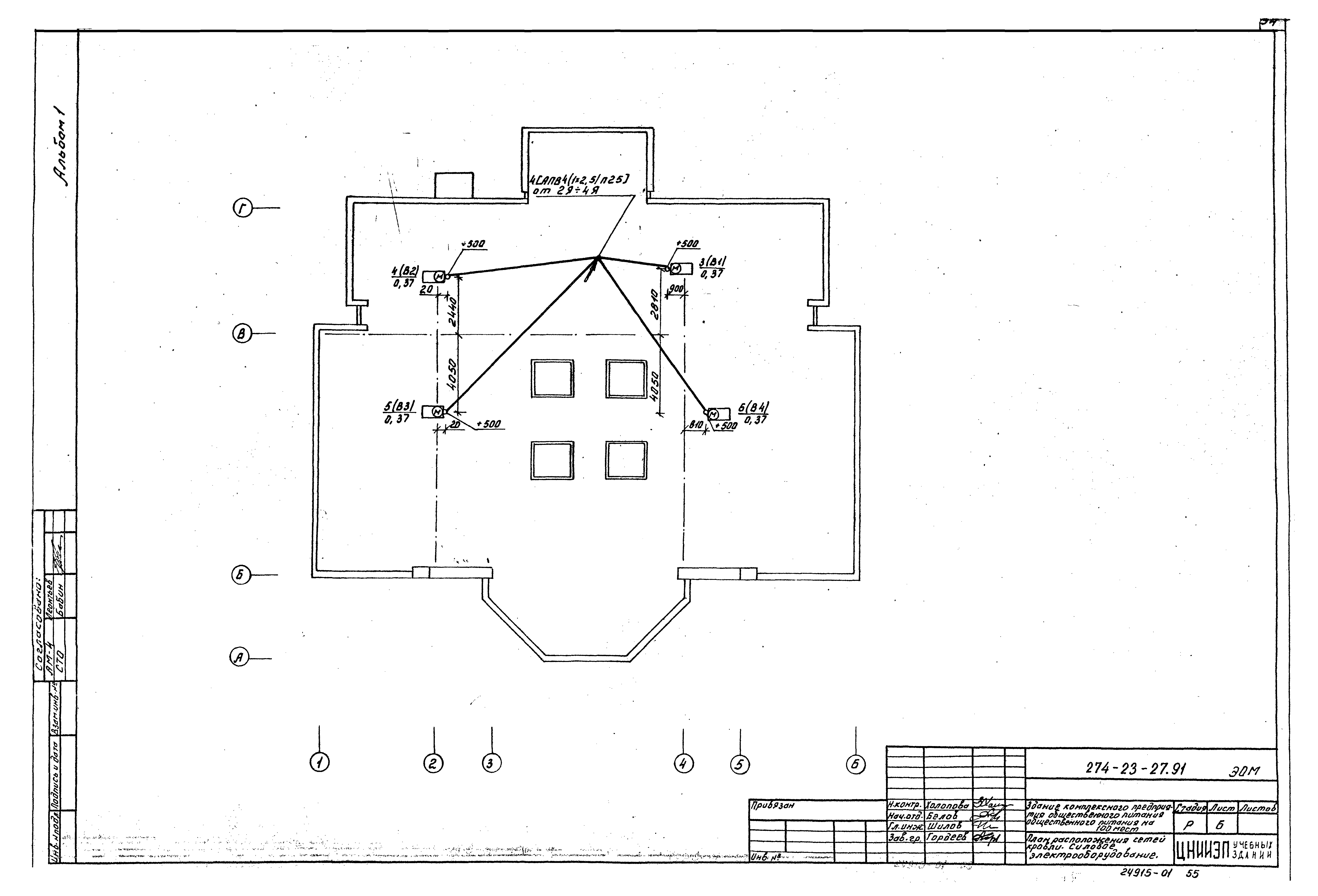
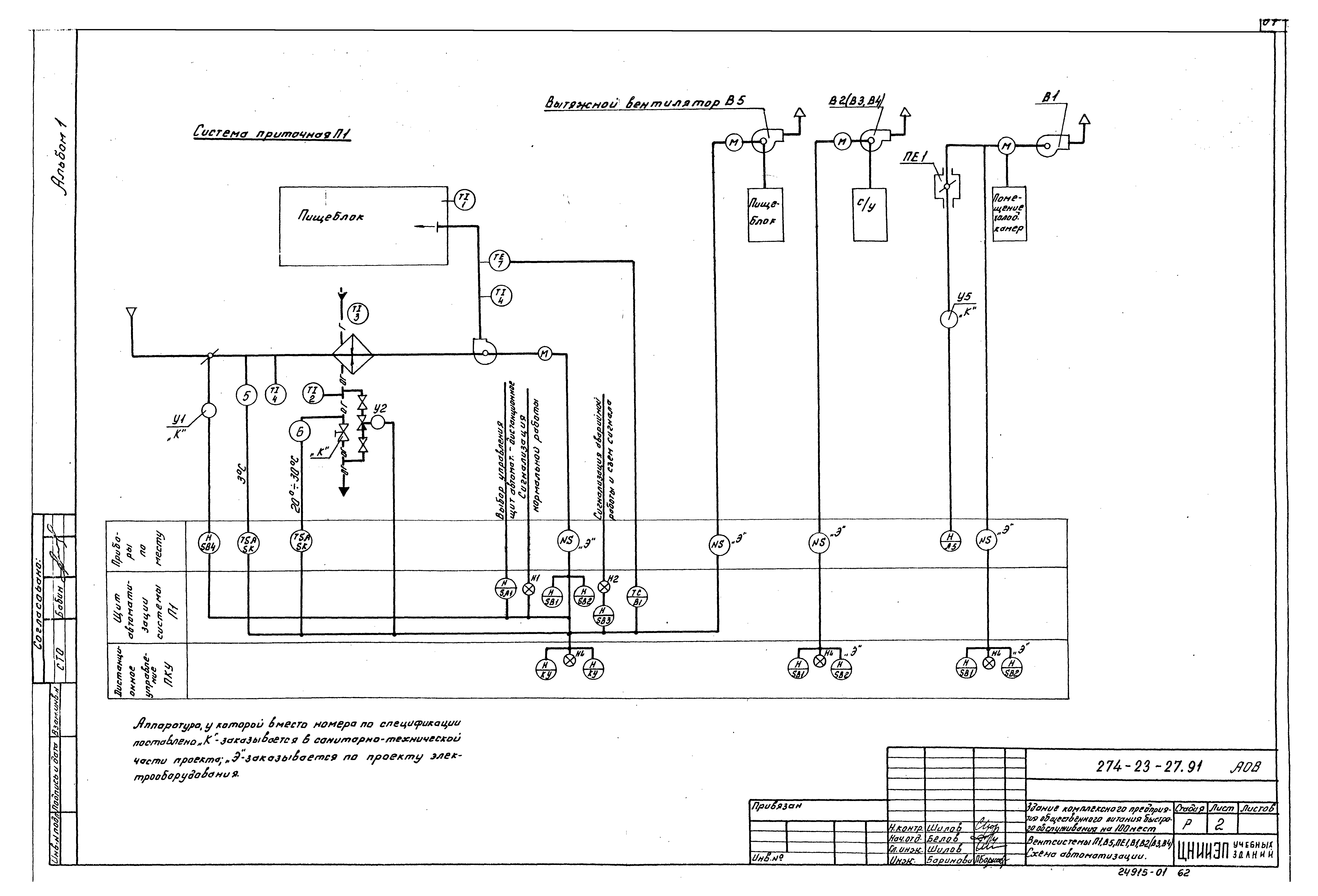
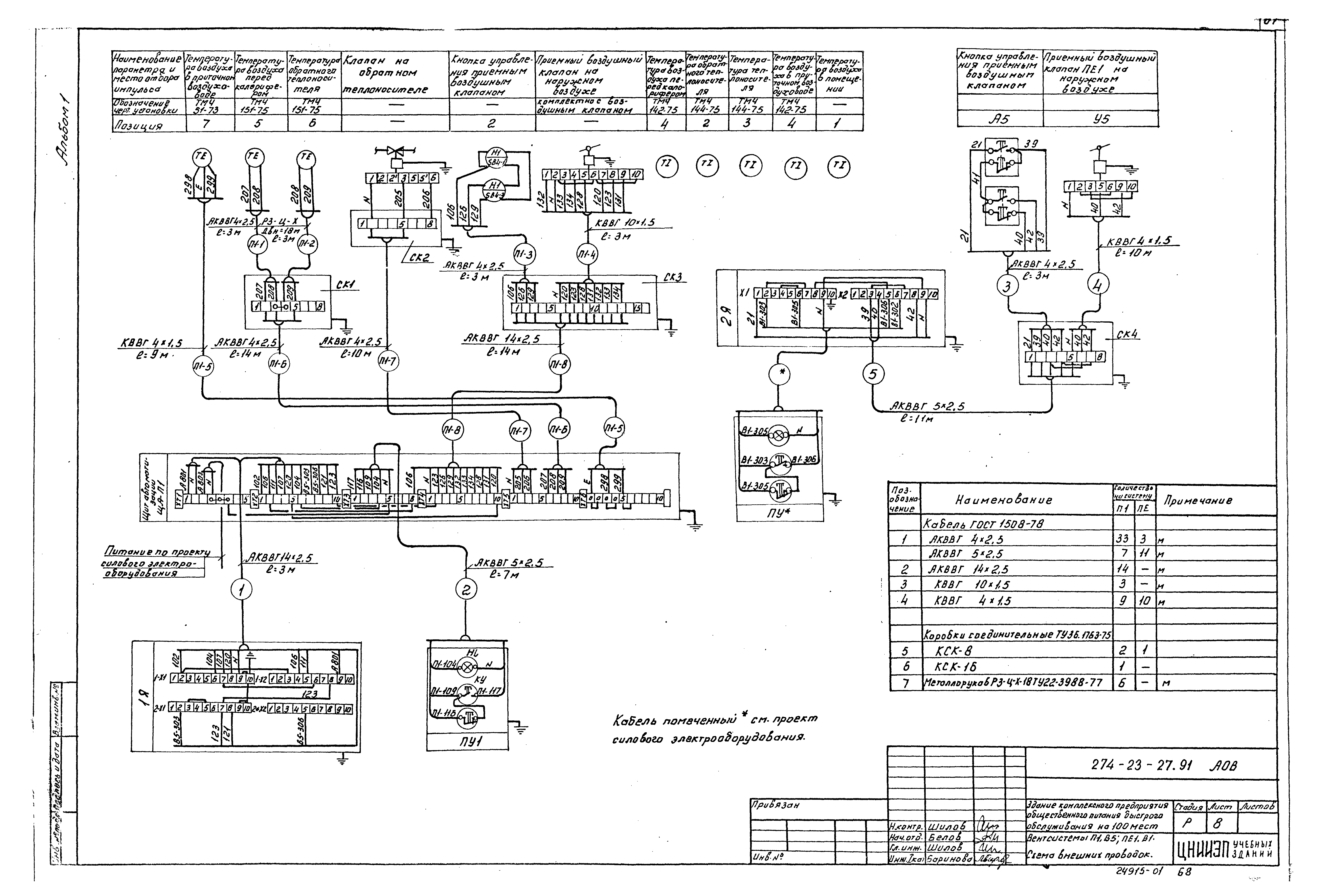
| Оглавление: | Чертежи основного комплекта марки АС Общие данные План этажа. План подвала План кровли Фасады 1 - 6 и А - Г Фасады 6 - 1 и Г - А Разрезы I-I, II-II, III-III Ведомость отделки помещений. Спецификации Монтажная схема фундаментов Сечения 11-11 - 17-17 Сечение 18-18. Узел 1, узел 2. Развертки стен ниже отм. 0.000 План перекрытия. Сечения 1-1 - 5-5 План покрытия Монтажная схема перемычек Монолитные конструкции УМ-1, МБ-1, МК-1 Монолитные конструкции УМ-2 - УМ-5 Плиты перекрытия. Прогоны. Перемычки Металлические изделия. Арматурные элементы Схема установки ВМ-1 Схема установки ВМ-2 Схема установки ВМ-3 - ВМ-6 Чертежи основного комплекта марки ТХ Общие данные План этажа План этажа. Привязка вводов коммуникаций План этажа. Привязка вводов коммуникаций горячего цеха. Варианты Подъемный стол ПС-630. Установочный чертеж Чертежи основного комплекта марки ОВ Общие данные План этажа. План подвала. Отопление План этажа. План подвала. Вентиляция Вентиляция. Производственное помещение: котельная, сосисочная, блинная Разрез 1-1. Спецификация отопительно-вентиляционных установок. Экспликация помещений Местные отсосы от технологического оборудования Установка систем П1, В5 Схема системы отопления Схемы систем П1, В1 - В5, ПЕ1, ВЕ1 Выкопировка из схемы систем П1, В5 (котельная, сосисочная, блинная). Схема системы теплоснабжения установки П1 Узел управления Чертежи основного комплекта марки ОВН Переходная секция Соединительная секция Каплеотделитель Зонт Коробка 1 Коробка 2 Входная секция утилизатора Выходная секция утилизатора Расширитель Чертежи основного комплекта марки ВК Общие данные План этажа. План подвала на отм. - 3.100 Схемы систем В1, Т3, Т4, К1 Схемы систем К1Н, К2, К3 Чертежи основного комплекта марки ЭОМ Общие данные Принципиальная схема питающих сетей План расположения сетей этажа. Электроосвещение План расположения сетей этажа. Силовое электрооборудование План расположения сетей кровли. Силовое электрооборудование Принципиальная таблица-схема распределительной сети Отключение вентиляции при пожаре. Кабельный журнал Вводно-распределительное устройство. Опросный лист Чертежи основного комплекта марки АОВ Общие данные Вентсистемы П1, В5, ПЕ1, В1, В2 (В3, В4). Схема автоматизации Система приточная П1. Схема электрическая принципиальная управления Система приточная П1. Схема электрическая принципиальная регулирования температуры Вентсистемы П1, В2 (В3, В4). Схемы электрические принципиальные питания и управления Вентсистемы В1, ПЕ1. Схемы электрические принципиальные управления Вентсистема В5. Схема электрическая принципиальная управления. Кабельный журнал Вентсистемы П1, В5, ПЕ1, В1. Схема внешних проводок Регулятор электронный. План расположения и прокладки. Схема внешних проводок Вентсистемы П1, В5, ПЕ1. Венткамера. Фрагмент плана на отм. 0.000. План прокладки контрольных сетей Чертежи основного комплекта марки СС Общие данные Схемы систем связи и сигнализации План расположения сетей связи на этаже. Фрагмент плана кровли в осях 1 - 3; В - Г План расположения сетей пожарной сигнализации на этаже План расположения сетей охранной сигнализации на этаже |
| Разработан: | ЦНИИЭП учебных зданий |
| Утверждён: | 30.03.1990 Госкомархитектура (49) |
| Издан: | АПП ЦИТП (1991 г. ) |











































































