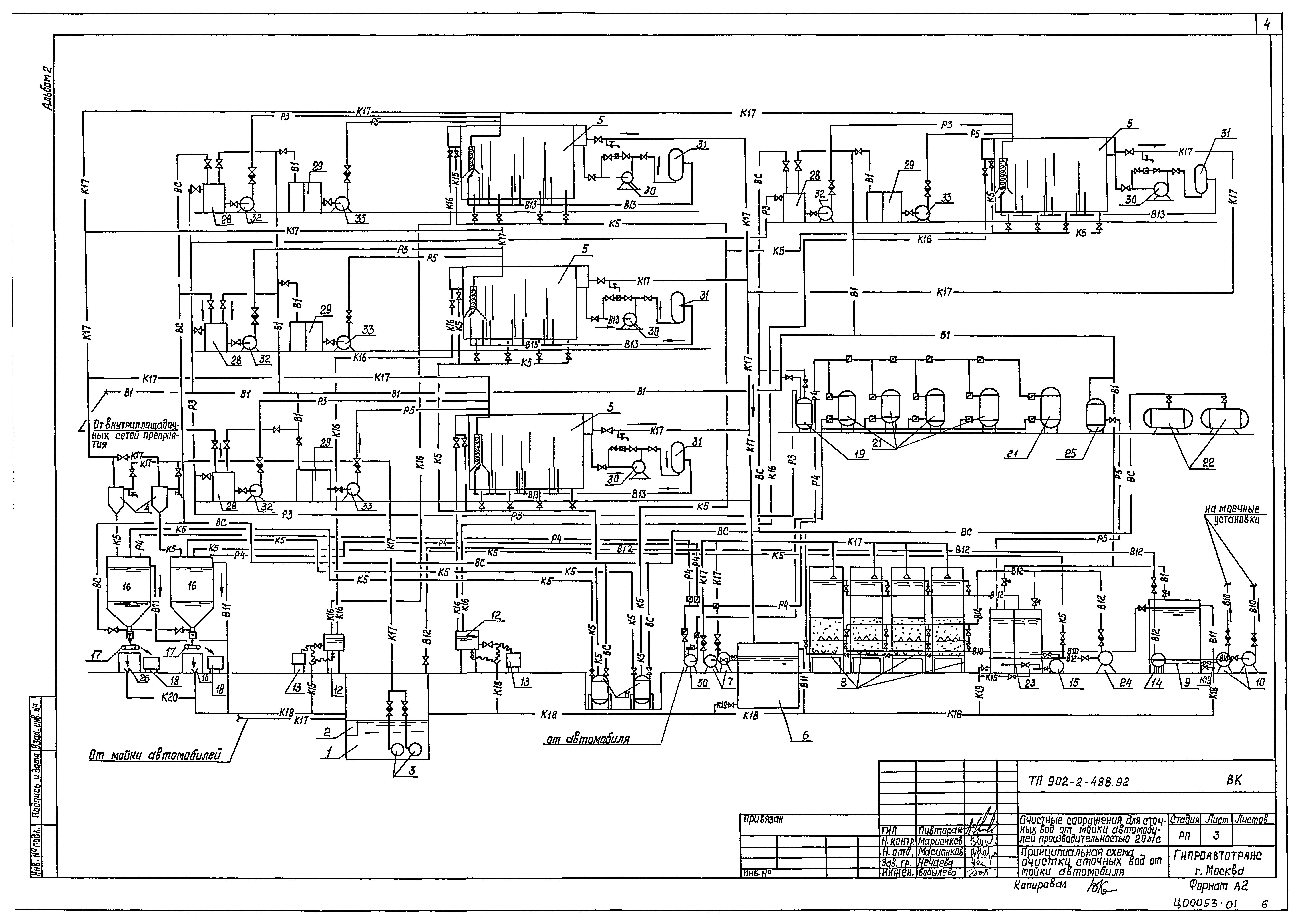
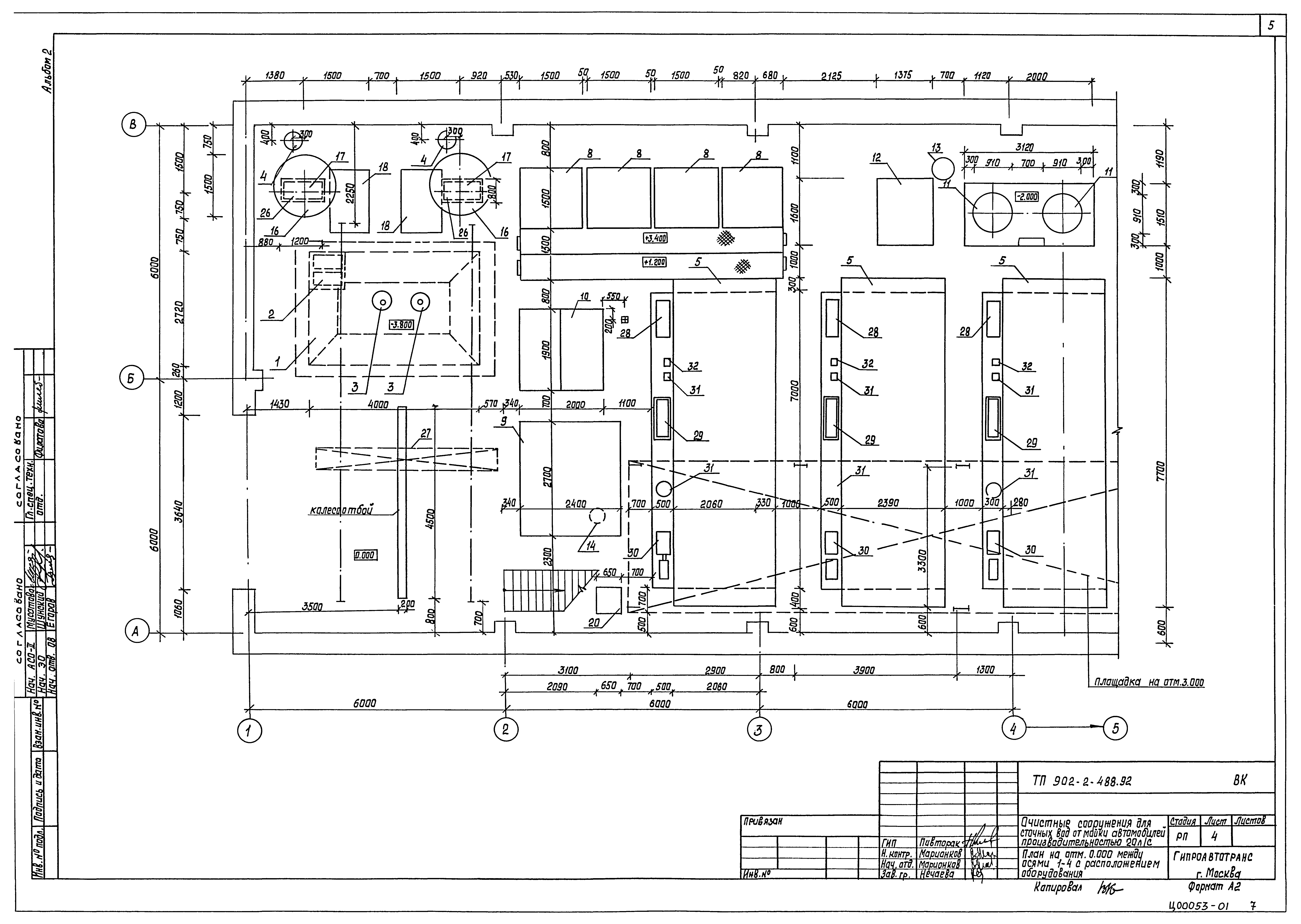
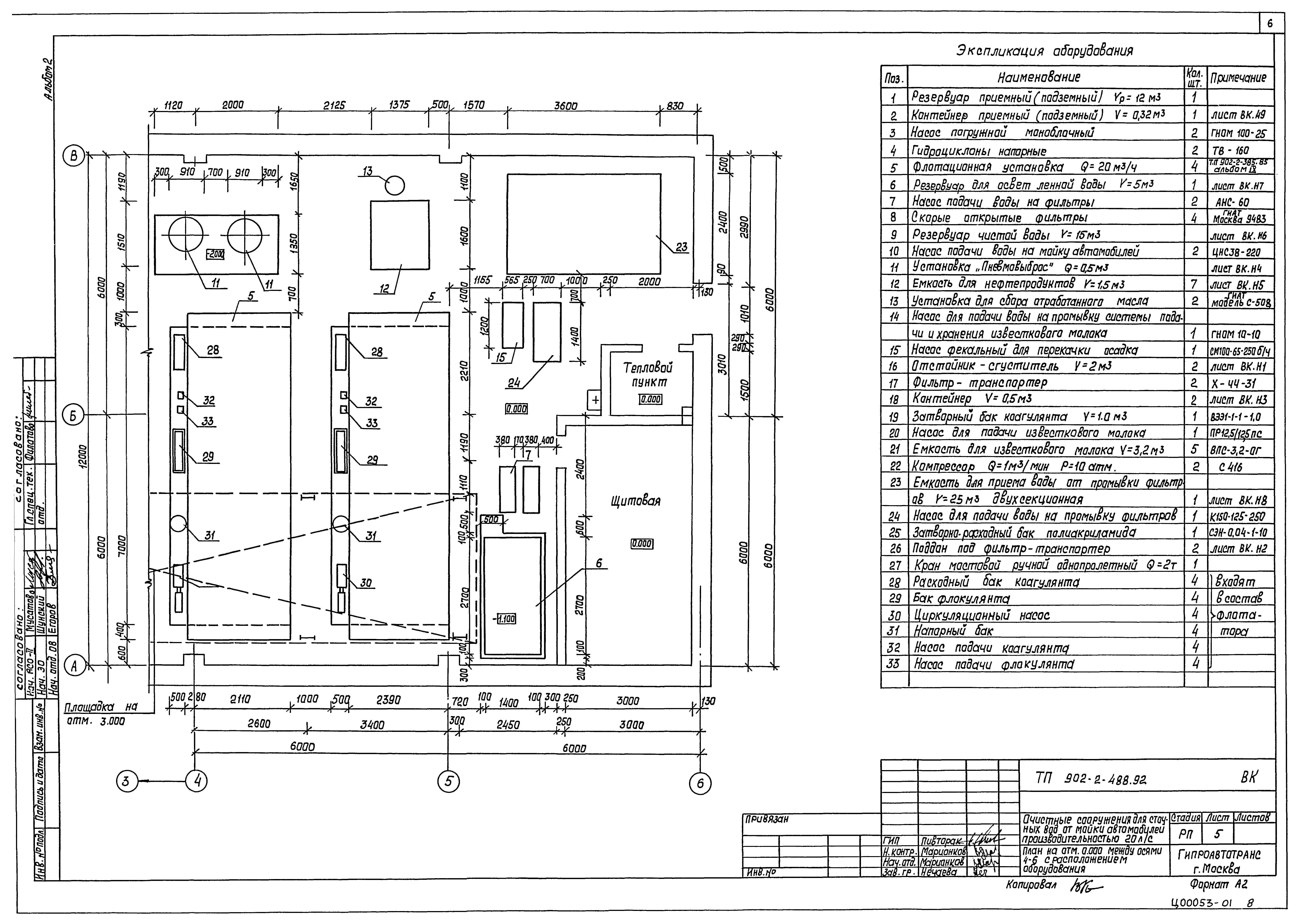
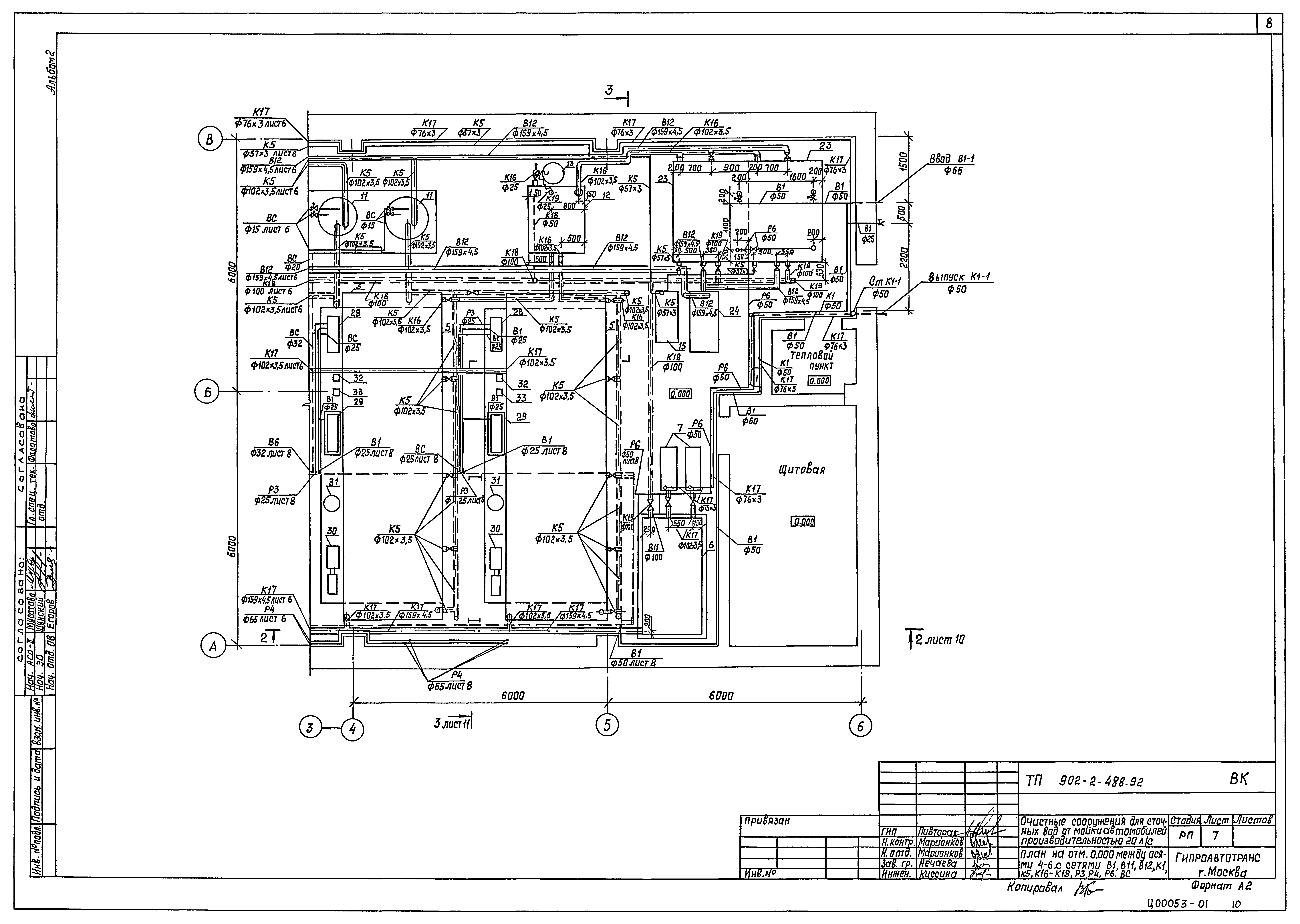
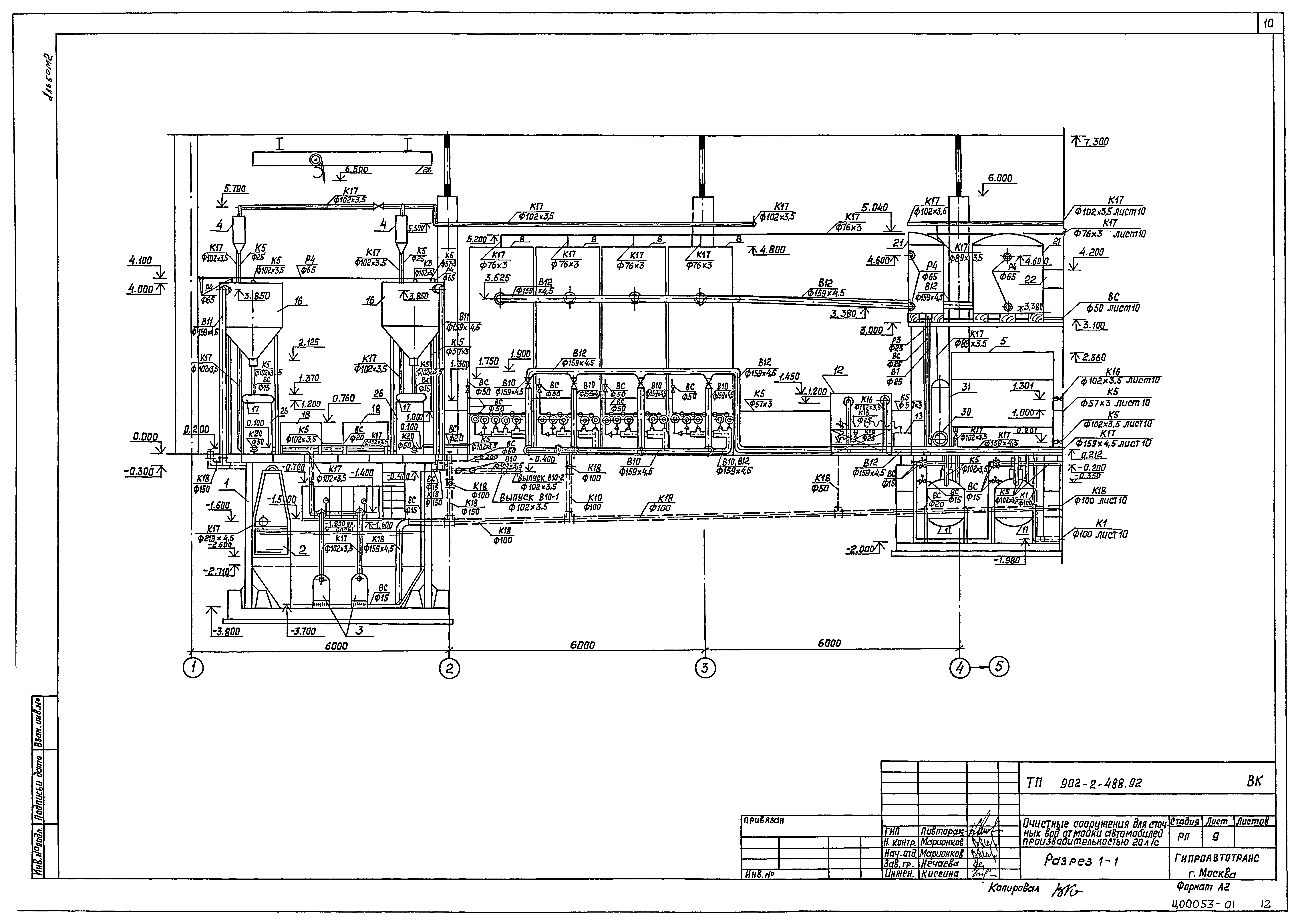
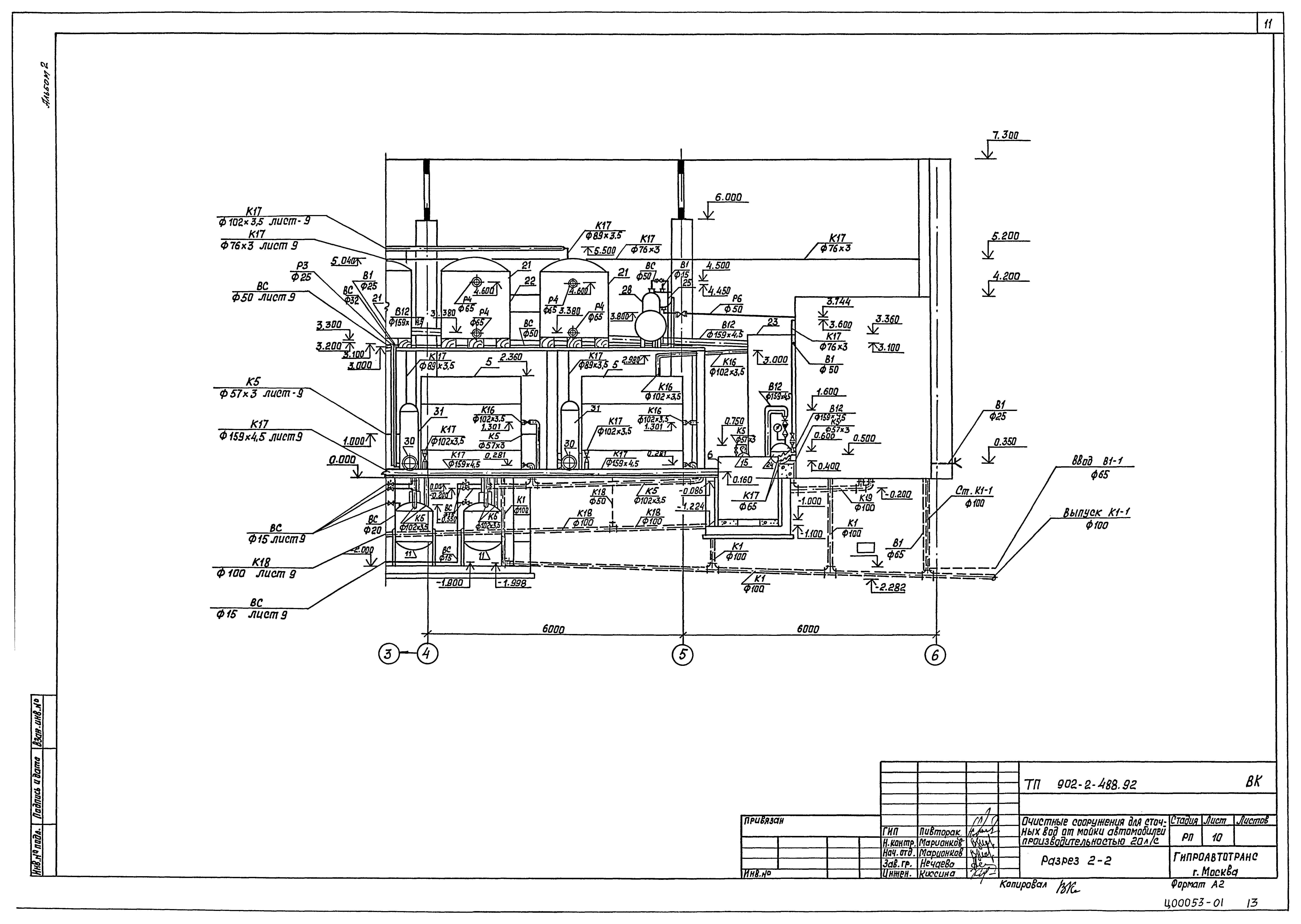
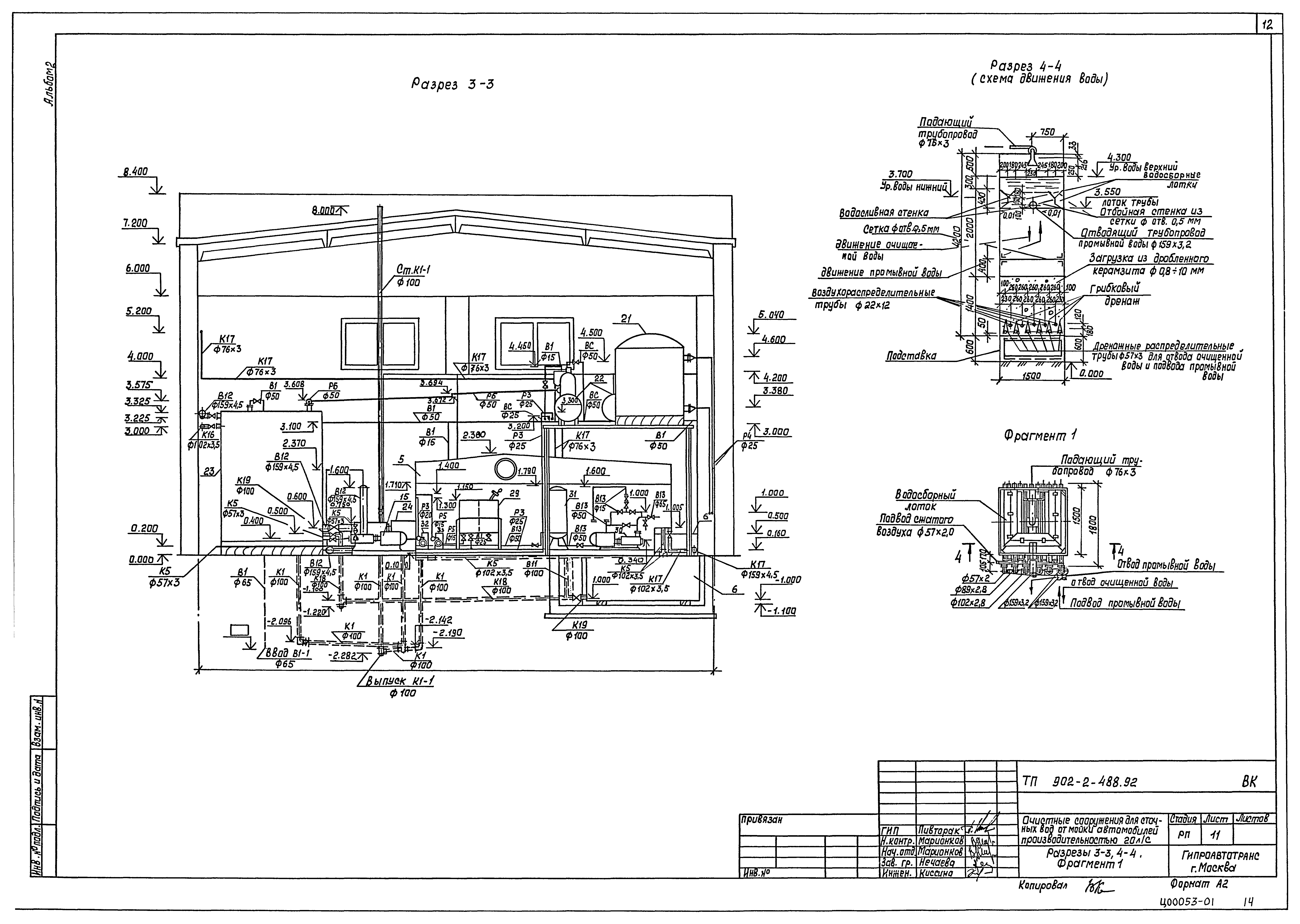
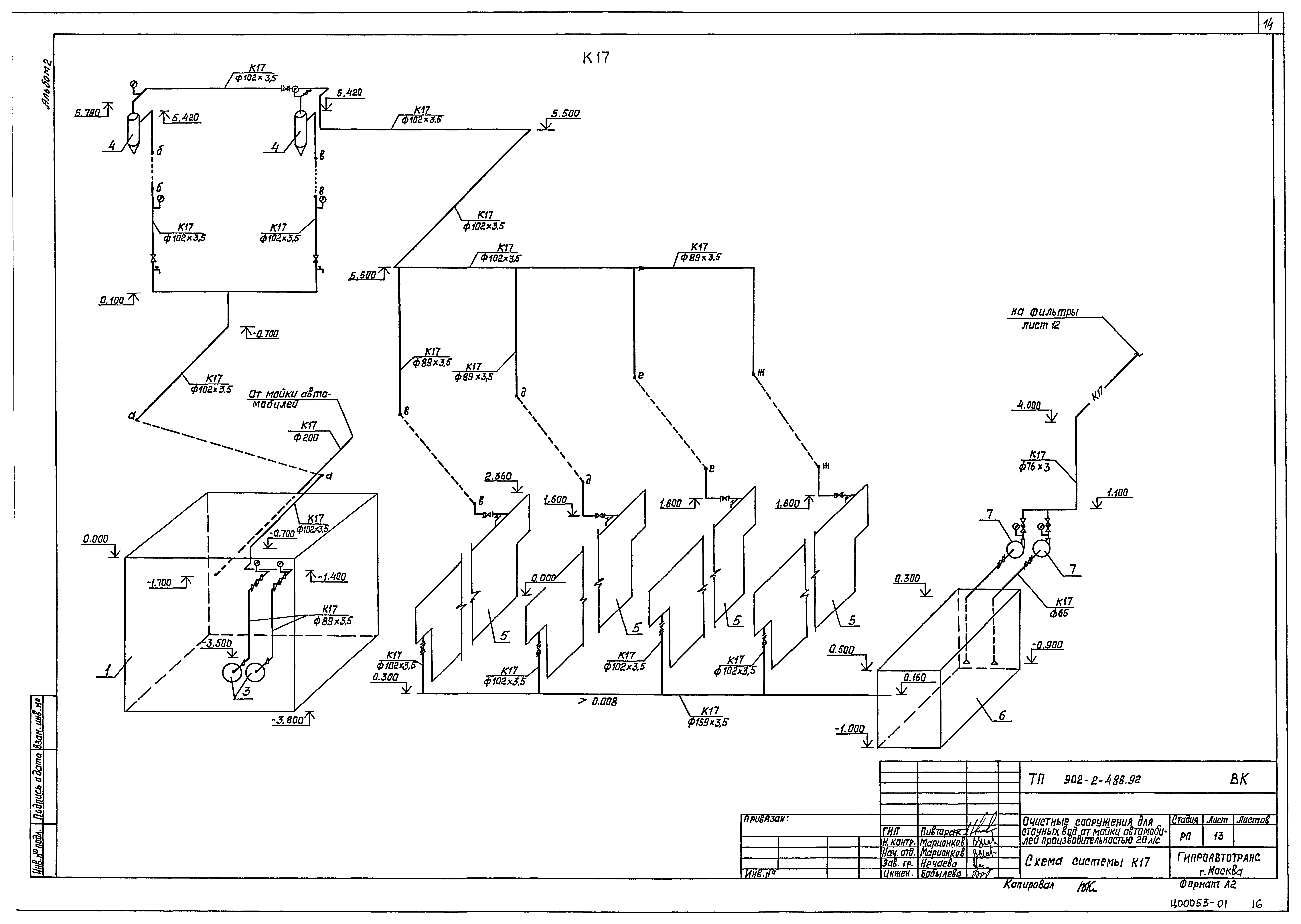
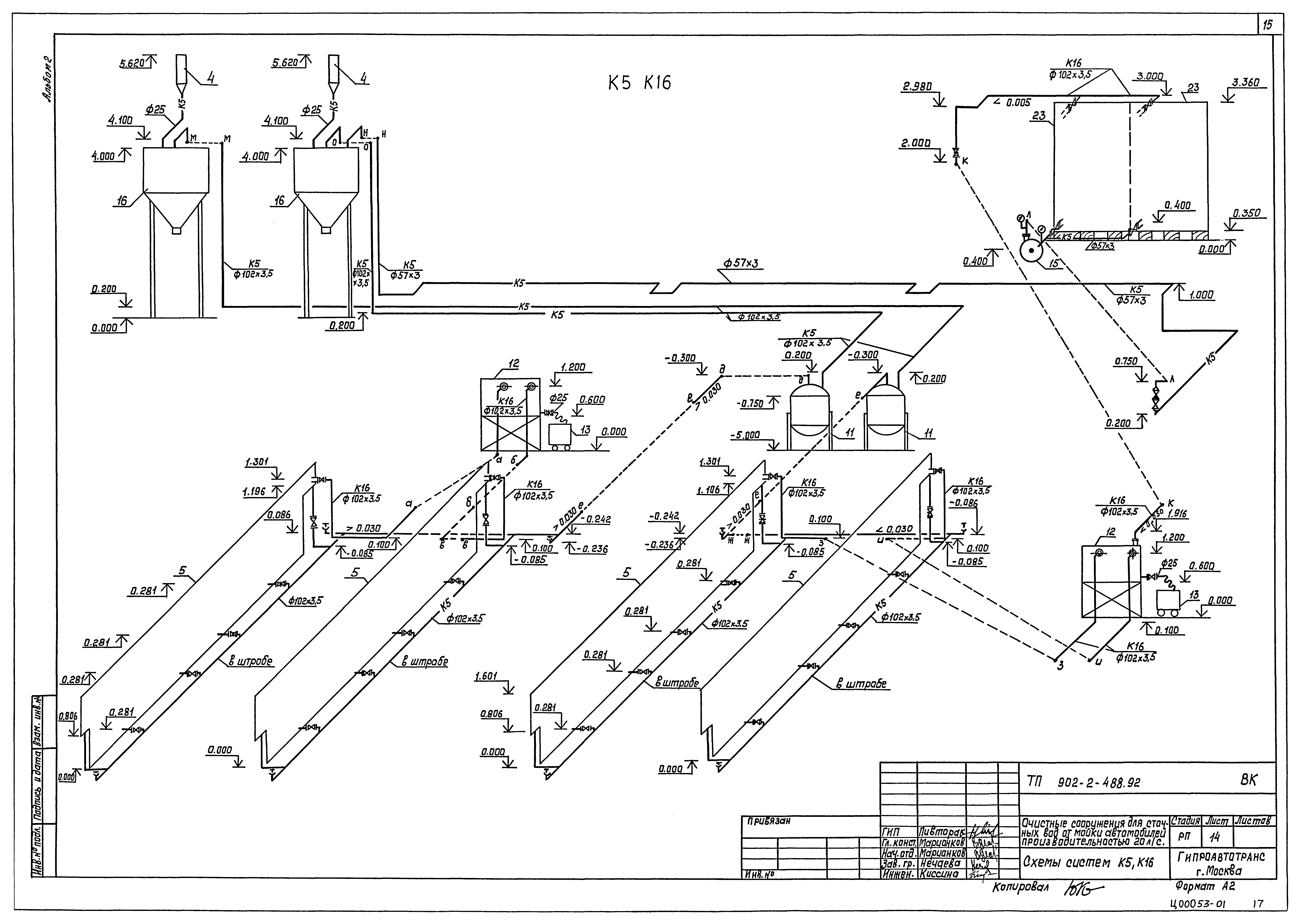
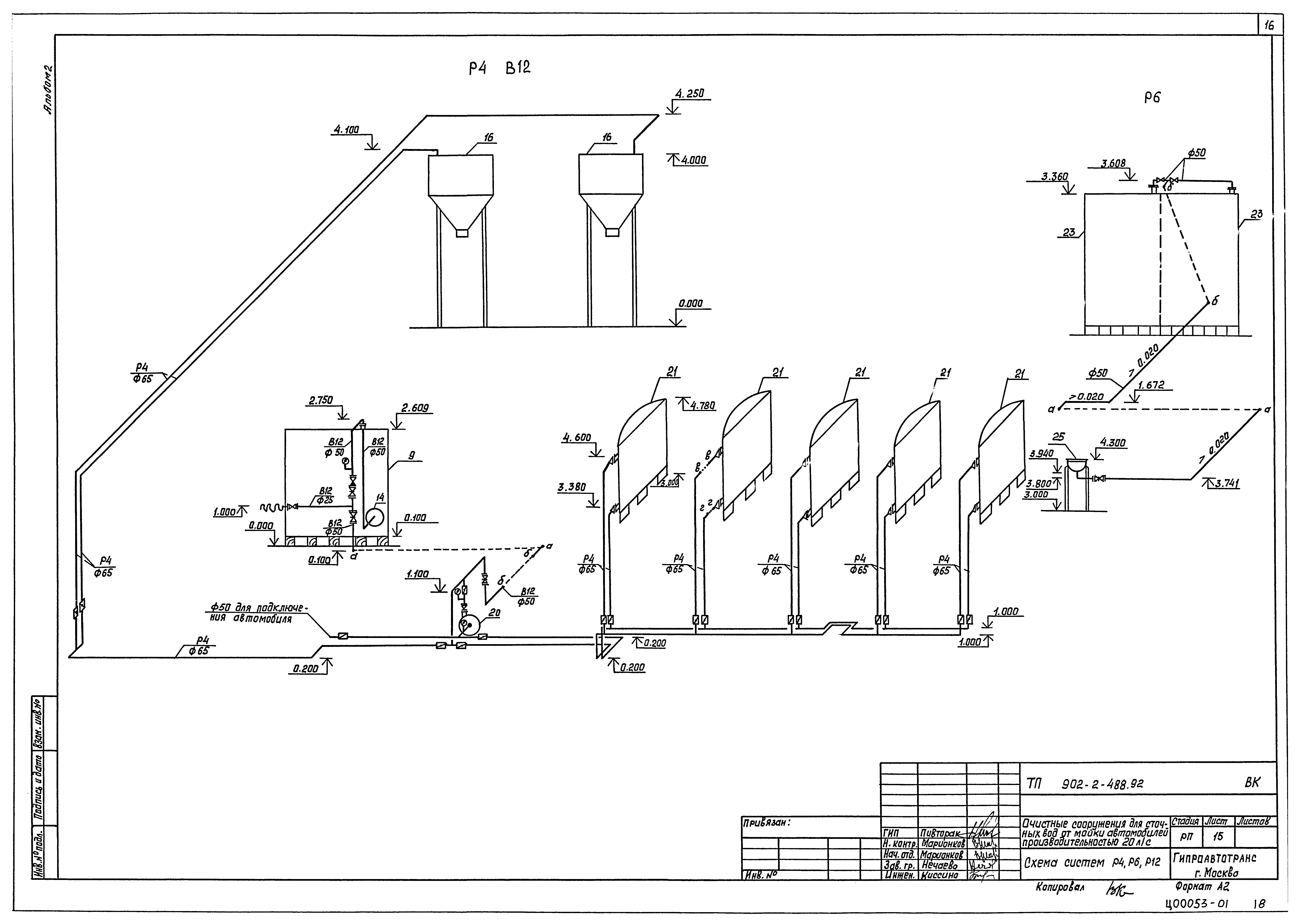
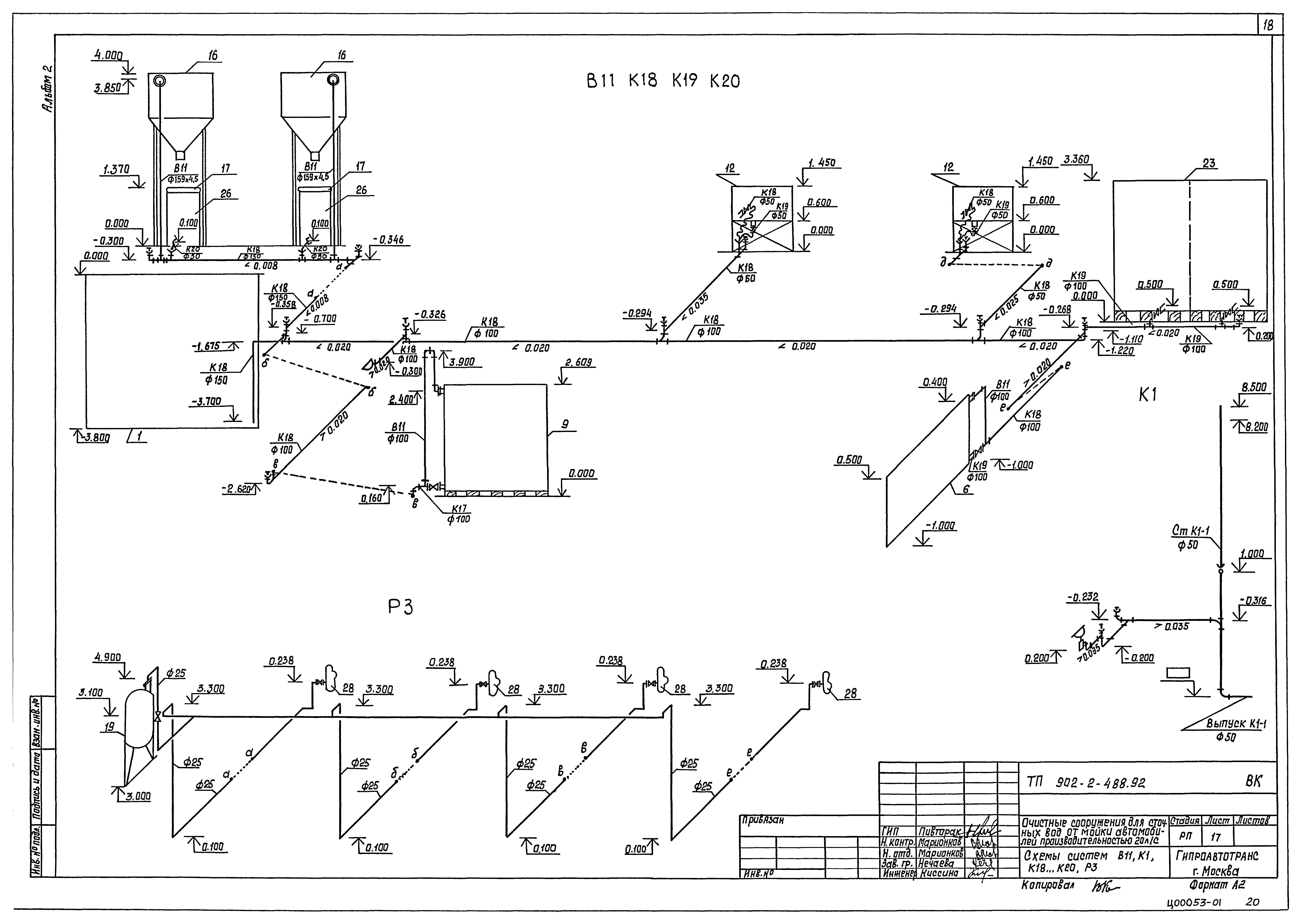
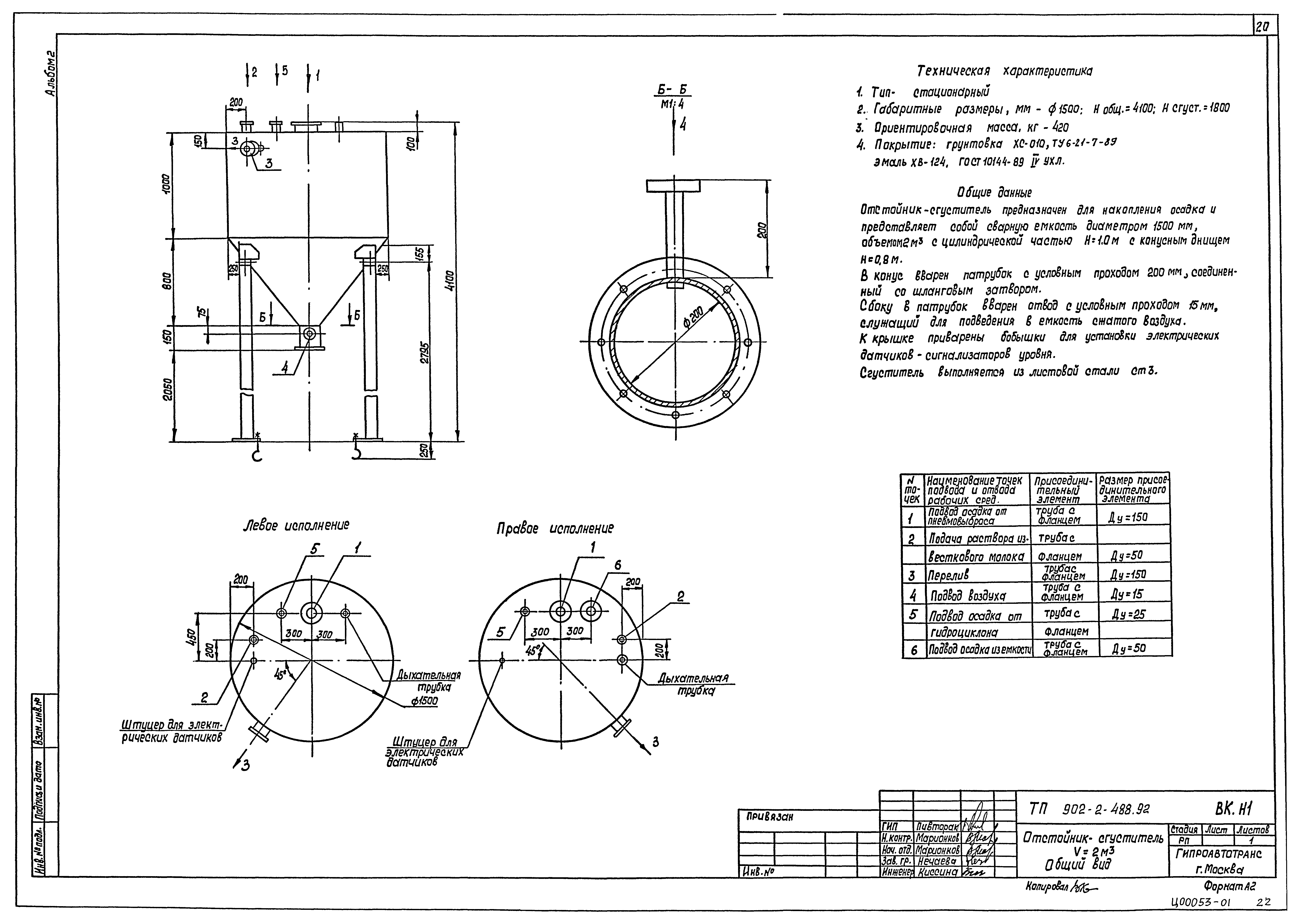
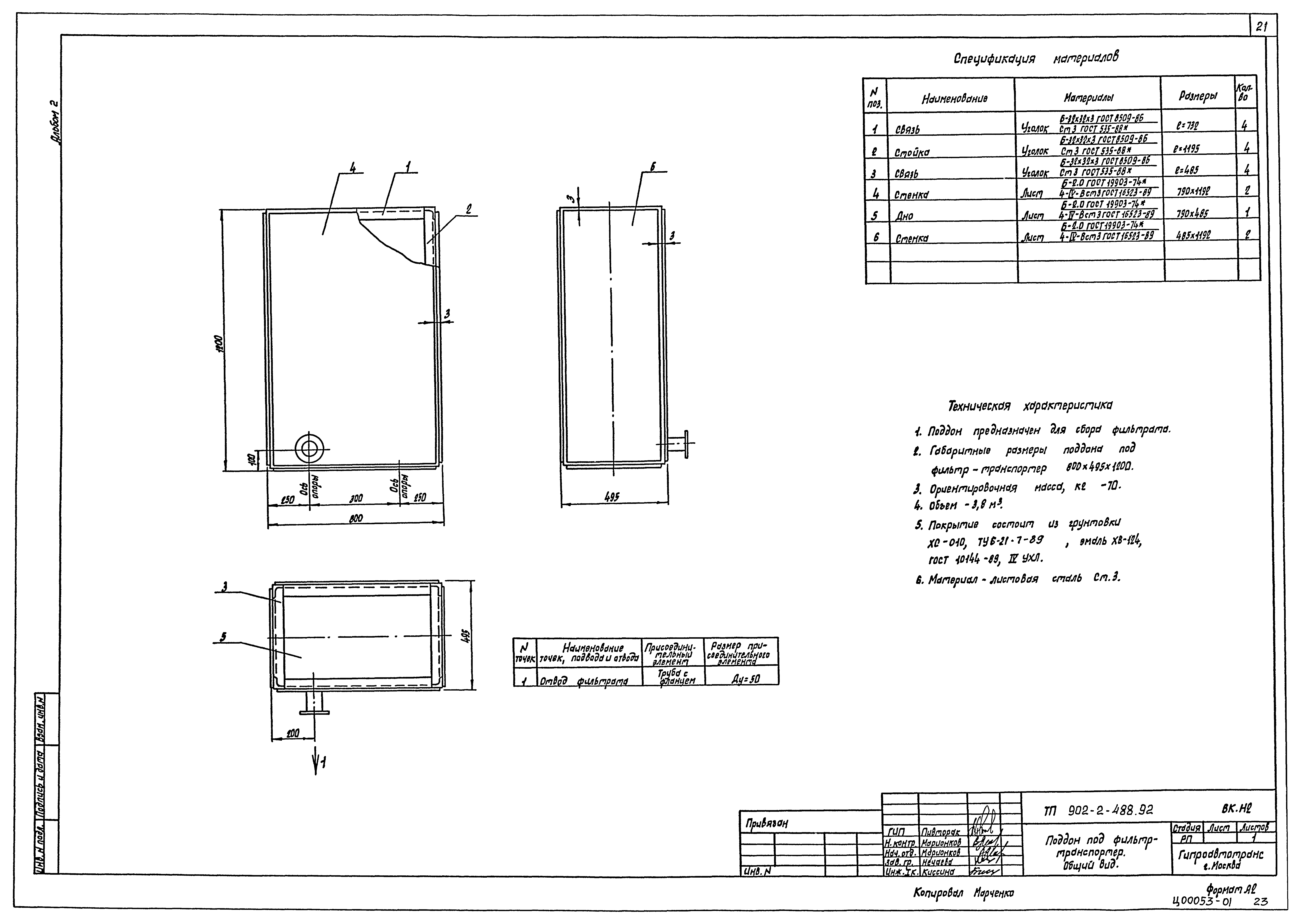
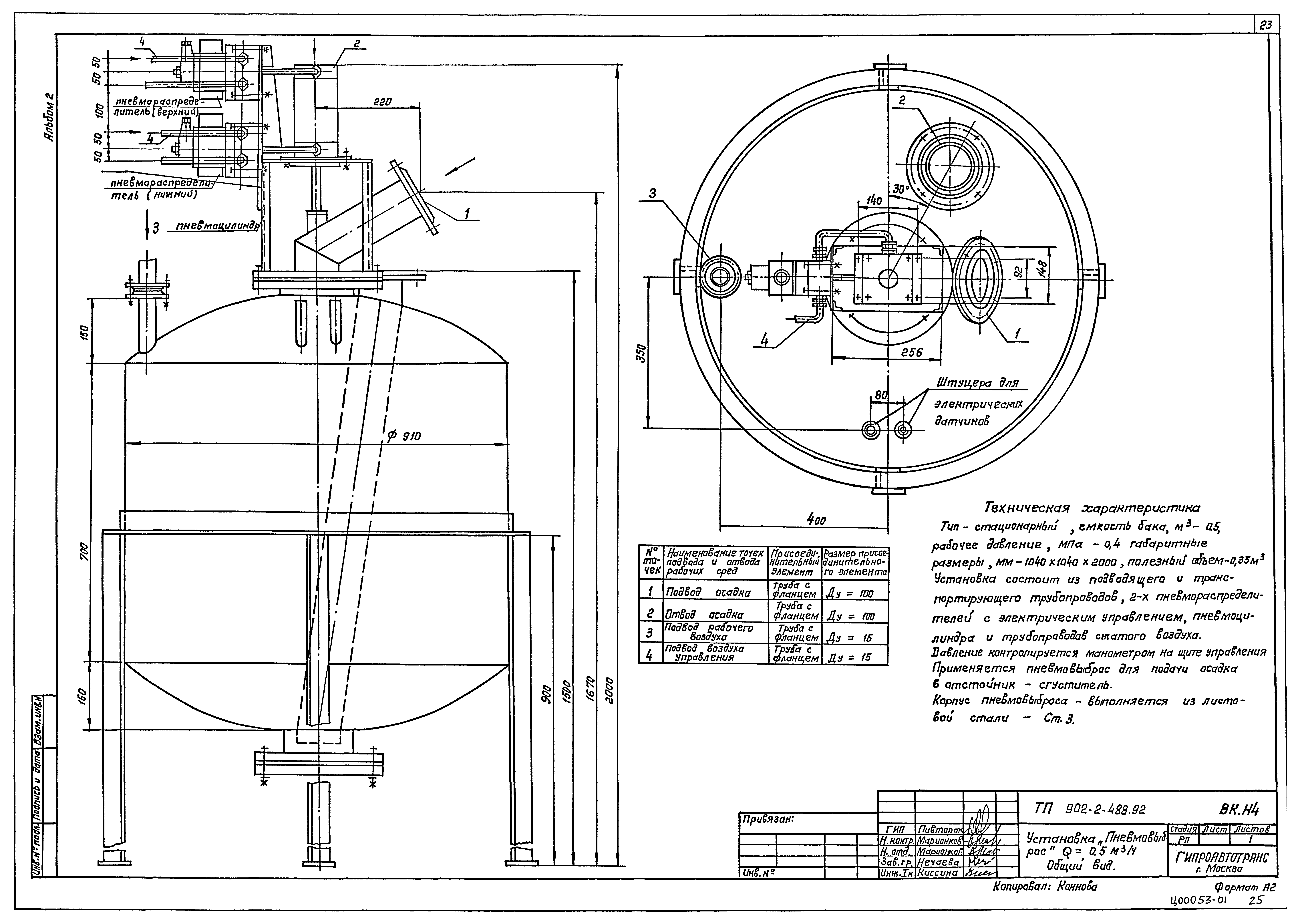
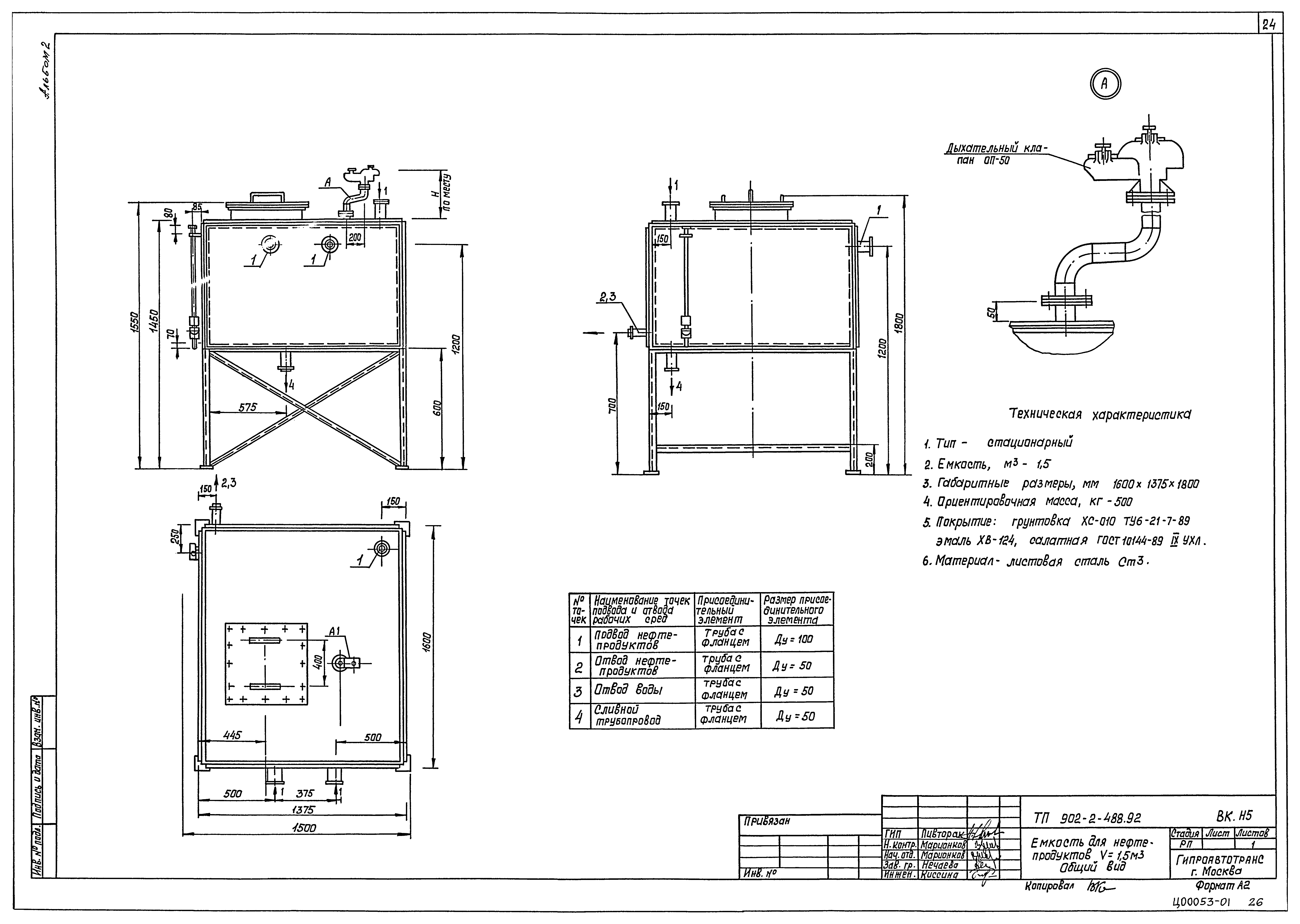
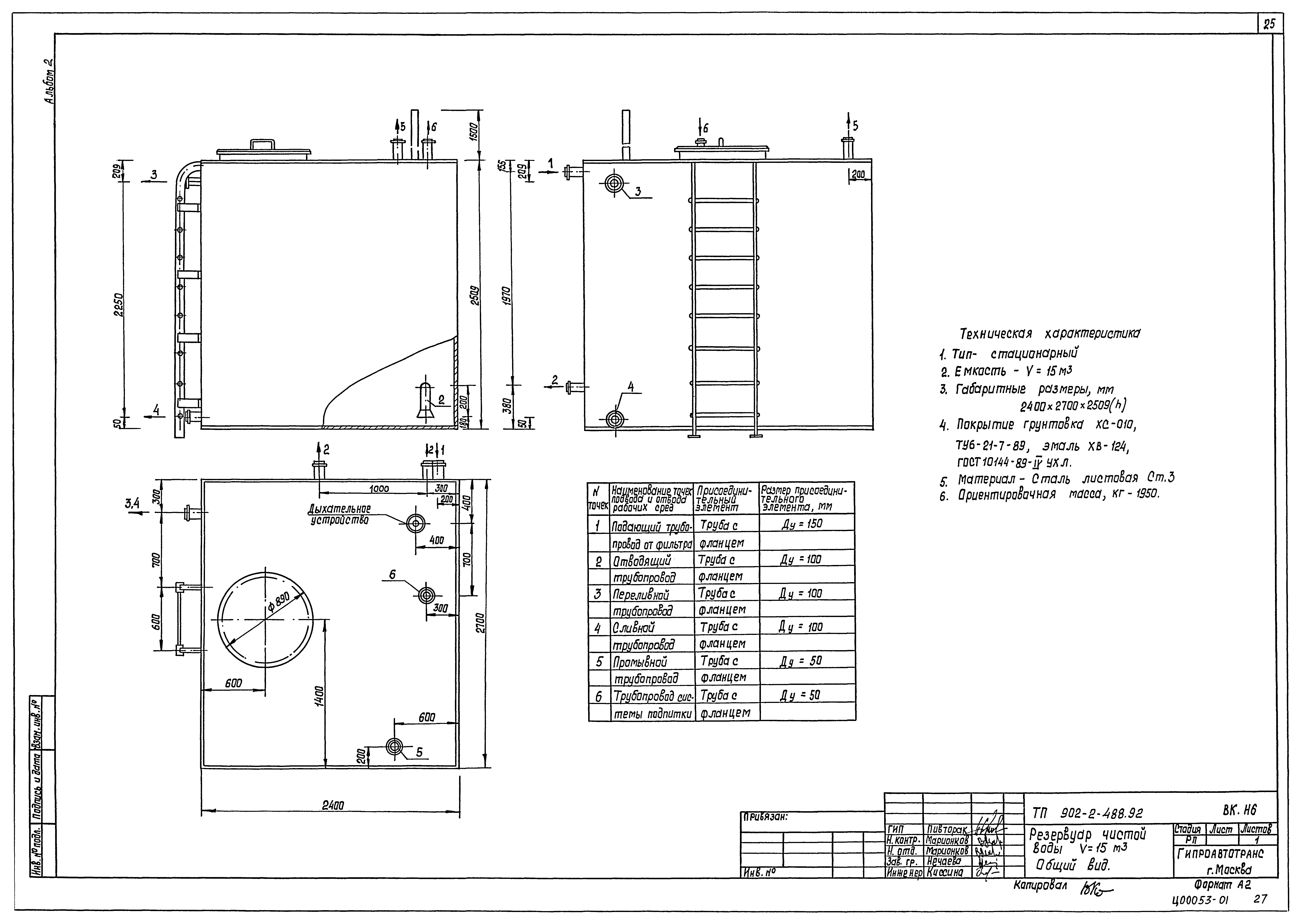
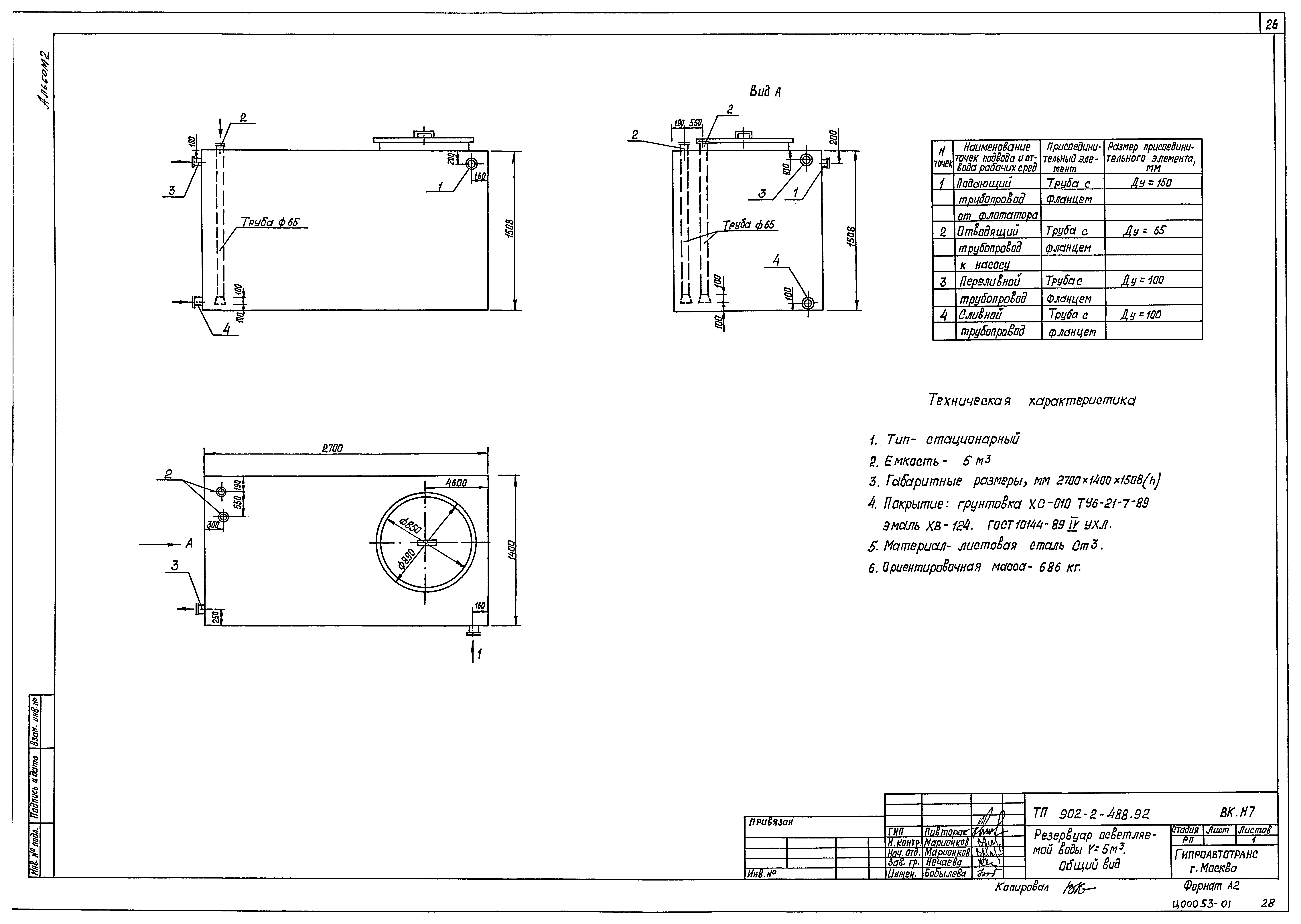
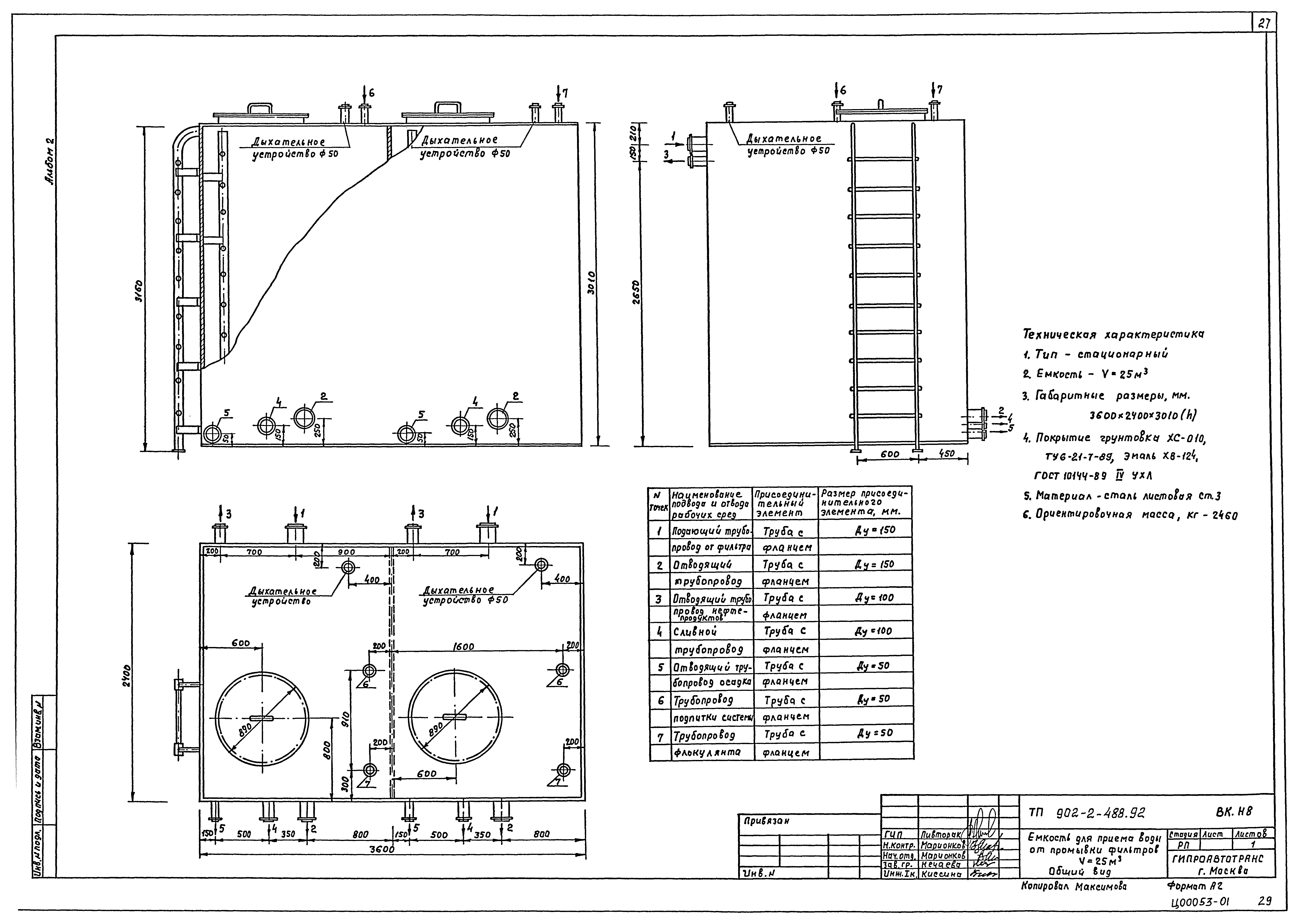
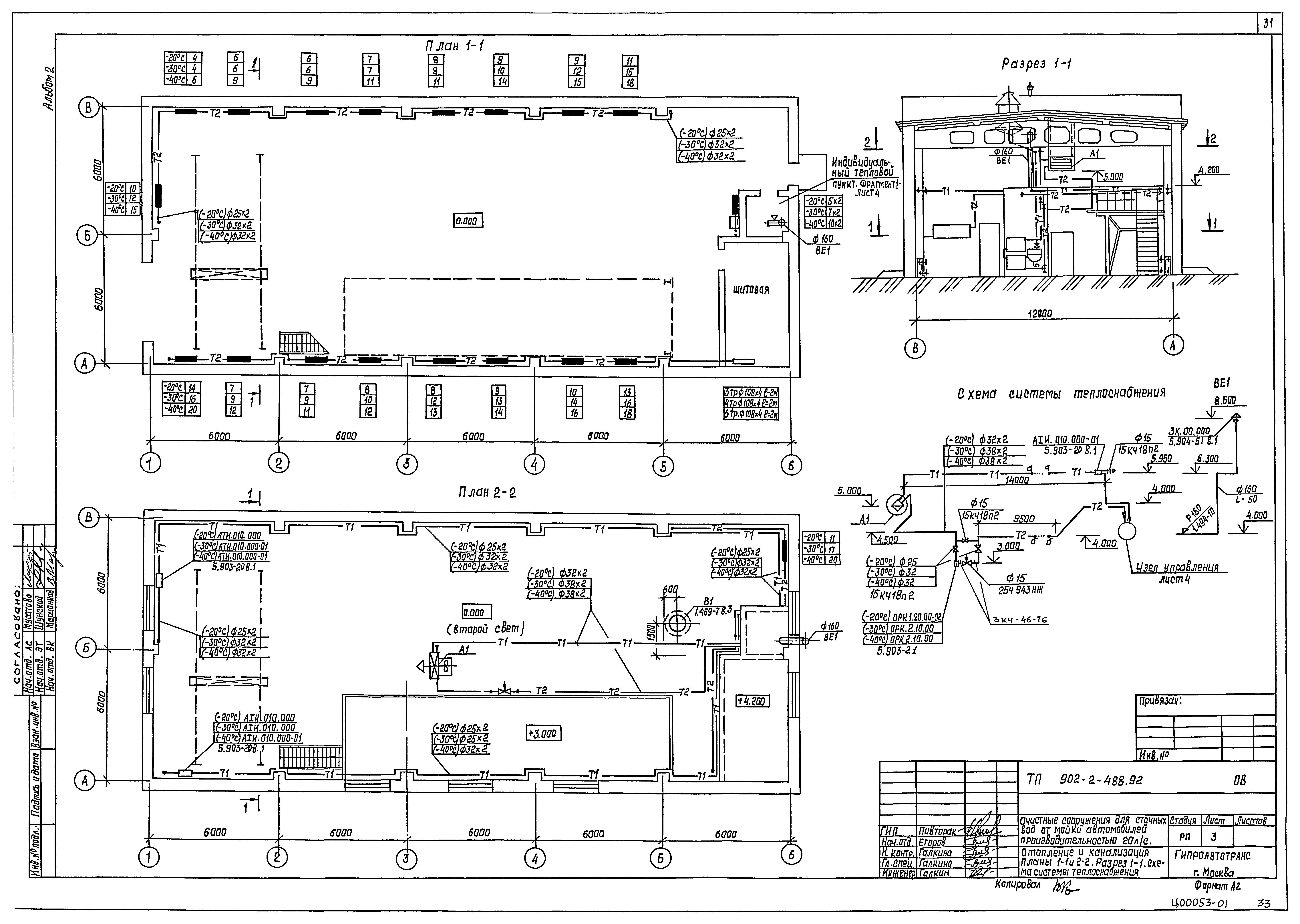
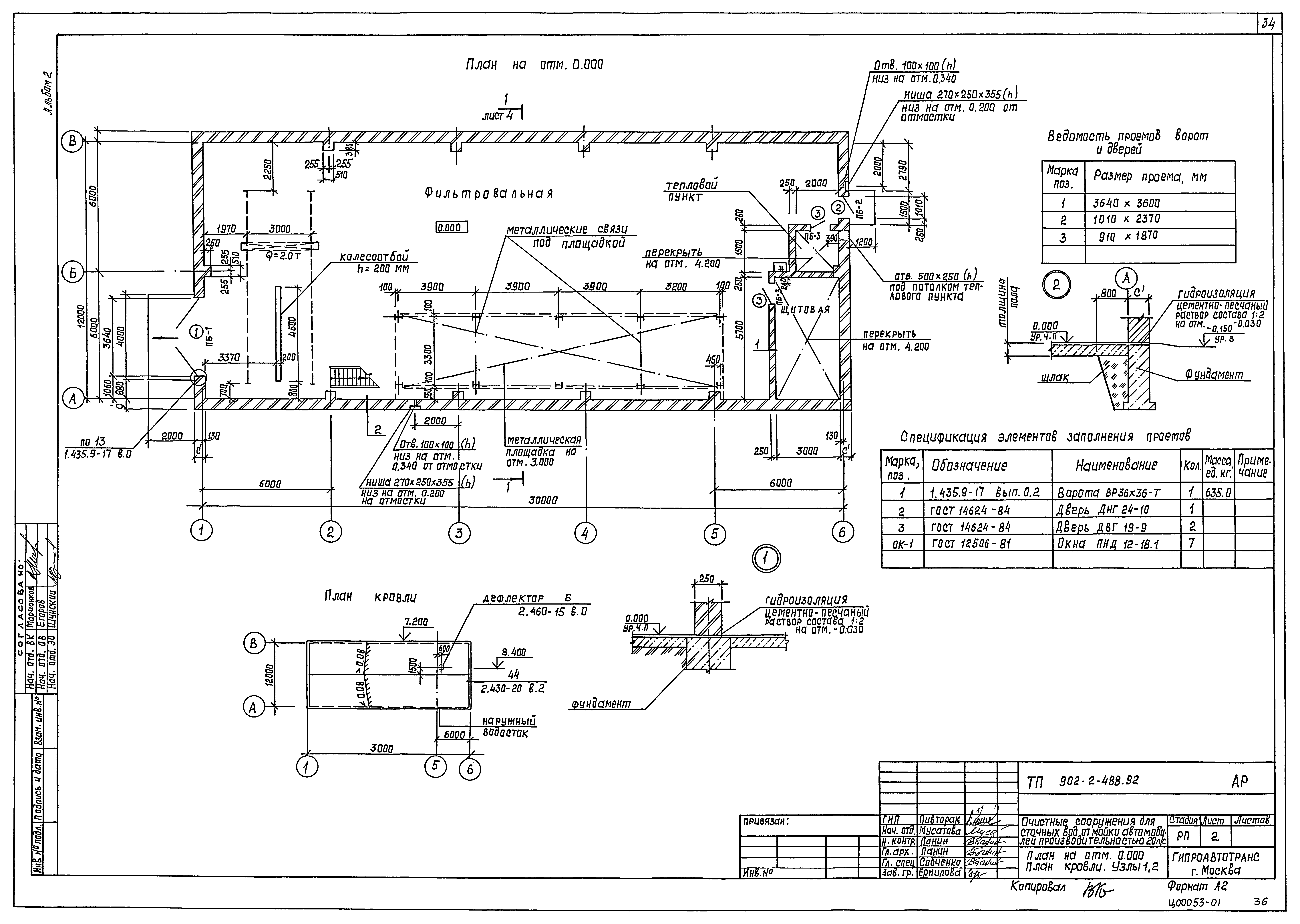
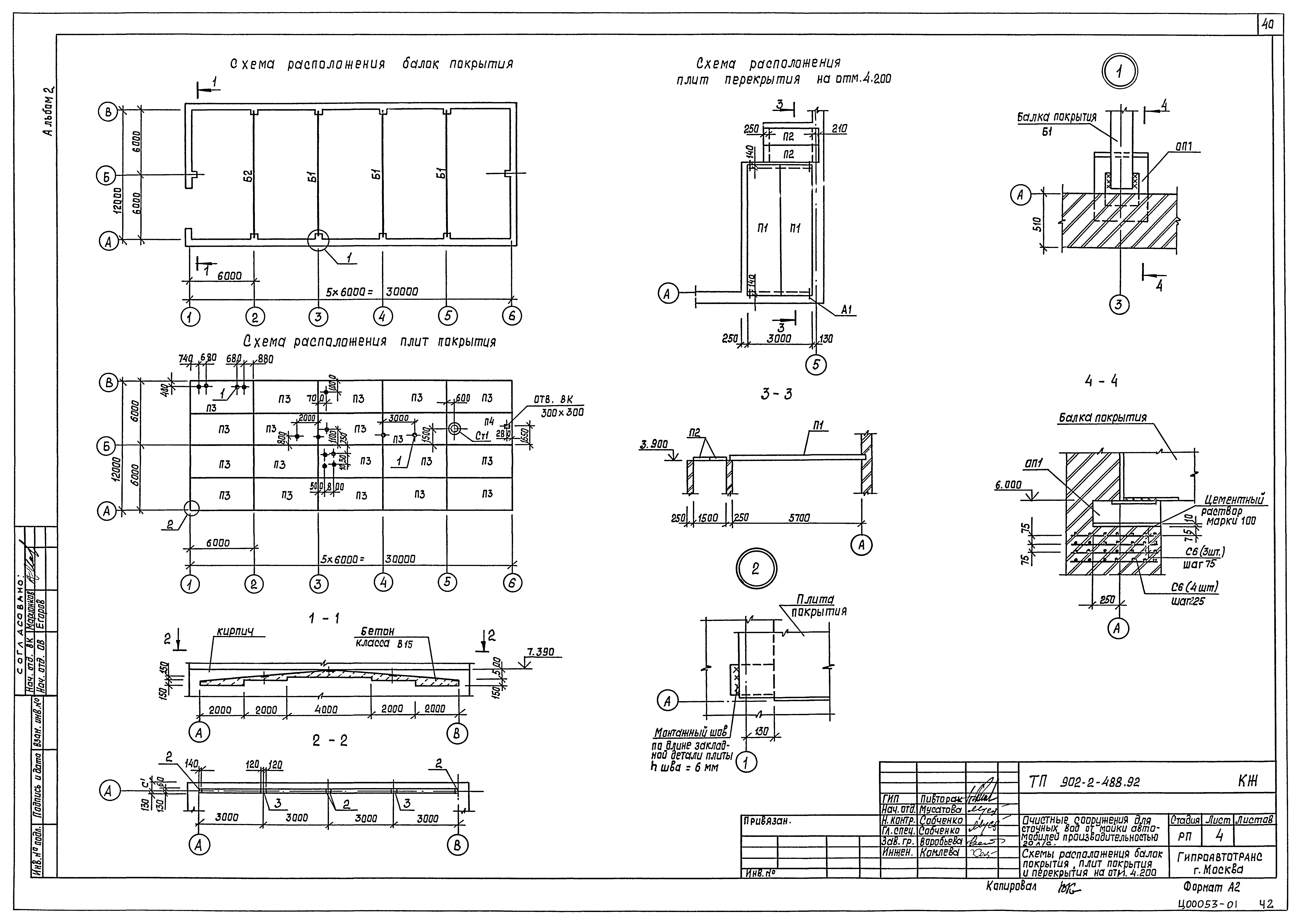
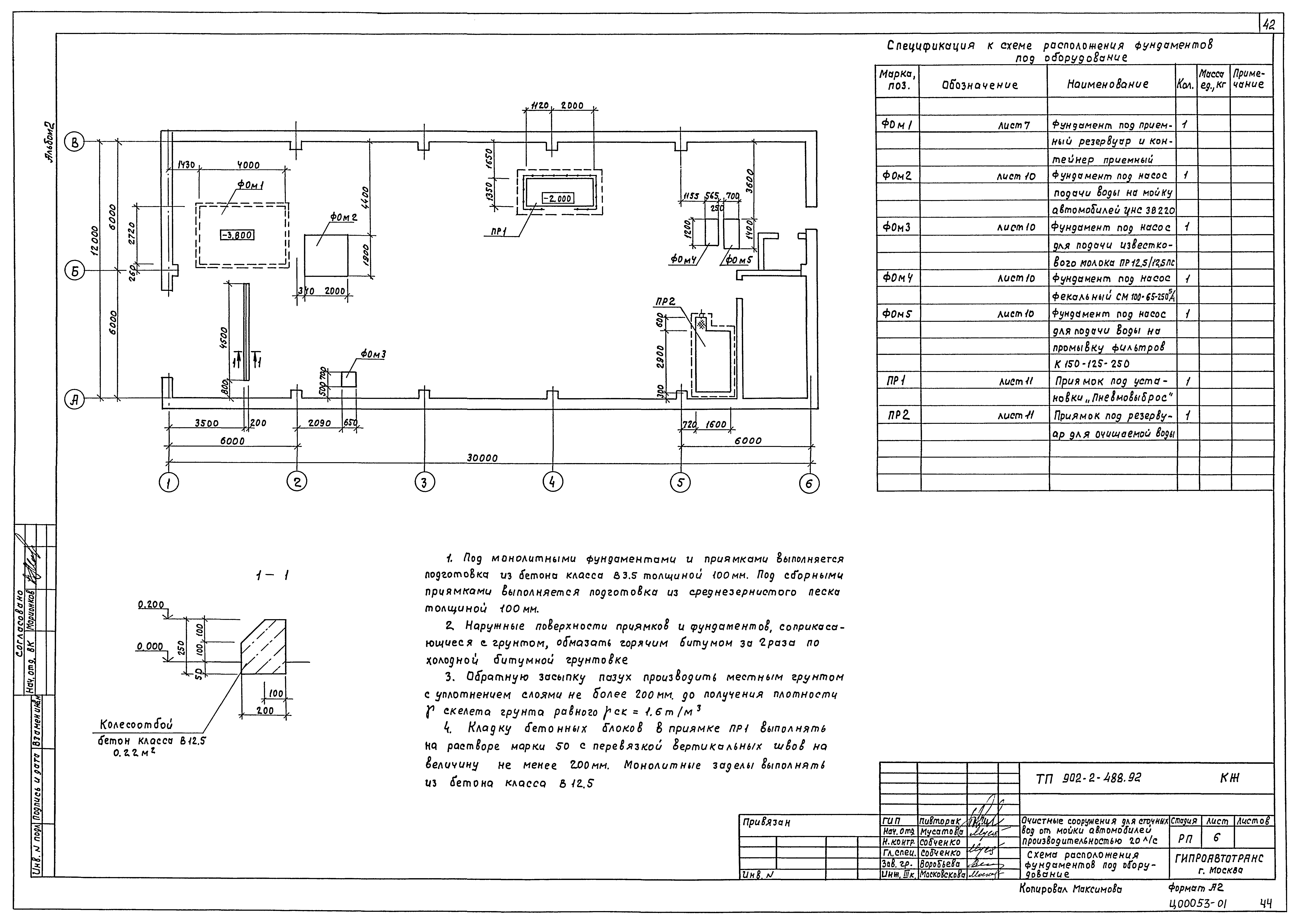
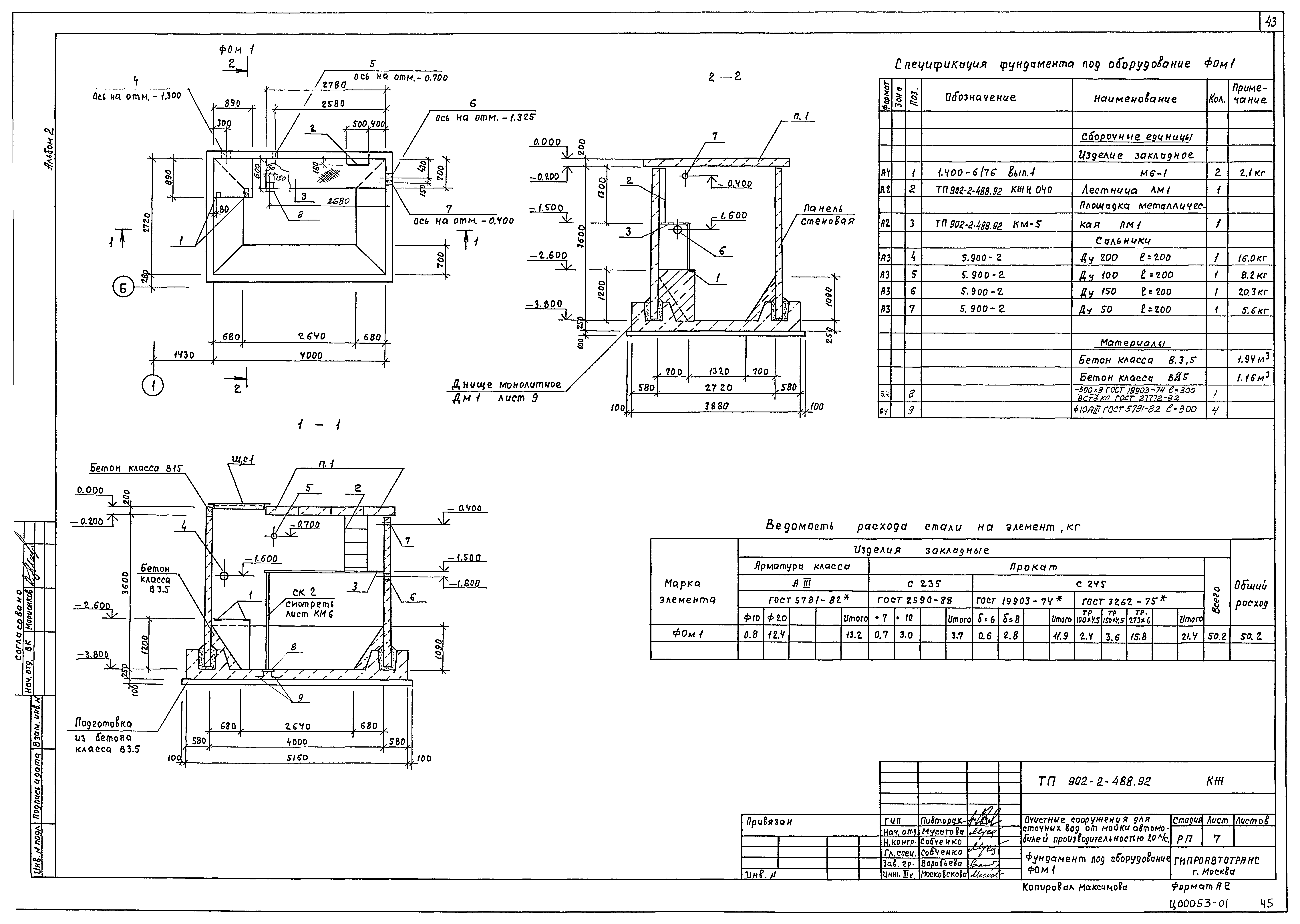
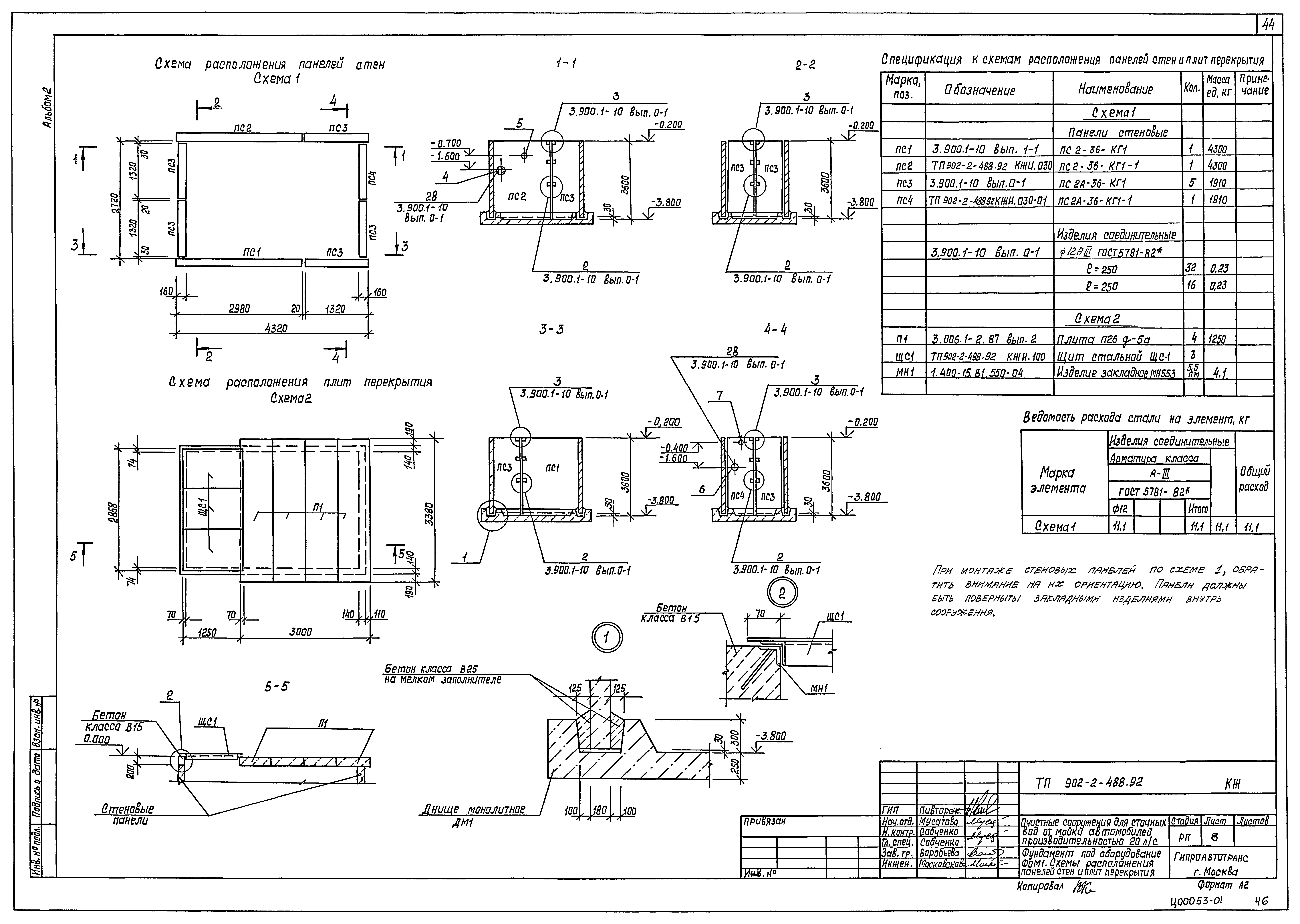
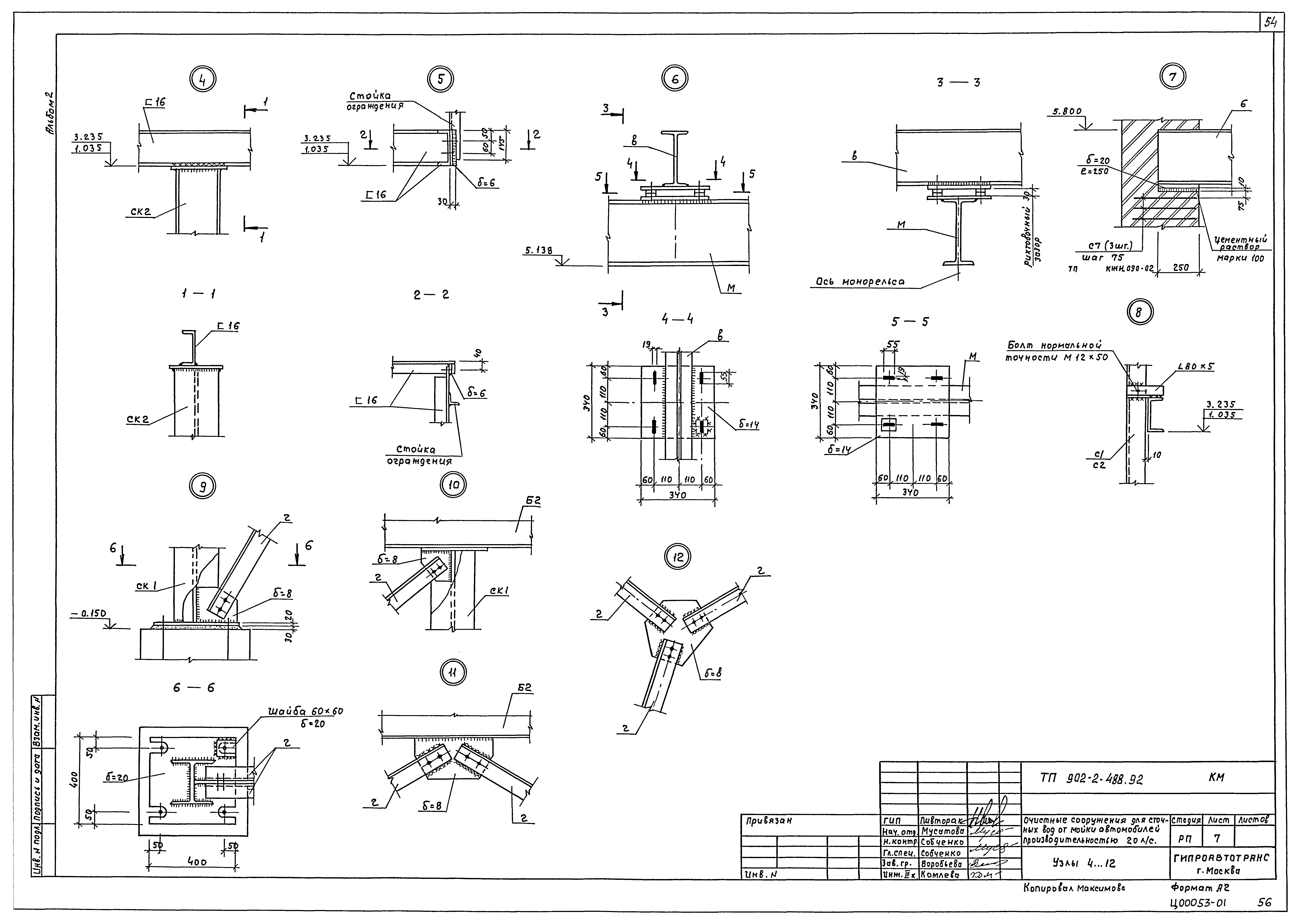
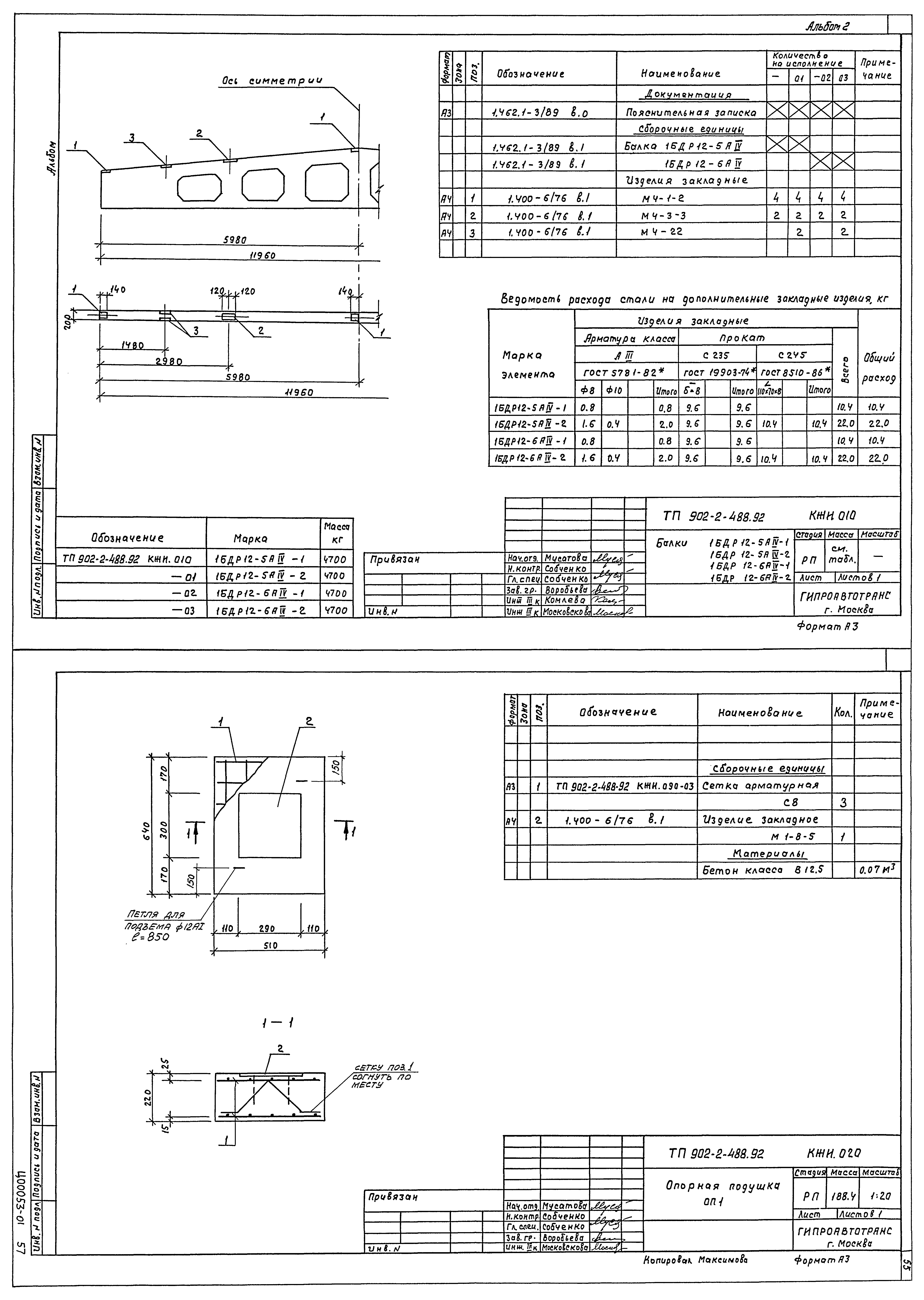
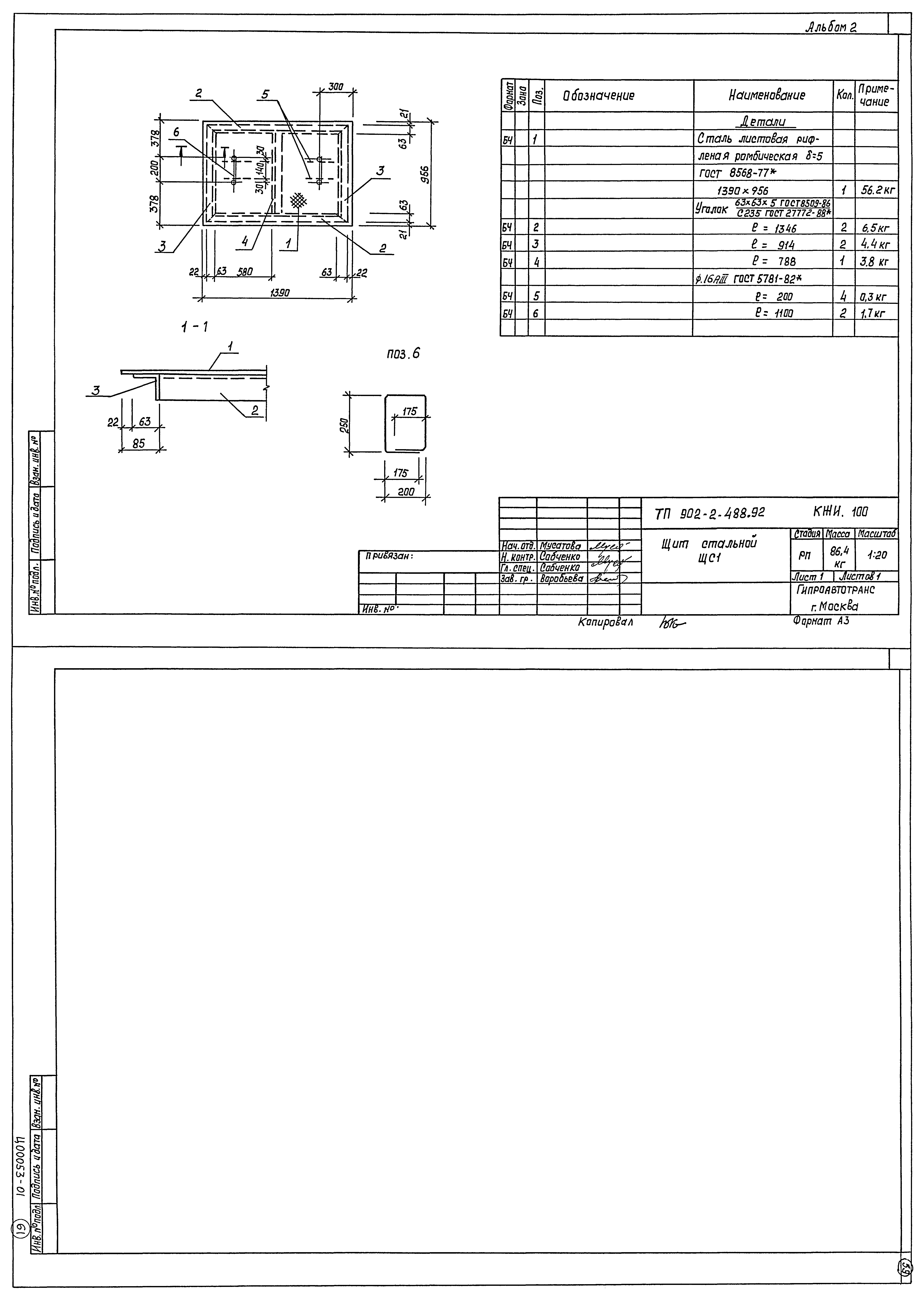
Скачать Типовой проект 902-2-488.92 Альбом 2. Внутренние водопровод и канализация. Отопление и вентиляция. Архитектурные решения. Конструкции железобетонные. Конструкции металлические. Строительные изделияДата актуализации: 01.01.2021
|
| Обозначение: | Типовой проект 902-2-488.92 |
| Обозначение англ: | 902-2-488.92 |
| Статус: | не определен законодательством |
| Название рус.: | Альбом 2. Внутренние водопровод и канализация. Отопление и вентиляция. Архитектурные решения. Конструкции железобетонные. Конструкции металлические. Строительные изделия |
| Дата добавления в базу: | 01.02.2020 |
| Дата актуализации: | 01.01.2021 |
| Дата введения: | 19.11.1992 |
| Дата окончания срока действия: | 30.06.2003 |
| Разработан: | Гипроавтотранс |
| Утверждён: | 19.11.1992 Гипроавтотранс (3-А) |
| Заменяет собой: |
|




























































