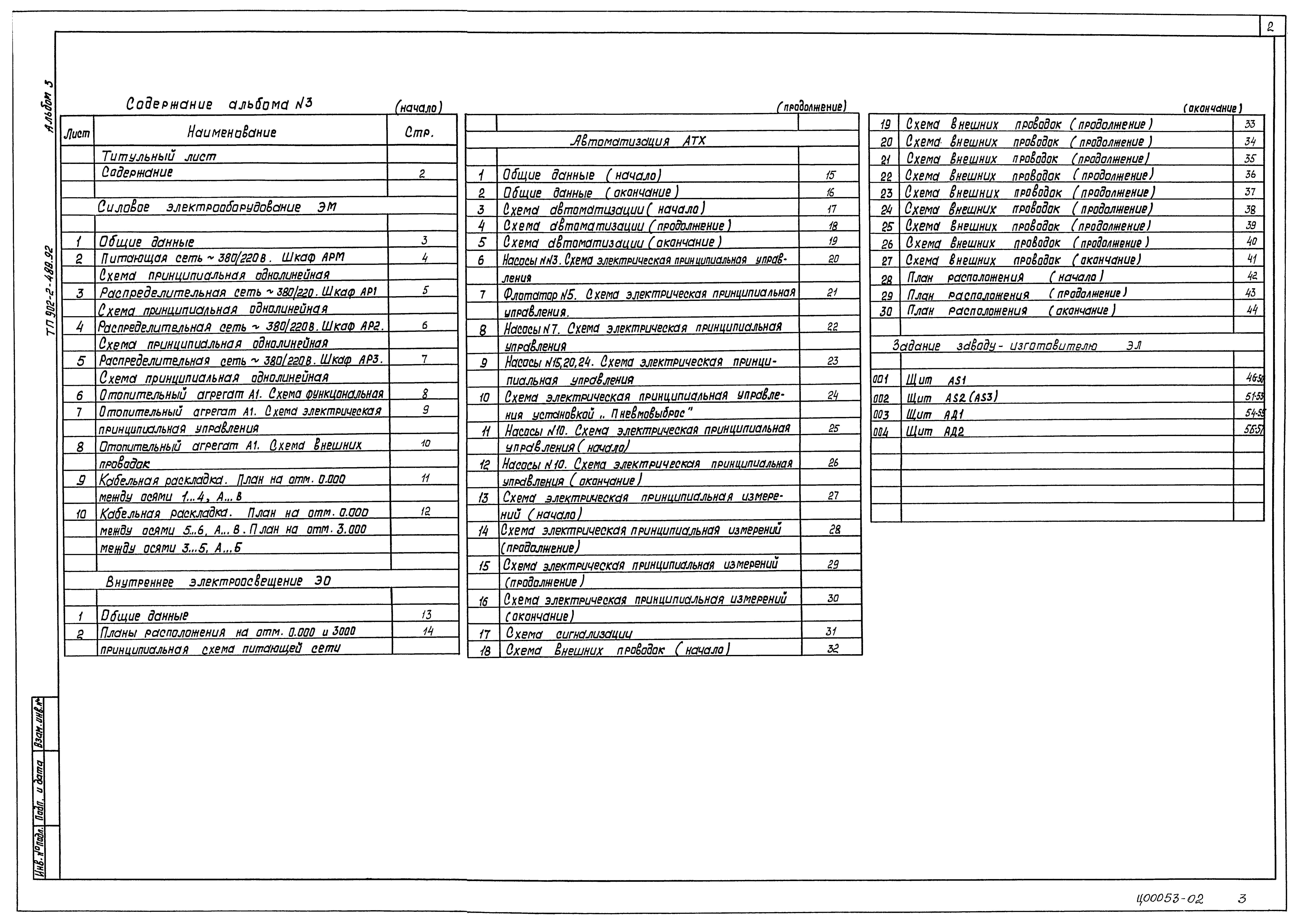
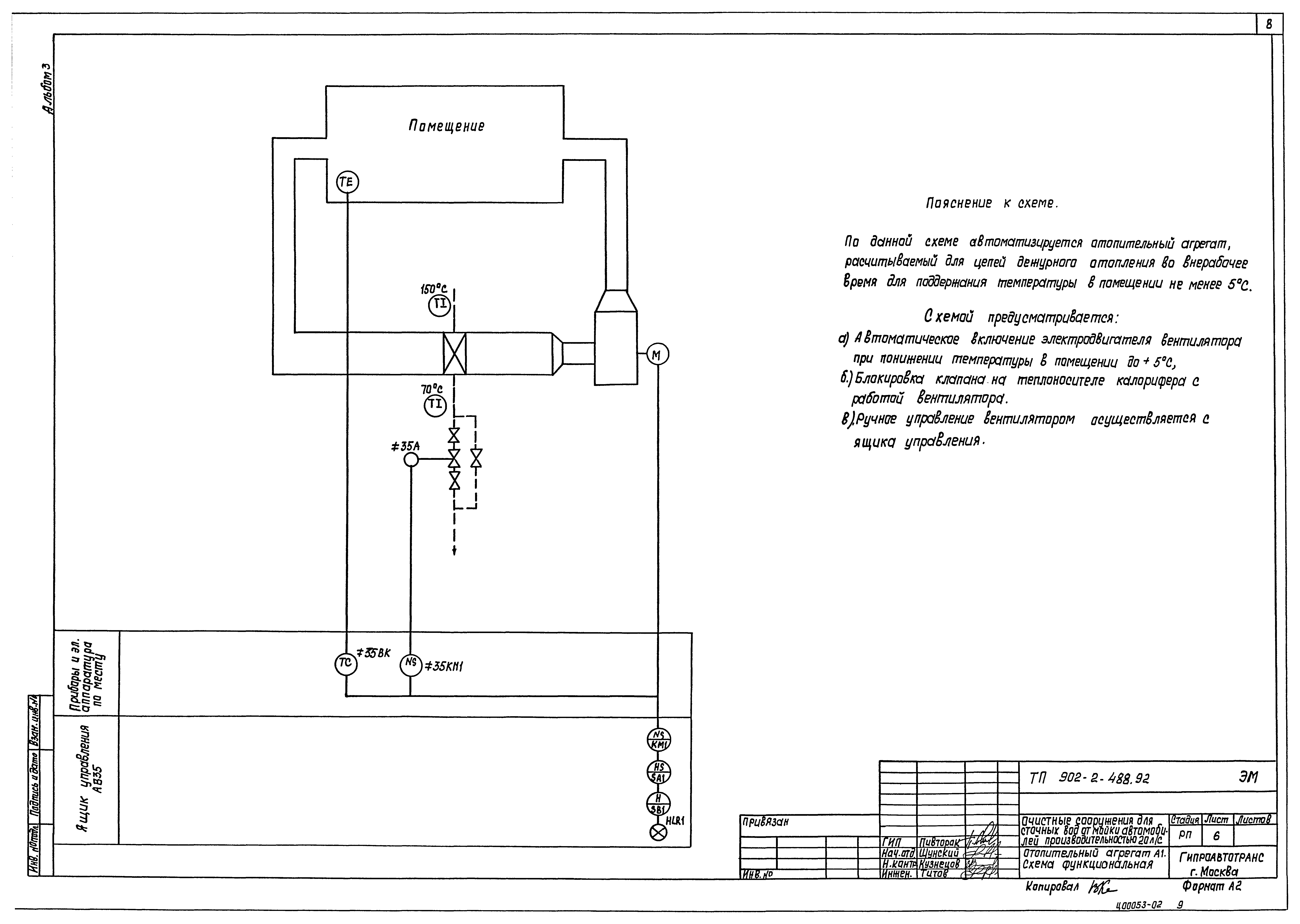
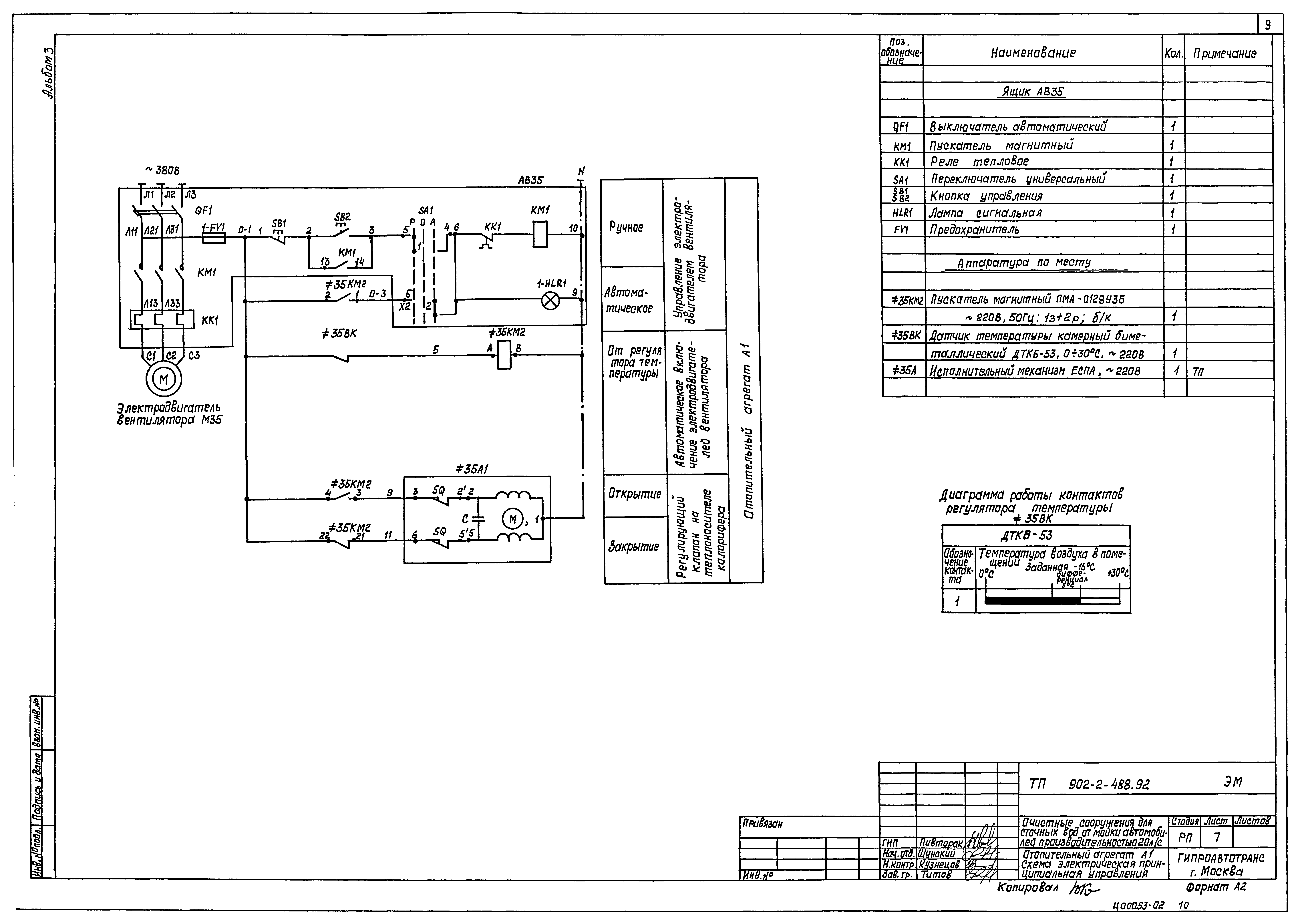
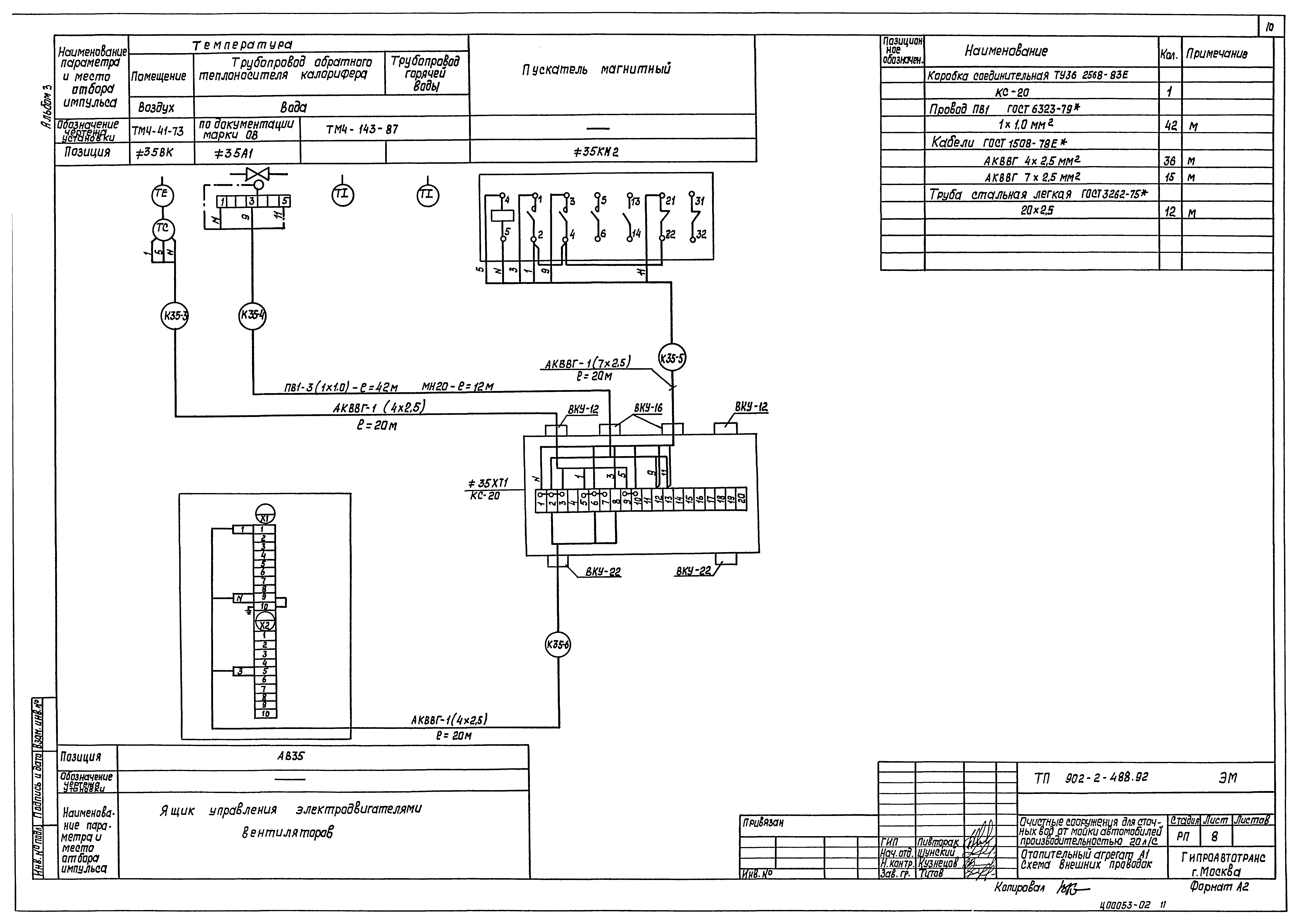
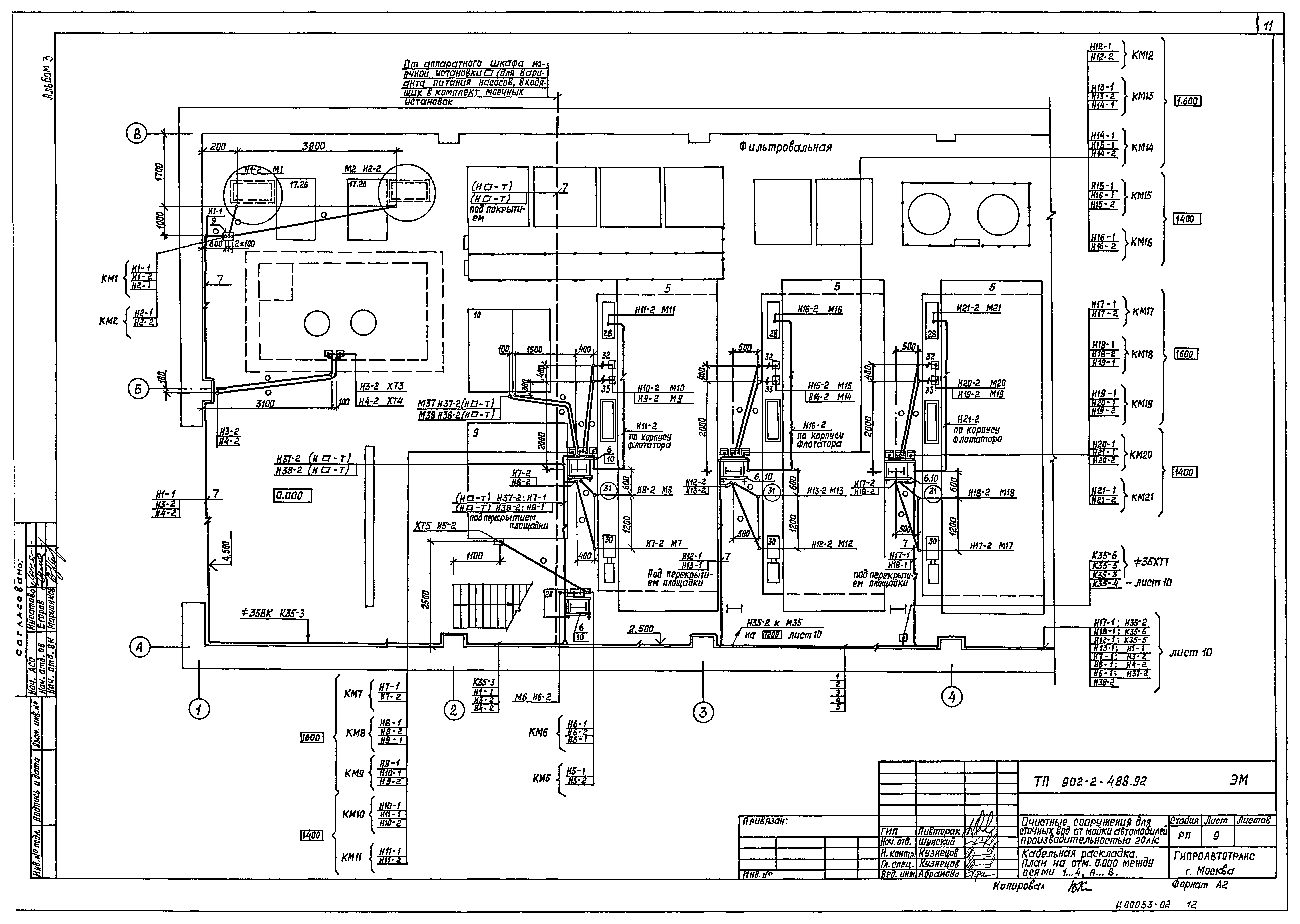
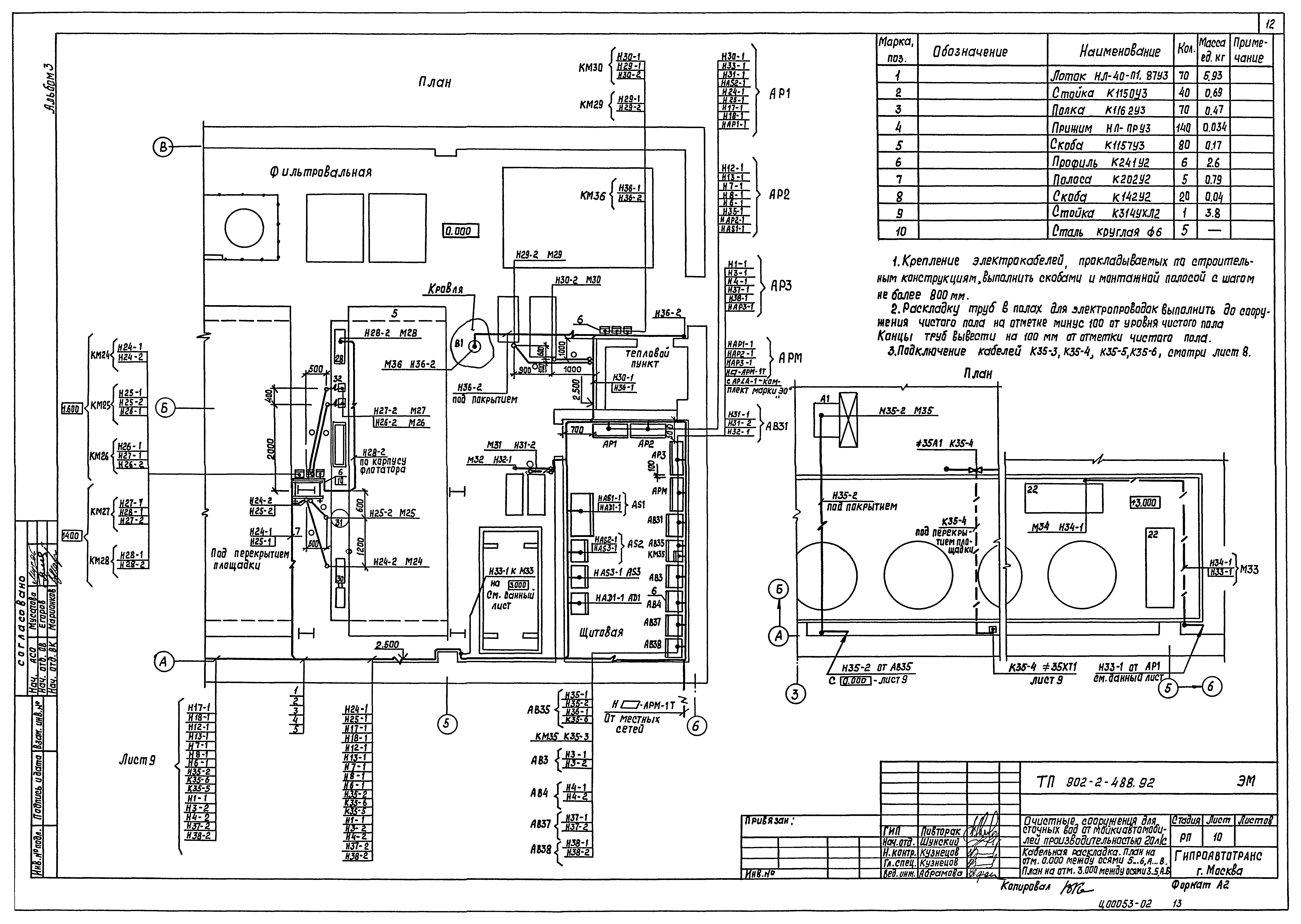
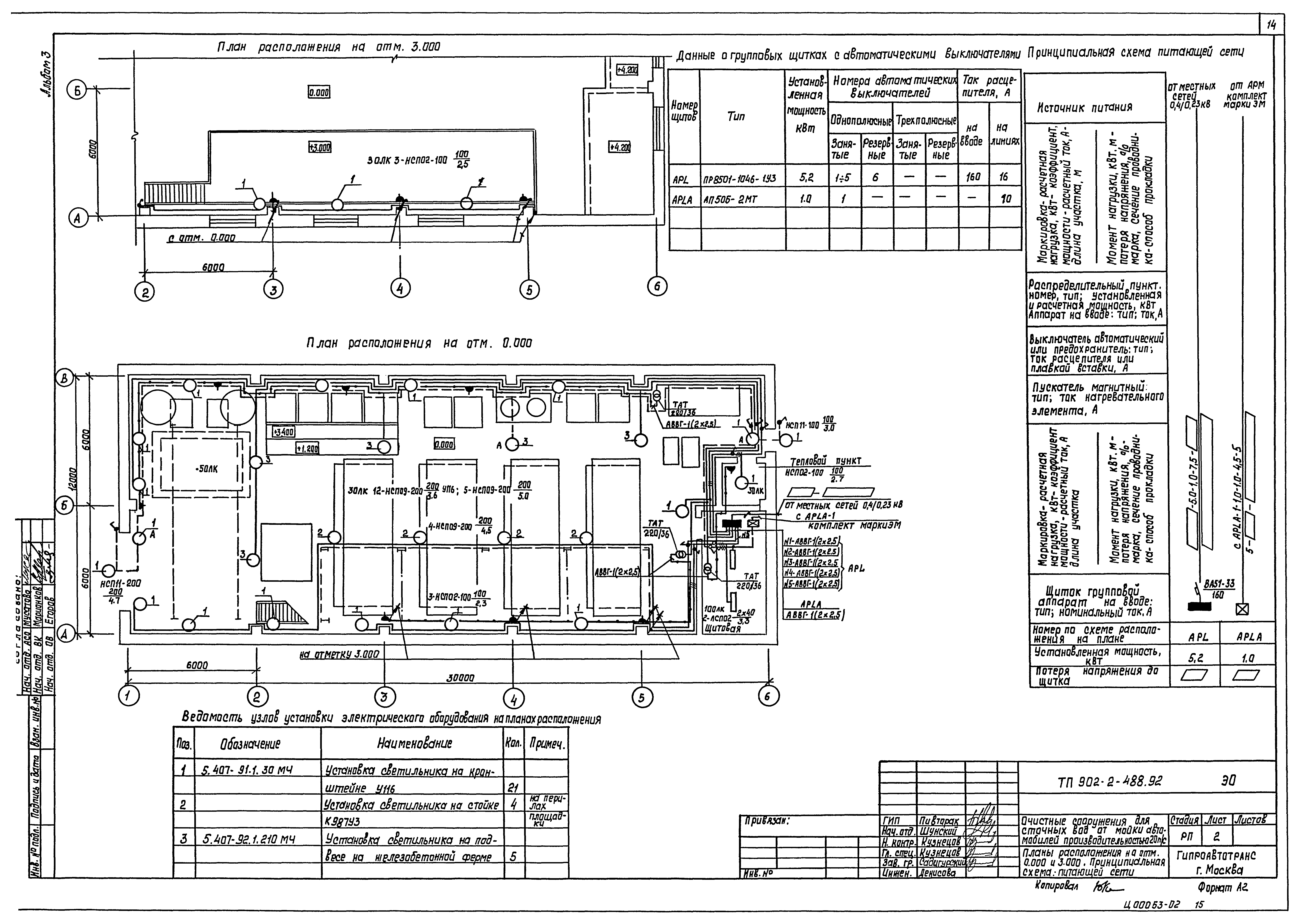
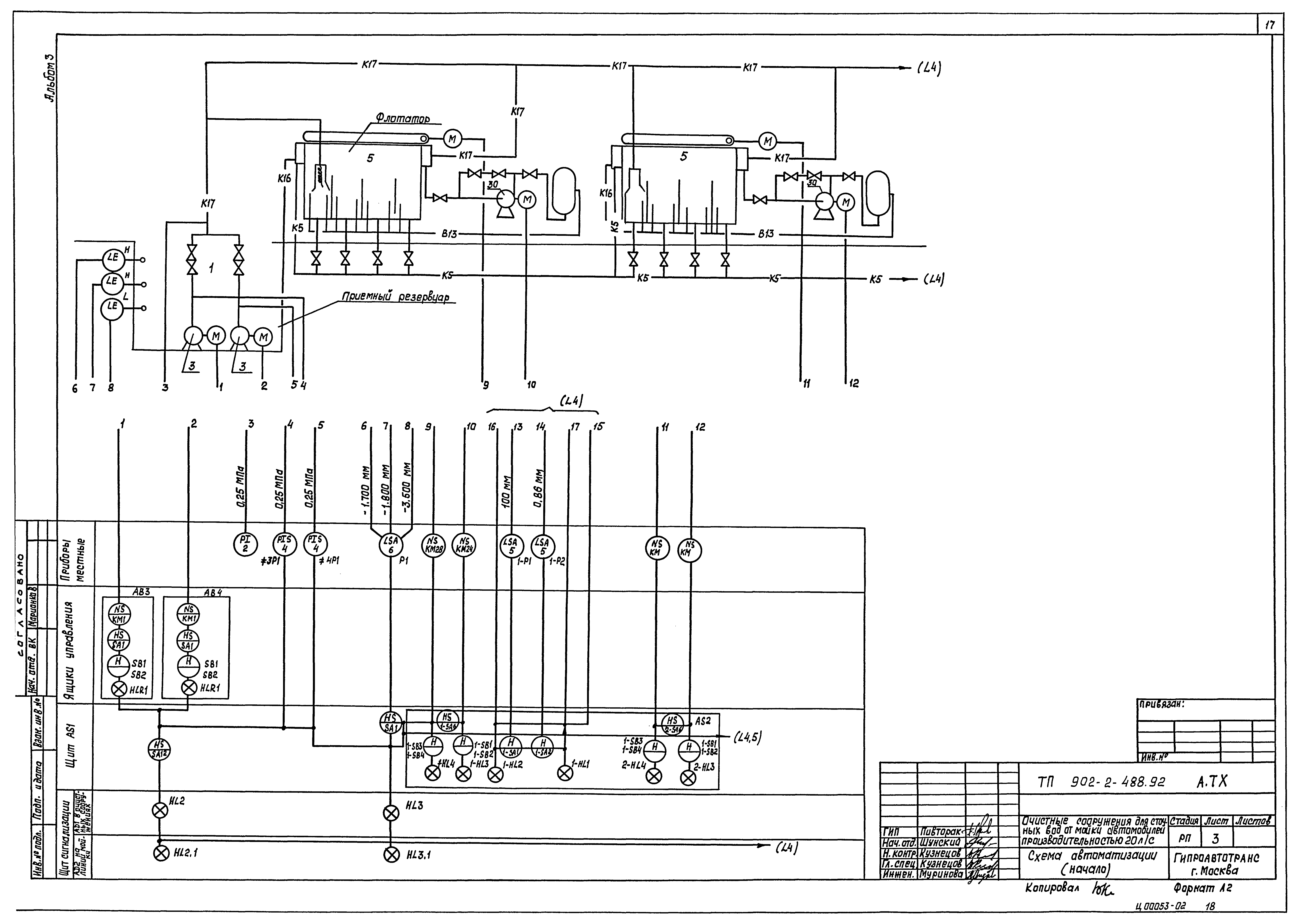
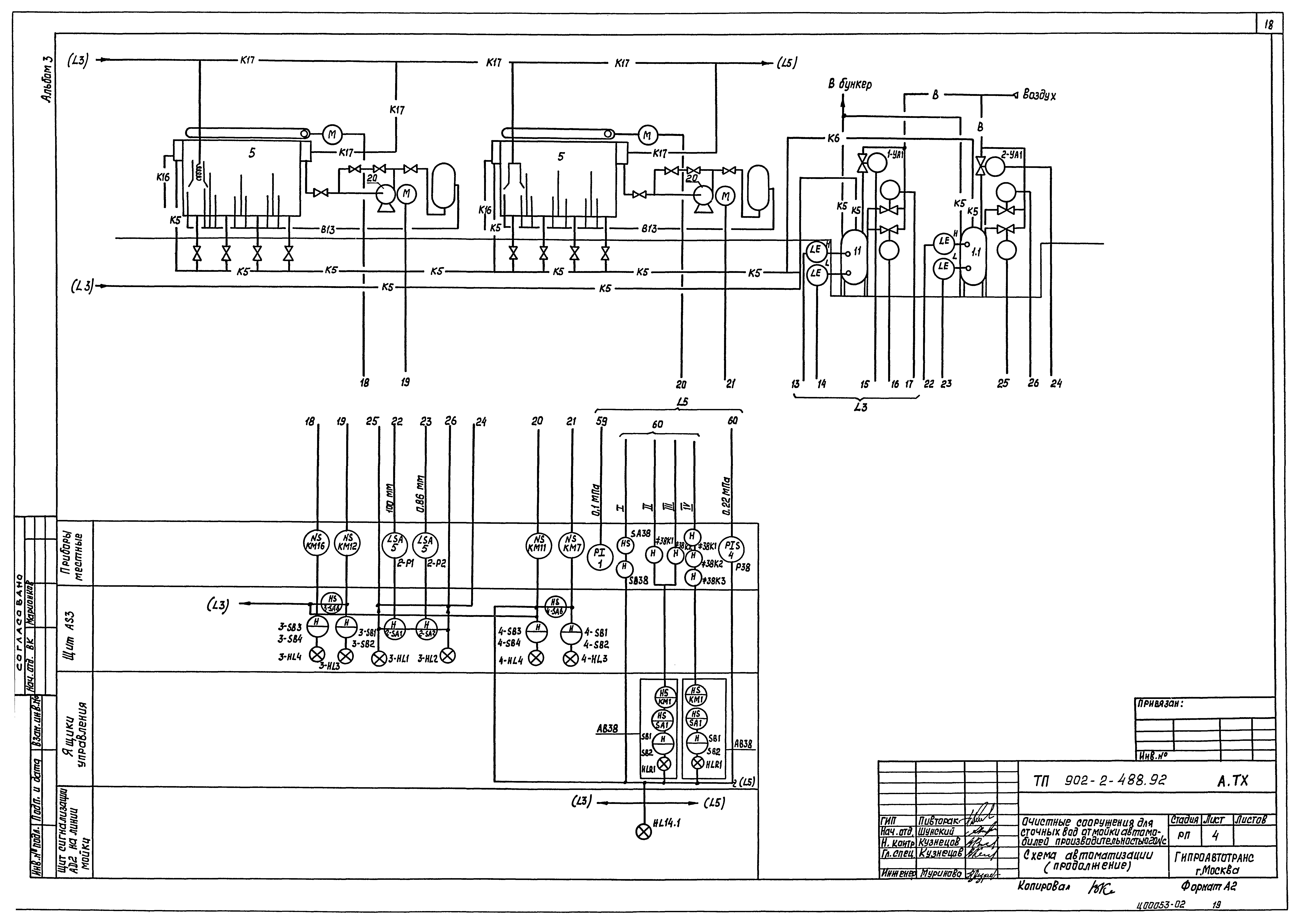
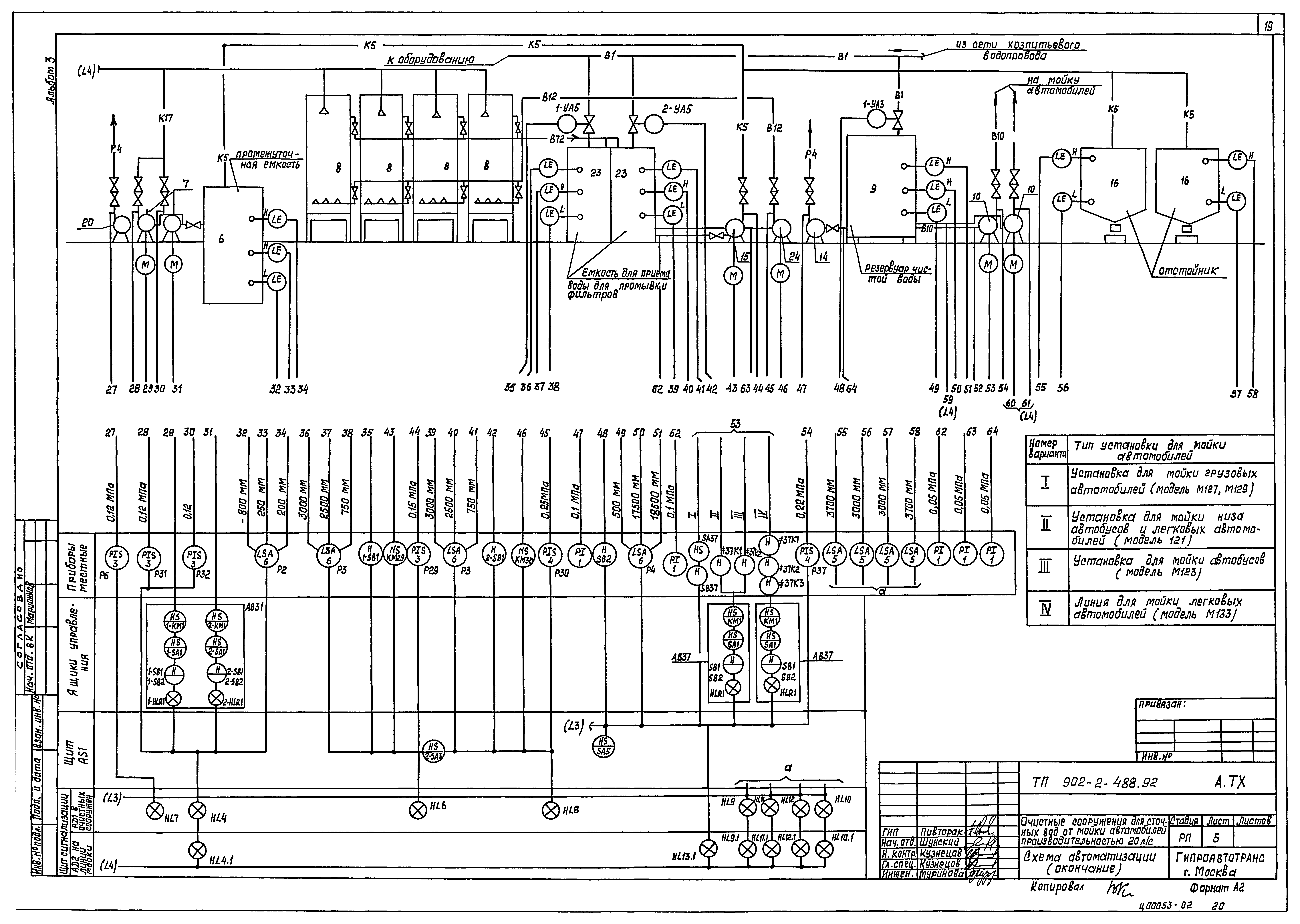
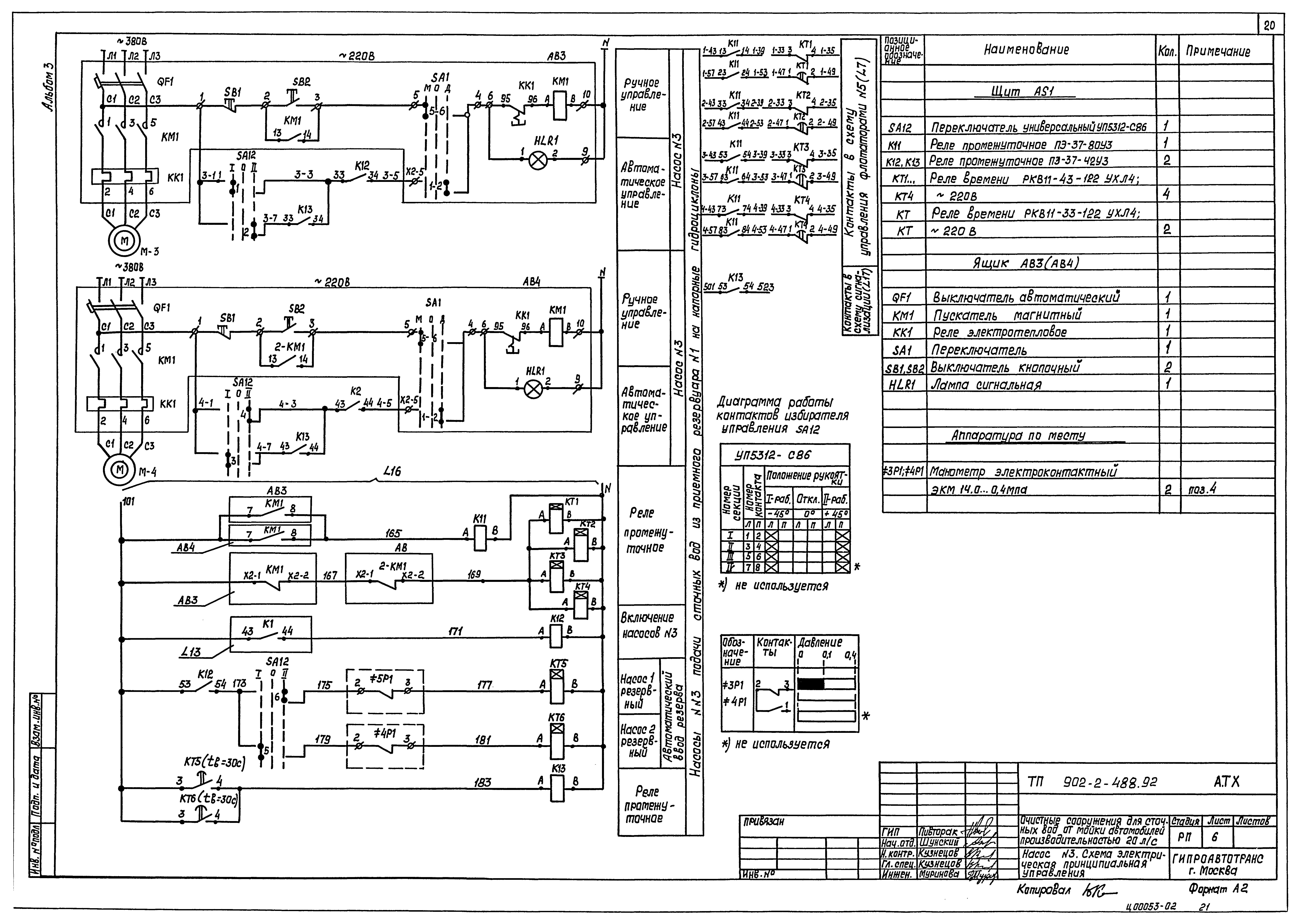
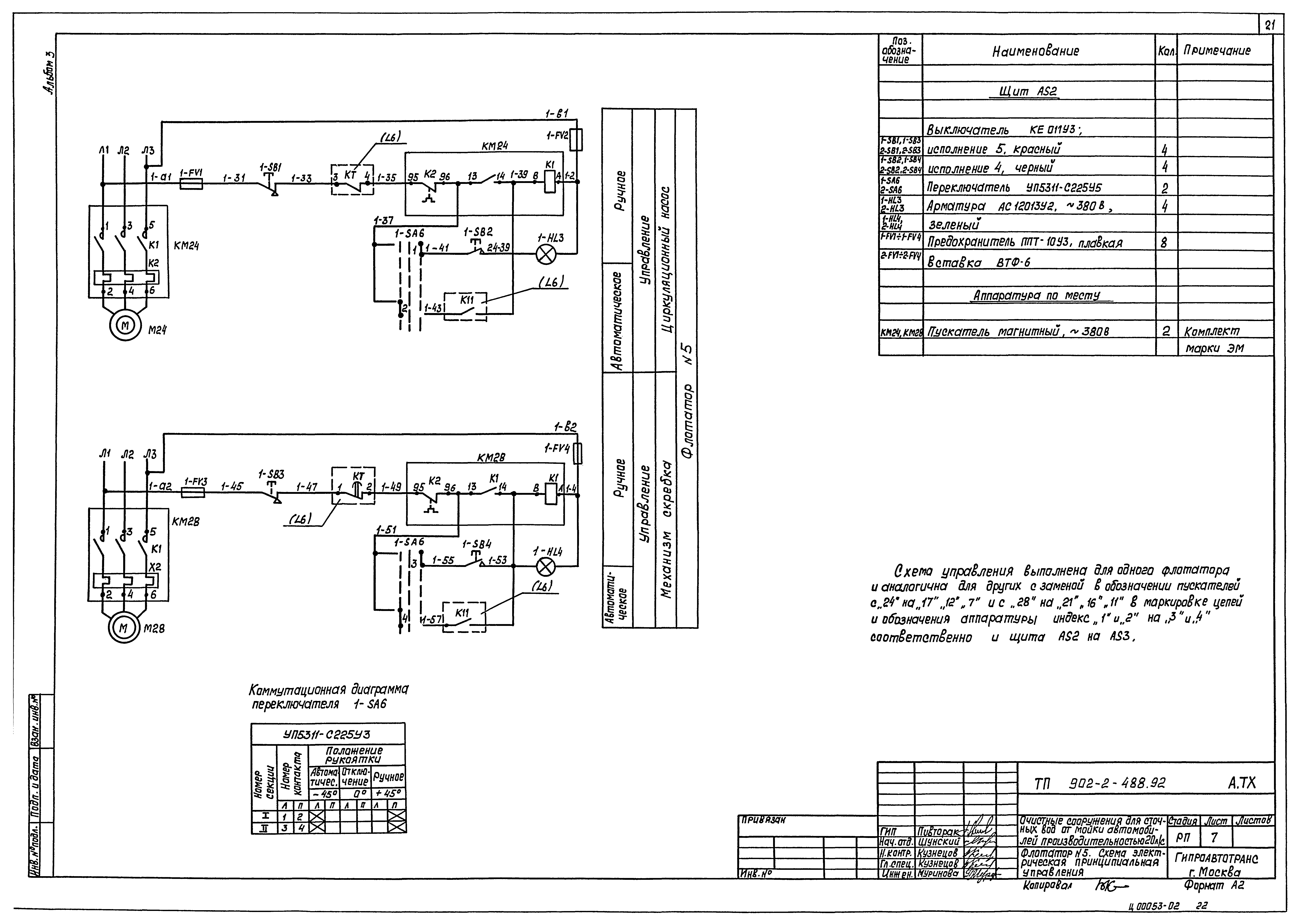
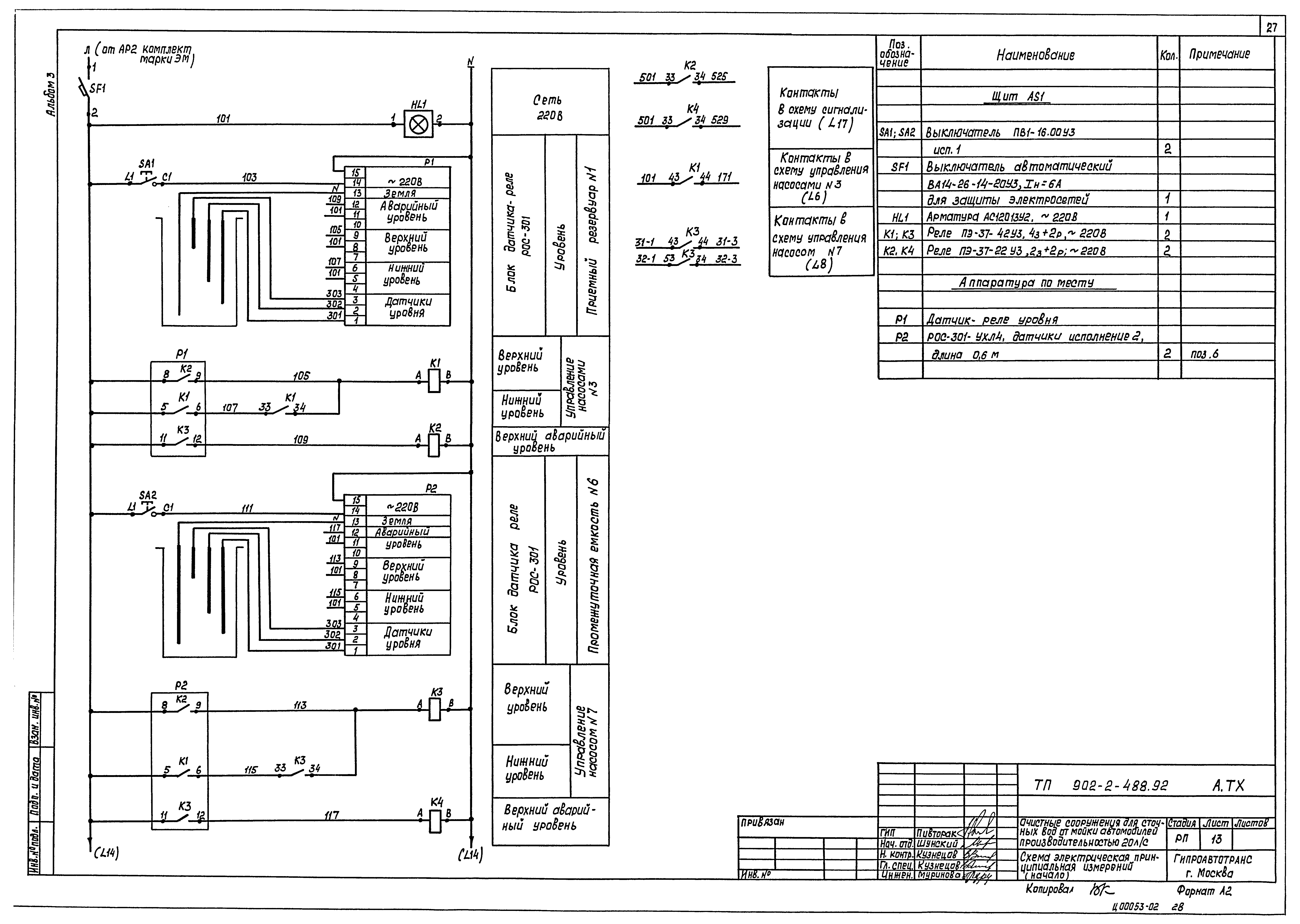
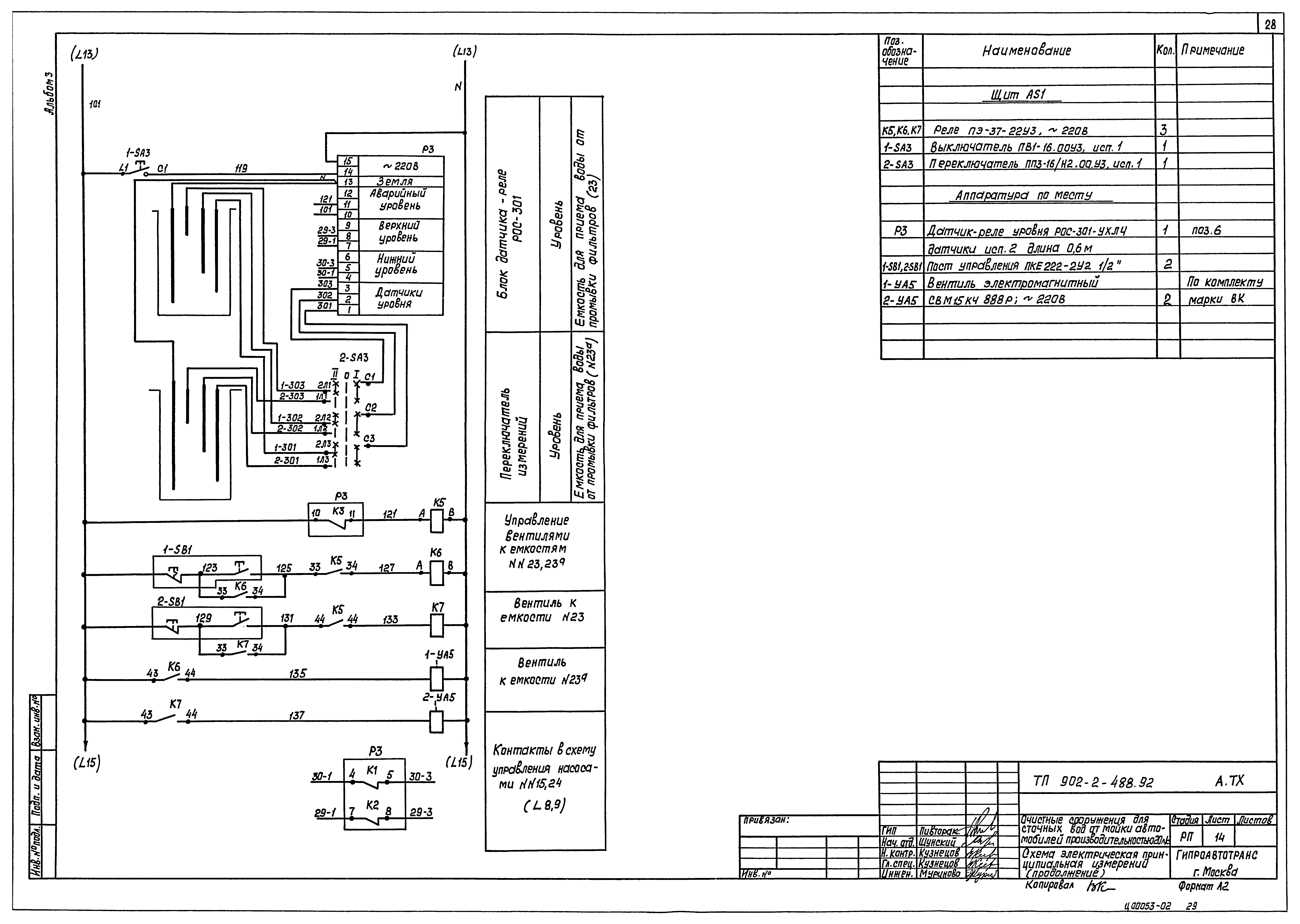
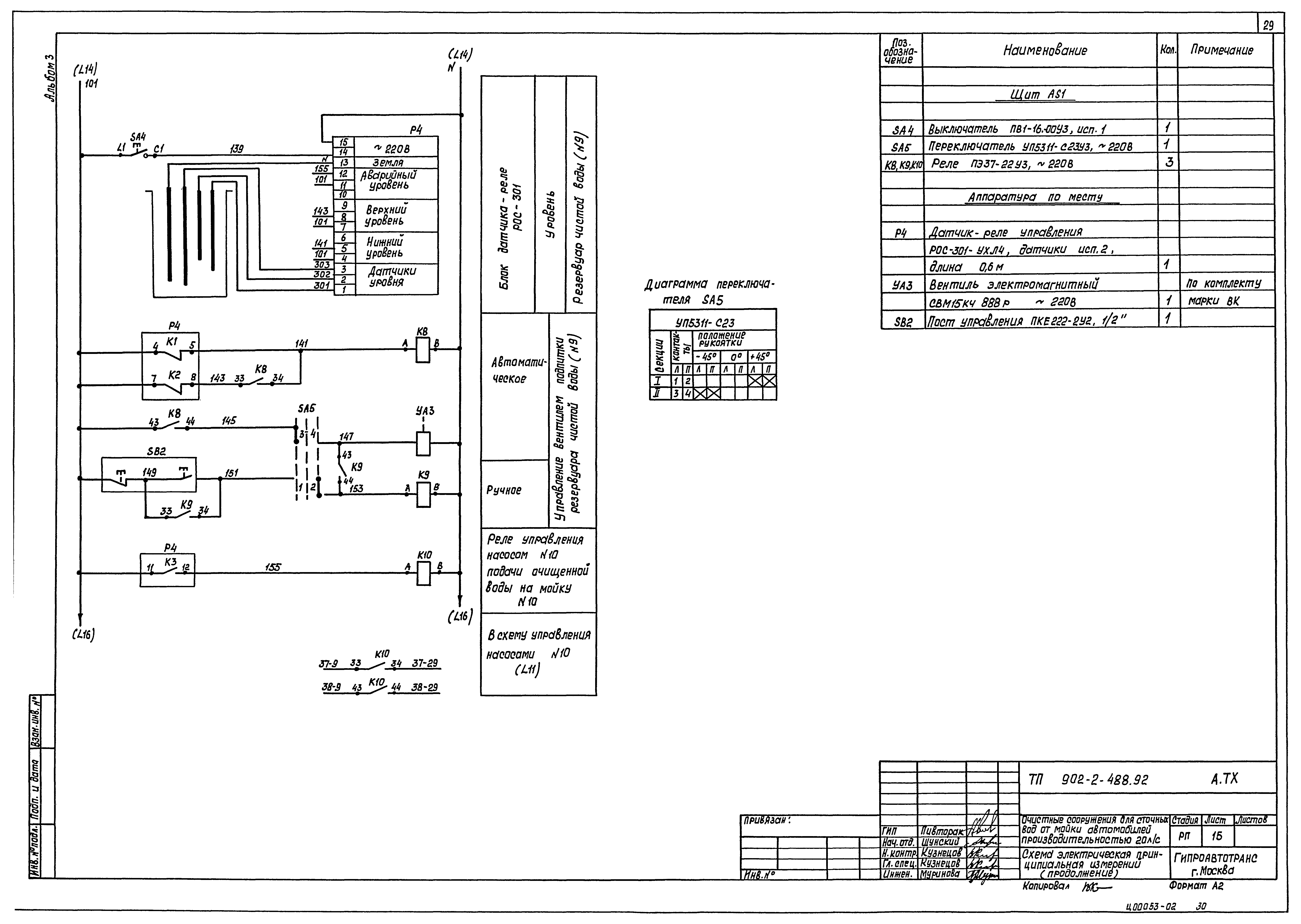
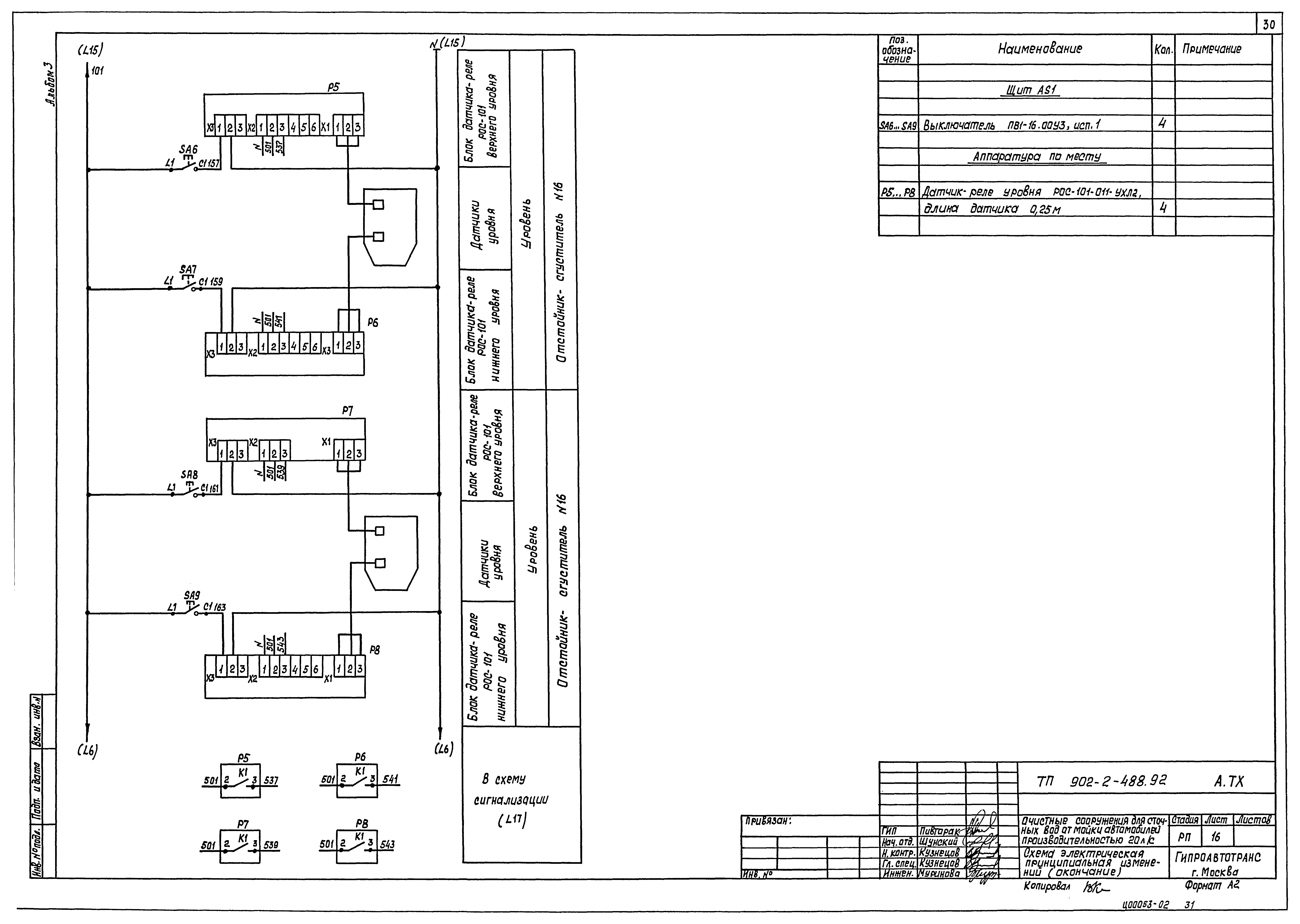
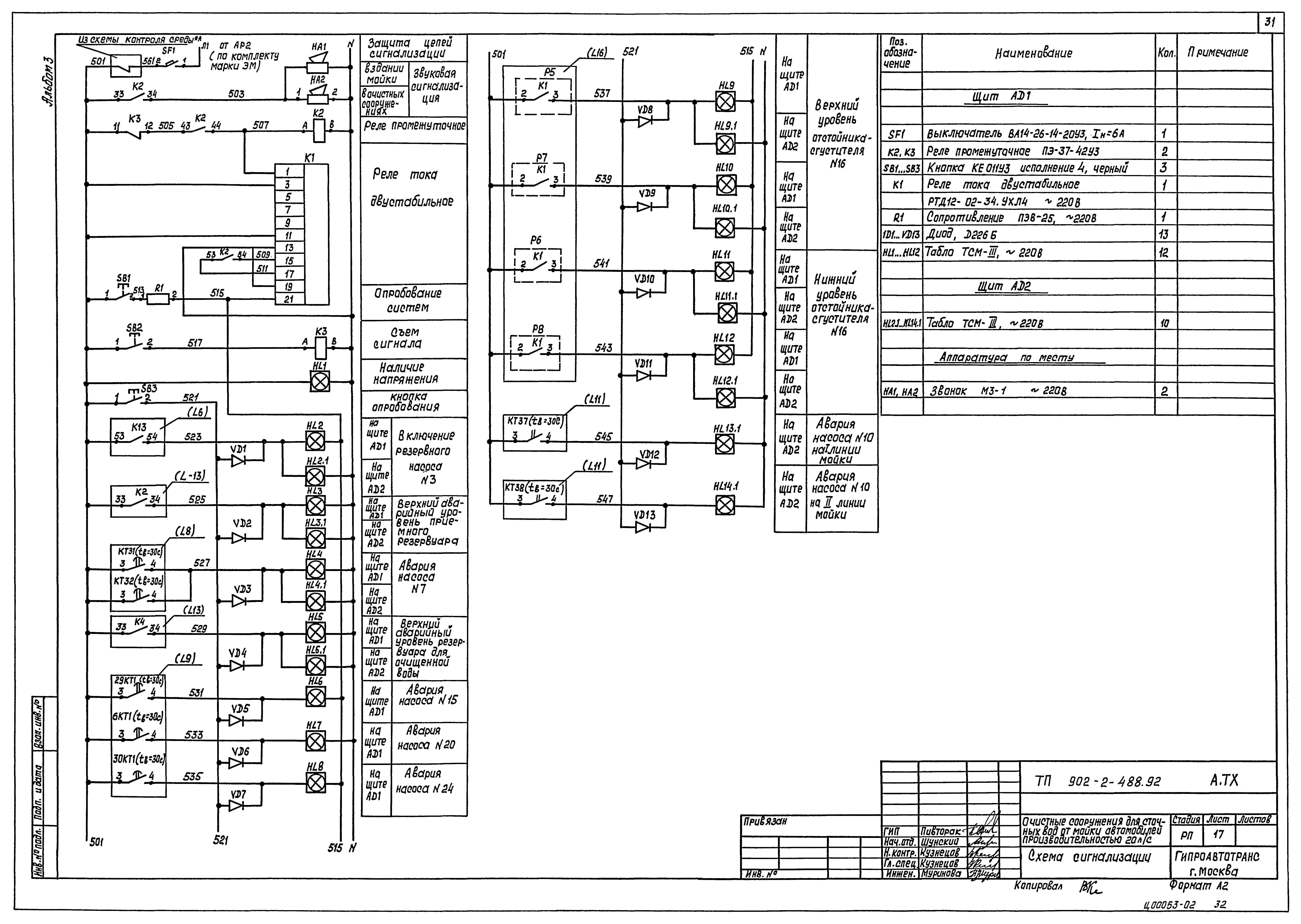
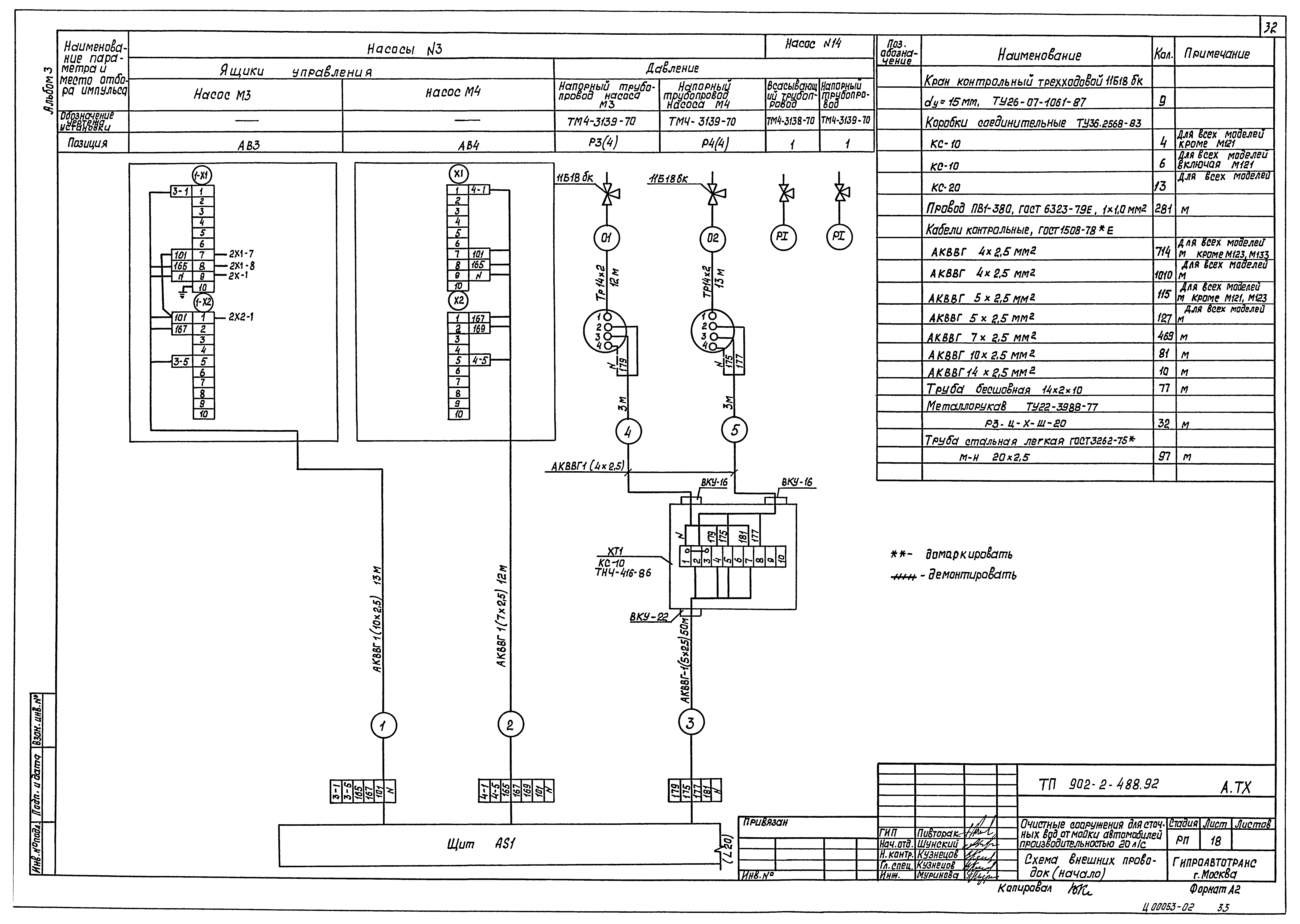
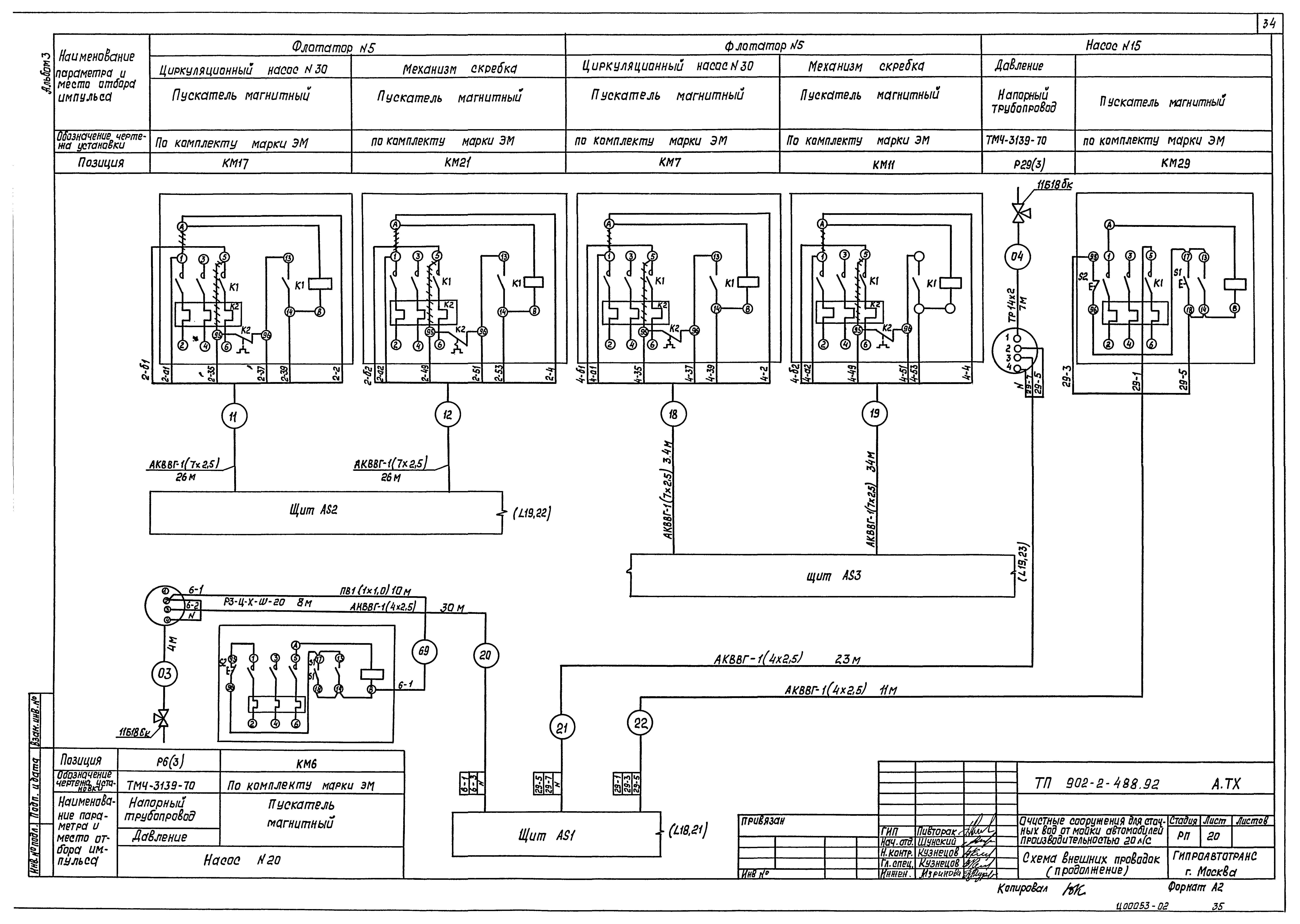
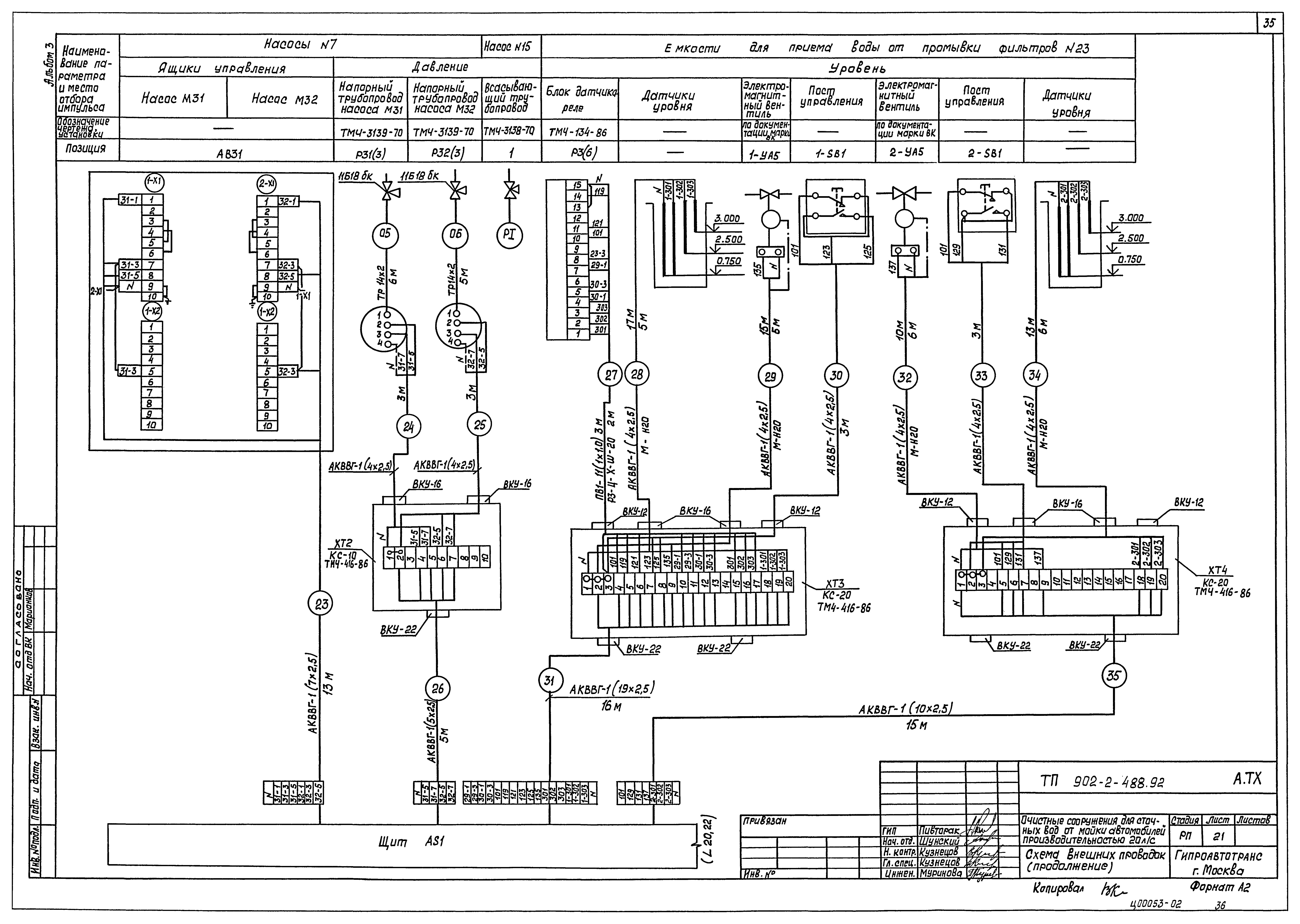
Скачать Типовой проект 902-2-488.92 Альбом 3. Силовое электрооборудование. Электрическое освещение. Автоматизация. Задание заводу-изготовителюДата актуализации: 01.01.2021
|
| Обозначение: | Типовой проект 902-2-488.92 |
| Обозначение англ: | 902-2-488.92 |
| Статус: | не определен законодательством |
| Название рус.: | Альбом 3. Силовое электрооборудование. Электрическое освещение. Автоматизация. Задание заводу-изготовителю |
| Дата добавления в базу: | 01.02.2020 |
| Дата актуализации: | 01.01.2021 |
| Дата введения: | 19.11.1992 |
| Дата окончания срока действия: | 30.06.2003 |
| Разработан: | Гипроавтотранс |
| Утверждён: | 19.11.1992 Гипроавтотранс (3-А) |
| Заменяет собой: |
|

























































