Скачать Типовой проект 503-2-38.89 Альбом 6. Задание заводу-изготовителю на автоматику и электрооборудованиеДата актуализации: 01.01.2021
|
| Обозначение: | Типовой проект 503-2-38.89 |
| Обозначение англ: | 503-2-38.89 |
| Статус: | не определен законодательством |
| Название рус.: | Альбом 6. Задание заводу-изготовителю на автоматику и электрооборудование |
| Дата добавления в базу: | 01.09.2013 |
| Дата актуализации: | 01.01.2021 |
| Дата введения: | 15.09.1989 |
| Дата окончания срока действия: | 30.06.2003 |
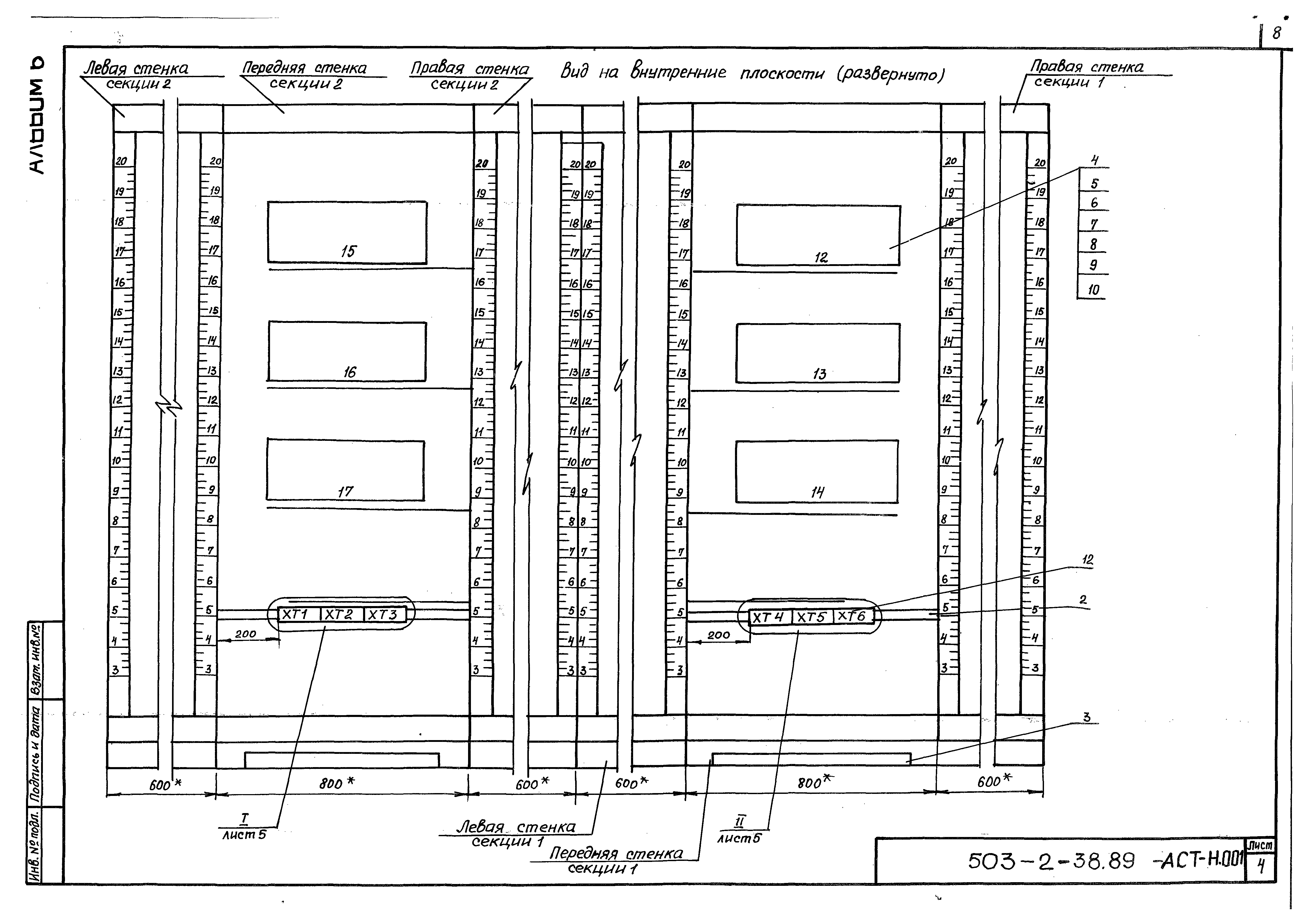
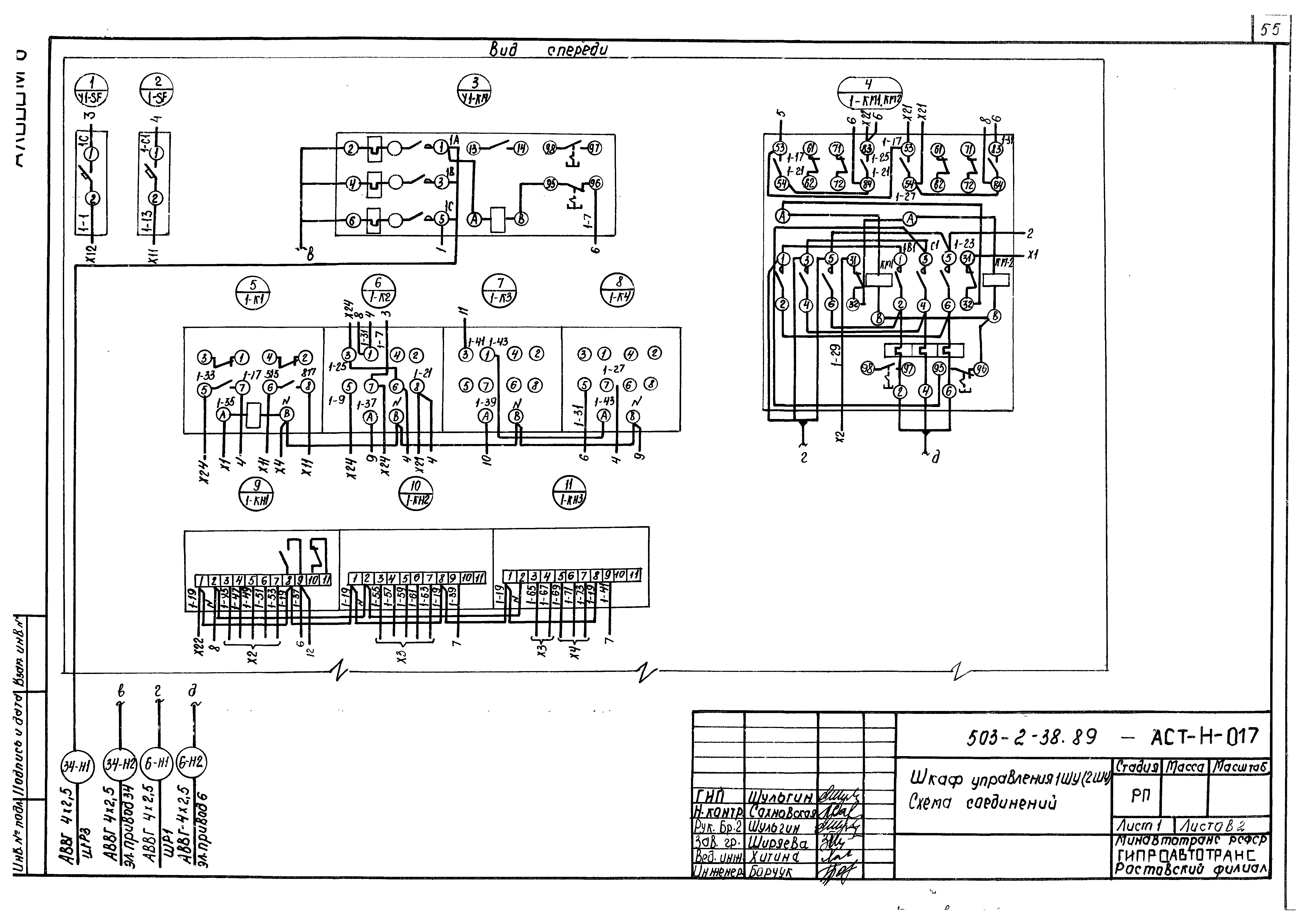
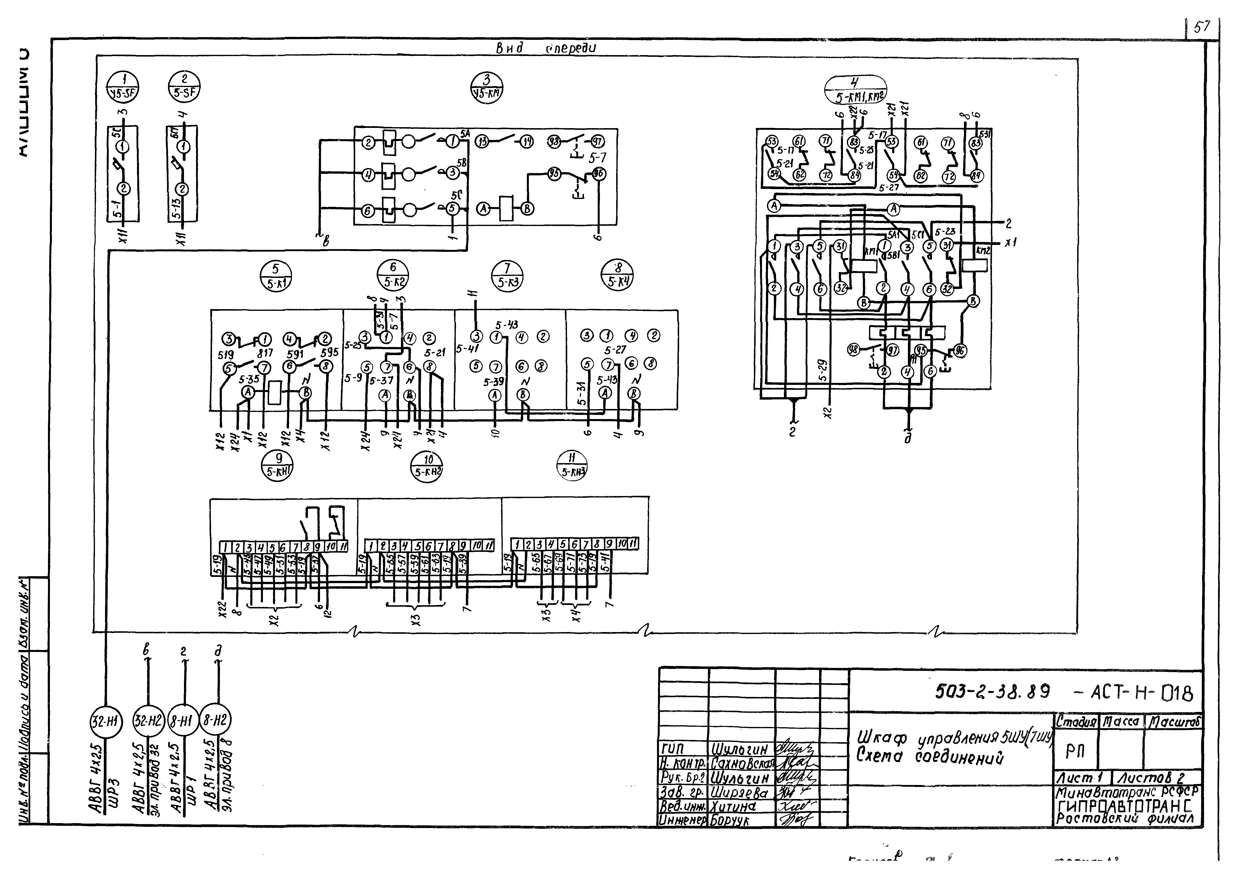
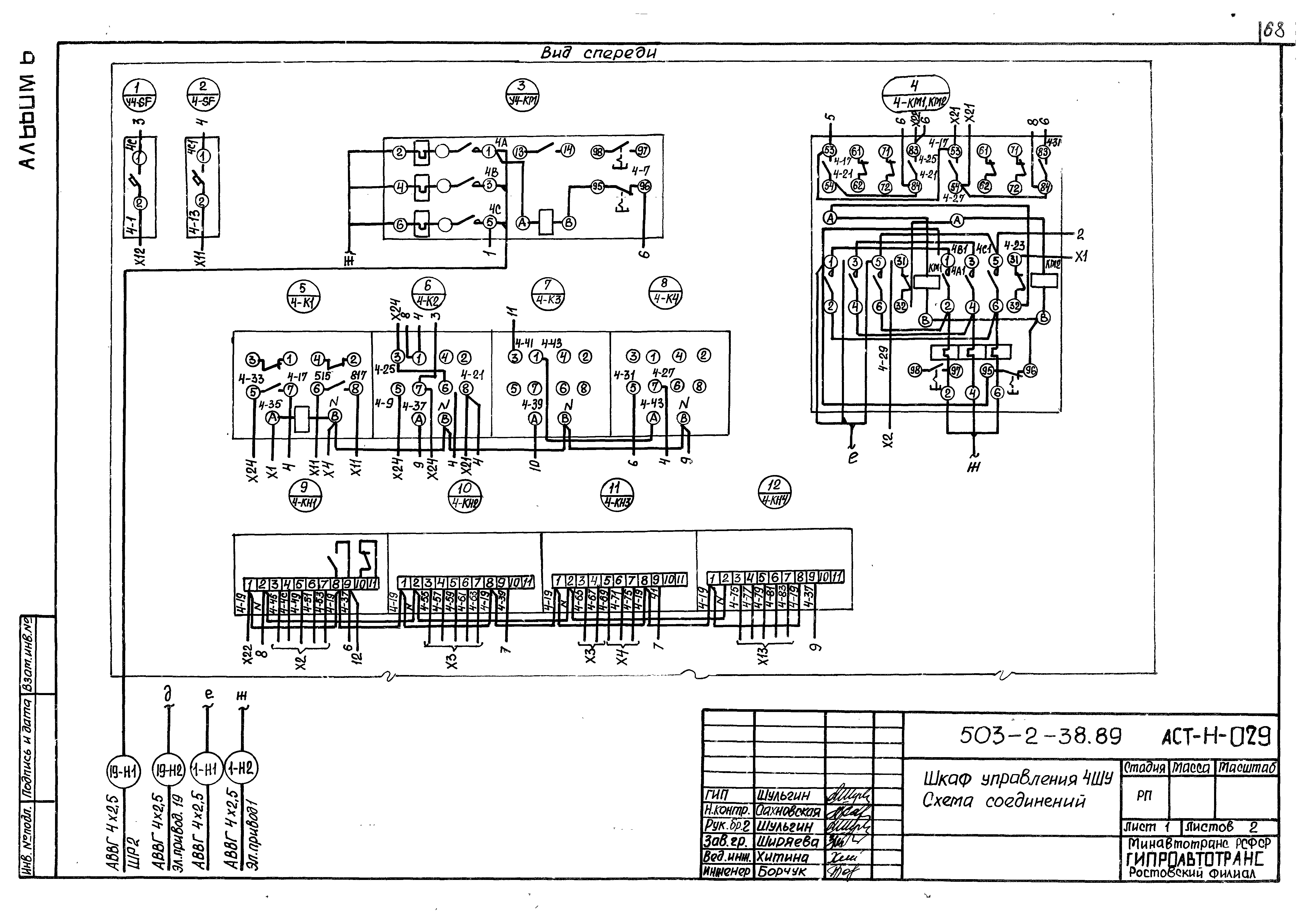
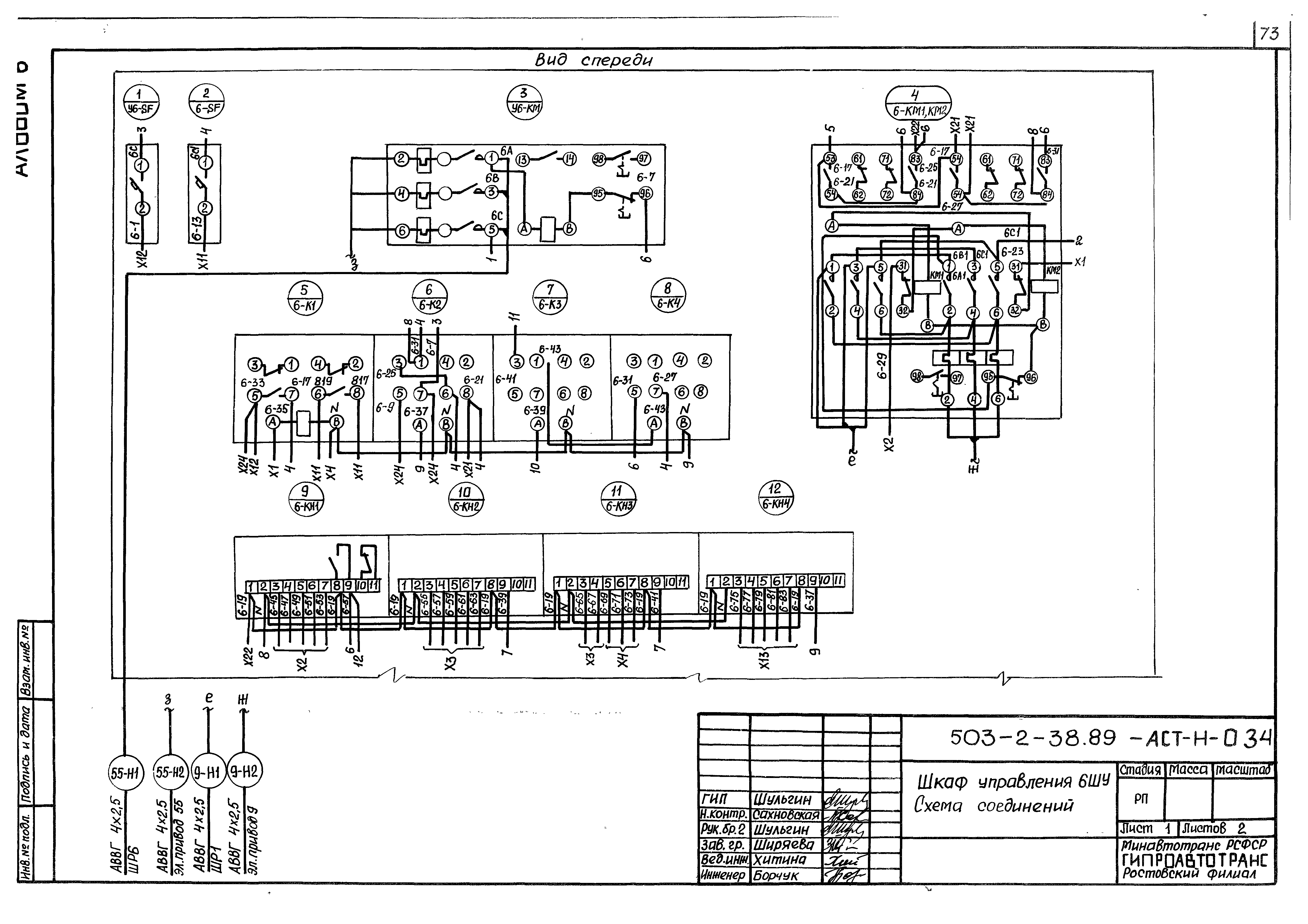
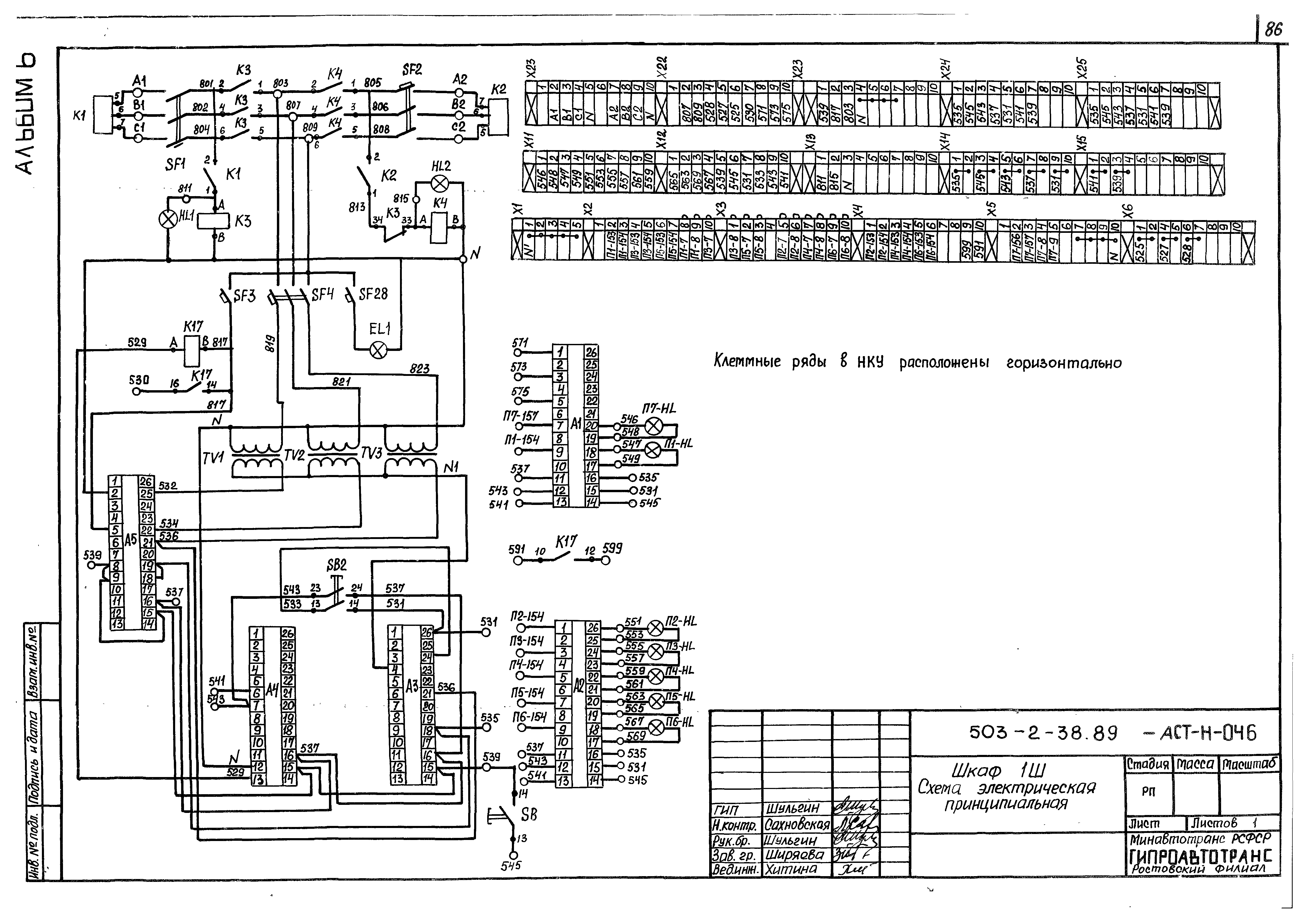
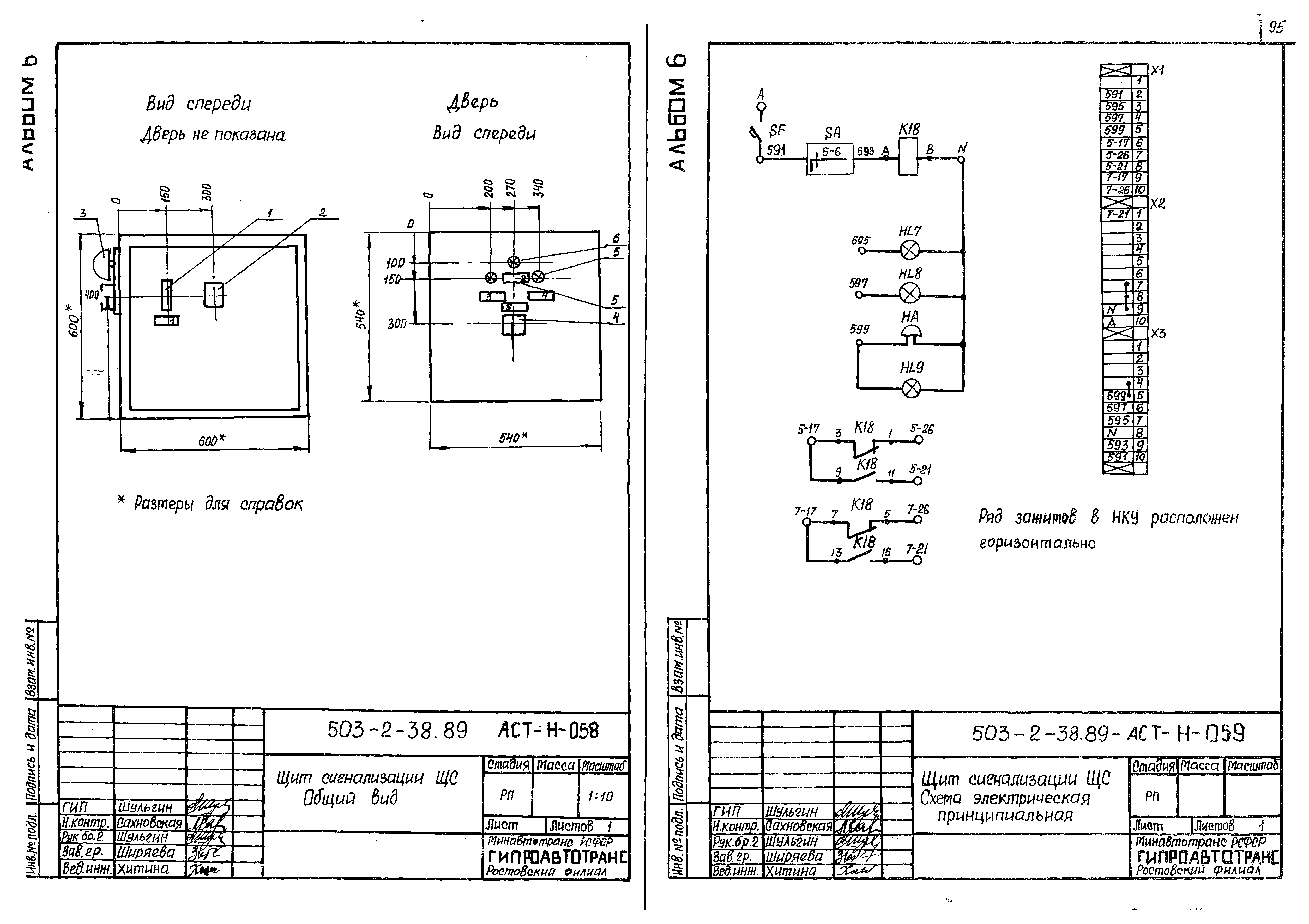
| Оглавление: | Содержание альбома Пояснение к проекту Перечень чертежей, передаваемых заводу-изготовителю Главмонтажавтоматики Спецификация щитов и пультов Щит 1Щ, 2Щ. Общий вид Щит 1Щ, 2Щ. Таблица соединений Щит 1Щ, 2Щ. Таблица подключений Щит 3Щ. Общий вид Щит 3Щ. Таблица соединений Щит 3Щ. Таблица подключений Щит 4Щ, 5Щ. Общий вид Щит 4Щ, 5Щ. Таблица соединений Щит 4Щ, 5Щ. Таблица подключений Щит 6Щ, 7Щ. Общий вид Щит 6Щ, 7Щ. Таблица соединений Щит 6Щ, 7Щ. Таблица подключений Перечень чертежей, передаваемых заводу-изготовителю Минэлектротехпрома Перечень комплектных устройств Шкаф управления 1ШУ (2ШУ, 5ШУ, 7ШУ). Перечень надписей Шкаф управления 1ШУ (2ШУ, 5ШУ, 7ШУ). Технические данные аппаратов Шкаф управления 1ШУ (2ШУ, 5ШУ, 7ШУ). Общий вид Шкаф управления 1ШУ (2ШУ). Схема соединений Шкаф управления 5ШУ (7ШУ). Схема соединений Шкаф управления 1ШУ (2ШУ). Схема электрическая принципиальная Шкаф управления 5ШУ (7ШУ). Схема электрическая принципиальная Шкаф управления 3ШУ. Перечень надписей Шкаф управления 3ШУ. Технические данные аппаратов Шкаф управления 3ШУ. Общий вид Шкаф управления 3ШУ. Схема соединений Шкаф управления 3ШУ. Схема электрическая принципиальная Шкаф управления 4ШУ. Перечень надписей Шкаф управления 4ШУ. Технические данные аппаратов Шкаф управления 4ШУ. Общий вид Шкаф управления 4ШУ. Схема соединений Шкаф управления 4ШУ. Схема электрическая принципиальная Шкаф управления 6ШУ. Перечень надписей Шкаф управления 6ШУ. Технические данные аппаратов Шкаф управления 6ШУ. Общий вид Шкаф управления 6ШУ. Схема соединений Шкаф управления 6ШУ. Схема электрическая принципиальная Шкаф управления 8ШУ. Перечень надписей Шкаф управления 8ШУ. Технические данные аппаратов Шкаф управления 8ШУ. Общий вид Шкаф управления 8ШУ. Схема соединений Шкаф управления 8ШУ. Схема электрическая принципиальная Шкаф управления 1Ш. Перечень надписей Шкаф управления 1Ш. Технические данные аппаратов Шкаф управления 1Ш. Общий вид Шкаф управления 1Ш. Схема соединений Шкаф управления 1Ш. Схема электрическая принципиальная Шкаф управления 2Ш. Перечень надписей Шкаф управления 2Ш. Технические данные аппаратов Шкаф управления 2Ш. Общий вид Шкаф управления 2Ш. Схема соединений Шкаф управления 2Ш. Схема электрическая принципиальная Шкаф управления 3Ш. Перечень надписей Шкаф управления 3Ш. Технические данные аппаратов Шкаф управления 3Ш. Общий вид Шкаф управления 3Ш. Схема соединений Шкаф управления 3Ш. Схема электрическая принципиальная Щит сигнализации ЩС. Перечень надписей Щит сигнализации ЩС. Технические данные аппаратов Щит сигнализации ЩС. Общий вид Щит сигнализации ЩС. Схема соединений Щит сигнализации ЩС. Схема электрическая принципиальная Опросный лист для заказа ВРУ |
| Разработан: | Ростовский филиал Гипроавтотранса Минавтотранса РСФСР |
| Утверждён: | 15.09.1989 Минавтотранс РСФСР (Russian Federation Minavtotrans 9) |

































































































