Скачать Типовой проект 701-5-1с.87 Альбом II. Конструкции металлическиеДата актуализации: 01.01.2021
|
| Обозначение: | Типовой проект 701-5-1с.87 |
| Обозначение англ: | 701-5-1с.87 |
| Статус: | не определен законодательством |
| Название рус.: | Альбом II. Конструкции металлические |
| Дата добавления в базу: | 01.09.2013 |
| Дата актуализации: | 01.01.2021 |
| Дата введения: | 20.08.1985 |
| Дата окончания срока действия: | 30.06.2003 |
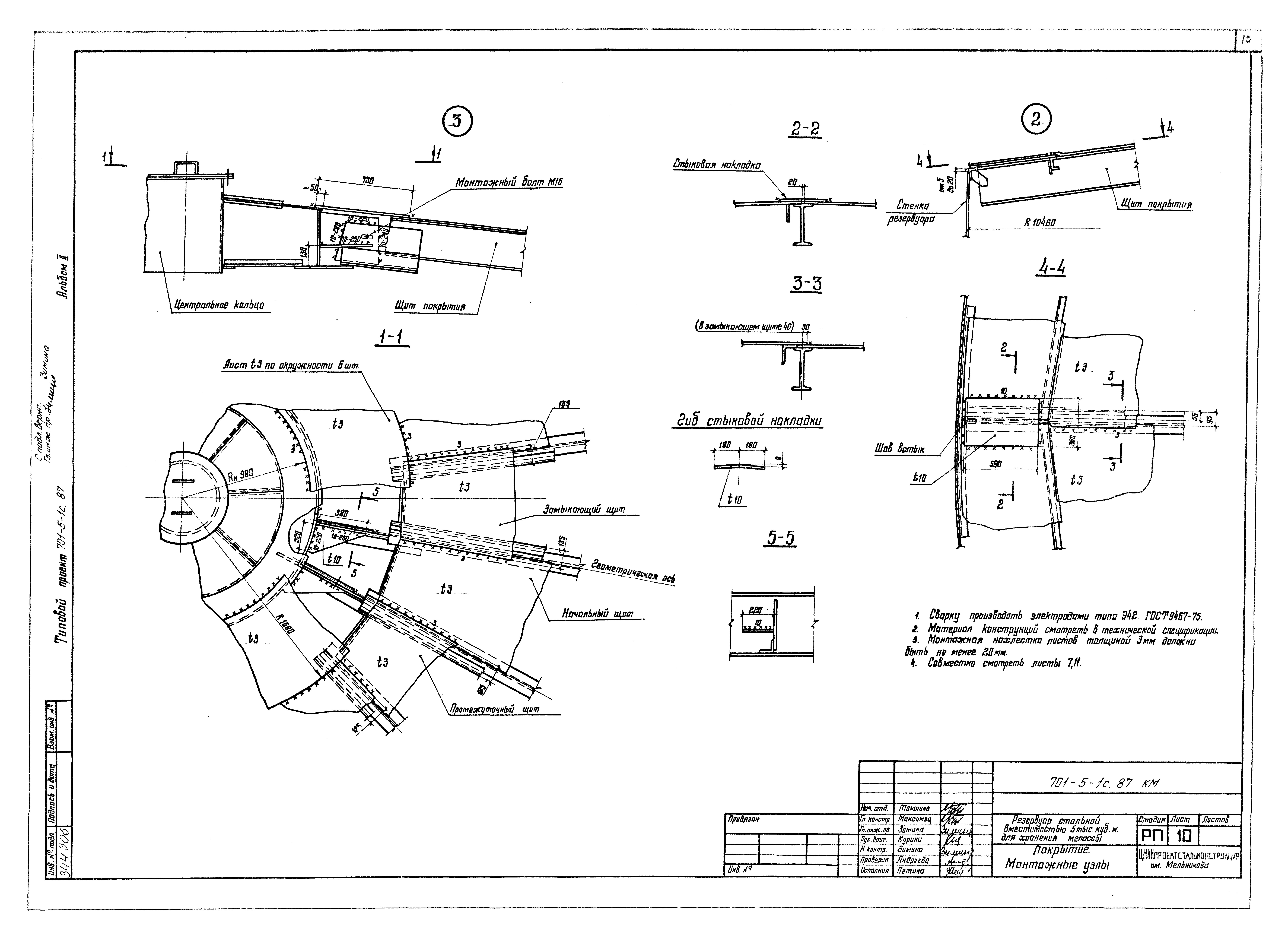
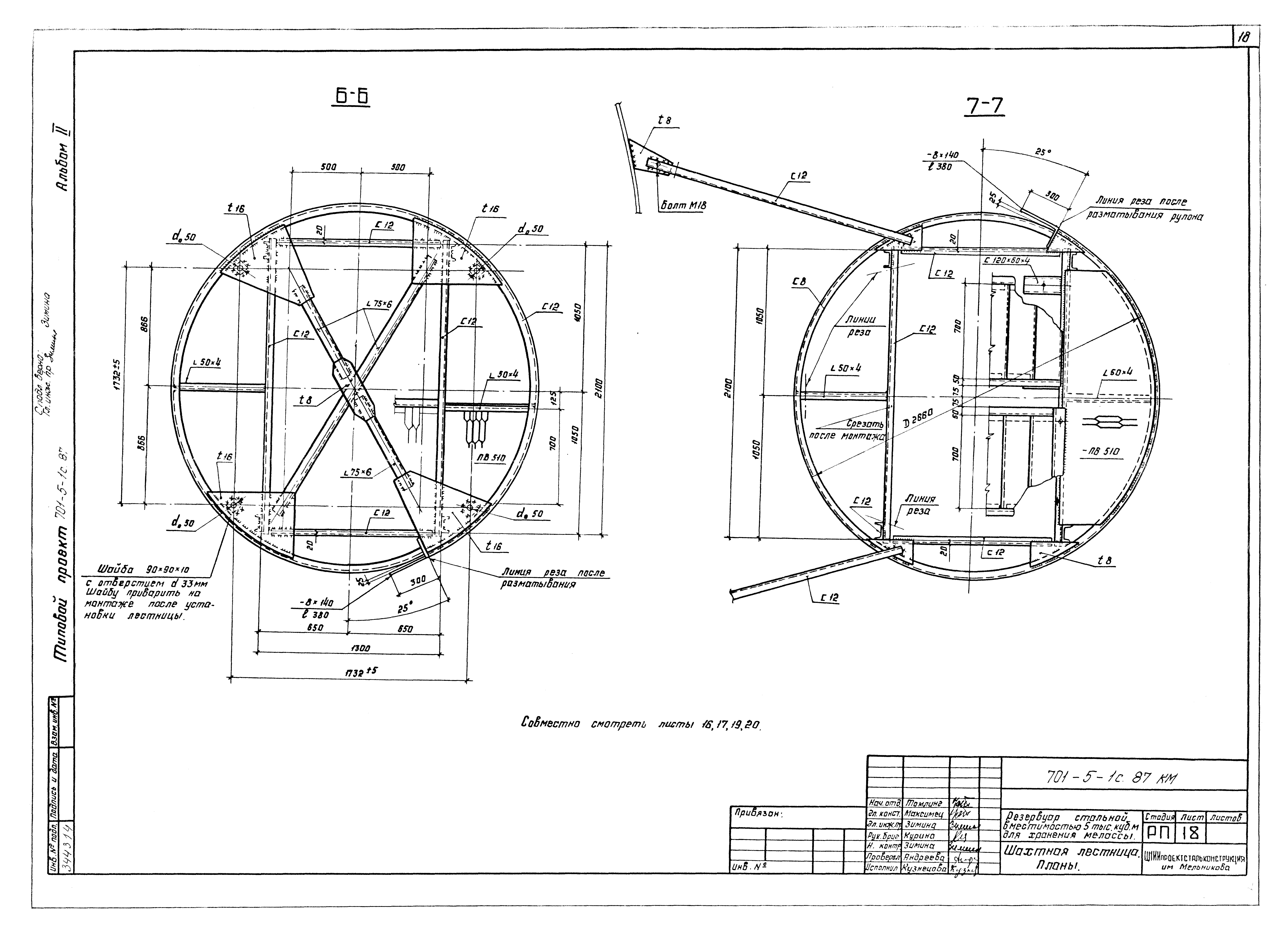
| Оглавление: | Общие данные Техническая спецификация стали Общий вид. Фасад и план Общий вид. Разрез и таблица показателей расхода стали Днища Стенка Покрытие. Монтажные узлы Покрытие. Центральное кольцо Покрытие. Начальный щит Покрытие. Промежуточный щит Покрытие. Замыкающий щит Покрытие. Узлы щитов Шахтная лестница. Общий вид. Разрезы и узлы Шахтная лестница. Планы. Лист 1 Шахтная лестница. Планы. Лист 2 Шахтная лестница. Марши и площадки Шахтная лестница. Переходная площадка и ограждение Площадки и ограждение на крыше. План и разрезы Площадки и ограждение на крыше. Узлы Внутренняя лестница Люки-лазы в I поясе стенки Люк монтажный и штуцера на крыше Нагрузка на фундамент Площадки для обслуживания контрольно-измерительных приборов Ведомость металлоконструкций по видам профилей |
| Разработан: | ЦНИИпроектстальконструкция Госстроя |
| Утверждён: | 20.08.1985 Минпищепром СССР (USSR Minpisheprom 7727) |





























