Скачать Типовой проект 0901-4-12.89 Альбом 1. Пояснительная записка. Архитектурно-строительные решения. Конструкции железобетонные. Организация строительства. Технологическая часть. Автоматизация. Спецификация оборудованияДата актуализации: 01.01.2021
|
| Обозначение: | Типовой проект 0901-4-12.89 |
| Обозначение англ: | 0901-4-12.89 |
| Статус: | не определен законодательством |
| Название рус.: | Альбом 1. Пояснительная записка. Архитектурно-строительные решения. Конструкции железобетонные. Организация строительства. Технологическая часть. Автоматизация. Спецификация оборудования |
| Дата добавления в базу: | 01.09.2013 |
| Дата актуализации: | 01.01.2021 |
| Дата введения: | 18.05.1989 |
| Дата окончания срока действия: | 30.06.2003 |
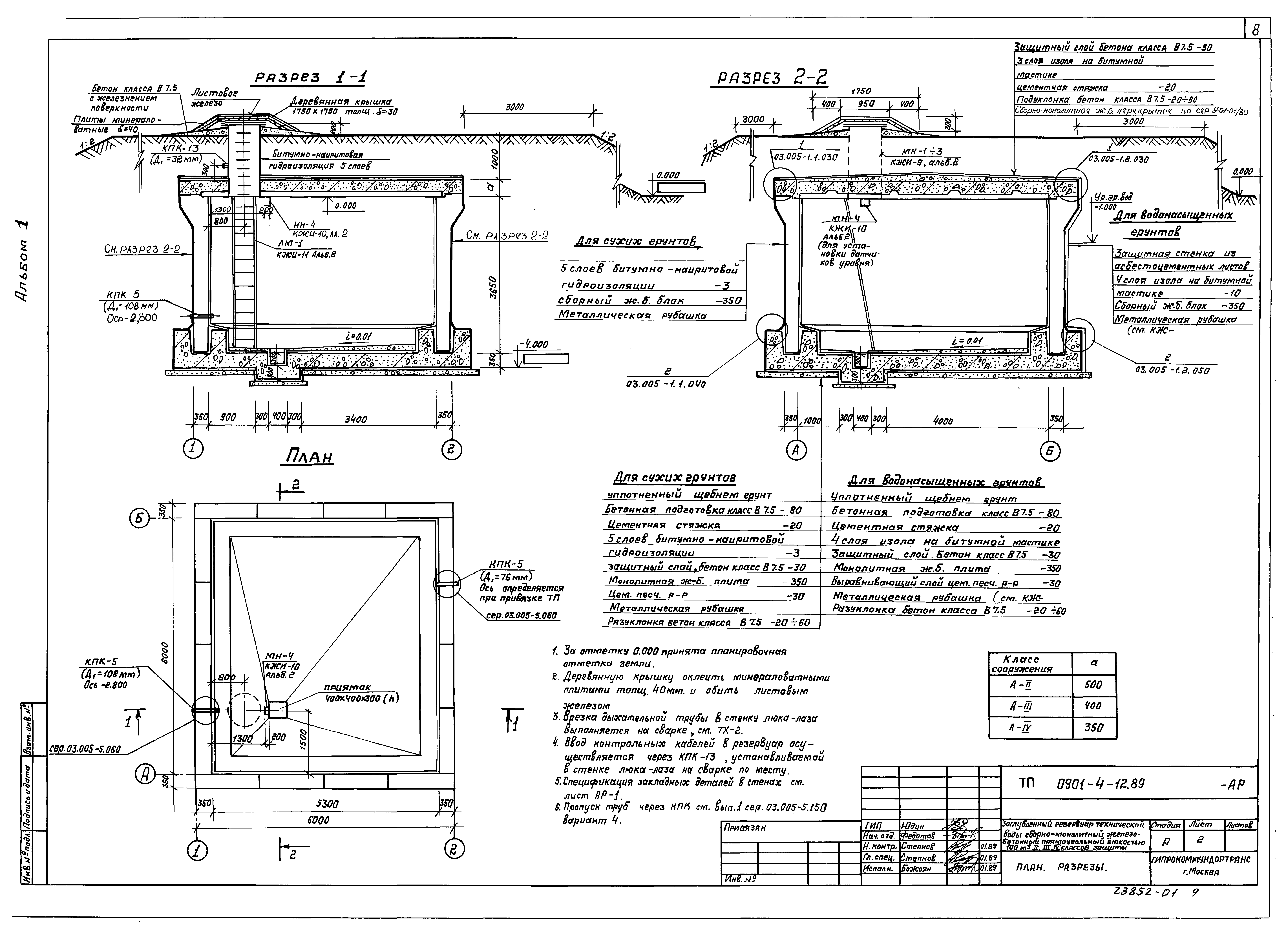
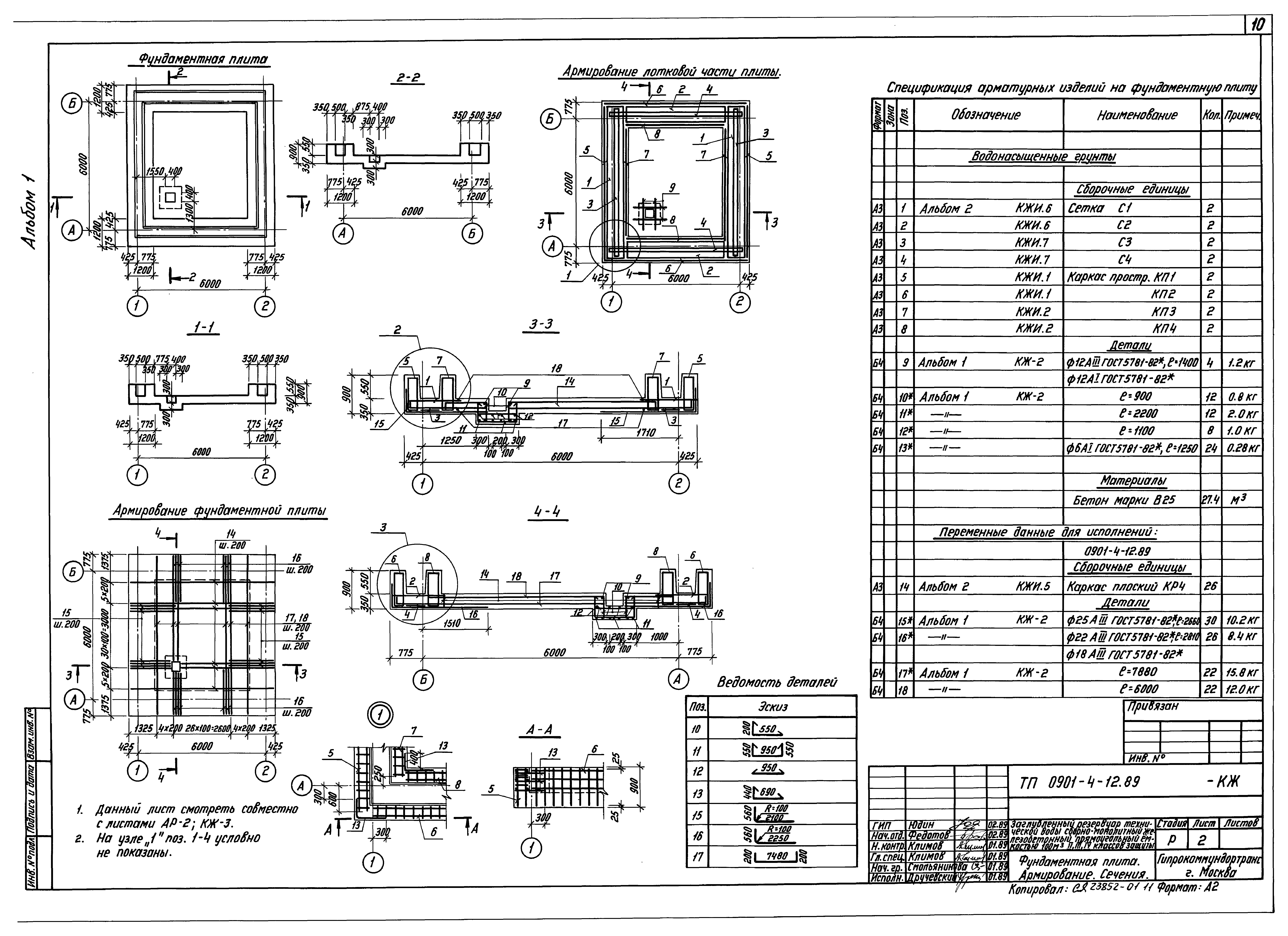
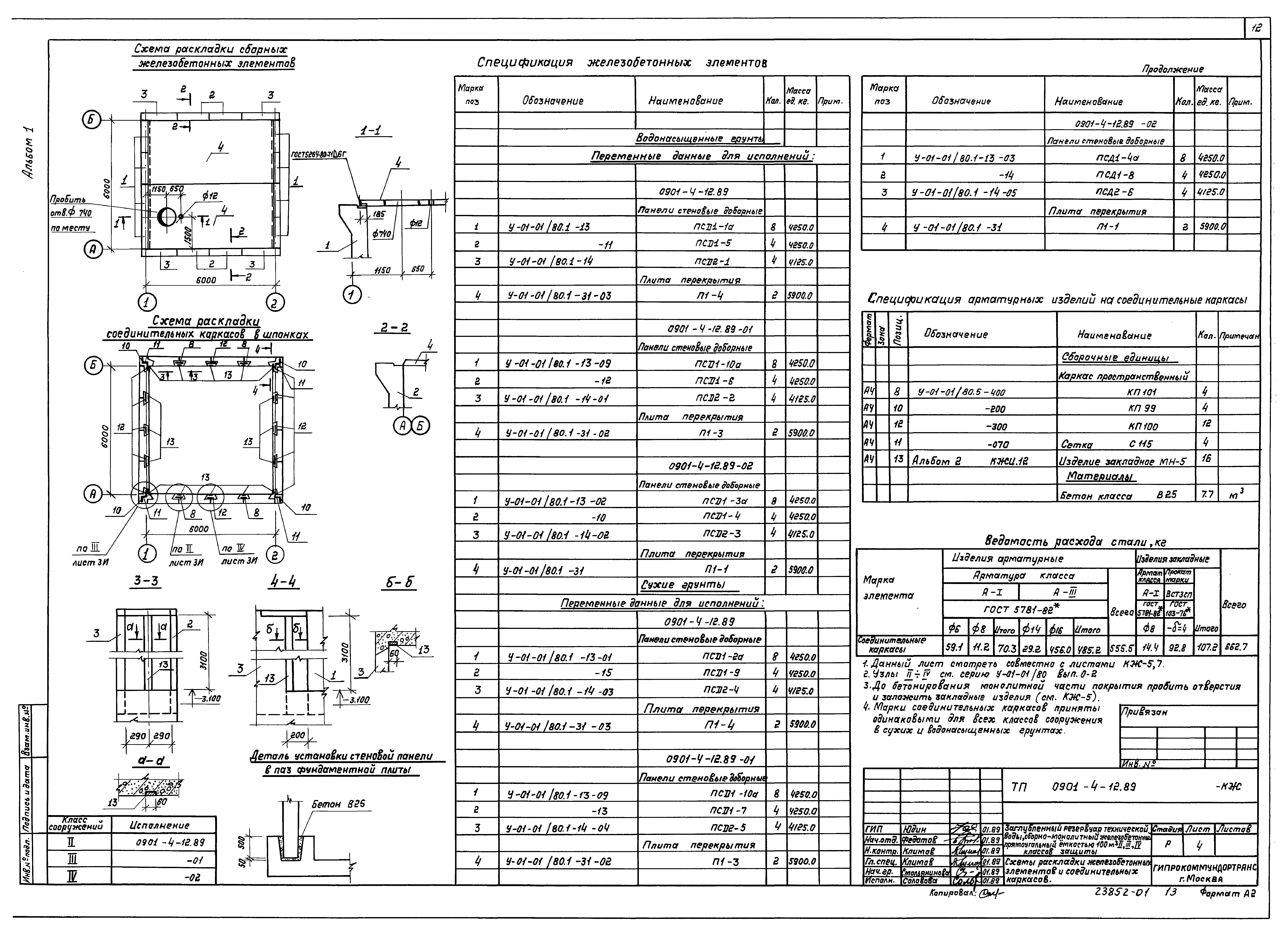
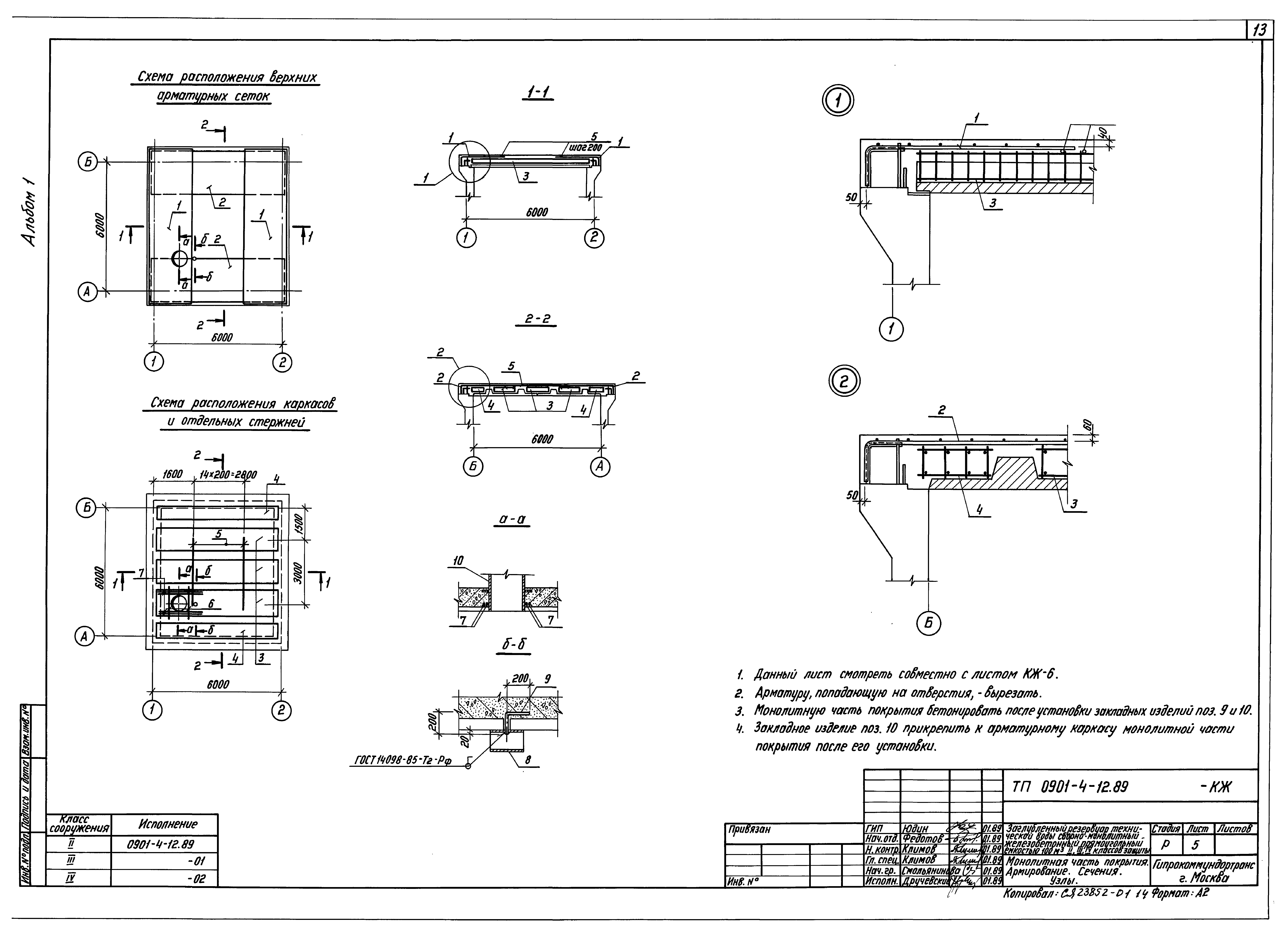
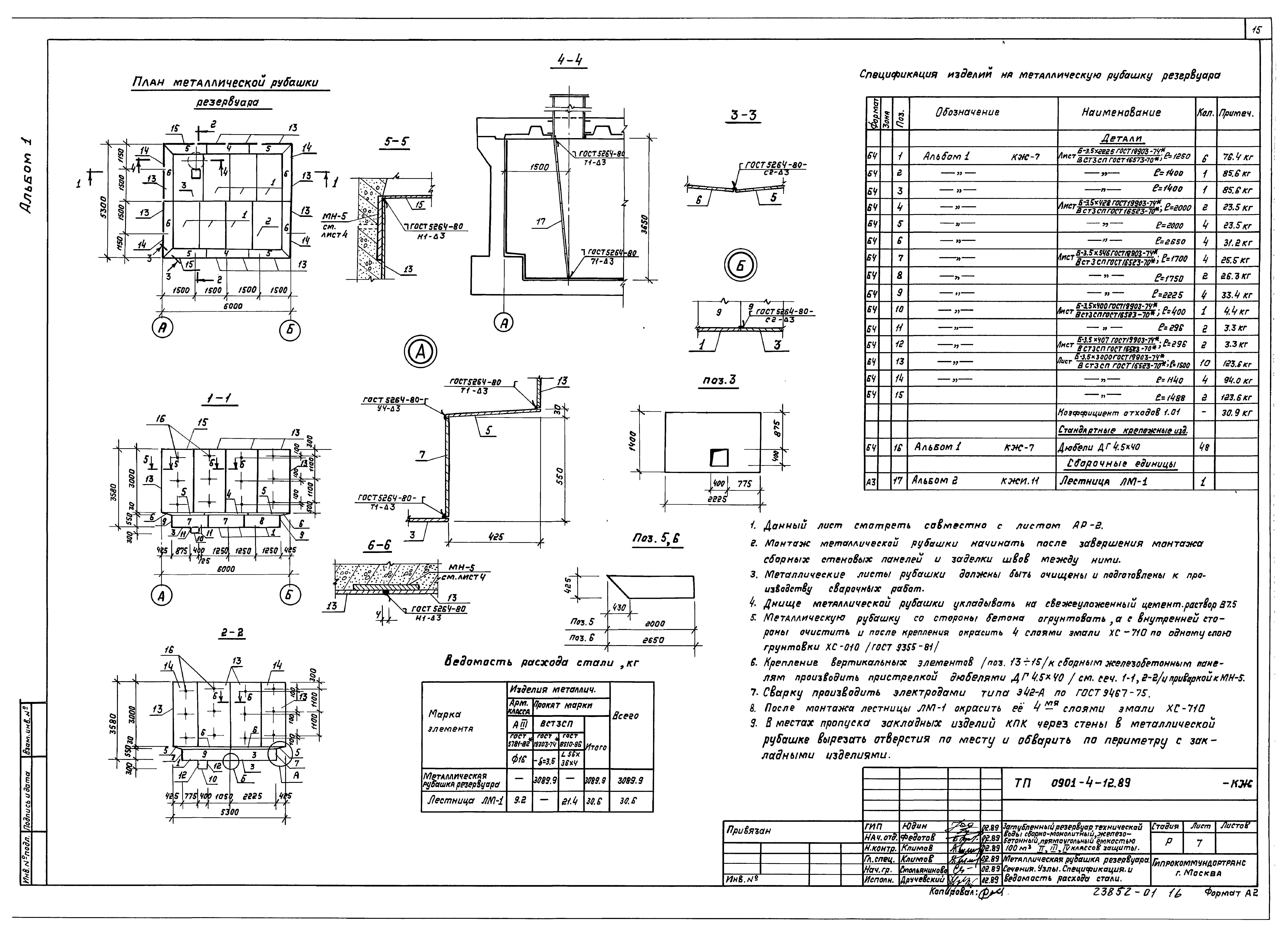
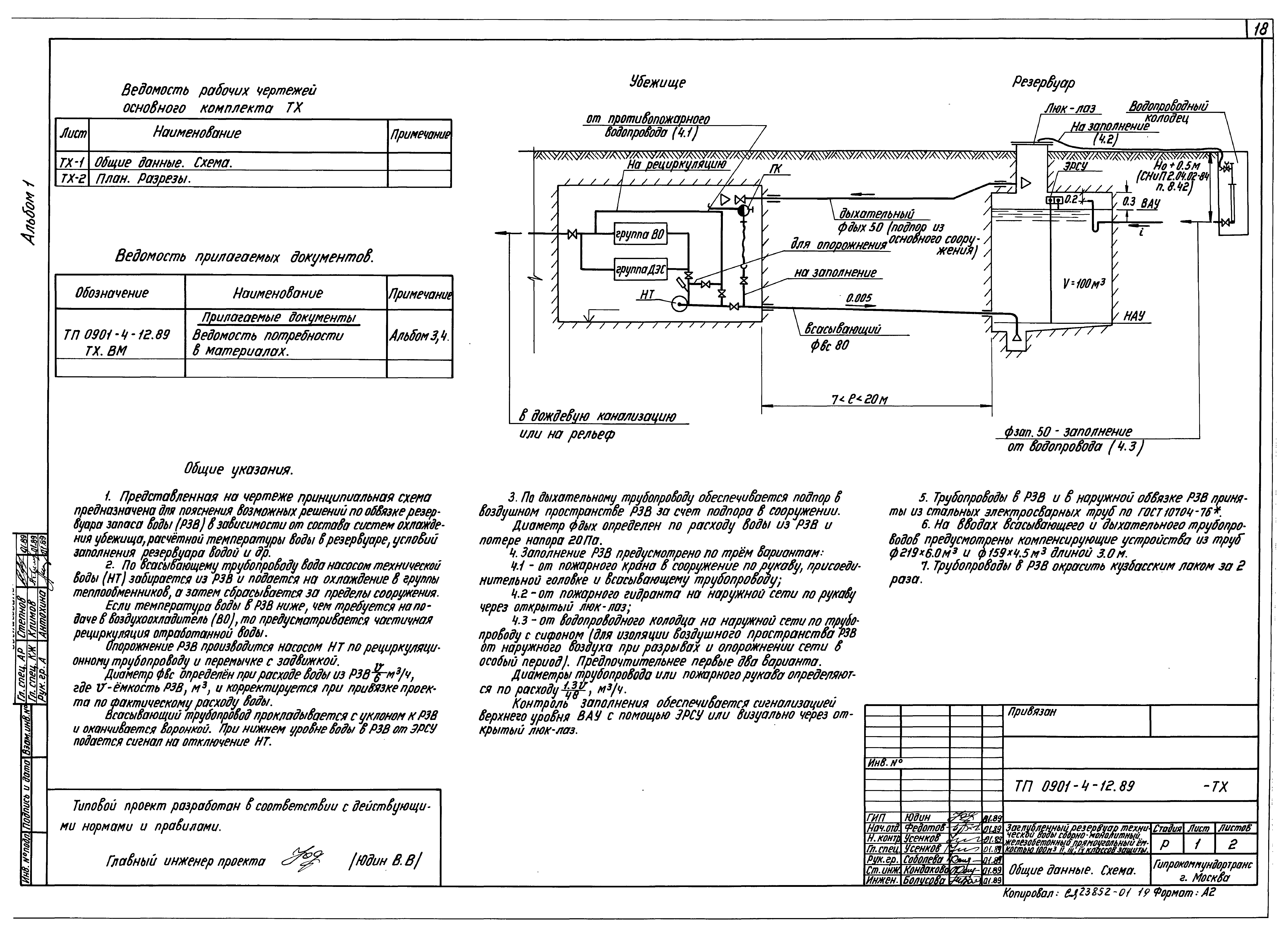
| Оглавление: | Содержание Пояснительная записка Чертежи основного комплекта марки АР Общие данные План, разрезы Чертежи основного комплекта марки КЖ Общие данные Фундаментная плита. Армирование. Сечения Фундаментная плита. Узлы. Спецификация и ведомость расхода стали Схемы раскладки железобетонных элементов и соединительных каркасов Монолитная часть покрытия. Армирование. Сечения. Узлы Монолитная часть покрытия. Спецификация и ведомость расхода стали Металлическая рубашка резервуара. Сечения. Узлы. Спецификация и ведомость расхода стали Чертежи основного комплекта марки ОС Общие данные График производства работ Чертежи основного комплекта марки ТХ Общие данные. Схема План. Разрезы 1-1, 2-2 Чертежи основного комплекта марки А Общие данные. План, разрезы 1-1, 2-2 Спецификация оборудования |
| Разработан: | Гипрокоммундортранс |
| Утверждён: | 12.05.1989 Штаб гражданской обороны СССР (USSR Civil Defense Headquarters 43) |






















