Скачать Типовой проект 0901-4-11.89 Альбом 1. Пояснительная записка. Архитектурно-строительные решения. Конструкции железобетонные. Организация строительства. Технологическая часть. Автоматизация. Спецификация оборудованияДата актуализации: 01.01.2021
|
| Обозначение: | Типовой проект 0901-4-11.89 |
| Обозначение англ: | 0901-4-11.89 |
| Статус: | не определен законодательством |
| Название рус.: | Альбом 1. Пояснительная записка. Архитектурно-строительные решения. Конструкции железобетонные. Организация строительства. Технологическая часть. Автоматизация. Спецификация оборудования |
| Дата добавления в базу: | 01.09.2013 |
| Дата актуализации: | 01.01.2021 |
| Дата введения: | 15.03.1989 |
| Дата окончания срока действия: | 30.06.2003 |
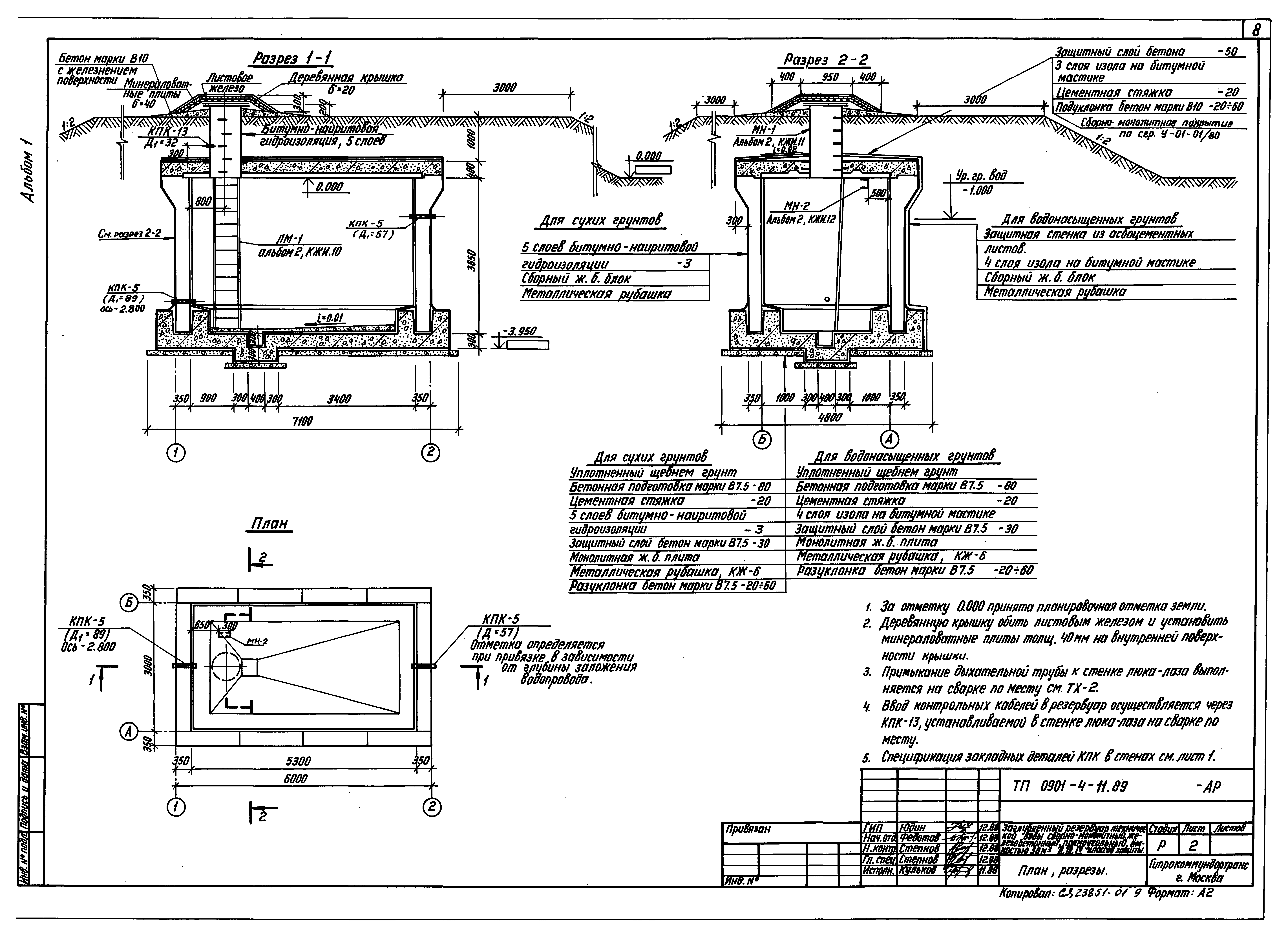
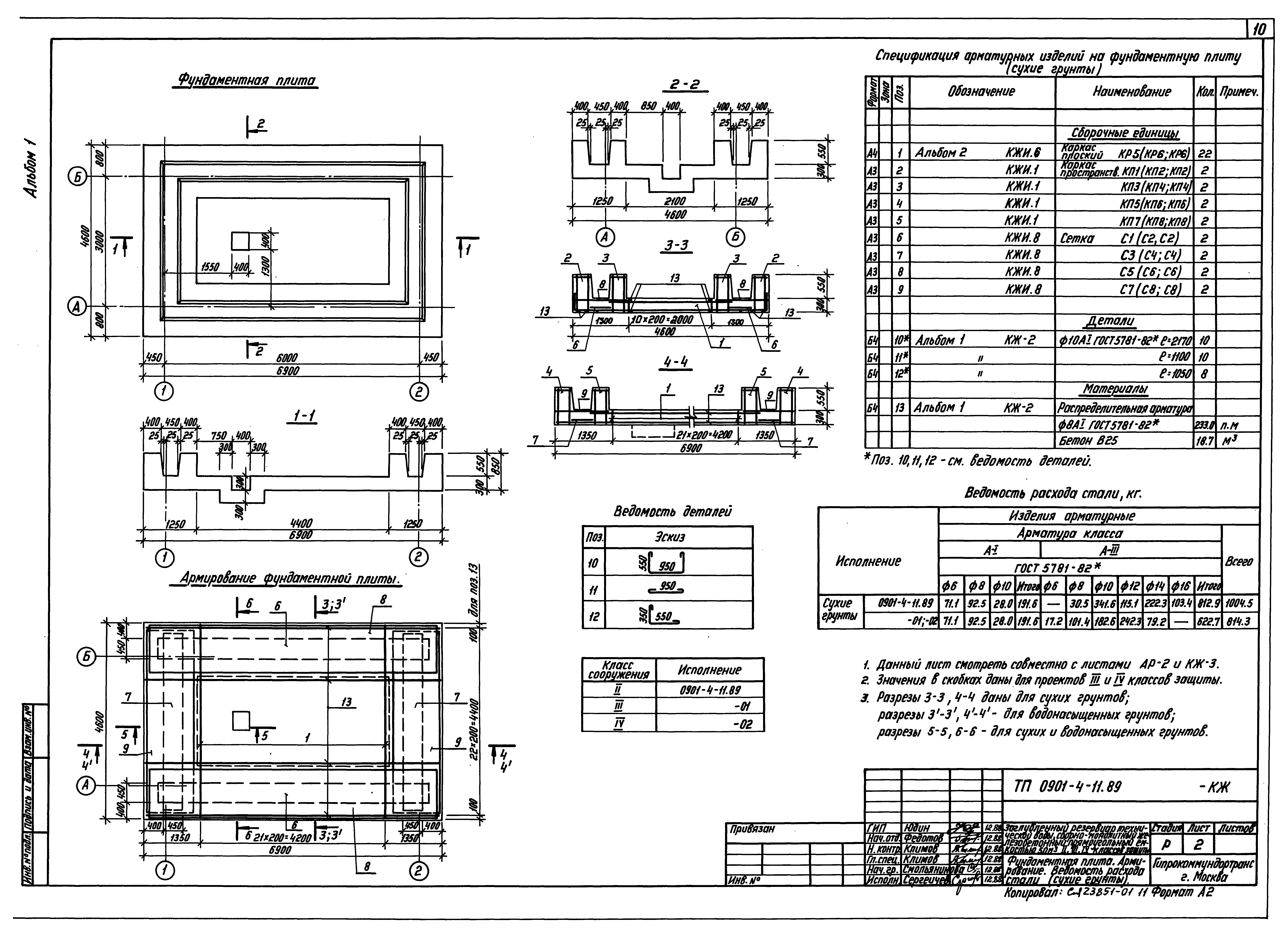
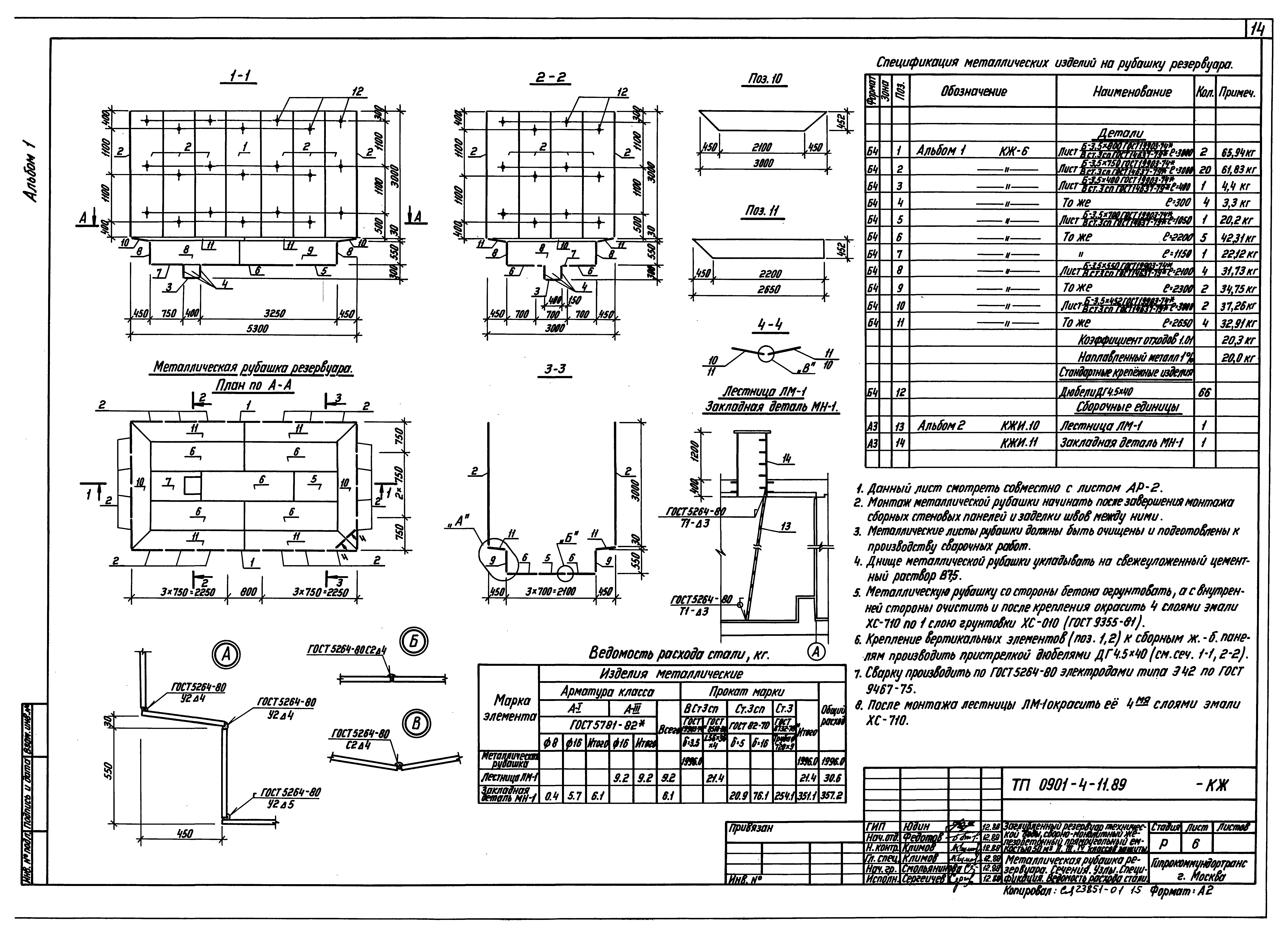
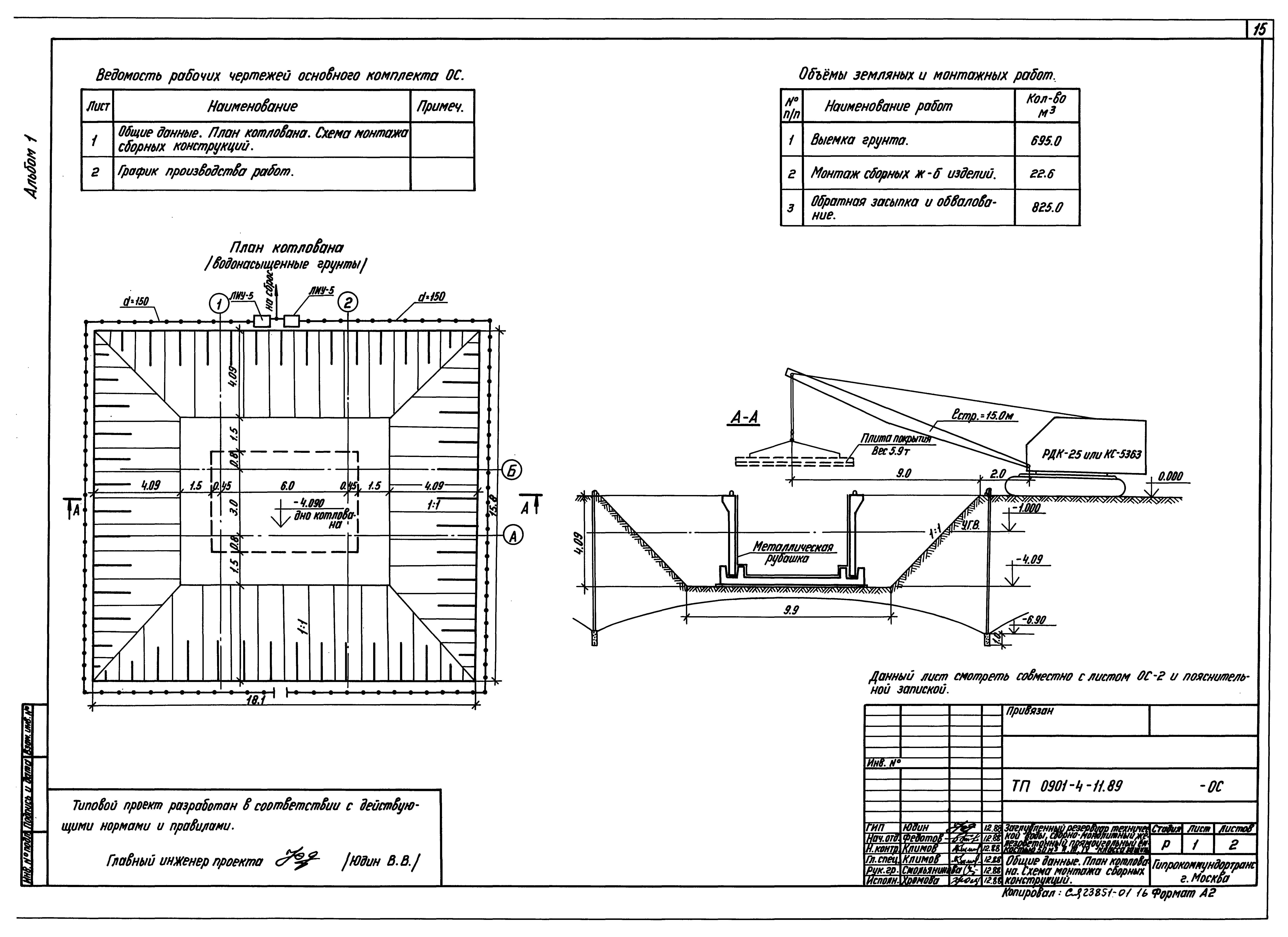
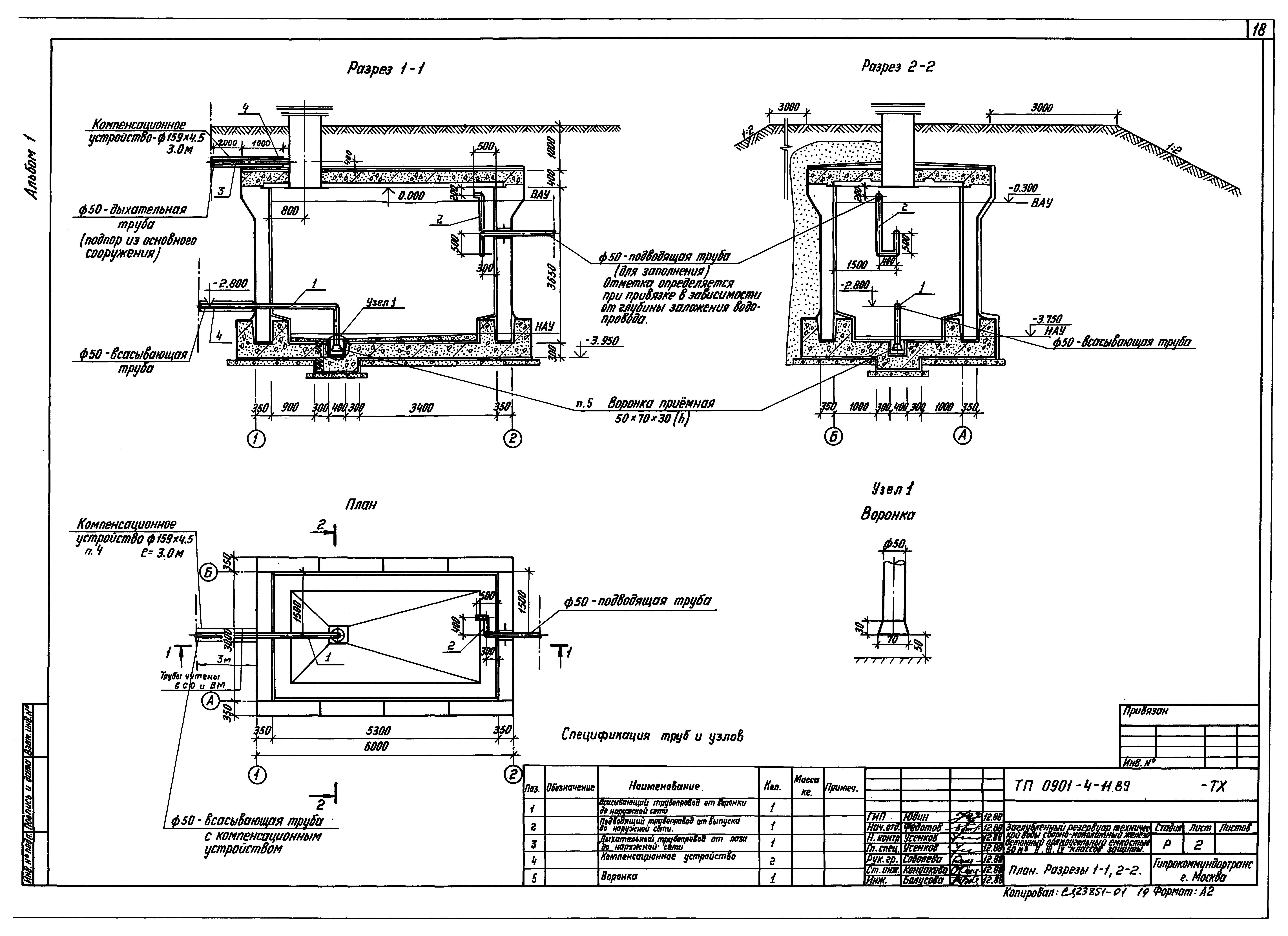
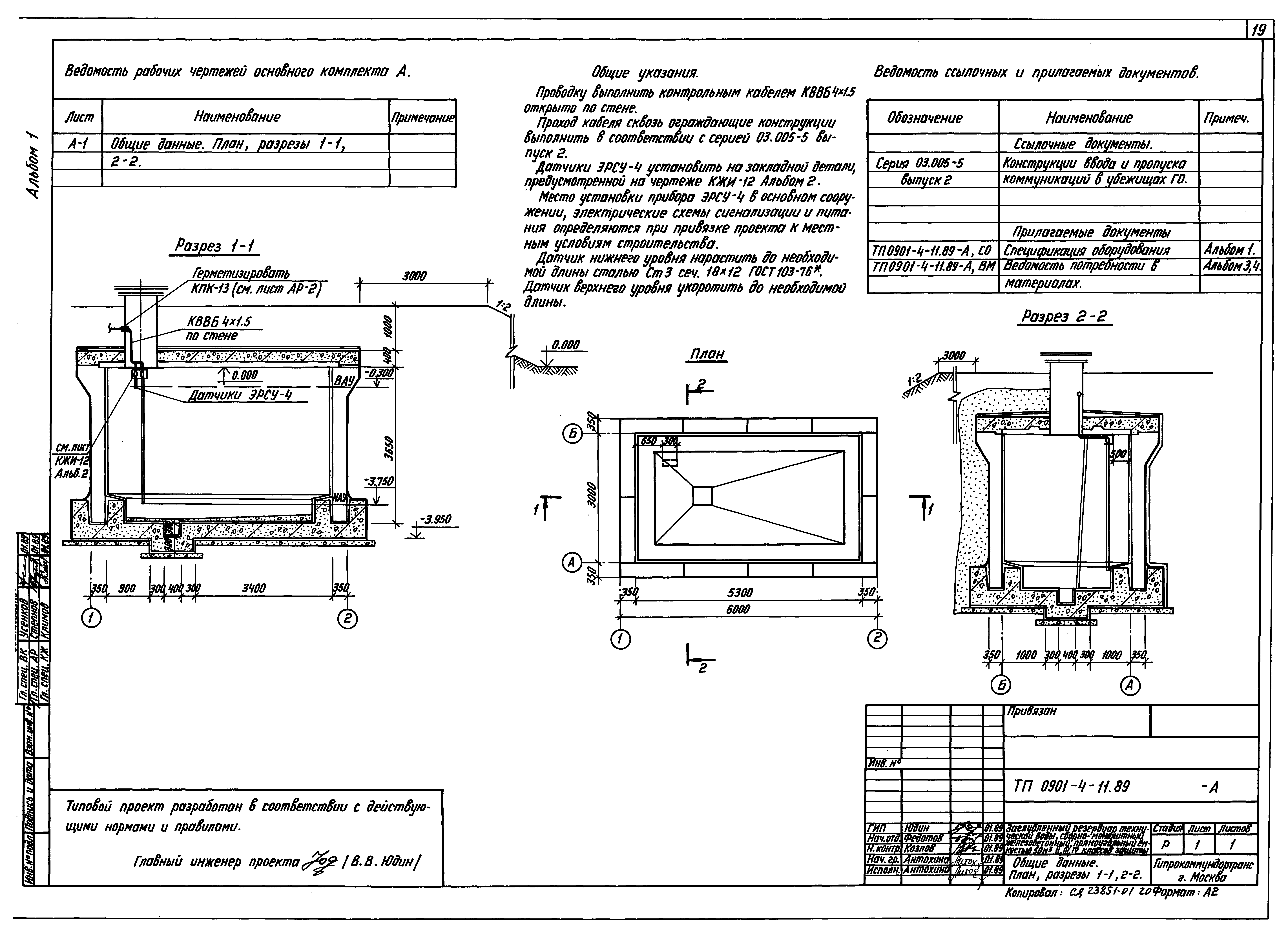
| Оглавление: | Содержание Пояснительная записка Чертежи основного комплекта марки АР Общие данные План, разрезы Чертежи основного комплекта марки КЖ Общие данные Фундаментная плита. Армирование. Ведомость расхода стали (сухие грунты) Фундаментная плита. Ведомость расхода стали (водонасыщенные грунты) Схема сборных железобетонных конструкций. Соединительные каркасы и сетки. Спецификации. Ведомости Монолитная часть покрытия. Армирование. Разрезы. Спецификация. Ведомость расхода стали Металлическая рубашка резервуара. Сечения. Узлы. Спецификация. Ведомость расхода стали Чертежи основного комплекта марки ОС Общие данные. План котлована. Схема монтажа сборных конструкций График производства работ Чертежи основного комплекта марки ТХ Общие данные. Схема План. Разрезы 1-1, 2-2 Чертежи основного комплекта марки А Общие данные. План, разрезы 1-1, 2-2 Спецификация оборудования |
| Разработан: | Гипрокоммундортранс |
| Утверждён: | 03.03.1989 Штаб гражданской обороны СССР (USSR Civil Defense Headquarters 40) |





















