Скачать Типовой проект 709-9-126.93 Альбом 3. Строительные изделияДата актуализации: 01.01.2021
|
| Обозначение: | Типовой проект 709-9-126.93 |
| Обозначение англ: | 709-9-126.93 |
| Статус: | не определен законодательством |
| Название рус.: | Альбом 3. Строительные изделия |
| Дата добавления в базу: | 01.09.2013 |
| Дата актуализации: | 01.01.2021 |
| Дата введения: | 07.07.1993 |
| Дата окончания срока действия: | 30.06.2003 |
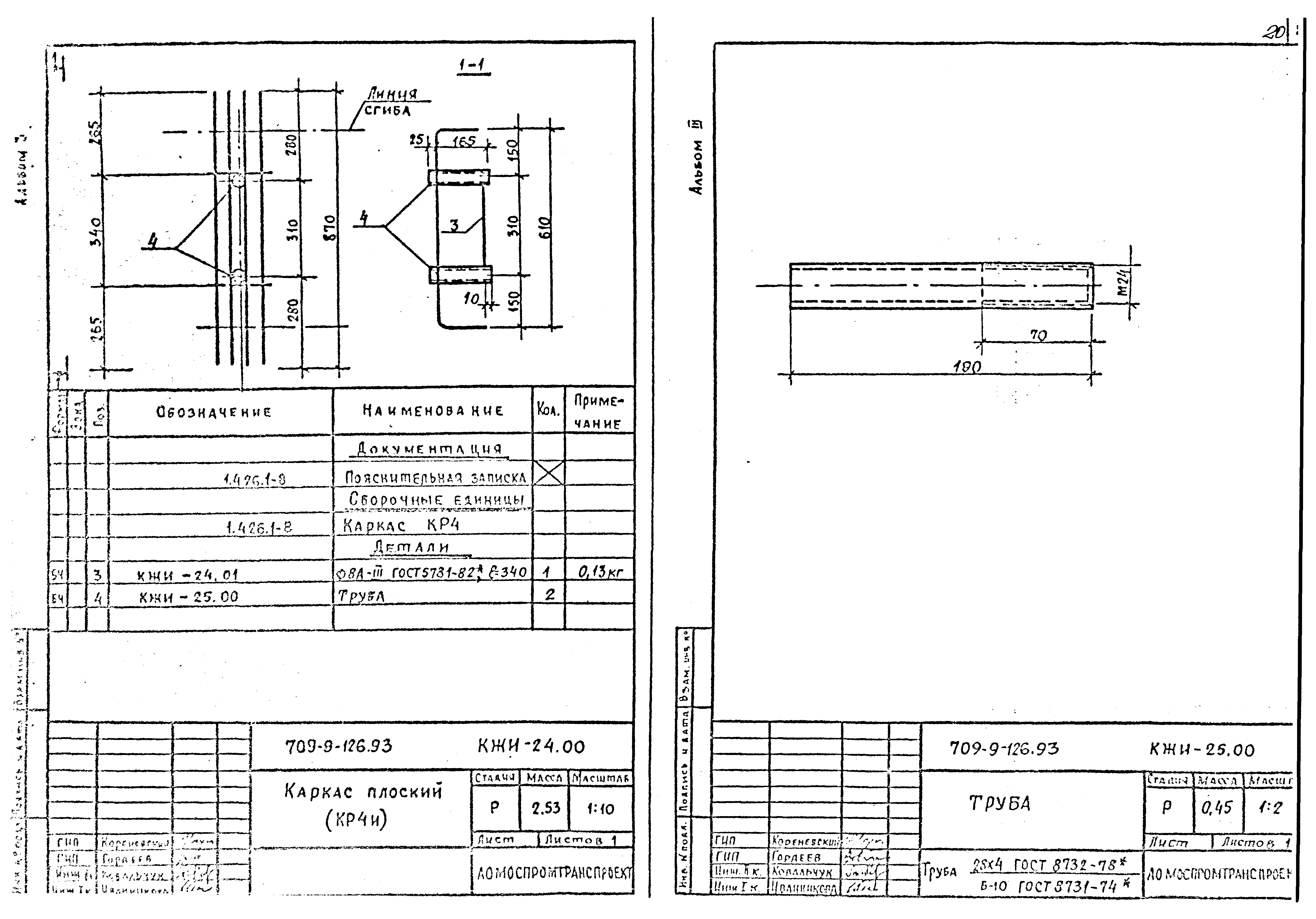
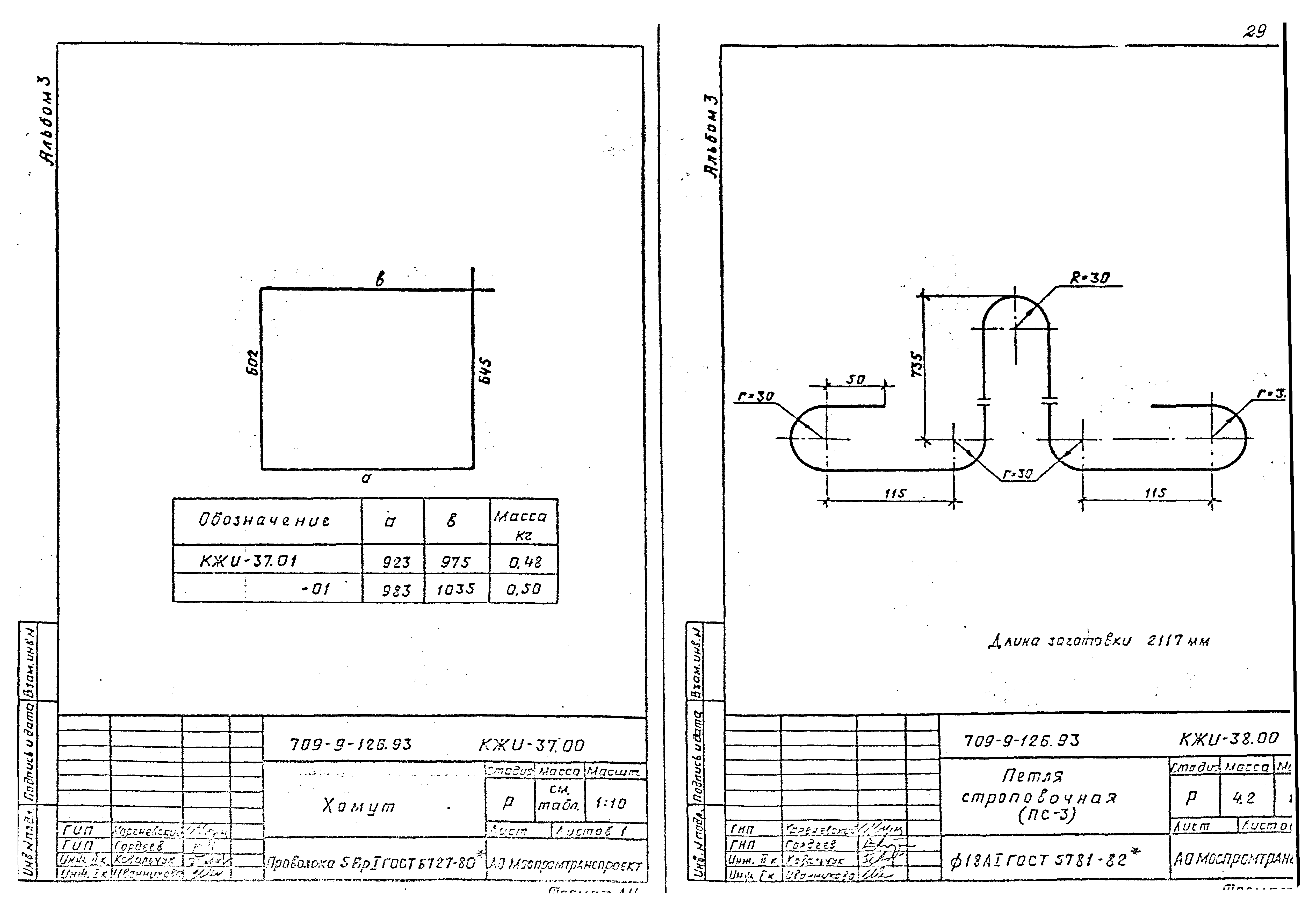
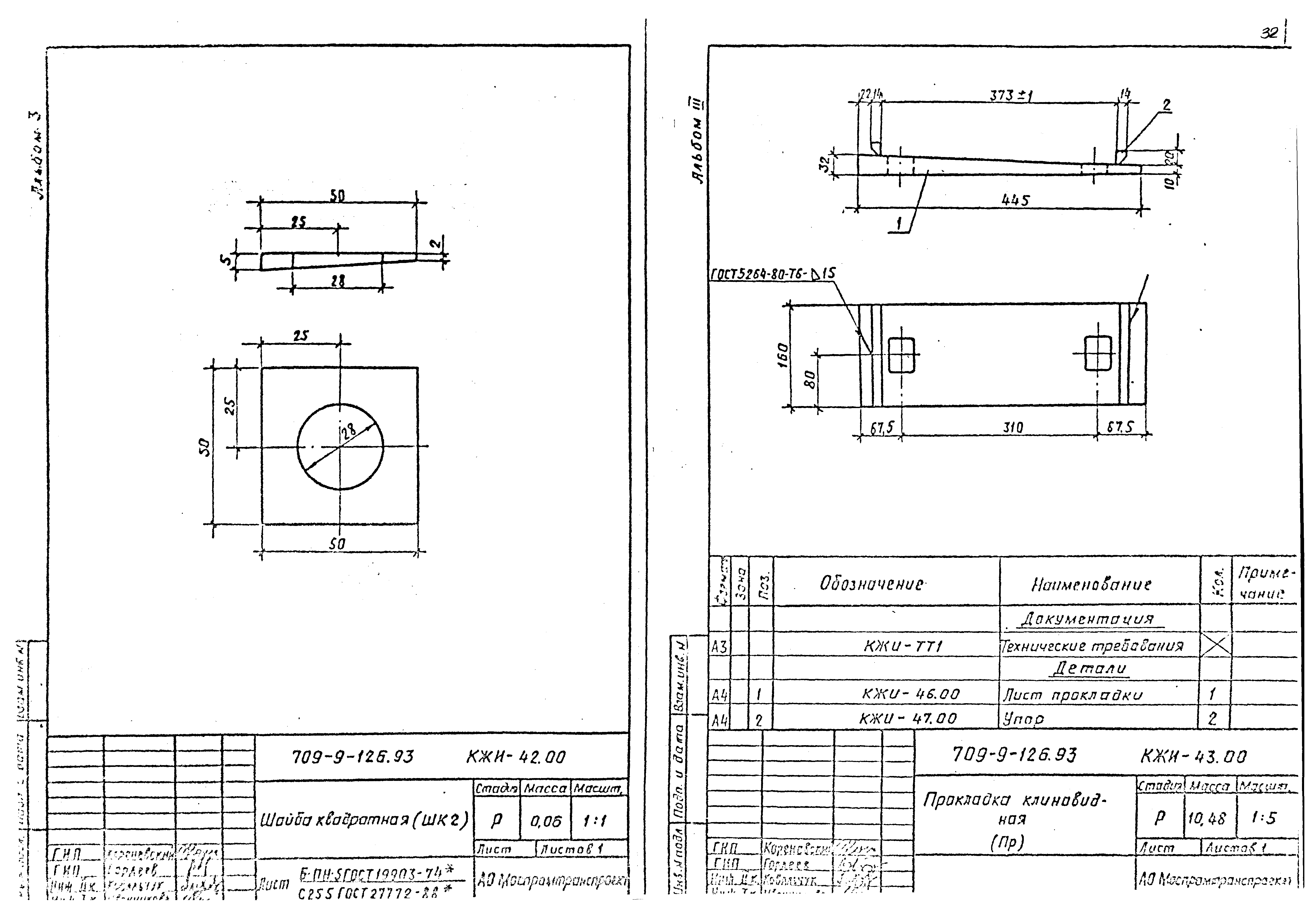
| Оглавление: | Содержание альбома Технические требования Ведомость расхода стали Блок шпальный (Б.24.20.7.5) Каркас плоский КР1 Каркас плоский КР2 Каркас пространственный КП1 Сетка арматурная С1 Сетка арматурная С2 Закладная деталь ЗД1 Закладная деталь ЗД2 Фланец Петля строповочная Плита фундаментная (ФЛ10.24-3и) Закладная деталь ЗД3 Плита фундаментная (ФЛ10.12-3и) Блок бетонный (ФБС12.4.6-Т-И) Блок бетонный (ФБС24.4.6-Т-И) Каркас КР3 Каркас КР4 Прокладка ПР1 Шайба ШК3 Сетка С3…С7 Балка подкрановая (БК12-5АIV-С-И) Каркас пространственный (КП4и) Сетка арматурная (С13и) Каркас плоский (КР4и) Труба Закладная деталь ЗД4 Закладная деталь ЗД5 Диафрагма (Д1) Диафрагма (Д1). Сборочный чертеж Сетка арматурная (С8) Закладная деталь ЗД7 Закладная деталь ЗД6 Шпилька Петля строповочная (ПС2) Насадка промежуточной опоры (НП1) Сетка арматурная (С9) Сетка арматурная (С10) Хомут Петля строповочная (ПС3) Подферменник (ПФ1) Сетка арматурная (С11) Петля строповочная (ПС4) Шайба квадратная (ШК2) Прокладка клиновидная (ПР) Лист прокладки Упор Каркас (КП1…КП3) Шайба квадратная (ШК1) |
| Разработан: | Моспромтранспроект |
| Утверждён: | 07.07.1993 Государственная корпорация Трансстрой (Transstroy Government-Owned Corporation МВ-129) |

































